REGENCY GFI350L Greenfire Gas Inbuilt Fireplace Owner

Greenfire Gas Inbuilt Fireplace
| MODEL | GFI350LNG-R | GFI350LLPG-R | GFI350LULPG-R |
| Fuel Type | Natural Gas | Propane | Propane |
| Gas Consumption High | 30 MJ/h | 27 MJ/h | 21 MJ/h |
| Gas Consumption Low | 20 MJ/h | 22 MJ/h | 17 MJ/h |
| Minimum Supply Pressure | 0.9 kPa | 2.30 kPa | 2.30 kPa |
| Manifold Pressure | 0.42 kPa | 1.50 kPa | 1.50 kPa |
| Injector Size | #40 (2.50 mm) | #53 (1.50 mm) | # 55 (1.30 mm) |
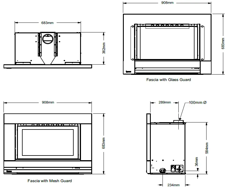
DIMENSIONS

MINIMUM FIREPLACE DIMENSIONS
The below minimum cavity requirements are to be maintained to ensure safe and proper operation of the appliance. Ensure all construction conforms to local building codes.
Masonry Installation
The minimum fireplace dimensions for a masonry installation are shown in the diagrams below.
Zero Clearance Installation (no masonry chimney)
- Minimum Fireplace dimensions:
- 800mm =Width
- 420mm= Depth
- 650mm= Height
See framing details in this manual.

CLEARANCES
Minimum Clearances to Combustibles
The minimum fireplace clearances for the Regency gas space heater are shown in the following diagrams:
From Unit
- Sides A 464 mm
- Ceiling B 860 mm
- Mantle C see Mantel Clearances
- Min. Alcove Width E 1924 mm
- Max. Alcove Depth F 914 mm

(c) Mantel Clearances

Mantel Leg Clearances
Combustible mantel leg clearances as per diagram
CLEARANCES
Optional Mock Fireplace (Zero Clearance) dimensions (no masonry chimney)
| Framing Dimensions | Description | GFi350L |
| A | Framing Height | 25-5/8” (650mm) |
| B | Framing Width | 31-1/2″ (800mm) |
| C* | Framing Depth | 16-1/2″ (420mm) |
| E | Corner Wall Depth | 39-9/16″ (1006mm) |
| F | Corner Facing Wall Width | 56″ (1422mm) |
| I | Gas Connection Opening Height | 2″ (51mm) |
| J | Gas Connection Height | 2-5/8″ (67mm) |
| K | Gas Connection Inset | 3-11/16″ (99mm) |
| L | Gas Connection Opening Width | 2-1/2″ (64mm) |

Note: All framing may be of timber construction.
Quick Install Kit – Zero Clearance Box Dimensions (no masonry chimney)
| Framing Dimensions | Description | GFi350L |
| A | Framing Height | 787mm |
| B | Framing Width | 800mm |
| C* | Framing Depth | 420mm |
| E | Corner Wall Depth | 1136mm |
| F | Corner Facing Wall Width | 1607mm |
| I | Gas Connection Opening Height | 51mm |
| J | Gas Connection Height | 67mm |
| K | Gas Connection Inset | 99mm |
| L | Gas Connection Opening Width | 64mm |





















