REGENCY P36D-NG10 Gas Fireplace

INSTALLATION INSTRUCTION
| Model | P36D-NG10 | P36D-LP10 |
| Fuel Type | Natural Gas | Propane |
| Minimum Supply Pressure | 5” W.C. (1.25 kPa) | 12” W.C. (3.00 kPa) |
| Manifold Pressure – High | 3.8” W.C. (0.95 kPa) | 11” W.C. (2.74 kPa) |
| Manifold Pressure – Low | 1.1” W.C. (0.27 kPa) | 2.9” W.C. (0.72 kPa) |
| Orifice Size | #37 DMS | #52 DMS |
| Minimum Input | 15,500 BTU/h (4.54 kW) | 15,000 BTU/h (3.96 kW) |
| Maximum Input | 30,000 BTU/h (8.79 kW) | 30,000 BTU/h (8.79 kW) |
| Vent Sizing | 4” Inner / 6 5/8” Outer | 4” Inner / 6 5/8” Outer |
| Approved Venting Systems | |
| Flex Vent Systems: | FPI AstroCap™ Flex Vent |
| Rigid Pipe Vent | Simpson Direct Vent Pro® |
| Systems: | American Metal Products® Amerivent |
| Direct | |
| Security Secure Vent® | |
| Selkirk Direct-Temp™ | |
| Metal-Fab® Sure Seal | |
| ICC Excel Direct | |
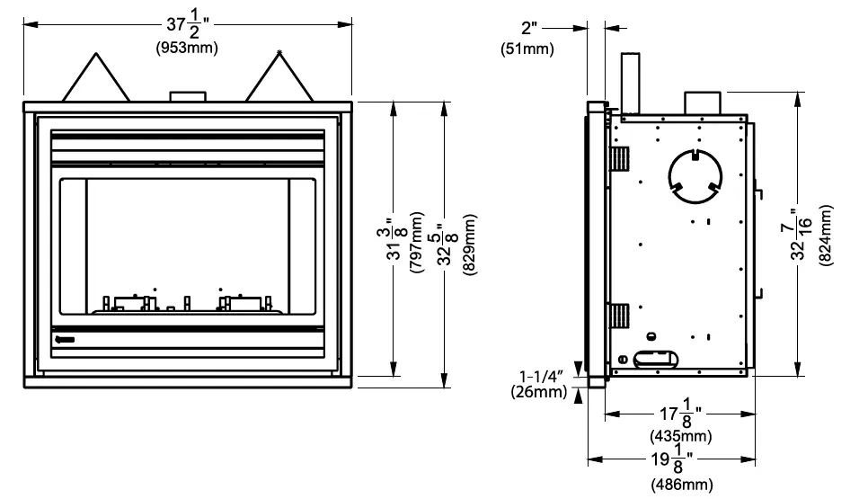
Unit Dimensions with Vignette Faceplate + Trim
- Important: Framing height requires consideration of the hearth depth. Dimension H = H + the thickness of the installed hearth.
Unit Dimensions with Vignette and Vignette Finishing Trim
Unit Dimensions with Safety Screen (#515-929) and Optional Louvers
Clearances
The clearances listed below are Minimum distances unless otherwise stated:
- A major cause of chimney-related fires is failure to maintain required clearances (air space) to combustible materials.
- It is of the greatest importance that this fireplace and vent system be installed only in accordance with these instructions.
Clearance to Combustibles from:
- Back 0” (0mm)
- Side 0″ (0mm)
- Floor 0″ (0mm)
- .: The minimum floor clearance must be maintained from the top surface of the carpeting, tile, etc.
Minimum Clearance from Top of Unit to:
- Ceiling from the top of the unit. 32″ (1016mm)
- Side Wall Clearances: 6″* (152mm)
- Measured from the edge of the unit. See the Regency® Clearances section for dimensions.
Horizontal Vent Clearances:
- Top 2″ (51mm)
- Side 1-1/2″ (38mm)
- Bottom 1-1/2″ (38mm)
- Vertical Vent Clearances 1-1/4″ (32mm)
Alcove Clearances**:
- Max. Depth 36″ (914mm)
- Min. Width 48″ (1219mm)
- Min. Height 72″ (1829mm)
- WARNING: Fire hazard is an extreme risk if these clearances are not adhered to.
- The HeatWave Duct Kit has different clearance and framing requirements, check the HeatWave manual for details.
Mantel Leg Clearances
Combustible mantel leg clearances as per diagram:
- Maximum 1-1/2″ projection at 2″ minimum clearance.

IMPORTANT FINISHING DETAIL NOTE:
- Before placing the unit into the final position – it is important to know the total thickness/height of the finished hearth (tile, carpet, etc.)
- The base of the fireplace should be level or higher than the finished hearth height.

- Note: All non-combustible and combustible facing material should butt up cleanly to the flanges around the firebox opening.
- Rough edges will be visible from the front view with the Vignette faceplate – if not using the optional finishing trim.
- To maintain a clean finished edge – it is recommended to install the combustible facing material with the finished edge against the fireplace/nailing strips.
- Alternatively, you can use J Style Trim or Metal Corner Bead to cover cut edges of the non-combustible facing material.

Combustible Mantel Clearances
- Because of the extreme heat this fireplace emits, the mantel clearances are critical.
- Combustible mantel clearances from top of the unit are shown in the diagram below.
Note: Mantel starts at *1″ deep and ends at *12″ deep. **For Vignette with Vignette Finishing Trim flush finish, all materials (framing &
finishing) below the mantel and the width of the Vignette finishing trim, (37 1/2″) must be non-combustible if a lower mantel is desired. - Note: Ensure the paint that is used on the mantel and the facing is “heat resistant” or the paint may discolor.
MANTEL CLEARANCES WITH VIGNETTE + VIGNETTE FINISHING TRIM STEPPED FINISH
MANTEL CLEARANCES WITH VIGNETTE + VIGNETTE FINISHING TRIM FLUSH FINISH
MANTEL CLEARANCES WITH SAFETY SCREEN AND LOUVERS
Framing
- Determine the total thickness of facing material (e.g. non combustible plus ceramic tiles) to allow the finished surface to be flush with the front of the unit. Total facing thickness can vary from 1/2″ (13mm) to 1-1/4″ (32mm) thick with Vignette only, Vignette + Vignette Finishing Trim Stepped Finish and Safety Screen and Louvers. When installing the Vignette + Vignette Finishing Trim Flush Finish the facing thickness is up to 3″.
- Add a second steel stud at midpoint for ease of installation/securing the non-combustible board. See Diagrams 1 & 2.

- For exterior walls, insulate the enclosure to the same degree as the rest of the house, apply vapour barrier and drywall, as per local installation codes. (Do not insulate the fireplace itself.)
- The top of the unit must not be closer than 32″ (813mm) to the ceiling.
Note: Secure the non-combustible board (supplied) directly above the unit as shown. Install a steel stud directly above the unit as shown to secure the non-combustible material.
Install Side Nailing Strips, Top Facing Support, and Top Standoffs before unit is slipped into position. See the “Unit Assembly Prior to Installation” section for assembly details.
Non-combustible
Vignette + Vignette Finishing Trim Stepped Finish or Vignette + Vignette Finishing Trim Flush Finished Vignette Only
NOTE: If using flush louvers and safety screens the steel studs and non-combustible material are not required. Wood studs and drywall may be used. See framing and finishing for details.
FRAMING WITH VIGNETTE FACEPLATE/VIGNETTE FINISHING TRIM, STEPPED FINISH
- Frame in the enclosure for the unit with framing material.
- The framed opening is 40-3/4″ high x 36-1/4″ wide x 17-3/8″ deep (1036mm high x 921mm wide x 441mm deep).

- All other framing may be of combustible materials, i.e. 2 x 4, 2 x 6
| Vignette Framing Dimensions | |||
| A | B | C | D |
| 36-1/4″ | 40-3/4″ | 17-3/8″ | 46″* |
| 921mm | 1036mm | 441mm | 1168mm* |
| * ‘D’ is Minimum height to combustible materials including the Minimum 2″ (51mm) Top clearance to the Horizontal Vent. | |||
FRAMING WITH VIGNETTE FACEPLATE & VIGNETTE FINISHING TRIM FINISHED FLUSH
- Frame in the enclosure for the unit with framing material. The framed opening is 41-5/8″ high x 38″ wide x 17-3/8″ deep (1057mm high x 965mm wide x 441mm deep).
All other framings may be of combustible materials, i.e. 2 x 4, 2 x 6
| Vignette + Finishing Trim – Flush Finish Framing Dimensions | |||
| A | B | C | D |
| 38″ | 41-5/8″ | 19-3/8″ | 46″* |
| 965mm | 1057mm | 492mm | 1168mm* |
| * ‘D’ is Minimum height to combustible materials including the Minimum 2″ (51mm) Top clearance to the Horizontal Vent. | |||
FRAMING WITH LOUVERS AND SAFETY SCREEN
- Frame in the enclosure for the unit with framing material.
- The framed opening is 37-1/4″ high x 36-1/4″ wide x 17-3/8″ deep (946mm high x 921mm wide x 441mm deep).
| Safety Screen + Louvers Framing Dimensions | |||
| A | B | C | D |
| 36-1/4″ | 37-1/4″ | 17-3/8″ | 46″* |
| 921mm | 946mm | 441mm | 1168mm* |
| * ‘D’ is Minimum height to combustible materials including the Minimum 2″ (51mm) Top clearance to the Horizontal Vent. | |||
- NOTE: If using the optional Vignette finishing trim, this can be installed as a 3-sided or 4 sided finish trim. If choosing to use this as a 4 sided finish trim the framing would need to be increased by 1-1/4″ inches minimum in order for this to fit. This must be to the finished floor. (Eg: Diagram 2 B= 40-3/4″ framing height + 1-1/4″. Bottom of 4-sided finishing trim +1/2 thick finished floor = 42-1/2″.
Venting
Direct Vent System (Flex) HORIZONTAL TERMINATIONS ONLY
- These venting systems, in combination with the P36D-10 Direct Vent Gas Fireplace, have been tested and listed as a direct vent heater system by Warnock
Hersey. - The location of the termination cap must conform to the requirements in the Vent Terminal Locations diagram in the “Exterior Vent Termination Locations” section.
- Regency Direct Vent (Flex) System Termination Kit (Part # 946-515) includes all the parts needed to install the P36D-10 with a maximum run of 4 feet.
| 1) | 6-7/8″ dia. flexible liner (4 ft. length) |
| 2) | 4″ dia. flexible liner (4 ft. length) |
| 3) | spring spacers (4) |
| 4) | thimble (2) |
| 5) | AstroCap termination cap (1) |
| 6) | screws (12) |
| 7) | tube of Mill Pac (1) |
| 8) | plated screws (8) |
| 9) | screws #8 x 1-1/2″ Drill Point, Stainless Steel (4) |
- If longer runs are needed, the Regency Direct Vent system (Flex) # 946-516 includes all the parts needed to install the P36D with a maximum 10′ run.
| 1) | 6-7/8″ dia. flexible liner (10 ft. length) |
| 2) | 4″ dia. flexible liner (10 ft. length) |
| 3) | spring spacers (7) |
| 4) | thimble (2) |
| 5) | AstroCap termination cap (1) |
| 6) | screws (12) |
| 7) | tube of Mill Pac (1) |
| 8) | plated screws (8) |
| 9) | screws #8 x 1-1/2″ Drill Point, Stainless Steel (4) |

Notes:
- Liner sections should be continuous without any joints or seams.
- Only Flex pipe purchased from Regency may be used for Flex installations.
Rigid Pipe Venting Systems
Horizontal or Vertical Terminations
- The minimum components required for a basic horizontal termination are:
- 1 Horizontal Termination Cap
- 1 90o Elbow
- 1 Rigid Pipe Adaptor
- 1 Wall Thimble
- 1 Length of pipe to suit wall thickness (see chart) Wall thickness is measured from the back standoffs to the inside mounting surface of the termination cap. For siding other than vinyl furring strips may be used, instead of the vinyl siding standoff, to create a level surface to mount the vent terminal. The Terminal must not be recessed into the siding. Measure the wall thickness including furring strips.
- If a Vinyl Siding Standoff is required (it must be used with vinyl siding), measure to the outside surface of the wall without siding and add 2 inches.

WARNING:
- Do not combine venting components from different venting systems.
- However use of the AstroCapTM and Regency Riser is acceptable with all systems.
- This product has been evaluated by Intertek for using a Rigid Pipe Adaptor in conjunction with Duravent Direct-Vent , Selkirk Direct-Temp, Ameri Vent Direct venting and Security Secure Vent systems. Use of these systems with the Rigid Pipe adaptor is deemed acceptable and does not affect the Intertek WHI listing of components.

| Flat Wall Installation | |
| Wall Thickness (inches) | Vent Length Required (inches) |
| 4″ – 5-1/2″ | 6″ |
| 7″ – 8-1/2″ | 9″ |
| 10″ – 11-1/2″ | 12″ |
| 9″ – 14-1/2″ | 11″ – 14-5/8″ Adj. Pipe |
| 15″ – 23-1/2″ | 17″ – 24″ Adj. |
| Corner Installation | |
| Wall Thickness (inches) | Vent Length Required (inches) |
| 3-1/4″ – 6-3/4″ | 11″ – 14-5/8″ Adj. Pipe |
| 7-3/4″ – 16-1/4″ | 17″ – 24″ Adj. Pipe |
| 7-1/4″ – 8-3/4″ | 6″ + 12″ 9″ + 9″ |
| 4-1/4″ – 5-3/4″ | 6″ + 9″ |
The Regency AstroCapTM and Regency Riser Vent terminal are certified for installations using Regency venting systems as well as Simpson Dura-Vent® Direct
Vent, American Metal Products Ameri Vent Direct Vent, Security Secure Vent®, Selkirk Direct-Temp. AstroCapTM is a proprietary trademark of Regency
Fireplace Products. Dura-Vent® and Direct Vent are registered and/or proprietary trademarks of Simpson Dura-Vent Co. Inc.
Rigid Pipe Venting Arrangements
Vertical Terminations
(Propane & Natural Gas)
The shaded area in the diagram shows all allowable combinations of straight vertical and offset to vertical terminations, using two 90o elbow, with Rigid
Pipe vent systems for Propane and Natural Gas.
- Vent must be supported at offsets.
- Firestops are required at each floor level and whenever passing through a wall.
- Maintain clearances to combustibles.
Note: Must use optional rigid pipe adaptor when using rigid vent systems (Part # 510-994)
- The P36D is approved for a 40 ft. straight vertical, with rigid pipe vent systems for Propane and
- Natural Gas, as per the diagram 1.
- The shaded area in the diagram 1 shows all allowable combinations of straight vertical and offset to vertical terminations with rigid pipe vent systems for Propane and Natural Gas. Maximum two 45o elbows allowed.
- Vent must be supported at offsets
- Firestops are required at each floor level and whenever passing through a wall.
- Maintain clearances to combustibles.

Regency DIRECT VENT SYSTEM (FLEX) (Propane & Natural Gas)
- The diagram shows all allowable combinations of vertical runs with horizontal terminations, using one 90o elbow (two 45o elbows equal one 90o elbow).
- Note: Must use optional rigid pipe adaptor (Part # 510-994) when using Rigid Pipe venting systems.

- Maintain clearances to combustibles.
- Horizontal vent must be supported every 3 feet.
- Firestops are required at each floor level and whenever passing through a wall.
- All Rigid Pipe Systems
- 4″ inner diameter
- 6-5/8″ outer diameter
- FPI Flex Vent
- 4″ inner diameter
- 6-7/8″ inner diameter
- A vent guard should be used whenever the termination is lower than the specified minimum or as per local codes.
- Note: FPI Direct Vent Flex System Part # 946- 515 and #946-516 are only approved for horizontal terminations.
Vertical Termination with Co-Linear Flex System
- The appliance must not be connected to a chimney flue serving a separate solid fuel burning appliance.
- Masonry chimneys may take various contours which the flexible liner will accommodate. However, keep the flexible liner as straight as possible, avoid unnecessary bending.
- The Air Intake pipe must be attached to the inlet air collar of the termination cap.
- This appliance is designed to be attached to two 3” (76mm) co-linear aluminium flex running the full length of the chimney. See the Venting Arrangements for minimum and maximum heights.

| Required Parts: | |
| Part # | Description |
| 946-529 | Co-linear DV Vertical Termination Cap |
| 948-305 | 3” Flex – 35 ft. |
| 946-563 | Coaxial to Co-linear Adaptor Kit which contains the following: Co-linear Flex Adaptor Outer Pipe Inner Pipe Adaptor |
| 510-994 | Flue Adaptor |
| 46DVA-E45 | 45º Elbow |
| Alternate Approved Caps | |
| 46DVA-VC | Vertical Termination Cap |
| 46DVA-VCH | High Wind Cap |
| 46DVA-GK | 3” Co-linear Adaptor with flashing |
Horizontal Venting with Two (2) 90o Elbows
One 90o elbow = Two 45o elbows.
| Option | V | H + H1 | With these options, maximum total pipe length is 30 feet with minimum of 6 feet total vertical and maximum 8 feet total horizontal. Please note minimum 1 foot between 90o elbows is required. | |
| A) | 0′ | Min. | 2′ Max. | |
| B) | 1′ | Min. | 3′ Max. | |
| C) | 2′ | Min. | 4′ Max. | |
| D) | 3′ | Min. | 5′ Max. | |
| E) | 4′ | Min. | 6′ Max. | |
| F) | 5′ | Min. | 7′ Max. | |
| G) | 6′ | Min. | 8′ Max. | |
| Lengths do not include elbow indicated. | ||||
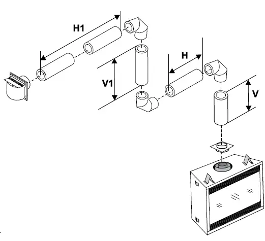
Horizontal Venting with Three (3) 90o Elbows
One 90o elbow = Two 45o elbows.
| Option | V | H | V + V1 | H + H1 | With these options, max. total pipe length is 30 feet with min. of 12 feet total vertical and max. 9 feet total horizontal.
Please note min. 1 foot between 90o elbows is required. |
| A) | 0′ Min. | 1′ Max. | 1′ Min. | 2′ Max. | |
| B) | 1′ Min. | 2′ Max. | 3′ Min. | 3′ Max. | |
| C) | 2′ Min. | 2′ Max. | 5′ Min. | 4′ Max. | |
| D) | 3′ Min. | 2′ Max. | 7′ Min. | 5′ Max. | |
| E) | 4′ Min. | 3’ Max. | 9′ Min. | 6′ Max. | |
| F) | 5′ Min. | 4′ Max. | 10′ Min. | 7′ Max. | |
| G) | 6′ Min. | 5′ Max. | 11′ Min. | 8′ Max. | |
| H) | 7′ Min. | 6′ Max. | 12′ Min. | 9′ Max. | |
| Lengths do not include elbow indicated. | |||||
Vertical Venting with Two (2) 90o Elbows
One 90o elbow = Two 45o elbows
| Option | V | H | V + V1 | With these options, max. total pipe length is 30 feet with min. of 7 feet total vertical and max. 8 feet total horizontal.
Please note min. 1 foot between 90o elbows is required. |
| A) | 0′ Min. | 2′ Max. | 1′ Min. | |
| B) | 1′ Min. | 4′ Max. | 3′ Min. | |
| C) | 2′ Min. | 5′ Max. | 4′ Min. | |
| D) | 3′ Min. | 6′ Max. | 5′ Min. | |
| E) | 4′ Min. | 7′ Max. | 6′ Min. | |
| F) | 5′ Min. | 8′ Max. | 7′ Min. | |
| Lengths do not include elbow indicated. | ||||
Vertical Venting with Three (3) 90o Elbows
One 90o elbow = Two 45o elbows.
| Option | V | H + H1 | V + V1 | With these options, max. total pipe length is 30 feet with min. of 10 feet total vertical and max. 8 feet total horizontal.
Please note min. 1 foot between 90o elbows is required. |
| A) | 0′ Min. | 2′ Max. | 2′ Min. | |
| B) | 1′ Min. | 2′ Max. | 3′ Min. | |
| C) | 2′ Min. | 3′ Max. | 4′ Min. | |
| D) | 3′ Min. | 4′ Max. | 6′ Min. | |
| E) | 4′ Min. | 5′ Max. | 7′ Min. | |
| F) | 5′ Min. | 6′ Max. | 8′ Min. | |
| G) | 6′ Min. | 7′ Max. | 9′ Min. | |
| H) | 7′ Min. | 8′ Max. | 10′ Min. | |
| Lengths do not include elbow indicated. | ||||






























