Majestic Lanai 48 48 Inch Outdoor Gas Fireplace

SPECIFICATIONS
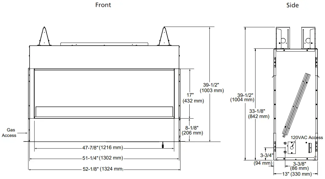
MODEL | FRONT WIDTH | BACK WIDTH | HEIGHT | DEPTH | VIEWING AREA | ||||
ODLANAIGST-48 | Actual | Framing | Actual | Framing | Actual | Framing | Actual | Framing | 47-7/8″ x 17″ [1216 x 432] |
52-1/8″ [1324] | 52-1/8″ [1324] | 52-1/8″ [1324] | 52-1/8″ [1324] | ” [1324] 39-1/2″ [1003] | 39-3/4″ [1009] | 13″ [330] | 11-5/8″ [295] | ||
DIMENSION

APPLIANCE LOCATION

MANTEL PROJECTIONS

FRAMING DIMENSIONS
Notice: Vinyl siding must not be placed between the appliance opening and the ceiling/overhang.
Notice: Flash the perimeter of the appliance, corners and the appliance face in a manner consistent with regional practices as required to prevent water penetration around the appliance. See Installation Manual Section 3.F for more information regarding wall and enclosure construction.
CLEARANCES TO COMBUSTIBLES

| PRODUCT LISTING CODES | |
| US | ANSI Z221.97-2017 |
| CAN | CSA 2.41-2017 |
Product information provided is not complete and is subject to change without notice. Product installation must adhere strictly to instructions accompanying product to avoid risk of fire and potential injury.
Additional information can be found online at www.fireplaces.com















