Installation and Setup
Model(s):
VOFB36-T, VOFB36-H,
VOFB42-T, VOFB42-H
Installation Manual![]()

VOFB42-H Outdoor Fireplace
INSTALLER: Leave this manual with party responsible for use and operation.
OWNER: Retain this manual for future reference.
NOTICE: DO NOT discard this manual!
Carefully review the instructions supplied with the decorative type unvented room heater for the minimum fireplace size requirement.
DO NOT INSTALL AN APPLIANCE IN THIS FIREBOX UNLESS THIS FIREBOX MEETS THE MINIMUM DIMENSIONS REQUIRED FOR THE INSTALLATION.
WARNING: If the information in these instructions is not followed exactly, a fire or explosion may result causing property damage, personal injury, or death.
- DO NOT store or use gasoline or other flammable vapors and liquids in the vicinity of this or any other appliance.
- DO NOT overfire. Overfiring will void your warranty.
- Comply with all minimum clearances to combustibles as specified. Failure to comply may cause house fire.
DANGER
DANGER
HOT SURFACES!
Firebox surfaces are hot during operation AND cool down.
Hot surfaces will cause burns.
- DO NOT touch firebox until it is cooled
- NEVER allow children to touch firebox
- Keep children away
- CAREFULLY SUPERVISE children in same room as firebox.
- Alert children and adults to hazards of high temperatures.
High temperatures may ignite clothing or other flammable materials.
- Keep clothing, furniture, draperies and other flammable materials away.
FOR USE ONLY WITH A LISTED GAS-FIRED UNVENTED DECORATIVE ROOM HEATER NOT TO EXCEED 40,000 BTU/H. DO NOT BUILD A WOOD FIRE.
Safety Alert Key:
- DANGER! Indicates a hazardous situation which, if not avoided will result in death or serious injury.
- WARNING! Indicates a hazardous situation which, if not avoided could result in death or serious injury.
- CAUTION! Indicates a hazardous situation which, if not avoided, could result in minor or moderate injury.
- NOTICE: Indicates practices which may cause damage to the fireplace or to property.
ATTENTION INSTALLER:
Follow this Standard Work Checklist
This standard work checklist is to be used by the installer in conjuction with, not instead of, the instructions contained in this installation manual.
Product Specific Information
A. Firebox Certification
MODELS: VOFB36-T, VOFB36-H
VOFB42-T, VOFB42-H
LABORATORY: Underwriters Laboratories, Inc. (UL)
TYPE: Ventless Firebox Enclosures for Gas-Fired Unvented Gas Log Type Room Heaters
STANDARD: CSA/ANSI-Z21.91:20
Indoor Use: The installed gas appliance must be listed in accordance with CSA/ANSI Z21.11.2:19 Gas fired unvented room heaters not to exceed 40,000 BTU/hr (11723 W)
Outdoor use: The installed gas appliance must be listed in accordance with CSA/ANSI Z21.97-2017 Outdoor decorative appliance and CSA/ANSI Z21.11.2:19 Unvented room heater not to exceed 40,000 BTU/hr (11,723 W)
This product is listed to ANSI standards for “Ventless Gas Firebox Enclosures for Gas-Fired Unvented Gas Log Type Room Heaters”.
NOTICE: This installation must conform with local codes. In the absence of local codes you must comply with the National Fuel Gas Code, ANSI Z223.1/NFPA 54.
Note: Smoke, carbon monoxide or combination alarms Alarm manufacturers recommend that alarms be kept at least 15 ft. to 20 ft. laterally away from fuel-burning sources. Installing the alarm closer than 15 ft. will not harm the alarm, but may increase the frequency of nuisance alarms. Mounting alarms on the wall versus the ceiling will further reduce nuisance alarms.
NOT INTENDED FOR USE AS A PRIMARY HEAT SOURCE.
This appliance is tested and approved as either supplemental room heat or as a decorative appliance.
It should not be factored as primary heat in residential heating calculations.
WARNING: This product and thefuels used to operate this product (liquid propane or natural gas), and the products of combustion of such fuels, can expose you to chemicals including benzene, whichis known to the State of California to causecancer and reproductive harm. For more information go to: www.P65Warnings.ca.gov.
B. BTU Specifications
| Model(s) | Altitude | Maximum Allowable BTU/hr |
| VOFB36-T/H | (0-2000 FT) | 40,000 |
| VOFB42-T/H | (0-2000 FT) | 40,000 |
C. High Altitude Installations
NOTICE: If the heating value of the gas has been reduced, these rules do not apply. Check with your local gas utility or authorities having jurisdiction.
When installing above 2000 feet elevation:
- In the USA: Reduce input rate 4% for each 1000 feet above 2000 feet.
Check with your local gas utility to determine proper orifice size.
D. Non-Combustible Materials Specification
Material which will not ignite and burn. Such materials are those consisting entirely of steel, iron, brick, tile, concrete, slate, glass or plasters, or any combination thereof. Materials that are reported as passing ASTM E 136, Standard Test Method for Behavior of Materials in a Vertical Tube Furnace at 750 ºC shall be considered non-combustible materials.
E. Combustible Materials Specification
Materials made of or surfaced with wood, compressed paper, plant fibers, plastics, or other material that can ignite and burn, whether flame proofed or not, or plastered or unplastered shall be considered combustible materials.
F. Electrical Codes
NOTICE: This appliance must be electrically wired and grounded in accordance with local codes or, in the absence of local codes, with National Electric Code ANSI/NFPA 70-latest edition.
Getting Started
A. Design and Installation Considerations
Installation MUST comply with local, regional, state and national codes and regulations. Consult insurance carrier, local building inspector, fire officials or authorities having jurisdiction over restrictions, installation inspection and permits.
Before installing, determine the following:
- Where the firebox is to be installed.
- Gas supply piping requirements.
- Electrical wiring requirements.
- Framing and finishing details.
- Whether optional accessories – are desired.
► The Vesper series gas appliance is designed for outdoor use and may be installed as a stand alone unit or built into a wall. Install on wood, composite or non-combustible flat surface, extending full width and depth of the appliance to prevent damage.
Outdoor spaces – For the purpose of these instructions, an appliance is considered to be outdoors if installed with shelter no more inclusive than:
- With walls on all sides, but no overhead cover
- Within a partial enclosure which includes an overhead cover and no more than two side walls. These side walls may be parallel, as in a breezeway, or at right angles to each other; or
- Within a partial enclosure which includes an overhead cover and three sidewalls, as long as 30 % or more of the horizontal periphery of the enclosure is permanently open.
NOTE: Screen may be used on the open sides of the shelter.
14×18 and 16×18 screen mesh is approved for use.
DO NOT use solar screen or no-see-um screen.
If appliance does not meet the above requirements, it must have a Z21.11.2 unvented heater installed.
NOTE: See page 6 for additional information on appliance locations requirements for outdoor living spaces.
Installation and service of this appliance should be performed by qualified personnel. Hearth & Home Technologies recommends HHT Factory Trained or NFI certified professionals.

Improper installation, adjustment, alteration, service or maintenance can cause injury or property damage. For assistance or additional information, consult a qualified service technician, service agency or your dealer.
B. Tools and Supplies Needed
Before beginning the installation be sure that the following tools and building supplies are available.
| Tape measure | Framing material |
| Pliers | Hammer |
| Phillips screwdriver | Level |
| Gloves | Framing square |
Electric drill and bits
Safety glasses
Reciprocating saw
Caulking material (300ºF minimum continuous exposure rating)
Note: Refer to the installation instructions provided with the log set for items required for log set installation.
C. Inspect Firebox and Components
- Carefully remove the firebox and components from the packaging.
- Report to your dealer any parts damaged in shipment.
- Read all of the instructions before starting the installation. Follow these instructions carefully during the installation to ensure maximum safety and benefit.
WARNING! Risk of Fire or Explosion! Damaged parts could impair safe operation. DO NOT install damaged, incomplete or substitute components. Keep firebox dry.
Hearth & Home Technologies disclaims any responsibility for, and the warranty will be voided by, the following actions:
- Installation and use of any damaged firebox or system component.
- Modification of the firebox.
- Installation other than as instructed by Hearth & Home Technologies.
- Improper positioning of the gas logs.
- Installation and/or use of any component part not approved by Hearth & Home Technologies. Any such action may cause a fire hazard.
WARNING! Risk of Fire, Explosion or Electric Shock!
DO NOT use this firebox if any part has been under water.
Call a qualified service technician to inspect the firebox and to replace any part of the control system and/or gas control which has been under water.
D. Appliance Location Requirements in Outdoor Living Space
How to Calculate the Minimum Opening Needed In an Outdoor Living Space
30% (or .30) of the outdoor living space periphery needs to be open.
- Add lengths of the outside living space.
16’+20’+16’+20’=72’ - Divide the open area length by the total outdoor living space.
20/72=.28.28 is less than the .30 required and therefore this installation would not be approved.

- Add lengths of the outside living space.
12’+20’+12’+20’=64’ - Divide the open area length by the total outdoor living space.
20/64=.31.31 is greater than the .30 required and therefore this installation would be approved.

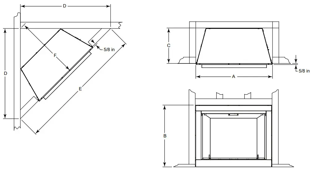
Firebox, Hearth, Framing Dimensions and Clearances
A. Firebox Dimensions/Weights
Dimensions are actual firebox dimensions. Use for reference only. For framing dimensions and clearances refer to page 8.

B. Hearth Dimensions

| Model | A | B | C | D | E |
| VOFB36 | 32-7/8 in. | 15 in. | 24-3/8 in. | 25-1/2 in. | 22-5/8 in. |
| VOFB42 | 38-7/8 in. | 15 in. | 30-3/8 in. | 25-1/2 in. | 22-5/8 in. |
C. Framing Dimensions
WARNING! Risk of Fire or Burns! Provide adequate clearance around air openings and for service access.
Due to high temperatures, the appliance should be located out of traffic and away from furniture and draperies.
NOTICE: Illustrations reflect typical installations and are FOR DESIGN PURPOSES ONLY. Illustrations/diagrams are not drawn to scale. Actual installation may vary due to individual design preference.
Figure 3.3 Framing Dimensions
Note: Add 1/2 inch to width (A) and 1/4 inch to height (B) dimensions when using optional trim kit to nish the installation of a custom cabinet, mantle, or other built-in enclosure.
| MODEL | A | B | C | D | E | F |
| VOFB36 | 42-1/2 in | 34-1/4 in | 19-3/4 in | 50 in | 70-3/4 in | 36 in |
| VOFB42 | 48-1/2 in | 34-1/4 in | 19-3/4 in | 54-1/4 in | 76-3/4 in | 38-1/2 in |
D. Clearances to Combustibles
Carefully select the best location for installation of your vent-free firebox. The following factors should be taken into consideration:
- Clearance to side walls and ceiling. Minimum clearances to combustibles must be maintained.
- Location must not be affected by drafts caused by kitchen exhaust fans, ceiling fans, return air registers for forced air furnaces / air conditioners, windows or doors.
- Installation must provide adequate ventilation and combustion air.
- Location should be out of high traffic or windy or drafty areas.
- DO NOT INSTALL WHERE CURTAINS, FURNITURE, CLOTHING OR OTHER FLAMMABLE OBJECTS ARE LESS THAN 36″ FROM FRONT OF FIREBOX.
- Never obstruct the front opening of the vent-free firebox or restrict the flow of combustion and ventilation air.

Vinyl Flooring
Vinyl Flooring is sensitive to heat. A 14 inch minimum depth hearth extension is recommended when using vinyl flooring up to the wall. See Figure 3.5.
NOTICE: Clearances that do not meet the minimum guidelines could result in damage or buckling to the vinyl flooring and is done at the installer’s risk. Hearth and Home Technologies does not recommend adhesive based vinyl flooring due to thermal expansion.
Floating-style flooring can be used, but will reach temperatures up to 110°F in a room with ambient temperature of 70°F. Consult flooring specifications to ensure compatibility.

Raised Hearth Extension
A hearth extension may be used, but is not required for these fireboxes.
A combustible hearth extension can be constructed flush with, but not above the firebox floor. On flush installations, carpet or vinyl is not allowed within 14 inches of the firebox opening. See Figure 3.6.
Firebox framing can be built before or after the appliance is set in place. Construct firebox framing following Figure 3.3 for your specific installation requirements. Refer to Figure 3.1 on page 6 for firebox dimensions.
The firebox may be installed directly on a combustible floor or raised on a platform. When the firebox is installed directly on carpeting, tile, or other combustible material, other than wood flooring, the firebox shall be installed on a metal or wood panel extending the full width and depth of the enclosure.
WARNING! Risk of Fire! DO NOT fill spaces around firebox with insulation or other materials. This could cause a fire.
WARNING! Risk of Fire! The firebox must be installed giving full consideration to the clearance and height requirements identified in this manual.
E. Constructing the Appliance Chase
A chase is a vertical box-like structure built to enclose the firebox.
NOTICE: These instructions are not substitutes for the requirements of local building codes. Therefore, you MUST check local building codes to determine the requirements to these steps.
Chases should be constructed in the manner of all outside walls of the home to prevent cold air drafting problems. The chase should not break the outside building envelope in any manner.
Walls, ceiling, base plate and cantilever floor of the chase should be insulated. Vapor and air infiltration barriers should be installed in the chase as per regional codes for the rest of the home. Additionally, in regions where cold air infiltration may be an issue, the inside surfaces may be sheet rocked and taped (or an equivalent method may be used) to achieve maximum air tightness.
To further prevent drafts, gas line holes and other openings should be caulked with caulk with a minimum of 300ºF continuous exposure rating or stuffed with unfaced insulation.
If the firebox is being installed on a cement surface, a layer of plywood may be placed underneath to prevent conducting cold up into the room.
NOTICE: Install firebox on hard metal or wood surfaces extending full width and depth. DO NOT install directly on carpeting, vinyl, tile or any combustible material other than wood.
WARNING! Risk of Fire! Maintain specified air space clearances to firebox:
- Insulation and other materials must be secured to prevent accidental contact.
- The chase must be properly blocked to prevent blown insulation or other combustibles from entering and making contact with firebox.
- Failure to maintain airspace may cause overheating and a fire.
Firebox Preparation
A. Securing and Leveling the Firebox
WARNING! Risk of Fire! Prevent contact with:
- Sagging or loose insulation
- Insulation backing or plastic
- Framing and other combustible materials
Block openings into the chase to prevent entry of blownin insulation.
Make sure insulation and other materials are secured.
DO NOT notch the framing around thefirebox standoffs.
Failure to maintain air space clearance could cause overheating and fire.
The diagram shows how to properly position and secure the firebox. See Figure 4.1. Nailing tabs are provided to secure the firebox to the framing members.
- Bend out nailing tabs on each side.
- Place the firebox into position.
- Keep nailing tabs flush with the framing.
- Level the firebox from side to side and front to back.
- Shim the firebox as necessary. It is acceptable to use wood shims underneath the firebox.
- Secure the firebox to the framing by using nails or screws through the nailing tabs.

B. Moisture Resistance
This outdoor appliance will shed moderate amounts of water, but is not waterproof.
This appliance must be enclosed or covered with noncombustible finish material and all joints sealed to prevent water infiltration.
The firebox will not perform as an exterior wall. Moisture penetration must be considered for construction that places the appliance in structure walls or on moisture sensitive surfaces.
When installed on exterior walls: Hearth & Home Technologies recommends that the chase be constructed outside the structure’s weather envelope.
Where the platform meets the wall, use a flashing detail similar to that required for attached decks. Chase platforms, including hearths should slope away from the structure at 1/8 in. to 1/4 in. per foot. The appliance can be shimmed level. Install on wood, composite or non-combustible flat surface, extending full width and depth of the appliance to prevent damage.
Water Drainage: The appliance is designed to operate outdoors experiencing rain and other sources of moisture that will enter the firebox. The appliance has built-in drain holes in the base which will allow moisture to pass through the bottom of the enclosure. When constructing the enclosure, the builder must provide a means of draining water from under the appliance and out of the structure.
This can be achieved by properly positioned drain holes, slots or other means to allow water to exit at the lowest grade of the structure. Choosing the location of the appliance is also important so that an area that may experience excessive water flow or standing water is avoided. In some cases a drain pan is needed to ensure proper drainage. This can be constructed from a corrosion resistant metal, or suitable material for outdoor use with a water resistant membrane.
A slope of 1/4” per foot toward the drain ports of the structure is recommended.
A drain pan can also be purchased (ODGSDP-36) for the 36 inch appliance or the (ODGSDP-42) for the 42 inch appliance.
For a flat horizontal installation where the bottom of the appliance is sitting on the hearth, use (ODGSDPFLT-36) OR (ODGSDPFLT-42).
Acceptable method for application of moisture membrane material shown. See gifures 4.2, 4.3 and 4.4.
The appliance will not perform as an exterior wall. Moisture penetration must be considered for construction that places the appliance in structure walls or on moisture sensitive surfaces.



Electrical Information
A. Wiring Requirements
WARNING! Risk of Shock or Explosion! DO NOT wire 110-120 VAC to the valve. Incorrect wiring will damage controls.
NOTICE: This firebox must be electrically wired and grounded in accordance with local codes or, in the absence of local codes, with National Electric Code ANSI/NFPA 70-latest edition.
- Wire the firebox junction box to unswitched 110-120 VAC.
This is required for proper operation of the firebox ignition. - A 110-120 VAC circuit for this product must be protected with ground-fault circuit-interrupter protection, in compliance with the applicable electrical codes, when it is installed in locations such as in bathrooms or near sinks.
- Low voltage and 110-120 VAC voltage cannot be shared within the same wall box.
B. Wiring the Junction Box
Junction box wiring on this firebox can be done from either inside or outside of the firebox.
However, for ease of installation, it is recommended that the junction box be wired from outside of the firebox.
If the junction box is wired from OUTSIDE firebox:
- Remove the screw attaching the junction box cover to the outer shell. Pull junction box cover out to disengage it from the outer shell. See Figures 5.1.

- Install electrical wires from outside the appliance through the hole in the cover plate and secure wires with a Romex connector.
- Make all necessary wire connections to the junction box and reattach the cover plate to firebox outer shell. See Figure 5.2.

C. Electrical Service and Repair
WARNING! Risk of Shock! Label all wires prior to disconnection when servicing controls.
Wiring errors could cause improper and dangerous operation. Verify proper operation after servicing.
WARNING! Risk of Shock! Replace damaged wire with type 105º C rated wire. Wire must have high temperature insulation.
Gas Information
A. Fuel Type
Check gas type: The gas supply must be the same as stated on the appliance rating plate. If the gas supply is different, DO NOT INSTALL THE APPLIANCE. Contact your dealer for the correct model.
B. Gas Pressure
- Optimum appliance performance requires proper input pressures.
- Gas line sizing requirements will be determined in ANSI Z223.1 National Fuel Gas Code in the USA.
- Pressure requirements are:
| Gas Pressure | Natural Gas | Propane |
| Minimum inlet pressure | 5.0 in. w.c. | 11.0 in. w.c. |
| Maximum inlet pressure | 10.0 in. w.c. | 13.0 in. w.c. |
WARNING! Risk of Fire or Explosion! High pressure will damage valve. Low pressure could cause explosion.
- Verify inlet pressures. Verify minimum pressures when other household gas appliances are operating.
- Install regulator upstream of valve if line pressure is greater than 1/2 psig.
WARNING
![]() | Fire Risk. Explosion Hazard. High pressure will damage valve. • Disconnect gas supply piping BEFORE pressure testing gas line at test pressures above 1/2 psig. • Close the manual shutoff valve BEFORE pressure testing gas line at test pressures equal to or less than 1/2 psig. |
Note: Have the gas supply line installed in accordance with local codes, if any. If not, follow ANSI Z223.1. Installation should be done by a qualified installer approved and/or licensed as required by the locality. (In the Commonwealth of Massachusetts installation must be performed by a licensed plumber or gas fitter).
Note: A listed (and Commonwealth of Massachusetts approved) 1/2 in. (13 mm) T-handle manual shut-off valve must be installed upstream of the appliance.
A union tee and plugged 1/8″ NPT pressure tapping point should also be installed upstream of the appliance.
IMPORTANT: Install manual shut-off valve (equipment shutoff valve) in an accessible location. The manual shut-off valve is for turning on or shutting off the gas to the firebox.
C. Gas Connection
- Reference Section 3 for location of gas line access in appliance.
- The gas line may enter from the left side or right side of the firebox. Gas knockouts are provided on both side of the firebox, as well as on the firebox bottom. See Figure 6.1.

- The gap between supply piping and gas access hole may be caulked with caulk with a minimum of 300ºF continuous exposure rating or stuffed with non-combustible, unfaced insulation to prevent cold air infiltration.
- Ensure that gas line does not come in contact with outer wrap of the firebox. Follow local codes.
- Pipe incoming gas line into firebox.
- Refer to vent-free gas appliance installation instructions for gas connection and lighting instructions.
WARNING! Risk of Fire or Explosion! Support control when attaching pipe to prevent bending gas line.
- A small amount of air will be in the gas supply lines.
WARNING! Risk of Fire or Explosion! Gas build-up during line purge could ignite.
- Purge should be performed by qualified service technician.
- Ensure adequate ventilation.
- Ensure there are no ignition sources such as sparks or open flames.
Light the appliance. It will take a short time for air to purge from lines. When purging is complete the appliance will light and operate normally.
WARNING! Risk of Fire, Explosion or Asphyxiation!
Check all fittings and connections with a non-corrosive commercially available leak-check solution. DO NOT use open flame. Fittings and connections could have loosened during shipping and handling.
Finishing
A. Facing Material
WARNING! Risk of Fire! Metal front faces may be covered with non-combustible materials only.
- Firebox metal front faces may be covered with noncombustible facing and/or finishing materials up to a maximum thickness of 3 inches.
- Facing and/or finishing materials must not interfere with air flow through the front of the firebox.
- Facing and/or finishing materials must never overhang into the firebox opening.
- See Figures 7.1 and 7.2 for combustible and noncombustible mantle and mantle leg clearance requirements.
- Maintain all listed clearances when applying combustible materials.
- Seal joints between the finished wall and firebox top and sides using a 300º F minimum sealant.
WARNING! Risk of Fire! DO NOT apply combustible materials beyond the minimum clearances.
Comply with all minimum clearances to combustibles as specified in this manual. Overlapping materials could ignite and may interfere with proper operation.
NOTICE: Surface temperatures around the firebox will become warm while the firebox is in operation. Ensure finishing materials used for all surfaces (floor, walls, mantels, etc.) will withstand temperatures up to 190°F.
B. Mantel and Wall Projections
WARNING! Risk of Fire! Comply with all minimum clearances as specified.
- Reducing non-combustible mantel and/or mantel leg clearances closer than those listed in this manual requires the use of non-combustible construction materials (eg: steel studs, concrete boards, etc.) to a minimum height of 12 inches (305 mm) above the listed framing height.
Note: Mantel Measurement is taken from top of the firebox opening, NOT the top of the unit.
Combustible/Noncombustible Mantels

Combustible or Non-Combustible Mantel Legs or Wall Projections

C. Decorative Fronts
Only decorative fronts certified for use with this firebox model may be used. Contact your dealer for a list of decorative fronts that may be used.
D. TV Good Faith Guidelines.
Good Faith Guidelines for TV Installation’s above a Typical Gas Fireplace

Notes:
- These are good faith recommended clearances only and not a guarantee of compliance with all TV manufacturers’ maximum allowable operating temperatures.
- Since every home has unique airflow characteristics and maximum allowable operating temperatures can vary from manufacturer to manufacturer and from model to model, actual TV temperatures should be validated at the time of each installation. TVs should not be used in situations where the actual TV temperature exceeds the manufacturers’ maximum allowable operating temperatures identified in the TV’s technical specifications. Contact the TV’s manufacturer directly if you cannot locate this information or have questions regarding the information.
- Mantel height and depth must conform to mantel requirements specified in the installation manual.
- “A” dimension taken from the top of the appliance opening.
- Suggestions on how to further reduce TV temperatures:
-Increase “A” and/or 24” minimum TV height dimensions.
Figure 7.3 Good Faith Clearances
Firebox Setup
A. Remove the Shipping Materials
Remove the shrink film, corrugated top cap, bottom cap and column protectors from the firebox.
Remove shipping materials from inside or underneath the firebox.
B. Clean the Firebox
- Clean/vacuum any sawdust that may have accumulated inside the firebox.
C. Hood Installation
WARNING: A hood is furnished with each firebox and MUST be installed for safe operation.
Locate the (6) screws, (4 on the top and 1 on each end),slide hood into position and secure. See Figure 8.1.

WARNING! Risk of Fire! The firebox hood must not be modified or replaced with a hood that may be provided with the vent free appliance.
D. Adjustable Firebox Supports
This firebox is provided with adjustable supports to allow for proper support of the firebox bottom and reduced sagging caused by heavy concrete logs.
To adjust firebox supports:
- Remove (2) screws securing Lower Access Panel. See Figure 8.2.

- Using a flat screwdriver, lift gently on Lower Access Panel. See Figure 8.3.

- Pull Lower Access Panel forward to disengage from Firebox Bottom, set aside. See Figure 8.4.

- Remove (2) screws securing the front edge of both the right and left firebox supports. See Figure 8.5.

- Rotate the right and left firebox support towards the center until screw holes align and reinstall (2) screws previously removed. See Figure 8.6.

Note: The front edge of the firebox supports may be adjusted in or out, if needed, to provide the best support for the selected log set.
Once the firebox supports are properly located,to provide maximum support, the front edge MUST be secured with a minimum of (1) screw each.
The rear edge of the firebox supports should not be altered from the factory setting.
Reference Materials
A. Optional Accessories
Optional Screen Front: VOFBSD-36, VOFBSD-42
Optional Drain Pan: ODGSDP-36, ODGSDP-42
Optional Flat Drain Pan: ODGSDPFLT-36, ODGSDPFLT-42
► Natural Burner Assembly: LUM-OD-NM
Propane Burner Assembly: LUM-OD-PM
B. Contact Information
– NOTES –______________________
ATTENTION INSTALLER:
Follow this Standard Work Checklist
Customer:_____________________________
Lot/Address___________________________
Model (circle one): VOFB36-T, VOFB36-H VOFB42-T, VOFB42-H
Date Installed:________________________
Location of Firebox:____________________
Installer:____________________________
Dealer/Distributor Phone #_______________
Serial #:____________________________
WARNING! Risk of Fire or Explosion! Failure to install firebox acording to these instructions can lead to a fire or explosion.
| Firebox Install Section(s) 3 & 4 | YES | IF NO, WHY? |
| Verified clearances to combustibles. | ▢ | |
| Firebox is leveled and secured. | ▢ | |
| Electrical Section 5 | ▢ | |
| Unswitched power (110-120 VAC) provided to the firebox. | ▢ | |
| Gas Section 6 | YES | IF NO, WHY? |
| Proper fuel type | ▢ | |
| Leak check performed and inlet pressure verified. | ▢ | |
| Finishing Section 7 | YES | IF NO, WHY? |
| Combustible materials not installed in non-combustible areas. | ▢ | |
| Verified all clearances meet installation manual requirements. | ▢ | |
| Mantels and wall projections comply with installation manual requirements. | ▢ | |
| Hearth extension installed per manual requirements. | ▢ | |
| Firebox Setup Section 8 | YES | IF NO, WHY? |
| All packaging and protective materials removed. | ▢ | |
| Refractory installed correctly. | ▢ | |
| Firescreen installed properly. | ▢ | |
| Manual bag and all of its contents are removed from the firebox and given to | ▢ | |
| the party responsible for use and operation. | ▢ |
Hearth & Home Technologies recommends the following:
- Photographing the installation and copying this checklist for your file.
- That this checklist remain visible at all times on the fireplace until the installation is complete.
Comments: Further description of the issues, who is responsible (Installer/Builder/Other Trades, etc.) and corrective action needed:
Comments communicated to party responsible
__________________________ by ______________________on _________
(Builder/Gen. Contractor) (Installer) (Date)
Outdoor Lifestyles, a brand of Hearth & Home Technologies
7571 215th Street West, Lakeville, MN 55044
www.hearthnhome.com
Outdoor Lifestyles • VOFB36/42 Installation Manual • 4153-901 • Rev B • 04/23




















