
Installation And Operations Instructions
For Superior’s Vented Decorative Gas Appliances Natural Gas Models
GST-8000N GPF-8000N GCR-8000NR GCR-8000NL
Propane Gas Models
GST-8000P GPF-8000P GCR-8000PR GCR-8000PL

8000 Series Decorative Gas Fireplace
This Installation and Operations Manual contains information on three different appliance designs. Some illustrations shown are of one design and are meant to
represent a technique or application only.
“INSTALLER – THESE INSTRUCTIONS MUST BE CONVEYED TO HOMEOWNER”
WARNING: IMPROPER OPERATION, INSTALLATION, ADJUSTMENT, ALTERATION, SERVICE OR MAINTENANCE CAN CAUSE INJURY OR PROPERTY DAMAGE. REFER TO THIS MANUAL. FOR ASSISTANCE OR ADDITIONAL INFORMATION, CONSULT A QUALIFIED INSTALLER, SERVICE AGENCY, OR THE GAS SUPPLIER.
This installation manual will help you obtain a safe, efficient, dependable installation for your fireplace and vent system. Please read and understand these installation instructions before beginning your installation.
WARNING: THE GST, GPF AND GCR SERIES FIREPLACES ARE VENTED DECORATIVE GAS APPLIANCES. DO NOT BURNWOOD OR OTHER MATERIAL IN THESE APPLIANCES.
Do not attempt to alter or modify the construction of the appliance or it’s components. Any modification or alteration of construction may void the warranty, certification and approvals of these units.
FOR YOUR SAFETY
If you smell gas:
- Do not try to light any appliance.
- Do not touch any electrical switch; do not use any phone In your building.
- immediately call your gas supplier from a neighbor’s phone. Follow the gas supplier’s instructions.
- If you cannot reach your gas supplier, call the fire department.
FOR YOUR SAFETY
- Do not store or use gasoline or
Other flammable vapors or liquids in the vicinity of this or any other appliance.
Due to high temperatures, the appliance should be located out of traffic and away from furniture or draperies.
Do not place clothing or other materials on or near the appliance.
PLEASE RETAIN THIS MANUAL FOR FUTURE REFERENCE
![]()
GENERAL INFORMATION
These appliances comply with American National Safety Standards and are tested and listed by Underwriters Laboratories, Inc. to ANSI Z21.50-1988 as a vented decorative gas appliances.
Installation must conform to local codes. In the absence of local codes installation must conform with the current National Fuel Gas Code, ANS! 2223.1. These appliances, when installed, must be electrically grounded in accordance with local codes, and with the National Electrical Code, ANSI/NFPA No 70- 1987.
Note: Installation and repair should be done by a qualified service person. The appliance should be inspected annually by a professional service person.
More frequent inspections/cleanings maybe required due to excessive lint from carpeting, bedding material, etc. Itis imperative that the control compartment, burners and circulating air passage ways of the appliance be kept clean.
Provide for adequate ventilation.
Provide adequate clearances around air openings and adequate accessibility clearance for service and proper operation. Never obstruct the front opening of the appliance.
If the appliance is installed directly on carpeting, tile or other combustible material other than wood flooring, the appliance shall be installed on a metal or wood panel extending the full width and depth of the appliance.
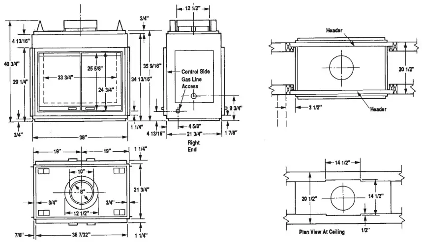
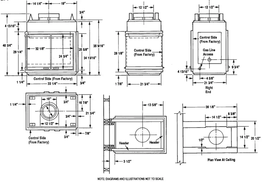
Minimum clearances to combustibles are: Sides 1/2″, Floor 0″, Back 1/2″, Ceiling 41 1/2°, Sidewall 0°, B-Vent Surfaces 1°, 8° chimney 1″ or 2° (see page 3, Figure 10).
Minimum inlet gas pressure is 4.5 inches water column for natural gas and 11 inches water column for propane for the purpose of input adjustment. Maximum inlet gas supply pressure is 7.0 inches water column for natural gas and 13.0 inches water column for propane. Input is 36,000 BTU/HR. A1/8″N.P.T. plugged tapping is provided on the gas control along side of the outlet to the main burner for a test gage connection.
These appliances must not be connected to a chimney flue servicing a solid fuel burning appliance.
These appliances must be isolated from the gas supply piping system by closing their individual manual shut-off valve during any pressure testing of the gas
supply piping system attest pressures equal to or less than 1/2 sprig.
The appliance and its individual shutoff valve must be disconnected from the gas supply piping system during any pressure testing of that system at test temperatures in excess of 1/2 PSIG (KPa).
INTRODUCTION
The GST, GPF and GCR units are radiant systems that utilize a millivolt gas control valve and a piezo ignition system. Glass doors and glass panels are standard equipment.
ASSEMBLY STEPS
- Position appliance prior to framing or into prepared framing.
- Route gas line up to firebox compartment and install millivolt wall switch.
- Install chimney or vent system.
- Complete finished wall material and trim. (Refer to page 12 for Removal of Corner Shipping Posts.)
- Install controls and bummer assembly. Connect to gas supply.
- Wire remote millivolt wall switch to control valve and door switches.
- Un carton and install glass doors.
INSTALLATION
Step 1. Frame fireplace enclosures as illustrated in Figures 1, 2, 3 or. 4.
![]() Figure 1 | ![]() Figure 2 |
|
|
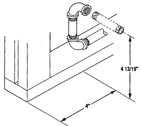
Step 2. Route a 1/2” NPT black iron gas line 4 13/16″ above the floor surface (if fireplace will be resting on the floor) and 4″ behind the face of the rough framing (Figure 5).

Figure 5
Note: Gas piping should be routed to the front side of framing in line with the gas controls (Refer to appliance specifications and to Figures 40, 41 and 42 on pages 10 and 11). The back side of framing for both the right hand open GCR and the right hand (or reverse) open GPF. This gas line should extend at least 2″ into the control compartment at the time connection is to be made (Figure 6 ).

Figure 6
Step 3. Position the appliance into prepared framing, nailing with 6d nails through the nailing flange holes (Figure 7).

Figure 7
Step 4. Install the remote wall swttch in a convenient location and route the 18 gage millivolt wire through the gas line access hole into the control compartment. At least 15 ” of wire is required in the control compartment.
Step 5. Connect etther a listed8″ Type B vent system to the appliance flue collar, using a listed draft hood connector to start the vent or connect Superior’s TFS or BC8 chimney system to the appliance collar. Install remainder of vent or chimney to the outside. Minimum height of the vent or chimney and appliance should be 12 feet.
Note: Refer to the vent manufacturers installation instructions for variations of Type 8 venting tech inquest. If Superior’s TFB or 8GB chimney system is used, the following procedures should be followed.
INSTALLING THE CHIMNEY SYSTEM
Step 1. Before installing the complete vent or chimney system, it is important that the flue damper operates correctly after the vent or chimney has been Installed. When installing a Type B Venting system, it JS suggested that a draft hood connector (DHC) be the first vent component attached to the appliance flue collar. It may be necessary to trim or crimp the DI-IC skirt in order to properly adapt to the collar without interfering with the flue damper. After the first vent or chimney component has been attached to the fique dollar, check the flue damper for proper operation and that there is no interference.
Refer to Rgures 8 and 9 for the appropriate flue damper settings. The main burner will not ignite if the flue damper has not been set in the full open position and the glass doors have not been closed.
![]() | ![]() |
Step 2. Using standard construction framing tech inquest, construct opening for chimney route up through the ceiling(s) and roof or through an outside chase.
Framing must maintain adequate minimum airspace clearance at all times.
CAUTION: ALLOW MINIMUM 1″ (or 2″r (SEE *NOTE) CHIMNEY AIR SPACE TO COMBUSTIBLE FRAMING MEMBERS THROUGHOUT VERTICAL OR OFFSET CHIMNEY INSTALLATION.
A minimum (See “Note) air space must be re served for all materials extending for any con tenuous length surrounding the chimney.

• Note: 1″ for TFB chimney system and 2″ for BCB chimney system.
NOTE: DIAGRAMS AND ILLUSTRATIONS NOT TO SCALE
Reference Figures 11 and 12 and charts “Framing Dimensions for Ceiling and Roof’, which specify minimum ceiling and roof dimensions.
![]() | ![]() |
FRAMING DIMENSIONS FOR CEILING
| Flue Type | A | B |
| TF8, Vertical | 14 1/2″ | 1412″ |
| BC8, Vertical (at 2′) | 14″ | 14′ |
| TF8, Offset 30° | 1412′ | 25″ |
| BC8, Offset 30° (at 2′) | 14″ | 25″ |
FRAMING DIMENSIONS FOR ROOF
| Pitch | TF8 at 1″ | BC8 at 2″ | ||
| C | D* | C | D’ | |
| 0/12 | 1412″ | 1412″ | 14″ | 14′ |
| 6/12 | 1412″ | 17′ | 14″ | 17″ |
| 12/12 | 14 1/2′ | 21 1/2′ | 14′ | 21 1/2′ |
• Perpendicular to roof ridge
In new construction, to determine chimney center line, use plumb line from roof or ceiling above fire- place to center of flue collar on fireplace.
For remodeling, plumb to center of flue collar from ceiling above, drive nail through ceiling from below to mark position, then mark and cut to passage from above ceiling (around nail) (Figure 13). Then plumb from ceiling or roof level directly above hole which has just been completed.

Step 3. Position appropriate firestop spacer at ceiling and nail temporarily with two (2) 8d nails. Use flat firestop spacer, Model 8FS for TF8 system and Model BC8-FS for the BC8 system, if chimney pen- etrates ceiling vertically. If chimney penetrates ceiling at30° angle (off set chimney), use 30° firestop spacer, Model 8FS30 for TF8 and Model BC8-FS30 for BC8 system. Use one nail on opposite sides to hold firestop spacer in position. Nail permanently, using at least two (2) more 8d nails, after chimney sections have been assembled through the firestop spacer and after any necessary adjustments have been made. Firestop spacer must be secured by at least four (4) 8d nails when completely installed.
Note: If there is a room above ceiling level, firestop spacer must be installed on the bottom side of the ceiling. If an atticis above ceiling level, fre stop spacer
must be installed on top side of ceiling joist (Figures 14 and 15).
![]() Figure 14 | Figure 15 |
Step 4. Note: Chimney sections are constructed with a unique locking tab design, which ensures an immediate, tight assembly between sections. Plan your chimney requirements carefully before assembly as chimney is difficult to disassemble after installation. If disassembled, the tabs might become damaged. Be
certain tabs are properly formed to ensure locking tabs engage properly.
The TF8 and BC8 chimney systems are two piece chimneys, which snap together from the fireplace up. Start with the inner flue section. With the hemmed end down, snap lock it in to the matching collar on top of the fireplace. At all subsequent joints, the upper flue section fits into the preceding flue section. Each piece
snaps together by means of locking tabs (9 locking tabs per joint). Check each piece by pulling up slightly from the top to ensure proper engagement before installing succeeding sections. If the flue has been installed correctly, it will not separate when you test it. Also, the inner flue joint where each sections joined should be tight and flat without gaps (Figure 16).

Outer pipe section installs in just the opposite way; the hemmed end goes UP and each new section goes OVER the outside of the previous section installed (Figure 17).

Note: Assemble one component of chimney at time (inner section first, then outer section last) before proceeding with the next complete section.
Continue to assemble the chimney up through framed opening. Assemble just enough to penetrate the roof flashing openings (Figure 18). Always maintain 1° (or
2″)** (See **Note) minimum air space to combustible materials and always check each chimney joint (inner and outer) to ensure proper engagement. Check vertical alignment of chimney so that it projects from the roof in true vertical position.

Superior chimney sections should not be screwed together and it is not required for additional reinforcement.
Step 5. The height of vertical chimney pipe supported only by the fireplace must not exceed 30’. Chimney heights above 30′ must be supported by a Model 8-S4 or Model BC8-S4 unitized stabilizer installed at the midpoint.
Note: The Model 8-S4 and Model BC8-S4 add 2 1/2″ net effective height to the total chimney system.
** Note: 1″ for TF8 chimney system and 2″ for BC8 chimney system.
Install the Model 8-S4 or BC8-S4 stabilizer by fitting inner section down into respective section of proceeding flue pipe and locking outer stabilizer section into place over the outer chimney pipe. Position for proper clearance through framed opening and nail straps securely (under tension in “shear’) into place on framing. Use 8d nails. Attach successive lengths of chimney pipe directly to stabilizer using same techniques as described in Step 4.

| Roof Pitch | TFB | BC8 |
| Flat to 6/12 | 8-F6 | BC8-F6 |
| 6/12 to 12/12 | 8-F12 | BC8-F12 |
Next, slide roof flashing over extended chimney section that previously has been installed above the roof opening in Step 4. Slide flashing all the way down until the flashing base rests flat on the roof. Again, check the vertical position of the chimney and the 1° (or 2″)** (See *Note) minimum air space to combustibles.
Step 7. Secure fleshing nailing along the perimeter into roof using 8d nails. If shingled roof, slide upper end and sides of roof flashing under shingles (trim if necessary), seal the top and both sides of the flashing to the roof with roof caulking. Cover nail heads with roof caulking (Figure 20).
** Note: 1° for TF8 chimney system and 2″ for BC8 chimney system.

Step 8. The standard Superior roof flashing assemblies include a storm collar. Slide storm collar over outer chimney, align with top surface of flashing, inserter in slot, pull tight and bend tab back over slot. Seal storm collar to outer chimney with roof caulking or mastic around entire circumference of pipe. Also add extra roof caulking where storm collar meets flashing and to the tab/slot area to seal completely against water penetration (Figure 21 ). Check all joints very carefully to ensure no water intrusion can take place.

Step 9. Superior locking bands, Models 8LB or BC8-LB, may be required if the chimney extends too high – above the roof flashing. As a general rule, if the – chimney extends more than 6’ above the roof flashing, the use of locking bands is advisable to string then the chimney assembly. Align the locking band at the chimney joint. Locking bands wrap around pipe joints equally covering the joints of both pipe sections. Use nut provided and TIGHTEN snugly. Do not over- tighten as this might damage chimney section (Figure 22 ).
NOTE: DIAGRAMS AND ILLUSTRATIONS NOT TO SCALE

Note: If chimney extends more than 8′ above roof surface, guy wires are also recommended. Use three (3) guy wires, attach to locking band assembly, extend and secure to roof in a triangular pattern (Figure 23). Guy wires are not supplied by Superior.

Step 10. Using a CTD Round Termination:
- Hold CTD over top of last chimney section (Figure 24 ).
- Center inner slip section in inner flue pipe-slip down.
- Center outer locking section over outer flue pipe.
Push down until locking tabs are firmly engaged. - Pull up slightly on CTD to ensure locking joint has firmly engaged.
![]() | ![]() |
Using a CT1 Chase Termination
Refer to specific installation instructions included with CT1 chase termination for clearance statements and installation details.

Using a CT2 Chase Termination
Refer to specific installation instructions included with the CT2 chase termination for clearance statements and installation details.
Using a CTDT Chase Termination
Refer to specific installation instructions included with the CTDT chase termination for details.
Note: It is recommended that all exterior exposed related metal fireplace components; succahs terminations, lashings, storm collars and/or fique be painted with a premium quality, high temperature, rust preventative paint designed for metal. This is especially important when installations are made in abnormally adverse or corrosive environments; such as near lakes, oceans or in areas with consistently high humidity conditions. Consult the paint manufacturers instructions for proper preparation and application.
** Note: 1″ for TF8 chimney system and 2″ for BC8 chimney system.

TEN FOOT RULE SUMMARY
The minimum chimney height above the roof and/or to adjacent walls and buildings is specified by all major building codes. If the horizontal distance from the peak of the roof is less then 10’, the top of the chimney must be at least 2′ above the peak of the roof.
If the horizontal distance from the chimney edge to the peak of the roof is more than 10’ a chimney height reference point is established on the roof surface 10° horizontally from the chimney edge. The top of the chimney must be at least 2 above this reference point. In all cases, the chimney cannot be less then 3′ above the roof at the edge of the chimney.
The 2 in 10’ rule is necessary in the interest of safety but does not ensure smoke-free operation. Trees, buildings, adjoining roof lines, adverse wind conditions, etc., may require a taller chimney should the fireplace not draft properly (Figure 27).
MULTIPLE TERMINATIONS
If more than one termination is located in the same chase or within the same general proximity, we suggest they should be separated in distance at least 24″ horizontally from flue center to flue center and stacked or staggered vertically at least 18″ apart, from the termination of one smoke exit to the termination of another smoke exit (Figure 28).
This suggestion is provided in the interest of better operation. If the terminations are located too close to each other, smoke may migrate from one flue into the other.
NOTE: DIAGRAMS AND ILLUSTRATIONS NOT TO SCALE

TF8 AND TF10 CHIMNEY COMPONENT CALCULATIONS
The minimum installed height of the GST, GPF and GCR Series systems is 120”.
To determine the number of chimney sections and chimney components required, follow these steps:
- Determine total vertical height of the fireplace installation. This dimension fs the distance from the surface the fireplace sets onto the point where smoke exits from the termination.
- Determine the number of chimney components required, except chimney sections. This would in-Clued firestop spacers, stabilizers, roof flashing, etc.
- The effective heights of the components are:
The Appliance = 9393/4″
CTD Termination = 4″
CT1i Termination = 12″ to 18″
CT2 Termination = 15″ to 23″
CTDT Termination = 12° to 18°
S4 Stabilizer* = 2 1/2″
* Required for every 30′ of vertical chimney and/or 10° of offset chimney.
VERTICAL ELEVATION CHART — TF8 AND BC8 SYSTEMS (FEET AND INCHES)

NOTE:DIAGRAMS AND ILLUSTRATIONS NOT TO SCALE
TF8 AND BC8
OFFSET ELEVATION CHART


NOTE: DIAGRAMS AND ILLUSTRATIONS NOT TO SCALE
4. Determine amount of chimney height required by subtracting total combined height of all pre-selected components (fireplace and chimney components from total desired height.)
Reference Vertical Elevation Chart and determine the number of chimney sections (quantity and length) required,
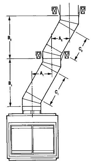
SPECIAL OFFSET INSTRUCTIONS
To clear any overhead obstructions, you may offset your chimney system using Superior 30° offset and return elbows. Use two elbows – an offset elbow to initiate the offset and a return elbow to terminate it.
The offset and return elbows maybe attached together, or a section or sections of chimney may be used between, but do not exceed 20’ in to tall length between elbows. if sections of pipe exceed 10’ between elbows, a chimney stabilizer must be used at the mid point. The stabilizer support straps must be attached under tension (in shear) to structural framing members above. When two sets of elbows are used, the maximum combined length of chimney used between elbows cannot exceed 20’ (Figure 31). Example: If C1 = 10′ then C, cannot exceed 10°. A 30° offset elbow, angling in any direction, may be the first component used off the top of the appliance flue collar.
Maximum offset of chimney system is 30°. Two offsets must not be assembled to form a 60° offset. However, two sets of offset and return elbows may be used unsingle flue system, provided the total height of the system exceeds 25’.
Return elbow support straps must be securely attached under tension (in shear) to structural framing members above. Do not substitute a TF8-30 or BC8-30 offset elbow in place of a TF8-E30 or BC8-E30 return elbow.
OFFSET CALCULATIONS
- Use Offset Chart to determine amount of horizontal Offset (A) and height (B) for various chimney section assemblies.
- Use “Height of Flue Only” column in The Vertical Elevation Chart to determine combinations of chimney used above return elbow to achieve desired heights. Reference Components Effective Height Chart in vertical elevation chart section.
- Use Elevation Chart as job estimator only. Add necessary firestop spacers and stabilizers as required. Firestop spacers must be used as shown in Figures 14 and 15 and stabilizers as shown in Figure 19.

Figure 30
TO INSTALL OFFSETS
First, review Chimney Offset Elevation Chart and Figure 29 on page 8 for reference.
Step 1. Select desired chimney system; TF8 or BC8.
Determine the offset distance where chimney is to pass through the first ceiling-dimension “A”. To find this point on your ceiling, first determine the center — point for a vertical chimney following the instructions for vertical installation.
Measure height to the ceiling from the top of appliance-dimension “B”. Use Offset Elevation Chart to find dimension “A”, Mark point where you will drive your nail to show the center point for your offset ceiling cut.
Step 2. Proceed by using the Straight Up Installation Instructions for cutting and framing ceiling and roof Openings.
Note: See Framing and Dimension Chart for the Sizes of the ceiling and roof openings. The size of the roof opening varies with the degree of pitch of the roof.

Figure 31
OFFSET ELBOW ASSEMBLY
Offset elbows install the same as chimney sections.
First, snap the inner section INTO the preceding inner section of flue. Check connection by pulling up slightly to ensure a tight fit. Next, the outer sections snap lock OVER the preceding outer section of chimney. Again, check outer section by pulling up slightly to ensure proper connection is made.

RETURN ELBOW ASSEMBLY
Return elbows install the same way as round terminations and stabilizers:
Step 1. Hold fretum elbow over top of last chimney section.
Step 2. Center inner slip section into inner flue pipe- slip down.
NOTE: DIAGRAMS AND ILLUSTRATIONS NOT TO SCALE

Figure 32
Step 3. Center outer-locking section over outer chimney pipe. Push down until locking joint has firmly engaged.
Step 4. Pull up slightly on retum elbow to ensure locking joint has firmly engaged.
Step 5. Secure support straps to framing members by nailing under tension in sheer.
Note: Donot apply excessive pressure to any subsequent chimney section following return elbow assembly when installing. Ensure that each subsequent chimney section is securely attached by testing as noted above.
TF8 AND BC8-OR15
OFFSET/RETURN ELBOWS
Primarily used when appliance penetrates a 6″ thick wall, Refer to installation instructions packed with TF8-OR15 and BC8-OR15 for proper usage.
CHIMNEY OFFSET 30° THROUGH FLOOR OR CEILING
It may be necessary to assemble the chimney at 30° when passing through the floor or ceiling area. Use appropriate 30° angled firestop spacer as shown in Figures 34 and 35. Support the chimney at floor or ceiling penetration with a stabilizer if distance of chimney below ceiling is 10° or more. Maintain 1″ (or 2″)** (See “Note) minimum air space to combustibles from chimney sections.
![]() | ![]() |
Step 6. Complete finished wall material and trim.
CONTROL MODULE AND GAS LINE HOOK UP
Note: The logs are packaged in their own carton and are shipped with each appliance model. The control module, burner assembly, bummer grate, pilot shield, colorization rod and bumer trough assembly are packaged separately in their own carton and must be ordered separately. Before gas supply piping can be connected to the gas control valve, the control module must first be installed in the appliance. If your model is not a GPF-8000, skip to Step 3.
** Note: 1° for TF8 chimney system and 2″ for BC8 chimney system.
GPF-8000 CONVERSION
Special Note: The GPF-8000 has been designed so that the control module can be installed on either the let or right side. The GPF-8000 model is shipped from the factory with the provisions to install the control module in a left open configuration (closed end or right side) (refer to specification on page 16 for stated orientation). A field conversion can be made to fevers the control module and operating glass doors. The following steps must be taken to convert the factory supplied left hand open unit to a right hand open unit:
Step 1. Switching glass doors: The operable set of glass doors must be removed from the left side and assembled on the opposite or right side. The fixed glass panels must be removed from the right side and assembled on the left side. The top retention clips must first be removed from both doors and both fixed glass panels before they can be removed from the appliance. After doors and panels have been switched, replace the retention clips.
Step 2. Switching the door pin/switch bracket: The pin/switch bracket that is mounted on the right door pane! will have to be removed and remounted on the left door panel. To remove, remove the two (2) Phillips head screws from the pin bracket and remount in the same fashion on the left door panel (Figure 58, page 14). Replace screws that have been removed. Adjust the bracket so that the switch pin penetrates the slot in the control access door and contacts the switch lever. Re-tighten switch/pin bracket screws
Note: The GPF-8000 comes with two (2) control access doors. Each access door is different and is matched to the side that corresponds to the placement of the control module. If, for any reason the control access doors are mounted on the wrong side, they can be switched easily,
The GPF-8000 has now been converted from a left sided model to a right sided model. The continuing steps can now be performed.
Step 3. Remove the control module securing screw from the appliance hearth flange and set aside. Open the control access door for better viewing when installing the control module. Lift up and tilt down to open.
Step 4. Remove the control module from the carton and insert the control end (facing the control access opening) into hearth opening (Figure 36 ). Rotate control module until level inside opening and slide to rear (Figure 36). Slide forward until front module flange engages front bracket under hearth and rear bracket slides over hearth flange. Replace control module screw to secure control module in place.
NOTE: DIAGRAMS AND ILLUSTRATIONS NOT TO SCALE 
Step 5. 1/2″ Flex Connector Procedure – Attach a 1/2″ flex connector (12″ length, 30″ length if installed on a GCR-8000R or GPF-8000R unit) with a shut off valve to the 1/2″ gas supply stub, using a wrench and pipe joint compound (where required). Tighten fitting securely (Figure 37).
Note: Do not damage or kink the flex connector.
Step 6. Carefully bend and shape the flex gas connector so that a connection can be made to the gas valve. Caution should be used so as not to kink the gas connection.
Note: Check for gas leaks with soap and water solution. DO NOT USE OPEN FLAME FOR LEAK TESTING.
Step 7. Rigid Pipe Connection Procedure – Extend previously installed 1/2″ NPT gas supply pipe to the gas control valve. Figures 38 and 39 illustrates the sequence of connection. Secure all fittings tightly using a wrench and pipe joint compound where necessary.
![]() | ![]() |
Figure 39
Special Note (If rigid pipe is used to connect
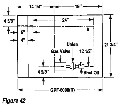
supply to gas valve): To facilitate an easier access to the gas control compartment in order to connect the gas supply line to the gas control valve with rigid pipe, the hearth pan may be opened. Alf refractory components must first be removed. The hearth pan screws must then be removed. The hearth pan with the gas control module attached can then be tilted up or removed to reveal the control compartment. Refer to Figures 40, 41 and 42 for details showing elements of rigid pipe components.
![]() | ![]() | ![]() |
REMOTE MILLIVOLT WALL SWITCH WIRING
Step 8. Attach one wire from the remote millivolt wall switch to the “TH” terminal on the gas control valve.
Connect the other wire from the remote millivolt wall switch to the red wire ( nut provided on wire ) located on the door switch mounted to the control access door. Connect the blue wire, hanging in control compartment, from flue damper switch to empty terminal on door switch (Figure 43).

CAUTION: DONOT WIRE REMOTE WALL SWITCH TO A MAIN POWER SUPPLY. GAS VALVE WILL BE DAMAGED BEYOND REPAIR.
Step 9. insert the venturi pilot shield into the hearth opening as illustrated in Figure 44. Center the burner grate over the pilot shield and rest grate on refractory hearth. Long side of grate must be parallel with the long side of the hearth opening.
Step 10. Attach bumer trough assemblies to the burner assembly with the No. 6-32 x 7/32″ Phillips head screws. Secure bummer troughs with screws from the underside of bumer (Figure 45). tt is important to orientate the burner throughs so that the white colorization material faces towards the center of the burner.
Step 11. Carefully place bumer, with venturi tube, into grate. Make certain that the venturi tube engages the burner orifice on the control module (Figure 44 ). The venturi tube guide will assist in seating the bummer into the grate and center the venturi tube over the burner Orifice.
Figure 44
NOTE: DIAGRAMS AND ILLUSTRATIONS NOT TO SCALE
Figure 45
Step 12. Carefully position and center the two lower logs onto the burner. It makes little difference which way the two lower logs are orientated over the burner. Position the colorization rod, from the control carton into the two grooves found in the bumer log connecting bridges (Figure 46 ). Place the three (3) smaller logs across the two (2) lower logs in the manner illustrated in Figure 47. The letters in the underside of the smaller logs must match the letters mon the lower log to assure proper orientation.
![]() |
Figure 47 |
Step 13. Follow instructions printed on the door packaging to remove the doors and door panels from the appliance. Re-assemble doors and door panels at this time. The set of door panels (described on pages 16 and 17, items 28 and 29) are not designed to be opened.
FLAME COLORIZATION DEVICES
The bumer assembly is equipped with special flame enhancement strips (burner trough assemblies) located around the lower burner ports. These devices, along with the colorization rod, colorize the gas flame and produce the “ember effect”.
In normal operation, these devices will provide many hours of satisfactory performance. Over time, the Orange color will diminish in intensity and it will be necessary to purchase a replacement rod and/or mineral fiber flame enhancement device. These devices are available at nominal charge from your local distributor/dealer or directly from Superior.
COLD CLIMATE INSULATION
If you live in a cold climate, seal all cracks around your appliance with non-combustible material and wherever cold air could enter the room. It is especially important to insulate the outside chase cavity between studs and under floor on which it rests, if floor is above ground level.
Surround material must be caulked where it meets the black metal facing of the appliance to avoid air intrusion. Use non-combustible caulking material only on appliance facing to seal.
Do not place insulation materials in the gas vent or chimney system clearance spaces.
HIGH ELEVATION DERATING
When installing these appliances above 4,000 feet level, it is recommended that the appliance bumer be debated by changing the existing orifice to a smaller one. Order and install appropriate high altitude orifice kit (Figure 48).
FINISHED WALL DETAILS
It is best to frame your appliance after it is positioned.
Frame with 2 x 4’s or heavier lumber. Frame in accordance with local prevailing building codes,
Note: The header may rest on the top metal spacers but must not be notched to fit around them,
To install the appliance facing flush with the finished wall position framework to accommodate the thickness of the finished wall (Figure 49).
Non-combustible surround materials can be placed around the appliance facing to provide aflush surface between the surround materials and the fireplace facing (Figure 50).
![]() | ![]() |
A combustible mantel shelf projecting a maximum of 8″ from the wall may be installed a minimum distance of 11° above the appliance opening (Figure 51).
REMOVAL OF CORNER SHIPPING POSTS
Models GPF-8000 and GCR-8000U/R are shipped from the factory with metal shipping comer posts attached to the open corner(s). Model GPF has two posts and Model GCR has one post attached. Refer to the following steps for removal of these posts (if desired):
NOTE: DIAGRAMS AND ILLUSTRATIONS NOT TO SCALE
Step 1. Remove door clips and lift up on the door(s) closest to the corner. Carefully tilt the bottom of the door toward you and down to remove.
Step 2. Remove the end panel by removing clips and lifting up and tilting out.
Step 3. Remove the four (4) screws in the shipping post as illustrated in Figure 52.
Step 4. Reverse steps 1 and 2 to replace the end panel and glass door panel(s). Replace screws removed from comer shipping posts.
OPERATION
To operate the appliance, refer to the lighting instructions located on the back of the front control access door.
Your appliance control system is a millivolt type. It consists of a pilot burner, piezo ignition, a gas control valve and a manual ON/OFF switch. The wall switch is connected in series with a flue damper safety switch, a high temperature limit switch and a door switch. The appliance flue damper must be in the fully open position and the doors must be closed before the bumer will operate (Figures 8 ,9 and 57).
To obtain proper operation, it is imperative that the pilot and main bumer flame characteristics are steady, not lifting or floating, and be blue in colar (Figure 53).
Approximately the top 3/8″ at the pilot generafor (thermopile) should be engulfed in the pilot flame (Figure 54).
The air shutter on the venturi tube has been set at the proper position at the factory for both natural and propane gas units. The air shutter for natural and propane gas has been set in a full open position (Figure 55).
Note: It is not necessary to adjust the air shutter.
Important: Any variation at these air shutters may result in an erratic flame and/or the possibility of sooting, distinguished by a bright yellow flame. Any adjustments to the air shutter different from that described above could cause the burner assembly to malfunction and could void the warranty.
OPERATION GUIDELINES AND MAINTENANCE INSTRUCTIONS
- Upon completing your gas line connection, a small amount of air will be in the lines. When first lighting the appliance, it will take a few minutes for the lines to purge themselves of this air. Once purging is complete, the pilot and burner will light and operate as indicated in the instruction manual. Subsequent lightings of the appliance will not require such purging.
- When lit for the first time, the appliance will emit a slight odor for an hour or two. This is due to the “curing” of the logs and “Bum-in” of internal paints and lubricants used in the manufacturing process.
- Keep control compartment, logs, burners and area surrounding the logs clean by vacuuming or brushing at least twice a year. Do not vacuum the mineral wool located in the front and ends of the burner assembly.
CAUTION: THE LOGS CAN GET VERY HOT – HANDLE ONLY WHEN LOGS ARE COOL. - Always turn off gas to pilot before cleaning. Before re-lighting, refer to the lighting instructions,
- The appliance and venting system should be inspected before use or at least annually by a qualified service person.
- Always keep the appliance area clear and free from combustible materials, gasoline and other flammable liquids.
- Never obstruct the flow of ventilation air. Keep the front of the appliance clear of all obstacles and materials.
WARNING: CHILDREN AND ADULTS SHOULD BE ALERTED TO THE HAZARDS OF HIGH SURFACE TEMPERATURE AND SHOULD STAY AWAY TO AVOID BURNS OR CLOTHING IGNITION. YOUNG CHILDREN SHOULD BE SUPERVISED WHEN THEY AREINTHE SAME ROOMAS THE APPLIANCE.
MAINTENANCE
IMPORTANT: Tum off gas before servicing appliance. It is recommended that a qualified serviceman perform these checkups at the beginning of each heating season.
IN order to properly clean the bumer rand pilot assembly, remove the logs and expose the burner and pilot assembly.
Cleaning Burner And Pilot
Clean all foreign materials from top of burner and from bottom panel below burner. Check to make sure that burner orifice is clean.
Visually inspect pilot. Brush or blow away any dust or lint accumulations. If pilot orifice is plugged, disassembly may be required to remove any foreign material from orifice or tubing. When appliance is put back in service, check pilot flame patterns with Figure 54,
WARRANTY
Your gas fireplace is covered by a one year limited warranty. You will find a copy of the warranty in this manual, Please read the warranty to be familiar with its valuable coverage and file it with others you save for future reference.
MILLIVOLT CONTROL LIGHTING INSTRUCTIONS
- Turn remote switch to “Off”. Tum gas valve knob to “pilot”, depress and turn to “Off”. Wait five minutes.
- Turn gas valve knob to “pilot”.
- Hold in depressed position and light pilot by triggering the spark igniter (pushing red button) until pilot lights. Continue holding knob depressed for approximately 30 seconds until pilot remains lit when knob is released.
- Turn gas valve knob to “On”. Turn remote wall switch to “On”. Bumer will come on. Note: Appliance flue damper must be fully open and doors closed or burner will not operate (Figures 8, 9, 57 and 58 ).
SHUTDOWN INSTRUCTIONS
- The bumer may be turned off by taming remote wall switch “Off. The pilot will remint for return to normal service.
- For complete shutdown: Turn remote switch “Off.
Depress and tum gas valve knob to “Off.
PILOT BURNER ADJUSTMENTS
- Remove pilot adjustment cap screw on main valve.
- Adjust pilot screw to provide properly sized flame (Figure 54 ).
- Replace pilot adjustment cap screw.
TROUBLE SHOOTING
With proper installation and maintenance, your new gas fireplace should provide years of trouble free service. If you do experience a problem, trouble shooting guides are provided in this manual. These guides will assist you or a qualified service person in the diagnosis of problems and the corrective action to be taken.
TESTING/REPLACEMENT OF LIMIT AND DAMPER SWITCHES
*Note: To test and/or replace the limit switch and the flue damper switch, the switch assembly must be detached from the appliance. The switch assembly is located in the control opening side of the GST, GCR and GPF(L) Models and on the opposite side for the GPF(R) Model. Remove the two (2) Phillips head screws from under the trim bar. The switch plate assembly can be lowered to test or replace the switches (Figure 56 ). Refer to pages 16 and 17 to identify switches.
ADJUSTING THE DOOR PIN/SWITCH BRACKET
The pin/switch bracket assembly is mounted on the right door assembly for the GST, GPF(L) and GCR (L) models (Figure 57 ). It is mounted on the left door assembly for the GCR (R) and GPF(R) model (Figure 58 ). This bracket has been pre-adjusted at the factory. It can, however, be re-adjusted in the field if necessary,
![]() | ![]() |
The switch is mounted on the rear of the control access door. Figure 56 illustrates the proper position of the switch for each model. Your specific model should be equipped with its own unique access door with the switch mounted in the correct position (Figure 59 ).
![]() | ![]() | ![]() |
ACCESSORIES
Optional Combustion Air Kit
When outside combustion air is desired, the CAK-4 model combustion air kit should be used. Refer to the installation instructions packed with the CAK-4 model kit for specific installation information. The outside air kit must be installed before the appliance is framed and enclosed in the finished walls. With the combustion air kit installed, the outside air will flow into the appliance on demand. The heat from the flame will create a negative pressure in the appliance, causing the internal air damper to open and allow outside air to flow. When there is no flame present, the air damper will automatically shut and stop outside air from entering. The GST Models has a provision that enables the installer to switch the outside combustion air damper to the opposite side, in the event that the desired orientation calls for the combustion air source to be located on the reverse end.
Optional Wireless Remote Control Switch
A wireless remote control kit, Model RCK can be used in lieu of the manual ON/OFF wall switch. The kit consists of a receiver and a hand held transmitter.
The receiver can be operated either in a manual ON/ OFF mode or in the remote position. Both the receiver and transmitter operate on 9 volt batteries (not sup- plied by Superior). Refer to the wireless remote control switch kit installation instructions (P/N.095002) for specific installation details.
REPLACEMENT PARTS
Contact the factory for questions conceding prices and policies covering replacement parts. Parts will be shipped at prevailing prices. Normally, all parts can be ordered through your Superior distributor or dealer.
When ordering repair parts, always give the following information:
- The model number of the appliance
- The part number
- The description of the part.
- The installation date of the appliance.
If you have any questions or problems, contact your local distributor/dealer or:
Superior Fireplace Company 4325 Artesia Avenue Fullerton, CA 92633 (714) 521-7302
TROUBLE SHOOTING THE ELECTRIC PIEZO IGNITOR AND GAS CONTROL SYSTEM
Models GST-8000N, GST-8000P, GPF-8000N, GPF-8000P. GCR-8000NR, GCR-8000NL, GCR-8000PR, GCR-8000PL Note: Before trouble shooting the electric piezo ignitor system, be sure external gas shut off valve, located at the gas supply inlet, is in the “ON” position.
| SYMPTOM | POSSIBLE CAUSES | CORRECTIVE ACTION |
| 1. Spark igniter will not light pilot after repeated triggering of red button. | A. Defective ignitor (no spark at electrode). B. Defective or misaligned electrode at pilot (Spark at electrode). | 1. Check for spark at electrode and pilot; if no spark and electrode wire is properly connected, replace the ignitor. 1. Using a match, light pilot. If pilot lights, turn off pilot and trigger the red button again. If pilot lights – an improper gas mixture caused the bad lighting and a longer purge period is recommended. If pilot will not light – check gap at electrode and pilot – should be 1/8 inch to have a strong spark. if OK, replace pilot assembly (Figure 54 ). |
| 2. Pilot will not stay lit after carefully following lighting instructions. | A. Defective pilot generator (thermopile) or remote wall switch wiring. B. Defective automatic valve operator. | 1. Check pilot flame. It must impinge on pilot generator (Figure 54 ). Clean and/or adjust pilot for maximum flame impingement on generator. 2. Be sure wire connections from generator at gas valve terminals are tight and generator is fully inserted into pilot bracket. 3. One of the wall switch wires may be grounded. Remove wall switch wires from valve terminals. If pilot now stays lit, trace wall switch wires for a ground. May be grounded to appliance or gas supply. 4. Check pilot generator with millivolt meter. Take reading at generator terminals of gas valve. Should read 325 millivolts minimum while holding valve knob depressed in pilot position and wall switch “OFF”. Replace faulty generator if reading is below specified minimum. 1. Turn knob to “ON”, place wall switch to “ON” millivolt meter should read greater than 100 MV. If the reading is OK and the bummer does not come on, replace the gas valve. |
| 3. Pilot burning, no gas to burner, valve knob “ON”, wall switch “ON”, flue damper “OPEN”, Doors CLOSED”. | A. Wall switch or wires defective. B. Limit switch defective. B1. Door switch defective. C. Flue damper switch defective. D. Pilot generator may not be generating sufficient milivoltage. E. Plugged burner orifice. | 1. Check wall switch and wires for proper connections. Jump wires for proper connections. Place jumper wire across terminals at wall switch. If burner comes on, replace defective wall switch. If OK, place jumper wires across wall switch wires at gas valve. If burner comes on, wires are defective or connections are bad. 2. Check limit switch and wires* for proper connection. Place jumper wire across terminals at limit switch. If burner comes on, replace defective limit switch. 2A. Check door switch & wires for proper connection. Place jumper wire across terminals at door switch. If burner comes on, replace defective door switch. 3. Check flue damper switch and wires* for proper connection. Place Jumper wire across terminals at flue damper switch. If bummer comes on, replace defective flue damper switch. 1. Re-check Symptom #2. 1. Check burner orifice for blockage and remove. |
| 4. Frequent pilot outage problem. | A. Pilot flame may be too low or blowing (high) causing the pilot safety to drop out. | 1. Clean/adjust pilot flame for maximum flame impingement on pilot generator (Figure 54 ), |
*See Note on page 13 under “Testing/Replacement of Limit and Damper Switches”.
REPLACEMENT PARTS LIST
| GST-8000 | GPF-8000(L) | GPF-8000(R) | GCR-8000(L) | GCR•8000(R) | |||||||
| Rem | Description | Part No. | Qty. | Part No. | Qty. | Part No. | Qty | Part No. | Qty. | Part No. | Qty. |
| 1 | Refractory, Bottom | 33141 | 1 | 33141 | 1 | 33141 | 1 | 33141 | 1 | 33141 | 1 |
| 2 | Refractory, Sides | 33081 | 2 | 33081 | 1 | 33081 | 1 | ||||
| 3 | Refractory, End | 33091 | 1 | 33091 | 1 | ||||||
| 4 | Refractory, Rear | 33131 | 1 | 33131 | 1 | ||||||
| 5 | Refractory, Retainer | 33341 | 4 | 33341 | 2 | 33341 | 2 | 33341 | 2 | 33341 | 2 |
| 6 | Glass Door Assy, RH | 36731 | 1 | 36732 | 1 | 35304 | 1 | 36732 | 1 | 35304 | |
| 7 | Glass Door Assy, LH | 35301 | 1 | 35303 | 1 | 36741 | 1 | 35303 | 1 | 36741 | 1 |
| 8 | Glass Panel, End | 34411 | 1 | 34411 | 1 | 34431 | 1 | 34432 | 1 | ||
| 9 | Panel, Screen/Pull | 93074 | 4 | 93074 | 2 | 93074 | 2 | 93074 | 2 | 93074 | 2 |
| 10 | Rod, Screen | 94841 | 4 | 94841 | 2 | 94841 | 2 | 94841 | 2 | 94841 | 2 |
| 11 | Cover, Screen Rod | 33331 | 4 | 33331 | 2 | 33331 | 2 | 33331 | 2 | 33331 | 2 |
| 12 | Control Door, Access | 34021 | 1 | 34023 | 1 | 34025 | 1 | 34023 | 1 | 34025 | 1 |
| 13 | Burner Assy. Natural Gas | 33271 | 1 | 33271 | 1 | 33271 | 1 | 33271 | 1 | 33271 | 1 |
| 14 | Burner Assy. LP Gas | 33273 | 1 | 33273 | 1 | 33273 | 1 | 33273 | 1 | 33273 | 1 |
| 15 | Grate, Burner | 33411 | 1 | 33411 | 1 | 33411 | 1 | 33411 | 1 | 33411 | 1 |
| 16 | Shield, Pilot | 33261 | 1 | 33261 | 1 | 33261 | 1 | 33261 | 1 | 33261 | 1 |
| 17 | Switch, Damper | 94468 | 1 | 94468 | 1 | 94468 | 1 | 94468 | 1 | 94468 | 1 |
| 18 | Switch, Limit | 94895 | 1 | 94895 | 1 | 94895 | 1 | 94895 | 1 | 94895 | 1 |
| 19 | Burner, Trough (End) | 34991 | 2 | 34991 | 2 | 34991 | 2 | 34991 | 2 | 34991 | 2 |
| 20 | Burner, Trough (Sides) | 34993 | 2 | 34993 | 2 | 34993 | 2 | 34993 | 2 | 34993 | 2 |
| 21 | Flame Enhancement Rod | 32351 | 1 | 32351 | 1 | 32351 | 1 | 32351 | 1 | 32351 | 1 |
| 22 | Actuator/Door Catch | 35321 | 2 | 35321 | 2 | 35321 | 2 | 35321 | 1 | 35321 | 1 |
| 23 | 5-18 Logs | 94912 | 1 | 94912 | 1 | 94912 | 1 | 94912 | 1 | 94912 | 1 |
| 24 | Y•10P Top Log | 94913 | 1 | 94913 | 1 | 94913 | 1 | 94913 | 1 | 94913 | 1 |
| 25 | RY-8 Top Log | 94914 | 1 | 94914 | 1 | 94914 | 1 | 94914 | 1 | 94914 | 1 |
| 26 | T-10P Top Log | 94915 | 1 | 94915 | 1 | 94915 | 1 | 94915 | 1 | 94915 | 1 |
| 27 | Switch, Door | 95165 | 1 | 95165 | 1 | 95165 | 1 | 95165 | 1 | 95165 | 1 |
| 28 | Door Panel Assy. LH | 36721 | 1 | 36723 | 1 | 36723 | 1 | ||||
| 29 | Door Panel Assy. RH | 36722 | 1 | 36724 | 1 | 36724 | 1 | ||||
ROBERTSHAW CONTROLS REPLACEMENT PARTS LIST
| 8000N-Natural | 8000P-Propane | ||||
| Item | Description | Part No. | Qty. | Part No. | Qty. |
| 30 | Control Assy. | 33171 | 1 | 33172 | 1 |
| 31 | Valve, Gas | 9737 | 1 | 93771 | 1 |
| 32 | Orifice (#31 Nat. #51 Pro.) | 91334 | 1 | 91335 | 1 |
| 33 | Ignitor, Piezo | 91301 | 1 | 91301 | 1 |
| 34 | Generator | 94699 | 1 | 94699 | 1 |
| 35 | Pilot Assy.(#18 Nat. #10 Pro) | 93761 | 1 | 93762 | 1 |
| *36 | *High Altitude Orifice Kit | 27968 | 1 | 27969 | 1 |
*item 36 intended for high altitude installation.
NOTE: DIAGRAMS AND ILLUSTRATIONS NOT TO SCALE


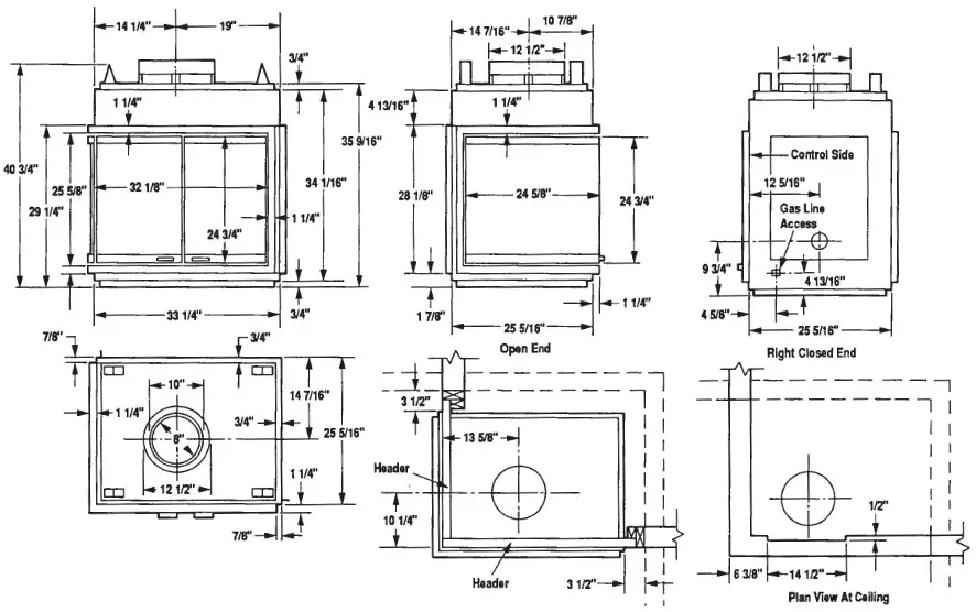
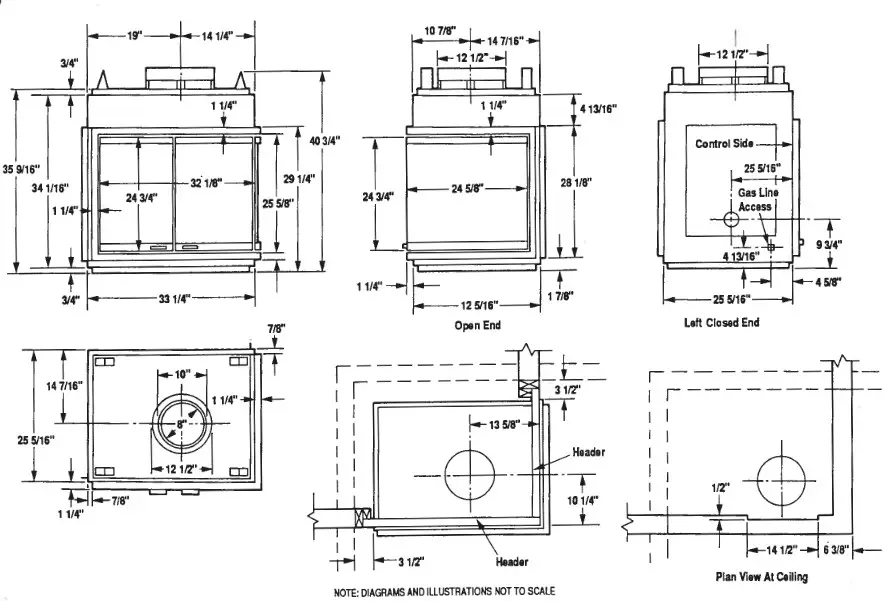
Fireplace Specifications
GST

GPF

GCRL

GCRR

Superior 8000 Series Gas Fireplaces Limited Warranty 1 Year
THE WARRANTY
Superior Fireplace Company warrants this 8000 Series Decorative Gas Appliance to be free from defects in materials and workmanship at the time of manufacture.
REMEDY AND EXCLUSIONS
The coverage of this Warranty is limited to all components of the decorative gas appliance manufactured by Superior Fireplace Company, with the exception of flame colorization devices, cement logs, and Superior glass doors. Glass doors are warranted 90 days from the date of installation for defects in material and workmanship. Replacement glass for fireplaces utilizing tempered glass will be supplied at no charge during the terms of the 90-day limited Warranty with the following exceptions:
Accidental glass breakage or damage to the glass door frame finishes incurred in transit, handling, or operation either before, during or after installation. Superior Fireplace Company will assume no responsibility for glass replacement labor costs.
This Warranty only covers Superior decorative gas appliances installed in the United States or Canada.
if the decorative gas appliance covered by this Warranty is found to be defective within one year from the date of installation (see Superior’s right of investigation outlined below), Superior will, at its option, replace or repair defective components of the decorative gas appliance manufactured by Superior Fireplace Company at no charge, and will also pay for reasonable labor costs incurred in replacing of repairing such components. If repair or replacement is not commercially practical, Superior will, at its option, refund the purchase price of the Superior decorative gas appliance.
This Warranty covers only parts and labor as provided above. In no case shall Superior Fireplace Company be responsible for materials, components, or construction which are not manufactured or supplied by Superior Fireplace Company, or for the labor necessary to install, repair or remove such materials, components, or construction. All replacement or repair components will be shipped F.0.8. the nearest Superior Fireplace Company factory.
QUALIFICATIONS TO THE WARRANTY
The decorative gas appliance Warranty outlined above is further subject to the following qualifications: (1) The decorative gas appliance must be installed in accordance with Superior Fireplace Company installation instructions and local building codes. The Warranty on this Superior decorative gas appliance covers only the component parts manufactured by Superior Fireplace Company. The use of components manufactured by others with this Superior decorative gas appliance (except for a listed Type 8 venting system as prescribed in the installation instructions) could create serious safety hazards, may result in the denial of certification by recognized national safety agencies, and could be in violation of local building codes. This Warranty does not cover any damages occurring from the use of any components not manufactured or supplied by Superior Fireplace Company. (2) The Superior decorative gas appliance must be subjected to normal use. The decorative gas appliances are designed to burn either natural or propane gas only. Burning conventional fireplace fuels such as wood, coal, or any other solid fuel will cause damage to the decorative gas appliance, will produce excessive temperatures, and will result in a fire hazard.
LIMITATION ON LIABILITY
It is expressly agreed and understood that Superior Fireplace Company’s sole obligation and purchaser’s exclusive remedy under this Warranty, under any other warranty, expressed or implied, or in contract, tort, or otherwise, shail be limited to replacement, repair, or refund, as specified above. in no event shall Superior Fireplace Company be responsible for any incidental or consequential damages caused by defects in its products, whether such damage occurs or is discovered before or after replacement or repair, and whether or not such damage is caused by Superior Fireplace Company’s negligence. Some states do not allow the exclusion or limitation of incidental or consequential damages, so the above limitation or exclusion may not apply to you. The duration of any implied warranty with respect to this Superior decorative gas appliance is limited to the duration of the foregoing warranty. Some states do not allow limitations on how long an implied warranty lasts, so the above may not apply to you.
INVESTIGATION OF CLAIMS AGAINST WARRANTY
Superior Fireplace Company reserves the right to investigate any and all claims against this Warranty and to decide upon method of settlement.
SUPERIOR FIREPLACE COMPANY NOT RESPONSIBLE FOR WORK DONE WITHOUT WRITTEN CONSENT
Superior Fireplace Company shall in no event be responsible for any warranty work done without first obtaining Superior’s written consent.
DEALERS HAVE NO AUTHORITY TO ALTER THIS WARRANTY
Superior Fireplace Company’s employees and dealers have no authority to make any warranties nor to authorize any remedies in addition to or inconsistent with those stated above.
HOW TO REGISTER A CLAIM AGAINST WARRANTY
in order for any claim under this Warranty to be valid, Superior Fireplace Company must be notified of the claimed defect in writing or by telephone to Superior Fireplace Company, attention Customer
Service Department, 4325 Artesia Avenue, Fullerton, California 92633, Telephone: 714-521-7302, as soon as reasonably possible after the defect is discovered. Claims against this Warranty in writing shooed include the date of installation, and a description of the defect.
OTHER RIGHTS
This Warranty gives you specific legal rights, and you may also have other rights which vary from state to state.
Superior reserves the right to make changes at any time, without notice, in design, materials, specifications, prices and also to discontinue colors, styles and products. Consult your local distributor for fireplace code information.
Distributed by:
Printed In U.S.A
© 1991 by Superior Fireplace Company P/N 094908 REV.C 1/91
4325 Artesia Avenue Fullerton, CA 92633
Plants in Fullerton, CA,
Union City, TN



Figure 4




Figure 15






























