Baths 146 Parisian 1 Freestanding Air Tub
Instructions
Designer Collection Tubs
Parisian® 1
146 Parisian 1 Freestanding Air Tub
| Model 146 | |
| 66″ x 35.75″ x 23″ | |
| FREESTANDING 87 gal to overflow | |
| Acrylic CXLTM | DoloMatteTM |
| 210 lbs / 95 kg <soaker> 245 lbs / 111 kg | |
| Filling this tub to the maximum may require an above average size or dedicated water heater. | |

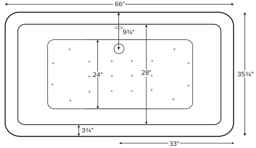
Drain Rough-In Measurements


Back of tub designed to accommodate rear drain.
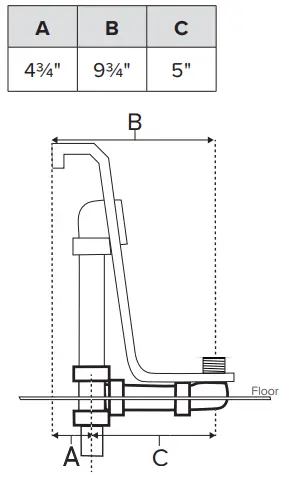
Requires use of a wall-mounted or freestanding tub filler. Shown with Air Massage Package.

IMPORTANT:
Must have access to the drain from underneath the tub for installation and servicing.
ELECTRICAL COMPONENTS & SPECIFICATIONS
| Hydrotherapy Package | Components Included | 110V GFCI |
| Air Massage | heated blower | 1-15 amp |
| Air Massage Elite | heated blower, chromatherapy | 1-15 amp |
| Electrical requirements may change with the addition of optional therapy components. See specific option details or installation information. CSA Certified C/US; B45.5/IAPMO ANSI Z124.1 and ANSI 112.19.7 | ||
See the Installation & Operation Manual for more details.
MTI’s Customer Service: Monday-Friday 8am-6pm EST 800-783-8827 or [email protected]
- Before discarding tub packaging, check for accessories that may be packaged inside.
- All product measurements are +1/2”.
- Specifications and configurations are subject to change without notice.
- Measurements herein supersede all others published prior to publication date below.
CSA # MTDS- 146
CSA # MTDS- 146DM
IMPORTANT ORDERING & INSTALLATION INFORMATION:
- Before ordering or installing, please consider future access to equipment.
- No access panel. Tub features factory-installed overflow with toe tap drain.
- Air baths require job site preparations for remote mounting the blower and required check valve. Check valve must be installed higher than the rim of the tub.
- Hydrotherapy equipment may ship loose for remote installation depending on tub model. See package content on the following page for details.
- Radiance placed on floor locations will affect placement of air jets.
- Faucet valves cannot be installed on this tub model.
- All tubs are in accordance with CSA B45.5/IAPMO Z124 standard and compliant with ASTM C 1028-07 coefficient of friction. DoloMatte meets ANSI A137.1/A326.3 coefficient of friction and AS HB198:2014 pendulum slip resistance testing.
For more information on options and accessories go to Acrylic CXL / DoloMatte Tub Options on mtibaths.com
Parisian® 1 model 146 66″ x 35.75″ x 23″
| Hydrotherapy Packages | Package Contents | Acrylic CXLTM | DoloMatteTM | ||
| Part # | MSRP | Part # | MSRP | ||
| Soaker | Soaking bath – no jets; includes a pre-leveled foam base and factory-installed overflow with toe-tap drain kit in chrome. | S146 | $11,910 | S146DM | $12,710 |
| Air Massage | 20 air jets, heated air blower, pre-leveled foam base and factory-installed overflow with toe-tap drain kit in chrome. Blower and control boxes must be remote located. | AST146 | $15,560 | AST146DM | $16,360 |
| Air Massage Elite | 30 air jets, heated air blower, Chromatherapy LED lighting, Spa Mode, pre-leveled foam base and factory-installed overflow with toe-tap drain kit in chrome. Blower and control boxes must be remote located. | AE146 | $17,460 | AE146DM | $18,260 |
RECOMMENDED SENSORY THERAPIES
| Chromatherapy (LE) $800 underwater lighting 2 LED lights included | Audiotherapy (STEREOBT) $1,390 2 transducers with bluetooth and amplifier (BTREMOTE) $600 bluetooth remote |
Options Must be ordered at time of purchase
Standard Colors White (CWH)
Textured Bottom (TXTBTM) Acrylic CXL™ only $105
DoloMatte™ exceeds ANSI A137.1/A326.3 and AS HB198 slip tests.
| (STEREOH202) $1,575 4 transducers amplifier not included | Thermaltherapy (RAD100) $1,595 Radiance® 2 heated zones included |
Accessories
Pillows from $180
Teak Bath Mat (TKMAT3018) $815
Custom sizes also available. Contact MTI for details and pricing.
Floor-Mounted High-Flow Tub Filler
Contemporary
Chrome (FILLC) $1,480
Brushed Nickel (FILLBN) $1,710
Faucet Stand SculptureStone® Standard
| Small 3-hole capacity 14¼” w x 21¾” h Matte (STAND) $725 | Large 5-hole capacity 22″ w x 21¾” h Matte (STANDL) $855 |
+$430 gloss finish upcharge (SSGLOSSSNK)
Drains & Overflow Kits Must be ordered at time of purchase
Toe Tap with Round Overflow – PVC Drain Kit
Overflow is factory-installed
Chrome (WOTTC) included
Brushed Nickel (WOTTBNU) substitute free of charge
Finish Upcharge
White (WOTTWU) $35
Polished Nickel (WOTTPNU) $60
Oil-Rubbed Bronze† (WOTTORU) $65
Special Finishes* (WOTTSFU) $790
Rev. 07 21 2022
CSA # MTDS-146
CSA # MTDS-146DM
©2022 by MTI Baths, Inc.
Modification Rights Reserved



















