mti MBISC6032D Air Bathtub Instructions
- Installation: Alcove
- Material: Acrylic
- Plumbed Weight: 115 lbs / 52 kg
- Soaker Weight: 95lbs / 43 kg
- Average Fill: 35 gal to above jet level
- Maximum Fill: 43 gal to overflow
Package Content
| Package | Package Content | Part # |
| Soaker | Soaking bath – No jets. Integral front skirt, 3-sided integral tile flange and textured bottom. | MBSISC6032D |
| Whirlpool | 6 point-massage jets, 1-bhp pump, integral front skirt, 3-sided integral tile flange and textured bottom. | MBWISC6032D |
Options Must be ordered at time of purchase.
Standard White (no charge)
Color Upgrade: Biscuit (MTISCOLOR)
Quick Ship / Priority
Soaker & Whirlpool (QSHIPMTIS)
Airbath (QSHIPMTISA)
Inline Heater
For Whirlpool (HTRMTIS) uses existing pump
For Soaker & Air Bath (MBHTISOAK) heater with recirculating pump
Accessories
Lift and Turn Drain & Overflow
Chrome (MBWOC), White (MBWOW),
Brushed Nickel (MBWOBN)
Pillows
Soft Pillow
White (MBPSW) Black (MBPSB)
Roll-Up Pilow
Light Aqua (MBPRUC) Black (MBRUB)
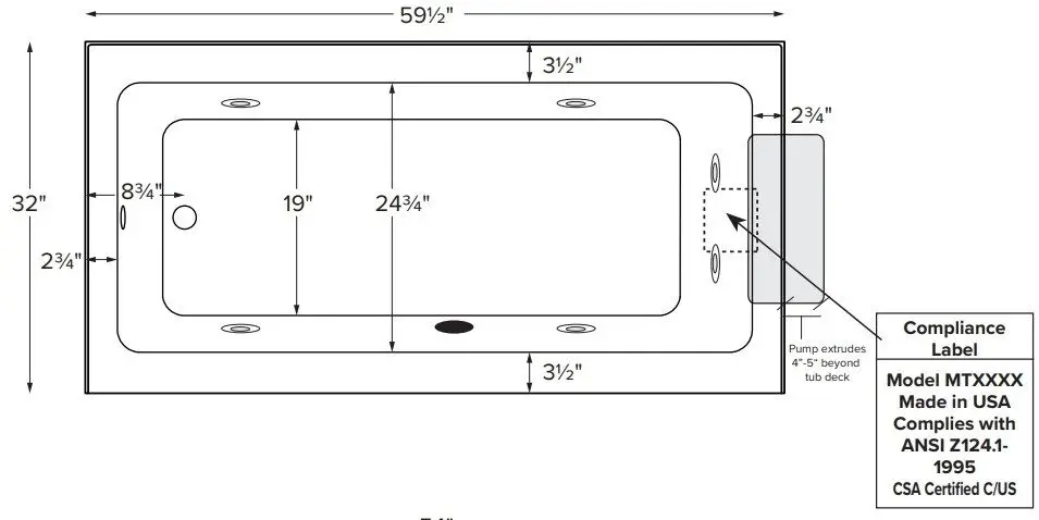
Diminsion



Important Ordering and Installation Information
- Before ordering or installing, consider access to equipment.
- Front skirt is not removable.
- Must specify left- or right-hand drain when ordering.
- Use proper bedding compound to fully level and support the tub.
- Tubs equipped with an air system or factory installed pre-leveled foam base are designed to install directly onto a flat level subfloor.
- Location of all therapy components is predetermined and cannot be changed.
- Suction and control locations may vary.
- Options listed cannot be combined with Designer Collection options.
- Before discarding tub crate, check for accessories that may be packaged inside.
- All product measurements are +1/2”.
- Specifications and configurations are subject to change without notice.
- Measurements herein supersede all others published prior to publication date below.
| Hydrotherapy Package | Components Included | GFCI / 110V |
| Soaker with Optional Inline Heater | ½-bhp pump, inline heater | 1-15 amp |
| Whirlpool with Optional Inline Heater | 1-bhp pump, inline heater | 1-20 amp |
CSA Certified C/US; ANSI Z124.1 and ANSI 112.19.7
NOTE: Filling this tub to the maximum may require an above average size or dedicated water heater.
CSA # MTIS-ISC6032
Rev. 12 10 2021
©2021 by MTI Baths, Inc. Modification Rights Reserved.




















