hansgrohe AXOR 18210000, 18010000, 18014000 MASSAUD Instruction Manual
Safety Notes
Gloves should be worn during installation to prevent crushing and cutting injuries.
The shower system may only be used for bathing, hygienic and body cleansing purposes.
The hot and cold supplies must be of equal pressures.
Installation Instructions
- The fitting must be installed, flushed and tested after the valid norms.
- If the instantaneous water heater causes problems or if you wish to increase the water flow, the EcoSmart® (flow limiter) located behind the aerator can be removed.
- Hansgrohe mixers can be used together with hydraulically and thermically controlled continuous flow heaters if the flow pressure is at least 0,15 MPa.
- This mixer is equipped with a flush stream, which enhances the natural side of the life element water.
As this flush stream does not contain any air, we recommend the use of Axor Massaud basins or very deep basins to prevent water spray
Technical Data
This mixer series-produced with EcoSmart® (flow limiter)
Operating pressure: max. 1 MPa
Recommended operating pressure: 0,1 – 0,5 MPa
Test pressure: 1,6 MPa (1 MPa = 10 bar = 147 PSI)
Hot water temperature: max. 80°C
Recommended hot water temp.: 65°C
Symbol description
Do not use silicone containing acetic acid!
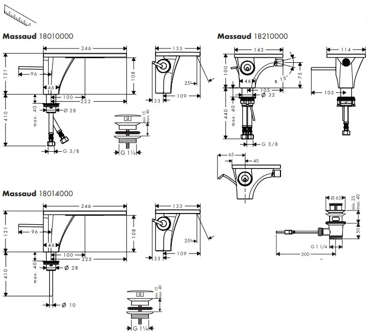
Dimensions
Flow diagram
- with EcoSmart®
- without EcoSmart®
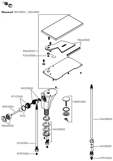
Spare parts
Special accessories
special tool (58085000) order as an extra
Installation kit order as an extra
Operation
Cleaning
and enclosed brochure
Test certificate
| P-IX | DVGW | SVGW | ACS | WRAS | ETA | KIWA | |
| 18010000 | P-IX 18334/10 | X | X | X | |||
| 18014000 | x | x | x | x | |||
| 18210000 | P-IX 18334/10 | X | X |
Assembly Instructions









The QuickClean cleaning function only needs a small manual rub over to remove the lime scale from the spray channels.

Hansgrohe · Postfach 1145 · D-77761 Schiltach · Telefon +49 (0) 78 36/51-1282 · Telefax +49 (0) 7836/511440
E-Mail: [email protected] · Internet: www.hansgrohe.com
![]()


















