AXOR MASSAUD Mixer
Instruction Manual

AXOR MASSAUD Mixer

Safety Notes
Gloves should be worn during installation to prevent crushing and cutting injuries.
The hot and cold supplies must be of equal pressures.
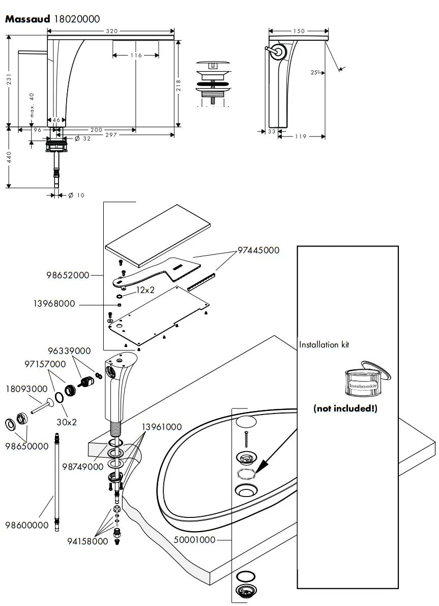
Assembly (see page 18)
Important! The fitting must be installed, flushed and tested after the valid norms.
Installation example (see page 18)
- Flush through the supply pipes.
- Place the mixer including the sealing washer in position on the basin / bidet.
- Slide the fixation piece including the washer over the threaded pins and tighten the nuts.
- Connect the connecting hose / supply pipes to the isolation valves; cold right – hot left.
Technical Data
This mixer series-produced with EcoSmart® (flow limiter).
| Rate of flow with EcoSmart: | 5 I/min 0,3MPa |
| Rate of flow without EcoSmart: | 14 I/min 0,3 MPa |
| Operating pressure: | max. 1 MPa |
| Recommended operating pressure: | 0,1 – 0,5 MPa |
| Test pressure:(1 MPa 10 bar = 147 PSI) | 1,6 MPa |
| Hot water temperature: | max. 80° C |
| Recommended hot water temp.: | 65 ° C |
Hansgrohe mixers can be used together with hydraulically and thermically controlled continuous flow heaters if the flow pressure is at least 0,15 MPa.
This mixer is equipped with a flush stream, which enhances the natural side of the life element water. As this flush stream does not contain any air, we recommend the use of Axor Massaud sinks or very deep sinks to prevent water spray.
Assembly

Operation
![]() | |
| open | close |
![]() | |
| cold | hot |

Cleaning: The Quick Clean cleaning function only needs a small manual rub over to remove the lime scale from the spray channels.
Test certificate
| P-IX | DVGW | SVGW | ACS | WRAS | NF | KIWA | |
| 18013000 | P-IX 18334/IO | X | X | X |

Hansgrohe
Hansgrohe · Postfach 1145 · D-77761 Schiltach
· Telecon +49 (0) 78 36/51-1282
· Telefax +49 (0) 7836/511440
E-Mail: [email protected]
· Internet: www.hansgrohe.com





















