HS1T Interlock Switch 4-Contact Spring Lock
Instruction Manual
HS1T Interlock Switch 4-Contact Spring Lock
Thank you for purchasing this IDEC product. Confirm that the delivered product is what you have ordered. Read this instruction sheet to make sure of correct operation.
SAFETY PRECAUTIONS
In this operation instruction sheet, safety precautions are categorized in order of importance to Warning and Caution :
WARNING
Warning notices are used to emphasize that improper operation may cause severe personal injury or death.
CAUTION
Caution notices are used where inattention might cause personal injury or damage to equipment.
Type

CAUTION
Solenoid lock type
- This safety switch is designed to lock the actuator while the solenoid is energized and to release it when deenergized.
- When the power to the solenoid is interrupted by accident, such as disconnection, the lock is released before a machine stops ompletely. Then, the worker may be exposed to hazards.
- This safety switch can be used only for limited applications which do not especially need to be locked for safety.
Specifications and Ratings
| Applicable Standards | EN ISO /15014119, IEC60947-5-1, EN60947-5-1, GS-ET-19,UL508, CSA C22.2 No.14, GB/T 14048.5 | |||||||
| Standards for Use | IEC60204-1/EN60204-1 | |||||||
| Interlocking device Type / the level of coded | Type 2 Interlocking device / low level coded actuator (EN ISO / 1S014119) | |||||||
| Applicable Directives | Low Voltage Directive, Machinery Directive | |||||||
| Operating Condition | Operating Temperature Operating Humidity Pollution Degree Altitude | -25 to +55°C (no freezing) 20 to 95%RH (no condensation) 3 (Inside 2) 2000m maximum | ||||||
| Inpulse withstand voltage <Uimp> | 2.5kV (Between ground and LED, solenoid circuit : 0.5kV) | |||||||
| Raed Insulation voltaqe(Ui) | 250V (Between ground and LED, solenoid circuit : 30V) | |||||||
| 2.5A | ||||||||
| Thermal Current (th) Contact Ratings (Reference Values) die, le)*2 | 30V | 125V | 250V | |||||
| AC | Resistive load (AC12) | – | 2.5A | 1.5A | ||||
| Inductive load (AC15) | – | 1.5A | 0.75A | |||||
| DC | Resistive load (DC12) | 2.0A | 0.4A | 0.2A | ||||
| Inductive load (DC13) | 1.0A | 0.22A | 0.1A | |||||
| Class of Protection | Class II (IEC61140) *3 | |||||||
| Operating Frequency | 900 operations/hour | |||||||
| Operating Speed | 0.05 to 1.0 m/s | |||||||
| 610d | 2,000,000 (ISO 13849-1 Annex C Table C.1) | |||||||
| Mechanical durability | 2,000,000 operations minimum (GS-ET-19) The Rear Unlock Button: 3000 operations minimum (Type HS1T-• L) | |||||||
| Electrical Durability | 100,000 operations min. (AC-15 250V/0.75A) 2,000,000 operations min. (AC/DC 24V 100mA) (900 operations / hour) | |||||||
| Shock Resistance | Operating Extremes: 100m/s2, Damage Limits: 1000m/s2 | |||||||
| Vibration Resistance | Operating Extremes:10 to 55 Hz, half amplitude 0.35mm Damage Limits: 30 Hz, half amplitude 1.5mm | |||||||
| Actuator Tensile Strength when Locked | Fzh=5,000N minimum F1max=6000N minimum (GS-ET-19) *4, *5 | |||||||
| Direct Opening Travel | 12 mm minimum | |||||||
| Direct Opening Force | 120N minimum | |||||||
| Contact Resistance | 50 ma maximum (initial value) | |||||||
| Degree of Protection | IP67 (IEC60529) , Type 4X Indoor Use Only | |||||||
| Conditional short circuit current | 50A(250V) | |||||||
| Short-circuit Protective Device | Use 250V / 10A fast acting type fuse *6 | |||||||
| Solenoid | Rated Operating Voltage | DC24V 100% duty cycle | ||||||
| Rated Current | 200 mA (initial value) | |||||||
| Turn ON Voltage | Rated voltage x 85% maximum (at 20°C) | |||||||
| Turn OFF Voltage | Rated voltage x 10% minimum (at 20°C) | |||||||
| Rated Power Consumption | Approx. 5W | |||||||
| Indicator | Rated Operating Voltage | DC24V 100% duty cycle | ||||||
| Rated Current | 10 mA | |||||||
| Light Source | LED | |||||||
| Illumination Color | Green | |||||||
| Weight | Approx. 450g | |||||||
*2 Ratings approved by safety agencies
| (1)TOV rating | AC-15 250V/0.75A DC-13 30V/1.0A |
| (2)UL , c-UL rating | 0.75A, 250V ac, Pilot Duty 1A, 30V dc, Pilot Duty The M20 threaded opening must be filled by a Listed or Recognized Component Liquid-Tight Flexible Cord Fitting in order to maintain the Tye 4X Indoor use only rating. |
*3 Basic insulation of 2.5kV impuise withstand circuits and between contact circuit SELV(safety extra low voltage) or circuits (such as 230V AC circuits) at the same time, the SELV or PELV arequirements are met any more.
*4 The actuator locking strength is rated at 5000N of static load. Do not apply a load higher than the rated value. When a higher load is expected to work on the actuator, provide an additional system consisting of another safety switch without lock (such as the HS5D safety switch) or a sensor to detect door opening and stop the machine.
*5 Fl max is maximum force. The actuator’s guard-locking force Fzh is calculated in accodance with GS-ET-19:
*6 Make sure that a fast acting fuse for short-circuit protection trips before overheating of the wires.
Mounting Examples
- Install the interlock switch on the immovable machine or guard, and install the actuator on the movable door. Do not install both interlock switch and actuator on the movable door, otherwise the angle of insertion of the actuator to the safety switch may become inappropriate, and failure will occur.
| (Examples of Mounting on Sliding Doors) | (Examples of Mounting on Hinged Doors) |
![]() | |
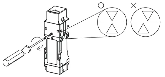
The HS1T Head
- Changing the Mounting Directions of the HS1T Head The head of the HS1T can be changed in four directions by pulling up the rotation stopper screw of the HS1T head with a minus driver.
The head rotates in the range of movement as in the diagram below, based on the mounting direction at the time of shipment.

How to Change the Mounting Direction

- Rotate the minus driver in the direction of the arrow and pull up the rotation stopper screw.
- Once you’ve pulled up the rotation stopper screw to its stopping point, rotate the head to your desired direction.

- When the head has been rotated to your desired mounting direction, align the a, marks of the head and case, and then tighten the rotation stopper screw.
WARNING
Mounting Directions of the HS1T Head
- There is a range of movement to the head. Do not forcibly rotate the head over its range of movement. There is a risk of damage.
- There is a risk of damage if the rotation stopper screw is forcibly tightened without aligning the A marks of the head and case.
- Apply loctite or the like to on the rotation stopper screw to prevent loosening.
- When replacing the HS1T head, make sure that no foreign object enters into the safety switch.
- Tighten the rotation stopper screw of the head tightly, otherwise the safety switch may malfunction.
- Don’t loosen the rotation stopper screw of the head except when the mounting directions of the head is changed.
Installing the Rear Unlock Button and Indicator (Type HS1T-❑L)
- Insert the rear unlock indicator (supplied) in the indicator guide hole on either the left or right side of the safety switch and attach the ring part to the rod on the rear side. After installing the safety switch on the panel, put the rear unlock button (supplied) on the rod, and fasten using the mounting screw (supplied).
When installing on the aluminum frame with a thickness of 6mm or more, use the rear unlock button for the frame kit (HS9Z-FL5❑) sold separately.

Minimum Radius of Hinged Door
- When using the safety switch for a hinged door, the minimum radius of the applicable door is shown in the following figures.
| When the center of the hinged door is on the extension line of the actuator mounting surface. | When the center of the hinged door is on the extension line of the contact surface of actuator and safety switch. |
![]() | |
| Minimum Radius | ||||
| R1 | R2 | R3 | R4 | |
| HS9Z-Al2T | 510 mm | 840 mm | 270 mm | 450 mm |
CAUTION
- The values shown above are based on the condition that the actuator enters and exits the actuator entry slot smoothly when the door is closed or opened. Since there may be deviation or dislocation of the hinged door, make sure of correct operation in the actual application before installation.
Actuator Mounting Reference Position
As shown below, the mounting reference position of the actuator inserted into the safety switch is:
(After mounting the actuator, remove the actuator stop from the safety switch.)

Actuator Mounting Tolerance
- Mounting tolerance of the actuator is 0.5 mm in the four lateral directions.
- Make sure the actuator can be inserted into the entry slot without any issue.
- When closing the door, the actuator is inserted and locked within a certain distance from the reference position. After the actuator has been locked, the contact operation is not affected by the actuator movement in the locked state.

| (Actuator deviation) + (Door movement) | |
| HS9Z-A11T | 5 3.8mm |
| HS9Z-Al2T | 5 3.8mm |
For Type HS9Z-A11T/Al2T actuator
- When there is a displacement of safety switch and actuateor, the actuator may hit the entry slot of safety switch hardly, thus damaging the entry slot and acutuator. The rubber cushions on the HS9Z actuator prevent the actuator from damaging the entry slot by absorbing the shock with movement flexibility. Do not, however, exert excessive shocks, otherwise the failure of safety switch may be caused.
- The rubber cushions may deteriorate depending on the operating enviroment and conditions. Immediately replace the deformed or cracked rubber cushions with new ones.
Recommended Screw Tightening Torque
| Name or Use | Screw Tightening Torque |
| For mounting the safety switch (M5 screw) *7 For mounting the cover (M3screw) For Rotation Stopper Screw of the Head (M4screw) For mounting the rear unlock button (M3 sems screw) | 3.2 to 3.8 N.m 0.5 to 0.7 N.m 0.1 to 0.3 N.m 0.5 to 0.7 N.m |
| For mounting the actuator (HS9Z-A11T/Al2T : two M5 screws) *8 | 2.7 to 3.3 N.m |
CAUTION
*7 When the torque is not enough to recommended screw tightening torque, make sure that the screw do not become loose by using adhesive sealants etc. to keep right operation and mounting positioning.
*8: When rubber cushions (and spacers) are not used, use M6 screws and tighten to a torque of 4.5 to 5.5 N.m.

Installing the slot plug
- When not in use, close up the safety switch actuator entry slots with slot plugs to prevent dust from entering.
- Actuator entry slots on the front come closed up with slot plugs at time of shipment. When replacing, please use the tool as shown.
Precautions for Operation
For Mounting
- Do not apply an excessive shock to the safety switch when opening or closing the door. A shock to the safety switch exceeding 1,000 m/s’ may cause failure.
- Provide a door guide, and ensure that force is applied on the safety switch only in the actuator insertion direction.
- Do not pull the actuator while it is locked. Also, regardless of door types, do not use the safety switch as a door lock. Install a separate lock as shown in section 3.
- Ensure that the safety switch is installed on a flat mounting surface, and provide sufficient strength to the mounting surface so that it will not be distorted during operation. Make sure that no foreign objects are caught between the safety switch and mounting surface. Uneven surface, distorted surface, or foreign objects may result in the malfunction of safety switch.
- Entry of foreign objects in the actuator entry slot may affect the mechanism of the switch and cause a breakdown. If the operating atmosphere is contaminated, use a protective cover to prevent the entry of foreign objects into the switch through the actuator entry slots.
Make sure to install the product in a place where it cannot be damaged. Make sure to conduct a proper risk assessment evaluation before using the product, and use a shield or a cover to protect the product if need be.- While the solenoid is energized, the switch temperature rises approximately 40°C above the ambient temperature (to approximately 95°C while the ambient tempera-ture is 55°C). Keep hands off to prevent burns. If cables come into contact with the switch, use heat-resistant cables.
- Solenoid has polarity. Be sure to wire correctly. Do not apply voltage that exceed the rated voltage, otherwise the solenoid will be burnt out.
- Do not fasten and loosen the conduit at the bottom of the safety switch.
- Use the dedicated actuators only. Other actuators will cause damage to the switch.
- Be careful not to injure yourself with the screwdriver tip when wiring the terminals.
- Be careful not to damage the square-shaped screwdriver port when inserting the driver into it in order to wire the terminals. Inserting the screwdriver with too much strength may damage the product.
- Before using the following accessories, be sure to refer to the instruction manual for the respective accessory and follow the instructions in the manual to ensure correct use. HS9Z-FL5
WARNING
- Turn off the power to the safety switch before starting installation, removal, wiring, maintenance, and inspection on the safety switch. Failure to turn power off may cause electrical shocks or fire hazard
- Do not disassemble or modify the switch. Also do not attempt to disable the interlock switch function, otherwise a breakdown or an accident will result.
CAUTION
- HS1T Series Safety Switches are Type 2 low-level coded interlocking devices (EN ISO / IS014119). The following system installation & mounting instructions are EN ISO / IS014119 requirements to prevent function failure from the interlock switch.
1. Using permanent fixing methods (e.g. welding, rivets, special screws…etc) to prevent dismantling or de-positioning of the interlock device. However, perma-nent fixing methods are not an adequate solution if you expect the interlock device to fail during the machinery lifetime, or if you need to replace the prod-uct in quick manner. In these situations, other measures (see 2.) should be put in place to reduce the risks of function failure.
2. At least one of the following measures should be applied to prevent function failure. (1) Mounting the interlock device in a place out of reach from workers (2) Using shielding protection to prevent physical obstruction of the device (3) Mounting the interlock device in a hidden position (4) Integrate status monitoring & cycling testing of the device to the control system to prevent product failure. - Regardless of door types, do not use the safety switch as a door stop. Install a mechanical door stop to the end of the door to protect the safety switch against excessive force.
- Mount the actuator so that it will not hit the operator when the door is open, other-wise injury may be caused.
- Pay attention to the management of spare actuator. Safety function of door inter-lock switch will be lost in case the spare actuator is inserted into the interlock switch. Ensure that the actuator is firmly fastened to the door (welding, rivet, special screw) in the appropriate location, so that the actuator cannot be removed easily.
- Do not cut or remodel the actuator, otherwise failure will occur.
- If multiple safety components are wired in series, the Performance Level to IS013849-1 will be reduced due to the restricted error detection under certain circumstance.
- The insulation of the cable has to withstand environmental influences.
- The entire concept of the control system, in which the safety component is integrated, must be validated to IS013849-2.
For Manual Unlocking
- To change the normal position to the manual unlocking position as shown above, turn the key fully (90 degrees) using the special key included with the switch.
- Using the switch with the key being not fully turned(less than 90 degrees) may cause damage to the switch or errors.
- When manually unlocked, the switch will keep the main and lock monitor circuit disconnected and the door unlocked.

(Type HS1T-❑4)
The HS1T allows manual unlocking of the actuator to precheck proper door opera-tion before wiring or turning power on, as well as for emergency use such as a power failure.
(Type HS1T-❑7Y)
If the actuator is not unlocked althoug the solenoid is deenergized, the actuator can be unlocked manually.
CAUTION
- Before manually unlocking the safety switch, make sure the machine has come to a complete stop. Manual unlocking during operation may unlock the switch before the machine stops, and the function of safety switch with solenoid is lost.
- While the solenoid is energized, do not unlock the actuator manually (solenoid lock type).
- Do not apply excessive force (0.45 N.m or more) to the manual unlock key. Otherwise the manual unlock switch will be damaged. Do not attach the key to the switch intentionally (the key is designed to fall off when the operators hand is off the key).
- Do not leave the manual unlock key attached to the switch during operation. This is dangerous because the switch can always be unlocked while the machine is in operation.
For the Rear Unlock Button and Indicator (Type HS1T-❑L)
- The rear unlock button is used for an emergency escape when the worker is confined in the safety hedge (the dangerous area). (The rear unlock button is according to EN ISO /15014119, GS-ET-19)
- The lock is released when the rear unlock button is pressed, and the door can be opened
- To return to the locked status, pull back the button. While the rear unlock button is depressed, the main circuit remains open and the door is unlocked.
- Each time the rear unlock button is pressed, the indicator is displayed on the side of the safety switch. Enables checking of the unlock status from outside the safety hedge.
- Use the rear unlock indicator by attaching it to the display area on either side of the safety switch.

CAUTION
- Install the HS1T to ensure that a worker can operate the rear unlock button from inside the safety hedge (the dangerous area). It is dangerous to install the HS5L in the position where the rear unlock button can be operated from outside the the safety hedge (the dangerous area), because it is possible to unlock while the machine is operating.
- Use hand to press the button, and do not use a tool. Do not apply excessive force to the rear unlock button.
Contact Operation
Contact Configuration and Operation

- Contact operation is based on the condition that the actuator is inserted into the center of the safety switch slot.
- Contact operation shows the HS9Z-A11T/Al2T actuator.
- Use main circuit or monitor circuit with for the input to safety circuit.
- Indicator turns on when solenoid is energized.
CAUTION
*9 This locking monitoring marking has been newly described in section 9.2.1 of EN ISO / IS014119. It indicates that any devices with this marking meet the following EN ISO / ISO 14119 requirements:
- General (- General requirements for guard locking devices) (Section 5.7.1) *
- Locking monitoring (- Locking monitoring for guard locking devices) (Section 5.7.2.2)
When a lock monitor circuit (contact) has the locking monitoring marking, it means that one circuit (contact) can monitor the position and the locking function of the protective door. (The locking monitoring circuit (contact) turns ON only when the protective door is closed and locked.)
*note Both types of HS5L safety switches – spring lock type switches and solenoid lock type switches – have obtained the locking monitoring certification marking. Based on risk assessment results, solenoid lock type switches can be used only for limited applications which do not especially need to be locked for safety.
*10 Type No. in [ ] are not supplied as standard. See 1. Type for standard.
*11 These are the image of locking position with actuator inserted.
Operation Cycle
Spring Lock Type (HS1T-❑4)
| Door States | Closed | Closed | Open | Closed |
| Solenoid Power A1-A2 | OFF | ON | ON/OFF | OFF |
| Manual Unlock Key | Turn the key to jock position | Turn the key to lock position | Turn the key to Jock riosition | Turn the key to unlock position |
| Rear Unlock Button | Returned status | Returned status | Returned status | Whening operating Button |
| Main Circuit 11-42 21-52 | Closed | Open | Open | Open |
| Monitor Circuit 11-12 21-22 31-32 | Closed | Closed | Open | Closed |
| Monitor Circuit 13-14 23-24 33-34 | Open | Open | Closed | Open |
| Monitor Circuit 41-42 51-52 | Closed | Open | Open | Open |
| Monitor Circuit 53-54 63-64 | Open | Closed | Closed | Closed |
| Door is locked. The machine can be operated. | Door is unlocked. The machine can not be operated. | The machine can not be operated. | Door is unlocked. The machine can not be operated. |
Solenoid Lock Type (HS1T-D7Y)
| Door States | Closed | Closed | Open | Closed |
| Solenoid Power Al -A2 | ON | OFF | OFF/ON *13 | OFF *12 *13 |
| Manual Unlock Key | Turn the key to lock piosition | Turn the key to lock position | Turn the key to jock position | Turn the key to unlock position |
| Rear Unlock Button | Returned status | Returned status | Returned status | When i ng operating Button |
| Main Circuit 11-42 21-52 | Closed | Open | Open | Open |
| Monitor Circuit 1 21-12 21-22 31-32 | Closed | Closed | Op en | Closed |
| Monitor Circuit 13-14 23-24 33-34 | Open | Open | Closed | Op en |
| Monitor Circuit 41-42 51-52 | Closed | Open | Open | Open |
| Monitor Circuit 53-54 63-64 | Open | Closed | Closed | Closed |
| Door is locked. The machine can be operated. | Door is unlocked. The machine can not be operated. | The machine can not be operated. | Door is unlocked. The machine can not be operated. |
CAUTION
*12 Do not attempt manual unlocking when the solenoid is energized *13 Do not energize the solenoid for a long time while the door is open or when the door is unlocked manually.
Wiring
Terminal wiring method
- Terminal NO.

Note :
- The following type circuits are shipped with jumpers connecting the indicated terminals.
A,B,C,D,F,G,J type circuits: Jumper connecting 12-41
DD type circuit: Jumpers connecting 12-41 and 22-51 - When the NC contacts (11-12)/(21-22) of the door monitor circuit and NC contacts (41-42)1(51-52) of the lock monitor circuit are connected in series as inputs to the safety circuit, connect 12-41 or 22-51 before use.
- Recommended Wire Core Size : 0.3 to 1.5 mm2 (AWG22 to 16)
| Type | Routing direction | Wire Length: L1 |
| HS1T-❑ HS1T-❑ | Straight orientation | 30 to 35mm |
| HS1T-❑ HS1T-❑ | Straight orientation | 50 to 55mm |
| Horizontal orientation | 40 to 45mm |
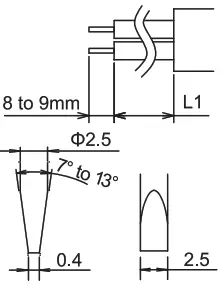
- For wiring, use the following applicable screwdriver. (Tip shape of the driver is according to the standard of DIN5264)

- In applications using ferrules for stranded wires, choose the ferrule listed in the table.
| Applicable wire (stranded) | AWG | Part No. | Manufacturer |
| mm2 | |||
| 0.34 | 22 | A10.34-6TQ | Phoenix Contact |
| 0.5 | 20 | A10.5-6WH | |
| 0.75 | 18 | A10.75-6GY | |
| 1 | 18 | A11-6RD | |
| 0.5 | 20 | TE0.5-8 | Nichifu |
| 0.75 | 18 | TE0.75-8 | |
| 1 | 18 | TE1.0-8 |
- Wire insertion positions, screwdriver insertion positions, and the directions of screwdriver tip are shown below.

Wiring Instructions
- Insert the applicable screwdriver into the square-shaped port as shown,until the screwdriver tip touches the bottom of the spring.
- Push in the screwdriver until it touches the bottom of the port. The wire port is now open, and the screwdriver is held in place. The screwdriver will not come off even if you release your hand.
While the screwdriver is retained in the port, insert the wire or ferrule into the round-shaped wire port. Each wire port can accommodate one wire or ferrule.- Pull out the screwdriver. The connection is now complete.

CAUTION
When using wire with insulation diameter of 02.0mm or less, do not insert the wire too deep where the insulation inserts into the spring clamp opening. Otherwise conductive failure will be caused. Make sure that the wire insulation is stripped 8 to 9 mm and the wire is inserted to the bottom. Please only connect one wire per terminal port (according to the general requirements section (13.1.1) of I EC60204).
| The wire insulation sheath is in contact with the clamps | The wire is inserted deep enough between the clamps |
![]() | |
How to open conduit port (cable side-routed type)
- Before use, knock in the conduit port where the connector is to be connected, using a tool such as screwdriver as shown in the figures.
- Before opening the conduit port, remove the terminal cover from the HS5L Safety Switch main unit, and remove the locking ring for the cable gland installed in the terminal cover.
- Be sure to remove any crack or burrs on the conduit port, as it will impair waterproof performance.

Applicable Connectors
Use a connector with a degree of protection IP67. Applicable connector dimensions : See the figure on the right.
- When using flexible conduit and metal connector Applicable Flexible Conduit Example: Type VF-03 (made by Nihon Flex) (M20) Applicable Metal Connector Example: Type RLC-103EC20 (made by Nihon Flex)
- When using plastic connector, metal connector and multi-core cable (M20) Applicable Plastic Connector Example: Type ST-M20x1.5 (made by LAPP) Applicable Metal Connector Example: Type ALS-❑❑EC20 (made by Nihon Flex)
Note : Confirm the outside diameter of the multi-core cable, the connector type depends on the outside diameter of multi-core cable.
Note :When using ST-M20x1.5, use with gasket GP-M (Type No: GPM20, made by LAPP).
Note : If you use HS5L as Type 4X Indoor Use Only, please use M20 connectors that are certified the following. Plastic connector: Type 4,4X, 6 or 6P Metal connector: Type 4X or 6P
CAUTION
- Make sure not to lose any screw when removing the terminal cover from the switch.
- Please make sure the cable is insterted deep enough into the terminal cover so that the waterproof gasket can tighten the cable sheath completely and ensure its waterproof functions.
- Make sure you always tighten connecter A before connecter B, other-wise the wires which connect the termi-nals might get twisted or might break, and this might also damage the termi-nal ports.
- When tightening the connecters, only use a tightening torque that is approved by the connecters’ manufacturer to ensure waterproof properties of the product.
- Do not pull or twist the cable with excessive force, otherwise you might damage the wires inside of it.
| The waterproof gasket is completely tightening the cable | The waterproof gasket is not properly tightening the cable |
![]() | |
Connecters’ mounting method
- Loosen connecter A and connecter B, and insert the cable into these pieces in the following order : connecter B waterproof gasket connecter A. Do not tighten the connecters yet.
- Remove the terminal cover from the switch and insert the cable into the cover.
- Wire the terminals.
- Tighten connecter A into the terminal cover. Fix the terminal cover back into its original position. Tighten connector B.

Note : To unwire the terminals, disassemble the product in the following order: turn off the power —> loosen connecter B —> remove the terminal cover —› remove the waterproof gasket from connecter A* —> loosen connecter A
* Please remove the water-proof gasket carefully with tools such as tweezers. Be careful when removing the gasket as damages may affect its waterproof properties. Also, loosening connecter A without removing the gasket first may damage the cable and provoke connection issues. Please make sure you re-insert the waterproof gasket properly into connector A when re-assembling the product.
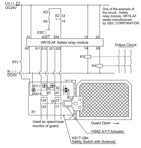
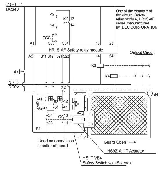
Example of wiring Diagram realizing Safety Category
Example of a circuit diagram for Safety Category 3 (attainable PL = d)
(Condition 1: To apply the fault exclusion of mechanical structural parts including the actuator —> Make sure to use the product within the product specification range described in this manual and the version of the manual provided with the product.)
(Condition 2: Documentation of the reason for the machine/equipment manufacturer to have applied the fault exclusion based on IS013849-1, IS013849-2 or IEC62061.)

| S1: | HS1T-VB4 Safety Switch with Solenoid |
| S2: | Starting Switch (HW Series Momentary) |
| S3: | Unlocking Enabling Switch |
| S4: | Safety limit Switch |
| ESC: | Outside start condition |
| K3, 4: | Safety Contactor |
| F1: | Outside fuse of safety relay module at power supply line |
Example of a circuit diagram for Safety Category 4 (attainable PL = e)

Note: Use the monitoring device(Safety relay module) provided the capavility to detect a cross short circuit. The insulation of the cable has to withstand environmental influences. If a control device other than the one shown in the draft is used, the used control device has to be equipped with a cross short circuit monitor.
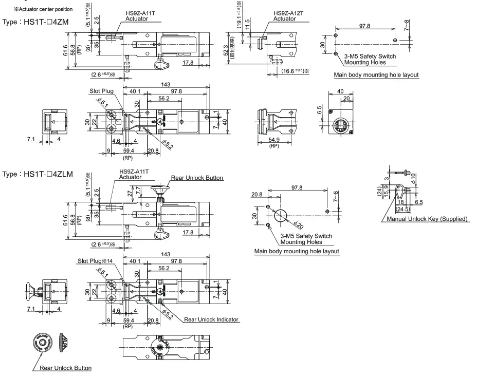
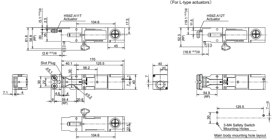
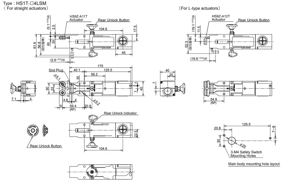
Dimensions (mm)
Safety Switch dimensions

*14 When not in use, close up the safety switch actuator entry slots with slot plugs to prevent dust from entering. (Actuator entry slots on the front come closed up with slot plugs at time of shipment.)
Type : HS1T-❑4ZSM
(For straight actuators )
Actuator dimensions
(To be sold by separately)
Precaution for Disposal
Dispose of the HS5L safety switch as an industrial waste.
IDEC CORPORATION http://www.idec.com
Manufacturer: IDEC CORP.
2-6-64 Nishimiyahara Yodogawa-ku, Osaka 532-0004, Japan
EU Authorized Representative:IDEC Elektrotechnik GmbH
Heselstuecken 8, D-22453 Hamburg, Germany
DECLARATION OF CONFORMITY
We, IDEC CORPORATION 2-6-64, Nishimiyahara Yodogawa-ku,Osaka 532-0004, Japan declare under our sole responsibility that the product:
Description: Safety Switch
Model No: HS1T
to which this declaration relates is in conformity with the EC Directive on the following standard(s) or other normative document(s). In case of alteration of the product, not agreed upon by us, this declaration will lose its validity.
Applicable EC Directive : Low Voltage Directive (2014/35/EU) Machinery Directive (2006/42/EC)
Applicable Standard(s) : EN 60947-5-1,GS-ET-19

![]()



Make sure to install the product in a place where it cannot be damaged. Make sure to conduct a proper risk assessment evaluation before using the product, and use a shield or a cover to protect the product if need be.
While the screwdriver is retained in the port, insert the wire or ferrule into the round-shaped wire port. Each wire port can accommodate one wire or ferrule.





















