AMERISTAR A4AH6 Variable Speed Convertible Air Handler

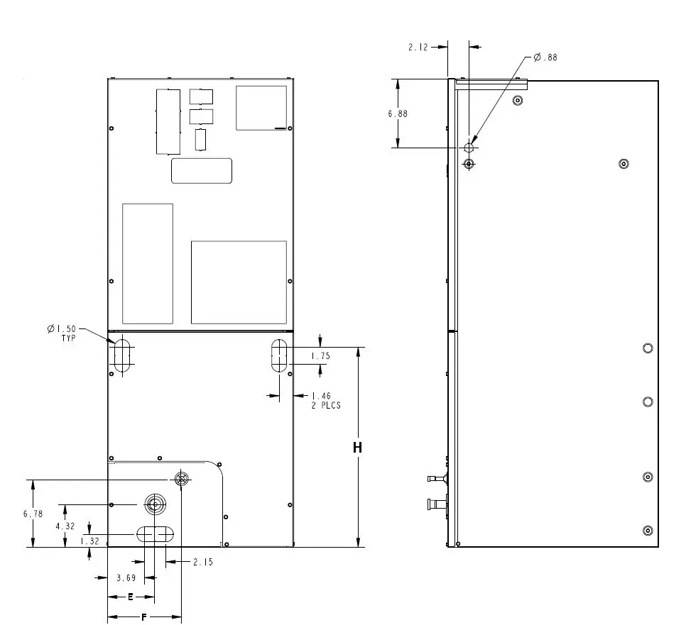
Outline Drawing



NOTE: THIS UNIT IS APPROVED FOR INSTALLATION CLEARANCES TO COMBUSTIBLE MATERIAL AS STATED ON THE UNIT RATING NAMEPLATE
ALL DIMENSIONS ARE REFERENCE DIMENSIONS

| PRODUCT DIMENSIONS | |||||||||
| Air Handler Model | A | B | C | D | E | F | H | Flow Control | Gas Line Braze |
| A4AH6V36A1C | 51.27 | 23.50 | 21.50 | 21.75 | 7.01 | 9.66 | 24.59 | TXV | 7/8 |
| All dimensions are in inches | |||||||||
Product Specifications
| MODEL | A4AH6V36A1C30B |
| RATED VOLTS/PH/HZ | 208-230/1/60 |
| RATINGS(a) | See O.D. Specifications |
| INDOOR COIL — Type | Plate Fin |
| Rows — F.P.I. | 4 – 14 |
| Face Area (sq. ft.) | 4.59 |
| Tube Size (in.) | 3/8 |
| Refrigerant Control | TXV |
| Drain Conn. Size (in.)(b) | 3/4 NPT |
| DUCT CONNECTIONS | See Outline Drawing |
| INDOOR FAN — Type | Centrifugal |
| Diameter-Width (In.) | 11 X 8 |
| No. Used | 1 |
| Drive – No. Speeds | Direct – 16 |
| CFM vs. in. w.g. | See Fan Performance Table |
| No. Motors — H.P. | 1 – 1/2 |
| Motor Speed R.P.M. | Variable |
| Volts/Ph/Hz | 208-230/1/60 |
| F.L. Amps | 4.3 |
| FILTER | |
| Filter Furnished? (c) | No |
| REFRIGERANT | R-410A |
| Ref. Line Connections | Brazed |
| Coupling or Conn. Size — in. Gas | 7/8 |
| Coupling or Conn. Size — in. Liq. | 3/8 |
| DIMENSIONS | H x W x D |
| Crated (In.) | 52–3/4 x 27–1/2 x 25–1/2 |
| Uncrated | 51-3/8 x 23-1/2 x 21-1/8 |
| WEIGHT | |
| Shipping (Lbs.) / Net (Lbs.) | 155/144 |
- These Air Handlers are A.H.R.I certified with various Split System Air Conditioners and Heat Pumps (AHRI STANDARD 210/240). Refer to the Split System Outdoor Unit Product Data Guides for performance data.
- 3/4” Male Plastic Pipe (Ref: ASTM 1785–76)
- Remote filter required.
Minimum Airflow CFM
| A4AH6V36A1C30B | ||
| Heater | Minimum Heater Airflow CFM | |
| With Heat Pump | Without Heat Pump | |
| BAYHTR1504BRK, BAYHTR1504LUG BAYHTR1505BRK, BAYHTR1505LUG | 875 | 675 |
| BAYHTR1508BRK, BAYHTR1508LUG | 950 | 820 |
| BAYHTR1510BRK, BAYHTR1510LUG | 1000 | 820 |
| BAYHTR1517BRK | 1000 | 820 |
| BAYHTR3510LUG | 875 | 820 |
| BAYHTR3517LUG | 1000 | 950 |
| BAYHTR1523BRK | 1300 | 1140 |
| A4AH6V36A1C30B Airflow Performance with Auxiliary Heat | ||||
| Airflow Settings | Dip Switch Settings | Nominal Airflow |
See following tables for heater application: – Pressure Drop for Electrical Heaters – Minimum Heating Airflow Matrix (on unit nameplates) | |
| Switch 7 | Switch 8 | |||
| Low | ON | ON | 696 | |
| Med-Lo | OFF | ON | 825 | |
| Med-Hi | ON | OFF | 1150 | |
| High | OFF | OFF | 1298 | |
Heater Pressure Drop Table
| Airflow CFM | Number of Racks | Heater Racks | |||||
| 1 | 2 | 3 | 4 | Heater Model | No. of Racks | ||
| Air Pressure Drop — Inches W.G. | BAYHTR1504 | 1 | |||||
| 1800 | 0.02 | 0.04 | 0.06 | 0.14 | BAYHTR1505 | 1 | |
| 1700 | 0.02 | 0.04 | 0.06 | 0.14 | BAYHTR1508 | 2 | |
| 1600 | 0.02 | 0.04 | 0.06 | 0.13 | BAYHTR1510 | 2 | |
| 1500 | 0.02 | 0.04 | 0.06 | 0.12 | BAYHTR1517 | 3 | |
| 1400 | 0.02 | 0.04 | 0.06 | 0.12 | BAYHTR3510 | 3 | |
| 1300 | 0.02 | 0.04 | 0.05 | 0.11 | BAYHTR3517 | 3 | |
| 1200 | 0.01 | 0.04 | 0.05 | 0.10 | BAYHTR3515 | 3 | |
| 1100 | 0.01 | 0.03 | 0.05 | 0.09 | BAYHTR1523 | 4 | |
| 1000 | 0.01 | 0.03 | 0.04 | 0.09 | BAYHTR1525 | 4 | |
| 900 | 0.01 | 0.03 | 0.04 | 0.08 | |||
| 800 | 0.01 | 0.03 | |||||
| 700 | 0.01 | 0.02 | |||||
| 600 | 0.01 | 0.02 | |||||
Subcooling Adjustment
| System Matched with: | Indoor Unit Model No. | Outdoor Model No. | Subcooling |
| 16 SEER HP — 2 ton | A4AH6V36A1C30 | 4TWR6024H1 4TWX6024H1 4A6H6024H1 A4HP6024A1 | 13 Degrees |
| 15 SEER HP — 2 ton | A4AH6V24A1B30 A4AH6V30A1B30 | 4TWR5024G1 4A6H5024G1 A4HP6024A1 | 14 Degrees |
| 15 SEER HP — 3 ton | A4AH6V30A1B30 A4AH6V36A1C30 A4AH6V42A1C30 | 4TWR5036G1 4A6H5036G1 A4HP6036A1 | 14 Degrees |
| All other matches must be charged per the nameplate charging instructions | |||
Performance and Electrical Data
- See Product Data or Air Handler nameplate for approved combinations of Air Handlers and Heaters.
- Heater model numbers may have additional suffix digits.
Table 1. Air Flow Performance
| A4AH6V36A1C30B COOLING AIRFLOW PERFORMANCE, WET COIL, NO FILTER, NO HEATER | ||||||||||||
| OUTDOOR UNIT SIZE (TONS) | SPEED SETTING | AIRFLOW SETTING | DIP SWITCH SETTING | AIRFLOW POWER | EXTERNAL STATIC PRESSURE | |||||||
| SW1 | SW2 | SW3 | SW4 | 0.1 | 0.3 | 0.5 | 0.7 | 0.9 | ||||
|
2.5 | LOW | 300 CFM/ ton | ON | ON | OFF | ON | CFM Watts | 761 63 | 755 98 | 719 131 | 654 163 | 560 193 |
| NORMAL | 341 CFM/ ton | ON | ON | OFF | OFF | CFM Watts | 862 82 | 861 120 | 834 158 | 781 196 | 700 235 | |
| HIGH | 384 CFM/ ton | ON | ON | ON | OFF | CFM Watts | 962 106 | 963 147 | 948 190 | 915 234 | 863 279 | |
|
3 | LOW | 319 CFM/ ton | OFF | ON | OFF | ON | CFM Watts | 961 106 | 962 147 | 947 189 | 914 233 | 862 279 |
| NORMAL | 363 CFM/ ton | OFF | ON | OFF | OFF | CFM Watts | 1092 146 | 1093 192 | 1082 240 | 1060 288 | 1026 337 | |
| HIGH | 408 CFM/ ton | OFF | ON | ON | OFF | CFM Watts | 1231 196 | 1231 249 | 1221 301 | 1203 353 | 1175 404 | |
|
3.5 | LOW | 315 CFM/ ton | ON | OFF | OFF | ON | CFM Watts | 1104 150 | 1105 197 | 1094 245 | 1072 293 | 1039 343 |
| NORMAL | 357 CFM/ ton | ON | OFF | OFF | OFF | CFM Watts | 1258 209 | 1258 263 | 1248 317 | 1229 369 | 1201 421 | |
| HIGH | 402 CFM/ ton | ON | OFF | ON | OFF | CFM Watts | 1418 286 | 1415 347 | 1401 406 | 1379 462 | 1348 516 | |
|
4 | LOW | 308 CFM/ ton | OFF | OFF | OFF | ON | CFM Watts | 1238 199 | 1238 253 | 1229 306 | 1210 357 | 1182 408 |
| NORMAL (a) | 350 CFM/ ton | OFF | OFF | OFF | OFF | CFM Watts | 1412 282 | 1410 344 | 1398 404 | 1378 462 | 1349 517 | |
| HIGH | 394 CFM/ ton | OFF | OFF | ON | OFF | CFM Watts | 1570 393 | 1528 436 | 1473 466 | 1406 483 | 1326 488 | |
Table 2. Air Flow Performance
| A4AH6V36A1C30B HEATING AIRFLOW PERFORMANCE, NO FILTER, NO HEATER | ||||||||||||
| OUTDOOR UNIT SIZE (TONS) | SPEED SETTING | AIRFLOW SETTING | DIP SWITCH SETTING | AIRFLOW POWER | EXTERNAL STATIC PRESSURE | |||||||
| SW1 | SW2 | SW3 | SW4 | 0.1 | 0.3 | 0.5 | 0.7 | 0.9 | ||||
|
2.5 | LOW | 341 CFM/ ton | ON | ON | OFF | ON | CFM Watts | 860 77 | 863 115 | 838 154 | 788 193 | 707 232 |
| NORMAL | 379 CFM/ ton | ON | ON | OFF | OFF | CFM Watts | 949 98 | 953 138 | 937 180 | 906 224 | 852 269 | |
| HIGH | 417 CFM/ ton | ON | ON | ON | OFF | CFM Watts | 1042 122 | 1046 166 | 1036 212 | 1015 259 | 980 308 | |
|
3 | LOW | 381 CFM/ ton | OFF | ON | OFF | ON | CFM Watts | 1147 154 | 1149 203 | 1141 253 | 1123 303 | 1094 353 |
| NORMAL | 424 CFM/ ton | OFF | ON | OFF | OFF | CFM Watts | 1277 204 | 1279 259 | 1272 314 | 1255 368 | 1228 421 | |
| HIGH | 466 CFM/ ton | OFF | ON | ON | OFF | CFM Watts | 1409 260 | 1409 323 | 1401 383 | 1384 442 | 1357 500 | |
|
3.5 | LOW | 348 CFM/ ton | ON | OFF | OFF | ON | CFM Watts | 1222 180 | 1224 232 | 1216 285 | 1200 336 | 1174 388 |
| NORMAL | 386 CFM/ ton | ON | OFF | OFF | OFF | CFM Watts | 1361 240 | 1362 300 | 1354 358 | 1337 415 | 1310 471 | |
| HIGH | 425 CFM/ ton | ON | OFF | ON | OFF | CFM Watts | 1497 316 | 1478 372 | 1449 420 | 1408 461 | 1356 494 | |
| A4AH6V36A1C30B HEATING AIRFLOW PERFORMANCE, NO FILTER, NO HEATER | ||||||||||||
|
4 | LOW | 338 CFM/ ton | OFF | OFF | OFF | ON | CFM Watts | 1360 239 | 1361 299 | 1353 358 | 1336 415 | 1309 470 |
| NORMAL (a) | 375 CFM/ ton | OFF | OFF | OFF | OFF | CFM Watts | 1511 325 | 1489 380 | 1456 426 | 1412 464 | 1355 493 | |
| HIGH | 413 CFM/ ton | OFF | OFF | ON | OFF | CFM Watts | 1659 420 | 1605 463 | 1535 488 | 1450 494 | 1349 483 | |
Table 3. Electrical Data
| A4AH6V36A1C30B HEATER DATA | |||||||||||
| Heater Model No. | No. of Circuits/ Phases | 240 Volt | 208 Volt | ||||||||
| Capacity | Heater Amps per Circuit | Minimum Circuit Ampacity | Maximum Overload Protection | Capacity | Heater Amps per Circuit | Minimum Circuit Ampacity | Maximum Overload Protection | ||||
| kW | BTUH | kW | BTUH | ||||||||
| No Heater | 4.3 * | 5 | 15 | 4.3 * | 5 | 15 | |||||
| BAYHTR1504BRK BAYHTR1504LUG | 1/1 | 3.84 | 13100 | 16.0 | 25 | 25 | 2.88 | 9800 | 13.8 | 23 | 25 |
| BAYHTR1505BRK BAYHTR1505LUG | 1/1 | 4.80 | 16400 | 20.0 | 30 | 30 | 3.60 | 12300 | 17.3 | 27 | 30 |
| BAYHTR1508BRK BAYHTR1508LUG | 1/1 | 7.68 | 26200 | 32.0 | 45 | 45 | 5.76 | 19700 | 27.7 | 40 | 40 |
| BAYHTR1510BRK BAYHTR1510LUG | 1/1 | 9.60 | 32800 | 40.0 | 55 | 60 | 7.20 | 24600 | 34.6 | 49 | 50 |
| BAYHTR1517BRK Circuit 1 (a) | 2/1 | 9.60 | 32800 | 40.0 | 55 | 60 | 7.20 | 24600 | 34.6 | 49 | 50 |
| BAYHTR1517BRK Circuit 2 | 4.80 | 16400 | 20.0 | 25 | 25 | 3.60 | 12300 | 17.3 | 22 | 25 | |
| BAYHTR1523BRK Circuit 1 | 2/1 | 9.60 | 32800 | 40.0 | 55 | 60 | 7.20 | 24600 | 34.6 | 49 | 50 |
| BAYHTR1523BRK Circuit 2 | 9.60 | 32800 | 40.0 | 50 | 50 | 7.20 | 24600 | 34.6 | 43 | 45 | |
| BAYHTR3510LUG | 1/3 | 9.60 | 32800 | 23.1 | 34 | 35 | 7.20 | 24600 | 20.0 | 30 | 30 |
| BAYHTR3517LUG | 1/3 | 14.40 | 49100 | 34.6 | 48 | 50 | 10.80 | 36900 | 30.0 | 42 | 45 |
| * = Motor Amps | |||||||||||
Features and Benefits
- Galvanized metal cabinet with captured foil face insulation
- 2% or less air leakage
- R-4.2 Insulating Value
- Multi-Position UP/Down Flow, Horizontal Left /Right
- ALL Aluminum Coil
- Electric Heaters with polarized plug connections (sold as accessory)
- R-410A Thermal Expansion Valve
- Variable Speed ECM Motor
- Low Voltage Pigtail Connections
- Draw Through Design
- Horizontal Drain pan
- Single Color
- Fused 24V Power
- 5 year warranty
- Optional extended warranty available
Important: Condensate management kit is required for all 5-ton air handler models installed in downflow applications. About Trane and American Standard Heating and Air Conditioning Trane and American Standard create comfortable, energy-efficient indoor environments for residential applications. For more information, please visit www.trane.com or www.americanstandardair.com. The manufacturer has a policy of continuous data improvement and it reserves the right to change design and specifications without notice. We are committed to using environmentally conscious print practices. A4AH6V36A1C-SUB-1B-EN 09 Mar 2022 Supersedes A4AH6V36A1C-SUB-1A-EN (December 2020)















