
Installer’s Guide
Convertible Air Handlers 2 — 5 Ton
TEM6A0B24H21SC
TEM6A0B30H21SC
TEM6A0C36H31SC
TEM6A0C42H41SC
TEM6A0C48H41SC
TEM6B0C60H51SA
18-GF74D1-1T-EN
TEM6B0C60H51SA Convertible Air Handlers
The TEM6 series air handler is designed for installation in a closet, utility room, alcove, basement, crawlspace or attic. These versatile units are applicable to air conditioning and heat pump applications. Several models are available to meet the specific requirements of the outdoor equipment. Field installed electric resistance heaters are available.
SAFETY WANING
Only qualified personnel should install and service the equipment. The installation, starting up, and servicing of heating, ventilating, and air-conditioning equipment can be hazardous and requires specific knowledge and training. Improperly installed, adjusted or altered equipment by an unqualified person could result in death or serious injury. When working on the equipment, observe all precautions in the literature and on the tags, stickers, and labels that are attached to the equipment.
SAFETY SECTION
Important: This document contains a wiring diagram, a parts list, and service information. This is customer property and is to remain with this unit. Please return to service information pack upon completion of work.
Important: These instructions do not cover all variations in systems nor provide for every possible contingency to be met in connection with the installation. Should further information be desired or should particular problems arise which are not covered sufficiently for the purchaser’s purposes, the matter should be referred to your installing dealer or local distributor.
WARNING
HAZARDOUS VOLTAGE!
Failure to follow this Warning could result in property damage, severe personal injury, or death. Disconnect all electric power, including remote disconnects before servicing. Follow proper lockout/tagout procedures to ensure the power cannot be inadvertently energized.
CAUTION
GROUNDING REQUIRED!
Failure to inspect or use proper service tools may result in equipment damage or personal injury. Reconnect all grounding devices. All parts of this product that are capable of conducting electrical current are grounded. If grounding wires, screws, straps, clips, nuts, or washers used to complete a path to ground are removed for service, they must be returned to their original position and properly fastened.
WARNING
LIVE ELECTRICAL COMPONENTS!
Failure to follow this Warning could result in property damage, severe personal injury, or death. Follow all electrical safety precautions when exposed to live electrical components. It may be necessary to work with live electrical components during installation, testing, servicing, and troubleshooting of this product.
WARNING
PRESSURIZED REFRIGERANT!
Failure to follow this Warning could result in personal injury System contains oil and refrigerant under high pressure. Recover refrigerant to relieve pressure before opening the system. Do no use non-approved refrigerants or refrigerant substitutes or refrigerant additives.
CAUTION
SHARP EDGE HAZARD!
Failure to follow this Caution could result in property damage or personal injury. Be careful of sharp edges on equipment or any cuts made on sheet metal while installing or servicing.
CAUTION
HAZARDOUS VAPORS!
Failure to follow this caution could result in property damage or personal injury. Equipment corrosion damage. To prevent shortening its service life, the air handler should not be used during the finishing phases of construction or remodeling. The low return air temperatures can lead to the formation of condensate. Condensate in the presence of chlorides and fluorides from paint, varnish, stains, adhesives, cleaning compounds, and cement creates a corrosive condition which may cause rapid deterioration of the cabinet and internal components.
CAUTION
COIL IS PRESSURIZED!
- Coil is pressurized with approximately 8-12 psi dry air and factory checked for leaks.
- Carefully release the pressure by removing the rubber plug on the liquid line.
- If no pressure is released, check for leaks.
WARNING
SAFETY HAZARD!
This appliance is not to be used by persons (including children) with reduced physical, sensory, or mental capabilities, or lack of experience and knowledge, unless they have been given supervision or instruction.
WARNING
SAFETY HAZARD!
Children should be supervised to ensure that they do not play with the appliance.
WARNING
WARNING!
This product can expose you to chemicals including lead, which are known to the State of California to cause cancer and birth defects or other reproductive harm. For more information go to www.P65Warnings.ca.gov.
Important:
Installation of this unit shall be made in accordance with the National Electric Code, NFPA No. 90A and 90B, and any other local codes or utilities requirements. Important:
Air handlers do not require repositioning of the coil or drain pan for up flow or horizontal left applications. See the down flow and horizontal right installation sections for application instructions.
Note:
Air handlers have been evaluated in accordance with the Code of Federal Regulations, Chapter XX, Part 3280 or the equivalent “SUITABLE FOR MOBILE HOME USE.”
Note:
Condensation may occur on the surface of the air handler when installed in an unconditioned space. When units are installed in unconditioned spaces, verify that all electrical and refrigerant line penetrations on the air handler are sealed completely.
Note:
The manufacturer recommends installing ONLY A.H.R.I approved, matched indoor and outdoor systems. Some of the benefits of installing approved matched indoor and outdoor split systems are maximum efficiency, optimum performance, and the best overall system reliability.
Features
Table 1. Standard Features
- MULTI-POSITION UPFLOW, DOWNFLOW, HORIZONTAL LEFT AND HORIZONTAL RIGHT
- PAINTED FINISH ON GALVANIZED STEEL EXTERIOR WITH FULLY INSULATED CABINET THAT MEETS R4.2 VALUE
- STURDY POLYCARBONATE DRAIN PANS
– These air handlers have factory installed drain pans and are shipped for up flow and horizontal left applications - 208/230 VAC OPERATION
- VARIABLE-SPEED DIRECT DRIVE BLOWER.
- FACTORY INSTALLED R-410A THERMAL EXPANSION VALVE
- ALL ALUMINUM COIL
- BOTTOM RETURN
- MEETS THE MINIMUM LEAKAGE REQUIREMENTS FOR THE
FLORIDA AND CALIFORNIA BUILDING CODES
Table 2. Optional Accessories
- 4,5,8,10,15,20, and 25 KW SINGLE PHASE ELECTRIC HEATERS
– Circuit breakers available on single phase 4, 5, 8, 10, 15, 20, and 25 KW heaters
– Lugs available on single phase 4, 5, 8, and 10 KW heaters
– Lugs available on three phase 10 and 15 KW heaters - SINGLE POINT POWER ENTRY KIT (for 15 and 20 KW heaters)
- SUPPLY DUCT FLANGE KIT
- DOWNFLOW SUB-BASE KITS – TAYBASE185, TAYBASE235, TAYBASE260
- SLIM FIT FILTER BOX KIT — BAYSF1185AAA, BAYSF1235AAA, BAYSF1265AAA
Installation Instructions
- Unpacking
Carefully unpack the unit and inspect the contents for damage. If any damage is found at the time of delivery, proper notification and claims should be made with the carrier. Check the rating plate to assure model number and voltage, plus any kits match with what you ordered. The manufacturer should be notified within 5 days of any discrepancy or parts shortage. - Location
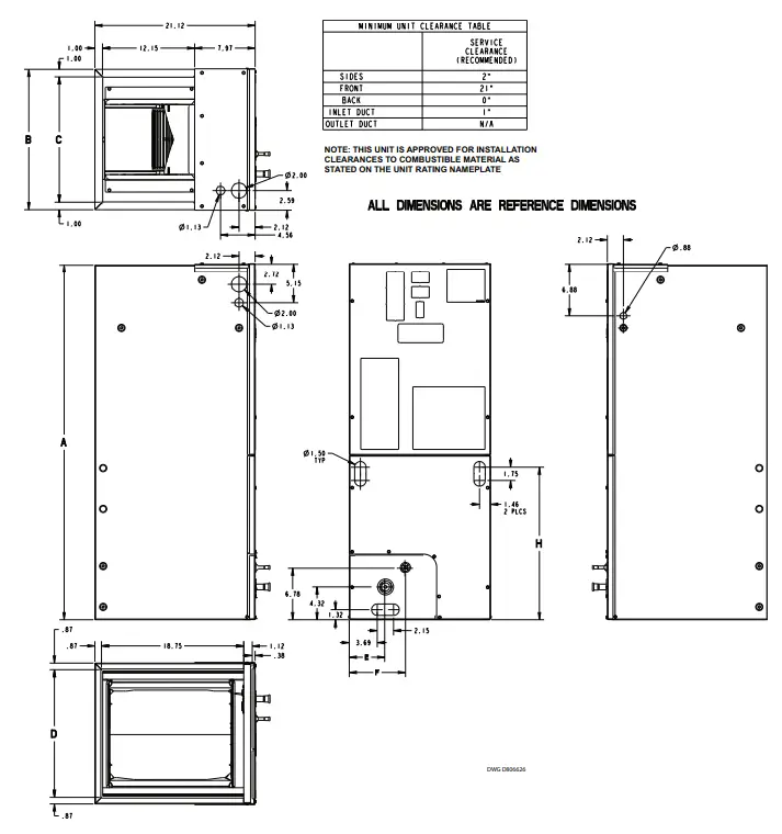
The air handler should be centrally located and may be installed in a closet, alcove, utility room, basement, crawl space or attic. Minimum clearances must be met. Important: The down flow sub-base may be required with electric heat applications. See minimum clearance table.
The unit should be installed in a level position to ensure proper condensation drainage. Up to an additional 1/4″ rise over the width or depth of the unit is allowed to create additional sloping towards the drain. Unit must be positioned between level and’/.” rise, sloping toward the drain connections. When the unit is installed in a closet or utility room, the room should be large enough, and have an opening to allow replacement of the unit. All servicing is done from the front and a clearance of 21″ is needed for service unless the closet door aligns with the front of the air handler. If you are installing the unit in an unconditioned space such as an attic or crawl space, you must ensure that the area provides sufficient air circulation to prevent moisture collection on the cabinet during high dew point conditions. A drain pan must be installed under the entire unit when it is installed in or above a finished ceiling or in an unconditioned space. - Duct Work
The duct work should be installed in accordance with the NFPA No. 90A “Installation of Air Conditioning and Ventilating systems° and No. 90B “Residential Type Warm Air Heating and Air Conditioning Installation .° The duct work should be insulated in accordance with the applicable requirements for the particular installation as required by HUD, FHA, VA the applicable building code, local utility or other governing body. - Condensate Drain
The unit is supplied with primary and auxiliary condensate drains that have 3/4″ NPT connections. The primary drain must be trapped outside the unit and piped in accordance with applicable building
codes.
The figure shows the operation of a properly designed trap under normal operating conditions when the blower is running and the condensate is draining. Note the difference in height of the water column must at least equal the normal negative static pressure existing during operation between the cooling coil and blower. It is advisable to have the difference in water column height somewhat greater than the normal maximum operating static to allow for greater static caused by dirty filters or
for the bounce of the water column on start up .
Proper operation of condensate trap under normal operating conditions. “A” height of water column equals negative static pressure existing in system.
“C” dimension should at least equal two times the maximum negative static pressure that can occur in system.
Do not reduce the drain line size less than the connection size on the drain pan. Condensate should be piped to an open drain or to the outside. All drains must pitch downward away from the unit a minimum of 1/4″ per foot of line to ensure proper drainage.
Important: If cleanout Tee is used, stand pipe must be sealed/capped.
Important: If a vent Tee is used, it must be downstream from the trap.
Insulate the primary drain line to prevent sweating where dew point temperatures may be met. (Insulation is optional depending on climate and application needs.) - Refrigerant Piping
Refrigerant piping external to the unit shall be sized in accordance with the instructions of the manufacturer of the outdoor equipment. - Metering Device
All units are shipped and installed with an internally-checked, non-bleed TXV designed for air conditioning or heat pump operation. Some outdoor models may require a start assist kit. See outdoor unit for more information. - Blower
This unit is supplied with a variable speed motor with a direct drive blower wheel which can obtain various air flows. The unit is shipped with factory set cooling and heating air flows. Performance tables are available for additional airflow settings. Disconnect all power to the unit before making any adjustments to the airflow settings. Be sure to check the air flow and the temperature drop across the evaporator coil to ensure sufficient air flow. - Airflow Adjustment
CAUTION
EQUIPMENT DAMAGE!
Failure to follow this procedure may result in equipment damage. Disconnect power to the air handler before changing dip switch positions.
Blower speed changes are made on the ECM Fan Control. The ECM Fan Control controls the variable speed motor. There is a bank of 8 dip switches. The dip switches work in pairs to match the airflow for the outdoor unit size (tons). cooling airflow adjustment Fan off-delay options, and heating airflow adjustment. The switches appear as shown in Figure 2, p. 6
If the airflow needs to be increased or decreased, see the Airflow Label on the air handler or Blower Performance Table. Be sure to set the correct airflow for cooling and heating. Switches 1-4 Cooling Airflow Switches 5-6 Fan Off Delay Options Switches 7-8 Auxiliary Heat
Indoor Blower Timing
Important Leave dip switches 5 and 6 in the “as-shipped” positions during system start-up and check out. Afterwards, adjust as desired.
Table 3. Cooling Off — Delay OptionsSWITCH SETTINGS SELECTION NOMINAL AIRFLOW 5 — OFF 6 — OFF NONE SAME 5 — ON 6 — OFF 1.5 MINUTES 100% (a) 5 — OFF 6 — ON 3 MINUTES 50% 5 — ON 6 — ON ENHANCED (b) 50-100% (a) Default setting
(b) This ENHANCED MODE selection provides a ramping up and ramping down of the blower speed to provide improved comfort, quietness, and potential energy savings. The graph shows the ramping process.
- Wiring
Consult all schematic and pictorial wiring diagrams of this unit and the outdoor equipment to determine compatibility of wiring connections and to determine specific requirements.
All field wiring to the air handler should be installed in accordance with the latest edition of the National Electric Code NFPA No. 70 and any local codes. Check rating plates on unit for rated volts, minimum circuit ampacity and maximum over current protection. Supply circuit power wiring must be 75 degree C (167 degree F) minimum copper conductors only. Copper supply wires shall be sized to the National Electric Code or local code requirements, whichever is more stringent.
The unit is shipped wired for 230/240 Volt AC 60 HZ 1 Phase Operation. If the unit is to be operated at 208 VAC 60HZ, follow the instructions on the indoor unit wiring diagram to change the low voltage transformer to 208 VAC operation (Ensure unit is properly grounded).
Class 2 low voltage control wiring should not be run in conduit with power wiring and must be separated from power wiring unless class 1 wire with proper voltage rating is used.
Low voltage control wiring should be 18 Awg, color coded (105 degree C minimum). For lengths longer than 100ft., 16 Awg wire should be used. Make certain that separation of control wiring and power wiring has been maintained. - Air Filter
To protect the coil, blower and other internal parts from excessive dirt and dust an air filter must be installed before air enters the evaporator coil. A remote filter must be installed. Consult the filter manufacturer for proper sizing and maximum velocity requirements. Important: Air filters shall meet the test requirements in UL 900. - Thermostat
Select a thermostat that is commonly used with HP or AC single stage heating/cooling with electric heat. The thermostat will energize the fan on a demand for heat or cool. Install the thermostat on an inside wall, away from drafts, lights or other heat sources in a location that has sufficient air circulation from other rooms being controlled by the thermostat. - Sequence of Operation Cooling (Cooling only)
When the thermostat calls for cooling, the circuit from R to G is completed. The blower motor is energized directly by the ECM fan control, which receives the 24VAC signal from the thermostat. The circuit from R to Y is also complete energizing the compressor contactor of the outdoor unit. The contactor will close and start the compressor and condenser fan motor.
Cooling (heat pump)
When the thermostat calls for cooling, the circuit from R to G is completed. The blower motor is energized directly by the ECM fan control, which receives the 24VAC signal from the thermostat. The circuit from R to Y is also complete energizing the compressor contactor of the outdoor unit. The contactor will close and start the compressor and condenser fan motor.
Circuit R to 0 energizes the reversing valve to the cooling position.
Heating (heat pump)
When the thermostat calls for heating, the circuit from R to G is completed and the blower motor is energized directly by the ECM fan control, which receives the 24VAC signal from the thermostat. The circuit from R to Y is also complete energizing the compressor contactor of the outdoor unit. The contactor will close and start the compressor and condenser fan motor.
In the heating mode, the reversing valve of the outdoor unit is not energized. If the indoor temperature continues to fall, the R to W circuit is completed energizing the electric heat contactor(s). Heating (electric heat only)
Note: The thermostat must be setup to bring the blower on when the electric heat is energized. When the thermostat calls for heating, the circuit from R to G is completed and the blower motor is energized directly by the ECM fan control, which receives the 24VAC signal from the thermostat. The circuit from R to W is completed energizing the heating contactor(s). Defrost
Supplemental heat during defrost can be provided by connecting the X2 (black) wire from the outdoor unit to W1 or W2 at the indoor unit. This will prevent cold air from being discharged from the indoor unit during defrost. - Operational and Checkout Procedures
To obtain proper performance, all units must be operated and charge adjustments made in accordance with procedures found in the Service Facts document of the outdoor unit. After installation has been completed, it is recommended that the entire system be checked against the checkout list located at the back of this document. See “Checkout Procedures,” p. 24 - Maintenance
The system air filter(s) should be inspected, cleaned or replaced at least monthly. Make certain that the access panels are replaced and secured properly before placing the unit back in operation. This product is designed for dependable service; however, periodic maintenance should be scheduled and conducted by trained professional service personnel. This service should be conducted at least annually, and should include testing and inspection of electrical and refrigerant components. The heat transfer surface should be cleaned. The blower motor is permanently lubricated for normal operating conditions.
Field Wiring

- * Units with pigtails require wirenuts for connections.
- Cap all unused wires.
- For BK enabled comfort control, do not connect Y1 or Y2 at the air handler
- For BK enabled comfort control, cut the jumper wire between R and BK on the control board. See wiring schematic for details.
- In AC systems for multiple stages of electric heat, jumper W1 and W2 together if comfort control has only one stage of heat.

- * Units with pigtails require wirenuts for connections.
- Cap all unused wires.
- For BK enabled comfort control, do not connect Y1 or Y2 at the air handler
- For BK enabled comfort control, cut the jumper wire between R and BK on the control board. See wiring schematic for details.
- In systems for multiple stages of electric heat, jumper W1 and W2 together if comfort control has only one stage of heat.
Electrical Data

Performance and Electrical Data
Table 4. Air Flow Performance Tables
| TEM6A0B24H2ISC COOLING AIRFLOW PERFORMANCE, WET COIL, NO FILTER, NO HEATER | ||||||||||||
| OUTDOOR UNIT SIZE (TONS) | SPEED SETTING | AIRFLOW SETTING | DIP SWITCH SETTING | AIRFLOW POWER | EXTERNAL STATIC PRESSURE | |||||||
| SW1 | SW2 | SW3 | SW4 | 0.1 | 0.3 | 0.5 | 0.7 | 0.9 | ||||
| 2. | LOW | 353 CFM/ ton | ON | ON | OFF | ON | CFM Watts | 533 52 | 497 78 | 461 104 | 425 130 | 390 157 |
| NORMAL | 401 CFM/ ton | ON | ON | OFF | OFF | CFM Watts | 611 65 | 580 95 | 548 125 | 517 155 | 486 185 | |
| HIGH | 451 CFM/ ton | ON | ON | ON | OFF | CFM Watts | 684 81 | 668 115 | 644 148 | 611 182 | 570 215 | |
| 2 | LOW | 343 CFM/ ton | OFF | ON | OFF | ON | CFM Watts | 687 82 | 672 115 | 648 149 | 614 182 | 571 215 |
| NORMAL | 390 CFM/ ton | OFF | ON | OFF | OFF | CFM Watts | 789 104 | 798 145 | 780 183 | 735 216 | 663 246 | |
| HIGH | 439 CFM/ ton | OFF | ON | ON | OFF | CFM Watts | 884 135 | 887 177 | 882 230 | 845 274 | 751 290 | |
| 3. | LOW | 300 CFM/ ton | ON | OFF | OFF | ON | CFM Watts | 752 92 | 749 123 | 729 167 | 691 211 | 636 241 |
| NORMAL (a) | 340 CFM/ ton | ON | OFF | OFF | OFF | CFM Watts | 859 128 | 861 172 | 863 211 | 830 242 | 727 268 | |
| HIGH | 383 CFM/ ton | ON | OFF | ON | OFF | CFM Watts | 963 172 | 973 223 | 995 263 | 967 291 | 844 308 | |
(a) Factory Default Setting
| TEM6A0B24H21SC HEATING AIRFLOW PERFORMANCE, NO FILTER, NO HEATER | ||||||||||||
| OUTDOOR UNIT SIZE (TONS) | SPEED SETTING | AIRFLOW SETTING | DIP SWITCH SETTING | AIRFLOW POWER | EXTERNAL STATIC PRESSURE | |||||||
| SW1 | SW2 | SW3 | SW4 | 0.1 | 0.3 | 0.5 | 0.7 | 0.9 | ||||
| 2. | LOW | 394 CFM/ ton | ON | ON | OFF | ON | CFM Watts | 599 58 | 571 88 | 539 117 | 502 146 | 462 175 |
| NORMAL | 448 CFM/ ton | ON | ON | OFF | OFF | CFM Watts | 680 72 | 665 109 | 641 145 | 610 178 | 572 209 | |
| HIGH | 493 CFM/ ton | ON | ON | ON | OFF | CFM Watts | 748 89 | 746 118 | 682 163 | 545 208 | 326 240 | |
| 2 | LOW | 393 CFM/ ton | OFF | ON | OFF | ON | CFM Watts | 785 97 | 790 128 | 773 175 | 735 223 | 674 253 |
| NORMAL | 446 CFM/ ton | OFF | ON | OFF | OFF | CFM Watts | 904 131 | 902 179 | 912 219 | 894 253 | 809 281 | |
| HIGH | 491 CFM/ ton | OFF | ON | ON | OFF | CFM Watts | 980 167 | 972 216 | 990 268 | 974 308 | 863 324 | |
| 3. | LOW | 350 CFM/ ton | ON | OFF | OFF | ON | CFM Watts | 866 125 | 870 162 | 866 215 | 833 263 | 750 286 |
| NORMAL (a) | 398 CFM/ ton | ON | OFF | OFF | OFF | CFM Watts | 995 171 | 988 222 | 1005 271 | 986 309 | 872 325 | |
| HIGH | 437 CFM/ ton | ON | OFF | ON | OFF | CFM Watts | 1099 220 | 1086 274 | 1098 328 | 1065 362 | 918 353 | |
(a) Factory Default Setting
| TEM6A0B30H21SC COOLING AIRFLOW PERFORMANCE, WET COIL, NO FILTER, NO HEATER | ||||||||||||
| OUTDOOR UNIT SIZE (TONS) | SPEED SETTING | AIRFLOW SETTING | DIP SWITCH SETTING | AIRFLOW POWER | EXTERNAL STATIC PRESSURE | |||||||
| SW1 | 5W2 | SW3 | 5W4 | 0.1 | 0.3 | 0.5 | 0.7 | 0.9 | ||||
| 2. | LOW | 353 CFM/ ton | ON | ON | OFF | ON | CFM Watts | 533 52 | 497 78 | 461 104 | 425 130 | 390 157 |
| NORMAL | 401 CFM/ ton | ON | ON | OFF | OFF | CFM Watts | 611 65 | 580 95 | 548 125 | 517 155 | 486 185 | |
| HIGH | 451 CFM/ ton | ON | ON | ON | OFF | CFM Watts | 684 81 | 668 115 | 644 148 | 611 182 | 570 215 | |
| 2 | LOW | 343 CFM/ ton | OFF | ON | OFF | ON | CFM Watts | 687 82 | 672 115 | 648 149 | 614 182 | 571 215 |
| NORMAL | 390 CFM/ ton | OFF | ON | OFF | OFF | CFM Watts | 789 104 | 798 145 | 780 183 | 735 216 | 663 246 | |
| HIGH | 439 CFM/ ton | OFF | ON | ON | OFF | CFM Watts | 884 135 | 887 177 | 882 230 | 845 274 | 751 290 | |
| 3. | LOW | 300 CFM/ ton | ON | OFF | OFF | ON | CFM Watts | 752 92 | 749 123 | 729 167 | 691 211 | 636 241 |
| NORMAL | 340 CFM/ ton | ON | OFF | OFF | OFF | CFM Watts | 859 128 | 861 172 | 863 211 | 830 242 | 727 268 | |
| HIGH | 383 CFM/ ton | ON | OFF | ON | OFF | CFM Watts | 963 172 | 973 223 | 995 263 | 967 291 | 844 308 | |
| TEM6A0B30H21SC COOLING AIRFLOW PERFORMANCE, WET COIL, NO FILTER, NO HEATER | ||||||||||||
| 3 | LOW | 310 CFM/ ton | OFF | OFF | OFF | ON | CFM Watts | 913 119 | 947 172 | 962 233 | 938 297 | 883 364 |
| NORMAL (a) | 330 CFM/ ton | OFF | OFF | OFF | OFF | CFM Watts | 967 138 | 1004 194 | 1022 258 | 1000 326 | 947 397 | |
(a) Factory Default Setting
| TEM6A0B30H21SC HEATING AIRFLOW PERFORMANCE, NO FILTER, NO HEATER | ||||||||||||
| OUTDOOR UNIT SIZE (TONS) | SPEED SETTING | AIRFLOW SETTING | DIP SWITCH SETTING | AIRFLOW | EXTERNAL STATIC PRESSURE | |||||||
| SW1 | SW2 | SW3 | SW4 | POWER | 0.1 | 0.3 | 0.5 | 0.7 | 0.9 | |||
| 2. | LOW | 394 CFM/ ton | ON | ON | OFF | ON | CFM Watts | 599 58 | 571 88 | 539 117 | 502 146 | 462 175 |
| NORMAL | 448 CFM/ ton | ON | ON | OFF | OFF | CFM Watts | 680 72 | 665 109 | 641 145 | 610 178 | 572 209 | |
| HIGH | 493 CFM/ ton | ON | ON | ON | OFF | CFM Watts | 748 89 | 746 118 | 682 163 | 545 208 | 326 240 | |
| 2 | LOW | 393 CFM/ ton | OFF | ON | OFF | ON | CFM Watts | 785 97 | 790 128 | 773 175 | 735 223 | 674 253 |
| NORMAL | 446 CFM/ ton | OFF | ON | OFF | OFF | CFM Watts | 904 131 | 902 179 | 912 219 | 894 253 | 809 281 | |
| HIGH | 491 CFM/ ton | OFF | ON | ON | OFF | CFM Watts | 980 167 | 972 216 | 990 268 | 974 308 | 863 324 | |
| 3. | LOW | 350 CFM/ ton | ON | OFF | OFF | ON | CFM Watts | 866 125 | 870 162 | 866 215 | 833 263 | 750 286 |
| NORMAL | 398 CFM/ ton | ON | OFF | OFF | OFF | CFM Watts | 995 171 | 988 222 | 1005 271 | 986 309 | 872 325 | |
| HIGH | 437 CFM/ ton | ON | OFF | ON | OFF | CFM Watts | 1099 220 | 1086 274 | 1098 328 | 1065 362 | 918 353 | |
| 3 | LOW | 325 CFM/ ton | OFF | OFF | OFF | ON | CFM Watts | 953 133 | 990 188 | 1007 251 | 985 318 | 931 389 |
| NORMAL (a) | 346 CFM/ ton | OFF | OFF | OFF | OFF | CFM Watts | 1010 154 | 1049 212 | 1066 279 | 1047 350 | 1000 426 | |
(a) Factory Default Setting
| TEM6AOC36H31SC, TEM6AOC42H41SC COOLING AIRFLOW PERFORMANCE, WET COIL NO FILTER, NO HEATER | ||||||||||||
| OUTDOOR UNIT SIZE (TONS) | SPEED SETTING | AIRFLOW SETTING | DIP SWITCH SETTING | AIRFLOW POWER | EXTERNAL STATIC PRESSURE | |||||||
| SW1 | SW2 | SW3 | SW4 | 0.1 | 0.3 | 0.5 | 0.7 | 0.9 | ||||
| 3. | LOW | 300 CFM/ ton | ON | ON | OFF | ON | CFM Watts | 761 63 | 755 98 | 719 131 | 654 163 | 560 193 |
| NORMAL | 341 CFM/ ton | ON | ON | OFF | OFF | CFM Watts | 862 82 | 861 120 | 834 158 | 781 196 | 700 235 | |
| HIGH | 384 CFM/ ton | ON | ON | ON | OFF | CFM Watts | 962 106 | 963 147 | 948 190 | 915 234 | 863 279 | |
| 3 | LOW | 319 CFM/ ton | OFF | ON | OFF | ON | CFM Watts | 961 106 | 962 147 | 947 189 | 914 233 | 862 279 |
| NORMAL | 363 CFM/ ton | OFF | ON | OFF | OFF | CFM Watts | 1092 146 | 1093 192 | 1082 240 | 1060 288 | 1026 337 | |
| HIGH | 408 CFM/ ton | OFF | ON | ON | OFF | CFM Watts | 1231 196 | 1231 249 | 1221 301 | 1203 353 | 1175 404 | |
| 4. | LOW | 315 CFM/ ton | ON | OFF | OFF | ON | CFM Watts | 1104 150 | 1105 197 | 1094 245 | 1072 293 | 1039 343 |
| NORMAL | 357 CFM/ ton | ON | OFF | OFF | OFF | CFM Watts | 1258 209 | 1258 263 | 1248 317 | 1229 369 | 1201 421 | |
| HIGH | 402 CFM/ ton | ON | OFF | ON | OFF | CFM Watts | 1418 286 | 1415 347 | 1401 406 | 1379 462 | 1348 516 | |
| 4 | LOW | 308 CFM/ ton | OFF | OFF | OFF | ON | CFM Watts | 1238 199 | 1238 253 | 1229 306 | 1210 357 | 1182 408 |
| NORMAL (a) | 350 CFM/ ton | OFF | OFF | OFF | OFF | CFM Watts | 1412 282 | 1410 344 | 1398 404 | 1378 462 | 1349 517 | |
| HIGH | 394 CFM/ ton | OFF | OFF | ON | OFF | CFM Watts | 1570 393 | 1528 436 | 1473 466 | 1406 483 | 1326 488 | |
(a) Factory Default Setting
| TEM6A0C36H31SC, TEM6AOC42H41SC HEATING AIRFLOW PERFORMANCE, NO FILTER, NO HEATER | ||||||||||||
| OUTDOOR UNIT SIZE (TONS) | SPEED SETTING | AIRFLOW SETTING | DIP SWITCH SETTING | AIRFLOW POWER | EXTERNAL STATIC PRESSURE | |||||||
| SW1 | SW2 | SW3 | SW4 | 0.1 | 0.3 | 0.5 | 0.7 | 0.9 | ||||
| 3. | LOW | 341 CFM/ ton | ON | ON | OFF | ON | CFM Watts | 860 77 | 863 115 | 838 154 | 788 193 | 707 232 |
| NORMAL | 379 CFM/ ton | ON | ON | OFF | OFF | CFM Watts | 949 98 | 953 138 | 937 180 | 906 224 | 852 269 | |
| HIGH | 417 CFM/ ton | ON | ON | ON | OFF | CFM Watts | 1042 122 | 1046 166 | 1036 212 | 1015 259 | 980 308 | |
| TEM6AOC36H31SC, TEM6AOC42H41SC HEATING AIRFLOW PERFORMANCE, NO FILTER, NO HEATER | ||||||||||||
| 3 | LOW | 381 CFM/ ton | OFF | ON | OFF | ON | CFM Watts | 1147 154 | 1149 203 | 1141 253 | 1123 303 | 1094 353 |
| NORMAL | 424 CFM/ ton | OFF | ON | OFF | OFF | CFM Watts | 1277 204 | 1279 259 | 1272 314 | 1255 368 | 1228 421 | |
| HIGH | 466 CFM/ ton | OFF | ON | ON | OFF | CFM Watts | 1409 260 | 1409 323 | 1401 383 | 1384 442 | 1357 500 | |
| 4. | LOW | 348 CFM/ ton | ON | OFF | OFF | ON | CFM Watts | 1222 180 | 1224 232 | 1216 285 | 1200 336 | 1174 388 |
| NORMAL | 386 CFM/ ton | ON | OFF | OFF | OFF | CFM Watts | 1361 240 | 1362 300 | 1354 358 | 1337 415 | 1310 471 | |
| HIGH | 425 CFM/ ton | ON | OFF | ON | OFF | CFM Watts | 1497 316 | 1478 372 | 1449 420 | 1408 461 | 1356 494 | |
| 4 | LOW | 338 CFM/ ton | OFF | OFF | OFF | ON | CFM Watts | 1360 239 | 1361 299 | 1353 358 | 1336 415 | 1309 470 |
| NORMAL ;a) | 375 CFM/ ton | OFF | OFF | OFF | OFF | CFM Watts | 1511 325 | 1489 380 | 1456 426 | 1412 464 | 1355 493 | |
| HIGH | 413 CFM/ ton | OFF | OFF | ON | OFF | CFM Watts | 1659 420 | 1605 463 | 1535 488 | 1450 494 | 1349 483 | |
(a) Factory Default Setting
| TEM6AOC48H41SC, TEM6B0C60H51SA COOLING AIRFLOW PERFORMANCE, WET COIL NO FILTER, NO HEATER | ||||||||||||
| OUTDOOR UNIT SIZE (TONS) | SPEED SETTING | AIRFLOW SETTING | DIP SWITCH SETTING | AIRFLOW POWER | EXTERNAL STATIC PRESSURE | |||||||
| SW1 | SW2 | SW3 | SW4 | 0.1 | 0.3 | 0.5 | 0.7 | 0.9 | ||||
| 3 | LOW | 324 CFM/ ton | ON | ON | OFF | ON | CFM Watts | 991 89 | 985 133 | 974 186 | 984 237 | 994 303 |
| NORMAL | 368 CFM/ ton | ON | ON | OFF | OFF | CFM Watts | 1120 118 | 1119 167 | 1110 224 | 1116 279 | 1122 333 | |
| HIGH | 423 CFM/ ton | ON | ON | ON | OFF | CFM Watts | 1282 162 | 1286 219 | 1281 280 | 1280 343 | 1282 402 | |
| 4. | LOW | 314 CFM/ ton | OFF | ON | OFF | ON | CFM Watts | 1116 I% | 1114 1126656 | 1105 1261 | 1111 12/671 | 1117 1263 |
| ORMAL | 357 CFM/ ton | OFF | ON | OFF | OFF | CFM Watts | 156 | 212 | 273 | 334 | 392 | |
| HIGH | 411 CFM/ ton | OFF | ON | ON | OFF | CFM Watts | 1449 218 | 1458 287 | 1456 352 | 1449 421 | 1447 496 | |
| 4 | LOW | 298 CFM/ ton | ON | OFF | OFF | ON | CFM Watts | 1207 140 | 1208 193 | 1201 252 | 1203 311 | 1207 366 |
| NORMAL | 339 CFM/ ton | ON | OFF | OFF | OFF | CFM Watts | 1368 190 | 1374 252 | 1370 315 | 1367 381 | 1367 448 | |
| HIGH | 389 CFM/ ton | ON | OFF | ON | OFF | CFM Watts | 1564 264 | 1577 343 | 1577 411 | 1567 484 | 1561 570 | |
| 5 | LOW | 305 CFM/ ton | OFF | OFF | OFF | ON | CFM Watts | 1534 251 | 1545 328 | 1545 394 | 1536 467 | 1531 550 |
| NORMAL (a) | 347 CFM/ ton | OFF | OFF | OFF | OFF | CFM Watts | 1740 344 | 1758 444 | 1762 518 | 1745 594 | 1734 684 | |
| HIGH (b) | 399 CFM/ ton | OFF | OFF | ON | OFF | CFM Watts | 1995 484 | 2022 629 | 2030 717 | 2005 783 | 1987 828 | |
(a) Factory Default Setting
(b) Airflow must not exceed 1800 cfm in horizontal right, horizontal left, and downflow applications due to condensate blow off. The 5 ton high tap shall not be used in these applications.
| TEM6AOC48H41SC, TEM6B0C60H51SA HEATING AIRFLOW PERFORMANCE, NO FILTER, NO HEATER | ||||||||||||
| OUTDOOR UNIT SIZE (TONS) | SPEED SETTING | AIRFLOW SETTING | DIP SWITCH SETTING | AIRFLOW POWER | EXTERNAL STATIC PRESSURE | |||||||
| SW1 | SW2 | SW3 | SW4 | 0.1 | 0.3 | 0.5 | 0.7 | 0.9 | ||||
| 3 | LOW | 360 CFM/ ton | ON | ON | OFF | ON | CFM Watts | 1097 112 | 1094 160 | 1086 216 | 1092 271 | 1099 326 |
| NORMAL | 400 CFM/ ton | ON | ON | OFF | OFF | CFM Watts | 1215 142 | 1216 196 | 1210 255 | 1211 314 | 1215 369 | |
| HIGH | 440 CFM/ ton | ON | ON | ON | OFF | CFM Watts | 1333 178 | 1338 238 | 1333 300 | 1331 365 | 1332 428 | |
| 4. | LOW | 348 CFM/ ton | OFF | ON | OFF | ON | CFM Watts | 1232 147 | 1234 202 | 1228 261 | 1229 322 | 1233 377 |
| NORMAL | 387 CFM/ ton | OFF | ON | OFF | OFF | CFM Watts | 1366 189 | 1373 252 | 1369 314 | 1366 381 | 1365 447 | |
| HIGH | 426 CFM/ ton | OFF | ON | ON | OFF | CFM Watts | 1500 238 | 1511 311 | 1510 377 | 1502 449 | 1498 529 | |
| 4 | LOW | 338 CFM/ ton | ON | OFF | OFF | ON | CFM Watts | 1364 188 | 1370 251 | 1366 313 | 1363 379 | 1363 446 |
| NORMAL | 375 CFM/ ton | ON | OFF | OFF | OFF | CFM Watts | 1509 241 | 1520 315 | 1519 382 | 1511 453 | 1506 535 | |
| HIGH | 413 CFM/ ton | ON | OFF | ON | OFF | CFM Watts | 1659 305 | 1674 395 | 1676 466 | 1662 541 | 1654 632 | |
| TEM6AOC48H41SC, TEM6B0C60H51SA HEATING AIRFLOW PERFORMANCE, NO FILTER, NO HEATER | ||||||||||||
| 5 | LOW | 326 CFM/ ton | OFF | OFF | OFF | ON | CFM Watts | 1637 295 | 1652 383 | 1653 453 | 1641 528 | 1632 618 |
| NORMAL Ca) | 362 CFM/ ton | OFF | OFF | OFF | OFF | CFM Watts | 1814 381 | 1834 493 | 1839 570 | 1820 645 | 1807 730 | |
| HIGH | 398 CFM/ ton | OFF | OFF | ON | OFF | CFM Watts | 1990 481 | 2017 625 | 2025 713 | 2000 779 | 1982 826 | |
(a) Factory Default Setting
Table 5. Electrical Data
| TEM6AOB24H21SC HEATER DATA | |||||||||||
| Heater Model No. | No. of Circuits/ Phases | 240 Volt | 208 Volt | ||||||||
| Capacity | Heater Amps per Circuit | Minimum Circuit Ampacity | Maximum Overload Protection | Capacity | Heater Amps per Circuit | Minimum Circuit Ampacity | Maximum Overload Protection | ||||
| kW | BTUH | kW | BTUH | ||||||||
| No Heater | 2.5 * | 3 | 15 | 2.5 * | 3 | 15 | |||||
| BAYHTR1504BRK BAYHTR1504LUG | 1/1 | 4. | 13100 | 16.0 | 23 | 25 | 3. | 9800 | 14. | 20 | 20 |
| BAYHTR1505BRK BAYHTR1505LUG | 1/1 | 4.80 | 16400 | 20.0 | 28 | 30 | 3.60 | 12300 | 17. | 25 | 25 |
| BAYHTR1508BRK BAYHTR1508LUG | 1/1 | 8. | 26200 | 32.0 | 43 | 45 | 6. | 19700 | 28. | 38 | 40 |
| BAYHTR1510BRK BAYHTR1510LUG | 1/1 | 9.60 | 32800 | 40.0 | 53 | 60 | 7.20 | 24600 | 35. | 46 | 50 |
| BAYHTR1517BRK Circuit it (a) | 2/1 | 9.60 | 32800 | 40.0 | 53 | 60 | 7.20 | 24600 | 35. | 46 | 50 |
| BAYHTR1517BRK Circuit 2 | 4.80 | 16400 | 20.0 | 25 | 25 | 3.60 | 12300 | 17. | 22 | 25 | |
| BAYHTR3510LUG | 1/3 | 9.60 | 32800 | 23. | 32 | 35 | 7.20 | 24600 | 20.0 | 28 | 30 |
| BAYHTR3517LUG | 1/3 | 14.40 | 49100 | 35. | 46 | 50 | 10.80 | 36900 | 30.0 | 40 | 45 |
| * = Motor Amps | |||||||||||
(a) MCA and MOP for circuit 1 contains the motor amps
| TEM6A0B30H21SC HEATER DATA | |||||||||||
| Heater Model No. | No. of Circuits/ Phases | 240 Volt | 208 Volt | ||||||||
| Capacity | Heater Amps per Circuit | Minimum Circuit Ampacity | Maximum Overload Protection | Capacity | Heater Amps per Circuit | Minimum Circuit Ampacity | Maximum Overload Protection | ||||
| kW | BTUH | kW | BTUH | ||||||||
| No Heater | 4.3 * | 5 | 15 | 4.3 * | 5 | 15 | |||||
| BAYHTR1504BRK BAYHTR1504LUG | 1/1 | 4. | 13100 | 16.0 | 25 | 25 | 3. | 9800 | 14. | 23 | 25 |
| BAYHTR1505BRK BAYHTR1505LUG | 1/1 | 4.80 | 16400 | 20.0 | 30 | 30 | 3.60 | 12300 | 17. | 27 | 30 |
| BAYHTR1508BRK BAYHTR1508LUG | 1/1 | 8. | 26200 | 32.0 | 45 | 45 | 6. | 19700 | 28. | 40 | 40 |
| BAYHTR1510BRK BAYHTR1510LUG | 1/1 | 9.60 | 32800 | 40.0 | 55 | 60 | 7.20 | 24600 | 35. | 49 | 50 |
| BAYHTR1517BRK Circuit it (a) | 2/1 | 9.60 | 32800 | 40.0 | 55 | 60 | 7.20 | 24600 | 35. | 49 | 50 |
| BAYHTR1517BRK Circuit 2 | 4.80 | 16400 | 20.0 | 25 | 25 | 3.60 | 12300 | 17. | 22 | 25 | |
| BAYHTR3510LUG | 1/3 | 9.60 | 32800 | 23. | 34 | 35 | 7.20 | 24600 | 20.0 | 30 | 30 |
| BAYHTR3517LUG | 1/3 | 14.40 | 49100 | 35. | 48 | 50 | 10.80 | 36900 | 30.0 | 42 | 45 |
| * = Motor Amps | |||||||||||
(a) MCA and MOP for circuit 1 contains the motor amps
| TEM6A0C36H31SC, TEM6A0C42H41SC HEATER DATA | |||||||||||
| Heater Model No. | No. of Circuits/ Phases | 240 Volt | 208 Volt | ||||||||
| Capacity | Heater Amps per Circuit | Minimum Circuit Ampacity | Maximum Overload Protection | Capacity | Heater Amps per Circuit | Minimum Circuit Ampacity | Maximum Overload Protection | ||||
| kW | BTUH | ||||||||||
| kW | BTUH | ||||||||||
| No Heater | 4.3 * | 5 | 15 | 4.3 * | 5 | 15 | |||||
| BAYHTR1504BRK BAYHTR1504LUG | 1/1 | 4. | 13100 | 16.0 | 25 | 25 | 3. | 9800 | 14. | 23 | 25 |
| BAYHTR1505BRK BAYHTR1505LUG | 1/1 | 4.80 | 16400 | 20.0 | 30 | 30 | 3.60 | 12300 | 17. | 27 | 30 |
| TEM6A0C36H31SC, TEM6A0C42H41SC HEATER DATA | |||||||||||
| BAYHTR1508BRK BAYHTR1508LUG | 1/1 | 8. | 26200 | 32.0 | 45 | 45 | 6. | 19700 | 28. | 40 | 40 |
| BAYHTR1510BRK BAYHTR1510LUG | 1/1 | 9.60 | 32800 | 40.0 | 55 | 60 | 7.20 | 24600 | 35. | 49 | 50 |
| BAYHTR1517BRK Circuit it (a) | 2/1 | 9.60 | 32800 | 40.0 | 55 | 60 | 7.20 | 24600 | 35. | 49 | 50 |
| BAYHTR1517BRK Circuit 2 | 4.80 | 16400 | 20.0 | 25 | 25 | 3.60 | 12300 | 17. | 22 | 25 | |
| BAYHTR1523BRK Circuit it (a) | 2/1 | 9.60 | 32800 | 40.0 | 55 | 60 | 7.20 | 24600 | 35. | 49 | 50 |
| BAYHTR1523BRK Circuit 2 | 9.60 | 32800 | 40.0 | 50 | 50 | 7.20 | 24600 | 35. | 43 | 45 | |
| BAYHTR3510LUG | 1/3 | 9.60 | 32800 | 23. | 34 | 35 | 7.20 | 24600 | 20.0 | 30 | 30 |
| BAYHTR3517LUG | 1/3 | 14.40 | 49100 | 35. | 48 | 50 | 1 0.8 – 0 | 36900 | 30.0 | 42 | 45 |
| * = Motor Amps | |||||||||||
(a) MCA and MOP for circuit 1 contains the motor amps
| TEM6A0C48H41SC, TEM6B0C60H51SA HEATER DATA | |||||||||||
| Heater Model No. | No. of Circuits/ Phases | 240 Volt | 208 Volt | ||||||||
| Capacity | Heater Amps per Circuit | Minimum Circuit Ampacity | Maximum Overload Protection | Capacity | Heater Amps per Circuit | Minimum Circuit Ampacity | Maximum Overload Protection | ||||
| kW | BTUH | kW | BTUH | ||||||||
| No Heater | 6.8 * | 9 | 15 | 6.8 * | 9 | 15 | |||||
| BAYHTR1504BRK BAYHTR1504LUG | 1/1 | 4. | 13100 | 16.0 | 29 | 30 | 3. | 9800 | 14. | 26 | 30 |
| BAYHTR1505BRK BAYHTR1505LUG | 1/1 | 4.80 | 16400 | 20.0 | 34 | 35 | 3.60 | 12300 | 17. | 30 | 30 |
| BAYHTR1508BRK BAYHTR1508LUG | 1/1 | 8. | 26200 | 32.0 | 49 | 50 | 6. | 19700 | 28. | 43 | 45 |
| BAYHTR1510BRK BAYHTR1510LUG | 1/1 | 9.60 | 32800 | 40.0 | 59 | 60 | 7.20 | 24600 | 35. | 52 | 60 |
| BAYHTR1517BRK Circuit it (a) | 2/1 | 9.60 | 32800 | 40.0 | 59 | 60 | 7.20 | 24600 | 35. | 52 | 60 |
| BAYHTR1517BRK Circuit 2 | 4.80 | 16400 | 20.0 | 25 | 25 | 3.60 | 12300 | 17. | 22 | 25 | |
| BAYHTR1523BRK Circuit it (a) | 2/1 | 9.60 | 32800 | 40.0 | 59 | 60 | 7.20 | 24600 | 35. | 52 | 60 |
| BAYHTR1523BRK Circuit 2 | 9.60 | 32800 | 40.0 | 50 | 50 | 7.20 | 24600 | 35. | 43 | 45 | |
| BAYHTR1525BRK Circuit 1 (a) | 4/1 | 6.00 | 20500 | 25.0 | 40 | 40 | 4.50 | 15400 | 22. | 36 | 40 |
| BAYHTR1525BRK Circuit 2 | 6.00 | 20500 | 25.0 | 31 | 35 | 4.50 | 15400 | 22. | 27 | 30 | |
| BAYHTR1525BRK Circuit 3 | 6.00 | 20500 | 25.0 | 31 | 35 | 4.50 | 15400 | 22. | 27 | 30 | |
| BAYHTR1525BRK Circuit 4 | 6.00 | 20500 | 25.0 | 31 | 35 | 4.50 | 15400 | 22. | 27 | 30 | |
| BAYHTR3510LUG | 1/3 | 9.60 | 32800 | 23. | 36 | 40 | 7.20 | 24600 | 20.0 | 33 | 35 |
| BAYHTR3517LUG | 1/3 | 14.40 | 49100 | 35. | 51 | 60 | 10.80 | 36900 | 30.0 | 45 | 45 |
(a) MCA and MOP for circuit 1 contains the motor amps
Minimum Airflow CFM
| TEM6A0B24H21SC, TEM6A0B3OH 21SC | ||
| Heater | Minimum Heater Airflow CFM | |
| With Heat Pump | Without Heat Pump | |
| BAYHTR1504BRK, BAYHTR1504LUG, BAYHTR1505BRK, BAYHTR1505LUG | 660 | 600 |
| BAYHTR1508BRK, BAYHTR1508LUG | 780 | 600 |
| BAYHTR1510BRK, BAYHTR1510LUG | 780 | 600 |
| BAYHTR1517BRK | 1050 | 850 |
| BAYHTR3510LUG | 780 | 600 |
| BAYHTR3517LUG | 900 | 850 |
| TEM6AOC36H31SC, TEM6AOC42H41SC | ||
| Heater | Minimum Heater Airflow CFM | |
| With Heat Pump | Without Heat Pump | |
| BAYHTR1504BRK, BAYHTR1504LUG, BAYHTR1505BRK, BAYHTR1505LUG | 875 | 675 |
| BAYHTR1508BRK, BAYHTR1508LUG | 950 | 820 |
| BAYHTR1510BRK, BAYHTR1510LUG | 1000 | 820 |
| BAYHTR1517BRK | 1000 | 820 |
| BAYHTR3510LUG | 875 | 820 |
| BAYHTR3517LUG | 1000 | 950 |
| BAYHTR1523BRK | 1300 | 1140 |
| TEM6A0C48H41SC, TEM6B0C6OHS1SA | ||
| Heater | Minimum Heater Airflow CFM | |
| With Heat Pump | Without Heat Pump | |
| BAYHTR1504BRK, BAYHTR1504LUG, BAYHTR1505BRK, BAYHTR1505LUG | 1200 | 975 |
| BAYHTR1508BRK, BAYHTR1508LUG | 1350 | 975 |
| BAYHTR1510BRK, BAYHTR1510LUG | 1350 | 975 |
| BAYHTR1517BRK | 1365 | 975 |
| BAYHTR3510LUG | 1300 | 975 |
| BAYHTR3517LUG | 1365 | 1120 |
| BAYHTR1523BRK | 1365 | 1300 |
| BAYHTR1525BRK | 1810 | 1505 |
| TEM6A0824H21SC, TEM6A0B301121SC Airflow Performance with Auxiliary Heat | ||||
| Airflow Settings | Dip Swi ch Settings | Nominal Airflow | See following tables for heater application: – Pressure Drop for Electrical Heaters – Minimum Heating Airflow Math x (on unit nameplates) | |
| Switch 7 | Switch 8 | |||
| Low | ON | ON | 601 | |
| Med-Lo | OFF | ON | 661 | |
| Med-Hi | ON | OFF | 781 | |
| High | OFF | OFF | 973 | |
| TEM6A0C36H31SC, TE146A0C42H41SC Airflow Performance with Auxiliary Heat | ||||
| Airflow Settings | Dip Swi ch Settings | Nominal Airflow | See following tables for heater application: – Pressure Drop for Electrical Heaters Minimum Heating Airflow Matrix (on unit nameplates) | |
| Switch 7 | Switch 8 | |||
| Low | ON | ON | 696 | |
| Med-Lo | OFF | ON | 825 | |
| Med-Hi | ON | OFF | 1150 | |
| High | OFF | OFF | 1298 | |
| TEM6A0C48H41SC, TEM6B0C60H5ISA Airflow Performance with Auxiliary Heat | ||||
| Airflow Settings | Dip Switch Settings | Nominal Airflow | See following tables for heater application: – Pressure Drop for Electrical Heaters Minimum Heating Airflow Matrix (on unit nameplates) | |
| Switch 7 | Switch 8 | |||
| Low | ON | ON | 1000 | |
| Med-Lo | OFF | ON | 1130 | |
| Med-Hi | ON | OFF | 1354 | |
| High | OFF | OFF | 1596 | |
Outline Drawing

| PRODUCT DIMENSIONS | |||||||||
| Air Handler Model | A | B | C | D | E | F | H | Flow Control | Gas Line Braze |
| TEM6A0B24, 30 | 47. | 18.50 | 16.50 | 17. | 5. | 7. | 20. | TXV | 3/4 |
| TEM6A0C36, 42 | 51. | 23.50 | 21.50 | 22. | 7. | 10. | 25. | TXV | 7/8 |
| TEM6A0C48/ TEM6B0C60 | 57.40 | 23.50 | 21.50 | 22. | 5. | 10. | 27. | TXV | 7/8 |
| All dimensions are in inches | |||||||||
Heater Pressure Drop Table
| Airflow CFM | Number of Racks | Heater Racks | |||||
| 1 | 2 | 3 | 4 | Heater Model | No. of Racks | ||
| Air Pressure Drop – Inches W.G. | BAYHTR1504 | 1 | |||||
| 1800 | 0.02 | 0.04 | 0.06 | 0.14 | BAYHTR1505 | 1 | |
| 1700 | 0.02 | 0.04 | 0.06 | 0.14 | BAYHTR1508 | 2 | |
| 1600 | 0.02 | 0.04 | 0.06 | 0.13 | BAYHTR1510 | 2 | |
| 1500 | 0.02 | 0.04 | 0.06 | 0.12 | BAYHTR1517 | 3 | |
| 1400 | 0.02 | 0.04 | 0.06 | 0.12 | BAYHTR3510 | 3 | |
| 1300 | 0.02 | 0.04 | 0.05 | 0.11 | BAYHTR3517 | 3 | |
| 1200 | 0.01 | 0.04 | 0.05 | 0.10 | BAYHTR1523 | 4 | |
| 1100 | 0.01 | 0.03 | 0.05 | 0.09 | BAYHTR1525 | 4 | |
| 1000 | 0.01 | 0.03 | 0.04 | 0.09 | |||
| 900 | 0.01 | 0.03 | 0.04 | 0.08 | |||
| 800 | 0.01 | 0.03 | |||||
| 700 | 0.01 | 0.02 | |||||
| 600 | 0.01 | 0.02 | |||||
Subcooling Adjustment
| System Matched with: | Indoor Unit Model No. | Outdoor Model No. | Subcooling |
| 16 SEER HP — 2 ton | TEM6A0C36H31 | 4TWR6024H1000A 4TWX6024H1000A 4A6H6024H1000A | 13 Degrees |
| 15 SEER HP — 2 ton | TEM6A0B24H21 TEM6A0B30H21 | 4TWR5024G1000A 4A6HSO24G1000A | 14 Degrees |
| 15 SEER HP — 3 ton | TEM6A0B30H21 TEM6A0C36H31 TEM6A0C42H41 | 4TWR5036G1000A 4A6HSO36G1000A | 14 Degrees |
| All other matches must be charged per the nameplate charging instructions | |||
Subcooling Adjustment for TEM6A0C48H41 & TEM6B0C60H51
| Sub-Cooling Charge Specification For AHRI Rated Performance | ||
| OD Equipment | Up Flow / Horizontal | Down Flow |
| AC UNIT | OD Name Plate | OD Name Plate |
| HP UNIT .s 3.5 Tons | OD Name Plate | OD Name Plate + 4 Degrees |
| HP UNIT = 4 and S Tons | OD Name Plate | OD Name Plate |
Coil Conversion Instructions
Downflow
Follow the conversion steps when installing the air handler in downflow configuration.
- Remove the front panels panel from the air handler.
The coil and line set panel do not need to be separated. - Remove the fasteners on both sides of the coil.
- Remove the two screws holding the center horizontal bracket and rotate out of place. Retain parts.

- Slide the coil assembly out. Remove and discard the horizontal drain pan.

- On both sides of the cabinet, remove the screws that hold the coil support brackets and retain for later use. Seal the holes to prevent air leakage.
- Rotate and lift the two coil support brackets to remove from front slots in cabinet.

- Rotate the unit into the downflow orientation.
- Pre-drill two clearance holes in the cabinet at dimples located below the location the screws were removed for the coil support brackets. There is one hole per side. See location of holes.
- Replace the center horizontal bracket removed in Step 3. Use the screws retained from Step 3 to attach.
- Place coil support brackets into the lower set of slots and rotate into place. Push downward to lock into place.
- Secure each bracket with a screw that were previously removed.

- Slide the coil assembly back into the air handler cabinet as shown.
- Remove the appropriate knock out for the condensate piping.

- Replace all panels.

Horizontal Right
Follow the conversion steps when installing the air handler in horizontal right configuration.
- Remove the front panels from the air handler. The coil and line set panel do not need to be separated.
- Remove the fasteners on both sides of the coil. Retain the coil retaining brackets and screws.
- Remove the two screws holding the center horizontal bracket and rotate out of place. Retain parts.

- Make note of the horizontal drain pan orientation (up/down).
- Slide the coil assembly out.
Important: For Horizontal Right applications, ON SOME MODELS the top panel assembly of the coil must be rotated for proper condensate management. - On the right side of the top baffle, position a flathead tip underneath the top baffle flange and pivot the screwdriver downward to release the front tab as shown below.
- Repeat for right rear tab to release top baffle assembly from coil.

- Rotate 180 degrees and snap all four corner tabs to lock in place.
- Remove left side water diverter brackets and screws and reinstall on the right side.
The coil slabs are different and the mount hole locations will vary. See the illustrations on the following pages that correspond to the unit tonnage to see the correct mounting position of the water diverter bracket.
Important: The water diverter brackets are not symmetrical and will vary by tonnage.



- Relocate the horizontal drain pan from the left side of the coil to the right side.
- Remove the drain pan support bracket. Do not discard. Remove the two drain plugs from the front of the drain pan and insert them in the drains at the rear of the drain pan.
Important : When reinstalling coil in Step 13, it is important that the coil corner locks in place under the tab in the side bracket to support the coil weight horizontally.
- Reinstall the drain pan support bracket. The bracket should be located between the two drain plugs as shown.

- Slide the coil assembly back into the air handler cabinet.
Important: Make sure that the coil corner locks in place under the tab in the side left bracket to support the coil weight in the horizontal right position. - Replace the center horizontal bracket using screws removed earlier in Step 3.
- Replace the two coil retaining brackets removed in a previous step.
- Replace all panels.

Checkout Procedures
The final phase of the installation is the system Checkout Procedures. The following list represents the most common items covered in a Checkout Procedure. Confirm all requirements in this document have been met.
- All wiring connections are tight and properly secured.
- Voltage and running current are within limits.
- All refrigerant lines (internal and external to equipment) are isolated, secure, and not in direct contact with each other or structure.
- All braze connections have been checked for leaks. A vacuum of 350 microns provides confirmation that the refrigeration system is leak free and dry.
- Final unit inspection to confirm factory tubing has not shifted during shipment. Adjust tubing if necessary so tubes do not rub against each other or any component when unit runs.
- Ductwork is sealed and insulated.
- All drain lines are clear with joints properly sealed. Pour water into drain pan to confirm proper drainage. Provide enough water to ensure drain trap is primed.
- Supply registers and return grilles are open, unobstructed, and air filter is installed.
- Indoor blower and outdoor fan are operating smoothly and without obstruction.
- Indoor blower motor set on correct speed setting to deliver required CFM. “Blower and fan set screws are tight.”
- Cover panels are in place and properly tightened.
- For gas heating systems, manifold pressure has been checked and all gas line connections are tight and leak free.
- For gas heating systems, flue gas is properly vented.
- System functions safely and properly in all modes.
- Owner has been instructed on use of system and given manual.
About Trane and American Standard Heating and Air Conditioning
Trane and American Standard create comfortable, energy efficient indoor environments for residential applications. For more information, please visit www.trane.com or www.americanstandardair.com.
![]()
The manufacturer has a policy of continuous data improvement and it reserves the right to change design and specifications without notice. We are committed to using environmentally conscious print practices.
18-GF74D1-1T-EN 14 Oct 2022
Supersedes 18-GF74D1-1R-EN (July 2022)
©2022

Insulate the primary drain line to prevent sweating where dew point temperatures may be met. (Insulation is optional depending on climate and application needs.)
If the airflow needs to be increased or decreased, see the Airflow Label on the air handler or Blower Performance Table. Be sure to set the correct airflow for cooling and heating. Switches 1-4 Cooling Airflow Switches 5-6 Fan Off Delay Options Switches 7-8 Auxiliary Heat







Important: For Horizontal Right applications, ON SOME MODELS the top panel assembly of the coil must be rotated for proper condensate management.





















