Submittal
1.5 Ton
Convertible Air Handler
A4AH6E19A1B30B
March 2022
AA44AAHH66EE1199AA11BB–SSUUBB–11BB–EENN
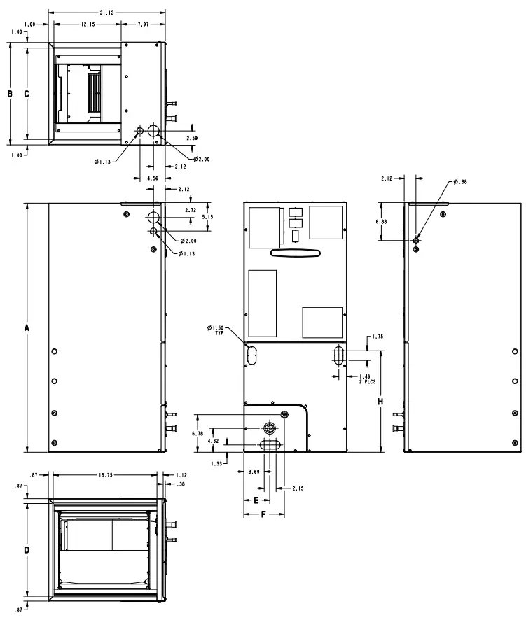
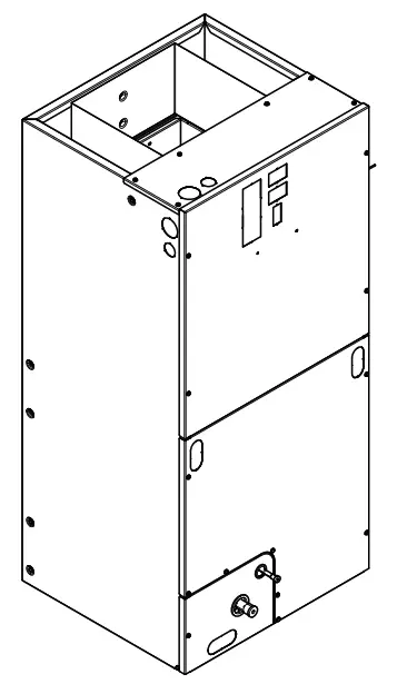
Outline Drawing

| MINIMUM UNIT CLEARANCE TABLE | |
| SERVICE CLEARANCE (RECOMMENDED) | |
| SIDES | 2″ |
| FRONT | 21″ |
| BACK | 0″ |
| INLET DUCT | 1″ |
| OUTLET DUCT | N/A |
NOTE: THIS UNIT IS APPROVED FOR INSTALLATION CLEARANCES TO COMBUSTIBLE MATERIAL AS AS STATED ON THE UNIT RATING NAMEPLATE
NOTE: ALL DIMENSIONS ARE REFERENCE DIMENSIONS
| PRODUCT DIMENSIONS | |||||||||
| Air Handler Model | A | B | C | D | E | F | H | Flow Control | Gas Line Braze |
| A4AH6E19A1B | 45.02 | 18.50 | 16.50 | 16.75 | 4.68 | 7.33 | 18.34 | TXV | 3/4 |
| All dimensions are in inches | |||||||||
Product Specifications
| MODEL | A4AH6E19A1B30B |
| RATED VOLTS/PH/HZ | 208-230/1/60 |
| RATINGS(a) | See O.D. Specifications |
| INDOOR COIL — Type | Plate Fin |
| Rows — F.P.I. | 3 – 14 |
| Face Area (sq. ft.) | 4.37 |
| Tube Size (in.) | 3/8 |
| Refrigerant Control | TXV |
| Drain Conn. Size (in.)(b) | 3/4 NPT |
| DUCT CONNECTIONS | See Outline Drawing |
| INDOOR FAN — Type | Centrifugal |
| Diameter-Width (In.) | 11 X 6 |
| No. Used | 1 |
| Drive – No. Speeds | Direct – 4 |
| CFM vs. in. w.g. | See Fan Performance Table |
| No. Motors — H.P. | 1 – 1/3 |
| Motor Speed R.P.M. | 1050 |
| Volts/Ph/Hz | 208-230/1/60 |
| F.L. Amps | 2.8 |
| FILTER | |
| Filter Furnished? (c) | No |
| REFRIGERANT | R-410A |
| Ref. Line Connections | Brazed |
| Coupling or Conn. Size — in. Gas | 3/4 |
| Coupling or Conn. Size — in. Liq. | 3/8 |
| DIMENSIONS | H x W x D |
| Crated (In.) | 46 x 21 x 24 |
| Uncrated | 45-1/8 x 18-1/2 x 21-1/8 |
| WEIGHT | |
| Shipping (Lbs.) / Net (Lbs.) | 116/110 |
(a) These Air Handlers are A.H.R.I certified with various Split System Air Conditioners and Heat Pumps (AHRI STANDARD 210/240). Refer to the Split System Outdoor Unit Product Data Guides for performance data.
(b) 3/4” Male Plastic Pipe (Ref: ASTM 1785–76)
(c) Remote filter required.
Minimum Airflow CFM
A4AH6E19A1B30B | ||
| Heater | Minimum Heat Speed Tap | |
| With Heat Pump | Without Heat Pump | |
| BAYHTR1504BRK, BAYHTR1504LUG, BAYHTR1505BRK, BAYHTR1505LUG | Low | Low |
| BAYHTR1508BRK, BAYHTR1508LUG, BAYHTR1510BRK, BAYHTR1510LUG, BAYHTR3510LUG | High | Med |
Heater Pressure Drop Table
| Airflow CFM | Number of Racks | Heater Racks | |||||
| 1 | 2 | 3 | 4 | Heater Model | No. of Racks | ||
| Air Pressure Drop — Inches W.G. | BAYHTR1504 | 1 | |||||
| 1800 | 0.02 | 0.04 | 0.06 | 0.14 | BAYHTR1505 | 1 | |
| 1700 | 0.02 | 0.04 | 0.06 | 0.14 | BAYHTR1508 | 2 | |
| 1600 | 0.02 | 0.04 | 0.06 | 0.13 | BAYHTR1510 | 2 | |
| 1500 | 0.02 | 0.04 | 0.06 | 0.12 | BAYHTR1517 | 3 | |
| 1400 | 0.02 | 0.04 | 0.06 | 0.12 | BAYHTR3510 | 3 | |
| 1300 | 0.02 | 0.04 | 0.05 | 0.11 | BAYHTR3517 | 3 | |
| 1200 | 0.01 | 0.04 | 0.05 | 0.10 | BAYHTR3515 | 3 | |
| 1100 | 0.01 | 0.03 | 0.05 | 0.09 | BAYHTR1523 | 4 | |
| 1000 | 0.01 | 0.03 | 0.04 | 0.09 | BAYHTR1525 | 4 | |
| 900 | 0.01 | 0.03 | 0.04 | 0.08 | |||
| 800 | 0.01 | 0.03 | |||||
| 700 | 0.01 | 0.02 | |||||
| 600 | 0.01 | 0.02 | |||||
Performance and Electrical Data
- See Product Data or Air Handler nameplate for approved combinations of Air Handlers and Heaters.
- Heater model numbers may have additional suffix digits.
Table 1. Air Flow Performance
A4AH6E19A1B30B | ||||
| EXTERNAL STATIC (in w.g) | AIRFLOW | |||
| Speed Taps — 208 – 230 VOLTS | ||||
| High | Med-High | Med † | Low | |
| 0.1 | 860 | 773 | 652 | 589 |
| 0.2 | 817 | 732 | 589 | 528 |
| 0.3 | 767 | 679 | 515 | 445 |
| 0.4 | 709 | 612 | 431 | 339 |
| 0.5 | 644 | 533 | 336 | 210 |
| 0.6 | 571 | 441 | 232 | |
| 0.7 | 491 | 336 | 116 | |
| Notes: 1. Values are with wet coil, no filter, and no heaters 2. CFM Correction for dry coil = Add 3% 3. † = Factory Setting 4.Low = Taps 1–2, Med = Tap 3, Med-High= Tap 4, High = Tap 5 | ||||
Table 2. Electrical Data
| A4AH6E19A1B30B | |||||||||||
| Heater Model No. | No. of Circuits/ Phases | 240 Volt | 208 Volt | ||||||||
| Capacity | Heater Amps per Circuit | Minimum Circuit Ampacity | Maximum Overload Protection | Capacity | Heater Amps per Circuit | Minimum Circuit Ampacity | Maximum Overload Protection | ||||
| kW | BTUH | kW | BTUH | ||||||||
| No Heater | 4.1 * | 8 | 15 | 4.1 * | 8 | 15 | |||||
| BAYHTR1504BRK BAYHTR1504LUG | 1/1 | 3.8 | 13100 | 16.0 | 28 | 30 | 2.9 | 9800 | 13.8 | 25 | 25 |
| BAYHTR1505BRK BAYHTR1505LUG | 1/1 | 4.8 | 16400 | 20.0 | 33 | 35 | 3.6 | 12300 | 17.3 | 29 | 30 |
| BAYHTR1508BRK BAYHTR1508LUG | 1/1 | 7.7 | 26200 | 32.0 | 48 | 50 | 5.8 | 19700 | 27.7 | 42 | 45 |
| BAYHTR1510BRK BAYHTR1510LUG | 1/1 | 9.6 | 32800 | 40.0 | 58 | 60 | 7.2 | 24600 | 34.6 | 51 | 60 |
| BAYHTR3510LUG | 1/3 | 9.6 | 32800 | 23.1 | 36 | 40 | 7.2 | 24600 | 20.0 | 32 | 35 |
| * = Motor Amps | |||||||||||
Features and Benefits
- Galvanized metal cabinet with captured foil face insulation
- 2% or less air leakage
- R-4.2 Insulating Value
- Multi-Position UP/Down Flow, Horizontal Left /Right
- ALL Aluminum Coil
- Electric Heaters with polarized plug connections (sold as accessories)
- R-410A Thermal Expansion Valve
- ECM Motor ((33..55 –– 55 TToonn MMooddeellss ))
- Low Voltage Pigtail Connections
- Draw Through Design
- Horizontal Drain pan
- Single Color
- Fused 24V Power
- 5 year warranty
- Optional extended warranty available
Important: Condensate management kit is required for all 5-ton air handler models installed in downflow applications.
About Trane and American Standard Heating and Air Conditioning
Trane and American Standard create comfortable, energy-efficient indoor environments for residential applications.
For more information, please visit www.trane.com or www.americanstandardair.com.
The manufacturer has a policy of continuous data improvement and it reserves the right to change design and specifications without notice.
We are committed to using environmentally conscious print practices.
A4AH6E19A1B-SUB-1B-EN 09 Mar 2022 Supersedes A4AH6E19A1B-SUB-1A-EN (December 2020) ©2022














