TEM4A0B30S31SB Convertible Air Handler
Instructions
TAG:______________________________
SAFETY WARNING
Only qualified personnel should install and service the equipment. The installation, starting up, and servicing of heating, ventilating, and air-conditioning equipment can be hazardous and requires specific knowledge and training. Improperly installed, adjusted, or altered equipment by an unqualified person could result in death or serious injury. When working on the equipment, observe all precautions in the literature and on the tags, stickers, and labels that are attached to the equipment.
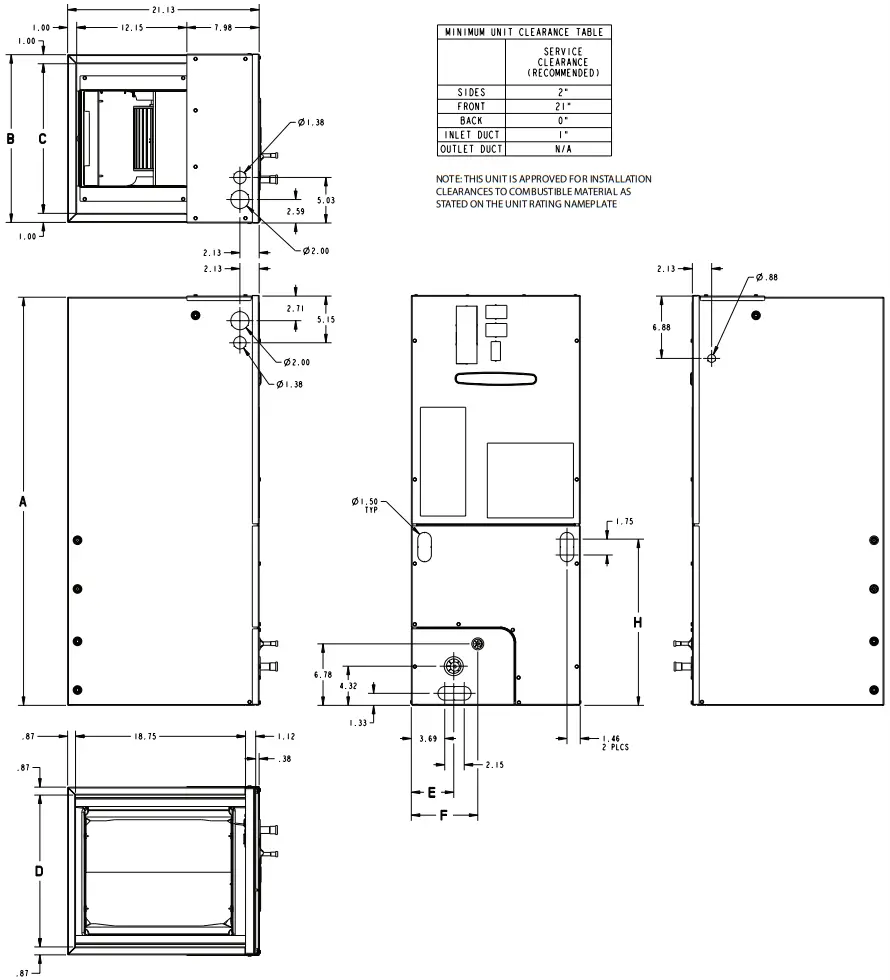
Outline Drawing

| PRODUCT DIMENSIONS | |||||||||
| Air Handler Model | A | B | C | D | E | F | H | Flow Control | Gas Line Braze |
| TEM4A0B30S31SB | 45.02 | 18.50 | 16.50 | 16.75 | 4.68 | 7.33 | 18.34 | TXV | 3/4 |
| All dimensions are in inches | |||||||||
Product Specifications
| MODEL | TEM4A0B30S31SB |
| RATED VOLTS/PH/HZ | 208-230/1/60 |
| RATINGS(a) | See O.D. Specifications |
| INDOOR COIL — Type | Plate Fin |
| Rows — F.P.I. | 3 – 14 |
| Face Area (sq. ft.) | 4.37 |
| Tube Size (in.) | 3/8 |
| Refrigerant Control | TXV |
| Drain Conn. Size (in.)(b) | 3/4 NPT |
| DUCT CONNECTIONS | See Outline Drawing |
| INDOOR FAN — Type | Centrifugal |
| Diameter-Width (In.) | 11 X 8 |
| No. Used | 1 |
| Drive – No. Speeds | Direct – 3 |
| CFM vs. in. w.g. | See Fan Performance Table |
| No. Motors — H.P. | 1 – 1/3 |
| Motor Speed R.P.M. | 1075 |
| Volts/Ph/Hz | 208-230/1/60 |
| F.L. Amps | 2.0 |
| FILTER | |
| Filter Furnished? (c) | No |
| REFRIGERANT | R-410A |
| Ref. Line Connections | Brazed |
| Coupling or Conn. Size — in. Gas | 3/4 |
| Coupling or Conn. Size — in. Liq. | 3/8 |
| DIMENSIONS | H x W x D |
| Crated (In.) | 46 x 21 x 24 |
| Uncrated | 45-1/8 x 18-1/2 x 21-1/8 |
| WEIGHT | |
| Shipping (Lbs.) / Net (Lbs.) | 116/110 |
(a). These Air Handlers are A.H.R.I certified with various Split System Air Conditioners and Heat Pumps (AHRI STANDARD 210/240). Refer to the Split System Outdoor Unit Product Data Guides for performance data.
(b). 3/4” Male Plastic Pipe (Ref: ASTM 1785–76)
(c). Remote filter required.
Minimum Airflow CFM
| TEM4A0B30S31SB | ||
| Heater | Minimum Heat Speed Tap | |
| With Heat Pump | Without Heat Pump | |
| BAYHTR1504BRK, BAYHTR1504LUG, BAYHTR1505BRK, BAYHTR1505LUG | Low | Low |
| BAYHTR1508BRK, BAYHTR1508LUG, BAYHTR1510BRK, BAYHTR1510LUG, BAYHTR3510LUG | Low | Low |
| BAYHTR1517BRK | Med | Low |
| BAYHTR3517LUG | High | Low |
Heater Pressure Drop Table TEM Air Handler Models
| Airflow CFM | Number of Racks | Heater Racks | |||||
| 1 | 2 | 3 | 4 | Heater Model | No. of Racks | ||
| Air Pressure Drop — Inches W.G. | BAYHTR1504 | 1 | |||||
| 1800 | 0.02 | 0.04 | 0.06 | 0.14 | BAYHTR1505 | 1 | |
| 1700 | 0.02 | 0.04 | 0.06 | 0.14 | BAYHTR1508 | 2 | |
| 1600 | 0.02 | 0.04 | 0.06 | 0.13 | BAYHTR1510 | 2 | |
| 1500 | 0.02 | 0.04 | 0.06 | 0.12 | BAYHTR3510 | 3 | |
| 1400 | 0.02 | 0.04 | 0.06 | 0.12 | BAYHTR1515 | 3 | |
| 1300 | 0.02 | 0.04 | 0.05 | 0.11 | BAYHTR1517 | 3 | |
| 1200 | 0.01 | 0.04 | 0.05 | 0.10 | BAYHTR3515 | 3 | |
| 1100 | 0.01 | 0.03 | 0.05 | 0.09 | BAYHTR3517 | 3 | |
| 1000 | 0.01 | 0.03 | 0.04 | 0.09 | BAYHTR1519 | 4 | |
| 900 | 0.01 | 0.03 | 0.04 | 0.08 | BAYHTR1520 | 4 | |
| 800 | 0.01 | 0.03 | BAYHTR1521 | 4 | |||
| 700 | 0.01 | 0.02 | BAYHTR1525 | 4 | |||
| 600 | 0.01 | 0.02 | |||||
Performance and Electrical Data
- See Product Data or Air Handler nameplate for approved combinations of Air Handlers and Heaters.
- Heater model numbers may have additional suffix digits.
Table 1. Air Flow Performance
| TEM4A0B30S31SB(a) | ||||||
| EXTERNAL STATIC (in w.g) | AIRFLOW | |||||
| Speed Taps — 230 VOLTS | Speed Taps — 208 VOLTS | |||||
| High | Med | Low † | High | Med | Low † | |
| 0.1 | 1391 | 1305 | 1059 | 1338 | 1146 | 902 |
| 0.2 | 1305 | 1231 | 1029 | 1257 | 1098 | 868 |
| 0.3 | 1203 | 1138 | 970 | 1159 | 1027 | 817 |
| 0.4 | 1083 | 1027 | 884 | 1044 | 935 | 753 |
| 0.5 | 948 | 899 | 769 | 913 | 823 | 664 |
| 0.6 | 795 | 752 | 626 | 766 | 692 | |
| 0.7 | 626 | 587 | 603 | 542 | ||
| 1. Values are with the wet coil, no filter, and no heaters 2. CFM Correction for dry coil = Add 3% 3. † = Factory setting | ||||||
(a). For the TEM4A0B30S31SA in downflow applications, airflow must not exceed 1200 cfm due to condensate blow-off.
Table 2. Electrical Data
| TEM4A0B30S31SB | |||||||||||
| Heater Model No. | No. of Circuits/ Phases | 240 Volt | 208 Volt | ||||||||
| Capacity | Heater Amps per Circuit | Minimum Circuit Ampacity | Maximum Overload Protection | Capacity | Heater Amps per Circuit | Minimum Circuit Ampacity | Maximum Overload Protection | ||||
| kW | BTUH | kW | BTUH | ||||||||
| No Heater | 2.0 * | 3 | 15 | 2.0 * | 3 | 15 | |||||
| BAYHTR1504BRK BAYHTR1504LUG | 1/1 | 3.84 | 13100 | 16.0 | 23 | 25 | 2.88 | 9800 | 13.8 | 20 | 20 |
| BAYHTR1505BRK BAYHTR1505LUG | 1/1 | 4.8 | 16400 | 20.0 | 28 | 30 | 3.6 | 12300 | 17.3 | 24 | 25 |
| BAYHTR1508BRK BAYHTR1508LUG | 1/1 | 7.68 | 26200 | 32.0 | 43 | 45 | 5.76 | 19700 | 27.7 | 37 | 40 |
| BAYHTR1510BRK BAYHTR1510LUG | 1/1 | 9.6 | 32800 | 40.0 | 53 | 60 | 7.2 | 24600 | 34.6 | 46 | 50 |
| BAYHTR1517BRK- Circuit 1 (a) | 2/1 | 9.6 | 32800 | 40.0 | 53 | 60 | 7.2 | 24600 | 34.6 | 46 | 50 |
| BAYHTR1517BRK- Circuit 2 | 4.8 | 16400 | 20.0 | 25 | 25 | 3.6 | 12300 | 17.3 | 22 | 25 | |
| BAYHTR3510LUG | 1/3 | 9.6 | 32800 | 23.1 | 31 | 35 | 7.2 | 24600 | 20.0 | 27 | 30 |
| BAYHTR3517LUG | 1/3 | 14.4 | 49200 | 34.6 | 45 | 3050 | 10.8 | 36900 | 30.0 | 40 | 40 |
| BAYHTR1517BRK with single circuit power source kit BAYSPEKT201A | 1/1 | 14.4 | 49200 | 60.0 | 83 | 90 | 10.8 | 36900 | 51.9 | 73 | 80 |
| * = Motor Amps | |||||||||||
(a). MCA and MOP for circuit 1 contain the motor amps
Features and Benefits
- Painted metal cabinet with captured foil face insulation
- 2% or less air leakage
- R-4.2 Insulating Value
- Multi-Position UP/Down Flow, Horizontal Left /Right
- ALL Aluminum Coil with Enhanced Patented Coil Fin
- Electric Heaters with polarized plug connections (sold as an accessory)
- R-410A Thermal Expansion Valve
- ECM Motor ((3.5 –– 5 Ton Models ))
- Low Voltage Pigtail Connections
- Draw Through Design
- Horizontal Drain pan
- Single Color
- Fused 24V Power
- 3-year warranty
- 10–year warranty registered
- Optional extended warranty available
Important: Condensate management kit is required for all 5-ton air handler models installed in downflow applications.

Ingersoll Rand (NYSE: IR) advances the quality of life by creating comfortable, sustainable, and efficient environments. Our people and our family of brands — including Club Car ®, Ingersoll Rand ®, Thermo King ®, and Trane ® — work together to enhance the quality and comfort of air in homes and buildings; transport and protect food and perishables; and increase industrial productivity and efficiency. We are a global business committed to a world of sustainable progress and enduring results.
Ingersoll Rand has a policy of continuous product and product data improvements and reserves the right to change design and specifications without notice.
We are committed to using environmentally conscious print practices.
TEM4A0B30-SUB-1C-EN 08 Jan 2018
Supersedes TEM4A0B30-SUB-1B-EN (August 2017)
©2014 Ingersoll Rand
















