Ingersoll Rand TEM6A0B24H21SB Variable Speed Convertible Air Handler

Note: The TEM6 series air handler is designed for installation in a closet, utility room, alcove, basement, crawlspace or attic. These versatile units are applicable to air conditioning and heat pump applications. Several models are available to meet the specific requirements of the outdoor equipment. Field installed electric resistance heaters are available.
SAFETY WARNING
Only qualified personnel should install and service the equipment. The installation, starting up, and servicing of heating, ventilating, and air-conditioning equipment can be hazardous and requires specific knowledge and training. Improperly installed, adjusted or altered equipment by an unqualified person could result in death or serious injury. When working on the equipment, observe all precautions in the literature and on the tags, stickers, and labels that are attached to the equipment.
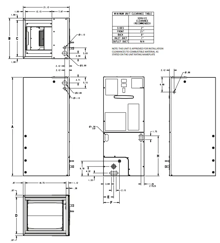
Outline Drawing
| PRODUCT DIMENSIONS | |||||||||
| Air Handler Model | A | B | C | D | E | F | H | Flow Control | Gas Line Braze |
| TEM6A0B24H21SB | 46.77 | 18.50 | 16.50 | 16.75 | 4.68 | 7.33 | 20.09 | TXV | 3/4 |
| All dimensions are in inches | |||||||||
Product Specifications
| MODEL | TEM6A0B24H21SB |
| RATED VOLTS/PH/HZ | 208-230/1/60 |
| RATINGS(a) | See O.D. Specifications |
| INDOOR COIL — Type | Plate Fin |
| Rows — F.P.I. | 4 – 14 |
| Face Area (sq. ft.) | 3.44 |
| Tube Size (in.) | 3/8 |
| Refrigerant Control | TXV |
| Drain Conn. Size (in.)(b) | 3/4 NPT |
| DUCT CONNECTIONS | See Outline Drawing |
| INDOOR FAN — Type | Centrifugal |
| Diameter-Width (In.) | 10 X 8 |
| No. Used | 1 |
| Drive – No. Speeds | Direct – 16 |
| CFM vs. in. w.g. | See Fan Performance Table |
| No. Motors — H.P. | 1 – 1/3 |
| Motor Speed R.P.M. | Variable |
| Volts/Ph/Hz | 208-230/1/60 |
| F.L. Amps | 2.8 |
| FILTER | |
| Filter Furnished? (c) | No |
| REFRIGERANT | R-410A |
| Ref. Line Connections | Brazed |
| Coupling or Conn. Size — in. Gas | 3/4 |
| Coupling or Conn. Size — in. Liq. | 3/8 |
| DIMENSIONS | H x W x D |
| Crated (In.) | 48–1/4 x 22–1/2 x 25–1/2 |
| Uncrated | 46–3/4 x 18-1/2 x 21-1/8 |
| WEIGHT | |
| Shipping (Lbs.) / Net (Lbs.) | 126/117 |
- (a) These Air Handlers are A.H.R.I certified with various Split System Air Conditioners and Heat Pumps (AHRI STANDARD 210/240). Refer to the Split System Outdoor Unit Product Data Guides for performance data.
- (b) 3/4” Male Plastic Pipe (Ref: ASTM 1785–76)
- (c) Remote filter required.
Minimum Airflow CFM
| TEM6A0B24H21SB | ||
| Heater | Minimum Heater Airflow CFM | |
| With Heat Pump | Without Heat Pump | |
| BAYHTR1504BRKC, BAYHTR1504LUGB BAYHTR1505BRKC, BAYHTR1505LUGB | 660 | 600 |
| BAYHTR1508BRKC, BAYHTR1508LUGB | 780 | 600 |
| BAYHTR1510BRKC, BAYHTR1510LUGB | 780 | 600 |
| BAYHTR1517BRKA | 1050 | 850 |
| BAYHTR3510LUGC | 780 | 600 |
| BAYHTR3517LUGA | 900 | 850 |
| TEM6A0B24H21SB Airflow Performance with Auxiliary Heat | ||||
| Airflow Settings | Dip Switch Settings | Nominal Airflow |
See following tables for heater application: – Pressure Drop for Electrical Heaters – Minimum Heating Airflow Matrix (on unit nameplates) | |
| Switch 7 | Switch 8 | |||
| Low | ON | ON | 601 | |
| Med-Lo | OFF | ON | 661 | |
| Med-Hi | ON | OFF | 781 | |
| High | OFF | OFF | 973 | |
Heater Pressure Drop Table
| Airflow CFM | Number of Racks | Heater Racks | |||||
| 1 | 2 | 3 | 4 | Heater Model | No. of Racks | ||
| Air Pressure Drop — Inches W.G. | BAYHTR1504 | 1 | |||||
| 1800 | 0.02 | 0.04 | 0.06 | 0.14 | BAYHTR1505 | 1 | |
| 1700 | 0.02 | 0.04 | 0.06 | 0.14 | BAYHTR1508 | 2 | |
| 1600 | 0.02 | 0.04 | 0.06 | 0.13 | BAYHTR1510 | 2 | |
| 1500 | 0.02 | 0.04 | 0.06 | 0.12 | BAYHTR1516 | 3 | |
| 1400 | 0.02 | 0.04 | 0.06 | 0.12 | BAYHTR1517 | 3 | |
| 1300 | 0.02 | 0.04 | 0.05 | 0.11 | BAYHTR3510 | 3 | |
| 1200 | 0.01 | 0.04 | 0.05 | 0.10 | BAYHTR3517 | 3 | |
| 1100 | 0.01 | 0.03 | 0.05 | 0.09 | BAYHTR3515 | 3 | |
| 1000 | 0.01 | 0.03 | 0.04 | 0.09 | BAYHTR1522 | 4 | |
| 900 | 0.01 | 0.03 | 0.04 | 0.08 | BAYHTR1525 | 4 | |
| 800 | 0.01 | 0.03 | |||||
| 700 | 0.01 | 0.02 | |||||
| 600 | 0.01 | 0.02 | |||||
Subcooling Adjustment
| System Matched with: | Indoor Unit Model No. | Outdoor Model No. | Subcooling |
| 16 SEER HP — 2 ton | TEM6A0C36H31 | 4TWR6024H1000A 4TWX6024H1000A 4A6H6024H1000A | 13 Degrees |
| 15 SEER HP — 2 ton | TEM6A0B24H21 TEM6A0B30H21 | 4TWR5024G1000A 4A6H5024G1000A | 14 Degrees |
| 15 SEER HP — 3 ton | TEM6A0B30H21 TEM6A0C36H31 TEM6A0C42H41 | 4TWR5036G1000A 4A6H5036G1000A | 14 Degrees |
| All other matches must be charged per the nameplate charging instructions | |||
Performance and Electrical Data
Table 1. Air Flow Performance
| TEM6A0B24H21SB COOLING AIRFLOW PERFORMANCE, WET COIL, NO FILTER, NO HEATER | ||||||||||||
| OUTDOOR UNIT SIZE (TONS) | SPEED SETTING | AIRFLOW SETTING | DIP SWITCH SETTING | AIRFLOW POWER | EXTERNAL STATIC PRESSURE | |||||||
| SW1 | SW2 | SW3 | SW4 | 0.1 | 0.3 | 0.5 | 0.7 | 0.9 | ||||
|
1.5 | LOW | 353 CFM/ ton | ON | ON | OFF | ON | CFM Watts | 533 52 | 497 78 | 461 104 | 425 130 | 390 157 |
| NORMAL | 401 CFM/ ton | ON | ON | OFF | OFF | CFM Watts | 611 65 | 580 95 | 548 125 | 517 155 | 486 185 | |
| HIGH | 451 CFM/ ton | ON | ON | ON | OFF | CFM Watts | 684 81 | 668 115 | 644 148 | 611 182 | 570 215 | |
|
2 | LOW | 343 CFM/ ton | OFF | ON | OFF | ON | CFM Watts | 687 82 | 672 115 | 648 149 | 614 182 | 571 215 |
| NORMAL | 390 CFM/ ton | OFF | ON | OFF | OFF | CFM Watts | 789 104 | 798 145 | 780 183 | 735 216 | 663 246 | |
| HIGH | 439 CFM/ ton | OFF | ON | ON | OFF | CFM Watts | 884 135 | 887 177 | 882 230 | 845 274 | 751 290 | |
|
2.5 | LOW | 300 CFM/ ton | ON | OFF | OFF | ON | CFM Watts | 752 92 | 749 123 | 729 167 | 691 211 | 636 241 |
| NORMAL (a) | 340 CFM/ ton | OFF | OFF | OFF | OFF | CFM Watts | 859 128 | 861 172 | 863 211 | 830 242 | 727 268 | |
| HIGH | 383 CFM/ ton | ON | OFF | ON | OFF | CFM Watts | 963 172 | 973 223 | 995 263 | 967 291 | 844 308 | |
(a) Factory Default Setting
Table 2. Air Flow Performance
| TEM6A0B24H21SB HEATING AIRFLOW PERFORMANCE, NO FILTER, NO HEATER | ||||||||||||
| OUTDOOR UNIT SIZE (TONS) | SPEED SETTING | AIRFLOW SETTING | DIP SWITCH SETTING | AIRFLOW POWER | EXTERNAL STATIC PRESSURE | |||||||
| SW1 | SW2 | SW3 | SW4 | 0.1 | 0.3 | 0.5 | 0.7 | 0.9 | ||||
|
1.5 | LOW | 394 CFM/ ton | ON | ON | OFF | ON | CFM Watts | 599 58 | 571 88 | 539 117 | 502 146 | 462 175 |
| NORMAL | 448 CFM/ ton | ON | ON | OFF | OFF | CFM Watts | 680 72 | 665 109 | 641 145 | 610 178 | 572 209 | |
| HIGH | 493 CFM/ ton | ON | ON | ON | OFF | CFM Watts | 748 89 | 746 118 | 682 163 | 545 208 | 326 240 | |
|
2 | LOW | 393 CFM/ ton | OFF | ON | OFF | ON | CFM Watts | 785 97 | 790 128 | 773 175 | 735 223 | 674 253 |
| NORMAL | 446 CFM/ ton | OFF | ON | OFF | OFF | CFM Watts | 904 131 | 902 179 | 912 219 | 894 253 | 809 281 | |
| HIGH | 491 CFM/ ton | OFF | ON | ON | OFF | CFM Watts | 980 167 | 972 216 | 990 268 | 974 308 | 863 324 | |
|
2.5 | LOW | 350 CFM/ ton | ON | OFF | OFF | ON | CFM Watts | 866 125 | 870 162 | 866 215 | 833 263 | 750 286 |
| NORMAL (a) | 398 CFM/ ton | ON | OFF | OFF | OFF | CFM Watts | 995 171 | 988 222 | 1005 271 | 986 309 | 872 325 | |
| HIGH | 437 CFM/ ton | ON | OFF | ON | OFF | CFM Watts | 1099 220 | 1086 274 | 1098 328 | 1065 362 | 918 353 | |
(a) Factory Default Setting
- See Product Data or Air Handler nameplate for approved combinations of Air Handlers and Heaters.
- Heater model numbers may have additional suffix digits.
Table 3. Electrical Data
| TEM6A0B24H21SB HEATER DATA | |||||||||||
| Heater Model No. | No. of Circuits/ Phases | 240 Volt | 208 Volt | ||||||||
| Capacity | Heater Amps per Circuit | Minimum Circuit Ampacity | Maximum Overload Protection | Capacity | Heater Amps per Circuit | Minimum Circuit Ampacity | Maximum Overload Protection | ||||
| kW | BTUH | kW | BTUH | ||||||||
| No Heater | 2.5 * | 3 | 15 | 2.5 * | 3 | 15 | |||||
| BAYHTR1504BRKC BAYHTR1504LUGB | 1/1 | 3.84 | 13100 | 16.0 | 23 | 25 | 2.88 | 9800 | 13.8 | 20 | 20 |
| BAYHTR1505BRKC BAYHTR1505LUGB | 1/1 | 4.80 | 16400 | 20.0 | 28 | 30 | 3.60 | 12300 | 17.3 | 25 | 25 |
| BAYHTR1508BRKC BAYHTR1508LUGB | 1/1 | 7.68 | 26200 | 32.0 | 43 | 45 | 5.76 | 19700 | 27.7 | 38 | 40 |
| BAYHTR1510BRKC BAYHTR1510LUGB | 1/1 | 9.60 | 32800 | 40.0 | 53 | 60 | 7.20 | 24600 | 34.6 | 46 | 50 |
| BAYHTR1517BRKA Circuit 1 (a) | 2/1 | 9.60 | 32800 | 40.0 | 53 | 60 | 7.20 | 24600 | 34.6 | 46 | 50 |
| BAYHTR1517BRKA Circuit 2 | 4.80 | 16400 | 20.0 | 25 | 25 | 3.60 | 12300 | 17.3 | 22 | 25 | |
| BAYHTR3510LUGC | 1/3 | 9.60 | 32800 | 23.1 | 32 | 35 | 7.20 | 24600 | 20.0 | 28 | 30 |
| BAYHTR3517LUGA | 1/3 | 14.40 | 49100 | 34.6 | 46 | 50 | 10.80 | 36900 | 30.0 | 40 | 45 |
| * = Motor Amps | |||||||||||
(a) MCA and MOP for circuit 1 contains the motor amps
Features and Benefits
- Painted metal cabinet with captured foil face insulation
- 2% or less air leakage
- R-4.2 Insulating Value
- Multi-Position UP/Down Flow, Horizontal Left /Right
- ALL Aluminum Coil with Enhanced Patented Coil Fin
- Electric Heaters with polarized plug connections (sold as accessory)
- R-410A Thermal Expansion Valve
- Variable Speed ECM Motor
- Low Voltage Pigtail Connections
- Draw Through Design
- Horizontal Drain Pan
- Single Color
- Fused 24V Power
- 3 year warranty
- 10–year warranty registered
- Optional extended warranty available
Ingersoll Rand (NYSE: IR) advances the quality of life by creating comfortable, sustainable and efficient environments. Our people and our family of brands — including Club Car®, Ingersoll Rand®, Thermo King® and Trane®—work together to enhance the quality and comfort of air in homes and buildings; transport and protect food and perishables; and increase industrial productivity and efficiency. We are a global business committed to a world of sustainable progress and enduring results.
Ingersoll Rand has a policy of continuous product and product data improvements and reserves the right to change design and specifications without notice.We are committed to using environmentally conscious print practices.
TEM6A0B24-SUB-1C-EN 08 Jan 2018 Supersedes TEM6A0B24-SUB-1B-EN (August 2017)


















