ASSA ABLOY Induro Mortice Lock Apex Mini-Lever Set

Installation Instructions
Application: Provides secure deadlocking for aluminium or timber hinged doors.
Tools Required:
- Drill
- 2.9mm Drill Bit
- 3.2mm Drill Bit
- 20.0mm Drill Bit
- Square Screwdriver #1
Pack Contents

- 4-Point Lock (50mm Backset Shown)
- Mini Lever (x2)
- Cylinder Escutcheon (x 2)
- 92mm Drive Bar (Spindle)

Door Preparation
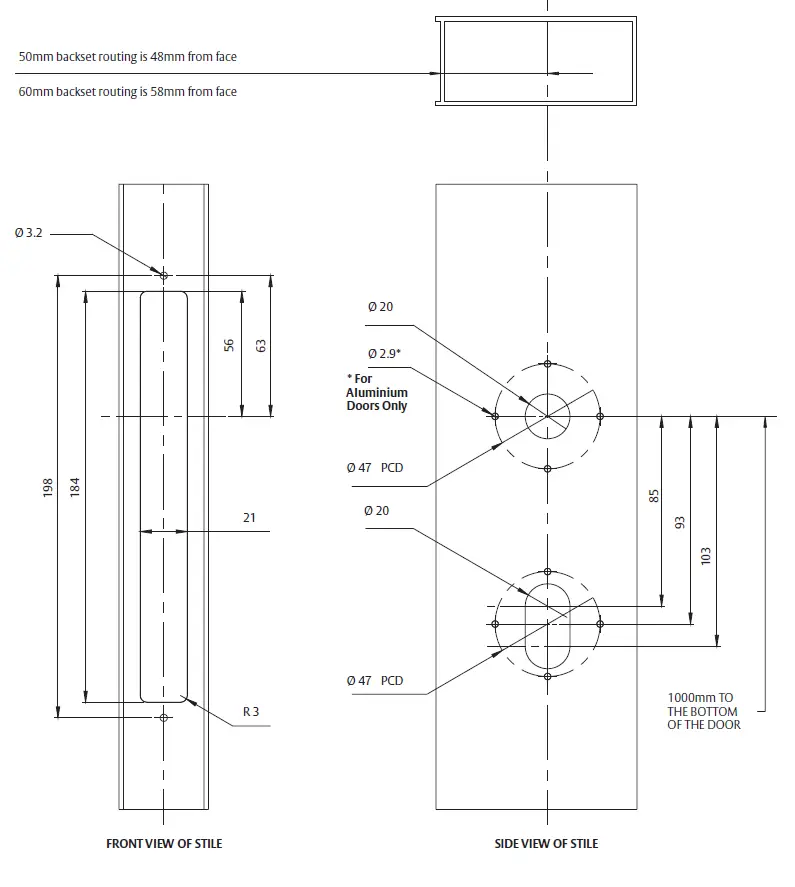
Route the door as shown in the routing diagram.
TOP VIEW OF STILE


Fixing Lock
- Place the lock assembly into the stile
- Fix the lock onto the stile using the two 8g x 7.5mm screws

Fixing Furniture and Cylinder
- Insert the drive bar (spindle) through the square drive hole in the lock
- Place the mini-lever furniture onto the drive bar. Fix internal rose to stile using four 6g x 16mm screws. Repeat on external side of the stile
- Place the cylinder through the cylinder hole
- Fix cylinder using the M5 cylinder fixing screw as supplied
- Place the euro escutcheon rose over the cylinder and fix to stile using four 6g x 16mm screws. Repeat for external rose
- Place covers over mini-lever and cylinder rose
Assembly of Shootbolt Rod Ends
Trim the lock rods to length allowing for:
- A throw of 20mm
- Length of ‘D’ tip
- Thread engagement into lock racks
- Plastic Rod Ends
- Insert the steel pin into the plastic ‘D’ tip. The steel pin should be inserted from the open end rather than the smaller drainage hole
- Insert the combined part into the top of the shootbolt rod
- Crimp the shootbolt rod, by applying pressure on the shootbolt rod in line with the groove around the ‘D’ tip to ensure the two parts cannot be easily separated. A tool is available for this purpose (P84042)
- Repeat steps a1-a3 again for the bottom shootbolt rod
- Insert the rods from the top and bottom of the stile and screw into the lock
- Stainless Steel Rod Ends
- Insert the supplied stainless steel ‘D’ tips into the top of the shootbolt rod
- Repeat steps b1again for the bottom shootbolt rod
- Insert the rods from the top and bottom of the stile and screw into the lock


Latch Reversal
- Undo the M4 latch screw
- Reverse the latch as desired
- Replace the M4 latch screw to secure the latch
- Insert the latch wear pad
Note: 2mm Latch Packer is provided to allow for latch projection adjustment. An additional 2mm packer is available for purchase.
Lock Operation
Deadlocking Operation
- Pull the door shut. The door will self-latch.
- Lift the handle to throw the deadbolt & shoot bolt (either when the door is unlocked or locked).
- Turn the key towards the edge of the door to deadlock.
- The door is now secure from exterior and interior.
- To retract the shootbolts and deadbolt ensure door is unlocked. Push the handle down and release.
Note: Deadbolt & shootbolt can engage at any stage of operation
Opening Operation
- Turn the key away from the door edge to deactivate the deadlock.
- If the deadbolt and shootbolts are engaged, push handle down and release.
- Retract the latch.
Troubleshooting
- Do I need to tap holes? No. All screws are self tapping.
- The furniture screws do not tighten Ensure the screws line up with the screw boss on the exterior handle.
- Do I have to use the supplied screws? For best performance, it is recommended that only the supplied screws are used.
- The key function does not operate Ensure the motion of the latch is not restricted.
WARRANTY
ASSA ABLOY New Zealand Ltd (“ASSA ABLOY”) guarantees its products against defects in workmanship and materials. If within 10 years of purchase a product is found to be defective, ASSA ABLOY will supply the same or equivalent product free of charge. All electrical and electronic components used in ASSA ABLOY’s range of products excluding batteries are guaranteed for a period of 36 months from the date of proof of purchase unless stated otherwise. ASSA ABLOY assumes no liability under the guarantee for the following:
- Improper installation or failure to follow fitting instructions.
- Failure due to improper maintenance.
- Fair wear and tear.
- Indirect or consequential loss or damage.
- Cost of removal and/or replacement.
- Cost of freight and/or traveling time.
- Damage to or deterioration of plated finishes (soft finishes). As deterioration is possible under some environmental conditions, these finishes are excluded from this guarantee.
- Any modification or repairs to a product, as supplied unless authorized by ASSA ABLOY.
- Use of replacement parts other than authorized parts.
- Malfunction or failure of the product due to the use of non-genuine ASSA ABLOY parts. Nothing in the ASSA ABLOY New Zealand Limited Warranty excludes, restricts or modifies any condition, warranty, right or liability implied or protected by law where to do so would render the Warranty, or any part of it, void.
ASSA ABLOY New Zealand Limited 6 Armstrong Road, Albany, Auckland 0632 [email protected] www.assaabloy.com/nz





















