
COD. 3.031186
ADDITIONAL KIT 2nd MIXED ZONE
FOR MAGIS PRO 12-14-16 V2 IN SUPER TRIO TOP

GENERAL WARNINGS.
All Hatteras products are protected with suitable transport packaging.
The material must be stored in a dry place protected from the weather.
This instruction manual provides technical information for installing the hitter. skit. As for the other issues related to kit installation (eg. safety at the workplace, environmental protection, accident prevention), it is necessary to comply with the provisions specified in the regulations in force and with the principles of good practice.
Improper installation or assembly of the Immergas appliance and/ or components, accessories, kits, and devices can cause unexpected problems for people, animals, and objects. Read the instructions provided with the product carefully to ensure proper installation. Installation and maintenance must be performed in compliance with the regulations in force, according to the manufacturer’s instructions and by professionally qualified staff meaning staff with specific technical skills in the plant sector, as envisioned by the law.
GENERALITIES.
An independent mixed zone is added using this kit (second zone) for coupling the Magis Pro 12-14-16 V2 Indoor Unit inside the Container Super To. Before performing any intervention, disconnect the power supply to the installed indoor unit by acting on the switch placed upstream from the appliance.
INSTALLATION IN CONTAINER SUPER TRIO (FIG. 2-3).
To install proceed as follows:
– open the door of the Container Super Trio and lock it to prevent it from getting in the way during the subsequent installation stages;
– empty the system by acting on the drain fitting (1) placed under the accumulation (2). Before draining, ensure that the system filling cock is closed;
– remove the two caps (Part. 3 and 4 Fig. 2) on the accumulation (2).
Connect the components of the second zone as described below (Fig. 1):
– assemble the second zone delivery circulator pipe (26) on the lower sheet, fixing it with the locknut (5);
– assemble the circulator (24) on the fitting interposing the seal gasket (11) and apply the insulation (13);
– assemble the connection pipe (20) on the pressure gauge interposing the seal gasket (11) and apply the insulation (13);
– assemble the mixing valve (16) on the connection pipe (20) interposing the seal gasket (11);
Attention: respect the orientation of the mixing valve, as represented in detail in Fig. 1
– Apply the IP cover (14) to the three-way motor (15) and assemble on the mixing valve, then connect it electrically;
– pre-mount the safety thermostat (9) with the 2 screws (10) and the flow probe (18) on the second zone flow pipe (20);
– assemble the system return pipe (12) on the lower sheet, fixing it with the locknut (5);
– connect the system return pipe (12) to the mixing valve interposing the sealing gasket (11) and to the accumulation (2) interposing the sealing gasket (6) and the fork (22);
– assemble the thermometer (7) on the relative bracket by connecting the capillary to the system flow pipe (20) and
fixing it with the clip (19);
– apply the insulation (21) on the connection pipe (20);
– connect the second zone delivery pipe (25) to the mixing valve interposing the sealing gasket (11) and to the accumulation (2) interposing the sealing gasket (6) and the fork (22);
– apply the left shell (8) and the right shell (23) on the circulator, locking them with the 2 clamps in the kit;
– apply the relative insulation (17) to the mixing valve, locking it with the 2 clamps in the kit.
Connection unit (on request).
The system is dispatched from the factory without the connection unit. The kit includes the pipes and fittings for connecting the pack. It is also possible to select the connection
choosing between the kit with bottom, rear or side connection.
STARTING THE SYSTEM.
Once the electrical connection stages are completed, restore the correct water pressure in the Central heating system using the relevant filling valve. Power up the Magis Pro 12-14-16 V2 Indoor Unit and check that every room thermostat (or remote control) activates the relative circulator. Bleed the system and the appliance correctly as described in the instruction booklet of the installed indoor unit.
Mixing valves initialization.
Every time that the Magis Pro 12-14-16 V2 Indoor Unit is powered, initialization of the mixing valves is carried out, closing them for three minutes. This way synchronization is
performed between the P.C.B. and the mixing valve. The transfer of heat energy to the mixed zone can only take place at the end of this initialization phase.
Checks.
It is recommended to check the maximum flow rate circulating in the system in the flow rate/head graphics in order to evaluate the correct dimensioning of the design parameters. In addition, the latter must also allow a maximum surface temperature of the radiating floor that is in compliance with that established by Standard UNI EN 1264.
CONTAINER SUPER TRIO

| KIT COMPOSITION | ||
| Ref. | Q.ty | Description |
| 5 | 2 | Lowered nut G 1″ |
| 6 | 2 | Gasket 21×4 |
| 7 | 1 | Thermometer |
| 8 | 1 | Circulator LH insulation |
| 9 | 1 | Safety thermostat |
| 10 | 2 | Fixing screws |
| 11 | 5 | Gasket 30x22x2 |
| 12 | 1 | Second zone system return pipe |
| 13 | 1 | Velcro insulation |
| 14 | 1 | Three-way motor cover |
| 15 | 1 | Mixing valve motor |
| 16 | 1 | Mixing valve |
| 17 | 1 | Mixing valve insulation |
| 18 | 1 | Flow probe |
| 19 | 1 | Clip |
| 20 | 1 | Second zone flow pipe |
| 21 | 1 | Second zone flow pipe insulation |
| 22 | 2 | Fork |
| 23 | 1 | Circulator RH insulation |
| 24 | 1 | Second zone pump |
| 25 | 1 | Second zone delivery pipe |
| 26 | 1 | Second zone circulator pipe |
CONTAINER SUPER TRIO WITH INDOOR UNIT MAGIS PRO 12-14-16 V2.

Key:
- – Drain fitting
- – Accumulation
- – Cap
- – Cap
CONTAINER SUPER TRIO WITH INDOOR UNIT MAGIS PRO 12-14-16 V2 WITH KIT.

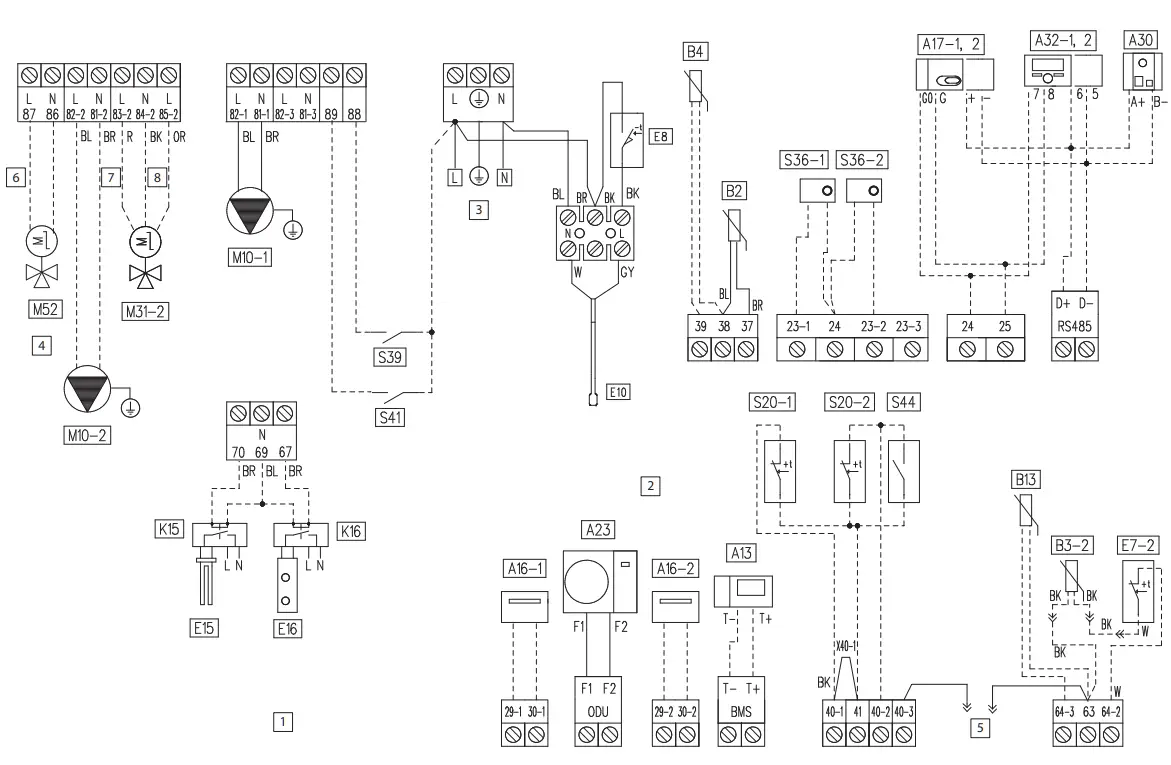
WIRING DIAGRAM FOR MAGIS PRO 12-14-16 V2INDOOR UNIT WITH OPTIONAL SECOND ZONE KITIN CONTAINER SUPER TRIO.

Once the kit is assembled, proceed with the wiring according to the wiring diagram in the instruction booklet.
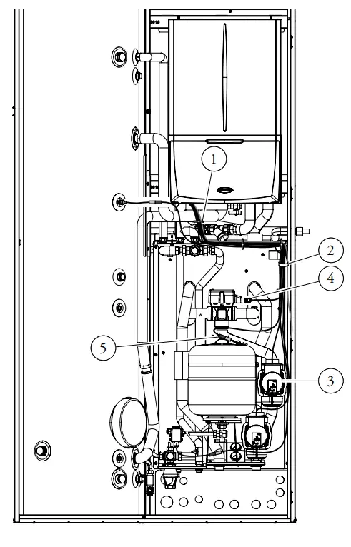
– Connect the cables in the control panel of the Magis Pro 12-14-16 V2 Indoor Unit as shown in Fig. 5.
– Lower the wiring exiting the Magis Pro 12-1416 V2 Indoor Unit until it can be secured with the clips (1-2).
– Connect the flow probe connector to the wiring marked by the label “PROBE”, then connect the wiring to the probe and connect the “T-SIC” connector to the safety thermostat (5).
– Connect the connector with the green “M-Z2” label to the circulator (3).
– Connect the connector of the mixing valve (6) marked with the “MIX.V” label.
N.B.: wind the uncovered fittings with the insulation present in the kit.
MAGIS PRO 12-14-16 V2 WIRING DIAGRAM.

Legenda:
A13 – System Manager (optional – with deum management card)
A16-1 – Zone 1 Dehumidifier (optional – with deum management card)
A16-2 – Zone 2 Dehumidifier (optional – with deum management card)
A17-1 – Zone 1 Humidity sensor (optional)
A17-2 – Zone 2 Humidity sensor (optional)
A23 – Outdoor unit
A32-1 – Zone 1 Remote Panel (optional)
A32-2 – Zone 2 Remote Panel (optional)
B2 – Storage tank probe
B3-2 – Zone 2 probe (optional)
B4 – External probe (optional)
B13 – Puffer probe (optional)
E7-2 – Zone 2 Mixed safety thermostat (optional)
E8 – Antifreeze thermostat
E10 – Antifreeze resistor
E15 – DHW electrical heater
E16 – Plant electrical heater
K15 – DHW electrical heater relay
K16 – Plant electrical heater realy
M10-1 – Zone 1 pump
M10-2 – Zone 2 pump (optional)
M31-2 – Zone 2 mixing valve (optional)
M52 – Three-way valve hot cold (optional)
S20-1 – Zone 1 Room thermostat (optional)
S20-2 – Zone 2 Room thermostat (optional)
S36-1 – Zone 1 Hygrostat (optional)
S36-2 – Zone 2 Hygrostat (optional)
S39 – Photovoltaic active input
S41 – UE Audax Pro V2 disabling contact
S44 – Heat/Cool selector
X40-1 – Zone 1 Room thermostat jumper
1 – The A16-1 and A16-2 dehumidifiers can only be connected after installing the 2 relay board (optional)
2 – Eliminate jumper X40-1 before electrical connection of the zone1 room thermostat
3 – 230 Vac – 50 Hz
4 – 2-point valve
5 – Immergas test connection
6 – Open/Close
7 – Close
8 – Open
Colour code key:
BK – Black
BL – Blue
BR – Brown
G – Green
GY – Grey
G/Y – Green/Yellow
OR – Orange
P – Violet
PK – Pink
R – Red
W – White
Y – Yellow
W/BK – White/Black
ZONE CIRCULATION PUMP.
The device is equipped with two circulator pumps: the circulator for direct zone 1 and the circulator for mixed zone 2.
- Zone 1 and 2 circulator pump
The pump is ideal for the requirements of each central heating system in a domestic and residential environment.
In fact, the pump is equipped with electronic control that allows setting advanced functions.
Adjustment
Press the button on the front to adjust the pump.
By rotation, it is possible to select the following pump control mode:
– Fixed speeds I, II, III.
– Proportional head I, II, III.
– Constant head I, II, III.
Fixed speed ![]()
Adjusts the pump speed in fixed mode.
It is possible to set 3 different speeds:
– I: Minimum Speed.
– II: Intermediate speed.
– III: Maximum speed.
N.B.: Factory set speed = Fixed speed III
Proportional head (ΔP-V) ![]()
This allows the pressure level (head) to be proportionally reduced as the system heat demand decreases (flowrate reduction). Thanks to this function, the electric power consumption of the circulator pump is reduced further: the energy (power) used by the pump decreases according to the pressure level and flow rate.
With this setting, the pump guarantees optimal performance in most heating systems, thereby being particularly suitable in single-pipe and two-pipe installations.
Any noise originating from the water flow in the pipes, valves, and radiators is eliminated by reducing the head.
Optimal conditions for thermal comfort and acoustic wellbeing.
Constant head (ΔP-C) ![]()
The circulator pump maintains the pressure level (head) constant as the system heat demand decreases (flow rate reduction).
With these settings, the circulator pump is suitable for all floor systems where all the circuits must be balanced for the same drop in the head.
- Other functions:
– The vent function of the pump is activated by pressing and holding (3 seconds) the control key and automatically venting the pump.
This function does not act on the central heating / C.H. system.
The pump venting function starts and lasts 10 minutes.
The two sets of upper and lower LEDs flash alternately every 1 second.
To interrupt, press the control key for 3 seconds.
– The manual restart is activated by pressing and holding (5 seconds) the control key and releases the pump when needed (e.g. after prolonged inactivity periods during the summer period).
– The keyboard block is activated by pressing and holding (8 seconds) the control key and blocking the pump settings. The keyboard block protects against unintentional or unauthorized pump changes.
Activate the keyboard block by pressing the control key for 8 seconds, until the selected setting LEDs flash briefly and then release.
The LEDs flash continuously 1 second apart. If the keyboard block is active, the pump settings can no longer be modified.
The deactivation of the keyboard block takes place in a similar manner to the activation.
Troubleshooting.
| Faults | Causes | Solutions |
| The pump not working with the power supply on. | Faulty electrical fuse | Check the fuses |
| The pump is without voltage | Eliminate the power supply cut-off | |
| Thepump generates noise | Cavitation due to insufficient flow pressure | Increase the system pressure within the allowed field |
| Check the head setting and eventually set a lower head | ||
| Thebuildingdoesnot heats up. | The heat output of the radiant panels is too low | Increase the delivery value |
| Set the adjustment mode to AP-c instead of AP-v |
Diagnostics in real-time
– The anomaly LED indicates a fault.
– The pump stops (depending on the fault), and performs cyclical attempts to restart.
| LED | Faults | Causes | Solutions |
| It lights up red | Block | Rotor seized | Activate the manual restart or contact the AuthorisedTechnicalService Centre |
| Contact/winding | Faulty winding | ||
| It flashes with redlight | Under/Overvoltage | Feed side power supply voltage too low/ high | Check the mains voltage and operating conditions, ask the Authorised Technical AssistanceCentre |
| Excessive module temperature | Insideofthetoo hot module | ||
| Short-circuit | Motor current too high | ||
| It flashes with red/green light | Turbine operation | The hydraulic system of the pumps is fed but the pump has no mains voltage | Check the mains voltage, the water pressure/flow rate as well as the environmental conditions |
| Dry operation | Air in the pump | ||
| Overload | The motor runs with difficulty. The pump complies with the specifications (e.g. high module temperature). The number of revolutions is lower than normal operation |
Manual restart
When a blockage is detected, the pump tries to automatically restart.
If the pump does not automatically restart:
– Activate the manual restart by pressing the control key for 5 seconds, then release.
– The restart function starts and lasts maxi() minutes. – LEDs flash one after the other clockwise.
– To interrupt, press the control key for 5 seconds.
Total head available to the system of zone 1 direct proportional head

Total head available to the system of zone 1 direct constant head

Total head available to the system of zone 1 direct constant speed

Total head available to the system of zone 1 mixed proportional head

Total head available to the system of zone 1 mixed constant head

Total head available to the system of zone 1 mixed constant speed

HYDRAULIC DIAGRAM FOR THE CONNECTION OF THE INDOOR UNIT MAGIS PRO 12-14-16 V2 V2 WITH MIXED SECOND ZONE KIT IN CONTAINER SUPER TRIO.

Key:
- – 3-way Mixing valve
- – Safety thermostat
- – Mixed zone pump/circulator
- – Mixed zone system flow probe
AC – Domestic hot water outlet
AF – Domestic cold water inlet
MZ2 – Mixed zone system flow
RZ2 – Mixed zone system return
MZ1 – Direct zone system flow
RZ1 – Direct zone system return
During the useful life of the products, performance is affected by external factors, e.g. the hardness of the DHW, atmospheric agents, deposits in the system, and so on. The data declared to refer to new products that are correctly installed and used with respect to the Standards in force.
N.B.: correct periodic maintenance is highly recommended.
Il libretto istruzioni è realizzato in carta ecologica This instruction booklet is madeof ecological paper.
![]()
Immergas TOOLBOX
The App was designed by Immergas for professionals

immergas.com
Per richiedere ulteriori approfondimenti specifici, i Professionisti del settore possono anche avvalersi dell’indirizzo e-mail: [email protected]
To request further specific details, sector Professionals can also use the following e-mail address: [email protected]
Immergas S.p.A.
42041 Brescello (RE) – Italy
Tel. 0522.689011
Fax 0522.680617



















