ALTV1224C220
AC/DC Dual Output Power Supply
Installation Guide
Overview:
Altronix ALTV1224C220 AC/DC Dual Output Power Supply is designed to provide both 12VDC and 24VAC outputs where a combination of both AC and DC outputs are required.
It provides eight (8) 3.5A 12VDC outputs and eight (8) 3.5A 24VAC outputs.
Specification:
Input:
- 220VAC, 50/60 Hz, 0.79A.
Output:
- 7A total continuous output current.
- Sixteen (16) individually fused outputs (8 outputs @ 12VDC and 8 outputs @ 24VAC) (Fig. 1).
- 3.5A continuous supply current at 12VDC.
- 3.5A continuous supply current at 24VAC.
- Filtered and electronically regulated outputs.
- Short circuit and thermal overload protection.
Fuse Ratings:
- Output fuses are rated at 3.5A / 250VAC.
- Main fuses are rated at 5A / 250VAC (Fig. 1).
Visual Indicators:
- AC input and DC output LED indicators.
Features: - Power ON/OFF switch.
- Spare fuses included.
- The unit maintains camera synchronization.
- Ease of installation saves time and eliminates costly labor.
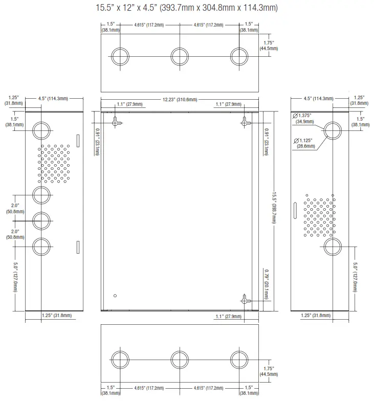
Enclosure Dimensions (H x W x D approx.): 15.5” x 12” x 4.5” (393.7mm x 304.8mm x 114.3mm). - Enclosure accommodates up to two (2) 12AH batteries.
Installation Instructions:
- Mount the unit in the desired location. Mark and predrill holes in the wall to line up with the top two keyholes in the enclosure. Install two upper fasteners and screws in the wall with the screw heads protruding. Place the enclosure’s upper keyholes over the two upper screws; level and secure. Mark the position of the lower two holes. Remove the enclosure. Drill the lower holes and install two fasteners. Place the enclosure’s upper keyholes over the two upper screws. Install the two lower screws and make sure to tighten all screws (Enclosure Dimensions, pg. 4). Secure enclosure to earth ground.
- Slide switch SW1 (Fig. 1) to the OFF position.
- Connect the unswitched AC circuit (220VAC, 50/60Hz) as follows: Green branch wire (ground) connects to the terminal marked, Line connects to the terminal marked [L], and Neutral connects to the terminal marked
of the Inlet Appliance Connector (Fig 1). - Measure output voltage before connecting devices. This helps avoid potential damage.
- Connect devices to the output terminals using the following procedure (Fig. 1):
a. Connect each DC device to terminal pairs on DC output boards 1 through 8, marked [P (+)] and [N (–)], carefully observing correct polarity.
b. Connect each AC device to terminal pairs on AC output boards 1 through 8, marked [P (+)] and [N (–)]. - When batteries are being used, the DC output voltage must be adjusted by turning the trim pot VR1 (Fig. 1)
clockwise to increase the output voltage to 13.7 VDC. Connect the battery to the terminals marked [– BAT +] (Fig. 1) on the unit (battery leads included).
CAUTION: Determine the maximum operating voltage of the equipment being powered before adjusting the output voltage. When the battery charging voltage is increased, the DC output voltage will also increase. - Slide switch SW1 (Fig. 1) to the ON position.
- Green LED on the PD8s will illuminate when power is present.
- Upon completion of the wiring secure the enclosure door with screws (supplied).
Caution: Equipment to be installed/serviced by authorized/trained personnel only.
Shut branch circuit power before installing/servicing equipment.
WARNING: To reduce the risk of fire or electric shock, do not expose the unit to rain or moisture.
This installation should be made by qualified service personnel and should conform to the National Electrical Code and all local codes.
Terminal Identification:
SMP5 – Power Supply Board
| Terminal Legend | Function/Description |
| AC / AC | Low voltage AC input (24VAC / 175VA / 220VAC). |
| + DC – | 12VDC 3.5A total continuous output. |
| – BAT + | Stand-by battery connections. Maximum charge rate 0.5A. |
PD8(CB) – DC Output
| 1P – 8P | Positive DC power outputs. |
| 1N – 8N | Negative DC power outputs. |
PD8(CB) – AC Output
| 1P – 8P | AC power outputs. |
| 1N – 8N | AC power outputs. |

The lightning flash with an arrowhead symbol within an equilateral triangle is intended to alert the user to the presence of an insulated DANGEROUS VOLTAGE within the product’s enclosure that may be of sufficient magnitude to constitute an electric shock.
The exclamation point within an equilateral triangle is intended to alert the user to the presence of important operating and maintenance (servicing) instructions in the literature accompanying the appliance.
CAUTION![]()
risk of electric shock do not open
CAUTION: To reduce the risk of electric shock do not open the enclosure.
There are no user-serviceable parts inside.
Refer servicing to qualified service personnel.
Enclosure Dimensions:

Rev. 082902
Installing Company: _______________
Service Rep. Name: __________________________________
Address: _____________________________________________
Phone #: __________________
Altronix is not responsible for any typographical errors.
140 58th Street, Brooklyn, New York 11220 USA | 718-567-8181 | fax: 718-567-9056
website: www.altronix.com | e-mail: [email protected] | Lifetime Warranty
IIALTV1224C220 J26U



















