Altronix AL168175CB Power Supply Installation

Overview
Altronix AL168CB Series Multi-Output Power Supplies provide 16VAC/18VAC distributed via eight (8) auto resettable PTC protected outputs for powering multiple security system or access control panels.
Eight 8 Output AL168 Reference Chart
|
Altronix Model Number |
Output Voltage | Total Output Current (A) | Number of PTC Protected Outputs | Output Current (max per output) |
Main Fuse Ratings on Board | 115VAC 50/60Hz Input Current |
| AL168CB | 16VAC | 6A |
8 |
2.5A | 10A/250V | 0.9A |
| 18VAC | 5.5A | |||||
| AL168175CB | 16VAC | 10A | 15A/250V | 1.45A | ||
| AL168300CB | 16VAC | 18A | 15A/32V | 2.7A | ||
| 18VAC | 16A | |||||
| AL168300CBM | 16VAC | 18A | ||||
| 18VAC | 16A | |||||
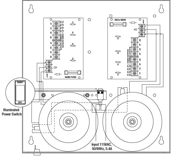
| AL168600CB | 16VAC | 40A | 6A | Two (2) 15A/32V | 5.4A | |
| 18VAC | 36A |
Specifications
Input
115VAC, 50/60Hz.
Output
- Eight (8) PTC protected
- 16VAC or 18VAC supply
- Outputs are rated 5A.
Features
- AC power LED indicator.
- Illuminated power disconnect circuit breaker with manual reset except AL168CB.
- Unit maintains camera synchronization.
- Ease of installation saves time and eliminates costly labor.
Enclosure Dimensions
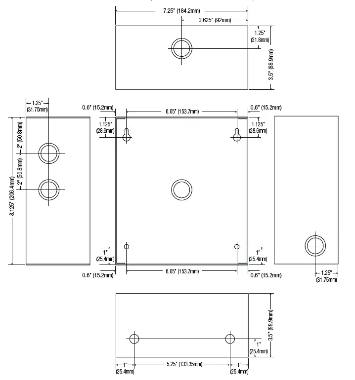
- AL168CB and AL168175CB: 8.5 x 7.5 x 3.5 215.9mm x 190.5mm x 88.9mm
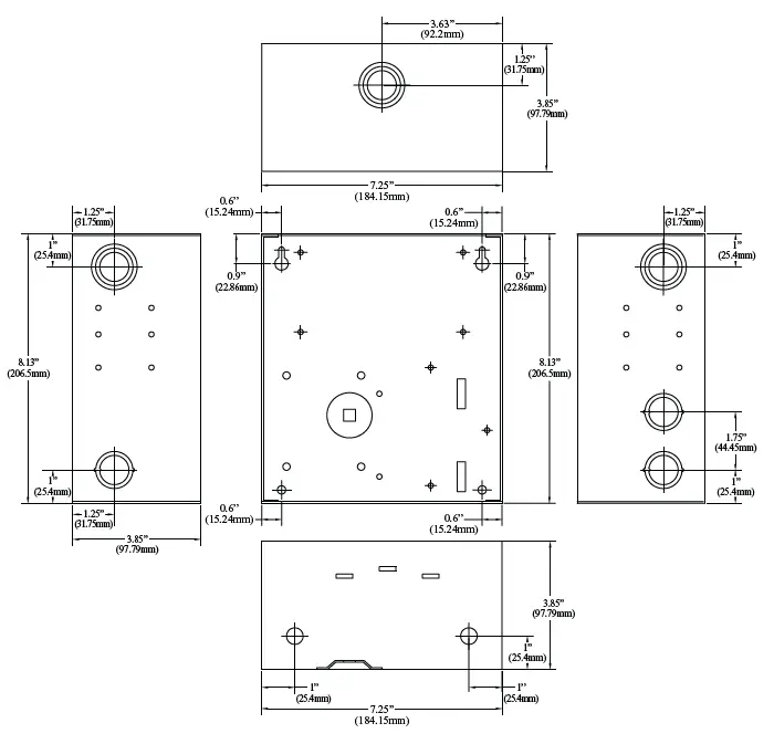
- AL168300CBM: 8.5 x 7.5 x 3.875 215.9mm x 191mm x 98.4mm
- AL168300CB and AL168600CB: 13.5 x 13 x 3.25 (342.9mm x 330.2mm x 82.6mm)
Installation Instructions
- Mount unit in the desired location.
- Mark and predrill holes in the wall to line up with the top two keyholes in the enclosure.
- Install two upper fasteners and screws in the wall with the screw heads protruding.
- Place the enclosure’s upper keyholes over the two upper screws, level and secure.
- Mark the position of the lower two holes.
- Remove the enclosure.
- Drill the lower holes and install the three fasteners.
- Place the enclosure’s upper keyholes over the two upper screws.
- Install the two lower screws and make sure to tighten all screws Enclosure Dimensions.
- Secure enclosure to earth ground.
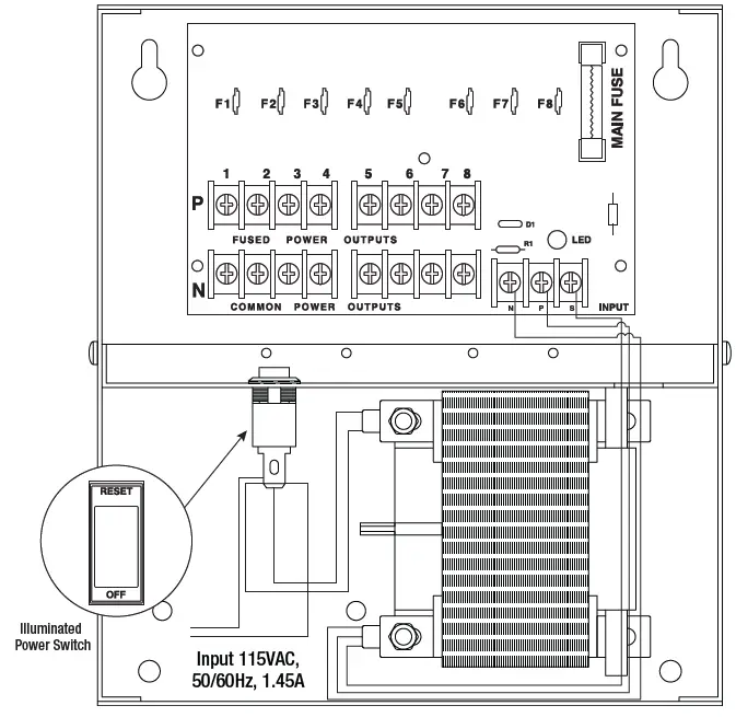
- Turn OFF main switch except AL168CB
- All units are factory set for 16VAC operation.
- For 18VAC operation adjust unit prior to mounting and applying power as follows
Change the wire position so that the black wire 18V is connected to the terminal marked P and the yellow wire 16V is connected to the terminal marked S.
- Connect AC power to the black and white flying leads of the transformers.
- Use 18 AWG or larger for all power connections.
- Measure output voltage before connecting devices.
- This helps avoiding potential damage.
- Terminals marked 1P – 8P are positive of the same polarity.
CAUTION
Determine the maximum operating voltage of the equipment being powered before adjusting the output voltage.
- Connect devices to terminals marked 1P – 1N through 4P – 4N on PD4CB board or terminals marked 1P – 1N through 8P – 8N on PD8CB board carefully observing polarity.
- Turn main switch to the RESET (ON) position except AL168CB
- Green LED will illuminate when unit is powered.
- Upon completion of the wiring secure enclosure door with screws supplied.
- Equipment to be installed/serviced by authorized/trained personnel only.
- branch circuit power before installing/servicing equipment.
WARNING
To reduce the risk of fire or electric shock, do not expose the unit to rain or moisture. This installation should be made by qualified service personnel and should conform to the National Electrical Code and all local codes.
Terminal Identification:
PD4CB/PD8CB – Distribution Module
| 1P – 4P | AC output. |
| 1N – 4N | AC output. |
LED Diagnostics
PD4CB/PD8CB Power Distribution Module
| Green AC | Power Distribution Module Status |
| ON | Normal operating condition. |
| OFF | No Power Output. |
The lightning flash with arrowhead symbol within an equilateral triangle is intended to alert the user to the presence of an insulated DANGEROUS VOLTAGE within the product’s enclosure that may be of sufficient magnitude to constitute an electric shock. The exclamation point within an equilateral triangle is intended to alert the user to the presence of important operating and maintenance (servicing) instructions in the literature accompanying the appliance.
CAUTION
To reduce the risk of electric shock do not open enclosure. There are no user serviceable parts inside. Refer servicing to qualified service personnel.
AL168CB

Voltage Selection Configuration

AL168175CB

AL168300CB

Voltage Selection Configuration

AL168300CBM

16VAC Output

18VAC Output

AL168600CB

Enclosure Dimensions H x W x D
For AL168CB and AL168175CB 8.5 x 7.5 x 3.5 215.9mm x 190.5mm x 88.9mm

Enclosure Dimensions (H x W x D) for AL168300CBM
8.5 x 7.5 x 3.875 (215.9mm x 191mm x 98.4mm)

Enclosure Dimensions (H x W x D) for AL168300CB and AL168600CB
13.5 x 13 x 3.25 (342.9mm x 330.2mm x 82.6mm)

Altronix is not responsible for any typographical errors. 140 58th Street, Brooklyn, New York 11220 USA phone: 718-567-8181 fax: 718-567-9056 website: www.altronix.com e-mail: [email protected] Lifetime Warranty IIAL168CB Series E19U




















