Altronix ALTV1224C4220 AC DC Dual Output Power Supply Installation Guide
Overview
Altronix ALTV1224C4220 AC/DC Dual Output Power Supply is designed to provide both 12VDC and 24VAC outputs where a combination of both AC and DC outputs are required.. It provides two (2) 12VDC outputs with a total current of 2A and two (2) 24VAC outputs with a total current of 4A.
Specifications
Input:
- 220VAC 50/60 Hz, 1A.
Output:
- Four (4) individually fuse protected outputs:
- Two (2) outputs @ 12VDC.
- Two (2) outputs @ 24VAC.
- 2A supply current at 12VDC (Fig. 1).
- 4A supply current at 24VAC (Fig. 1).
- Output fuses are rated at:
- AC fuses: 3.5A / 250VAC.
- DC fuses: 1A / 250VAC.
Visual Indicators:
- AC/DC power LED indicators.
Features:
- Power ON/OFF switch.
- Spare fuses included.
- Unit maintains camera synchronization.
- Ease of installation saves time and eliminates costly labor.
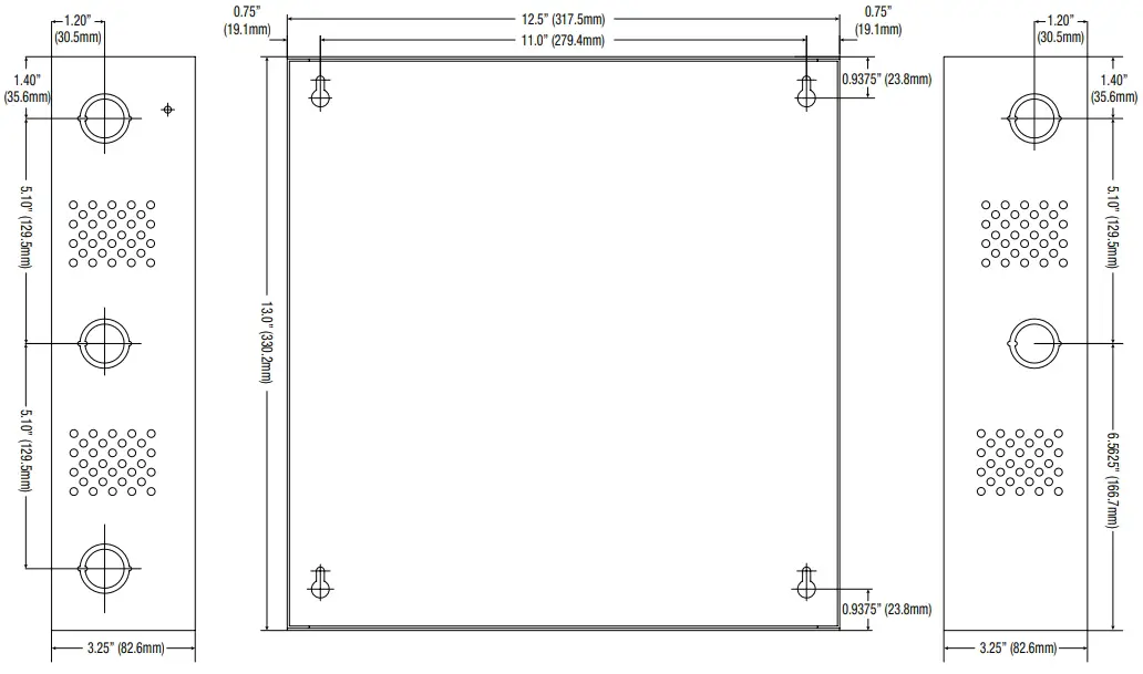
Enclosure Dimensions (H x W x D):
13.5” x 13” x 3.25” (342.9mm x 330.2mm x 82.6mm).
Installation Instructions
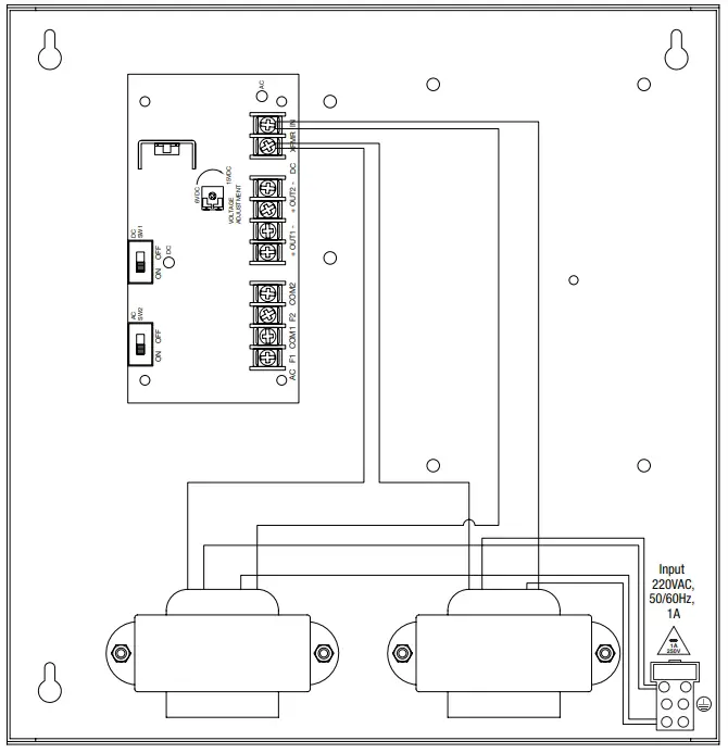
- Mount unit in the desired location. Mark and predrill holes in the wall to line up with the top two keyholes in the enclosure. Install two upper fasteners and screws in the wall with the screw heads protruding. Place the enclosure’s upper keyholes over the two upper screws, level and secure. Mark the position of the lower two holes. Remove the enclosure. Drill the lower holes and install the three fasteners. Place the enclosure’s upper keyholes over the two upper screws. Install the two lower screws and make sure to tighten all screws. Secure enclosure to earth ground.
- Slide switches SW1, SW2 to the OFF position.
- Connect unswitched AC circuit (220VAC, 50/60Hz) as follows:
Green branch wire (ground) connects to the terminal marked
, Line connects to the terminal marked [L], and Neutral connects to the terminal marked [N] of the Inlet Appliance Connector. - Measure output voltage before connecting devices. This helps avoiding potential damage.
- Connect devices to the output terminals using the following procedure: Connect DC cameras to terminals marked [ + OUT1 –], [+ OUT2 –], carefully observing the correct polarity. Connect AC cameras to terminals marked [F1 COM1, F2 COM2].
- Slide switches SW1, SW2 to the ON position.
- Green LED on the circuit board will illuminate when power is present.
- Upon completion of wiring, secure enclosure door with screws (supplied
WARNING: To reduce the risk of fire or electric shock, do not expose the unit to rain or moisture. This installation should be made by qualified service personnel and should conform to the National Electrical Code and all local codes.WARNING: To reduce the risk of fire or electric shock, do not expose the unit to rain or moisture. This installation should be made by qualified service personnel and should conform to the National Electrical Code and all local codes.
Fuse Replacement:
- Before replacing fuses slide switches SW1, SW2 to OFF position.
- Replace AC outputs fuses F1 or F2 with fuses rated @ 3.5A/250VAC. Replace DC outputs fuses F3 or F4 with fuses rated @ 1A/250VAC.
Terminal Identification
Terminal Legend | Function/Description |
| XFMR IN | Low voltage AC input from two (2) 24VAC / 100VA transformers. |
+ OUT1 –, + OUT2 – | DC power outputs. |
| F1 COM1, F2 COM2 | AC power outputs. |

Fig.1
The lightning flash with arrowhead symbol within an equilateral triangle is intended to alert the user to the presence of an insulated DANGEROUS VOLTAGE within the product’s enclosure that may be of sufficient magnitude to constitute an electric shock.
The exclamation point within an equilateral triangle is intended to alert the user to the presence of important operating and maintenance (servicing) instructions in the literature accompanying the appliance.
CAUTION ![]()
RISK OF ELECTRIC SHOCK
DO NOT OPEN
CAUTION: To reduce the risk of electric shock do not open enclosure. There are no user serviceable parts inside. Refer servicing to qualified service personnel.
Enclosure Dimensions
13.5” x 13” x 3.25” (342.9mm x 330.2mm x 82.6mm)


Support
Installing Company: _______________
Service Rep. Name: _________________________
Address: _________________________________
Phone #: __________________
Altronix is not responsible for any typographical errors.
140 58th Street, Brooklyn, New York 11220 USA 718-567-8181
fax: 718-567-9056
website: www.altronix.com
e-mail: [email protected]
Lifetime Warranty
IIALTV1224C4220




















