
More than just power.™
eFlow104NK8 Series
Dual Output Power Supply/Chargers
Models Include: eFlow104NK8
– 12VDC up to 6A and/or 24VDC up to 10A (240W total power) selectable by output.
– Eight (8) fuse-protected outputs.
– Built-in Charger for sealed lead acid or gel type batteries.
eFlow104NK8D
– 12VDC up to 6A and/or 24VDC up to 10A (240W total power) selectable by output.
– Eight (8) Class 2 power-limited PTC-protected outputs.
– Built-in Charger for sealed lead acid or gel type batteries.
Rev. eFlow104NK8-110620
![]()
Installing Company: …………..Service Rep. Name: ………………………..
Address: ……………….. Phone #: ……………………
Overview:
Altronix eFlow104NK8 and eFlow104NK8D convert a 120VAC 60Hz input into eight (8) fuse or PTC protected 12VDC or 24VDC outputs with a total of 10A max. Units include an unswitched aux. output. They also offer a suite of features that includes fire alarm disconnect, over-voltage protection, and low power disconnect which prevents deep discharge of stand-by batteries. Dual input design allows power to be steered from two (2) factory-installed independent low voltage 12 or 24VDC Altronix power supplies to eight (8) independently controlled fuse (eFlow104NK8) or PTC (eFlow104NK8D) protected outputs.
Agency Listings:
UL Listed Sub-Assembly for US Installations:
UL 294, 7th Edition** – UL Listed for Access Control System Units.
UL 603 – UL Listed for Power Supplies for Use with Burglar-Alarms Systems.
UL 1481 – UL Listed for Power Supplies for Fire Protective Signaling Systems.
UL Listed Sub-Assembly for Canadian Installations:
ULC-S318-96 – Power Supplies for Burglar Alarm Systems. Also suitable for Access Control.
ULC-S319-05 – Electronic Access Control Systems. Class I Equipment.
CSA C22.2 No.205 – Signal Equipment.
European Conformity
Stand-by Specifications:
| Battery | Burg. Applications 4 hr. Stand-by/ 15 min. Alarm | Fire Applications 24 hr. Stand-by/ 5 min. Alarm | Access Control Applications Stand-by |
| 7AH | 0.4A/10A | N/A | 5 Mins./10A |
| 12AH | 1A/10A | 0.3A/10A | 15 Mins./10A |
| 40AH | 6A/10A | 1.2A/10A | Over 2 Hours/10A |
| 65AH | 6A/10A | 1.5A/10A | Over 4 Hours/10A |
Inputs:
eFlow104NB:
- 120VAC, 60Hz, 4.5A.
PDS8/PDS8CB: - 24VDC from eFlow104NB.
- 12VDC from the VR6 voltage regulator.
Specifications:
Outputs:
Power:
- 12VDC up to 6A, 24VDC up to 10A (240W total power).
- Auxiliary Class 2 power-limited output rated @ 1A (unswitched).
- Overvoltage protection.
PDS8:
– Fuse-protected outputs rated @ 2.5A per output, non-power-limited. Total output 10A max.
Do not exceed the individual power supply ratings.
PDS8CB:
– PTC-protected outputs rated @ 2A per output, Class 2 power-limited. Total output 10A max.
Do not exceed the individual power supply ratings.
- Eight (8) selectable independently controlled outputs.
- Individual outputs may be set to OFF position for servicing (output switch set to middle position).
- Any of the eight (8) fuse/PTC-protected power outputs are selectable to follow power Input 1 or Input 2. The output voltage of each output is the same as the input voltage of the input selected.
- Surge suppression.
Fuse/PTC Ratings:
eFlow104NB:
– Input fuse is rated 6.3A/250V.
– Battery fuse rated 15A/32V.
PDS8:
– Input fuse is rated 10A/32V.
– Output fuses are rated 3A/32V.
PDS8CB:
– Input PTC is rated 9A.
– Output PTCs are rated 2A.
Battery Backup:
- Built-in charger for sealed lead acid or gel type batteries.
- Maximum charge current 1.54A.
- Automatic switch over to stand-by battery when AC fails.
- Transfer to stand-by battery power is instantaneous with no interruption.
Supervision:
- AC fail supervision (form “C” contacts).
- Battery fail & presence supervision (form “C” contacts).
- Low power shutdown. Shuts down DC output terminals if battery voltage drops below 70-75%. Prevents deep battery discharge.
Fire Alarm Disconnect:
- Supervised Fire Alarm disconnect (latching or non-latching) 10K EOL resistor. Operates on a normally open (NO) or normally closed (NC) trigger.
Visual Indicators:
eFlow104NB:
- Green AC LED: Indicates 120VAC present.
- Red DC LED: Indicates DC output.
PDS8(CB): - Individual voltage LEDs indicate 12VDC (Green) or 24VDC (Green and Red).
Environmental: - Operating temperature: 0ºC to 49ºC ambient.
- Humidity: 20 to 85%, non-condensing.
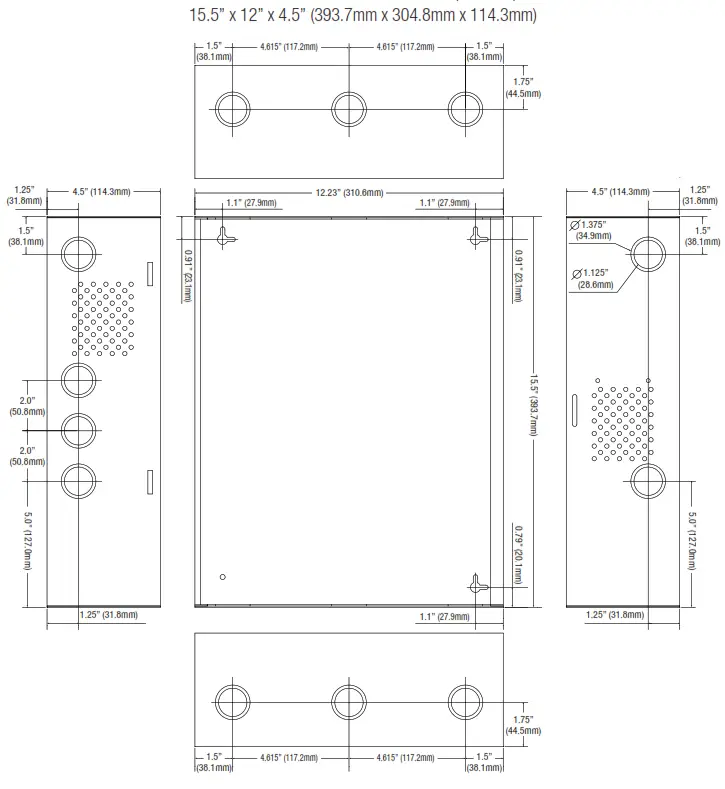
Enclosure Dimensions (approximate H x W x D): 15.5” x 12” x 4.5” (393.7mm x 304.8mm x 114.3mm).
Installation Instructions:
Wiring methods shall be in accordance with the National Electrical Code/NFPA 70/NFPA 72/ANSI, the Canadian Electrical Code and with all local codes and authorities having jurisdiction. The product is intended for indoor use only.
- Mount the unit in the desired location. Mark and predrill holes in the wall to line up with the top two keyholes in the enclosure. Install two upper fasteners and screws in the wall with the screw heads protruding. Place the enclosure’s upper keyholes over the two upper screws, level and secure. Mark the position of the lower two holes. Remove the enclosure. Drill the lower holes and install the two fasteners. Place the enclosure’s upper keyholes over the two upper screws. Install the two lower screws and make sure to tighten all screws (Enclosure Dimensions, pg. 8). Secure enclosure to earth ground.
- Ensure all output jumpers [OUT1 – OUT8] are placed in the OFF (center) position marked [•]. (Fig. 1, pg. 4).
- Connect unswitched AC power (120VAC 60Hz) to terminals marked [L, N] (Fig. 2a, pg.

- The Green “AC” LED on the power supply board will turn on. This light can be seen through the LED lens on the door of the enclosure. Use 14 AWG or larger for all power connections. Secure green wire leads to earth ground. Keep power-limited wiring separate from non-power-limited wiring (120VAC 60Hz Input, Battery Wires). Minimum 0.25” spacing must be provided. CAUTION: Do not touch exposed metal parts. Shut branch circuit power before installing or servicing equipment. There are no user-serviceable parts inside. Refer installation and servicing to qualified service personnel.
- Set each output [OUT1] – [OUT8] to route power from Input 1 or 2 (Fig. 1, pg. 3).
Note: Measure output voltage before connecting devices. This helps avoid potential damage. - Turn the power off before connecting devices.
- Output Connections: Connect devices to terminal pairs 1 to 8, marked [P (Positive) – OUT1-OUT8, N (Negative)] on PDS8(CB), carefully observing polarity.
- Stand-by Battery Connections (Fig. 3, pg. 7):
For the U.S. Access Control applications batteries are optional. Batteries are required for Canadian installations (ULC-S319). When batteries are not used, a loss of AC will result in the loss of output voltage. When the use of stand-by batteries is desired, they must be lead acid or gel type.
Connect battery leads to the terminals marked [– BAT +] on eFlow104NB (Fig. 2g, pg. 5).
Use two (2) 12VDC batteries connected in series for 24VDC operation (battery leads included).
Use batteries – Castle CL1270 (12V/7AH), CL12120 (12V/12AH), CL12400 (12V/40AH), CL12650 (12V/65AH) batteries or UL-recognized BAZR2 and BAZR8 batteries of an appropriate rating. - To delay AC reporting for 2 hrs. set the DIP switch [AC Delay] to the OFF position (Fig. 2c, pg. 5).
To delay AC reporting for 1 min. set DIP switch [AC Delay] to ON position (Fig. 2c, pg. 5). - Fire Alarm Disconnect (Fig. 2c, pg. 5):
To enable Fire Alarm Disconnect set the DIP switch [Shutdown] to ON position.
To disable Fire Alarm Disconnect set the DIP switch [Shutdown] to OFF position. - Turn the main power on after all devices are connected.
- Installation of Tamper Switch: Mount UL Listed tamper switch (Altronix model TS112 or equivalent) at the top of the enclosure. Slide the tamper switch bracket onto the edge of the enclosure approximately 2” from the right side (Fig. 3a, pg. 7). Connect the tamper switch wiring to the Access Control Panel input or the appropriate UL Listed reporting device. To activate the alarm signal open the door of the enclosure.
Fig. 2 – eFlow104N Board Configuration
Wiring:
Use 18 AWG or larger for all low voltage power connections.
Note: Take care to keep power-limited circuits separate from non-power-limited wiring (120VAC, Battery).
Maintenance:
The unit should be tested at least once a year for the proper operation as follows: Output Voltage Test: Under normal load conditions, the DC output voltage should be checked for proper voltage level eFlow104NB: 24VDC nominal rated @ 10A max.
Battery Test: Under normal load, conditions check that the battery is fully charged, and check the specified voltage (24VDC @ 26.4) both at the battery terminal and at the board terminals marked [– BAT +] to ensure that there is no break in the battery connection wires.
Note: Maximum charging current under discharges is 1.54A.
Note: Expected battery life is 5 years, however, it is recommended to change batteries in 4 years or less if needed.
LED Diagnostics:
eFlow104NB Power Supply/Charger
| Red (DC) | Green (AC/AC1) | Power Supply Status |
| ON | ON | Normal operating condition. |
| ON | OFF | Loss of AC. The standby battery is supplying power. |
| OFF | ON | No DC output. |
| OFF | OFF | Loss of AC. Discharged or no stand-by battery. No DC output. |
PDS8(CB):
| LED | ON |
| Green | 12VDC Output. |
| Green and Red | 24VDC Output. |
Terminal Identification:
eFlow104NB Power Supply/Charger
| Terminal Legend | Function/Description |
| L, N | Connect 120VAC 60Hz to these terminals: L to hot, N to neutral (non-power-limited) (Fig. 2a, pg. 5). |
| — DC + | 24VDC nominal 0 10A continuous output (power-limited output) (Fig. 2h, pg. 5). |
| Trigger EOL Supervised | Fire Alarm Interface trigger input from a short or FACP. Trigger inputs can be normally open and normally closed from an FACP output circuit (power-limited input) (Fig. 2d, pg. 5). |
| NO, GND RESET | FACP interface latching or non-latching (power-limited) (Fig. 2e, pg. 5). |
| + AUX — | Auxiliary Class 2 power-limited output rated 0 1A (unswitched) (Fig. 21, pg. 5). |
| AC Fail NC, C, NO | Indicates loss of AC power, e.g. connect to audible device or alarm panel. The relay is normally energized when AC power is present. Contact rating 1A © 30VDC (power-limited) (Fig. 2b, pg. 5). |
| Bat Fail NC, C, NO | Indicates low battery condition, e.g. connect to the alarm panel. The relay is normally energized when DC power is present. Contact rating 1A @ 30VDC. A removed battery is reported within 5 minutes. Battery reconnection is reported within 1 minute (power-limited) (Fig. 2b, pg. 5). |
| — BAT + | Stand-by battery connections. Maximum charge current 1.54A (non-power-limited) (Fig. 2g, pg. 5). |
PDS8(CB):
| Terminal Legend | Function/Description |
| + INP1 – | Factory connected to eFlow104NB. Do not use these terminals. |
| + INP2 – | Factory connected to eFlow104NB. Do not use these terminals. |
| P [OUT1-OUT8] | Positive DC power outputs. |
| N [OUT1-OUT8] | Negative DC power outputs. |
Fig. 3 – eFlow104NK8(D)

CAUTION: Use two (2) 12VDC stand-by batteries.
Keep power-limited wiring separate from non-power-limited.
Use minimum 0.25” spacing.
12AH Rechargeable batteries are the largest batteries that can fit in this enclosure.
A UL-listed external battery enclosure must be used if using 40AH or 65AH batteries.
Enclosure Dimensions (BC400):
Altronix is not responsible for any typographical errors.
140 58th Street, Brooklyn, New York 11220 USA | phone: 718-567-8181 | fax: 718-567-9056
website: www.altronix.com | e-mail: [email protected] | Lifetime Warranty
IIeFlow104NK8(D) G28U
eFlow104NK8(D Installation Guide)



















