Altronix eFlow3N Power Supply Chargers
Overview:
Altronix eFlow3N power supply/chargers convert a 120VAC / 60Hz input to a 12VDC or 24VDC nominal output (see Power Supply Configuration Reference Chart and Specifications).
eFlow3N Series Power Supply Configuration Reference Chart:
Stand-by Specifications:
- For output voltage and supply current refer to eFlow3N series Power Supply Configuration Reference Chart, pg. 2.
- Auxiliary Class 2 power-limited output rated @ 1A (unswitched).
- Overvoltage protection.
- Built-in charger for sealed lead acid or gel type batteries.
- Maximum charge current 1.54A.
- Automatic switch over to stand-by battery when AC fails.
- Transfer to stand-by battery power is instantaneous with no interruption.
- Supervised Fire Alarm disconnect (latching or non-latching) 10K EOL resistor. Operates on a normally open (NO) or normally closed (NC) trigger.
- Refer to eFlow3N Series Power Supply Configuration Reference Chart, pg. 2.
- AC fail supervision (form “C” contacts).
- Battery fail & presence supervision (form “C” contacts).
- Low power shutdown. Shuts down DC output terminals if battery voltage drops below 71-73% for 12V units and 70-75% for 24V units (depending on the power supply). Prevents deep battery discharge.
- Green AC Power LED indicates 120VAC present.
- AC input and DC output LED indicators.
- Short circuit and overload protection.
- Unit is complete with power supply, enclosure, battery leads, and cam lock.
Installation Instructions:
Wiring methods shall be in accordance with the National Electrical Code/NFPA 70/NFPA 72/ANSI, The Canadian Electrical Code, Part 1 and with all local codes and authorities having jurisdiction. The product must be located indoors within the protected premises.
- Mount unit in desired location. Mark and predrill holes in the wall to line up with the top two keyholes in the enclosure. Install two upper fasteners and screws in the wall with the screw heads protruding. Place the enclosure’s upper keyholes over the two upper screws, level and secure. Mark the position of the lower two holes. Remove the enclosure. Drill the lower holes and install the two fasteners. Place the enclosure’s upper keyholes over the two upper screws. Install the two lower screws and make sure to tighten all screws (Enclosure Dimensions, pgs. 11-12). Secure enclosure to earth ground.
- Set desired DC output voltage by setting SW1 to the appropriate position on the power supply board (Fig. 1i, pg. 5).
- Connect unswitched AC power (120VAC 60Hz) to terminals marked [L, N] (Fig. 1a, pg. 5). Green “AC” LED on power supply board will turn on. This light can be seen through the LED lens on the door of the enclosure. Use 14 AWG or larger for all power connections. Secure green wire lead to earth ground.
Keep power-limited wiring separate from non power-limited wiring (120VAC 60Hz Input,
Battery Wires). Minimum 0.25” spacing must be provided.
CAUTION:
Do not touch exposed metal parts. Shut branch circuit power before installing or servicing equipment. There are no user serviceable parts inside. Refer installation and servicing to qualified service personnel.For Fire Alarm applications the outputs are “Special Applications” only, see list (refer to Appendix A, pg. 13). - Measure output voltage before connecting devices. This helps avoiding potential damage.
- Connect devices to be powered: For eFlow3N/eFlow3NX connect devices to terminals marked [– DC +] (Fig. 1h, pg. 5). For other Power Distribution Models connect devices to be powered to terminal pairs 1 to 4 marked [1P & 1N] through [4P & 4N] (Fig. 3a & 3b, pg. 6) carefully observing correct polarity. For auxiliary device connection this output will not be affected by Low Power Disconnect or Fire Alarm Interface. Connect device to terminals marked [+ AUX –] (Fig. 1f, pg. 5).
- For Access Control applications batteries are optional. When batteries are not used, a loss of AC will result in the loss of the output voltage. When the use of stand-by batteries is desired, they must be lead acid or gel type. Connect battery to terminals marked [– BAT +] (Fig. 1g, pg. 5). Use two (2) 12VDC batteries connected in series for 24VDC operation (battery leads included). Use batteries – Casil CL1270 (12V/7AH), CL12120 (12V/12AH), CL12400 (12V/40AH), CL12650 (12V/65AH) batteries or UL recognized BAZR2 batteries of an appropriate rating.
- Connect appropriate signaling notification devices to AC FAIL & BAT FAIL (Fig. 1b, pg. 5) supervisory
relay outputs. - To delay AC reporting for 2 hrs. set aDIP switch [AC Delay] to OFF position (Fig. 1c, pg. 5). To delay AC reporting for 1 min. set DIP switch [AC Delay] to ON position (Fig. 1c, pg. 5).
Note: Must be set to ON position for Burglar Alarm Applications. - To enable Fire Alarm Disconnect set DIP switch [Shutdown] to ON position (Fig. 1c, pg. 5).
- To disable Fire Alarm Disconnect set DIP switch [Shutdown] to OFF position (Fig. 1c, pg. 5).
- Place a jumper for non-latching FACP. A momentary short on these terminals resets FACP latching [Trigger EOL Shutdown] (Fig. 1e, pg. 5).
- For Access Control Applications: mount UL Listed tamper switch (Altronix Model TS112 or equivalent) at the top of the enclosure. Slide tamper switch bracket onto the edge or the enclosure approx. 2” from the right side (Fig. 4, pg. 7 or Fig. 6, pg. 9). Connect tamper switch wiring to the Access Control Panel input or the appropriate UL Listed reporting device.
Wiring:
Use 18 AWG or larger for all low voltage power connections.
Note: Take care to keep power-limited circuits separate from non-power-limited wiring (120VAC, Battery).
Maintenance:
Unit should be tested at least once a year for the proper operation as follows:
Output Voltage Test: Under normal load conditions, the DC output voltage should be checked for proper
voltage level eFlow3N: 12VDC or 24VDC nominal rated @ 2A max.
Battery Test: Under normal load conditions check that the battery is fully charged, check specified
voltage (12VDC @ 13.2 or 24VDC @ 26.4) both at battery terminal and at the board terminals marked [– BAT +] to ensure that there is no break in the battery connection wires. Note: Maximum charging current under discharges is 1.54A.
Note: Expected battery life is 5 years, however it is recommended changing batteries in 4 years or less if needed.
LED Diagnostics:
Power Distribution Module
Terminal Identification:
Power Distribution Module
Fig. 1 – eFlow3N Board Configuration
Trouble/Time Limited Warning of Stand-by Batteries:
For compliance with ULC S318-96, the Time Limited Warning circuit must be connected for local or remote annun-ciation with an Amber or Red LED to indicate DC Trouble (low battery, loss of battery or when 95% of the stand-by battery has been depleted). Connect the circuit to the Batt Fail relay contacts to an appropriate input of a UL Listed Burglar Alarm or Access Control Panel. The following figure shows the circuitry needed for local annunciation.Fig. 2 – Battery Trouble Indication For Canadian use, a red indicating lamp must be visible from the exterior of this enclosure.
Wire one leg of a UL Listed, power-limited power source to the indicating lamp. Wire the second leg of the power source to the indicating lamp in series with the battery fail relay contact terminals marked [BAT FAIL – C, NO] (Fig. 2, pg. 6).
Replace fuses with the same type and rating 3.5A/250V 
- DC Output to devices
- 1P-4P Power Outputs, 1N-4N
- Common Outputs From
- Power Supply Board (Factory Installed)

- DC Output to devices
- 1P-4P Power Outputs,
- 1N-4N Common Outputs


CAUTION:
When power supply board is set for 12VDC use only one (1) 12VDC stand-by battery. Keep power-limited wiring separate from non power-limited. Use minimum 0.25″ spacing. 7AH Rechargeable batteries are the largest batteries that can fit in this enclosure. A UL Listed external battery enclosure must be used if using 12AH, 40AH or 65AH batteries.
NEC Power-Limited Wiring Requirements for eFlow3N Models:
Power-limited and non power-limited circuit wiring must remain separated in the cabinet. All power-limited circuit wiring must remain at least 0.25” away from any non power-limited circuit wiring. Furthermore, all power-limited circuit wiring and non power-limited circuit wiring must enter and exit the cabinet through different conduits. One such example of this is shown below. Your specific application may require different conduit knockouts to be used. Any conduit knockouts may be used. For power- limited applications use of conduit is optional. All field wiring connections must be made employing suitable gauge CM or FPL jacketed wire (or equivalent substitute). Optional UL Listed battery enclosure must be mounted adjacent to the power supply via Class 1 wiring methods. For Canadian installations use shielded wiring for all connections. Note: Refer to wire handling drawing below for the proper way to install the CM or FPL jacketed wire (Fig. 5a). 

CAUTION:
When power supply board is set for 12VDC use only one (1) 12VDC stand-by battery. Keep power-limited wiring separate from non power-limited. Use minimum 0.25″ spacing.12AH Rechargeable batteries are the largest batteries that can fit in this enclosure. A UL listed external battery enclosure must be used if using 40AH or 65AH batteries.
NEC Power-Limited Wiring Requirements for eFlow3NX Models:
Power-limited and non power-limited circuit wiring must remain separated in the cabinet. All power-limited circuit wiring must remain at least 0.25” away from any non power-limited circuit wiring. Furthermore, all power-limited circuit wiring and non power-limited circuit wiring must enter and exit the cabinet through different conduits. One such example of this isA shown below. Your specific application may require different conduit knockouts to be used. Any conduit knockouts may be used. For power- limited applications use of conduit is optional. All field wiring connections must be made employing suitable gauge CM or FPL jacketed wire (or equivalent substitute). Optional UL Listed battery enclosure must be mounted adjacent to the power supply via Class 1 wiring methods. For Canadian installations use shielded wiring for all connections. Note: Refer to wire handling drawing below for the proper way to install the CM or FPL jacketed wire (Fig. 7a).
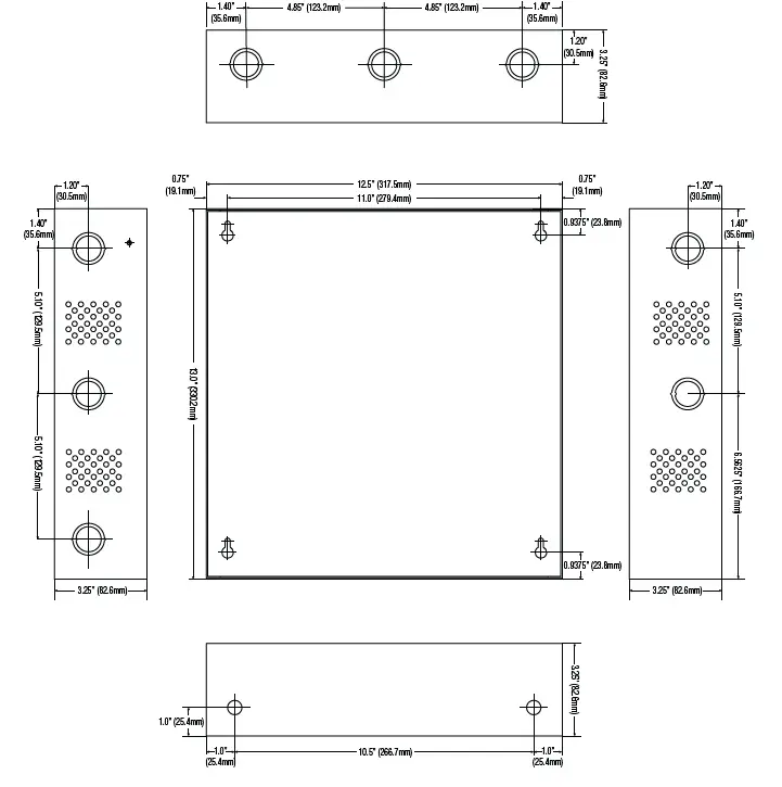
Enclosure Dimensions (BC300):
eFlow3N, eFlow3N4, eFlow3N4D 13.5” x 13” x 3.25” (342.9mm x 330.2mm x 82.6mm)
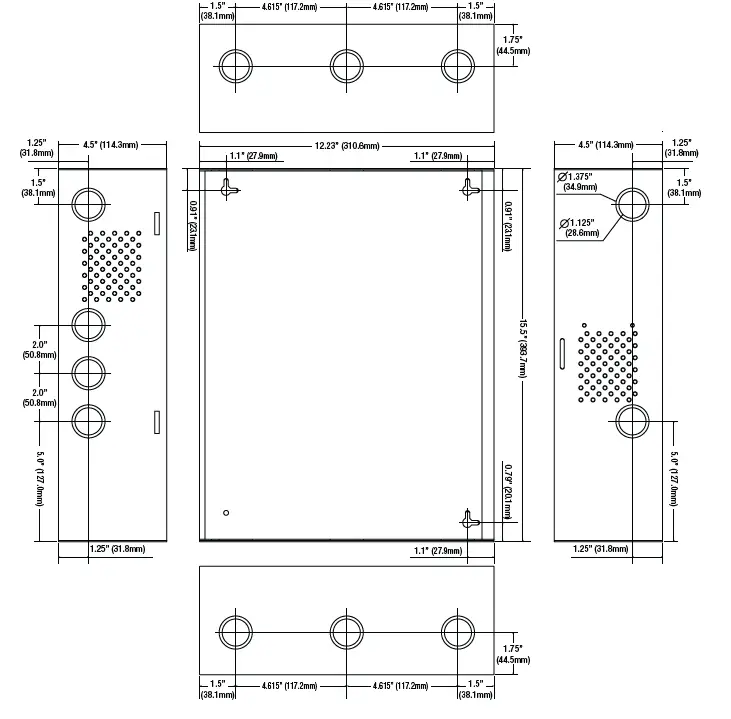
Enclosure Dimensions (BC400):
eFlow3NX, eFlow3NX4, eFlow3NX4D 15.5” x 12” x 4.5” (393.7mm x 304.8mm x 114.3mm)
Appendix A – UL Listed Compatible Devices
A.1 Four (4) Wire Smoke Detectors Table A-1 below lists four (4) wire smoke detectors compatible with eFlow3N output.
A.2 Relays
Table A-2 below lists relays compatible with eFlow3N output.
- compatible only with eFlow3N, eFlow3NX, eFlow3N4, eFlow3NX4.
- Compatible only when unit is set for 24VDC.
LINQ2 – Network Communication Module
LINQ2 provides remote IP access to real-time data from eFlow power supply/chargers to help keep systems up and running at optimal levels. It facilitates fast and easy installation and set-up, minimizes system downtime, and eliminates unnecessary service calls, which helps reduce Total Cost of Ownership (TCO) – as well as creating a new source of Recurring Monthly Revenue (RMR).
Features:
- UL Listed in the U.S. and Canada.
- Local or remote control of up to (2) two Altronix eFlow power output(s) via LAN and/or WAN.
- Monitor real time diagnostics: DC output voltage, output current, AC & battery status/service, input trigger state change, output state change and unit temperature.
- Access control and user managment: Restrict read/write, Restrict users to specific resources
- Two (2) integral network controlled Form “C” Relays.
- Three (3) programmable input triggers: Control relays and power supplies via external hardware sources.
- Email and Windows Dashboard notifications
- Event log tracks history.
- Secure Socket Layer (SSL).
- Programmable via USB or web browser – includes operating software and 6 ft. USB cable.

Battery Backup:
- Built-in charger for sealed lead acid or gel type batteries.
- Maximum charge current 1.54A.
- Automatic switch over to stand-by battery when AC fails.
- Transfer to stand-by battery power is instantaneous with no interruption.


























