Altronix SMP10C12X220 Series Power Supply-Chargers Installation Guide
Overview:
Altronix SMP10C12X220 Series power supply/chargers convert a 220VAC (working range 198VAC – 256VAC), 50/60Hz input into a regulated 12VDC output with up to 10A of continuous load current (see specifications).
SMP10C12X220 Series Power Supply Configuration Reference Chart:
| Altronix Model Number | Accessory Power Distribution Module(s) | Number of Outputs | Fused Outputs | PTC Outputs (auto-resettable) | Individual Output Rating (A) | Supervised | 220VAC 50/60Hz Input Current (A) | 12VDC Total Output Current (A) |
| SMP10C12X220 | – | 1 | – | – | 10A | – | 0.8A | 10A |
| SMP10C12XX220* | – | – | ||||||
| SMP10PMC12X220 | – | – | ||||||
| SMP10PMC12XX220* | – | – | ||||||
| SMP10PM12P4220 | PD4 | 4 | – | 3.5A | ||||
| SMP10PM12P4CB220 | PD4CB | – | 2.5A | |||||
| SMP10PM12P8220 | PD8 | 8 | – | 3.5A | ||||
| SMP10PM12P8CB220 | PD8CB | – | 2.5A | |||||
| SMP10PM12P16220 | PD16W | 16 | – | 3.5A | ||||
| SMP10PM12P16CB220 | PD16WCB | – | 2.5A |
Specifications
Input:
• Input 220VAC, 50/60Hz, 0.8A.
Output:
• 12VDC output.
• 10A supply current.
• Filtered and electronically regulated outputs.
• Short circuit and thermal overload protection.
Battery Backup:
• Built-in charger for sealed lead acid or gel type batteries.
• Maximum charge current 0.7A.
• Zero voltage drop when switching over to battery backup.
Features:
- Power ON/OFF switch.
Visual Indicators:
- AC input and DC output LED indicators.
Supervision (select models):
- AC fail supervision (form “C” contacts).
- Battery presence and low battery supervision (form “C” contacts).
Electrical:
- Operating temperature: 0ºC to 49ºC ambient.
Mechanical:
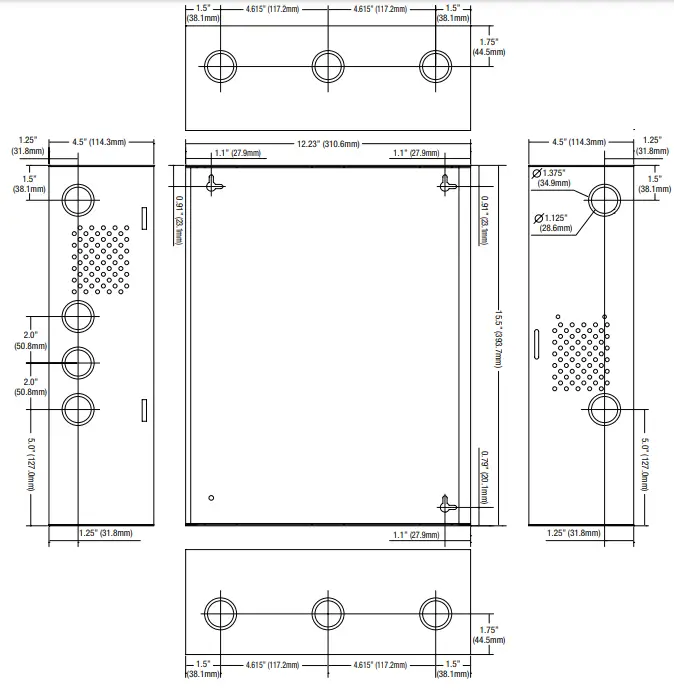
- Enclosure Dimensions (H x W x D approx.): SMP10C12X220, SMP10PMC12X220, SMP10PM12P4220, SMP10PM12P4CB220, SMP10PM12P8220, SMP10PM12P8CB220, SMP10PM12P16220, SMP10PM12P16CB220: 13.5” x 13” x 3.25” (342.9mm x 330.2mm x 82.6mm)
SMP10C12XX220, SMP10PMC12XX220: 15.5” x 12” x 4.5” (393.7mm x 304.8mm x 114.3mm)
Installation Instructions
Wiring methods shall be in accordance with the National Electrical Code/NFPA 70/NFPA 72/ANSI, and with all local codes and authorities having jurisdiction. Product is intended for indoor use only.
- Mount unit in the desired location. Mark and predrill holes in the wall to line up with the top two keyholes in the enclosure. Install two upper fasteners and screws in the wall with the screw heads protruding. Place the enclosure’s upper keyholes over the two upper screws; level and secure. Mark the position of the lower two holes. Remove the enclosure. Drill the lower holes and install the three fasteners. Place the enclosure’s upper keyholes over the two upper screws. Install the two lower screws and make sure to tighten all screws (Enclosure Dimensions, pgs. 7, 8). Secure enclosure to earth ground.
- Slide [Power ON/OFF] switch to OFF position (Fig. 1a, pg. 4)
- Connect AC circuit (220VAC, 50/60Hz) as follows: Green branch wire connects to earth (safety) ground
. Line and Neutral to the connector on power supply board marked [L, N] respectively (Fig. 1, pg. 4, Fig. 2, pg. 5). Use 18 AWG or larger for all power connections (Battery, DC output). Use 22 AWG to 18 AWG for power-limited circuits (AC Fail/Low Battery reporting). - Slide [Power ON/OFF] switch to ON position.
- Measure output voltage before connecting devices. This helps avoiding potential damage. Keep power-limited wiring separate from non power-limited wiring (220VAC, 50/60Hz Input, Battery Wires). Minimum 0.25” spacing must be provided.
CAUTION: Do not touch exposed metal parts. Shut branch circuit power before installing or servicing equipment. There are no user serviceable parts inside. Refer installation and servicing to qualified service personnel. - Slide [Power ON/OFF] switch to OFF position.
- Connect devices to be powered:
- For Power Supply Board connect to the terminals marked [– DC +].
- For Power Distribution Module(s) connect devices to be powered to the terminal pairs 1 to 4 marked [1P & 1N] through [4P & 4N] (Fig. 3, pg. 6), 1 to 8 marked [1P & 1N] through [8P & 8N] (Fig. 4, pg. 6), or 1 to 16 marked [1P & 1N] through [16P & 16N] (Fig. 5, pg. 6), carefully observing correct polarity.
Note: Power switch is used to disconnect the L (HOT) terminal from the rest of the board (Fig. 1a, pg. 4). When servicing the unit, AC mains should be removed.
- When using stand-by batteries, they must be lead acid or gel type. Connect battery to the terminals marked [– BAT +] (battery leads included).
Note: When batteries are not used, a loss of AC will result in the loss of output voltage. For supervised models only: - Connect appropriate signaling notification devices to AC Fail and Low Bat supervisory relay outputs marked [NC, C, NO] (Fig. 1b, pg. 4).
- Slide [Power ON/OFF] switch to ON position.
LED Diagnostics
Power Supply Board
| Red (DC) | Green (AC) | Power Supply Status |
| ON | ON | Normal operating condition. |
| ON | OFF | Loss of AC. Stand-by battery is supplying power. |
| OFF | ON | No DC output. |
| OFF | OFF | Loss of AC. Discharged or no stand-by battery. No DC output. |
Power Distribution Module
| Green | Power Distribution Module Status |
| ON | Normal operating condition. |
| OFF | No Power Output. |
Terminal Identification
Power Supply Board:
| Terminal Legend | Function/Description |
| L, G, N | Connect 220VAC to these terminals: L to Hot, N to Neutral. |
| – DC + | 12VDC @ 10A continuous output. |
| *AC FAIL NC, C, NO | Used to notify loss of AC power, e.g. connect to audible device or alarm panel. Relay normally energized when AC power is present. Contact rating 1A @ 120VAC / 28VDC. |
| *Low Battery NC, C, NO | Used to indicate low battery condition, e.g. connect to alarm panel. Relay normally energized when DC power is present. Contact rating 1A @ 120VAC / 28VDC. Low battery threshold: 12VDC output threshold set @ approximately 10.5VDC. |
| – BAT + | Stand-by battery connections. Maximum charge rate 0.7A. |
*Note: Supervised models only SMP10C12X220 Series Installation Guid
PD4/PD4CB/PD8/PD8CB/PD16W/PD16WCB – Power Distribution Module
| Terminal Legend | Function/Description | ||
| PD4/PD4CB | PD8/PD8CB | PD16W/PD16WCB | |
| 1P to 4P | 1P to 8P | 1P to16P | Positive DC power outputs. |
| 1N to 4N | 1N to 8N | 1N to 16N | Negative DC power outputs. |
Caution: Equipment to be installed / serviced by authorized / trained personnel only.
Shut branch circuit power before installing / servicing equipment.
WARNING: To reduce the risk of fire or electric shock, do not expose the unit to rain or moisture. This installation should be made by qualified service personnel and should conform to the National Electrical Code and all local codes
The lightning flash with arrowhead symbol within an equilateral triangle is intended to alert the user to the presence of an insulated DANGEROUS VOLTAGE within the product’s enclosure that may be of sufficient magnitude to constitute an electric shock.
The exclamation point within an equilateral triangle is intended to alert the user to the presence of important operating and maintenance (servicing) instructions in the literature accompanying the appliance
CAUTION: To reduce the risk of electric shock do not open enclosure. There are no user serviceable parts inside. Refer servicing to qualified service personnel.
Fig. 1a
Switch disables power mains line voltage input. If stand-by battery (batteries) are connected, the DC output remains on
Fig. 1
Fig. 2
Power Distribution Module(s)
Fig. 3 – PD4/PD4CB
Fig. 4 – PD8/PD8CB
Fig. 5 – PD16W/PD16WCB
Enclosure Dimensions (BC300):
SMP10C12X220, SMP10PMC12X220, SMP10PM12P4220, SMP10PM12P4CB220,
SMP10PM12P8220, SMP10PM12P8CB220, SMP10PM12P16220, SMP10PM12P16CB220 13.5” x 13” x 3.25” (342.9mm x 330.2mm x 82.6mm) Enclosure accommodates up to two (2) 12VDC/7AH batteries
Also available to accommodate up to two (2) 12VDC/12AH batteries (please contact Altronix).

Enclosure Dimensions (BC400):
SMP10C12XX220, SMP10PMC12XX220
15.5” x 12” x 4.5” (393.7mm x 304.8mm x 114.3mm) Enclosure accommodates up to two (2) 12VDC/12AH batteries.

CUSTOMER SUPPORT
Altronix is not responsible for any typographical errors.
140 58th Street, Brooklyn, New York 11220 USA |
phone: 718-567-8181
fax: 718-567-9056
website: www.altronix.com | e-mail: [email protected] | Lifetime Warranty
IISMP10C12X220 Series H18U




















