Altronix SMP5CTX220 Series Power Supply Chargers Installation

Installation Guide
SMP5CTX220 Series
Power Supply/Chargers
Models Include:SMP5CTX220
- 12VDC or 24VDC @ 4A.
SMP5PMCTX220
- 12VDC or 24VDC @ 4A.
- AC fail and Low Battery supervision (form “C” contacts).


Overview
Altronix SMP5CTX220 and SMP5PMCTX220 power supply/chargers convert 115VAC or 230VAC (working range 198VAC – 256VAC), 50Hz/60Hz input into a regulated 12VDC or 24VDC output with 4A of continuous load current (see specifications).
Specifications
Agency Listing:
- CE European Conformity.
Input:
- 115VAC, 50/60Hz, 0.95A or 230VAC (working range 198VAC – 256VAC), 50/60Hz, 0.5A.
Output:
- 12VDC or 24VDC selectable output.
- 4A supply current.
- Filtered and electronically regulated outputs.
- Short circuit and thermal overload protection.
Battery Backup:
- Built-in charger for sealed lead acid or gel type batteries.
- Zero voltage drop when switching over to battery backup.
Visual Indicators:
- AC input and DC output LED indicators.
Supervision (SMP5PMCTX220 only):
- AC fail supervision (form “C” contacts).
- Low battery supervision (form “C” contacts).
Environmental:
- Operating temperature: 0ºC to 49ºC (32ºF to 120ºF).
- Storage temperature: – 20ºC to 70ºC (– 4ºF to 158ºF).
- Relative humidity: 85% +/– 5%.
Electrical:
- System AC input VA requirement:
- 115VAC: 109.25VA.
- 230VAC: 115VA.
Mechanical:
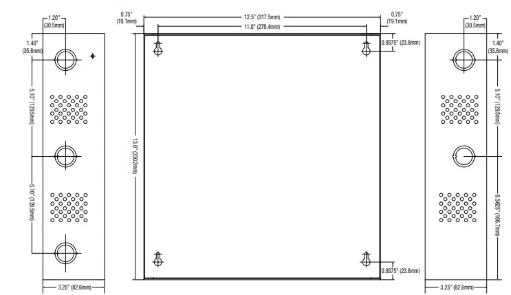
- Enclosure Dimensions (H x W x D approx.): 13.5” x 13” x 3.25” (342.9mm x 330.2mm x 82.6mm)
- Accommodates up to two (2) 12VDC/7AH batteries.
Power Supply Voltage Output Specifications
| Output VDC | Switch Position | Max. Load DC |
| 12VDC | SW1 – ON (Fig. 1b, pg. 3) | 4A |
| 24VDC | SW1 – OFF (Fig. 1b, pg. 3) | 4A |
*Specified at 25˚ C ambient.
Installation Instructions
Wiring methods should be in accordance with the National Electrical Code/NFPA 70/NFPA 72/ANSI, and with all local codes and authorities having jurisdiction. Product is intended for indoor use only.
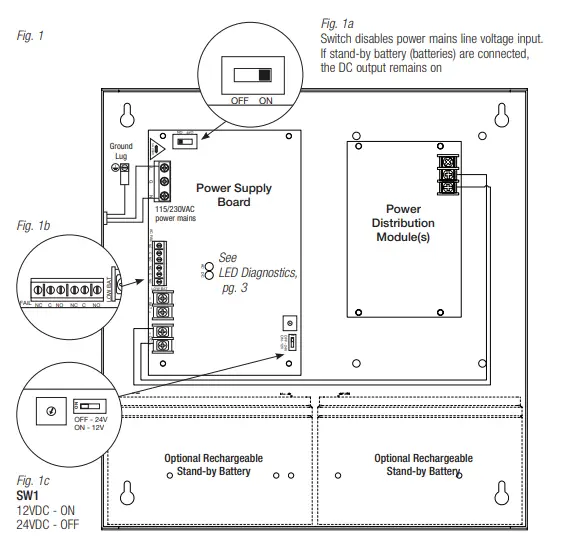
- Mount unit in the desired location. Mark and predrill holes in the wall to line up with the top two keyholes in the enclosure. Install two upper fasteners and screws in the wall with the screw heads protruding. Place the enclosure’s upper keyholes over the two upper screws; level and secure. Mark the position of the lower two holes. Remove the enclosure. Drill the lower holes and install the three fasteners. Place the enclosure’s upper keyholes over the two upper screws. Install the two lower screws and make sure to tighten all screws (Enclosure Dimensions, pg. 4). Secure enclosure to earth ground.
- Slide [Power ON/OFF] switch t o OFF position.
- Set SW1 on the power supply board to the desired DC output voltage (Fig. 1b, pg. 3)(Po upply Voltage Output Specification Chart).
- LugConnect AC circuit (115VAC or 230VAC, 50Hz/60Hz) as follows: Green branch wire connects to ground lug . Line and Neutral to the connector on power supply board marked [L, N] respectively.Use 18 AWG or larger for all power connections (Battery, DC output).Use 22 AWG to 18 AWG f uits (AC Fail/Low Battery reporting).
- Slide [Power ON/OFF] switch to ON position.
- Measure output voltage before connecting devices. This helps avoiding potential damage.
CAUTION: Do not touch exposed metal parts. Shut branch circuit po lling or servicing equipment. There are no user serviceable parts inside. Refer installation and servicing to qualified service personnel. - Slide [Power ON/OFF] switch t o OFF position.
- Connect devices to be powered to the terminals marked [– DC + ] carefully observing correct polarity.
Note: Power switch is used to disconnect the L (HOT) terminal from the rest of the board. When servicing the unit, AC mains should be removed. - When using stand-by batteries, they must be lead acid or gel type. Connect battery to the terminals marked [– BAT +] (battery leads included). 12VDC operation: Use one (1) 12VDC battery.
24VDC operation: Use two (2) 12VDC batteries connected in series.
Note: When batteries are not used, a loss of AC will result in the loss of output voltage. - SMP5PMCTX220 Only: Connect appropriate signaling notification devices to AC Fail and Low Bat supervisory relay outputs marked [NC, C, NO] (Fig. 1a, pg. 2).
- Slide [Power ON/OFF] switch to ON position.

LED Diagnostics:
| Red (DC) | Green (AC) | Power Supply Status |
| ON | ON | Normal operating condition. |
| ON | OFF | Loss of AC. Stand-by battery supplying power. |
| OFF | ON | No DC output. |
| OFF | OFF | Loss of AC. Discharged or no stand-by battery. No DC output. |
Terminal Identification
| Terminal Legend | Function/Description |
| L, G, N | Connect 115VAC/230VAC to these terminals: L to Hot, N to Neutral. |
| – DC + | 12VDC / 24VDC @ 4A continuous output. |
| *AC FAIL NC, C, NO SMP5PMCTX220 only | Used to notify loss of AC power, e.g. connect to audible device or alarm panel. Relay normally energized when AC power is present. Contact rating 1A @ 120VAC / 28VDC. |
| *Low Battery NC, C, NO SMP5PMCTX220 only | Used to indicate low battery condition, e.g. connect to alarm panel. Relay normally energized when DC power is present. Contact rating 1A @ 120VAC / 28VDC. Low battery threshold: 12VDC output threshold set @ approximately 10.5VDC, 24VDC output threshold set @ approximately 21VDC. |
| – BAT + | Stand-by battery connections. Maximum charge rate 0.5A. |
Enclosure Dimensions (BC300)
13.5” x 13” x 3.25” (342.9mm x 330.2mm x 82.6mm) Enclosure accommodates up to two (2) 12VDC/7AH batteries.


Altronix is not responsible for any typographical errors. 140 58th Street, Brooklyn, New York 11220 USA
phone: 718-567-8181
fax: 718-567-9056
website: www.altronix.com
e-mail: [email protected]
Lifetime Warranty IISMP5CTX220 H17U























