Altronix AL1012ULX Series Power Supply and Charger Installation
Overview
Altronix AL1012ULX is a power supply that converts a 115VAC, 60Hz input to a 12VDC output (see specifications below). The AL1012ULX is a base power supply unit for the UL Listed multi-output power supply/charger series: AL1012ULXPD4, AL1012ULXPD4CB, AL1012ULXPD8, AL1012ULXPD8CB, AL1012ULXPD16, AL1012ULXP-D16CB (Refer to AL1012ULX Series Power Supply Configuration Reference Chart below).
AL1012ULX Series Power Supply Configuration Reference Chart:
|
Altronix Model Number |
Accessory Power Distribution Module(s) | Number of Output(s) | Fused Outputs | Class 2 Rated PTC Protected Power-Limited Output(s) (auto-resettable) | Output Rating (A) per Output | Power Supply Input Fuse Rating | Power Supply Battery Fuse Rating | Agency Listings |
UL Listings and File Numbers |
| AL1012ULX | – | 1 | – | – | 10 | 5A/ | 15A/ |
LISTED | UL File # BP6714 UL 294* UL Listed for Access Control Systems. –––––––– “Signal Equipment” Evaluated to CSA Standard C22.2 No.205-M1983 |
| 250V | 32V | ||||||||
| AL1012ULXPD4 | PD4UL | 4 | ✓ | – | 3.5 | 5A/ | 15A/ | ||
| 250V | 32V | ||||||||
| AL1012ULXPD4CB | PD4ULCB | 4 | – | ✓ | 2.5 | 5A/ | 15A/ | ||
| 250V | 32V | ||||||||
| AL1012ULXPD8 | PD8UL | 8 | ✓ | – | 3.5 | 5A/ | 15A/ | ||
| 250V | 32V | ||||||||
| AL1012ULXPD8CB | PD8ULCB | 8 | – | ✓ | 2.5 | 5A/ | 15A/ | ||
| 250V | 32V | ||||||||
| AL1012ULXPD16 | Two (2) | 16 | ✓ | – | 3.5 | 5A/ | 15A/ | ||
| PD8UL | 250V | 32V | |||||||
| AL1012ULXPD16CB | Two (2) | 16 | – | ✓ | 2.5 | 5A/ | 15A/ | ||
| PD8ULCB | 250V | 32V |
*ANSI/UL 294 7th Ed. Access Control Performance Levels: Destructive Attack – I; Endurance – IV; Line Security – I; Stand-by Power – I. Stand-by: 15 minutes of Stand-by at 10A.
Specifications
Input
- Input 115VAC, 60Hz, 2.6A.
Output
- 12VDC output.
- 10A total supply current at 12VDC.
- Filtered and electronically regulated outputs.
- Short circuit and thermal overload protection.
Supervision
- AC fail supervision (form “C” contacts).
- Battery presence and low battery supervision (form “C” contacts).
Battery Backup
- Maximum charge current 0.7A.
- Built-in charger for sealed lead acid or gel type batteries.
- Automatic switch over to stand-by battery when AC fails.
- Zero voltage drop when switched over to battery backup.
LED Indicators
- AC input and DC output LED indicators.
Additional Features
- Power supply, enclosure, cam lock and battery leads.
Fig. 1 – AL1012ULX Series
CAUTION: De-energize unit prior to servicing.
For continued protection against risk of electric shock and fire hazard replace fuse with the same type and rating. Do not expose to rain or moisture. 
CAUTION: Optional rechargeable stand-by batteries must match the power supply output voltage setting. Keep power-limited wiring separate from non power-limited. Use minimum 0.25″ spacing.
Installation Instructions
Wiring methods shall be in accordance with the National Electrical Code/NFPA 70/NFPA 72/ANSI, and with all local codes and authorities having jurisdiction. Product is intended for indoor use only.
- Mount unit in the desired location. Mark and predrill holes in the wall to line up with the top two keyholes in the enclosure. Install two upper fasteners and screws in the wall with the screw heads protruding. Place the enclosure’s upper keyholes over the two upper screws; level and secure. Mark the position of the lower two holes. Remove the enclosure. Drill the lower holes and install two fasteners. Place the enclosure’s upper keyholes over the two upper screws. Install the two lower screws and make sure to tighten all screws
(Enclosure Dimensions, pg. 8). Secure enclosure to earth ground. - Connect AC power (115VAC, 60 Hz) to the terminals marked [L, N] (Fig. 1, pg. 3). Green “AC” LED on power supply board will turn on. This light can be seen through the LED lens on the door of the enclosure. Use 14 AWG or larger for all power connections (Battery, DC output, AC input). Use 22 AWG to 18 AWG
for power-limited circuits (AC Fail / Low Battery reporting).
Note: Keep power-limited wiring separate from non power-limited wiring (115VAC, 60Hz Input, Battery Wires). Minimum 0.25” spacing must be provided.
CAUTION: Do not touch exposed metal parts. Shut branch circuit power before installing or servicing equipment. There are no user serviceable parts inside. Refer installation and servicing to qualified service personnel. - Mea sure output voltage before connecting device. This helps avoiding potential damage.
- Connect devices to be powered:
- For AL1012ULX: connect to the terminals marked [– DC +] (Fig. 1, pg. 3).
- For other Power Distribution Models: connect devices to be powered to the terminal pairs 1 to 4 marked [1P & 1N] through [4P & 4N] (Fig. 2, pg. 6) or 1 to 8 marked [1P & 1N] through [8P & 8N] (Fig. 3, pg. 6), carefully observing correct polarity.
- For Access Control applications batteries are optional. When batteries are not used, a loss of AC will result in the loss of output voltage. When the use of stand-by batteries is desired, they must be lead acid or gel type.
- Connect appropriate signaling notification devices to the terminals marked [AC FAIL & BAT FAIL]
(Fig. 1, pg. 3) supervisory relay outputs.
Note: When used in fire alarm, burglar alarm or access control applications, “AC Fail” relay must be used to provide a visual indication of AC power on. - Please ensure that the cover is secured with the provided key lock.
Wiring:
Use 14 AWG or larger for all power connections.
Note: Take care to keep power-limited circuits separate from non power-limited wiring (115VAC, Battery).
Maintenance
Unit should be tested at least once a year for the proper operation as follows:
Output Voltage Test: Under normal load conditions the DC output voltage should be checked for the proper voltage level.
Battery Test: Under normal load conditions check that the battery is fully charged, check specified voltage both at the battery terminal and at the board terminals marked [+ BAT –] to ensure that there is no break in the battery connection wires.
Note: Maximum charging current under discharges is 0.7A.
Note: Expected battery life is 5 years; however, it is recommended changing batteries in 4 years or less if needed.
LED Diagnostics
AL1012ULXB – Power Supply Board
| Red (DC) | Green (AC) | Power Supply Status |
| ON | ON | Normal operating condition. |
| ON | OFF | Loss of AC. Stand-by battery is supplying power. |
| OFF | ON | No DC output. |
| OFF | OFF | Loss of AC. Discharged or no stand-by battery. No DC output. |
PD4/PD4CB/PD8/PD8CB – Power Distribution Module
| Green | Power Distribution Module Status |
| ON | Normal operating condition. |
| OFF | No power output. |
Terminal Identification
AL1012ULXB – Power Supply Board
| Terminal Legend | Function/Description |
| L, N | Connect 115VAC to these terminals: L to Hot, N to Neutral. Do not use the [G] terminal. |
| – DC + | 12VDC @ 10A continuous non power-limited output. |
| AC FAIL NC, C, NO | Indicates loss of AC power, e.g. connect to annuciator/alarm panel. Relay normally energized when AC power is present. Contact rating 1A @ 30VDC. AC Fail condition will report approx- imately one (1) to one minute after loss of AC. To delay report for 6 hours cut jumper J1 on the Power Supply Board (AC trouble output delay option). If this mode is selected, the Power Supply Board must be reset by removing all power to it for 30 seconds. |
| BAT FAIL NO, C, NC | Indicates low battery condition, e.g. connect to alarm panel. Relay normally energized when DC power is present. Contact rating 1A @ 30VDC. Low battery conditions will report approximately 10.5VDC. Battery presence detection will report approximately 1 minute after battery remains undetected (missing or removed). |
| + BAT – | Stand-by battery connections. Maximum charge rate 0.7A. |
PD4/PD4CB/PD8/PD8CB – Power Distribution Module
| Terminal Legend | Function/Description | |
| PD4/PD4CB | PD8/PD8CB | |
| 1P to 4P | 1P to 8P | Positive DC power outputs. |
| 1N to 4N | 1N to 8N | Negative DC power outputs. |
Power Distribution Module(s)
- Fig. 2a – PD4UL Power Distribution Board Non Power-Limited Outputs
- Fig. 2b – PD4ULCB – Power Distribution Board Class 2 Power-Limited Outputs

- Fig. 3a – PD8UL Power Distribution Board Non Power-Limited Outputs
- Fig. 3b – PD8ULCB – Power Distribution Board Class 2 Power-Limited Outputs

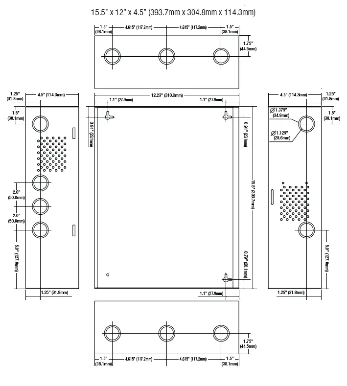
Enclosure Dimensions (BC400)
15.5” x 12” x 4.5” (393.7mm x 304.8mm x 114.3mm)
Altronix is not responsible for any typographical errors. 140 58th Street, Brooklyn, New York 11220 USA | phone: 718-567-8181 | fax: 718-567-9056
website: www.altronix.com | e-mail: [email protected] | Lifetime Warranty IIAL1012ULX Series G08U























