Altronix AL300ULXJ Power Supply Charger

Overview:
Altronix AL300ULXJ power supply converts a 115VAC, 60Hz input to a 12VDC or 24VDC output.
Features:
- Agency Listings:
- UL Listed:
- UL294* Access Control Systems.
- UL603 Power Supplies for use with Burglar-Alarm Systems.
- UL1069 Hospital Signaling and Nurse Call Equipment.
- UL1481 Power Supplies for Fire
- cUL Listed:
CSA Standard C22.2 No.205-M1983, Signal Equipment. - CSFM – California State Fire Marshal Approved.
- NFPA 72 Compliant
(Fire-Protective Signaling Service).
- UL Listed:
- Input:
- Input 115VAC, 60Hz, 3.5A.
- Input fuse rated @ 5A/250V.
- Output:
- Class 2 Rated power-limited output.
- 12VDC or 24VDC selectable output.
- Fire Alarm applications outputs are “Special Applications” (refer to Appendix A, pg. 6). Burglar Alarm Applications (UL 603):
- 12VDC = 10VDC-13.2VDC.
- 24VDC = 20VDC-26.4VDC.
- Output (cont’d):
- 2.5A total supply current at 12VDC or 24VDC. Do not exceed total output rating of 2.5A @ 12VDC or 24VDC per unit.
- Output fuse rated @ 15A/32V.
- Filtered and electronically regulated output(s).
- Short circuit and thermal overload protection.
- LED Indicators:
AC input, DC output and Battery LED indicators. - Battery Backup:
- Built-in charger for sealed lead acid or gel type batteries.
- Automatic switch over to stand-by battery when AC fails.
- Maximum charge current 0.7A.
- Zero voltage drop when switched over to battery backup.
- Supervision:
- AC fail supervision (form “C” contacts).
- Low battery and battery presence supervision (form “C” contacts).
- Additional Features:
- Power supply, enclosure, cam lock and battery leads.
- For grey enclosure add “G” suffix to the part number.
*Access Control Performance Levels: Destructive Attack – I; Endurance – IV; Line Security – I; Stand-by Power – IV.
Power Supply Output Specifications:
| Output VDC | Switch Position |
| 12VDC | SW1 – ON (Fig. 1c, pg. 5) |
| 24VDC | SW1 – OFF (Fig. 1c, pg. 5) |

Stand-by Specifications (total current shown):
| Output | 4 hr. of Stand-by and 5 Minutes of Alarm | 24 hr. of Stand-by and 5 Minutes of Alarm | 60 hr. of Stand-by and 5 Minutes of Alarm |
| 12VDC / 40AH Battery | Stand-by = 2.5A Alarm = 2.5A | Stand-by = 1.0A Alarm = 2.5A | Stand-by = 300mA Alarm = 2.5A |
| 24VDC / 12AH Battery | – | Stand-by = 200mA Alarm = 2.5A | – |
| 24VDC / 40AH Battery | Stand-by = 2.5A Alarm = 2.5A | Stand-by = 1.0A Alarm = 2.5A | Stand-by = 300mA Alarm = 2.5A |
Installation Instructions:
Wiring methods shall be in accordance with the National Electrical Code/NFPA 70/NFPA 72/ANSI, and with all local codes and authorities having jurisdiction. Product is intended for indoor use only.
- Mount unit in the desired location. Mark and pre drill holes in the wall to line up with the top two keyholes in the enclosure. Install two upper fasteners and screws in the wall with the screw heads protruding. Place the enclosure’s upper keyholes over the two upper screws; level and secure. Mark the position of the lower two holes. Remove the enclosure. Drill the lower holes and install two fasteners. Place the enclosure’s upper keyholes over the two upper screws. Install the two lower screws and make sure to tighten all screws (Enclosure Dimensions, pg. 8). Secure enclosure to earth ground.
- Set the unit to the desired DC output voltage by setting SW1 (Fig. 1c, pg. 5) to the appropriate position (Power Supply Output Specification Chart, pg. 2).
- Secure cabinet to earth gourd. Connect AC power (115VAC, 60 Hz) to the terminals marked [L, N] (Fig. 1, pg. 5). Green “AC” LED on power supply board will turn on. This light can be seen through the
- LED lens on the door of the enclosure. Use 14 AWG or larger for all power connections (Battery, DC output, AC input). Use 22 AWG to 18 AWG for power-limited circuits (AC Fail/Low Battery reporting).
- Keep power-limited wiring separate from non-power limited wiring (115VAC / 60Hz Input,
- Battery Wires). Minimum 0.25” spacing must be provided.
- For Fire Alarm applications the outputs are “Special Applications” only, see list (refer to Appendix A, pg. 6).
- Measure output voltage before connecting devices. This helps avoiding potential damage.
When servicing the unit, AC mains should be removed. - Connect devices to the terminals marked [+ DC –] (Fig. 1, pg. 5).
- For Access Control applications batteries are optional. When batteries are not used, a loss of AC will result in the loss of output voltage. When the use of stand-by batteries is desired, they must be lead acid or gel type. Connect one (1) 12VDC battery to the terminals marked [+ BAT –] for 12VDC operation.
Use two (2) 12VDC batteries wired in series for 24VDC operation. - Connect appropriate signaling notification devices to AC FAIL & BAT FAIL (Fig. 1a, pg. 5) supervisory relay outputs.
Note: When used in fire alarm, burglar alarm or access control applications, “AC Fail” relay should be utilized to visually indicate that AC power is on. To delay report for 6 hours cut “AC Delay” jumper (Fig. 1b, pg. 5). - Please ensure that the cover is secured with the provided key lock.
CAUTION: De-energize unit prior to servicing. For continued protection against risk of electric shock and fire hazard replace fuse with the same type and rating. Do not expose to rain or moisture.
CAUTION: Optional rechargeable stand-by batteries must match the power supply output voltage setting.
Keep power-limited wiring separate from non power-limited. Use minimum 0.25″ spacing.
Wiring:
Use 14 AWG or larger for all power connections.
Note: Take care to keep power-limited circuits separate from non power-limited wiring (115VAC, Battery).
Maintenance:
Unit should be tested at least once a year for the proper operation as follows:
- Output Voltage Test: Under normal load conditions, the DC output voltage should be checked for proper voltage level (refer to Power Supply Voltage Output Specifications chart).
- Battery Test: Under normal load conditions check that the battery is fully charged, check specified voltage both at the battery terminal and at the board terminals marked [+ BAT –] to ensure that there is no break in the battery connection wires.
- Note: Maximum charging current under discharge is 0.7A.
- Note: Expected battery life is 5 years, however it is recommended changing batteries in 4 years or less if needed
LED Diagnostics:
| Red (DC) | Green (AC) | Power Supply Status |
| ON | ON | Normal operating condition. |
| ON | OFF | Loss of AC. Stand-by battery is supplying power. |
| OFF | ON | No DC output. |
| OFF | OFF | Loss of AC. Discharged or no stand-by battery. No DC output. |
| Red (Bat) | Battery Status |
| ON | Normal operating condition. |
| OFF | Battery fail/low battery. |
Terminal Identification:
| Terminal Legend | Function/Description |
| L, G, N | Connect 115VAC 60 Hz. to these terminals: L to hot, N to Neutral. |
| + DC – | 12VDC or 24VDC @ 2.5A continuous power-limited output. |
| AC Fail NC, C, NO | Indicates loss of AC power, e.g. connect to annunciator/alarm panel. Relay normally ener- gized when AC power is present. Contact rating 1A @ 28VDC. AC Fail condition will report approximately within one (1) minute after loss of AC. To delay report for 6 hours cut jumper J1 on the Power Supply Board (AC trouble output delay option). If this mode is selected the Power Supply Board must be reset by removing all power to it for 30 seconds. |
| Bat Fail NC, C, NO | Indicates low battery condition, e.g. connect to alarm panel. Relay normally energized when DC power is present. Contact rating 1A @ 28VDC. Low battery conditions will report approximately 21VDC (24VDC output setting) or approximately 10.5VDC (12VDC output setting). Battery presence detection will report approximately 1 minute after bat- tery remains undetected (missing or removed). |
| + BAT – | Stand-by battery connections. Maximum charge current 0.7A. |
CAUTION: De-energize unit prior to servicing. For continued protection against risk of electric shock and fire hazard replace fuse with the same type and rating. Do not expose to rain or moisture.
Appendix A – UL Listed Compatible Devices
A.1 Four (4) Wire Smoke Detectors
Table A-1 below lists four (4) wire smoke detectors compatible with AL300ULXJ output.
| System Sensor Smoke Detector/Base | Detector Type | Max Stand-by Current (mA) | Alarm Current (mA) |
| B112LP | Base | 0.12 | 36 |
| B114LP | Base | * | * |
| B404B | Base | * | * |
| DH100ACDC | Photoelectric | 0.15 | 0.70 |
| DH100ACDCLP | Photoelectric | 0.15 | 0.70 |
| DH100ACDCLPW | Photoelectric | 0.15 | 0.70 |
| DH400ACDCI | Ionization Duct | 25 | 95 |
| DH400ACDCP | Photoelectric Duct | 25 | 95 |
| 1112/24/D | Ionization | 0.05 | 50 |
| 1424 | Ionization | 0.10 | 41 |
| 1451 (w/B402B Base) | Ionization | 0.10 | 39 |
| 2112/24ATR | Photoelectric | 0.50 | 60/70 |
| 2112/24AITR | Photoelectric | 0.50 | 60/70 |
| 2112/24/D | Photoelectric | 0.05 | 50 |
| 2112/24T/D | Photoelectric w/135o Thermal | 0.05 | 50 |
| 2112/24TSRB | Photoelectric w/135o Thermal Supervisory Relay | 15 | 45 |
| 2312/24TB | Photoelectric | 0.12 | 50 |
| 2412 (12 volt) | Photoelectric | 0.12 | 77 |
| 2424 | Photoelectric | 0.10 | 41 |
| 2451 | Photoelectric | 0.10 | 39 |
| 2451TH (with/B402B Base) | Photoelectric | 0.10 | 39 |
| 2W-MOD | Loop Test/Maintenance Mod. | 30 | 50 |
| 4W-B (12/24 volt) | Photoelectric I3 | 0.05 | 23 |
| 4WT-B (12/24 volt) | Photoelectric I3 w/Therm | 0.05 | 23 |
| 4WTA-B (12/24 volt) | I3 Photo w/Therm/Sounder | 0.05 | 35 |
| 4WTR-B (12/24 volt) | I3 Photo w/Therm/Relay | 0.05 | 35 |
| 4WITAR-B (12/24 volt) | I3 Photo w/Isolated Therm/Sounder/Relay | 0.05 | 50 |
| 2W-MOD2 | I3 Loop Test/Maintenance Mod. | 0.05 | * |
| RRS-MOD | I3 Reversing Relay/Sync Module | 0.05 | * |
| 6424 | Projected Beam | 10 | 28.4 |
| Beam 1224(S) | Projected Beam | 17 | 38.5 |
Contact manufacturer for current draws.
A.2 Relays
Table A-2 below lists relays compatible with AL300ULXJ output.
| Manufacturer | Model | Current (mA) | ||||||||||||||||||
| PR-1 | 15 | |||||||||||||||||||
| PR-2 | 30 | |||||||||||||||||||
| System Sensor | PR-3 EOLR-1 | 30 30 | ||||||||||||||||||
| R-10T | 23 | |||||||||||||||||||
| R-14T | 23
|
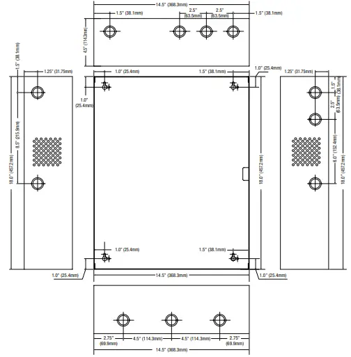
Enclosure Dimensions
(H x W x D approximate): 18” x 14.5” x 4.625” (457.2mm x 368.3mm x 117.5mm)

ABOUT COMPANY
- Altronix is not responsible for any typographical errors.
- 140 58th Street, Brooklyn, New York 11220 USA
- phone: 718-567-8181
- fax: 718-567-9056
- website: www.altronix.com
- e-mail: [email protected]
- Lifetime Warranty IIAL300ULXJ G02U





















