
AL100UL UL Listed Linear Power Supply-Charger
Installation Guide
![]()
Rev. 050101
Installing Company: ………………….
Service Rep. Name:……………………………………
Address: ……………………………………………………………….
Phone #:……………………………………..
Overview:
Altronix AL100UL power supply converts 16.5VAC, 20VA to a 12VDC power-limited output (see specifications). The AL100UL is UL Listed for Burglar Alarm applications.
Specifications:
Agency Listings:
- UL Listed Standard for Power Supplies for Use with Burglar Alarm System Units (UL 603). Burglar Alarm System Power Supply.
- CUL Listed – CSA Standard C603-M1988, Burglar Alarm System.
Input:
- 16.5VAC, 20VA from UL Listed Class 2 transformer (sold separately).
Output:
- 12VDC Class 2 Rated power-limited output.
- 750mA continuous supply current at 12.5 to 13.9VDC.
- Filtered and electronically regulated output.
Supervision:
- Low battery and AC fail supervision form “C” contacts (1A @ 28VDC).
Battery Backup:
- Built-in charger for sealed lead acid or gel type batteries.
- The maximum charge current is 0.5A.
- Automatic switch over to stand-by battery when AC fails.
- Low battery disconnect prevents batteries from deep discharge.
Visual Indicators:
- AC input and DC output LED indicators.
Additional Features:
- Short circuit and thermal overload protection.
- The unit is complete with a power supply and enclosure.
- Includes battery leads.
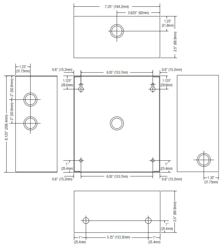
Enclosure Dimensions (H x W x D approx.): 8.5” x 7.5” x 3.5” (215.9mm x 190.5mm x 88.9mm).
Stand-by Specifications:
| Stand-by Battery | Current Draw | Stand-by Time | Alarm Time |
| 12VDC / 4AH Battery | 750mA | 4 Hours | 15 mins. |
Installation Instructions:
Wiring methods shall be in accordance with the National Electrical Code/NFPA 70/NFPA 72/ANSI, and with all local codes and authorities having jurisdiction. The product is intended for indoor use only.
- Mount the unit in the desired location. Mark and predrill holes in the wall to line up with the top two keyholes in the enclosure. Install two upper fasteners and screws in the wall with the screw heads protruding. Place the enclosure’s upper keyholes over the two upper screws; level and secure. Mark the position of the lower two holes. Remove the enclosure. Drill the lower holes and install two fasteners. Place the enclosure’s upper keyholes over the two upper screws. Install the two lower screws and make sure to tighten all screws (Enclosure Dimensions, pg. 4). Secure the enclosure to earth ground (Fig 1, pg. 2).
- Connect a 16.5VAC, 20VA Class 2, UL Listed plug-in transformer to the terminals marked [AC, AC] (Fig 1, pg. 2).
- Measure output voltage before connecting devices. This helps avoid potential damage.
- Connect devices to be powered to the terminals marked [– DC +] (Fig 1, pg. 2).
- Connect the standby battery to the terminals marked [– BAT +] (Fig 1, pg. 2) (battery leads included).
- Connect appropriate signaling notification devices to the AC Fail and Low Bat supervisory relay outputs terminals marked [LOW BAT – NC, C, NO, AC FAIL – NC, C, NO] (Fig 1, pg. 2).
Note: To meet UL requirements, AC Supervisory outputs must be connected to the zone of the Alarm Control Panel or to the visual AC trouble indicator.
Note: For Access Control applications batteries are optional. When batteries are not used, a loss of AC will result in the loss of output voltage. When the use of stand-by batteries is desired, they must be lead acid or gel type.
LED Diagnostics:
| Red (DC) | Green (AC) | Power Supply Status |
| ON | ON | Normal operating condition. |
| ON | OFF | Loss of AC. Stand-by battery supplying power. |
| OFF | ON | No DC output. |
| OFF | OFF | Loss of AC. Discharged or no stand-by battery. No DC output. |
Maintenance:
The unit should be tested at least once a year for the proper operation as follows:
Output Voltage Test: Under normal load conditions the DC output voltage should be checked for proper voltage level (Stand-by Specifications Chart).
Battery Test: Under normal load, conditions check that the battery is fully charged, and check the specified voltage both at the battery terminal and at the board terminals marked [– BAT +] to ensure that there is no break in the battery connection wires.
Note: Maximum charging current under discharge is 500mA.
Note: Expected battery life is 5 years; however, it is recommended to change batteries in4 years or less if needed.
Terminal Identification:
| Terminal Legend | Function/Description |
| AJAX | Low voltage AC input (16.5VAC/20NA). UL Listed. Class 2 plug-in transformer. |
| — DC — | 12VDC © 750mA continuous power-limited output. |
| — BAT + | Stand-by battery connections. Maximum charge rate 500mk. |
| AC FAIL NC. C. NO | Indicates bss of AC. e.g. connect an audible device or alarm panel. The relay is normally energized when AC power is present. Contact rating 1 A g 28VDC. |
| LOW BAT NC. C. NO | Indicates low battery condition e.g connect audible device and alarm panel. The relay is normally energized. Contact rating 1A g 28VDC. |

The lightning flash with an arrowhead symbol within an equilateral triangle is intended to alert the user to the presence of an insulated DANGEROUS VOLTAGE within the product’s enclosure that may be of sufficient magnitude to constitute an electric shock.
The exclamation point within an equilateral triangle is intended to alert the user to the presence of important operating and maintenance (servicing) instructions in the literature accompanying the appliance.![]()
CAUTION: To reduce the risk of electric shock do not open the enclosure. There are no user-serviceable parts inside. Refer servicing to qualified service personnel.
Enclosure Dimensions (H x W x D):
8.5” x 7.5” x 3.5” (215.9mm x 190.5mm x 88.9mm)
![]()
Altronix is not responsible for any typographical errors.
140 58th Street, Brooklyn, New York 11220 USA
phone: 718-567-8181
fax: 718-567-9056
website: www.altronix.com
e-mail: [email protected]
Lifetime Warranty
IIAL100UL F29U



















