Altronix LPS3C12X220 Linear Power Supply-Charger Installation Guide

Overview:
Altronix LPS3C12X220 linear power supply/charger is specifically designed to provide the power needed by the most demanding security and access control applications. It converts a 220VAC 50/60Hz input to a 2.5A, 12VDC output.

Fig. 1
Specifications:
Input:
- 220VAC 50/60Hz rated @ 0.25A.
Output:
- 12VDC output.
- 2.5A continuous supply current.
- Filtered and electronically regulated output.
- Short circuit and thermal overload protection.
Battery Backup:
- Built-in charger for sealed lead acid or gel type batteries.
- Maximum charge current 500mA.
- Automatic switch over to stand-by battery when AC fails (zero voltage drop).
- Fused battery protection (circuit breaker available).
Visual Indicators:
- AC/DC power LED indicator.
Features:
- Includes battery leads.
- Enclosure:
– Combination knockouts are 1/2” and 3/4”.
– Accommodates one (1) 12VDC/12AH battery.
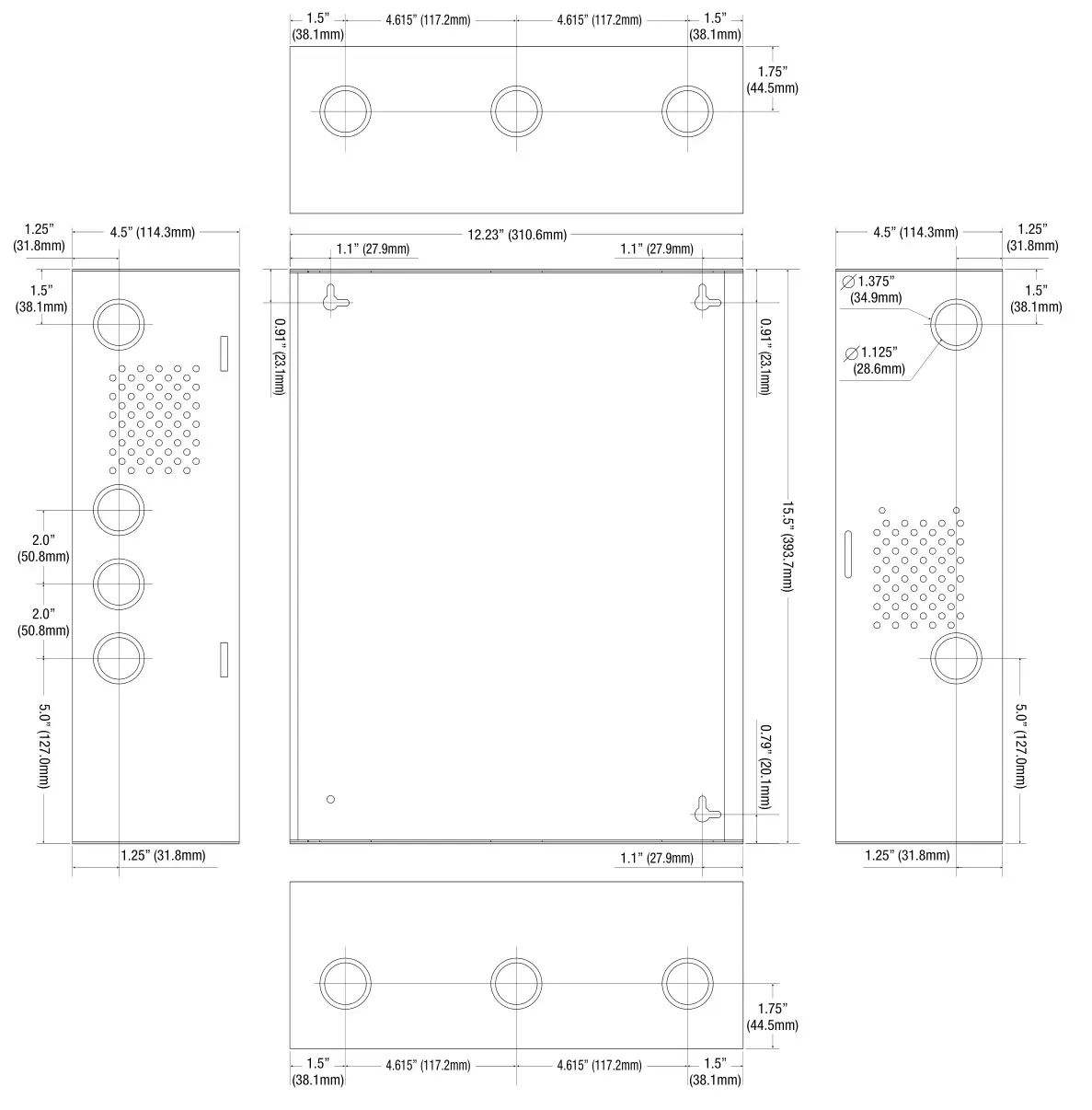
Enclosure Dimensions (H x W x D):
15.5” x 12” x 4.5” (393.7mm x 304.8mm x 114.3mm)
Installation Instructions:
LPS3C12X220 should be installed in accordance with the National Electrical Code and all applicable Local Regulations.
- Mount the LPS3C12X220 in the desired location.
- Connect AC power to the black and white flying leads of the transformer (Fig. 1).
Use 18 AWG or larger for all power connections (Battery, DC output). - Measure output voltage before connecting devices. This helps avoiding potential damage.
Keep power-limited wiring separate from non power-limited wiring (220VAC 50/60Hz Input, Battery Wires).
Minimum 0.25” spacing must be provided.
CAUTION: Do not touch exposed metal parts. Shut branch circuit power before installing or servicing equipment.
There are no user serviceable parts inside. Refer installation and servicing to qualified service personnel. - Connect devices to be powered to the terminals marked [- DC +] (Fig. 1).
- Connect battery to the terminals marked [- BAT +] (Fig. 1) on the unit (battery leads included).
Note: When batteries are not used, a loss of AC will result in the loss of output voltage.
Maintenance:
Unit should be tested at least once a year for the proper operation as follows:
Output Voltage Test: Under normal load conditions the DC output voltage should be checked for proper voltage level.
Battery Test: Under normal load conditions check that the battery is fully charged, check specified voltage both at the battery terminal and at the board terminals marked [- BAT +] to ensure that there is no break in the battery connection wires.
Note: Maximum charging current under discharge is 500mA.
Note: Expected battery life is 5 years; however, it is recommended changing batteries in 4 years or less if needed.
LED Diagnostics:

Terminal Identification:

Enclosure Dimensions (H x W x D approx.):
15.5” x 12” x 4.5” (393.7mm x 304.8mm x 114.3mm)

Altronix is not responsible for any typographical errors. Product specifications are subject to change without notice.
140 58th Street, Brooklyn, New York 11220 USA | phone: 718-567-8181 | fax: 718-567-9056
website: www.altronix.com | e-mail: [email protected] | Lifetime Warranty IILPS3C12X220 – Rev. 030210




















