LPS5C24X220 Linear Power Supply Charger
Owner’s Manual
Overview:
Altronix LPS5C24X220 linear power supply/charger converts a 220VAC 50/60Hz input to a 24VDC @ 3.5A continuous supply current. The output stays regulated until the batteries discharge to 25% capacity.
Specifications:
Input:
- 220VAC 50/60Hz, 0.8A.
Output:
- 24VDC @ 3.5A.
- Filtered and electronically regulated.
- Thermal and overload protection with auto reset.
Battery Backup:
- Built-in charger for sealed lead acid batteries.
- Automatic switchover to stand-by battery when AC Fails.
- PTC battery protection.
- Maximum charge current 0.3A.
- Battery leads included.
Visual Indicators:
- AC input and DC output LED indicators.
Supervision:
- Low battery and AC fail supervision (dry relay outputs 1A @ 28VDC).
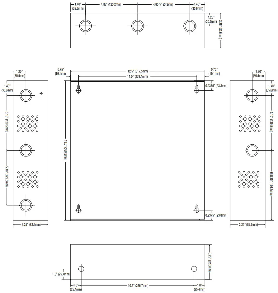
Enclosure Dimensions:
13.5” x 13” x 3.25” (342.9mm x 330.2mm x 82.55mm)

Power Supply Voltage Output Specifications:
| Output VDC | Maximum Load DC |
| 24VDC | 3.5A |
Installation Instructions:
The LPS5C24X220 should be installed in accordance with The National Electrical Code and all applicable Local Regulations.
- Mount the LPS5C24X220 in the desired location.
- Connect the unswitched AC circuit (220VAC, 50/60Hz) as follows: Green branch wire (ground) connects to the terminal marked
, Line connects to the terminal marked [L], and Neutral connects to the terminal marked [N] of the Inlet Appliance Connector. Use 18 AWG or larger for all power connections (Battery, DC output). - Measure output voltage before connecting devices. This helps avoid potential damage.
- Connect devices to be powered to the terminals marked [+ DC —] (Fig. 1).
- Connect the battery to the terminals marked [+ BAT —] on the unit (battery leads included) (Fig. 1).
Note: When batteries are not used, a loss of AC will result in a loss of output voltage.
Terminal Identification:
| Terminal Legend | Function/Description |
| AC/AC | Low voltage AC input (24VAC 150VA). |
| + BAT – | Stand-by battery connections. |
| + DC – | 24VDC @ 3.5A continuous output. |
LED Diagnostics:
| Red (DC) | Green (AC) | Power Supply Status |
| ON | ON | Normal operating condition. |
| ON | OFF | Loss of AC. The standby battery is supplying power. |
| OFF | ON | No DC output. |
| OFF | OFF | Loss of AC. Discharged or missing standby battery. No DC output. |
Enclosure Dimensions (H x W x D approximate): 13.5” x 13” x 3.25” (342.9mm x 330.2mm x 82.55mm)
Altronix is not responsible for any typographical errors.
Product specifications are subject to change without notice.
140 58th Street, Brooklyn,
New York 11220 USA
Phone: 718-567-8181
Fax: 718-567-9056
Website: www.altronix.com
E-mail: [email protected]
Lifetime Warranty
IILPS5C24X220 Rev. 051105 L09U



















