Altronix AL300ULXD Single Class 2 Output Power Supply Charger

Overview:
Altronix AL300ULXD power supply/charger converts a 115VAC, 50/60Hz or 230VAC, 50/60Hz input into a power-limited 12VDC or 24VDC output (see specifications).
Specifications:
- Agency Listings:
- UL 294* Safety Access Control System Units,
- UL 603 Power Supplies for Use with Burglar-Alarm Systems,
- UL 1069 Hospital Signaling and Nurse Call Equipment,
- UL 1481 Power Supplies for Fire-Protective Signaling Systems.
- CE: European Conformity.
- Input:
115VAC, 50/60Hz, 0.9A or 230VAC, 50/60Hz 0.45A. - Output:
- 12VDC or 24VDC selectable output.
- 12VDC or 24VDC @ 2.5A supply current.
- Class 2 Rated power-limited output.
- Filtered and electronically regulated output.
- Short circuit and thermal overload protection.
- Supervision:
- AC fail supervision (form “C” contacts).
- Low battery supervision (form “C” contacts).
- Battery Backup:
- Built-in charger for sealed lead acid or gel type batteries.
- Automatic switch over to stand-by battery when AC fails.
- Maximum charge current 0.6A.
- Visual Indicators:
AC input and DC output LED indicators. - Features:
- Low battery disconnect.
- Unit is complete with transformer, power supply, grey enclosure, and cam lock.
- Battery leads included.
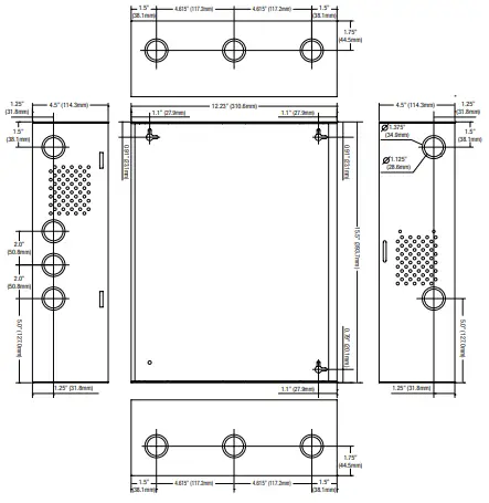
- Enclosure Dimensions (H x W x D approx.): 15.5” x 12” x 4.5”
(393.7mm x 304.8mm x 114.3mm).
Accommodates up to two 12VDC/12AH batteries. For a red enclosure add an “R” suffix to the part #, e.g. AL300ULXDR.
*Access Control Performance Levels: Destructive Attack – I; Endurance – IV; Line Security – I; Stand-by Power – IV.
Power Supply Output Selection:
| Output | Switch Position |
| 12VDC | SW1, 2 – ON, SW3, 4 – OFF |
| 24VDC | SW1, 2 – OFF, SW3, 4 – ON |
Stand-by Specifications:
| Output | 4 hr. of Stand-by and 5 Minutes of Alarm | 24 hr. of Stand-by and 5 Minutes of Alarm | 60 hr. of Stand-by and 5 Minutes of Alarm |
| 12VDC / 40AH Battery | Stand-by = 2.5A Alarm = 2.5A | Stand-by = 1.0A Alarm = 2.5A | Stand-by = 300mA Alarm = 2.5A |
| 24VDC / 12AH Battery | – | Stand-by = 200mA Alarm = 2.5A | – |
| 24VDC / 40AH Battery | Stand-by = 2.5A Alarm = 2.5A | Stand-by = 1.0A Alarm = 2.5A | Stand-by = 300mA Alarm = 2.5A |
Installation Instructions:
Wiring methods shall be in accordance with the National Electrical Code/NFPA 70/NFPA 72/ANSI, and with all local codes and authorities having jurisdiction. Product is intended for indoor use only.
- Mount unit in the desired location. Mark and predrill holes in the wall to line up with the top two keyholes in the enclosure. Install two upper fasteners and screws in the wall with the screw heads protruding. Place the enclosure’s upper keyholes over the two upper screws; level and secure. Mark the position of the lower two holes. Remove the enclosure. Drill the lower holes and install the three fasteners. Place the enclosure’s upper keyholes over the two upper screws. Install the two lower screws and make sure to tighten all screws (Enclosure Dimensions, pg. 8). Secure enclosure to earth ground.
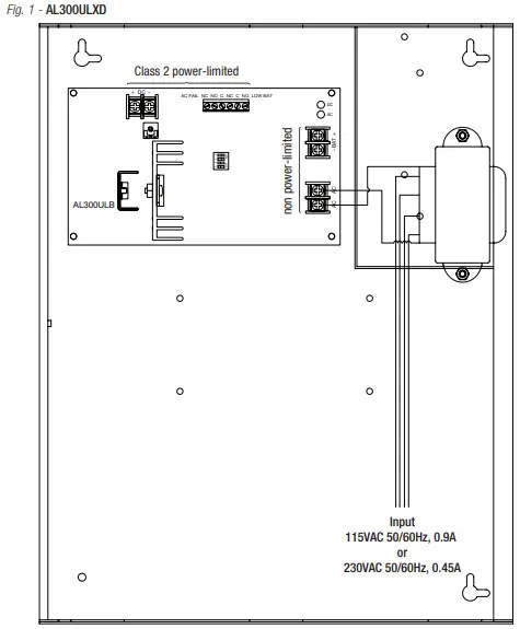
- Connect input power to the transformer. Secure green wire lead to earth ground. (Fig. 1, pg. 5).
- For 115VAC input:
- Connect Yellow and White leads from transformer primary to neutral.
- Connect Blue and Black leads from transformer primary to line (Fig. 2, pg. 5).
- For 230VAC input:
- Connect Blue and Yellow leads of transformer together.
- Connect White lead from transformer to neutral.
- Connect Black lead from transformer to line (Fig. 3, pg. 5).
Connect Black lead from transformer to line (Fig. 3, pg. 5).
Green “AC” LED on power supply board will turn on. This light can be seen through the LED lens on the door of the enclosure. Use 18 AWG or larger for all power connections (Battery, DC output).
Use 22 AWG to 18 AWG for power-limited circuits (AC Fail/Low Battery reporting).
Keep power-limited wiring separate from non power-limited wiring (115VAC, 50/60Hz or 230VAC, 50/60Hz Input, Battery Wires). Minimum 0.25” spacing must be provided.
- For 115VAC input:
- Measure output voltage before connecting devices. This helps avoiding potential damage.
- Connect devices to be powered to the terminals marked [+ DC –] (Fig. 1, pg. 5).
- For Access Control applications batteries are optional. When batteries are not used, a loss of AC will result in the loss of output voltage. When the use of stand-by batteries is desired, they must be lead acid or gel type. Connect battery to terminals marked [– BAT +] (Fig. 1, pg. 5). Use two (2) 12VDC batteries connected in series for 24VDC operation (battery leads included).
- Connect appropriate signaling notification devices to AC Fail and Low battery supervisory relay outputs
(Fig. 1, pg. 5).


Maintenance:
Unit should be tested at least once a year for the proper operation as follows:
- Output Voltage Test:
Under normal load conditions the DC output voltage should be checked for proper voltage level (Power Supply Output Selection chart). - Battery Test:
Under normal load conditions check that the battery is fully charged, check specified voltage both at the battery terminal and at the board terminals marked [– BAT +] to ensure that there is no break in the battery connection wires.
NOTE
Maximum charging current under discharges is 600mA.
NOTE
Expected battery life is 5 years; however, it is recommended changing batteries in 4 years or less if needed.
LED Diagnostics:
| Red (DC) | Green (AC) | Power Supply Status |
| ON | ON | Normal operating condition. |
| ON | OFF | Loss of AC. Stand-by battery is supplying power. |
| OFF | ON | No DC output. |
| OFF | OFF | Loss of AC. Discharged or no stand-by battery. No DC output. |
Terminal Identification:
| Terminal Legend | Function/Description |
| AC/AC | Low voltage AC input (28VAC / 100VA). |
| + DC – | 12VDC / 24VDC @ 2.5A continuous power-limited output. |
| AC Fail NC, NO, C | Indicates loss of AC power, e.g. connect to audible device or alarm panel. Relay normally energized when AC power is present. Contact rating 1A @ 28VDC. AC or brownout fail is reported within 1 minute of event. |
|
Bat Fail NC, C, NO | Indicates low battery condition, e.g. connect to alarm panel. Relay normally energized when DC power is present. Contact rating 1A @ 28VDC. A removed battery is reported within 5 minutes. Battery reconnection is reported within 1 minute. Low battery threshold: 12VDC output threshold set @ approximately 10.5VDC. 24VDC output threshold set @ approximately 21VDC. |
| – BAT + | Stand-by battery connections. Maximum charge current 0.7A. |
Enclosure Dimensions
(H x W x D approximate): 15.5” x 12” x 4.5” (393.7mm x 304.8mm x 114.3mm)

ABOUT COMPANY
- Altronix is not responsible for any typographical errors.
- 140 58th Street, Brooklyn, New York 11220 USA
- phone: 718-567-8181
- fax: 718-567-9056
- website: www.altronix.com
- e-mail: [email protected]
- Lifetime Warranty IIAL300ULXJ G02U























