Altronix OLS20E Off-Line Power Supply Charger

Overview

Altronix OLS20E power supply/charger converts 115VAC 50/60Hz input into a 12VDC @ 1A or 24VDC @ 0.5A of continuous supply current (refer to specifications). This general purpose power supply has a wide range of application for access control and security system accessories that require additional power.
Specifications
Input:
- Input 115VAC 50/60Hz, 0.5A.
Output:
- 12VDC or 24VDC selectable operation.
- 0.5A continuous supply current @ 24VDC*
1A continuous supply current @ 12VDC*. - Filtered and electronically regulated outputs.
- Short circuit and thermal overload protection.
Battery Backup:
- Built-in charger for sealed lead acid or gel type batteries.
- Maximum charge current 0.3A.
- Automatic switch over to stand-by battery when AC fails.
- Battery leads included.
Additional Features:
- AC input and DC output LED indicators.
- Operating temperature: – 20ºC to 50ºC.
- Includes battery leads.
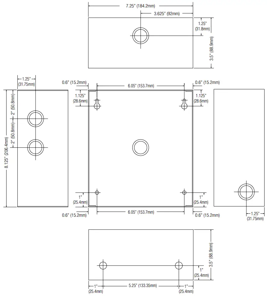
Enclosure Dimensions (H x W x D, approx.):
8.5” x 7.5” x 3.5” (215.9mm x 190.5mm x 88.9mm).
* Specified at 25˚C ambient.
Voltage Output Selection Table
| Output VDC | Switch Position | Max. Load DC |
| 12VDC | SW 1 – ON | 1.2A |
| 24VDC | SW1 – OFF | 0.5A |
Installation Instructions
This installation should be made by qualified service personnel and should conform to all local codes and in accordance with the National Electrical Code. Product is intended for indoor use only.
- Mount unit in the desired location. Mark and predrill holes in the wall to line up with the top two keyholes in the enclosure. Install two upper fasteners and screws in the wall with the screw heads protruding. Place the enclosure’s upper keyholes over the two upper screws, level and secure. Mark the position of the lower two holes. Remove the enclosure. Drill the lower hole and install one fastener.
Place the enclosure’s upper keyholes over the two upper screws. Install the two lower screws and make sure to tighten all screws (Enclosure Dimensions, pg. 2). - Set the OLS20E to the desired DC output voltage via SW1 (refer to Voltage Output Selection Table).
- Plug power cord into a grounded 115VAC, 50/60Hz receptacle not controlled by a switch.
- Measure output voltage before connecting devices. This helps avoiding potential damage.
- Connect devices to be powered to the terminals marked [– DC +] (Fig. 1) carefully observing polarity.
Use 18 AWG or larger for all power connections (Battery, DC output). - When the use of stand-by batteries is desired, they must be lead acid or gel type.
Connect battery to the terminals marked [– BAT +] (Fig. 1). Use two (2) 12VDC batteries connected in series for 24VDC operation.
Note: When batteries are not used, a loss of AC will result in the loss of output voltage.
For continuous protection against fire replace fuse with the same type and rating 5mm – 20mm, 250V, 2A.
LED Diagnostics
| Red (DC) | Green (AC) | Power Supply Status |
| ON | ON | Normal operating condition. |
| ON | OFF | Loss of AC. Stand-by battery supplying power. |
| OFF | ON | No DC output. Short circuit or thermal overload condition. |
| OFF | OFF | Loss of AC. Discharged or no stand-by battery. No DC output. |
Terminal Identification
| Terminal Legend | Function/Description |
| L, G, N | Connect 115VAC to these terminals: Black to Hot, White to Neutral, Green to ground. |
| – DC + | 12VDC @ 1.0A continuous supply current. 24VDC @ 0.5A continuous supply current. |
| – BAT + | Stand-by battery connections. Maximum charge rate 0.3A. |
Enclosure Dimensions
(H x W x D): 8.5” x 7.5” x 3.5” (215.9mm x 190.5mm x 88.9mm).

Altronix is not responsible for any typographical errors. Product specifications are subject to change without notice
140 58th Street, Brooklyn, New York 11220 USA | phone: 718-567-8181 | fax: 718-567-9056
website: www.altronix.com | e-mail: [email protected] | Lifetime Warranty
IIOLS20E – Rev. 030818




















