Altronix AL600ULXD Power Supply Charger

Installation Guide
Overview:
Altronix AL600ULXD power supply/charger converts a 115VAC 60Hz or 230VAC 50/60Hz input into a non power-limited 12VDC or 24VDC output (see specifications).
Specifications
Agency Listings:
- UL 294* Safety Access Control System Units. UL 1481 Power Supplies for Fire-Protective Signaling Systems. European Conformity.
CE Input:
- 115VAC, 60Hz, 1.9A or 230VAC, 50/60Hz, 0.95A.
Output:
- 12VDC or 24VDC selectable output.
- 12VDC or 24VDC @ 6A supply current.
- Filtered and electronically regulated output.
- Short circuit and thermal overload protection. Battery Backup:
- Built-in charger for sealed lead acid or gel type batteries.
- Automatic switch over to stand-by battery when AC fails.
- Maximum charge current 0.7A.
Supervision:
- AC fail supervision (form “C” contacts).
- Low battery supervision (form “C” contacts). Visual Indicators:
- AC input and DC output LED indicators. Features:
- Low battery disconnect.
- Unit is complete with transformers, power supply, grey enclosure, and cam lock.
- Battery leads included.
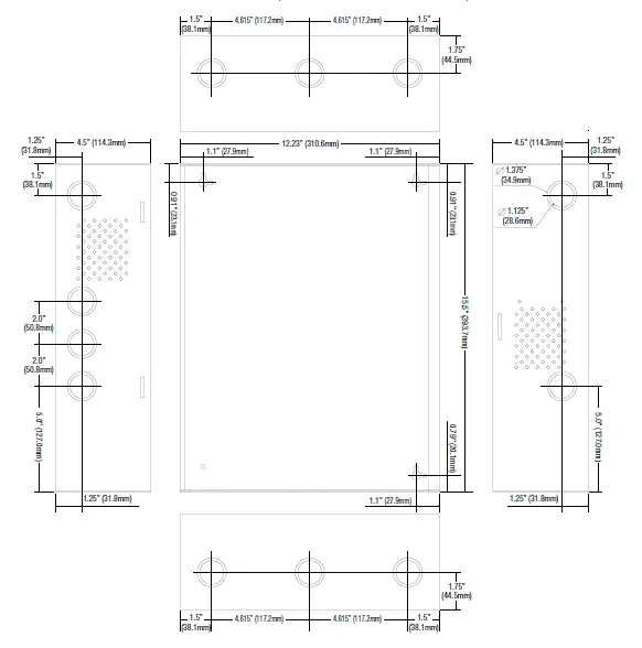
Enclosure Dimensions (H x W x D approx.): 15.5” x 12” x 4.5” (393.7mm x 304.8mm x 114.3mm). - Accommodates up to two 12VDC/12AH batteries.
- AL600ULXD: Grey Enclosure.
- AL600ULXDR: Red Enclosure.
*Access Control Performance Levels: Destructive Attack – I; Endurance – IV; Line Security – I; Stand-by Power – IV.
Power Supply Output Selection
| Output | Switch Position |
| 12VDC | SW1 ON |
| 24VDC | SW1 OFF |
Stand-by Specifications
| Output | 4 hr. of Stand-by and 5 min. of Alarm | 24 hr. of Stand-by and 5 min. of Alarm | 60 hr. of Stand-by and 5 min. of Alarm |
| 12VDC / 40AH Battery | Stand-By = 6.0A Alarm = 6.0A | Stand-By = 1.0A Alarm = 6.0A | Stand-By = 300 mA Alarm = 6.0A |
| 24VDC / 12AH Battery | – | Stand-By = 200 mA Alarm = 6.0A | – |
| 24VAC / 40AH Battery | Stand-By = 6.0A Alarm = 6.0A | Stand-By = 1.0A Alarm = 6.0A | Stand-By = 300 mA Alarm = 6.0A |
Installation Instructions
Wiring methods shall be in accordance with the National Electrical Code/NFPA 70/NFPA 72/ANSI, and with all local codes and authorities having jurisdiction. Product is intended for indoor use only.
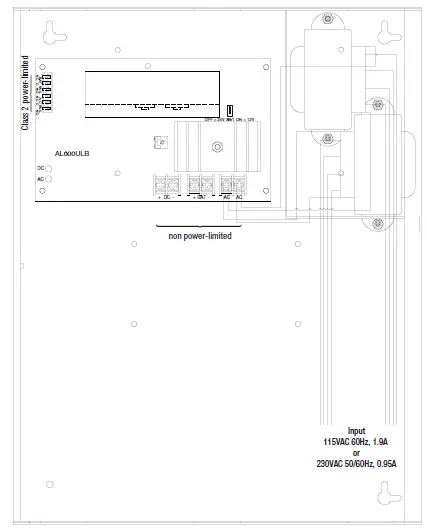
- Mount unit in the desired location. Mark and predrill holes in the wall to line up with the top two keyholes
in the enclosure. Install two upper fasteners and screws in the wall with the screw heads protruding. Place the enclosure’s upper keyholes over the two upper screws; level and secure. Mark the position of the lower two holes. Remove the enclosure. Drill the lower holes and install the three fasteners. Place the enclosure’s upper keyholes over the two upper screws. Install the two lower screws and make sure to tighten all screws (Enclosure Dimensions, pg. 4). Secure enclosure to earth ground. - Connect input power from a separate unswitched AC circuit to the transformers. Green “AC” LED on
power supply board will turn on. This light can be seen through the LED lens on the door of the enclosure. Secure green wire lead to earth ground (Fig. 1).
Use 18 AWG or larger for all power connections (Battery, DC output).
For 115VAC input: Connect Yellow and White leads from transformer primary to neutral.
Connect Blue and Black leads from transformer primary to line (Fig. 2).
For 230VAC input: Connect Blue and Yellow leads of transformer 1 together.
Connect Blue and Yellow leads of transformer 2 together.
Connect White lead from both transformers to neutral.
Connect Black lead from both transformers to line (Fig. 3).
Keep power-limited wiring separate from non power-limited wiring (115VAC 60Hz or
230VAC 50/60Hz Input, Battery Wires). Minimum 0.25” spacing must be provided. - Measure output voltage before connecting devices. This helps avoiding potential damage.
- Connect devices to be powered to the terminals marked [+ DC –] (Fig. 1).
- For Access Control applications batteries are optional. When batteries are not used, a loss of AC will result in the loss of output voltage. When the use of stand-by batteries is desired, they must be lead acid or gel type. Connect battery to the terminals marked [+ BAT –] (Fig. 1) (battery leads included).
Use two (2) 12VDC batteries connected in series for 24VDC operation. - Connect appropriate trouble reporting devices to AC Fail & Low battery (Fig. 1) supervisory relay outputs marked [NC, C, NO]. Use 22 AWG to 18 AWG for AC Fail / Low Battery reporting. AC Failure will report in 5 minutes. For a 6 hour delay on reporting cut resistor R1 (Fig. 1).
Maintenance
Unit should be tested at least once a year for the proper operation as follows:
Output Voltage Test: Under normal load conditions, the DC output voltage should be checked for proper voltage level (see Terminal Identification Tables).
Battery Test: Under normal load conditions check that the battery is fully charged, check specified voltage at the battery terminals and at the board terminals marked [+ BAT –] to ensure that there is no break in the battery connection wires.
Note: Maximum charge current under discharge is 0.7A.
Note: Expected battery life is 5 years; however it is recommended changing batteries in 4 years or less if necessary.
Terminal Identification
| Terminal Legend | Function/Description |
| AC/AC | Low voltage AC input (28VAC / 100VA). |
| + DC – | 12VDC / 24VDC @ 6A continuous non power-limited output. |
| AC Fail NC, NO, C | Indicates loss of AC power, e.g. connect to audible device or alarm panel. Relay normally energized when AC power is present. Contact rating 1A @ 28VDC. AC or brownout fail is reported within 1 minute of event. |
| Low Battery NC, C, NO | Used to indicate low battery condition, e.g. connect to alarm panel. Relay normally energized when DC power is present. Contact rating 1A @ 28VDC. |
| + BAT – | Stand-by battery connections. Maximum charge current 0.7A. |
LED Diagnostics
| Red (DC) | Green (AC) | Power Supply Status |
| ON | ON | Normal operating condition. |
| ON | OFF | Loss of AC. Stand-by battery is supplying power. |
| OFF | ON | No DC output. |
| OFF | OFF | Loss of AC. Discharged or no stand-by battery. No DC output. |

Enclosure Dimensions (H x W x D approximate): 15.5” x 12” x 4.5” (393.7mm x 304.8mm x 114.3mm)




















