Altronix AL201UL Access Control Power Supply and Charger Installation Guide


Overview:
Altronix AL201UL is a power-limited power supply/charger that converts a 24VAC / 60Hz plug-in Transformer input into 12VDC output (refer to specifications). The AL201UL is UL Listed for Burglar Alarm Installation (UL 603), and for Access Control (UL 294). It must be installed in accordance with National and Local Electrical Codes and Regulations.
Specifications:
Agency Listings:
- UL294* Access Control.
- UL603 Power Supplies for Use with Burglar Alarm Systems.
Input:
- 24VAC, 40VA from UL Listed Class 2 transformer.
Output:
- 12VDC output @ 1.75A continuous supply current.
- Class 2 Rated power-limited auto-resettable output.
- PTC protected output rated @ 2.5A.
- Filtered and electronically regulated output.
- Short circuit and thermal overload protection.
Battery Backup:
- Built-in charger for sealed lead acid or gel type batteries.
- Automatic switch over to stand-by battery when AC fails.
- Maximum charge current 0.4A.
Supervision:
- AC fail supervision (form “C” 1A @ 28VDC).
- Low battery supervision (form “C” 1A @ 28VDC).
Visual Indicators:
- AC input and DC output LED indicators.
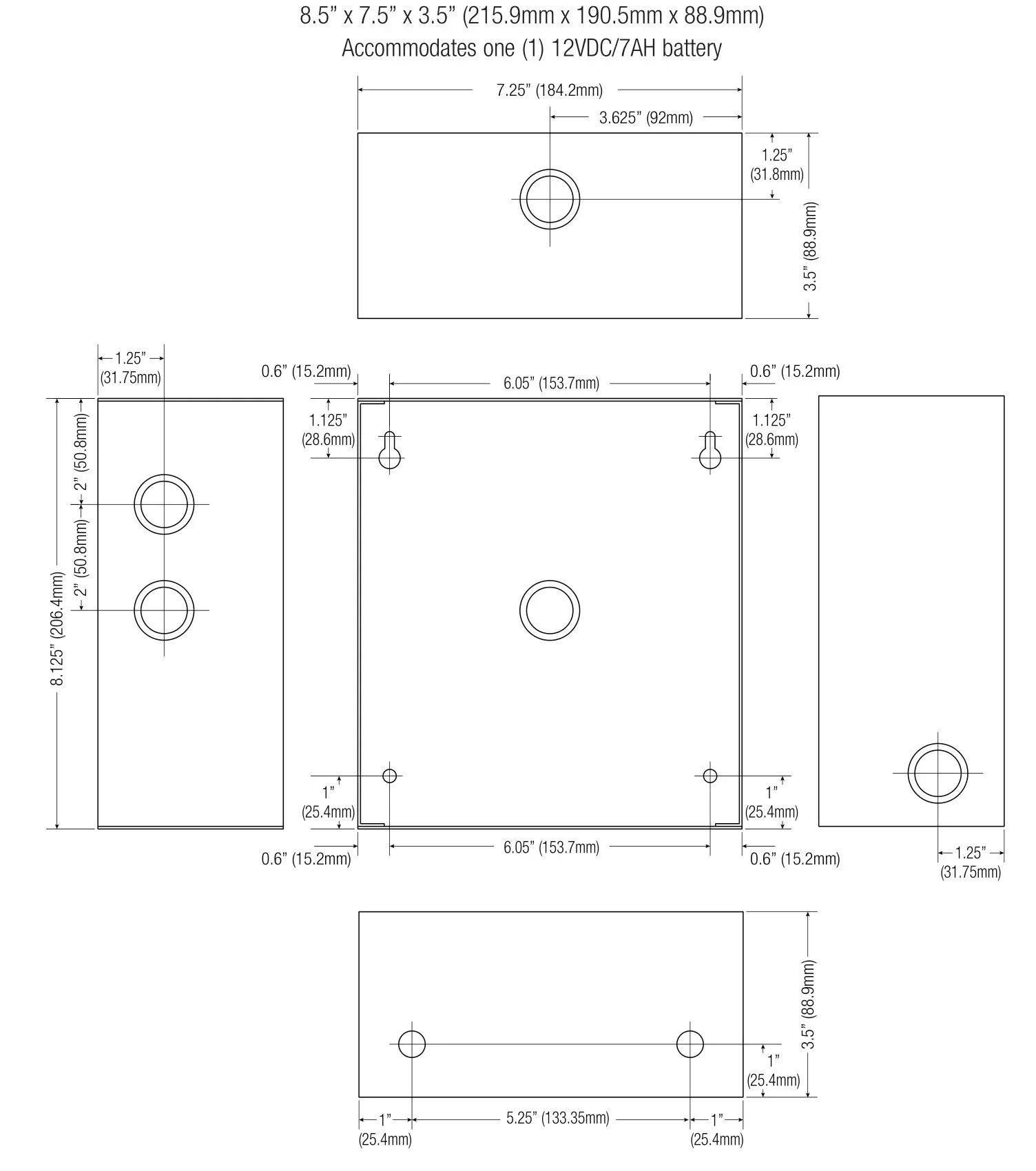
Enclosure Dimensions:
8.5” x 7.5” x 3.5” (215.9mm x 190.5mm x 88.9mm).
* ANSI/UL 294 7th Ed. Access Control Performance Levels:
Destructive Attack – I; Endurance – N/A; Line Security – I; Stand-by Power – IV.
Power Supply Output Specifications:

Stand-by Specifications:

Installation Instructions:
Wiring methods shall be in accordance with the National Electrical Code/NFPA 70/NFPA 72/ANSI, and with all local codes and authorities having jurisdiction. Product is intended for indoor use only.
Refer to Terminal Identification Chart on page 2 for a description of each terminal function.
- Mount unit in the desired location. Mark and predrill holes in the wall to line up with the top two keyholes in the enclosure. Install two upper fasteners and screws in the wall with the screw heads protruding. Place the enclosure’s upper keyholes over the two upper screws, level and secure. Mark the position of the lower two holes. Remove the enclosure. Drill the lower holes and install the three fasteners. Place the enclosure’s upper keyholes over the two upper screws. Install the two lower screws and make sure to tighten all screws (Enclosure Dimensions, pg. 4). Secure enclosure to earth ground.
- Connect 24VAC, 40VA UL Listed Class 2 direct plug-in transformer to the terminals “XFMR INPUT”.
Green “AC” LED on power supply board will turn on. This light can be seen through the LED lens on the door of the enclosure.
Use 18 AWG or larger for all power connections (Battery).
Use 22 AWG to 18 AWG for power-limited circuits (DC output, AC FAIL and LOW BAT supervisory relays).
Keep power-limited wiring separate from non power-limited wiring (Battery Wires).
Minimum 0.25” spacing must be provided.
CAUTION: Do not touch exposed metal parts.
Shut branch circuit power before installing or servicing equipment.
There are no user serviceable parts inside. Refer installation and servicing to qualified service personnel. - Measure output voltage before connecting devices. This helps avoiding potential damage.
- Connect battery to the terminals [+ BAT –] as marked on the unit (battery leads included).
- Connect appropriate signaling notification devices to AC Fail and Low Bat supervisory relay outputs.
Note: To meet UL requirements, AC Supervisory outputs must be connected to the zone of Alarm Control Panel or to visual AC trouble indicator.
Note: For Access Control applications batteries are optional.
When batteries are not used, a loss of AC will result in the loss of output voltage.
When the use of stand-by batteries is desired, they must be lead acid or gel type.
Maintenance:
Unit should be tested at least once a year for the proper operation as follows:
Output Voltage Test: Under normal load conditions the DC output voltage should be checked for proper voltage level (see Power Supply Output Specifications Chart).
Battery Test: Under normal load conditions check that the battery is fully charged, check specified voltage both at the battery terminal and at the board terminals marked [+ BAT –] to ensure that there is no break in the battery connection wires.
Note: Maximum charging current under discharges is 400mA.
Note: Expected battery life is 5 years; however, it is recommended changing batteries in 4 years or less if needed.
LED Diagnostics:

Terminal Identification:

Fig. 1 – AL201UL

Enclosure Dimensions (H x W x D approximate):

Altronix is not responsible for any typographical errors.
140 58th Street, Brooklyn, New York 11220 USA | phone: 718-567-8181 | fax: 718-567-9056
website: www.altronix.com | e-mail: [email protected] | Lifetime Warranty
IIAL201UL
F30U



















