
AL175220 Series
Access Control Power Supply
Installation Guide

Models Include:
AL175220
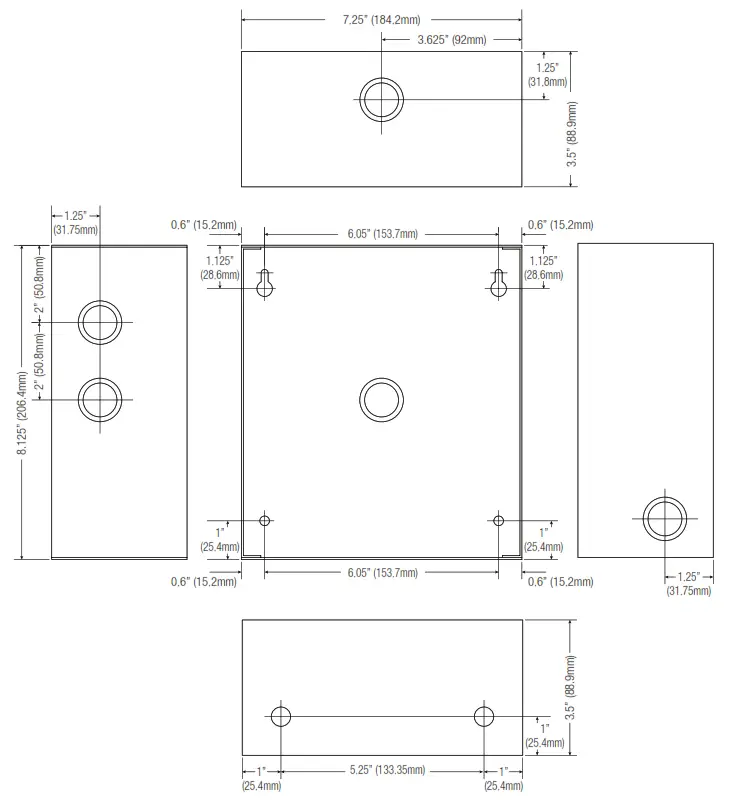
– Enclosure Dimensions: 8.5” x 7.5” x 3.5” (215.9mm x 190.5mm x 88.9mm).
– Accommodates one (1) 12VDC/4AH battery.
AL175X220
– Enclosure Dimensions: 13.5” x 13” x 3.25” (342.9mm x 330.2mm x 82.6mm).
– Accommodates up to two (2) 12VDC/7AH Batteries.
Installation Guide
Rev. 011316
More than just power.
Installing Company: ____________
Service Rep. Name: ____________
Address: __________________
Phone #: __________________
Overview
Altronix AL175220 and AL175X220 are power-limited power supply/chargers that convert 220VAC (working range 198VAC – 256VAC), 50/60Hz input into two individually PTC protected auto-resettable 12VDC or 24VDC outputs (see specifications). They are intended for use in Access Control applications and applications requiring an interface with the Fire Alarm Control Panels. They must be installed in accordance with National and Local Electrical Codes and Regulations.
Specifications:
| Input: • Input 220VAC, 50/60 Hz, 0.3A. Output: • 12VDC or 24VDC selectable output. • Power-limited outputs. • 1.75A continuous supply current @ 12VDC or 24VDC. • Aux relay output (form “C” contacts). • Filtered and electronically regulated output. • Short circuit and thermal overload protection. Battery Backup: • Maximum charge current: 400mA. • Automatic switch over to stand-by battery when AC fails. | Supervision: • AC fail supervision (form “C” contacts). • Dry trigger output (form “C” contacts). Fire Alarm Interface: • Dry trigger input. Visual Indicators: • AC input and DC output LED indicators. Added Features: • Includes power supply, transformer, and enclosure. Enclosure Dimensions: AL175220: 8.5” x 7.5” x 3.5” (215.9mm x 190.5mm x 88.9mm). AL175X220: 13.5” x 13” x 3.25” (342.9mm x 330.2mm x 82.6mm). |
Power Supply Output Specifications:
| Output VDC | Switch Position | Max. Stand-by Load DC | Max. Alarm Load DC | Battery (optional) |
| 12VDC | SW1 OFF | 1.75A | 1.75A | 12VDC |
| 24VDC | SW1 ON | 1.75A | 1.75A | Two (2) 12VDC |
Stand-by Specifications:
| Output | 4 hr. of Stand-by and 5 Minutes of Alarm |
| 12VDC / 7 AH Battery | Stand-by = 1.25A Alarm = 1.25A |
| 24VDC / 7 AH Battery |
Installation Instructions:
The units should be installed in accordance with article 760 of The National Electrical Code or NFPA 72 as well as all applicable Local Codes. See Terminal Identification Chart on Pg. 3 for a description of each terminal function.
- Mount unit in the desired location. Mark and predrill holes in the wall to line up with the top two keyholes in the enclosure. Install two upper fasteners and screws in the wall with the screw heads protruding. Place the enclosure’s upper keyholes over the two upper screws; level and secure. Mark the position of the lower two holes. Remove the enclosure. Drill the lower holes and install two fasteners. Place the enclosure’s upper keyholes over the two upper screws. Install the two lower screws and make sure to tighten all screws (Enclosure Dimensions, pgs. 7-8).
- Connect unswitched AC circuit (220VAC, 50/60Hz) as follows: Green branch wire (ground) connects to the terminal marked, Line connects to the terminal marked [L], and Neutral connects to the terminal marked
[N] of the Inlet Appliance Connector. (Fig. 1, pg. 4).
Use 18 AWG or larger for all power connections.
Use 18 AWG or larger for all power connections (Battery, AC input, DC outputs).
Use 22 AWG to 18 AWG for power-limited circuits (trigger inputs, dry outputs).
Keep power-limited wiring separate from non-power-limited wiring (220VAC, 50/60Hz Input, Battery Wires). Minimum 0.25” spacing must be provided.
CAUTION: Do not touch exposed metal parts.
Shut branch circuit power before installing or servicing equipment.
There are no user-serviceable parts inside. Refer installation and servicing to qualified service personnel. - Set the unit to the desired DC output voltage by setting switch SW1 to the appropriate position(Power Supply Output Specification Table, pg. 2).
- Measure output voltage before connecting devices. This helps avoid potential damage.
- Connect the battery to the terminals marked [+ BAT –] (battery leads included).
Use two (2) 12VDC batteries connected in series for 24VDC operation.
Note: For Access Control applications batteries are optional. When batteries are not used, a loss of AC will result in the loss of output voltage. When the use of stand-by batteries is desired, they must be lead acid or gel type. - Connect appropriate signaling notification devices to AC Fail supervisory relay outputs marked [NC, NO, C].
- For Access Control Device & Fire Alarm Interface connections refer to the desired Application Diagrams (pgs. 5-6) and Terminal Identification Chart (pg. 3).
Maintenance:
The unit should be tested at least once a year for the proper operation as follows:
Output Voltage Test: Under normal load conditions the DC output voltage should be checked for proper voltage level (see Power Supply Output Specifications Chart).
Battery Test: Under normal load conditions check that the battery is fully charged, check the specified voltage both at the battery terminal and at the board terminals marked [+ BAT ensure that there is no break in the battery connection wires.
Note: The maximum charging current under discharges is 400mA.
Note: The expected battery life is 5 years; however, it is recommended to change batteries in 4 years or less if needed.
Fig. 1

LED Diagnostics:
| Red (DC) | Green (AC) | Power Supply Status |
| ON | ON | Normal function. |
| ON | OFF | Battery backup is powering output. |
| OFF | ON | No DC output. |
| OFF | OFF | Loss of AC. Discharged or missing stand-by battery. No DC output. |
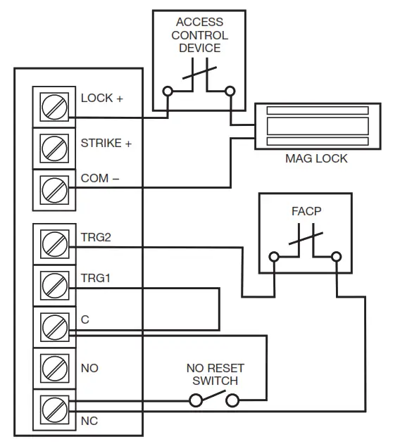
Terminal Identification:
| Terminal Legend | Function/Description |
| TRG1 & TRG2 | Connects to the normally closed outputs of access control or fire alarm relay. These terminals control [LOCK +], and [STRIKE +], as well as AL175(X)220 output relay contacts [NC, NO, C]. |
| LOCK + | Provides DC output voltage when [TRG1] and [TRG2] are shorted together and are typically used to power Mag Locks. |
| STRIKE + | Provides DC output voltage when [TRG1] and [TRG2] are unsorted and are typically used to power Electric Strikes. |
| NC, NO, C | Isolated dry form “C” contacts. Shorting [TRG1] and [TRG2] together causes these contacts to switch. They are typically used for controlling multiple AL175(X)220s with fire alarm tie-in (Fig. 5 and Fig. 6, pg. 6). |
| AUX + | Continuous positive (+) DC power output voltage. It is not affected by TRG1 or TRG2 operations. |
| COM – | Common negative (–) output (ground). |
| FACE | Spare wiring terminal used for fire alarm tie-in application (Fig. 4, pg. 6). |
| + BAT – | Stand-by battery connections. |
| AC FAILS NC, C, NO | Indicates loss of AC, e.g connect audible device or alarm panel. Relay is normally energized when AC power is present. Contact rating 1A @ 28VDC. |
Typical Application Diagrams:
Fig. 2 Typical single mag lock or door strike installation with fire alarm tie-in using trigger-controlled output:

Fig. 3 Typical dual mag lock installation with fire alarm tie-in using trigger-controlled outputs:

Fig. 4 Typical mag lock with fire alarm tie-in using aux output installation:

Fig. 5 Latching fire alarm tie-in with manual reset:

Fig. 6 Multiple AL175UL(X) power supply connections:

Enclosure Dimensions (H x W x D approximate): AL175220
8.5” x 7.5” x 3.5” (215.9mm x 190.5mm x 88.9mm).
Accommodates one (1) 12VDC/4AH battery.

Enclosure Dimensions (H x W x D approximate): AL175X220
13.5” x 13” x 3.25” (342.9mm x 330.2mm x 82.55mm) Accommodates up to two (2) 12VDC/7AH batteries.

![]()
Altronix is not responsible for any typographical errors.
140 58th Street, Brooklyn, New York 11220 USA
phone: 718-567-8181
fax: 718-567-9056
website: www.altronix.com
e-mail: [email protected]
Lifetime Warranty
IIAL175220 Series F30U
AL175220 Series Installation Guide



















