
More than just power.™
Maximal DV Series
Single Power Supply
Access Power Controllers (PTC)
Maximal DV Series Single Power Supply Access Power Controllers
Models Include:
Maximal3DV
– 12VDC @ 5A or 24VDC @ 5.4A.
– Sixteen (16) PTC-protected outputs.
Maximal5DV
– 12VDC @ 9A.
– Sixteen (16) PTC-protected outputs..
Maximal7DV
– 24VDC @ 9.4A.
– Sixteen (16) PTC-protected outputs.
Installation Guide
Rev. 061307
Installing Company: _______________ Service Rep. Name: __________________________________
Address: _____________________________________________ Phone #: __________________
MaximalDV Series Overview:
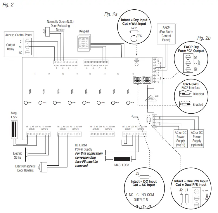
Altronix MaximalDV Access Power/Controllers distribute and switch power to access control systems and accessories. They convert a 220VAC (working range 198VAC – 256VAC), 50/60Hz input into sixteen (16) independently controlled 12VDC or 24VDC PTC-protected outputs. The outputs are activated by an open collector sink or normally open (NO) dry trigger input from an Access Control System, Keypad, Push Button, REX PIR, etc. Units will route power to a variety of access control hardware devices including Mag Locks, Electric Strikes, Magnetic Door Holders, etc. The FACP Interface enables Emergency Egress, and Alarm Monitoring, or may be used to trigger other auxiliary devices. The fire alarm disconnect feature is individually selectable for any or all of the sixteen (16) outputs.
MaximalDV Series Configuration Chart:
| Altronix Model Number | Power Supply Board Output Voltage Options | PTC Protected Outputs (auto-resettable) | Individual Output Rating (A) | 220VAC 50/60Hz Input Current Draw (A) | Power Supply Board Input Fuse Rating |
| Maximal3DV | 12VDC @ 5A or 24VDC @ 5.4A | 16 | 2.5A | 1.5A | 5A/ 250V |
| Maximal5DV | 12VDC @ 9A | 16 | 2.2A | ||
| Maximal7DV | 24VDC @ 9.4A | 16 | 3A |
MaximalDV Series Features:
- Sixteen (16) independently trigger controlled outputs.
Output options:
a) Sixteen (16) Fail-Safe filtered and electronically regulated power outputs.
b) Sixteen (16) Fail-Secure filtered and electronically regulated power outputs.
c) Any combination of the above. - Sixteen (16) Access Control System trigger inputs.
Input trigger options:
a) Sixteen (16) normally open (NO) dry trigger inputs.
b) Sixteen (16) open collector inputs.
c) Any combination of the above. - Sixteen (16) unswitched filtered and electronically regulated aux. power outputs (outputs are rated @ 2.5A).
- Red LEDs on the ACM8CB board indicate individual outputs are triggered (relays energized).
- Fire Alarm disconnect (latching or non-latching) is individually selectable for any or all of the sixteen (16) outputs.
Fire Alarm disconnect input trigger options:
a) Normally open (NO) or normally closed (NC) dry trigger input.
b) Polarity reversal input from the FACP signaling circuit. - Green LED on the ACM8CB board indicates FACP disconnect is triggered.
- FACP output relay indicates that FACP input is triggered
- Power supply input options:
a) Factory-installed power supply provides common power for both ACM8CB boards and all connected access control devices.
b) An optional external power supply may be connected to isolate the ACM8CB boards from the access control devices. - ACM8CB board main fuses are rated @ 10A. Output PTCs are rated @ 2.5A.
- Built-in charger for sealed lead acid or gel-type batteries.
– Maximum charge current is 0.7A for AL600XB220 and AL1012XB220 power supply boards.
– Maximum charge current is 3.6A for AL1024XB2V power supply board. - Automatic switch over to stand-by battery when AC fails.
- Zero voltage drop when the unit switches over to battery backup (AC failure condition).
- Short circuit and thermal overload protection with auto reset.
- Green AC input and red DC output LED indicators on power supply board(s).
- AC fail and battery fail supervision (form “C” contact rated @ 1A/28VDC).
- Battery presence supervision (form “C” contact rated @ 1A/28VDC) .
- The enclosure accommodates up to four (4) 12VDC/12AH batteries.
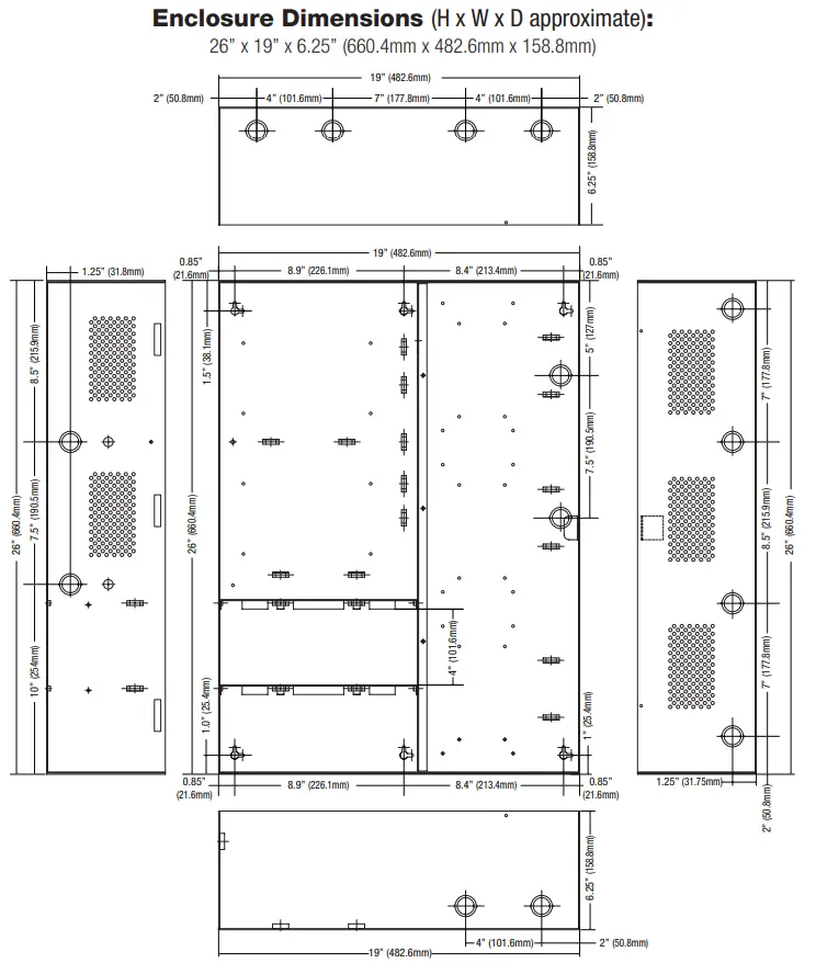
Enclosure dimensions (H x W x D): 26” x 19” x 6.25” (660.4mm x 482.6mm x 158.8mm).
MaximalDV Installation Instructions:
Wiring methods should be in accordance with the National Electrical Code/NFPA 70/NFPA 72/ANSI, and with all local codes and authorities having jurisdiction. The product is intended for indoor use only.
| Power Supply Board LED Diagnostics | (pg. 6) |
| Access Power Controller LED Diagnostics | (pg. 6) |
| Power Supply Board Terminal Identification | (pg. 6) |
| Access Power Controller Terminal Identification | (pg. 6) |
| Power Supply Board Stand-by Battery Specifications | (pg. 7) |
| Power Supply Board Output Voltage Settings | (pg. 7) |
| Access Power Controller Typical Application Diagram | (pg. 8) |
| FACP/Optional Power Supply Hook-up Diagrams | (pgs. 14-15) |
- Mount unit in the desired location. Mark and predrill holes in the wall to line up with the top three keyholes in the enclosure. Install three upper fasteners and screws in the wall with the screw heads protruding. Place the enclosure’s upper keyholes over the three upper screws; level and secure. Mark the position of the lower three holes. Remove the enclosure. Drill the lower holes and install three fasteners. Place the enclosure’s upper keyholes over the three upper screws. Install the three lower screws and make sure to tighten all screws (Enclosure Dimensions, pg.16).
Earth ground is connected to the enclosure. Connect main incoming ground to earth (safety) ground lug. - Connect unswitched AC power (220VAC 50/60Hz) to the terminals marked [L, N] on the power supply board. Green branch wire connects to the earth (safety) ground lug. Use 14 AWG or larger for all power connections. Keep power-limited wiring separate from non-power-limited wiring (220VAC 50/60Hz Input, Battery Wires). Minimum 0.25” spacing must be provided.
CAUTION: Do not touch exposed metal parts. Shut branch circuit power before installing or servicing equipment. There are no user-serviceable parts inside. Refer installation and servicing to qualified service personnel. - Select desired DC output voltage by setting SW1 to the appropriate position on the Maximalal3DV power supply board, (Fig. 1, pg. 7). Maximal5DV power supply is factory set at 12VDC and Maximal7DV the power supply is factory set at 24VDC.
- Measure the output voltage of the unit before connecting any devices to ensure proper operation. Improper or high voltage will damage these devices.
- Output options (Fig. 2, pg. 7): The unit will provide any combination of Fail-Safe and/or Fail-Secure switched power outputs.
(a) Fail-Safe Switched Power outputs:
For Fail-Safe operation connect the positive (+) input of the access control devices to the terminal marked [NC]. Connect the negative (–) input of the access control devices to the terminal marked [COM].
(b) Fail-Secure Switched Power outputs:
For Fail-Secure operation connect the positive (+) input of the access control devices to the terminal marked [NO]. Connect the negative (–) input of the access control devices to the terminal marked [COM]. - Auxiliary Power outputs (unswitched): Connect access control devices that require constant power to terminals marked [C] positive (+) and [COM] negative (–).
- Input trigger options (Fig. 2, pg. 7):
(a) Normally Open [NO] input trigger: Inputs 1-8 are activated by normally open or open collector sink inputs. Connect access control panel outputs, keypads, push buttons, REX PIRs, etc. to terminals marked [IN] and [GND].
(b) Open Collector Sink inputs:
Connect the access control panel open collector sink positive (+) to terminals marked [IN] and the negative (–) to terminals marked [GND]. - Fire Alarm Interface options (Figs. 9-12, pg. 13-14):
A normally closed [NC] or normally open [NO] input trigger from a fire alarm control panel or a polarity reversal input from an FACP signaling circuit will affect selected outputs. To enable FACP Disconnect for an output turn the corresponding switch(es) [SW1-SW8] OFF on each ACM8CB board. To disable FACP disconnect for an output turn the corresponding switch(es) [SW1-SW8] ON on each ACM8CB board.
(a) Normally Open [NO] input:
For non-latching hook-ups refer to Fig. 9, pg. 13. For latching hook-ups refer to Fig. 10, pg. 13.
(b) Normally Closed [NC] input:
For non-latching hook-ups refer to Fig. 11, pg. 14. For latching hook-up refer to Fig. 12, pg. 14.
(c) FACP Signaling Circuit input trigger:
Connect the positive (+) and negative (–) from the FACP signaling circuit output to the terminals marked [+ INP –]. Connect the FACP EOL to the terminals marked [+ RET –] (polarity is referenced in an alarm condition). The jumper located next to TRG LED must be cut (Fig. 2a, pg. 7 and Fig. 8, pg. 13). - FACP Dry form “C” output (Fig. 2b, pg. 7):
FACP form “C” contacts can be used to trigger reporting or signaling devices. These contact switches upon a fire alarm input trigger to the ACM8CB boards. - Stand-by Battery Connections (Fig. 3, pg. 8):
For Access Control applications batteries are optional. If batteries are not used, a loss of AC will result in the loss of output voltage. Batteries must be lead acid or gel type. Connect one (1) 12VDC battery to the terminals marked [+ BAT –] for 12VDC operation (Fig. 3a, pg. 8). Use two (2) 12VDC batteries wired in series for 24VDC operation. - Battery and AC Supervision outputs (Figs. 3-4, pgs. 8-9):
It is required to connect supervisory trouble-reporting devices to outputs marked [AC Fail, BAT FAIL] and [Power Fail] supervisory relay outputs marked [NC, C, NO] to appropriate notification devices. Use 22 AWG to 18 AWG for AC Fail & Low/No Battery reporting. - Installation of tamper switch (Figs. 3-4, pgs. 8-9):
Mount UL Listed tamper switch (Honeywell Model 112 or equivalent) at the top of the enclosure. Slide the tamper switch bracket onto the edge of the enclosure approximately 2” from the right side (Figs. 3b and 4a, pgs. 8-9). Connect tamper switch wiring to the Access Control Panel input or the appropriate reporting device. To activate the alarm signal open the door of the enclosure. - Multiple power supply inputs (Fig. 2, pg. 7):
When using an additional external power supply, jumpers J1 and J2 located on corresponding ACM8CB boards must be cut (Fig. 2c, 2d, pg. 7 and Fig. 7, pg. 12). Connect power for the ACM8CB boards to the terminals marked [– Power +] and connect power for the access control devices to the terminals marked [– Control +]. When using DC power supplies polarity must be observed. When using AC power supplies polarity needs not to be observed (Fig. 2d, pg. 7). All field wiring connections must be made employing suitable gauge CM or FPL jacketed wire (or equivalent substitute) (Figs. 5a and 6a, pgs. 10-11).
Maintenance:
The unit should be tested at least once a year for the proper operation as follows:
| FACP Supervision: | To ensure proper connection and operation of the Fire Alarm disconnect hookup. Please follow the appropriate procedure below: |
| Normally Open Input: | Placing a short between terminals marked [T] and [+ INP] will trigger the Fire Alarm Disconnect. Remove the short to reset. |
| Normally Closed Input: | Remove the wire from the terminal marked [INP –] will trigger the Fire Alarm Disconnect. Replace the wire to the terminal marked [INP –] to reset. |
| FACP Signal Circuit Input: | It is necessary to trigger the Fire Alarm System. In all of the above scenarios, the green TRG LED of the ACM8CBs will illuminate. All outputs selected for Fire Alarm Disconnect will activate releasing locking devices. Note: All outputs [OUT 1 – OUT 8] must be in a normal (de-energized) condition prior to testing. When the unit is configured for Normal Open (Fig. 10, pg. 13) or Normally Closed (Fig. 12, pg. 14) latching operation it is necessary to reset the Fire Alarm Disconnect by activating the Normally Closed reset switch. |
| Output Voltage Test: | Under normal load conditions, the DC output voltage should be checked for proper voltage level (Power Supply Board Stand-by Battery Specifications, pg. 7). |
| Battery Test: | Under normal load, conditions check that the battery is fully charged, check the specified voltage at the battery terminals and at the board terminals marked [+ BAT –] to ensure that there is no break in the battery connection wires. Note: AL600XB220 and AL1012XB220 Power Supply Board maximum charge current is 0.7A. AL1024XB2V Power Supply Board maximum charge current is 3.6A. The expected battery life is 5 years; however, it is recommended to change batteries within 4 years or less if necessary. |
Power Supply Board LED Diagnostics:
| LED | Power Supply Status | |
| Red (DC) | Green (AC) | |
| ON | ON | Normal operating condition. |
| ON | OFF | Loss of AC. Stand-by battery supplying power. |
| OFF | ON | No DC output. Short circuit or thermal overload condition. |
| OFF | OFF | No DC output. Loss of AC. Discharged battery. |
| Red (Bat) | Battery Status |
| ON | Normal operating condition. |
| OFF | Battery fail/low battery. |
Access Power Controller LED Diagnostics:
| LED | ON | OFF |
| LED 1- LED 8 (Red) | Output relay(s) energized. | Output relay(s) de-energized. |
| Trg (Green) | FACP input triggered (alarm condition). | FACP normal (non-alarm condition). |
Power Supply Board Terminal Identification:
| Terminal Legend | Function/Description |
| L, G, N | Connect 220VAC 50/60Hz to these terminals: L to hot, N to neutral. |
| + DC – | Maximal3DV – 12VDC @ 5A or 24VDC @ 5.4A to ACM8CB boards. Maximal5DV – 12VDC @ 9A to ACM8CB boards. Maximal7DV – 24VDC @ 9.4A to ACM8CB boards. |
| AC FAIL NC, C, NO | Indicates loss of AC power, e.g. connect to an audible device or access control panel. The relay is normally energized when AC power is present. Contact rating 1A @ 28VDC. AC or brownout fail is reported within 1 minute of the event. |
| BAT FAIL NC, C, NO | Indicates low battery condition, e.g. connect to access control panel. The relay is normally energized when DC power is present. Contact rating 1A @ 28VDC. A removed battery is reported within 5 minutes. Battery reconnection is reported within 1 minute. Low battery threshold: 12VDC output threshold set @ approximately 10.5VDC. 24VDC output threshold set @ approximately 21VDC. |
| + BAT – | Stand-by battery connections. Connect one (1) 12VDC battery to the terminals marked [+ BAT –] for 12VDC operation (Fig. 3a, pg. 8). Use two (2) 12VDC batteries wired in series for 24VDC operation (Fig. 4, pg. 9). |
Access Power Controller Terminal Identification:
| Terminal Legend | Function/Description |
| – Power + | 12VDC or 24VDC input from the power supply board. |
| – Control + | Not applicable. |
| TRIGGER INPUT 1- INPUT 8 IN, GND | From normally open and/or open collector sink trigger inputs (request to exit buttons, exit pir’s, etc.). |
| OUTPUT 1- OUTPUT 8 NC, C, NO, COM | 12VDC to 24VDC trigger controlled outputs: Fail-Safe [NC positive (+) & COM Negative (–)], Fail-Secure [NO positive (+) & COM Negative (–)], Auxiliary output [C positive (+) & COM Negative (–)] When using AC power supplies polarity needs not to be observed. NC, C, NO convert to dry form “C” 5A 24VAC/VDC rated dry outputs when fuses are removed. Contacts are shown in a non-triggered state. |
| FACP INTERFACE T, + INPUT – | Fire Alarm Interface trigger input from FACP. Trigger inputs can be normally open, normally closed from an FACP signaling circuit output (Figs. 8-12, pgs. 13-14). |
| FACP INTERFACE NC, C, NO | Form “C” relay contact rated @ 1A/28VDC for alarm reporting. |
Power Supply Board Stand-by Battery Specifications:
| Altronix Model: | Power Supply Board | Battery | 20 Min. of Backup | 4 hr. of Backup | 24 hr. of Backup |
| Maximal3DV | AL600XB220 (Refer to Fig. 1a, pg. 7 for Switch [SW1] location and position) | 12VDC/40AH* | N/A | 5.0A | N/A |
| 24VDC/40AH* | N/A | 5.4A | 0.7A | ||
| Maximal5DV | AL1012XB220 (Factory set at 12VDC) | 12VDC/12AH | 9.0A | Battery capacity for emergency stand-by: at least 20 min. | N/A |
| Maximal7DV | AL1024XB2V (Factory set at 24VDC) | 24VDC/12AH | 7.7A | 1.2A | 200mA |
| 24VDC/65AH* | N/A | 7.7A | 1.2A |
*Note: Additional battery enclosure required (Figs. 5-7, pgs. 10-12).

Access Power Controller Typical Application Diagram (for each ACM8CB):


Keep power-limited wiring separate from non-power-limited. Use minimum 0.25” spacing.
Up to four (4) 12AH rechargeable batteries are the largest batteries that can fit in this enclosure.
An external battery enclosure must be used if using the 40AH or 65AH batteries.

Keep power-limited wiring separate from non-power-limited. Use minimum 0.25” spacing.
Up to four (4) 12AH rechargeable batteries are the largest batteries that can fit in this enclosure.
An external battery enclosure must be used if using the 40AH or 65AH batteries.
NEC Power-Limited Wiring Requirements for Maximal3DV:
Power-limited and non-power-limited circuit wiring must remain separated in the cabinet. All power-limited circuit wiring must remain at least 0.25” away from any non-power-limited circuit wiring. Furthermore, all power-limited circuit wiring and non-power-limited circuit wiring must enter and exit the cabinet through different conduits.
One such example of this is shown below. Your specific application may require different conduit knockouts to be used. Any conduit knockouts may be used. For power-limited applications the use of conduit is optional. All field wiring connections must be made employing suitable gauge CM or FPL jacketed wire (or equivalent substitute).
Note: Refer to the wire handling drawing below for the proper way to install the CM or FPL jacketed wire (Fig. 5a).

NEC Power-Limited Wiring Requirements for Maximal5DV:
Power-limited and non-power-limited circuit wiring must remain separated in the cabinet. All power-limited circuit wiring must remain at least 0.25” away from any non-power-limited circuit wiring. Furthermore, all power-limited circuit wiring and non-power-limited circuit wiring must enter and exit the cabinet through different conduits.
One such example of this is shown below. Your specific application may require different conduit knockouts to be used. Any conduit knockouts may be used. For power-limited applications use of conduit is optional. All field wiring connections must be made employing suitable gauge CM or FPL jacketed wire (or equivalent substitute).
Note: Refer to the wire handling drawing below for the proper way to install the CM or FPL jacketed wire (Fig. 6a).

NEC Power-Limited Wiring Requirements for Maximal7DV:
Power-limited and non-power-limited circuit wiring must remain separated in the cabinet. All power-limited circuit wiring must remain at least 0.25” away from any non-power-limited circuit wiring. Furthermore, all power-limited circuit wiring and non-power-limited circuit wiring must enter and exit the cabinet through different conduits.
One such example of this is shown below. Your specific application may require different conduit knockouts to be used. Any conduit knockouts may be used. For power-limited applications the use of conduit is optional. All field wiring connections must be made employing suitable gauge CM or FPL jacketed wire (or equivalent substitute).
Note: Refer to the wire handling drawing below for the proper way to install the CM or FPL jacketed wire (Fig. 7a).

FACP Hook-Up Diagrams:
Fig. 8 Polarity reversal input from FACP signaling circuit output (polarity is referenced in alarm condition):

FACP Hook-Up Diagrams (cont’d):



Altronix is not responsible for any typographical errors.
140 58th Street, Brooklyn, New York 11220 USA | phone: 718-567-8181 | fax: 718-567-9056
website: www.altronix.com | e-mail: [email protected] | Lifetime Warranty
IIMaximal3DV/5DV/7DV Series
G26U



















