CMA DISHMACHINES CMA-180 Upright High Temperature Commercial Dishwashers

Parts Manual
Initial Parts Kit #1100.17
| P/N | DESCRIPTION | Qty |
| 00121.18 | CMA-180 Drain Stopper O-ring | 1 |
| 00200.10 | Pump Assy. 115/220V 60Hz (Open) | 1 |
| 00206.30 | Pump Seal Kit | 1 |
| 00304.29 | Rinse Arm w/ Bearings | 1 |
| 00307.20 | Spray Arm Assy CMA180 w/ bearing & end plugs | 1 |
| 00363.00 | Spray Base Pull Lock Pin | 1 |
| 00404.85 | Contactor 208/240V 20 Amp DP | 1 |
| 00411.00 | Micro Switch | 1 |
| 00421.78 | Illuminated Plug CMA-180/44 P | 1 |
| 00421.90 | Power Switch Red 250V | 1 |
| 00475.70 | Toggle Switch DPDT 15 Amp/Delimer | 1 |
| 00501.17 | Timer Motor Assy 60 Sec 220V/60Hz | 1 |
| 00562.00 | Roller Door Switch | 1 |
| 00602.00 | Door Spring | 1 |
| 00631.05 | Ice Cube Relay 220V 12 Amp | 1 |
| 00706.00 | 3/4 Water Solenoid Repair Kit JE | 1 |
| 00735.00 | 3/4 Vac Breaker Rep Kit Watts | 1 |
| 00738.15 | Solenoid Coil JE 220V (3/4 & 1/2) | 1 |
| 03202.00 | Thermometer (Capillary) | 1 |
| 03408.55 | Counter – Face Mount 220V/50Hz | 1 |
| 03470.00 | Toggle Switch (Momentary) Screw Term | 1 |
| 13003.17 | Contactor 60 Amp 3 Pole | 1 |
| 13003.55 | Contactor 30 Amp | 1 |
| 13304.55 | SS Final Rinse Spray Jet SS | 1 |
| 13417.92 | Heater Thermostat | 1 |
| 13422.71 | Immersion Heater 208-240V/12kW T-Flange | 1 |
| 13463.14 | Liquid Level Switch-Long-D Flat | 1 |
| 13605.00 | Pressure Gauge | 1 |
| 15518.00 | Immersion Heater 6kW208-240V T-Flange | 1 |
| 17523.51 | Hi Limit Switch 250 Deg | 1 |
Exploded View Drawings
Straight Frame System Assembly
| ITEM NO. | NO. REQ’D | P/N | DESCRIPTION |
| 1 | 1 | 17532.17 | CMA-180 Frame Stand |
| 2 | 1 | 00535.30 | Front door Handle |
| 3 | 3 | 01506.08 | Door, Oval W/ Dimple |
| 4 | 6 | 00636.15 | E Z Door Glide |
| 5 | 6 | 17554.00 | Door Guide |
| 6 | 2 | 17552.00 | Door Stop |
| 7 | 1 | 13915.60 | Door Latch Bracket |
| 8 | 1 | 13701.00 | Open Door Latch |
| 9 | 1 | 01505.02 | Tray Track (Set) |
| 10 | 2 | 17510.00 | Strainer Basket |
| 11 | 1 | 01577.10 | Scrap Tray Body |
| 12 | 1 | 01577.21 | Scrap Trap Drawer |
| 13 | 1 | 17579.00 | Scrap Trap Holder |
| 14 | 1 | 17511.00 | Overflow |
| 15 | 1 | 17402.00 | Overflow Gasket |
| 16 | 30 | 00905.00 | ¼-20 x 1/2 Trus Bolt |
| 17 | 60 | 00924.00 | ¼” SS Washer |
| 18 | 30 | 00912.00 | ¼”-20 Nylon Lock Nut |
| 19 | 4 | 01310.00 | Bullet Feet |
| 20 | 1 | 17521.50 | Wash Tank Heater Cover Poly Pro |
| 21 | 1 | 17521.20 | Booster Heater Cover Poly Pro |
| 22 | 23 | 00914.10 | 1/4-20 X 5/8 Hex Bolt |
| 23 | 1 | 17530.17 | CMA-180 Wrapper |
| 24 | 1 | 17531.17 | Pan |
| 25 | 2 | 17506.60 | Door Panel Splash Guard |
| 25A | 1 | 17506.65 | Door Service Splash Guard |
| 26&27 | 2 | 17506.21 | Front Door Safety Bracket |
| 28 | 1 | 00960.00 | 8-32×1-1/2” Panhead Screw |
| 29 | 1 | 00927.00 | 8-32 Nylon Lock Nut |
| 30 | 2 | 00962.00 | 1/4-20 X 1 SS Hex Bolt |
| 31 | 4 | 00610.00 | Door Handle Spacer (Small) |
| 32 | 1 | 01577.30 | S/S Scrap Trap Lid |
| 33 | 1 | 17506.62 | 180 Splash Shield – lever side |

Corner Frame Assembly
| ITEM NO. | NO. REQ’D | P/N | DESCRIPTION |
| 1 | 1 | 17532.17 | CMA-180 Frame Stand |
| 2 | 1 | 17506.50 | Door Panel Corner |
| 3 | 2 | 01506.08 | Door, Oval W/ Dimple |
| 4 | 4 | 00636.15 | E Z Door Glide |
| 5 | 4 | 17554.00 | Door Guide |
| 6 | 2 | 17552.00 | Door Stop |
| 7 | 1 | 17507.20 | Air Gap Baffle |
| 8 | 4 | 00905.00 | ¼” – 20 x ½ Truss Head Bolt |
| 9 | 1 | 01505.10 | Tray Track |
| 10 | 2 | 17510.00 | Strainer Basket |
| 11 | 1 | 01577.10 | Scrap Trap Body |
| 12 | 1 | 01577.21 | Scrap Trap Drawer |
| 13 | 1 | 17579.00 | Scrap Trap Holder |
| 14 | 1 | 17511.00 | Overflow |
| 15 | 1 | 17402.00 | Overflow Gasket |
| 16 | 24 | 00906.00 | ¼”-20 x 1/2” Hex Head Bolt |
| 17 | 56 | 00924.00 | ¼” SS Washer |
| 18 | 30 | 00912.00 | ¼”-20 Nylon Lock Nut |
| 19 | 4 | 01310.00 | Bullet Feet |
| 20 | 1 | 17521.50 | Wash Tank,Heater Cover Poly |
| 21 | 1 | 17521.20 | Booster Heater Cover Poly Pro |
| 22 | 1 | 01505.16 | Tray Track Rail |
| 23 | 2 | 00941.00 | 8/32” x 5/8” Pan Head Screw |
| 24 | 2 | 03801.00 | 10/32” Lock Nut |
| 25 | 1 | 17530.17 | CMA-180 Wrapper |
| 26 | 1 | 17531.17 | Pan |
| 27 | 1 | 01577.30 | S/S Scrap Trap Lid |

Drain System Assembly
| ITEM NO. | NO. REQ’D | P/N | DESCRIPTION |
| 1 | 1 | 00113.17 | Drain Tee Casting |
| 2 | 1 | 00114.00 | Drain Tee Gasket |
| 3 | 1 | 00121.18 | Drain Stopper “O” Ring |
| *4 | 1 | 00121.17 | Drain Stopper (Incl O-Ring) |
| 5 | 1 | 17581.00 | Drain Linkage |
| 6 | 1 | 17580.50 | Drain Linkage Spacer |
| 7 | 1 | 00912.00 | ¼-20 Nylon Lock Nut |
| 8 | 1 | 17580.00 | Drain Lever |
| 9 | 1 | 00910.00 | ¼”-20×1 ½” Hex Head Bolt |
| 10 | 16 | 00926.00 | 5/16 S/S Washer |
| 11 | 6 | 00901.00 | 5/16 –18×1” Hex Head Bolt |
| 12 | 6 | 13805.00 | 5/16-18 Nylon Lock Nut |
| 13 | 1 | 01313.00 | 2” PVC Slip x MIPT Adapter |
| 14 | 1 | 05030.17 | 2” x 4” PVC Tubing |
| 15 | 1 | 01312.00 | PVC Slip x Slip 90 Elbow |
| 16 | 1 | 05030.27 | 2” x 6” PVC Tubing |
| 17 | 1 | 01320.17 | 2” PVC Tee |
| 18 | 1 | 05030.10 | 2” x 3” PVC Tubing |
| 19 | 1 | 01315.17 | 2” No Hub |

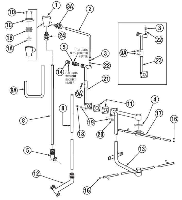
Plumbing System Assembly
| ITEM NO. | NO. REQ’D | P/N | DESCRIPTION |
| 1 | 1 | 00710.50 | Vacuum Breaker ¾” Watts |
| 1A | — | 00421.51 | Pan Head Screw SS 6-32 x 1/4” |
| 1B | — | 00735.60 | Vacuum Breaker Brass Bonnet |
| 1C | — | 00735.00 | Vacuum Breaker Repair Kit ¾” |
| 1D | — | 00739.50 | Vacuum Breaker Cap |
| 2 | 3 | 13639.00 | Nipple SS ¾” Close |
| 3 | 3 | 13633.00 | Elbow FXF Brass ¾” |
| 4 | 1 | 13613.00 | Nipple ¾” x 5 ½” Brass |
| 5 | 2 | 13606.10 | Jamb Nut Brass ¾” |
| 6 | 1 | 13602.20 | Pressure Regulator ½” |
| 7 | 1 | 00716.10 | Brass Tee ¾” x ¾” x ½” FXFXF |
| 8 | 1 | 13604.00 | Bushing ½” x ¼” Brass |
| 9 | 1 | 13605.00 | Pressure Gauge |
| 10 | 1 | 03603.15 | Water Sol Valve 1/2” 220V JE-C |
| 11A | 1 | 00738.15 | Water Sol Valve Coil 220V |
| 11B | — | 03603.20 | Water Sol Valve Bonnet ½” |
| 11C | — | 00786.00 | Water Sol Plunger G Style |
| 11D | — | 00707.00 | Water Sol Repair Kit JE ½” |
| 12 | 1 | 13029.00 | Strainer Ball Valve 3/4” |
| 13 | — | 13028.00 | ¾” Ball Valve Repair Kit |
| 14 | 2 | 13635.10 | Nipple Brass 2/4” x 2” |
| 15 | 4 | 00742.00 | Nipple ½” x 1 ½” |
| 16 | 1 | 13607.50 | Final Rinse Plumbing |
| 17 | 1 | 00770.20 | 5/8 Compression Ftg. Ring |
| 18 | 1 | 00770.10 | 5/8 Compression Ftg. Nut |
| 19 | – | 00705.05 | Water Sol Valve ¾” 220V JE |
| 19A | – | 00706.00 | Water Sol Repair Kit JE ¾” |
| 19B | – | 00705.20 | Water Sol Valve Bonnet ¾” |
| 20 | 1 | 17534.00 | 180 Thermometer Bracket |
| 21 | 1 | 03202.00 | Thermometer “Wash” |
| 22 | 1 | 03202.18 | Thermometer “Rinse” |
| 23 | 4 | 01526.10 | Plumbing Bracket Strap |
| 24 | 4 | 00912.00 | 1/4-20 Nylon Lock Nut |
| 25 | 8 | 00912.00 | 1/4-20 Nylon Lock Nut |
| 26 | 2 | 01526.00 | Plumbing Support Bracket |

Wash Spray System
| ITEM NO. | NO. REQ’D | P/N | DESCRIPTION |
| 1 | 1 | 00303.17 | Manifold |
| *2 | 1 | 00360.24 | Lower Spray Base Assembly |
| **3 | 1 | 00361.10 | Upper Spray Base Assembly |
| 4 | 2 | 00304.17 | Wash Spray Arm |
| 5 | 4 | 00308.50 | Spray Arm End Plug SS |
| 6 | 2 | 00302.51 | Spray Base “O” Ring |
| 7 | 4 | 00905.00 | Truss Head Bolt ¼”-20”x1/2” |
| 8 | 12 | 00924.00 | SS Washer ¼” |
| 9 | 8 | 00912.00 | Nylon Lock Nut ¼” – 20 |
| 10 | 4 | 00914.10 | Hex Head Bolt ¼”-20”x5/8” |
| 11 | 2 | 00966.10 | Hex Head SS Bolt 10-32 |
| 12 | 4 | 00363.00 | Spray Base Lock Pin |
| 13 | 1 | 00302.00 | Spray Base Gasket |
| 14 | 1 | 00225.00 | Compression Gasket |
| 15 | 1 | 00221.20 | 1” Comp. Fit.x1”MIP SS |
| 16 | 1 | 00759.17 | Base Quick Release W/Nipple |
| 17 | 2 | 00341.00 | Spray Arm Bearing |

Final Rinse System
| ITEM NO. | NO. REQ’D | P/N | DESCRIPTION |
| 1 | 1 | 03624.00 | ½” Vacuum Breaker Watts |
| 1A | — | 03623.00 | ½” Vacuum Brkr Kit- Watts |
| 1B | — | 03624.25 | ½” Brass Bonnet |
| 1C | — | 00739.50 | ¾” Vacuum Breaker Cap SS |
| 1D | — | 00421.51 | 6-32 x ¼” SS Pan Head Screw |
| 2 | 1 | 05004.10 | 3/8” SS Tubing |
| 3 | 1 | 13607.10 | 3/8” Comp x ½” MIP Elbow |
| 3A | 1 | 00436.20 | Comp Fitting Nut |
| 4 | 2 | 04305.17 | Bearing Gasket |
| 5 | 1 | 17550.11 | Outlet Booster Heater Plumbing |
| 6 | 1 | 13629.00 | ½” S.S. Close Nipple |
| 7 | 1 | 13629.82 | Nipple SS ½” x 5 ½” |
| 8 | 2 | 05007.17 | 5/8” OD .049 Wall Tubing |
| 8A* | 1 | 00797.17 | Booster Heater Bypass Line |
| 9 | 1 | 13669.45 | Mixing Chamber SS |
| 9A | 2 | 03232.00 | 1/8” Male Plug |
| 10 | 1 | 13306.17 | Final Rinse Elbow Assy. |
| 11 | 2 | 04306.00 | Square Manifold Gasket |
| 12 | 1 | 17550.10 | Inlet Booster Heater Plumbing |
| 13 | 1 | 17401.00 | Final Rinse Manifold |
| 14 | 1 | 13642.00 | ½” Brass Plug |
| 15 | 1 | 00743.10 | ½” Tee F x F x F |
| 16 | 4 | 00308.17 | Rinse Arm SS End Plug |
| 17 | 2 | 00304.29 | Rinse Arm w/Bearing |
| 18 | 4 | 00929.00 | 1/4-20 X 3/4 Bolt |
| 19 | 8 | 00926.00 | SS Washer 5/16” |
| 20 | 4 | 00912.00 | ¼”-20 Nylon Lock Nut |
| 21 | 1 | 13607.00 | Water Inlet |
| 22 | 1 | 13607.20 | Comp Fitting Sleve |
| 23 | 1 | 13607.30 | Water Inlet L.T. |
| 24 | 1 | 00760.00 | 5/8 Comp x ½ MIP Adapter |

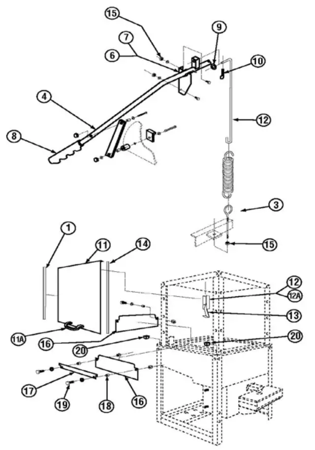
CMA-180 Door Handle Assembly
| ITEM NO. | NO. REQ’D | P/N | DESCRIPTION |
| 1 | 1 | 00613.32 | Door Handle |
| 2 | 1 | 01556.50 | Right Door Handle Support |
| 3 | 2 | 00603.07 | Door Spring Extension Rod |
| 4 | 2 | 00602.00 | Door Spring |
| 5 | 2 | 17552.00 | Door Stop |
| 6 | 2 | 01553.00 | Door Handle Link |
| 7 | 2 | 00606.50 | Turn Buckle |
| 8 | 2 | 00926.00 | 5/16” SS Washer |
| 9 | 2 | 00900.00 | Cotter Pin |
| 10 | 4 | 00906.00 | ¼”-20 x ½” Hex Head screw |
| 11 | 8 | 00924.00 | ¼” SS Washer |
| 12 | 8 | 00912.00 | ¼”-20” Nylon Insert Lock Nut |
| 13 | 4 | 00610.00 | Door Handle Spacer (Small) |
| 14 | 4 | 00611.00 | Door Handle Spacer (Large) |
| 15 | 2 | 00607.04 | Door Handle Cap |
| 16 | 1 | 01555.50 | Left Door Handle Support |
| 17 | 2 | 00910.00 | ¼”-20×1/2” Hex Head Bolt |
| 18 | 1 | 00563.40 | Door Switch Bracket (8-08) |
| 19 | 1 | 00563.42 | Door Switch Actuator (8-08) |
| 20 | 1 | 00562.00 | Door Roller Switch |
| 21 | 1 | 00562.60 | Connector Door Roller Switch |
| 22 | 1 | 00605.30 | Door Rod Spacer |
| 23 | 1 | 00546.00 | 18 AWG Switch Cord |

Corner Door Handle Assembly
| ITEM NO. | NO. REQ’D | P/N | DESCRIPTION |
| 1 | 1 | 00613.04 | Door Handle |
| 2 | 1 | 00619.34 | Door Handle Mntg Plate Lg |
| 2A | 1 | 00619.44 | Door Handle Mntg Plate St |
| 3 | 1 | 00603.04 | Door Spring Extension |
| 4 | 2 | 00602.00 | Door Spring |
| 5 | 2 | 17506.00 | Door |
| 6 | 2 | 01553.00 | Door Handle Link |
| 7 | 1 | 00606.50 | Turn Buckle |
| 8 | 9 | 00913.00 | 5/16”-18” Nut |
| 9 | 10 | 00905.00 | ¼”-20×1/2” Truss Head Bolt |
| 10 | 1 | 00900.00 | Cotter Pin |
| 11 | 2 | 01552.00 | Door Stop |
| 12 | 16 | 00924.00 | ¼” SS Washer |
| 13 | 14 | 00912.00 | ¼-20 Nylon Lock Nut |
| 14 | 4 | 00610.00 | Door Handle Spacer (St) |
| 15 | 4 | 00611.00 | Door Handle Spacer (Lg) |
| 16 | 2 | 00903.00 | ¼-20 x 1 ¾” Hex Head Bolt |
| 17 | 9 | 00926.00 | 5/16” SS Washer |
| 18 | 2 | 00910.00 | ¼”-20×1/2” Hex Head Bolt |
| 19 | 2 | 00607.04 | Door Handle Cap |
| 20 | 8 | 00920.00 | 5/16-18×3/4” Hex Head Bolt |
| 21 | 1 | 00563.30 | Limit Switch Door Bracket |
| 22 | 1 | 17506.50 | Door Panel Corner |
| 23 | 1 | 17507.20 | Air Gap Baffle Corner |
| 24 | 1 | 00563.40 | Door Switch Bracket (8-08) |
| 25 | 1 | 00562.60 | Connector Door Roller Switch |
| 26 | 1 | 00546.00 | 18 AWG Switch Cord |

Pump System Assembly
| ITEM NO. | NO. REQ’D | P/N | DESCRIPTION |
| 1 | 1 | 00201.00 00201.85 | Pump Motor 1 HP115/230V Pump Motor 1 HP230/460V |
| 2 | 1 | 04207.10 | Small Pump Base |
| 3 | 6 | 00921.00 | 3/8”-16 x 34” Hex Head Bolt |
| 3A | 2 | 00975.00 | 3/8-16 x 1 ½” Stud |
| 4 | 1 | 00206.30 | Pump Seal Kit |
| 5 | 1 | 03226.00 | Pump “O” Ring |
| 6 | 1 | 03222.10 | Impeller SS |
| 7 | 1 | 04207.20 | Pump Cover |
| 8 | 1 | 00208.40 | Slip Joint Nut Gasket |
| 9 | 1 | 00207.00 | Compression Nut (2.5) |
| 10 | 2 | 00906.00 | ¼-20 x 1/2” Hex Bolt |
| 11 | 2 | 00924.00 | ¼” SS Washer |
| 12 | 2 | 00912.00 | ¼”-20 Nylon Lock Nut |
| 13 | 2 | 00238.00 | 3/8” Male Plug |
| *14 | Assy. | 00200.10 | Pump Assy |
| 15 | 1 | 00208.21 | Slip Joint Nut Friction Ring |
| *P/N 00200.85 Includes Items 1,2,3,4,5 and 6 | |||

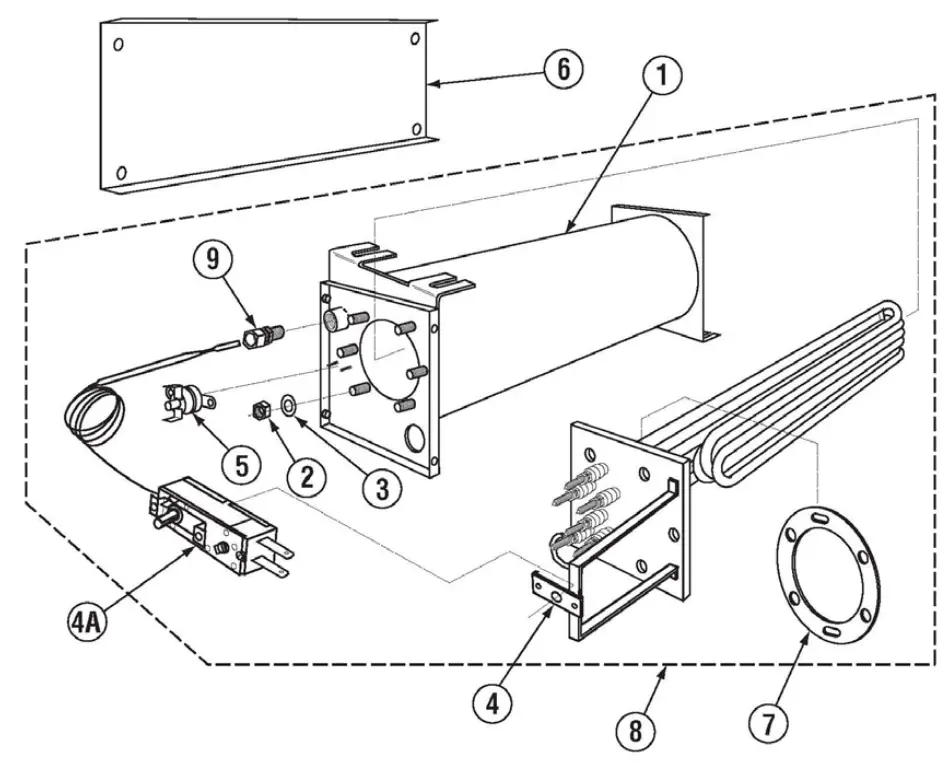
Old Wash Tank Heater (Square Flange)
| ITEM NO. | NO. REQ’D | P/N | DESCRIPTION |
| 1 | 1 | 13417.65 | Wash Tank Heater 5KW 3PH |
| 1 | 13417.64 | Wash Tank Heater 7KW 3PH | |
| 1A | 1 | 13417.92 | Heater Thermostat |
| 2 | 1 | 13463.14 | Liquid Level Switch |
| 3 | 1 | 13463.50 | Liquid Level Switch Shield |
| 4 | 1 | 17523.51 | Hi-Limit Switch – Wash 250 Degrees |
| 5 | 1 | 13477.20 | 7/8” Probe Hole Plug |
| 6 | 1 | 13417.45 | Wash Tank Heater Gasket |

Old Booster Heater (Square Flange)
| ITEM NO. | NO. REQ’D | P/N | DESCRIPTION |
| 1 | 1 | 17550.00 | Booster Tank |
| 2 | 6 | 13805.00 | Nylon Lock Nut 5/6”-18 |
| 3 | 6 | 00926.00 | Washer SS 5/16” |
| **4 | 1 | 13417.67 | Immersion Heater 12KW 3PH |
| 4A | 1 | 13417.92 | Thermostat 12KW Heater |
| 5 | 1 | 17523.51 | Hi-Limit Switch-Booster 250 degrees |
| *6 | 1 | 17520.00 | Booster Heater Shield* |
| 7 | 1 | 13417.47 | Booster Heater Gasket |
| 8 | 1 | 17560.00 | Complete Assembly |
| 9 | 1 | 40116.00 | 1/4 Comp x 1/4 MIP Fitting |
| *For Straight Through Applications Only. **Includes Gasket #13417.47 | |||

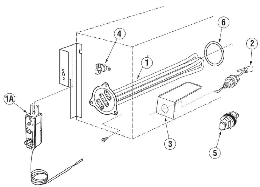
New Wash Tank Heater (Triangular Flange)
| ITEM NO. | NO. REQ’D | P/N | DESCRIPTION |
| 1 | 1 | 15518.00 13422.76 | Heater 6kW 220V Triangular Flange Heater 6kW 480V Triangular Flange |
| 1A | 1 | 13417.92 | Heater Thermostat |
| 2 | 1 | 13463.14 | Liquid Level Switch |
| 3 | 1 | 13463.51 | Liquid Level Switch Shield |
| 4 | 1 | 17523.51 | Hi-Limit Switch – Wash 250 Degrees |
| 5 | 1 | 13477.20 | 7/8” Probe Hole Plug |
| 6 | 1 | 15518.11 | Gasket for Triangular Flange Heater |

New Booster Heater (Triangular Flange)
| ITEM NO. | NO. REQ’D | P/N | DESCRIPTION |
| 1 | 1 | 17550.20 | Booster Tank |
| 2 | 3 | 13805.00 | Nylon Lock Nut 5/6”-18 |
| 3 | 3 | 00926.00 | Washer SS 5/16” |
| 4 | 1 | 13422.71 13422.75 | 240V 12KW Triangular Immersion Htr 480V 12 kW Triangular Immersion Htr |
| 4A | 1 | 13417.92 | Thermostat 12KW Heater |
| 5 | 1 | 17523.51 | Hi-Limit Switch-Booster 250 degrees |
| *6 | 1 | 17520.00 | Booster Heater Shield* |
| 7 | 1 | 15518.11 | Gasket for Triangular Flange Heater |
| 8 | 1 | 17560.00 | Complete Assembly |
| 9 | 1 | 40116.00 | 1/4 Comp x 1/4 MIP Fitting |

480 Control Box Assembly
| ITEM NO. | NO. REQ’D | P/N | DESCRIPTION |
| 1 | 1 | 13905.13 | Transformer Box |
| 2 | 1 | 13423.82 | Transformer 480V – 240V |
| 3 | 2 | 13403.21 | Fuse Holder – Inline |
| 4 | 2 | 13403.40 | Fuse 1.25 Amp 230V Slow Blow |
| 5 | 2 | 13402.10 | Fuse 1.50 Amp 600V Slow Blow |
| 6 | 1 | 13420.10 | Fuse Clip 2-Poll, Pressure Plate |
| 7 | 1 | 13905.23 | Transformer Box Lid |
| 8 | 4 | 00940.50 | 10-32 3/8 Truss Head Screw |

Control Box Assembly
| ITEM NO. | NO. REQ’D | P/N | DESCRIPTION |
| 1 | 1 | 17503.39 | CMA-180 Control Box Body |
| 2 | 2 | 00470.10 | Toggle Switch Rubber Boot |
| 3 | 1* | 00409.81 | Timer CMA-180 |
| 3A | 1 | 00501.17 | Timer Motor |
| 4 | 1(2*) | 00631.05 | Ice Cube Relay 220V |
| 5 | 6 Ft. | 00400.85 | Conduit ¾” Sealtite |
| 6 | 6 Ft. | 00400.10 | Conduit ½” Sealtite |
| 7 | 2 Ft. | 00400.00 | Conduit 3/8” Sealtite |
| 8 | 1 | 00401.85 | St-3/4” Straight Connector |
| 9 | 1 | 00401.10 | St-1/2” Straight Connector |
| 10 | 1 | 00401.00 | St-3/8” Straight Connector |
| 11 | 1 | 00475.70 | Delimer Switch DPDT 15A |
| 12 | 1 | 03470.00 | Toggle Switch Momentary (Screw Terminal) |
| 13 | 8 | 03801.00 | Nylon Lock Nut 10-32 |
| 14 | 1 | 17400.06 | Mountain Din Rail |
| 15 | 1 | 13403.26 | Fuse 3A/250V Slow Blow |
| 16 | 2 | 00941.00 | Pan Head Screw 10 -32 x 5/8” |
| 17 | 1 | 17400.17 | Terminal Block Assembly |
| 17A | 2 | 17400.04 | 30 Amp Terminal Block-Red |
| 17B | 3 | 17400.03 | 60 Amp Terminal Block-Black |
| 17C | 4 | 17400.02 | 85 Amp Terminal Block-Natural |
| 17D | 2 | 17400.08 | 30 Amp Terminal Block-Blue |
| 17E | 2 | 17400.09 | 30 Amp Terminal Block-Natural |
| 17F | 1 | 17400.07 | 60 Amp Terminal Block-Green |
| 18 | 1 | 03408.55 | Counter Face Mount 220V |
| 19 | 4 | 00911.00 | Pan Head Screw 8-32 x 1/2” |
| 20 | 4 | 00927.00 | Lock Nut 8-32 |
| 21 | 1 | 00421.90 | Power Switch |
| 22 | 1 | 00449.50 | Keyless Lock |
| 23 | 1 | 00421.89 | Rocker Switch Auto Fill |
| 24 | 1 | 00404.85 | Motor Contactor 208/240V 20A |
| 13003.55 | Motor Contactor 30 Amp | ||
| 25 | 6 | 13825.00 | Pan Head Screw 8-31 x 1” |
| 26 | 6 | 04806.00 | #10 Brass Washer |
| 27 | 2 | 17503.17 | Control Box Sponge Long |
| 27A | 2 | 17503.18 | Control Box Sponge Short |
| 28 | 1** | 13003.17 | Contactor 60A 3 Pole 220V |
| 29 | 1 | 13418.60 | Dip Switch Timer 230V |
| 30 | 1 | 13003.55 | Heater Contactor 30 Amp |
| 31 | 1 | 00562.60 | Door Roller Switch Connector |
| 32 | 1 | 00562.00 | Door Roller Switch |
| 33 | 1 | 13426.50 | Ground Block |
| 34 | 1 | 00421.78 | Illuminated Plug |
| 35 | 1 | 006231.19 | Control Panel Label CMA-180 |
| 36 | 1 | 17503.29 | Control Box Lid |

| ITEM NO. | NO. REQ’D | P/N | DESCRIPTION |
| 1 | 1 | 17503.39 | CMA-180 Control Box Body |
| 2 | 2 | 00470.10 | Toggle Switch Rubber Boot |
| 3 | 1* | 00409.81 | Timer CMA-180 |
| 3A | 1 | 00501.17 | Timer Motor |
| 4 | 1(2*) | 00631.05 | Ice Cube Relay 220V |
| 5 | 6 Ft. | 00400.85 | Conduit ¾” Sealtite |
| 6 | 6 Ft. | 00400.10 | Conduit ½” Sealtite |
| 7 | 2 Ft. | 00400.00 | Conduit 3/8” Sealtite |
| 8 | 1 | 00401.85 | St-3/4” Straight Connector |
| 9 | 1 | 00401.10 | St-1/2” Straight Connector |
| 10 | 1 | 00401.00 | St-3/8” Straight Connector |
| 11 | 1 | 00475.70 | Delimer Switch DPDT 15A |
| 12 | 1 | 03470.00 | Toggle Switch Momentary (Screw Terminal) |
| 13 | 8 | 03801.00 | Nylon Lock Nut 10-32 |
| 14 | 1 | 17400.06 | Mountain Din Rail |
| 15 | 1 | 13403.26 | Fuse 3A/250V Slow Blow |
| 16 | 2 | 00941.00 | Pan Head Screw 10 -32 x 5/8” |
| 17 | 1 | 17400.17 | Terminal Block Assembly |
| 17A | 2 | 17400.04 | 30 Amp Terminal Block-Red |
| 17B | 3 | 17400.03 | 60 Amp Terminal Block-Black |
| 17C | 4 | 17400.02 | 85 Amp Terminal Block-Natural |
| 17D | 2 | 17400.08 | 30 Amp Terminal Block-Blue |
| 17E | 2 | 17400.09 | 30 Amp Terminal Block-Natural |
| 17F | 1 | 17400.07 | 60 Amp Terminal Block-Green |
| 18 | 1 | 03408.55 | Counter Face Mount 220V |
| 19 | 4 | 00911.00 | Pan Head Screw 8-32 x 1/2” |
| 20 | 4 | 00927.00 | Lock Nut 8-32 |
| 21 | 1 | 00421.90 | Power Switch |
| 22 | 1 | 00449.50 | Keyless Lock |
| 23 | 1 | 00421.89 | Rocker Switch Auto Fill |
| 24 | 1 | 00404.85 | Motor Contactor 208/240V 20A |
| 13003.55 | Motor Contactor 30 Amp | ||
| 25 | 6 | 13825.00 | Pan Head Screw 8-31 x 1” |
| 26 | 6 | 04806.00 | #10 Brass Washer |
| 27 | 2 | 17503.17 | Control Box Sponge Long |
| 27A | 2 | 17503.18 | Control Box Sponge Short |
| 28 | 1** | 13003.17 | Contactor 60A 3 Pole 220V |
| 29 | 1 | 13418.60 | Dip Switch Timer 230V |
| 30 | 1 | 13003.55 | Heater Contactor 30 Amp |
| 31 | 1 | 00562.60 | Door Roller Switch Connector |
| 32 | 1 | 00562.00 | Door Roller Switch |
| 33 | 1 | 13426.50 | Ground Block |
| 34 | 1 | 00421.78 | Illuminated Plug |
| 35 | 1 | 006231.19 | Control Panel Label CMA-180 |
| 36 | 1 | 17503.29 | Control Box Lid |

Unique Parts For CMA-180TS
| ITEM NO. | NO. REQ’D | P/N | DESCRIPTION |
| 1 | 6 | 00636.27 | Door Guide Material |
| 2 | 3 | 17506.20 | Scullery Door |
| 3 | 6 | 17554.20 | Scullery Door Guide |
| 4 | 1 | 17530.20 | Scullery Wrapper |
| 5 | 1 | 00613.27 | Door Handle Straight |
| 6 | 2 | 01553.22 | Door Handle Link Straight |
| 7 | 2 | 00603.53 | Door Spring Extension Rod |
| 8 | 2 | 05007.27 | Booster Water Line |
| 9 | 1 | 17401.20 | Final Rinse Manifold |
| 10 | 1 | 50302.10 | 1″ MPT x 1″ Barb Brass |
| 11 | 1 | 00303.27 | Manifold |
| 12 | 1 | 00212.50 | 1-1/2”x1-1/4”Adapter |
| 13 | 1 | 00204.00 | Pump Cover Large |
| 14 | 1 | 00203.05 | Impeller 4-1/2” |
| 15 | 1 | 00202.00 | Pump Base |
| 16 | 1 | 00205.00 | Pump Gasket |
| 17 | 1 | 03108.60 | Transfer Hose 1″ Reinf. |
| 18 | 1 | 00208.40 | Slip Joint Nut O Ring |
| 19 | 1 | 00207.00 | Slip Joint Nut 11/2 x 1/4 |
| 20 | 1 1 | 17570.00 17570.10 | Wrap Support Brkt-R Wrap Support Brkt-L |
| 21 | 1 | 00563.40 | Door Switch Bracket (8-08) |
| 22 | 1 | 00563.43 | Door Switch Actuator CMA- 180T (1-10) |
| 23 | 2 | 00602.20 | Door Spring – Heavy Duty |

Unique Parts For CMA-180TC
| ITEM NO. | NO. REQ’D | P/N | DESCRIPTION |
| 1 | 1 | 17506.20 | Door Panel Scullery Corner |
| 2 | 6 | 00636.27 | Door Guide Material |
| 3 | 2 | 17506.20 | Scullery Door |
| 4 | 4 | 17554.20 | Scullery Door Guide |
| 5 | 1 | 17530.20 | Scullery Wrapper |
| 6 | 1 | 00563.60 | Limit Switch Door Bracket |
| 7 | 2 | 01553.20 | Door Handle Link Corner |
| 8 | 1 | 00613.34 | Door Handle Corner |
| 9 | 2 | 05007.27 | Booster Water Line |
| 10 | 1 | 17401.20 | Final Rinse Manifold |
| 11 | 1 | 50302.10 | 1″ MPT x 1″ Barb Brass |
| 12 | 1 | 00303.27 | Manifold |
| 13 | 1 | 00212.50 | 1-1/2”x1-1/4”Adapter |
| 14 | 1 | 00204.00 | Pump Cover Large |
| 15 | 1 | 00203.05 | Impeller 4-1/2” |
| 16 | 1 | 00202.00 | Pump Base |
| 17 | 1 | 00205.00 | Pump Gasket |
| 18 | 1 | 03108.60 | Transfer Hose 1″ Reinf. |
| 19 | 1 | 17570.00 | Wrap Support Brkt-R |
| 20 | 2 | 00602.20 | Door Spring – Heavy Duty |
| 21 | 1 | 00604.27 | Door Extension Link |

Unique Parts for CMA-180T Split Door
| ITEM NO. | NO. STR/COR | P/N | DESCRIPTION |
| 1 | 1/0 | 17506.23 | Door Safety Brkt. Left |
| 2 | 1/0 | 17506.24 | Door Safety Brkt. Right |
| 3 | 1/0 | 13701.22 | Open Door Latch |
| 4 | 6/4 | 00636.43 | EZ Glide Door Gide 8.5” |
| 5 | 6/4 | 00636.42 | EZ Glide Door Gide 29.75” |
| 6 | 3/2 | 17506.42 | Small Door |
| 7 | 3/2 | 17506.34 | Large Door |
| 8 | 1/1 | 17530.22 | Wrapper |
| 9 | 6/4 | 17552.22 | Door Stop |
| 10 | 0/1 | 17530.23 | Corner Panel Wrap |
| 11 | 1/1 1/0 | 17570.00 17570.10 | Wrap Support Brkt-R Wrap Support Brkt-L |
| 12 | 2 | 00602.20 | Door Spring – Heavy Duty |
| 13 | 1 | 00604.27 | Door Extension Link |

Power Switch Bulb Replacement Instructions
NOTE: For Old Style Machines ONLY — Manufactured prior to May 2002
TO REPLACE BULB
- Using a 5mm-screw driver dismount the light module from the actuator as shown in illustration 1 & 2.
- Replace the burnt bulb with a new one P/N 17421.10 by twisting the bulb 90 degrees.
- Mount the light module by snapping it onto the actuator as shown in illustration 3.

180 Conversion Kit – Corner to Straight #00617.18
INSTRUCTIONS
- Open dishmachine doors to their highest position so that there is little spring resistance on the door handle. Remove hardware holding the door handle to the door linkage. Save all the washers and spacers. With the door handle in “UP” position, lift spring and remove from extension rod. Remove the nut attaching the eyebolt and save all hardware.
- To remove the door handle, simply unscrew the four bolts holding the door handle mounting plates and slide the complete assembly up and off of the cabinet. Use the bolts, nuts and washers to plug the holes in the back of the cabinet.
- Remove door panel & hardware from left side of machine, and install door guides from kit. Remove front door and relocate to left side of machine. The service door will be used to seal off this side of machine. Remove bolt located on top right hand corner of the wrapper and use it to mount service door latch bracket. Relocate tray track guide to front service door side of tray track.
- Using provided nuts, bolts and washers; mount the left and right door handle supports on the back of the cabinet. Insert the eyebolts into the brackets on the back of the dishmachine stand and screw the nuts on just enough to hold them in place. Hook both door springs and door spring extension rods on to the door handle and secure them with the washers and cotter pins. Then simply rest the door handle on the door handle supports. (You may have to lift the door handle to reach the handle supports.)
- Swing the door handle downwards to reach the door linkages; and using the two provided bolts and existing washers and spacers, attach the door linkages to the door handle. Adjust the tension in the spring by tightening the nuts under the eyebolt bracket so that the doors can slide up and down freely. Mount the provided door handle grips on the ends of the door handle.
- Eyebolt adjustment nuts should be adjusted to the point the doors begin to lift from a closed position. Both eyebolts should be adjusted the same. SEE “Illustration #1” for the proper location of all door handle hardware for CMA 180-S.
- “Illustration #2” shows CMA 180-S and CMA 180-C door handle assembly.

| ITEM NO. | NO. REQ’D | P/N | DESCRIPTION |
| 1 | 2 | 00636.17 | EZ Glide Door Guide |
| 2 | 2 | 00603.07 | Door Spring Extension Rod |
| 3 | 1 | 00606.00 | 5/16-18 x 7” Eyebolt |
| 4 | 1 | 00613.17 | Door Handle |
| 5 | 2 | 00913.00 | 5/16”-18 SS Nut |
| 6 | 1 | 01555.50 | L.H. Door Handle Support |
| 7 | 1 | 01556.50 | R.H. Door Handle Support |
| 8 | 2 | 00607.04 | Door Handle Grip |
| 9 | 4 | 00924.00 | ¼” SS Washer |
| 10 | 2 | 00900.00 | Cotter Pin |
| 11 | 1 | 17506.00 | Service Door |
| 11A | 1 | 00535.30 | Door Handle |
| 12 | 1 | 13915.00 | Door Latch Bracket |
| 12A | 1 | 13915.06 | Latch Bracket with Nut |
| 13 | 1 | 13701.00 | Open Door Latch |
| 14 | 2 | 17554.00 | Door Glide |
| 15 | 4 | 00912.00 | ¼” 20 Nylon Lock Nut |
| 16 | 2 | 17506.60 | Door Splashguard-Straight |
| 17 | 1 | 17506.65 | Service Door Splashguard-S |
| 18 | 4 | 00610.00 | Spacer Small |
| 19 | 4 | 00962.00 | ¼”-20 x 1 SS Hex Head Bolt |
| 20 | 2 | 1222.50 | Tank Plug |

180 Conversion Kit – Straight to Corner #00617.17
INSTRUCTIONS
- Open dishmachine door to its highest position so that there is little spring resistance on the door handle. Remove hardware that holds the door handle to the door linkage. Save all the washers and spacers. Swing the door handle towards the back of the dishmachine and dismount it from the door handle support brackets. Remove the two nuts attaching the eyebolts and save the door springs.
- Remove the two (2) door-handle support brackets on the back of the cabinet and plug the four holes with original hardware. Remove front door and replace with left door. Remove door guides on left side of machine and attaché item No. 9 door panel-cover. The left door will now be at the front of the machine. Remove and relocate service door splashguard to left side of machine. Remove door latch for service door. The door latch is not needed on the CMA 180-C.
- With left door facing the front, door panel on the left, and service door splashguard in place, we are now ready to install the door handle.
- Using provided door handle, door handle mounting plates, 5/16” bolts, nuts and washers; install the door handle as shown in “Illustration #1”. Match the mounting plate holes to the cabinet holes and insert all bolts to ensure that the door handle and mounting plates are aligned. Then secure the mounting plate with nuts and washers.
Note: You may install one of the mounting plates first, then insert the door handle pivot post in and mount the other mounting plate last.
- Attach the provided extension rod to the back of the door handle. Attach one eyebolt to the frame with existing hardware, along with two springs together. Pivot the door handle, positioning handle straight up. You may now connect loop of 2nd spring to the door extension rod. Pull handles forward and down and attach to the door links.
- Adjust the nut on the eyebolt until the doors begin to lift then back off two turns. See “Illustration #2” for proper location of all door handle hardware included on CMA 180C.

- “Illustration #3” shows CMA 180-S and CMA 180-C “Door Handle Assembly”.

ITEM NO.
NO. REQ’D
P/N DESCRIPTION 1 1 00613.04 Door Handle 2 1 00619.34 Door Hdl. Mtng. Plate-Long 2A 1 00619.44 Door Hdl. Mtng. Plate-Short 3 1 00603.04 Door Spring Extension 4 9 00913.00 5/16” – 18” Nut 5 9 00926.00 5/16” SS washer 6 1 00900.00 Cotter Pin 7 2 00607.04 Door Handle Grip 8 8 00920.00 5/16”-18 x ¾” Hex Head Bolt 9 1 17506.50 Door Panel-Cover 10 1 00563.20 Roller Switch Bracket 11 1 17507.10 Air Gap Baffle CMA 180C
Drain Water Tempering Valve Assembly (Effective 03-2023)
| ITEM NO. | NO. REQ’D | P/N | DESCRIPTION |
| 1 | 1 | 13470.88 | 2 ABS Tee S x S x MIP |
| 2 | 1 | 13470.87 | DTV Adapter 2″ X 3/4″ |
| 3 | 1 | 13470.85 | Drain Water Tempering Valve |
| 4 | 1 | 00742.00 | Nipple Brass 1/2 x 1-1/2 |
| 5 | 1 | 00715.00 | 1/2 Ball Check Valve |
| 6 | 1 | 05030.10 | 2 x 3 ABS Tubing |

Cusatomer Support
CMA DISHMACHINES
12700 KNOTT AVENUE
GARDEN GROVE, CALIFORNIA 92841
800 – 854 – 6417
FAX 714-895-2141
www.cmadishmachines.com















