
PHRVR 150
Heat Recovery Ventilator

IMPORTANT – PLEASE READ THIS MANUAL BEFORE INSTALLING UNIT
CAUTION – Before installation, careful consideration must be given to how this system will operate if connected to any other piece of mechanical equipment, i.e. a forced-air furnace or air handler, operating at higher static pressure. After installation, the compatibility of the two pieces of equipment must be confirmed by measuring the airflow of the Heat Recovery Ventilator using the balancing procedure found in this manual. It is always important to assess how the operation of any HRV may interact with vented combustion equipment (i.e. Gas Furnaces, Oil Furnaces, Wood Stoves, etc.).
NEVER – install a ventilator in a situation where its normal operation, lack of operation or partial failure may result in the backdrafting or improper functioning of vented combustion equipment!!!
CAUTION – For residential installation use only.
Your ventilation system should be installed in conformance with the appropriate provincial requirements or, in the absence of such requirements, with the current edition of the National Building Code, and/or ASHRAE’s “Good Engineering Practices”.
Installation Manual

FEATURES
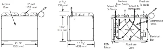
- 6″ (152 mm) oval duct connections with an integrated airflow measurement
- Removable screw terminal for easy connection
- Lightweight (20Kg)
- The top port design fits in tight spaces
- Multiple speed operation
- Internal recirculation defrost
- Compact design
- Backward curved blade motors
- Electrostatic filters (washable)
- Aluminum heat recovery core
- 6′ oval duct connections
OPTIONAL CONTROLS:
| • DIR-TS • RTS 20 • RTS5 • EDF1R • MDEH1 | – Programmable Touch Screen Wall Control – 20-minute timer over-ride – 20/40/60 minute timer – Triple function wall control – Dehumidistat |
WARRANTY:
- 7 year on motors
- 5 year on parts
- Lifetime on the core (limited)
SPECIFICATIONS
MOTORS: Two (2) German-engineered, factory-balanced ebm™ motors with backward curved blades. Motors come with permanently lubricated sealed bearings, guaranteeing long life and maintenance-free operation. Seven (7) year warranty.
CORE: A aluminum heat recovery core configured for efficient cross-flow ventilation. Core is 9″ x 9″ (229 x 229 mm) with a 15″ (380mm) depth. Cores are manufactured to
withstand extreme temperature variations.
WINTERGARD™ DEFROST: The PHRVR150 incorporates a unique and quiet internal recirculation defrost that does not depressurize the home during the defrost cycle. A preset defrost sequence is activated when the outdoor temperature falls below 23°F (-5°C) and automatically adjusts itself based on operating conditions. The fan speed is also adjusted automatically to provide a smooth and quiet transition between Ventilation & Defrost mode.
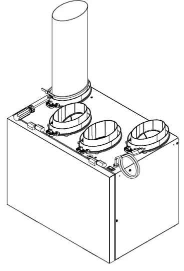
DUCT CONNECTIONS: 6″ (152 mm) Oval plastic duct connections with integrated balancing damper and airflow measurement ports.
SERVICEABILITY: Core, filters, motors and drain pan can be easily serviced through the latched access door. Core conveniently slides out with ease on the railing system.
CASE: 24 gauge galvanized steel. Baked powder-coated paint for superior adhesion and resistance.
FILTERS: Two (2) Washable Electrostatic Panel Type Air Filters, 8.5″ (216mm) x 15″ (380mm) x 0.125″ (3mm).
INSTALLATION: The unit is typically hung by using an installation kit supplied with the unit. Mounting bolts provided on top four (4) corners of unit
Dimensions & AIRFLOW – All units feature a three-foot plug-in power cord with a 3-prong plug.

Ventilation Performance
| M S1ATIC | NET SUPPLY 0 AIRFLOW | * GROSS AIR FLOW | |||||
| PRESSURE | SUPPLY | EXHAUST | |||||
| Pa | in wg | Us | cfm | Us | cfm | Us | cfm |
| 50 | 0.2 | 83 | 176 | 84 | 178 | 84 | 178 |
| 100 | 0.4 | 73 | 155 | 74 | 157 | 74 | 157 |
| 150 | 0.6 | 61 | 129 | 62 | 131 | 61 | 131 |
| 200 | 0.8 | 51 | 108 | 52 | 110 | 52 | 110 |
| 250 | 10 | 41 | 87 | 41 | 87 | 41 | 87 |

Energy Performance
| SUPPLY TEMPERATURE °C | °F | Us | AIRFLOW NET CFM | POWER CONSUMED WATTS | • SENSIBLE I” RECOVERY EFFICIENCY | APPARENT SENSIBLE EFFECTIVENESS1 | LATENT RECOVERY/MOISTURE TRANSFER | |
| Heating | 0 | 32 | 40 | 85 | 73 | 66 | 79 | 0. |
| 0 | 32 | , 47 | 100 | 108 | 63 | 79 | 0.01 | |
| -25 | -13 | 42 | 89 | 107 | ‘ 60 | 72 | 0.02 | |
1 Not an HVI certified value
Specifications and Ratings
- Model: PHRVR150
- Total assembled weight: 45 lbs (20Kg)
- Cabinet: 24 ga, steel with powder coat finish
- Motors: ebm motor with backward curved blades

- Filters: 2 washable electrostatic filters 8.5″ (216mm) x 15″ (380mm) x 0.125″ (3mm)
- Insulated with 1″ (25mm) high-density polystyrene foam to prevent condensation
- Core: Aluminum 9″ (229mm) x 9″ (229mm) x 15″ (380mm)
- Supply & exhaust ducts: 6″ oval (150 mm)
- Mounting: Suspended by chains & hooks
- Electrical requirements:: Volts Frequency Amps Watts 120V 60Hz 1.2A 170W 3′ plug-in power cord w/ 3-prong plug
DETERMINING YOUR AIRFLOW REQUIREMENT
Room Count Method
| Room classification | Number of rooms | CFM (L/s) | CFM Required |
| Master bedroom | x 10 Us (20 CFM | = | |
| Basement | yes or no | if yes add 10 Us (20 CFM) if no = 0 | = |
| Bedrooms | x 5 Us (10 CFM) | = | |
| Living room | x 5 Us (10 CFM) | = | |
| Others | x 5 Us (10 CFM) | = | |
| Kitchen | x 5 Us (10 CFM) | = | |
| Bathroom | x 5 Us (10 CFM) | = | |
| Laundry room | x 5 Us (10 CFM) | = | |
| Utility room | x 5 Us (10 CFM) | = |
Total Ventilation Requirements (add last column ) =
1 CFM = 0.47 L/s
1 L/s = 2.13 CFM
ASHRAE method
| Bedrooms | |||||||||||
| Floor area | 1 | 2 | 3 | 4 | 5 | ||||||
| Ft2 | m2 | CFM | L/s | CFM | L/s | CFM | L/s | CFM | L/s | L/s | |
| <500 | <47 | 30 | 128 | 38 | 18 | 45 | 21 | 53 | 25 | 60 | 28 |
| 205-1000 | 47-93 | 45 | 21 | 53 | 24 | 60 | 28 | 68 | 31 | 75 | 35 |
| 1001-1500 | 94-139 | 60 | 28 | 68 | 31 | 75 | 35 | 83 | 38 | 90 | 42 |
| 1501-2000 | 140-186 | 75 | 35 | 83 | 38 | 90 | 42 | 98 | 45 | 105 | 49 |
| 2001-2500 | 187-232 | 90 | 42 | 98 | 45 | 105 | 49 | 113 | 52 | 120 | 56 |
| 2501-3000 | 233-279 | 105 | 49 | 113 | 52 | 120 | 56 | 128 | 59 | 135 | 63 |
| 3001-3500 | 280-325 | 120 | 56 | 128 | 59 | 135 | 63 | 143 | 66 | 150 | 70 |
| 3501-4000 | 326-372 | 135 | 63 | 143 | 66 | 150 | 70 | 158 | 73 | 165 | 77 |
| 4001-4500 | 373-418 | 150 | 70 | 158 | 73 | 165 | 77 | 173 | 80 | 180 | 84 |
| 4501-5000 | 419-465 | 165 | 77 | 173 | 80 | 180 | 84 | 188 | 87 | 195 | 91 |
* ASHRAE 62.2-2016 Table 4.1, Ventilation and Acceptable Indoor Air Quality in Low-Rise Residential Buildings.
Bathroom: If the HRV is going to provide the required local exhaust ventilation for each bathroom with a continuous 20 CFM (10 L/s), this ventilation rate can be considered as part of the whole-building ventilation rate.
INSTALLATION EXAMPLES
Example only – duct configuration may differ depending on the model.
FULLY DEDICATED SYSTEM BEST FOR NEW CONSTRUCTION
Suggested installation for:
- Hydronic baseboard
- In-floor heating
- Electric baseboard
- Mini-split heat pump
Benefits: Provides the best fresh air distribution in the house; lowest operation cost since the furnace/air handler unit is not needed.
Stale air is drawn from key areas of the home requiring local exhaust (bathroom, kitchen, laundry room).- Fresh air is distributed directly to habitable rooms in the house (bedrooms, living room)
- The HRV’s airflow must be balanced after installation using the procedure found in the section “AIRFLOW BALANCING”
HRV ducting for fully Dedicated System

INSTALLATION EXAMPLES (CONT’D)
DIRECT CONNECTION of the FRESH air to the living area to the RETURN PLENUM of the AIR HANDLER (Stale air drawn from key areas of the home)
PARTIALLY DEDICATED SYSTEM (BETTER)
Suggested installation for:
- Central furnace (air handling unit or central air conditioners)
- When ducting fresh air to the living area is not possible or practical, i.e. expensive or when the central AHU will operate year-round.
Benefits: Conditions the fresh air prior to distributing it throughout the house
In order to provide proper distribution of the fresh air, it is recommended that the furnace blower be set to run continuously or interconnected with HRV.- Stale air is drawn from key areas of the home (bathroom, kitchen, laundry room).
- Fresh air is supplied to the return air plenum of the furnace.
- Due to the difference in pressure between the HRV and the equipment, it is being connected to the HRV’s airflow must be balanced on-site, using the procedure found in the section “AIRFLOW BALANCING”
Make sure the HRV is capable of meeting the required airflow rate.
HRV/ Furnace ducting for Partially Dedicated System

INSTALLATION EXAMPLES (CONT’D)
DIRECT CONNECTION of both the HRV SUPPLY AIRSTREAM and EXHAUST AIRSTREAM to the FURNACE COLD AIR RETURN
SIMPLIFIED INSTALLATION (GOOD) (RETURN/RETURN METHOD)
Suggested installation for:
- When the bathroom and kitchen already have a local exhaust system
- May be suitable for retrofitting
Benefits: Least expensive installation type
The furnace blower must operate when ventilation from HRV is required. The furnace should be set to run continuously or interlocked with HRV.- A minimum separation of 1m (39’’) is recommended between the two direct connections.
- In order to prevent exhausting any fresh air, the HRV’s exhaust air connection should be upstream of the HRV’s supply air connection when ducting to the furnace’s cold air return.
- Due to the difference in pressure between the HRV and the equipment, it is being connected to the HRV’s airflow must be balanced on-site, using the procedure found in
the section “AIRFLOW BALANCING”
HRV/ furnace for Simplified Installation

EXTERIOR DUCTING INSTALLATION
WEATHER HOOD LOCATION
- Decide where your intake and exhaust hoods will be located.
Locating the Intake Weather hood - Should be located upstream (if there are prevailing winds) from the exhaust outlet.
- At a minimum of 2m (6’) away from dryer vents and furnace exhaust (medium or high-efficiency furnaces), driveways, oil fill pipes, gas meters, or garbage containers.
- At a minimum height of 460mm (18’’) above the ground, or above the level of expected snow accumulation.
- At a minimum distance of 1m (3’) from the corner of the building.
- Do not locate in the garage, attic, crawl space, or underneath the deck.

Locating the Exhaust Weather hood
- At least 460mm (18″) above ground or above the depth of expected snow accumulation
- At least 1m (3’) away from the corner of the building
- Not near a gas meter, electric meter, or a walkway where fog or ice could create a hazard
- Do not locate in a garage, workshop, or other unheated space
INSTALLING THE DUCTING TO THE WEATHER HOLDS
A well-designed and installed ducting system will allow the HRV to operate at its maximum efficiency. The inner liner of the flexible insulated duct must be secured to the sleeve of the weather hood (as close to the outside as possible) and to the appropriate duct connection on the HRV. The insulation should remain full and not crushed. The outer liner,
which acts as a vapor barrier, must be completely sealed to the outer wall and the HRV using tape and/or caulking. A good bead of high-quality caulking (preferably acoustical
sealant) will seal the inner flexible duct to both the HRV duct connection and the weather hood prior to securing them. To minimize airflow restriction, the flexible insulated duct that connects the two outside weather hoods to the HRV should be stretched tightly and be as short as possible. Twisting or folding the duct will severely restrict airflow.
See “Installation Diagram Examples” for installation examples.
STEPS FOR HOOD INSTALLATION:

- Using the duct connection of the outside hood, outline the intake & exhaust holes to be cut. The holes should be slightly larger than the duct connection to allow for the thickness of the insulated flexible duct. Cut a hole for both the intake and exhaust hoods.
- Pull the insulated flexible duct through the opening until it is well extended and straight. Slide the duct’s inner vinyl sleeve over the hood duct connection and secure. Pull the insulation over the duct and pull the vapor barrier over the sleeve. Secure with appropriate tape or sealant.
- Push the hood into the opening and then attach the hood to the outside wall with mounting screws. Repeat the installation procedure for both the supply and exhaust hoods.
- Using a caulking gun, seal around both hoods to prevent any leaks.
INTERIOR DUCTING INSTALLATION
To maximize airflow through the ductwork system, all ducts should be kept short and have as few bends or elbows as possible.- 45º elbows are preferable to 90º.
- Use “Y“ ducts instead of “T” ducts whenever possible.
- All duct joints must be fastened with screws or duct sealant and wrapped with aluminum foil duct tape to prevent leakage.
- Galvanized ducting from the HRV to the living areas in the house is recommended whenever possible, although flexible ducting can be used in moderation when necessary.
- To avoid possible noise transfer through the ductwork system, a short length (approximately 300mm, 12’’) of the nonmetallic flexible insulated duct should be connected between the HRV and the supply/exhaust ductwork system.
- The main supply and return line to/from the HRV must have the same diameter as the duct connection or larger.
- Branch lines to the individual rooms may be as small as 100mm (4’’).

INSTALLING DUCT TO HRV
For flexible duct installation, slide flexible ducting onto the duct connection. Then install a cable tie over a flexible duct to prevent leakage between the ducting and the duct connection.
In the case of solid ducting, slide duct over duct connection, screw in place, and seal.
SUPPLY AIR GRILLES LOCATION
In homes without a forced-air furnace, fresh air should be supplied to all habitable rooms, including bedrooms and living areas. It should be supplied from the high wall or ceiling locations. Grilles that diffuse the air comfortably are recommended. In homes with a forced-air furnace, you may want to connect the HRV to the furnace ductwork (see information below).
EXHAUST AIR GRILLES LOCATION
The stale air exhaust system is used to draw air from the points in the house where the worst air quality problems occur. It is recommended that return air ducts be installed in the bathroom, kitchen, and laundry room. Additional return air ducts from strategic locations may be installed. The furnace return duct may also be used to exhaust from. In this method, the exhaust air is not ducted back from bathrooms, kitchens, etc to the HRV with “dedicated lines”.
As per building codes and installation requirements for combustion appliances:
Air return ducts, or openings for air return, should not be placed in enclosed spaces containing combustion appliances that are subject to spillage.
HRV INSTALLATION
Have a nearby power supply(120 volts, 60Hz)- Choose a location that allows the possibility of mounting the unit to supporting beams.
- The unit should be level in order to allow proper condensate drainage
- To minimize noise, do not install units in the living area
- Ensure proper drainage
LOCATION
The HRV must be located in a conditioned space where it will be possible to conveniently service the unit. The HRV would be located in the mechanical room or an area close to the outside wall where the weather hoods will be mounted. If a basement area is not convenient or does not exist, a utility room may be used.
Attic installations are not normally recommended due to:
- The complexity of the installation
- Freezing conditions in the attic
- Difficulty of access services and cleaning
- No drain access
Connecting appliances to the HRV is not recommended. These include: - Clothes dryer
- Range top
- Stovetop fan
- Central vacuum system
- Bathroom exhaust fans unless they are specifically designed for this purpose
These appliances may cause lint, dust, or grease to collect in the HRV, damaging the unit.
Connecting any of these types of appliances to the HRV will void your warranty.
MOUNTING – WALL MOUNT
For PHRVR104 ES, PHRVR100 ES only
- Attach the bracket to the wall
- Lift unit & slide nuts into slots on the bracket
- Tighten screws to secure unit to the bracket
- Insert the safety screws & place wall bumpers to level off the unit.
* Optional chain hanging kit available.

Mounting- Chain mount
For PHRVR150 only

- Place fastening hooks on the strapping board or the floor joists.
- Attach a hanging chain (provided) to each 19 mm (3/4″) bolt (provided) in the top 4 corners of the unit and tighten.
- Install a spring on each chan. Hook the spring in the links so a loop is created in the chain. The spring will then support the unit’s weight and absorb vibrations.
- Hang the unit by slipping a link onto the hanging hooks, making sure the unit is level.
INSTALLING DRAIN LINE
Through normal operation and during its defrost mode, the HRV may produce some condensation. This water should flow into a nearby drain, or be taken away by a condensate pump. The HRV and all condensate lines must be installed in a space where the temperature is maintained above the freezing point. A “P” trap should be made in the drain line. This will prevent odors from being drawn back up into the unit.
The drain nipple is placed upside down in the unit to prevent it from being damaged during shipping or the installation of the unit.
- Remove the nutsert.
- Invert the drain nipple. Make sure to place a gasket between the unit and the drain nipple inside the unit.
- Secure the drain nipple using the nutsert.
- Install the drain hose making a “P” trap, secure the condensate line drain connection using the tube clamp provided. Fill the condensate line with water.
AIRFLOW ADJUSTMENT & BALANCING
BALANCING THE AIRFLOWS IS CRUCIAL TO ENSURE OPTIMAL OPERATION OF THE UNIT. IF THE AIRFLOW IS NOT PROPERLY BALANCED, THE
THE FOLLOWING ISSUES MAY OCCUR:
- SIGNIFICANT POSITIVE OR NEGATIVE PRESSURE INSIDE THE HOUSE
- THE UNIT’S EFFICIENCY MAY BE NEGATIVELY AFFECTED
- THE UNIT’S DEFROST MAY NOT WORK EFFECTIVELY
- CAN LEAD TO AIR LEAKS OR BACKDRAFTING OF ANY COMBUSTION APPLIANCES.
The airflow adjustment and balancing procedure consist of adjusting the fresh airflow to make sure it meets the requirements for the building and then balancing the system to make sure there is an equal amount of stale air being exhausted. In the case that the airflow is not exactly the same, it is recommended to have a higher stale airflow of up to 10% in colder climates to ensure that the temperature of the fresh air flow coming from the outside is as close to the room temperature as possible.
GENERAL PREPARATION:
Before performing the adjustment and balancing for the unit, make sure to check the following:
- Seal all the ductwork
- Fully open all dampers (if present)
- Turn off all other exhaust appliances such as range hood, dryers, bathroom fans, etc.
- If performing balancing during cold weather, make sure the unit is not operating in defrost mode.
- If the installation type is Simplified or Partially Dedicated, make sure that the furnace/air handler blower is operating at normal speed during the balancing sequence.
- When reading with a mechanical type manometer (Magnehelic), make sure the manometer is placed on a level surface
For optimal performance, the HRV unit should be re-balanced after a major renovation or after the installation of extra grilles or registers.
- In cold climates, continuous excessive positive pressure inside the house may drive moisture inside the external walls of the house. Moisture present inside the external wall may condense if the outside temperature is cold enough and can cause damage to structural components. A symptom of excessive positive pressure inside a house is frozen door locks.
- Continuous excessive negative pressure can have undesirable effects. In some geographic locations, negative pressure can increase the infiltration of soil gases such as methane and radon. Negative pressure is also undesirable where combustion equipment is present and may cause back drafting of the combustion gases.
ADJUSTING AIRFLOWS USING AN INTEGRATED BALANCING SYSTEM
Adjustable dampers are integrated into the Fresh Air to Building and the Stale Air to Outside duct connections. Those dampers replace the installation of separate backdrafts and balancing dampers in the duct line.
The integrated dampers are preset at the fully opened position. In order to reduce the amount of airflow, turn the adjustable lever using a flat screwdriver by turning it counterclockwise. Turning the lever clockwise may damage the plastic screw head. Follow the balancing steps to properly adjust the airflow.
BALANCING STEPS
Use the balancing chart located on the door of the HRV
STEP #1: Identify the desired airflow using the provided chart. From the desired airflow (left column) identify the pressure reading needed by simply following the line. Make sure to set the unit at the Normal speed before performing the next step.
STEP #2: Measure the pressure reading by connecting a manometer on the LOW and HIGH-pressure ports located on the duct connection. Refer to Illustration #1. If the pressure reading is LOWER than the desired value, adjust the balancing dampers by turning the adjustable arm counterclockwise until the correct corresponding pressure value is reached. Refer to Illustration #2 Do the same for both the SUPPLY and EXHAUST airflows. If the pressure reading is HIGHER than desired when the damper is fully opened, please check the distribution system for any anomalies that could increase the resistance in the distribution system.
BALANCING CHART (example only)
| Airflow | Normal Speed | Reduced Speed | |||
| CFM | L/s | ∆In W.G. Pressure reading | ∆Pa | ∆In W.G. Pressure reading | ∆Pa |
| 110 | 52 | 0.36 | 91 | ||
| 100 | 47 | 0.46 | 114 | ||
| 90 | 42 | 0.55 | 137 | ||
| 80 | 38 | 0.64 | 161 | ||
| 70 | 33 | 0.74 | 184 | 0.13 | 32 |
| 65 | 31 | 0.78 | 195 | 0.16 | 40 |
| 60 | 28 | 0.83 | 207 | 0.19 | 48 |
| 55 | 26 | 0.87 | 219 | 0.22 | 55 |
| 50 | 24 | 0.92 | 230 | 0.25 | 63 |
EXAMPLE
If the house is tightly sealed, adjusting one airflow may affect the other airflow as well. It is recommended to check each airflow again to make sure the value did not change dramatically during the balancing procedure. Make adjustments as necessary.- The pressure reading from the duct connection refers to the total pressure loss from the distribution system. A well-designed distribution system should have a total pressure loss between 0.4” (100Pa) and 0.6” (150Pa). The pressure reading can therefore be used to troubleshoot the distribution system. If the pressure reading is higher than 0.6” (150Pa), we recommend that you inspect the system and check for closed grilles, blocked exterior hoods, or twisted flexible ducts.

STEP #3: Secure the adjustable arm by tightening the set screw as shown in Illustration #3.

Low Voltage Control Systems
* Please see instruction manuals for individual controls for proper wiring and set up of control systems.
CENTRAL CONTROLS
These control options can only be used individually
| CONTROLS | FEATURES | CONNECT TO |
![]() | • Our most complete, yet easy to use control system • Sleek design with backlight touchscreen LCD • ECO mode selects the best operating mode and speed for the season, minimizing energy use associated with ventilation • Set preferred indoor relative humidity range and ventilation mode for the day and night conditions • No battery to replace, all programmed settings are retained during a power outage • Maintenance reminder indicator • Error code messages reduce troubleshooting time | ![]() |
![]() | • MODE button provides 3 modes of operations: Ventilation, Recirculation, and Standby • User selected fan speed: Reduced, Medium, Normal, and 20 minutes per hour • AUTO setting allows the homeowner to deactivate the dehumidistat • When the humidity exceeds the desired setpoint, the ventilation system operates at a Normal speed. •Once the desired humidity level is achieved, your ventilation system resumes to its previous mode of operation | ![]() |
![]() | • Press the button once for continuous Reduced speed • Press the button twice and the unit will cycle 20 minutes ON/ 40 minutes OFF and repeat • EDF1 – Press the button a third time and the system will run continuously on HIGH speed • EDF1R –Press the button a third time and the system will run recirculation on HIGH speed | ![]() |
![]()
- Ensure that unit is not plugged when connecting to the control
- Recirculation mode is only available with the “R” suffix at the end of the model number.
![]()

The wiring connectors can be removed for easier connection.
*Maintain polarity between control and HRV (+ → + ; – → -)
AUXILIARY CONTROL – These controls can be paired
![]() | • 20- minute timer with LED light • Boosts system to high speed with the touch of a button • Up to 5 can be used in one system • Use in bathroom, kitchen, laundry room | ![]() |
![]() | • 20/40/60 minute timer with LED light • Boosts system to high speed with the touch of a button • Up to 5 can be used in one system • Use in bathroom, kitchen, laundry room | ![]() |
![]() | • Rotary dial Dehumidistat • Multiple units can be used • We recommend setting the relative humidity above 80% during the summer | ![]() |
WIRING DIAGRAM – PHRVR150

WIRING DIAGRAM (CONT’D)
WIRING DIAGRAM TO FURNACE
![]()
FOR A FURNACE CONNECTION TO A COOLING SYSTEM:
On some newer furnaces and older thermostats, energizing the R and G terminal at the furnace has the effect of energizing the Y at the thermostat and thereby turning on the cooling system. If you identify this type of thermostat, you must use the “Alternate Furnace Interlock Wiring”

As per building codes and installation requirements for combustion appliances:
Air return ducts, or openings for air return, should not be placed in enclosed spaces containing combustion appliances that are subject to spillage.
TROUBLESHOOTING
| Problem | Causes | Solutions |
| r is too dry | Detumclistat control is set to row | |
| Increase the desfrallewfornumelty. Lange ventilation mode Tram continuous mode to standby. | ||
| HRV is out of balance | Have contractor balance HRV Billows | |
| Air is too humid | Detumiclistat enroll is set too high | Radice the desired level of humidity. Combine this with the use of continuous exchange mode. |
| Sudden change n temperature | Wait until the outside temperature stabilizes (winter). Fleeting will also Mcrae situation. | |
| Storing too much wood for heating | Store a majority of your wood outside. Even dried. a cord of mod contains more than 20 gallons of water | |
| The dryer vent exhaust is inside the home | Make sure the idler vent is exhausting outside. | |
| Poor at circulation near windows | Open curtains or blinds. | |
| HRV is out of balance | Have contractor balance HRV &tows | |
| Well sealed basement door is closed | Open the door or install a grill on the door. | |
| Failed damper system may be stuck in recirculation mode | Check defrosts damper. If the damper is always blocking incoming fresh Sr. have the contractor verify the damper system. | |
| stem condensaton window | Improper adjustment of dehumclistat control | Reduce the desired level of humidity. Combine this step with the use of °onyx ..,o exchange mode. |
| HRV oil of balance | Have contractor balance HRV | |
| Poor air circulation near windows | Open curtains or bards. | |
| Air Flows | 114′ team) mesh on the outside hoods is plugged | Dean exterior hoods or vets |
| Filters plugged | Remove and clean the filter | |
| Core obstructed | Remove and clean core | |
| Indoor grilles closed or blocked | Check and open Vies | |
| Inadequate power supply at the site | Have electrician check supply voltage | |
| Ductwork is restricting airflow | Check dirt installation | |
| Improper speed control setting | disease the speed of the AV lit. charge frit muted tan REDUCED to NOFtViL speed) | |
| HRV airflow improperly balanced | Have contractor balance HRV airshows | |
| Cuong has fallen dorm or been disconnected from KW | Have contractor reconnect ducting | |
| Supply air feels cold | Poor bcatix of supply grilles. the airflow may irritate the occupant | Locate the grilles high on the walls or under the baseboards, install ceiling-mounted diffusers or grilles so as not to directly spill the supply Sr on the occupant’s leg. Doer a sofa) Turn down the HRV supply speed. A small duct heater C1kwl could be used t: temper the supply air Placement of (Inure or closed doors is restricting the movement of air in the home |
| Outdoor temperature is extremely cold | If supply air is ducted into furnace return. the furnace fan may need to run continuously to distribute ventilation air comfortably | |
| RV aid/or Ducts frosting up | HRV air flows are improperly balanced | Have the I-1VAC contractor balance the HRV airflows |
| Malfunction of the HRV defrost system | Note: minimal frost build-up is expected in the core before wit initiates defrost cycle functions | |
| sensation or Ice Build Up insulated Duct to the Outside | Incomplete vapor barrier around insulated duct | Tape and seal all joints |
| A hole or tear in the outer duct covering | Tape any holes or tears made in the cuter duct corning Ensure that the vapor barrier is completely sealed. | |
| LED is flashing LED is not flashing | Everything is in good operations | |
| No Power is being transmitted to the Control Board | Make sure Lett is plugged. The transformer may reed replacing. |
Note: It is best to get the unit checked by a certified HVAC Contractor/Technician.
HRV MAINTENANCE CHART
| Maintenance Required | Recommended Frequency | Date Maintenance Performed | |||||
| Check and Clean Filters | Every 3 months or if dirty | ||||||
| Check Heat Recovery Core | Every 6 months | ||||||
| Check Drain Pan and Lines | Every 3 months | ||||||
| Vacuum the Inside of the Unit | Annually | ||||||
| Clean and Un-block Outside Hoods | Annually | ||||||
| Clean and Inspect Duct Work | Annually | ||||||
| General Servicing by a Qualified Contractor | Annually | ||||||
* Schedule may be altered to meet your own needs. More frequent servicing may be required depending on the severity of your home’s indoor and outdoor environments.
| Contractor | Telephone Number | Date Serviced |
Limited Warranty
- The heat recovery aluminum core has a lifetime limited warranty..
- The warranty is limited to 5 years on parts and 7 years on fans from the date of purchase, including parts replaced during this time period. If there is no proof of purchase available, the date associated with the serial number will be used for the beginning of the warranty period.
- The fans found in all Direct Air HRVs require no lubrication and are factory balanced to prevent vibration and promote silent operation.
- The limited warranty covers normal use. It does not apply to any defects, malfunctions, or failures as a result of improper installation, abuse, mishandling, misapplication, fortuitous occurrence or any other circumstances outside Powrmatic’s control.
- Inappropriate installation or maintenance may result in the cancellation of the warranty.
- Any unauthorized work will result in the cancellation of the warranty.
- Powrmatic is not responsible for any incidental or consequential damages incurred in the use of the ventilation system.
- Powrmatic is not responsible for providing an authorized service center near the purchaser or in the general area.
- Powrmatic reserves the right to supply refurbished parts as replacements.
- Transportation, removal, and installation fees are the responsibility of the purchaser.
- The purchaser is responsible to adhere to all codes in effect in his area.
* This warranty is the exclusive and only warranty in effect relative to the ventilation system and all other warranties either expressed or implied are invalid.

If you want to know your local dealer, contact:
powrmatic
| Toronto 111 Staffern Drive Concord, ON, L4K 2R2 (T) 905.660.0033 (F) 905.660.8881 [email protected] | London 1064 Hargrave Road London, ON N6E 1P5 (T) 519.675.1491 (F) 519.675.4725 [email protected] | Halifax 100 Wright Ave Dartmouth, NS, B3B 1L2 (T) 902.454.8684 (F) 902.453.5875 [email protected] | Ottawa 1412 Star Top Rd Gloucester, ON K1B 4V7 (T) 613.230.7160 (F) 613.230.0685 [email protected] | Québec 365, Fortin Vill-Vanier, QC G1M 1B2 (T) 418.683.2708 (F) 418.683.8860 [email protected] | Montréal 9500 BLVD. Ray-Lawson Anjou, QC H1J 1L1 (T) 514.493.6400 (F) 514.493.8722 [email protected] Item #: 445309 Rev Date: 011421 |


























