aldes RESIDENTIAL HRV H150-TQG Heat Recovery Ventilator

PRODUCT DESCRIPTION
The H150-TQG has been thoughtfully engineered for simple installation in apartments, condos, and small houses. The removable collars are top-mounted, which makes the unit both narrow and shallow enough to fit inside standard closets and other tight spaces.
KEY FEATURES
- Electronically and independently adjustable supply and exhaust blowers (FLEX Control)
- Gauge ports on the door for fast and reliable airflow readings
- Non-dust-loading backward-inclined impellers on totally enclosed motors
- Twist-in collars for easy flex-duct attachment
- Easy access to core and filters for cleaning
- Extremely durable polypropylene core
- Recirculation defrost to maintain a neutral pressure in the home, and using only the four duct connections. No fifth duct connection required
Recovery Core
Material: Polypropylene
Casing
- Material: Pre-painted 24-gauge galvanized steel
- Drain Connection: O 3/8″ (Ø 10 mm)
- Duct Connections: Ø 5″ (Ø 127 mm)
- Insulation: Molded EPS
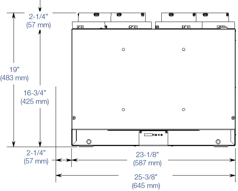
- Width: 23-1/8″ (587 mm)
- Height: 16-3/4″ (425 mm)
- Depth: 12-3/8″ (314 mm)
- Weight: 32 Ibs (15 kg); Shipping Weight: 40 Ibs (18 kg)
- Supply Damper: Motorized

Mounting
Suspended by chains with vibration-isolating springs Wall-mounting accessory available (P/N 608575)
Electrical requirement
120 VAC, 60Hz, 1.3A, 156W
- Cord Set: 48″ (1219 mm) with ground

Frost control
Automatic timed recirculation, four port Cycles controlled by a temperature sensor when the out oor temperature drops below 23°F (-5°C)
Filters
- Type: Two MERV6 filters (P/N 612409)
- Option: Two MERV13 filters (P/N 612410)

Blowers
Motorized impellers (backward-inclined)
Dimensions
FRONT VIEW

SIDE VIEW

TOP VIEW

Controls
Low voltage dry contact (24VAC) for interlock with heating/cooling systems.
- Digital Multifunction Control (# 611242) and (#611242-FC)

- LCD Electronic Multifunction Control (P/N 611227)

- 20/40/60 Minute Timer (P/N 611228)

- Speed Control (Low/Intermittent/High) (P/N 611229)

- Mode Control
(Recirculation) (P/N 611230)
Performance
| Supply Temperature | Net Airflow | Power Consumed (W) | Sensible Recovery Efficiency | Adjusted Sensible Recovery Efficiency | ||
°F | °C | CFM | L/s | |||
| 32 | 0 | 53 | 25 | 44 | 67% | 73% |
| 32 | 0 | 66 | 31 | 48 | 65% | 70% |
| 32 | 0 | 100 | 47 | 88 | 59% | 65% |
| -13 | -25 | 66 | 31 | 72 | 60% | 63% |

| Project: | Architect: | ||
| Location: | Engineer: | ||
| Model #: | Contractor: | ||
| Quantity: | Comments: | ||
| Submitted By: | |||
| Date: | |||
For more information, contact your Aldes sales advisor, visit aldes-na.com, call 1.800.255.7749, or find us on
©2022 American ALDES Ventilation Corporation and ©2022 ALDES Canada. H150-TQG_SPEC-0521. Aldes reserves the right to modify its products at any time to introduce new technologies.























