VENTS DVUE 300 HB Single Room Heat Recovery Air Handling Unit

SAFETY REQUIREMENTS
All user’s manual requirements as well as the provisions of all the applicable local and national construction, electrical, and technical norms and standards must be observed when installing and operating the unit.
Disconnect the unit from the power supply prior to any connection, servicing, maintenance, and repair operations.
Only qualified electricians with a work permit for electrical units up to 1000 V are allowed for installation. The present user’s manual should be carefully read before beginning works.
Check the unit for any visible damage of the impeller, the casing, and the grille before starting installation. The casing internals must be free of any foreign objects that can damage the impeller blades.
While mounting the unit, avoid compression of the casing! Deformation of the casing may result in motor jam and excessive noise.
Misuse of the unit and any unauthorised modifications are not allowed.
Do not expose the unit to adverse atmospheric agents (rain, sun, etc.).
Transported air must not contain any dust or other solid impurities, sticky substances, or fibrous materials.
Do not use the unit in a hazardous or explosive environment containing spirits, gasoline, insecticides, etc.
Do not close or block the intake or extract vents in order to ensure the efficient air flow.
Do not sit on the unit and do not put objects on it.
The information in this user’s manual was correct at the time of the document’s preparation. The Company reserves the right to modify the technical characteristics, design, or configuration of its products at any time in order to incorporate the latest technological developments. Never touch the unit with wet or damp hands.
Never touch the unit when barefoot.
If the supply cord is damaged, it must be replaced by the manufacturer, its service agent, or similarly qualified persons in order to avoid a safety hazard.
Ensure that the unit is switched off from the supply mains before removing the guard.
Precautions must be taken to avoid the back-flow of gases into the room from the open flue of gas or other fuel-burning appliances.
PURPOSE
The unit is designed to ensure continuous mechanical air exchange in houses, offices, hotels, cafes, conference halls, and other utility and public spaces as well as to recover the heat energy contained in the air extracted from the premises to warm up the filtered stream of intake air.
The unit is not intended for organizing ventilation in swimming pools, saunas, greenhouses, summer gardens, and other spaces with high humidity.
Due to the ability to save heating energy by means of energy recovery, the unit is an important element of energy-efficient premises. The unit is a component part and is not designed for stand-alone operation. It is rated for continuous operation.
Transported air must not contain any flammable or explosive mixtures, evaporation of chemicals, sticky substances, fibrous materials, coarse dust, soot and oil particles or environments favourable for the formation of hazardous substances (toxic substances, dust, pathogenic germs). THE UNIT SHOULD NOT BE OPERATED BY CHILDREN OR PERSONS WITH REDUCED PHYSICAL, MENTAL, OR SENSORY CAPACITIES, OR THOSE WITHOUT THE APPROPRIATE TRAINING.
THE UNIT MUST BE INSTALLED AND CONNECTED ONLY BY PROPERLY QUALIFIED PERSONNEL AFTER THE APPROPRIATE BRIEFING.
THE CHOICE OF UNIT INSTALLATION LOCATION MUST PREVENT UNAUTHORISED ACCESS BY UNATTENDED CHILDREN.
DELIVERY SET
NAME : NUMBER
- Air handling unit 1
- User’s manual 1
- Control panel 1
- Key to a service panel 1
- Packing box 1
DESIGNATION KEY

TECHNICAL DATA
The unit is designed for indoor application with the ambient temperature ranging from +1 °C up to +40 °C and relative humidity up to 60 % without condensation. In cold, damp rooms, there is a possibility of freezing or condensation inside and outside the casing.
In order to prevent condensation on the internal walls of the unit, it is necessary that the surface temperature of the casing is 2-3 °C above the dew point temperature of the transported air.
The unit should be operated continuously, and in cases where ventilation is not necessary, reduce the air flow of the fans to a minimum (20%). This will ensure a favorable indoor climate and reduce the amount of condensation inside the unit, which can damage electronic components. Never use the unit for dehumidification, for example, of new buildings.
The unit is rated as a Class I electrical appliance.
Hazardous parts access and water ingress protection rating:
IP20 for the unit connected to the air ducts
IP44 for the unit motors
The unit design is constantly being improved, thus some models may be slightly different from those described in this manual.
|
Model | DVUT 300 HB EC | DVUT 300 HBE EC | DVUT 300 HBE2 EC | DVUE 300 HB EC | DVUE 300 HBE EC | DVUE 300 HBE2 EC | DVUT 500 HB EC | DVUT 500 HBE EC | DVUT 500 HBE2 EC |
| Power supply voltage, 50(60) Hz [V] | 1~230 | ||||||||
| Unit power consumption excl. electric heater [W] | 125 | 230 | |||||||
| Preheater power consumption [W] | – | 1400 | 1400 | – | 1400 | 1400 | – | 1400 | 1400 |
| Reheater power consumption [W] | – | – | 1400 | – | – | 1400 | – | – | 2800 |
| Maximum unit current excl. electric heater [A] | 0.9 | 0.9 | 0.9 | 0.9 | 0.9 | 0.9 | 1.7 | 1.7 | 1.7 |
| Maximum unit current incl. electric heater(s) [A] | – | 7 | 13.1 | – | 7 | 13.1 | – | 7.8 | 20 |
| Maximum air flow [m3/h] | 320 | 320 | 320 | 320 | 320 | 320 | 580 | 580 | 580 |
| Noise level, 1 m [dBA] | 31 | 33 | |||||||
| Noise level, 3 m [dBA] | 21 | 23 | |||||||
| Transported air temperature [˚C] | -25…+40 | ||||||||
| Casing material | painted steel | ||||||||
| Insulation | 40 mm mineral wool | ||||||||
| Extract filter | G4 x 2 | ||||||||
| Supply filter | G4 + F8 | ||||||||
| Optional supply filter: material/size/filtration rate | H11+ F8 | ||||||||
| Connected duct diameter [mm] | 200 | 200 | 250 | ||||||
| Weight [kg] | 138±3% | 139±3% | 140±3% | 136±3% | 137±3% | 138±3% | 191±3% | 193±3% | 194±3% |
| Heat recovery efficiency [%] | 78-92 | 73-89 | 75-94 | ||||||
| Heat exchanger type | counter-flow | ||||||||
| Heat exchanger material | polystyrene | enthalpy | polystyrene | ||||||
| SEC class | A | ||||||||
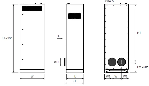
UNIT OVERALL DIMENSIONS [mm]

| Model | D | W | W1 | W2 | L | L1 | H | H1 | H2 |
| DVUT 300 HB EC DVUT 300 HBE EC DVUT 300 HBE2 EC |
200 |
620 |
230 |
195 |
470 |
520 |
1770 |
1476 |
294 |
| DVUE 300 HB EC DVUE 300 HBE EC DVUE 300 HBE2 EC | |||||||||
| DVUT 500 HB EC DVUT 500 HBE EC DVUT 500 HBE2 EC | 250 | 750 | 290 | 230 | 535 | 585 | 2170 | 1833 | 337 |
DESIGN AND OPERATING PRINCIPLE

The unit operation is as follows:
Warm extract air from the room flows into the unit and is cleaned in the extract filters. Then the air is moved through the heat exchanger and is exhausted outside through the air ducts with the exhaust fan. Cold fresh air from outside flows into the unit, where it is cleaned with the supply filters. Then the air flows through the heat exchanger and is moved to the room with the supply fan. Supply air is heated in the heat exchanger by transferring the heat energy of warm and humid extract air to the cold fresh air. The air flows are fully separated while flowing through the heat exchanger. Heat recovery minimizes heat losses, which reduces the cost of space heating in the cold season. The unit is a frame structure made of rigidly fixed steel panels. The panels are made of painted steel sheets and a galvanized steel sheets with a layer of mineral wool between for heat- and sound-insulation.
The service door enables access for maintenance and service operations. The power cables and grounding conductors must be routed through the cable glands to the terminal block located on the top casing panel. The wiring diagram for wiring of the air handling unit is shown on the inner side of the terminal box lid. The unit design enables installation of a bypass duct with a bypass damper to route the intake air stream without contacting the heat exchanger. The unit has three automatic heat exchanger freeze protection modes, depending on the unit model. Units without heater: the supply fan turns off in case of a freezing danger*. Units with a reheater and no preheater: the bypass system is activated in case of a freezing danger*. Units with a preheater: the preheating is turned on in case of a freezing danger*. * danger of freezing appears when the exhaust air temperature downstream of the heat exchanger is lower than +5 °C and intake air temperature upstream of the heat exchanger is lower than -3 °C. After increase of these temperatures the unit reverts to the previous operation mode. The supply and extract air temperature difference during heat recovery may lead to condensate formation in the units with a polystyrene heat exchanger. The condensate is collected in the drain pan and is removed outside to the exhaust air duct through the drain hose. No condensate is generated in the units with an enthalpy heat exchanger as the air moisture is transferred from one air stream to the other via the membrane. The unit has options for connection of a humidity sensor, CO2 sensor or VOC (air quality) sensor for automatic keeping of set humidity level, CO2 or VOC concentration in the room. Additional equipment (is not included in the delivery set, can be ordered separately)
- Humidity sensor. The unit with the installed humidity sensor maintains a set indoor humidity point. As the extract air humidity rises above the set point, the system automatically switches to the maximum speed. As the humidity drops down below the set point the unit returns to the previous mode.
- CO2 sensor. Measures the level of concentration of carbon dioxide in the room and generates a signal that controls the performance of the fan. Air capacity control based on CO2 concentration is an efficient energy saving solution.
- VOC sensor. Qualitative assessment of air saturation with contaminants (cigarette smoke, exhaled air, solvent and detergent vapours). The sensor sensitivity can be adjusted with regards to the expected maximum level of air pollution. Enables on-demand ventilation which results in considerable energy savings as air is exchanged only upon reaching the preset level of pollution.
READ THE USER’S MANUAL BEFORE INSTALLING THE UNIT.
Sufficient service access to the unit for maintenance or repair operations must be provided.
The recommended minimum distances from the unit to the walls are shown below.
Make sure the unit has no foreign objects inside before starting it up.
The unit is designed for mounting to a horizontal surface adjacent to the wall with the ready-made holes for the air ducts. The fixing brackets with a fastening hole enable fixation of the unit to the wall. The fixing brackets are not included in the delivery set.
| MODEL | A [mm] | B [mm] | D [mm] |
| DVUT 300 HB(E/E2) EC | 600 | 350 | 225 |
| DVUE 300 HB(E/E2) EC | |||
| DVUT 500 HB(E/E2) EC | 800 | 350 | 275 |
The levelling feet on the bottom of the unit ensure exact alignment of the unit during mounting.
For alignment of the unit loosen the nuts and adjust position of the support disc manually using a wrench. Then tighten the upper and the lower nut.
To attain the best performance of the unit and to minimise turbulence-induced air pressure losses, while mounting connect straight air duct sections to the unit spigots.
Minimum straight air duct length:

- Equal to 1 air duct diameter on intake side
- equal to 3 air duct diameters on outlet side
If the air ducts are too short or not connected at any unit spigot,
protect the unit inner parts from ingress of foreign objects by installing a protecting grille or other protecting device with mesh side width not more than 12.5 mm to prevent uncontrollable access to the fans.
Fasteners for the unit mounting are not included into delivery set and should be ordered separately.
While selecting appropriate fasteners consider material of the mounting surface as well as the weigh of the unit, refer to the technical data. For selection of the fasteners for unit mounting please refer to a service technician. The drain pan in the heat recovery section is equipped with a drain pipe for condensate removal.
Connect the pipe, the U-trap or U-trap of the other type (hydraulic lock) that is not included in the delivery set and a sewage system with metal, plastic or rubber connecting hoses. While laying the connection pipes provide the slope of minimum 3° downwards.
Before starting operation of the unit make sure that the water flows freely into the sewage collection system, otherwise condensed water may build up in the unit during the heat exchanger operation which, in turn, may cause equipment failure and water ingress into the premises. Fill up the U-trap with water before using it. When using other U-trap systems read the installation instruction to prepare the condensate drain system for operation.
For the units with a drain pump make sure that the flexible hose from the pump must is connected to the sewage system.
The drain pump provides timely pumping of the condensed water from the unit. 
THE CONDENSATE DRAIN SYSTEM IS DESIGNED FOR USE IN PREMISES WITH AMBIENT TEMPERATURE ABOVE 0 °C!
IF THE EXPECTED AIR TEMPERATURES ARE BELOW 0 °C, THE CONDENSATE DRAINAGE SYSTEM MUST BE EQUIPPED WITH HEAT INSULATION AND PREHEATING FACILITIES.
MOUNTING OF SENSORS FOR UNITS WITH A14 AUTOMATION (NOT INCLUDED IN THE DELIVERY SET)
The humidity sensor must be attached inside of the extract air duct.
Attach the sensor to the insert. Open the unit, remove the upper part of the protective casing and install the insert with the sensor on the bracket located on the wall of the exhaust duct. Connect the sensor connector to the connector with the cable from the control unit (installed by the manufacturer).
After connecting the humidity sensor, it is necessary to change the control configuration in the controller. Contact the product Seller for doing that.
The CO2 sensor must be installed in the exhaust air duct upstream of the heat exchanger. Open the unit, remove the upper part of the protective cover. Using a screwdriver remove the screw on the bracket holding the insert. Then use a small screwdriver to disconnect the connector. Disassemble the CO2 sensor in accordance with the instructions supplied with it and connect it in accordance with the provided diagram. Reassemble the sensor in the reverse order and install it on the bracket inside the unit.
Update the control configuration after connection of the humidity sensor. Contact the product Seller for doing that. 
MOUNTING OF SENSORS FOR UNITS WITH A21 AUTOMATION (NOT INCLUDED IN THE DELIVERY SET)
Brackets for installing humidity, CO2 and VOC sensors are located on the wall of the exhaust duct upstream of the heat exchanger.
The bracket 1 is designed for installing a humidity sensor or VOC sensor. The bracket 2 is designed for installing a humidity sensor or CO2 sensor.
To install the humidity sensor on the bracket 2, remove the insert by unscrewing the screw on the bracket.
Screw the humidity sensor to the desired bracket and connect the sensor connector to the cable connector from the control unit (installed by the manufacturer).
To install the CO2/VOC sensor, disassemble the sensor in accordance with the instructions supplied with it. To install the CO2 sensor, remove the insert by unscrewing the screw on the bracket.
Connect the sensor to the controller in accordance with the diagram in the User’s manual for the control system.
Reassemble the sensor in the reverse order and fasten it to the bracket.
CONNECTION TO POWER MAINS
POWER OFF THE POWER SUPPLY PRIOR TO ANY OPERATIONS WITH THE UNIT.
THE UNIT MUST BE CONNECTED TO POWER SUPPLY BY A QUALIFIED ELECTRICIAN.
THE RATED ELECTRICAL PARAMETERS OF THE UNIT ARE GIVEN ON THE MANUFACTURER’S LABEL.
ANY TAMPERING WITH THE INTERNAL CONNECTIONS IS PROHIBITED
AND WILL VOID THE WARRANTY. 
The unit is rated for connection to single-phase 1~230 V/50(60) Hz AC power mains.
The unit without a heater must be connected to power mains using insulated electric cables with a wire cross section of at least 2.5 mm2 and for the unit with a heater – 6 mm2. Recommended cable length is up to 50 m.
While selecting the required cable cross section consider the cable type, its maximum heating temperature, insulation, length and installation method.
The external power input must be equipped with an automatic circuit breaker built into the stationary wiring to open the electric circuit in case of overload or short-circuit. The circuit breaker installation place must provide quick access for emergency shutdown of the unit.
To access the terminal block, unscrew the screws of the control unit cover and remove it. DO NOT LAY THE CABLE IN CLOSE PROXIMITY TO THE CONTROL PANEL CABLE!
WHILE ROUTING THE CONTROL PANEL CABLE DO NOT COIL THE EXTRA LENGTH.Route the cables to the control unit through the sealed cabled glands in the unit.
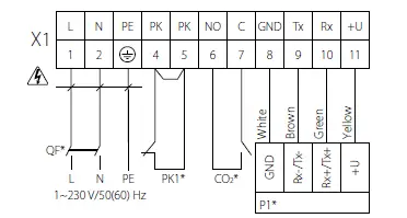
All the electric connections must be performed in compliance with external wiring diagram and wired through the terminal block X1 in the control unit. Extra control units may be optionally connected to the unit. Extra connected control units are not included in the delivery set and must be ordered separately.
EXTERNAL WIRING DIAGRAM FOR THE UNITS WITH A14 AUTOMATION

EXTERNAL WIRING DIAGRAM FOR THE UNITS WITH A21 AUTOMATION

| Designation | Name | Type | Note |
| PK1* | Contact from a fire alarm panel | 2 x 0.75 mm2 | Remove the jumper. |
| CCU* | Cooler control | 2 x 0.75 mm2 | Output parameters: terminals 9-10 – 3 A, 30 VDC/~250 VAC (dry contact). |
| P1* | External control panel (A22; A25) | 4 x 0.25 mm2 | Maximum cable length from the controller to the control panel — 10 m. |
| Boost* | Boost mode contacts On/Off | 2 x 0.75 mm2 |
TECHNICAL MAINTENANCE
DISCONNECT THE UNIT FROM POWER SUPPLY BEFORE ANY MAINTENANCE OPERATIONS!
MAKE SURE THE UNIT IS DISCONNECTED FROM POWER MAINS BEFORE REMOVING THE PROTECTION
Maintenance operations of the unit are required 3-4 times per year. Maintenance includes general cleaning of the unit and the following operations:
- Filter maintenance.
Clogged filters increase air resistance in the system and reduce supply air volume.
Clean the filters as required, but not less than 3-4 times per year.
Upon elapsing of the set time for filter replacement a signal for filter replacement or cleaning is generated. In this case clean or replace the filters and reset the operating hours.
The filter timer must be reset by a service engineer.
Filter cleaning with a vacuum cleaner is allowed.
After two consecutive cleanings the filters must be replaced.
For new filters of the type stated in the technical data, please contact to the unit Seller.
Steps for removal of the filters:- Disconnect the unit from power supply.
- Open the service door using the key.
CAUTION: For units with a heater, the supply filters are replaced after the unit has been switched off for two minutes! - Press slightly and pull the fixing latches to remove the supply filters.
- Pull the filters to remove. Install the filters in the reverse order.

- Heat exchanger maintenance (once per year).
Some dust may accumulate on the heat exchanger even in case of regular maintenance of the filters. Regular cleaning of the heat exchanger is required to maintain high heat recovery efficiency. To clean the heat exchanger, pull it out of the unit and clean it with compressed air or a vacuum cleaner. After cleaning install the heat exchanger back in the unit.
Steps for removal of the heat exchanger:- Disconnect the unit from power supply.
- Open the service door using the key.
- Remove the 6 screws that retain the upper protective housing and take it off.
- Loosen the hand screws to release the heat exchanger, then pull the heat exchanger to remove.
- After completion of maintenance install the heat exchanger in the reverse order.

- Fan maintenance (once a year).
Even in case of regular maintenance of the filters, some dust may accumulate inside the fans and reduce the fan performance and supply
air flow. Clean the fans with a soft cloth, brush or compressed air.
Do not use water, aggressive solvents or sharp objects as they may damage the impeller. - Maintenance of air intake devices (twice per year).
The supply grille may get clogged with leaves and other objects, which reduces the unit performance and supply air delivery. Check the supply grille twice per year and clean it as required. - Air duct system maintenance (every 5 years).
Even regular fulfilling of all the maintenance operations described above may not completely prevent dust accumulation in the air ducts, which reduces the unit performance. Duct maintenance means regular cleaning or replacement. - Control unit maintenance (as required).
The control unit is located inside of the unit casing. For accessing the control unit remove the fixing screws on the panel and remove the control unit lid.
TROUBLESHOOTING
| TROUBLE | POSSIBLE REASONS | Troubleshooting |
| The fan(s) do(es) not get started during activation of the unit. | No power supply. | Make sure the power supply line is connected correct. Otherwise troubleshoot a connection error. |
| Motor or impeller clogging. | Turn the unit off. Troubleshoot the fan clogging. Clean the blades. Restart the unit. | |
| System failure. | Turn the unit off. Contact the product Seller. | |
| Automatic circuit breaker tripping after the unit start- up. | Overcurrent as a result of short circuit in the electric circuit. | Turn the unit off. Contact the product Seller. |
|
Low air flow. | Low set fan speed. | Set higher speed. |
| Clogged filters, fans or heat exchanger. | Clean or replace the filters. Clean the fans and the heat exchanger. | |
| Clogged or damaged air ducts, diffusers, louver shutters, grilles or other ventilation system components. | Clean or replace the air ducts, diffusers, louver shutters, grilles or other ventilation system components. | |
| Low supply air temperature. | Clogged extract filter. | Clean or replace the extract filter. |
|
Noise, vibration. | The impeller(s) is soiled. | Clean the impeller(s). |
| The fan or casing screw connection is loose. | Tighten the screw connection of the fans or the casing all the way. | |
| No anti-vibration connectors on air duct pipe flanges. | Install anti-vibration connectors. | |
| Water leakage for the CIVIC EC LB(E/E2) 300 models. | Drain lime is clogged, damaged or installed incorrect. | Clean the drain line. Check the drain line slope. Make sure that the U-trap is filled with water and that drain hoses are frost protected. |
| The alarm indicator glows on the control panel (for the units with A14 control panel). | Communication loss (cable or wire breakdown) between the control panel and the ventilation unit. | Check the power and connection cables and wires between the control panel and the air handling unit for integrity using a multimeter. If unassisted troubleshooting fails, please contact the product Seller. |
| Wrong cable installation. | Make sure the cable installation is completed according to the requirements stated in the user’s manual for the control panel. Otherwise install the cable as required. | |
| System failure. | Contact the product Seller. |
STORAGE AND TRANSPORTATION REGULATIONS
- Store the unit in the manufacturer’s original packaging box in a dry closed ventilated premise with temperature range from +5 ˚С to +40 ˚С and relative humidity up to 70 %.
- Storage environment must not contain aggressive vapors and chemical mixtures provoking corrosion, insulation, and sealing deformation.
- Use suitable hoist machinery for handling and storage operations to prevent possible damage to the unit.
- Follow the handling requirements applicable for the particular type of cargo.
- The unit can be carried in the original packaging by any mode of transport provided proper protection against precipitation and mechanical damage. The unit must be transported only in the working position.
- Avoid sharp blows, scratches, or rough handling during loading and unloading.
- Prior to the initial power-up after transportation at low temperatures, allow the unit to warm up at operating temperature for at least
3- 4 hours.
MANUFACTURER’S WARRANTY
The product is in compliance with EU norms and standards on low voltage guidelines and electromagnetic compatibility. We hereby declare that the product complies with the provisions of Electromagnetic Compatibility (EMC) Directive 2014/30/EU of the European Parliament and of the Council, Low Voltage Directive (LVD) 2014/35/EU of the European Parliament and of the Council and CE-marking Council Directive 93/68/EEC. This certificate is issued following test carried out on samples of the product referred to above.
The manufacturer hereby warrants normal operation of the unit for 24 months after the retail sale date provided the user’s observance of the transportation, storage, installation, and operation regulations. Should any malfunctions occur in the course of the unit operation through the Manufacturer’s fault during the guaranteed period of operation, the user is entitled to get all the faults eliminated by the manufacturer by means of warranty repair at the factory free of charge. The warranty repair includes work specific to elimination of faults in the unit operation to ensure its intended use by the user within the guaranteed period of operation. The faults are eliminated by means of replacement or repair of the unit components or a specific part of such unit component.
The warranty repair does not include:
- routine technical maintenance
- unit installation/dismantling
- unit setup
To benefit from warranty repair, the user must provide the unit, the user’s manual with the purchase date stamp, and the payment paperwork certifying the purchase. The unit model must comply with the one stated in the user’s manual. Contact the Seller for warranty service.
The manufacturer’s warranty does not apply to the following cases:
- User’s failure to submit the unit with the entire delivery package as stated in the user’s manual including submission with missing component parts previously dismounted by the user.
- Mismatch of the unit model and the brand name with the information stated on the unit packaging and in the user’s manual.
- User’s failure to ensure timely technical maintenance of the unit.
- External damage to the unit casing (excluding external modifications as required for installation) and internal components caused by the user.
- Redesign or engineering changes to the unit.
- Replacement and use of any assemblies, parts and components not approved by the manufacturer.
- Unit misuse.
- Violation of the unit installation regulations by the user.
- Violation of the unit control regulations by the user.
- Unit connection to power mains with a voltage different from the one stated in the user’s manual.
- Unit breakdown due to voltage surges in power mains.
- Discretionary repair of the unit by the user.
- Unit repair by any persons without the manufacturer’s authorization.
- Expiration of the unit warranty period.
- Violation of the unit transportation regulations by the user.
- Violation of the unit storage regulations by the user.
- Wrongful actions against the unit committed by third parties.
- Unit breakdown due to circumstances of insuperable force (fire, flood, earthquake, war, hostilities of any kind, blockades).
- Missing seals if provided by the user’s manual.
- Failure to submit the user’s manual with the unit purchase date stamp.
- Missing payment paperwork certifying the unit purchase.
FOLLOWING THE REGULATIONS STIPULATED HEREIN WILL ENSURE A LONG AND TROUBLE-FREE OPERATION OF THE UNIT.
USER’S WARRANTY CLAIMS SHALL BE SUBJECT TO REVIEW ONLY UPON PRESENTATION OF THE UNIT, THE PAYMENT DOCUMENT AND THE USER’S MANUAL WITH THE PURCHASE DATE STAMP.
CERTIFICATE OF ACCEPTANCE
| Unit Type | Single-room heat recovery air handling unit |
| Model | |
| Serial Number | |
| Manufacture Date | |
| Quality Inspector’s Stamp |
SELLER INFORMATION
| Seller | |
| Address | |
| Phone Number | |
| Purchase Date | |
| This is to certify acceptance of the complete unit delivery with the user’s manual. The warranty terms are acknowledged and accepted. | |
| Customer’s Signature | |
INSTALLATION CERTIFICATE
| The unit is installed pursuant to the requirements stated in the present user’s manual. | ||
| Company name | ||
| Address | ||
| Phone Number | ||
| Installation Technician’s Full Name | ||
| Installation Date: | Signature: | |
| The unit has been installed in accordance with the provisions of all the applicable local and national construction, electrical and technical codes and standards. The unit operates normally as intended by the manufacturer. | ||
| Signature: | ||
WARRANTY CARD
| Unit Type | Single-room heat recovery air handling unit |
| Model | |
| Serial Number | |
| Manufacture Date | |
| Purchase Date | |
| Warranty Period | |
| Seller |





















