VENTS VUT Series Heat Recovery Air Handling Unit

- This user’s manual is a main operating document intended for technical, maintenance, and operating staff.
- The manual contains information about the purpose, technical details, operating principle, design, and installation of the VUT 350/500/530/600/800/1000/1500/2000 EH unit (-s) and all of its (their) modifications.
- Technical and maintenance staff must have theoretical and practical training in the field of ventilation systems and should be able to work in accordance with workplace safety rules as well as construction norms and standards applicable in the territory of the country. The information in this user’s manual is correct at the time of the document’s preparation.
- The Company reserves the right to modify the technical characteristics, design, or configuration of its products at any time in order to incorporate the latest technological developments.
- No part of this publication may be reproduced, stored in a retrieval system, or transmitted, in any form or by any means in any information search system or translated into any language in any form without the prior written permission of the Company.
SAFETY REQUIREMENTS
- Please read the user’s manual carefully prior to installing and operating the unit.
- All user’s manual requirements as well as the provisions of all the applicable local and national construction, electrical, and technical norms and standards must be observed when installing and operating the unit.
- The warnings contained in the user’s manual must be considered most seriously since they contain vital personal safety information.
- Failure to follow the rules and safety precautions noted in this user’s manual may result in an injury or unit damage.
- After a careful reading of the manual, keep it for the entire service life of the unit.
- While transferring the unit control, the user’s manual must be turned over to the receiving operator.
UNIT INSTALLATION AND OPERATION SAFETY PRECAUTIONS


THE PRODUCT MUST BE DISPOSED SEPARATELY AT THE END OF ITS SERVICE LIFE. DO NOT DISPOSE THE UNIT AS UNSORTED DOMESTIC WASTE.
PURPOSE
- The unit is designed to ensure continuous mechanical air exchange in houses, offices, hotels, cafes, conference halls, and other utility and public spaces as well as to recover the heat energy contained in the air extracted from the premises to warm up the filtered stream of intake air.
- The unit is not intended for organizing ventilation in swimming pools, saunas, greenhouses, summer gardens, and other spaces with high humidity.
- Due to the ability to save heating energy by means of energy recovery, the unit is an important element of energy-efficient premises. The unit is a component part and is not designed for stand-alone operation.
- It is rated for continuous operation.
- Transported air must not contain any flammable or explosive mixtures, evaporation of chemicals, sticky substances, fibrous materials, coarse dust, soot and oil particles or environments favourable for the formation of hazardous substances (toxic substances, dust, pathogenic germs).
THE UNIT SHOULD NOT BE OPERATED BY CHILDREN OR PERSONS WITH REDUCED PHYSICAL, MENTAL, OR SENSORY CAPACITIES, OR THOSE WITHOUT THE APPROPRIATE TRAINING.
THE UNIT MUST BE INSTALLED AND CONNECTED ONLY BY PROPERLY QUALIFIED PERSONNEL AFTER THE APPROPRIATE BRIEFING.
THE CHOICE OF UNIT INSTALLATION LOCATION MUST PREVENT UNAUTHORIZED ACCESS BY UNATTENDED CHILDREN.
DELIVERY SET
| Name | Number |
| Air handling unit | 1 pc. |
| User’s manual | 1 pc. |
| Control panel user’s manual | 1 pc. |
| Control panel | 1 pc. |
| Packing box | 1 pc. |
DESIGNATION KEY

TECHNICAL DATA
The unit is designed for indoor application with the ambient temperature ranging from +1 °C up to +40 °C and relative humidity up to 80 %.
In order to prevent condensation on the internal walls of the units, it is necessary that the surface temperature of the casing is 2-3 °C higher than the dew point temperature of the transported air.
The unit is rated as a Class I electrical appliance.
Hazardous parts access and water ingress protection rating:
• IP22 for the unit connected to the air ducts
• IP44 for the unit motors
The unit design is constantly being improved, thus some models may be slightly different from those described in this manual.
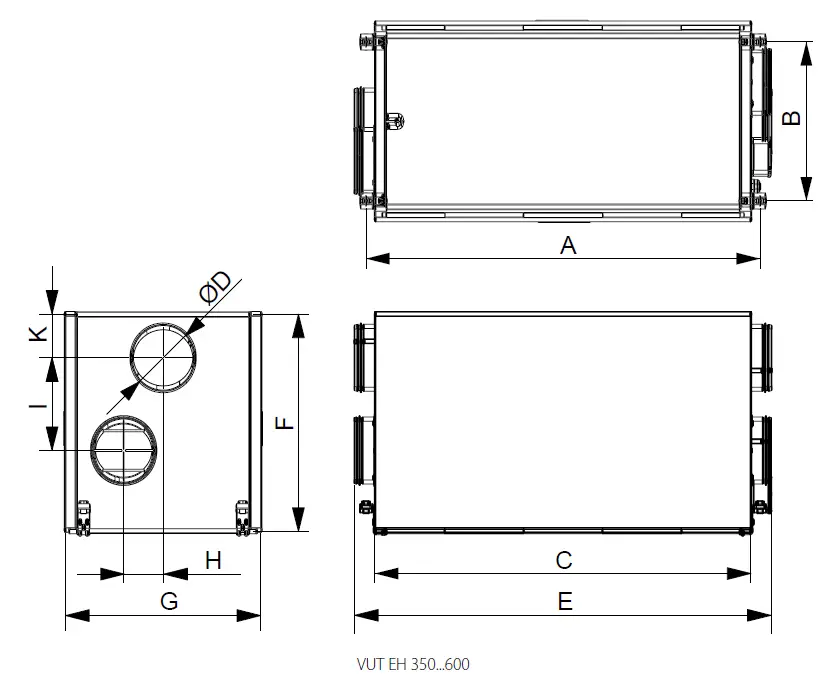
OVERALL DIMENSIONS OF THE UNIT [MM]

| Model | Dimensions [mm] | |||||||||
| A | B | C | D | E | F | G | H | I | K | |
| VUT 350 EH | 996 | 403 | 954 | 124 | 1060 | 554 | 500 | 100 | 230 | 111 |
| VUT 500 EH | 996 | 403 | 954 | 149 | 1060 | 554 | 500 | 100 | 230 | 111 |
| VUT 530 EH | 996 | 403 | 954 | 159 | 1060 | 554 | 500 | 100 | 230 | 111 |
| VUT 600 EH | 996 | 403 | 954 | 199 | 1060 | 554 | 500 | 100 | 230 | 111 |

| Model | Dimensions [mm] | |||||||||||
| A | B | C | D | E | F | G | H | I | K | L | M | |
| VUT 800 EH | 1117 | 460 | 1071 | 249 | 1176 | 832 | 698 | 613 | 80 | 126 | 154 | 386 |
| VUT 1000 EH | 1117 | 460 | 1071 | 249 | 1176 | 832 | 698 | 613 | 80 | 126 | 154 | 386 |
| VUT 1500 EH | 1394 | 581 | 1345 | 314 | 1447 | 947 | 814 | 842 | 200 | 394 | 201 | 320 |
| VUT 2000 EH | 1394 | 581 | 1345 | 314 | 1447 | 947 | 814 | 842 | 200 | 394 | 201 | 320 |
TECHNICAL DATA
|
Model | VUT 350 EH | VUT 500 EH | VUT 530 EH | VUT 600 EH | VUT 800 EH | VUT 1000 EH | VUT 1500 EH | VUT 2000 EH | |
| Voltage [V/50 Hz] | 1~230 | 3~400 | |||||||
| Maximum fan power [W] | 2 pcs. х 130 | 2 pcs. х 150 | 2 pcs. х 150 | 2 pcs. х 195 | 2 pcs. х 245 | 2 pcs. х 410 | 2 pcs. х 490 | 2 pcs. х 650 | |
| Maximum fan current [A] | 2 pcs. х 0.60 | 2 pcs. х 0.66 | 2 pcs. х 0.66 | 2 pcs. х 0.86 | 2 pcs. х 1.08 | 2 pcs. х 1.8 | 2 pcs. х 2.15 | 2 pcs. х 2.84 | |
| Electric heater power [kW] | 3.0 | 3.0 | 4.0 | 4.0 | 9.0 | 9.0 | 18.0 | 18.0 | |
| Electric heater current [A] | 13 | 13 | 17.4 | 17.4 | 13 | 13 | 26 | 26 | |
| Total unit power [kW] | 3.26 | 3.3 | 4.3 | 4.39 | 9.49 | 9.8 | 18.98 | 19.30 | |
| Total unit current [A] | 14.2 | 14.32 | 18.72 | 19.1 | 15.16 | 16.6 | 30.3 | 31.7 | |
| Max. air flow [m3/h] | 350 | 500 | 530 | 600 | 800 | 1200 | 1750 | 2200 | |
| RPM [min-1] | 1150 | 1100 | 1100 | 1350 | 1650 | 1850 | 1100 | 1150 | |
| Sound pressure level at 3 m distance [dBA] | 24-45 | 28-47 | 28-47 | 32-48 | 48 | 60 | 49 | 65 | |
| Transported air temperature [°С] | -25… +55 | -25…+50 | -25… +50 | -25…+55 | -25…+45 | -25…+40 | -25…+45 | -25…+40 | |
| Casing material | Aluzinc | ||||||||
| Insulation | 25 mm mineral wool | ||||||||
| Filter: | extract | G4 | |||||||
| supply | G4 | ||||||||
| Connected air duct diameter [mm] | Ø 125 | Ø 150 | Ø 160 | Ø 200 | Ø 250 | Ø 315 | |||
| Weight [kg] | 45 | 49 | 49 | 54 | 85 | 96 | |||
| Heat recovery efficiency | Up to 78 | Up to 88 | Up to 88 | Up to 85 | Up to 78 | Up to 78 | Up to 77 | Up to 77 | |
| Heat exchanger type | Cross-flow | ||||||||
| Heat exchanger material | Polystyrene | ||||||||
DESIGN AND OPERATING PRINCIPLE
The unit has the following operating principle:
- Warm stale extract air from the room flows to the unit, where it is filtered, then air flows through the heat exchanger and is exhausted outside by the extract fan. Clean cold air from outside is moved to the supply filter. Then filtered air flows through the heat exchanger and is moved to the room with the supply fan.
- Heat energy of warm extract air is transferred to clean intake fresh air from outside and warms it up.
- Heat recovery minimizes thermal energy losses and space heating expenses in cold seasons.
- The unit is a frame structure consisting of six rigidly fixed sandwich panels 25 mm (for VUT 350 … 600 EH) and 50 mm thick (for VUT 800 … 2000 EH). The three-layer sandwich panels consist of two galvanized sheets with heat and sound insulation material (mineral wool) between them.
- The air handling unit is equipped with quick-detachable specially sealed service panels for scheduled repair and maintenance operations. The terminal block is located in the terminal box (for VUT 350…600 EH) or in the control unit (for VUT 800…2000 EH).
- Connection of the power and ground cables to the terminal block is carried out through the sealed lead-ins.

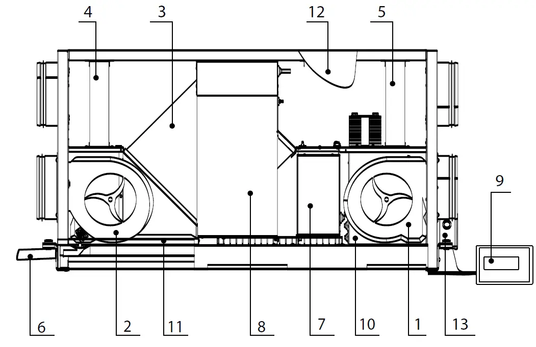
VUT 350…600 EH

1. Supply fan
2. Extract fan
3. Heat exchanger
4. Supply air lter
5. Extract air lter
6. Drain pipe
7. Electric heater
8. Bypass
9. Wall control panel
10. Control unit
11. Drain pan
12. Quick-detachable panels
13. Terminal box (VUT 350…600 EH)
VUT 800…2000 EH

The basic complete set includes:
- Wall control panel that is connected via the data cable to the integrated control system in the unit.
- Supply and extract fans with forward curved blades and maintenance-free external rotor motors with built-in overheating protection.
- Plate cross flow heat exchanger.
- Electric heater, equipped with overheating protection: two integrated thermal switches, one of safety type with response temperature +50 °C and automatic reset and another of emergency type with response temperature +90 °C and manual reset.
- Supply filter (fine filtering G4 ).
- Extract filter (coarse filtering G4).
MOUNTING AND SET-UP
The unit may be suspended on threaded rods that are fixed inside dowels or may be rigidly fixed on a horizontal plane.

While mounting the unit provide enough access for maintenance or repair work.

Safety precautions
The unit must be mounted to a rigid and stable structure. See technical data and unit weight data. The unit must be suspended using anchor bolts.
Before starting mounting check that the mounting structure has sufficient loading capacity for the unit weight. Otherwise reinforce the mounting location with beams or similar elements. Then install the threaded rods fixed in threaded dowels installed in the ceiling.
If the construction strength or surface is not rigid enough, it can resonate with the unit and create abnormal noise and vibration.
While mounting the unit provide enough service space and an access door in the ceiling for inspection and maintenance of the filters, heat exchanger and fans. One access door is required for each unit. More detailed information is given on the dimensional drawing.
Install M8 anchor bolts before proceeding with the installation. Insert the anchor bolt into the suspended mounting opening and secure it with nuts and washers.
Before mounting make sure the casing does not contain any foreign objects (e.g. foil, paper).
If the bolts used for the unit mounting are too short, the unit can generate abnormal noise and resonate with the ceiling.
If the abnormal noise is generated at the spiral air duct joint replace the spiral air duct with a flexible one to prevent resonance.
The precautionary measures described above should eliminate the problem of resonance. Flexible anti-vibration connectors are another alternative for dealing with resonance.
To attain the best performance of the unit, while mounting connect a straight 1 m duct section on both sides of the unit.
The unit must be equipped with a protecting grille or other protecting device with mesh width not more than 12.5 mm to prevent uncontrollable access to the fans.

Do not connect several drain pipes from several air handling units to one U-trap!
Direct condensate drainage with no connection to the drain system is not allowed.
CONNECTION TO POWER MAINS
- POWER OFF THE POWER SUPPLY PRIOR TO ANY OPERATIONS WITH THE UNIT.
THE UNIT MUST BE CONNECTED TO POWER SUPPLY BY A QUALIFIED ELECTRICIAN.
THE RATED ELECTRICAL PARAMETERS OF THE UNIT ARE GIVEN ON THE MANUFACTURER’S LABEL. - ANY TAMPERING WITH THE INTERNAL CONNECTIONS IS PROHIBITED AND WILL VOID THE WARRANTY.
- The unit is rated for connection to 1~230 V/50 Hz or 3~400 V/50 Hz power mains.
- The unit must be connected to power mains using insulated electric conductors (cables, wires). The actual wire cross section selection must be based on the maximum load current, maximum conductor temperature depending on the wire type, insulation, length and installation method.
- The external power input must be equipped with an automatic circuit breaker built into the stationary wiring to open the electric circuit in case of overload or short-circuit. The circuit breaker installation place must provide quick access for emergency shutdown of the unit. The trip current of the automatic circuit breaker QF must exceed the maximum current consumption of the unit (refer to the technical data table). The recommended trip current of the circuit breaker is the next current in the standard trip current row following the maximum current of the connected unit. The automatic circuit breaker is not included in the delivery set.

TECHNICAL MAINTENANCE
Maintenance operations of the unit are required 3-4 times per year.
- Filter maintenance (3-4 times per year).
Dirty filters increase air resistance in the system and reduce supply air volume. The filters require cleaning not less than 3-4 times per year.
Clean the filter with a vacuum cleaner or replace it with a new one. For new filters contact the Seller. To remove the filters, unscrew the screws securing the front panel and remove it. - Heat exchanger maintenance (once per year).
Some dust may accumulate on the heat exchanger even in case of regular maintenance of the filters. To maintain the high heat recovery efficiency, regular cleaning is required. To clean the heat exchanger, remove it (after removing the front panel) from the unit and clean the heat exchanger by using compressed air or a vacuum cleaner. After cleaning, re-install the heat exchanger into the unit. - Fan maintenance (once per year).
Even in case of regular maintenance of the filters, some dust may accumulate inside the fans and reduce the fan performance and supply air flow. Clean the fans with a soft cloth, brush, or using compressed air. Do not use water, aggressive solvents, or sharp objects as they may damage the impeller. - Condensate drainage system maintenance (4 times per year).
The condensate drainage system can be clogged by particles from the extract air. Check the drain line operation by filling the drain pan with water, clean the U-trap and the drain line, if necessary. - Supply air flow control (twice per year).
The supply duct grille may get clogged with leaves and other objects reducing the unit performance and supply air delivery. Check the supply grille twice per year and clean it as required. - Ductwork system maintenance (once in 5 years).
Even regular fulfilling of all the maintenance operations prescribed above may not completely prevent dirt accumulation in the air ducts, which leads to air pollution and reduces the unit capacity. Duct maintenance means regular cleaning or replacement. - Control unit maintenance (if necessary).
The control unit is positioned inside the unit casing. To access the control unit, remove the fixing screws on the panel and remove the control unit lid.
TROUBLESHOOTING
| Problem | Possible reasons | Troubleshooting |
|
The fan(s) does not start when the unit is on. | No power supply. | Make sure the power supply line is connected correctly, otherwise troubleshoot the connection error. |
| The motor is jammed, the impeller blades are soiled. | Turn the unit off. Troubleshoot the motor jam and the impeller clogging. Clean the blades. Restart the unit. | |
| Alarm in the system. | Turn the unit off. Contact the Seller. | |
| Automatic circuit breaker trips following the unit turning on. | Overcurrent as a result of short circuit in the electric circuit. | Turn the unit off. Contact the Seller. |
|
Low air flow. | Low set fan speed. | Set higher speed. |
| The filters and the fans are clogged, the heat exchanger is clogged. | Clean or replace the filters, clean the fans, and the heat exchanger. | |
| Ventilation system elements (air ducts, diffusers, louver shutters, grilles) are clogged, damaged, or closed. | Clean or replace the ventilation system elements, such as air ducts, diffusers, louver shutters, grilles. | |
| Cold supply air. | The extract filter is soiled. | Clean or replace the extract filter. |
|
Noise, vibration. | The impeller(s) is soiled. | Clean the impeller(s). |
| The fan or casing screw connection is loose. | Tighten the screw connection of the fans or the casing all the way. | |
| No anti-vibration connectors on air duct pipe flanges. | Install anti-vibration connectors. | |
| Water leakage (only for the VUT EH EC units). | The drainage system is soiled, damaged, or installed incorrectly. | Clean the drain line. Check the drain line slope angle. Make sure that the U-trap is filled with water and the drain pipes are frost protected. |
STORAGE AND TRANSPORTATION REGULATIONS
- Store the unit in the manufacturer’s original packaging box in a dry closed ventilated premise with temperature range +5…+40 ˚С and relative humidity up to 70 %.
- Storage environment must not contain aggressive vapors and chemical mixtures provoking corrosion, insulation, and sealing deformation.
- Use suitable hoist machinery for handling and storage operations to prevent possible damage to the unit.
- Follow the handling requirements applicable for the particular type of cargo.
- The unit can be carried in the original packaging by any mode of transport provided proper protection against precipitation and mechanical damage. The unit must be transported only in the working position.
- Avoid sharp blows, scratches, or rough handling during loading and unloading.
- Prior to the initial power-up after transportation at low temperatures, allow the unit to warm up at operating temperature for at least 3-4 hours.
MANUFACTURER’S WARRANTY
The product is in compliance with EU norms and standards on low voltage guidelines and electromagnetic compatibility. We hereby declare that the product complies with the provisions of Electromagnetic Council Directive 2014/30/EU, Low Voltage Directive 2014/35/EU and CE-marking Directive 93/68/EEC. This certificate is issued following test carried out on samples of the product referred to above. The manufacturer hereby warrants normal operation of the unit for 24 months after the retail sale date provided the user’s observance of the transportation, storage, installation, and operation regulations. Should any malfunctions occur in the course of the unit operation through the Manufacturer’s fault during the guaranteed period of operation, the user is entitled to get all the faults eliminated by the manufacturer by means of warranty repair at the factory free of charge. The warranty repair includes work specific to elimination of faults in the unit operation to ensure its intended use by the user within the guaranteed period of operation. The faults are eliminated by means of replacement or repair of the unit components or a specific part of such unit component.
The warranty repair does not include:
- routine technical maintenance
- unit installation/dismantling
- unit setup
To benefit from warranty repair, the user must provide the unit, the user’s manual with the purchase date stamp, and the payment paperwork certifying the purchase. The unit model must comply with the one stated in the user’s manual. Contact the Seller for warranty service.
The manufacturer’s warranty does not apply to the following cases:
- User’s failure to submit the unit with the entire delivery package as stated in the user’s manual including submission with missing component parts previously dismounted by the user.
- Mismatch of the unit model and the brand name with the information stated on the unit packaging and in the user’s manual.
- User’s failure to ensure timely technical maintenance of the unit.
- External damage to the unit casing (excluding external modifications as required for installation) and internal components caused by the user.
- Redesign or engineering changes to the unit.
- Replacement and use of any assemblies, parts and components not approved by the manufacturer.
- Unit misuse.
- Violation of the unit installation regulations by the user.
- Violation of the unit control regulations by the user.
- Unit connection to power mains with a voltage different from the one stated in the user’s manual.
- Unit breakdown due to voltage surges in power mains.
- Discretionary repair of the unit by the user.
- Unit repair by any persons without the manufacturer’s authorization.
- Expiration of the unit warranty period.
- Violation of the unit transportation regulations by the user.
- Violation of the unit storage regulations by the user.
- Wrongful actions against the unit committed by third parties.
- Unit breakdown due to circumstances of insuperable force (fire, flood, earthquake, war, hostilities of any kind, blockades).
- Missing seals if provided by the user’s manual.
- Failure to submit the user’s manual with the unit purchase date stamp.
- Missing payment paperwork certifying the unit purchase.
FOLLOWING THE REGULATIONS STIPULATED HEREIN WILL ENSURE A LONG AND TROUBLE-FREE OPERATION OF THE UNIT.
USER’S WARRANTY CLAIMS SHALL BE SUBJECT TO REVIEW ONLY UPON PRESENTATION OF THE UNIT, THE PAYMENT DOCUMENT AND THE USER’S MANUAL WITH THE PURCHASE DATE STAMP.
CERTIFICATE OF ACCEPTANCE
| Unit Type | Heat recovery air handling unit |
| Model | VUT EH |
| Serial Number | |
| Manufacture Date | |
| Quality Inspector’s Stamp |
SELLER INFORMATION
| Seller | |
| Address | |
| Phone Number | |
| Purchase Date | |
| This is to certify acceptance of the complete unit delivery with the user’s manual. The warranty terms are acknowledged and accepted. | |
| Customer’s Signature | |
INSTALLATION CERTIFICATE
| The VUT EH unit is installed pursuant to the requirements stated in the present user’s manual. | ||
| Seller | ||
| Address | ||
| Phone Number | ||
| Installation Technician’s Full Name | ||
| Installation Date: | Signature: | |
| The unit has been installed in accordance with the provisions of all the applicable local and national construction, electrical and technical codes and standards. The unit operates normally as intended by the manufacturer. | ||
| Signature: | ||
WARRANTY CARD
| Unit Type | Heat recovery air handling unit |
| Model | VUT EH |
| Serial Number | |
| Manufacture Date | |
| Purchase Date | |
| Warranty Period | |
| Seller |





















