VENTS DVUT 1000 PB EC V.2 Single-Room Air Handling Unit

This user’s manual is a main operating document intended for technical, maintenance, and operating staff.
The manual contains information about purpose, technical details, operating principle, design, and installation of the DVUT 1000 PB EC V.2 unit and all its modifications.
Technical and maintenance staff must have theoretical and practical training in the field of ventilation systems and should be able to work in accordance with workplace safety rules as well as construction norms and standards applicable in the territory of the country.
SAFETY REQUIREMENTS
This unit is not intended for use by persons (including children) with reduced physical, sensory or mental capabilities, or lack of experience and knowledge, unless they have been given supervision or instruction concerning use of the unit by a person responsible for their safety. Children should be supervised to ensure that they do not play with the unit.
This appliance can be used by children aged from 8 years and above and persons with reduced physical, sensory or mental capabilities or lack of experience and knowledge if they have been given supervision or instruction concerning use of the appliance in a safe way and understand the hazards involved.
Cleaning and user maintenance shall not be made by children without supervision. Children shall not play with the appliance.
Ensure that the unit is switched off from the supply mains before removing the guard.
Precautions must be taken to avoid the back-flow of gases into the room from the open flue of gas or other fuel-burning appliances.
The appliance may adversely affect the safe operation of appliances burning gas or other fuels (including those in other rooms) due to back flow of combustion gases. These gases can potentially result in carbon monoxide poisoning. After installation of the unit the operation of flued gas appliances should be tested by a competent person to ensure that back flow of combustion gases does not occur.
Do not attach the product to the support using glue or adhesives. Use only the fastening method specified in the «User’s manual».
Connection to the mains must be made through a disconnecting device, which is integrated into the fixed wiring system in accordance with the wiring rules for design of electrical units, and has a contact separation in all poles that allows for full disconnection under overvoltage category III conditions.
All operations described in this manual must be performed by qualified personnel only, properly trained and qualified to install, make electrical connections and maintain ventilation units.
Do not attempt to install the product, connect it to the mains, or perform maintenance yourself. This is unsafe and impossible without special knowledge.
Disconnect the power supply prior to any operations with the unit.
All user’s manual requirements as well as the provisions of all the applicable local and national construction, electrical, and technical norms and standards must be observed when installing and operating the unit.
Disconnect the unit from the power supply prior to any connection, servicing, maintenance, and repair operations.
Connection of the unit to power mains is allowed by a qualified electrician with a work permit for the electric units up to 1000 V after careful reading of the present user’s manual.
Check the unit for any visible damage of the impeller, the casing, and the grille before starting installation. The casing internals must be free of any foreign objects that can damage the impeller blades.
While mounting the unit, avoid compression of the casing! Deformation of the casing may result in motor jam and excessive noise.
Misuse of the unit and any unauthorized modifications are not allowed. Do not expose the unit to adverse atmospheric agents (rain, sun, etc.).
Transported air must not contain any dust or other solid impurities, sticky substances, or fibrous materials.
Do not use the unit in a hazardous or explosive environment containing spirits, gasoline, insecticides, etc.
Do not close or block the intake or extract vents in order to ensure the efficient air flow.
Do not sit on the unit and do not put objects on it.
The information in this user’s manual was correct at the time of the document’s preparation. The Company reserves the right to modify the technical characteristics, design, or configuration of its products at any time in order to incorporate the latest technological developments.
Never touch the unit with wet or damp hands. Never touch the unit when barefoot.
BEFORE INSTALLING ADDITIONAL EXTERNAL DEVICES, READ THE RELEVANT USER MANUALS.
THE PRODUCT MUST BE DISPOSED SEPARATELY AT THE END OF ITS SERVICE LIFE.
DO NOT DISPOSE THE UNIT AS UNSORTED DOMESTIC WASTE.
PURPOS
and public spaces as well as to recover the heat energy contained in the air extracted from the premises to warm up the filtered stream of intake air.
The unit is not intended for organizing ventilation in swimming pools, saunas, greenhouses, summer gardens, and other spaces with high humidity.
Due to the ability to save heating energy by means of energy recovery, the unit is an important element of energy-efficient premises. The unit is a component part and is not designed for stand-alone operation. It is rated for continuous operation.
Transported air must not contain any flammable or explosive mixtures, evaporation of chemicals, sticky substances, fibrous materials, coarse dust, soot and oil particles or environments favorable for the formation of hazardous substances (toxic substances, dust, pathogenic germs).
DELIVERY SET
| NAME | NUMBER |
| Air handling unit | 1 pc |
| User’s manual | 1 pc |
| Control panel | 1 pc |
| User’s manual (control panel) | 3 pcs. |
| Service door key | 1 pc |
| Mounting bracket | 1 pc |
| Wi-Fi antenna | 4 pcs |
| L-bracket with fasteners | 2 pcs. |
| Mounting screw with a washer | 1 pc |
| Set of decorative panels with plugs and fasteners | 1 pc |
| Mounting template | 1 pc |
| Packing box | 1 pc |
DESIGNATION KEY

TECHNICAL DATA
The unit is designed for indoor application with the ambient temperature ranging from +1 °C up to +40 °C and relative humidity up to 60 % without condensation. In cold, damp rooms, there is a possibility of freezing or condensation inside and outside the casing.
In order to prevent condensation on the internal walls of the unit, it is necessary that the surface temperature of the casing is 2-3 °C above the dew point temperature of the transported air.
The unit should be operated continuously, and in cases where ventilation is not necessary, reduce the air flow of the fans to a minimum (20%). This will ensure a favorable indoor climate and reduce the amount of condensation inside the unit, which can damage electronic components. Never use the unit for dehumidification, for example, of new buildings.
The unit is rated as a Class I electrical appliance.
Hazardous parts access and water ingress protection rating:
IP20 for the unit connected to the air ducts. IP44 for the unit motors.
The unit design is constantly being improved, thus some models may be slightly different from those described in this manual.
| DVUT 1000 PB EC | DVUT 1000 PBE EC | DVUT1000PBE2EC | |
| Unit voltage [V/Hz] | 1~230/50(60) | 3~400/50(60) | |
| Maximum unit power (without an electric heater) [W] | 267 | ||
| Integrated electric preheater power [W] | 3150 | ||
| Integrated electric reheater power [W] | – | – | 2100 |
| Maximum unit current (without an electric heater) [A] | 1.85 | ||
| Maximum unit current (with an electric heater) [A] | – | 12 | 18 |
| Nominal air flow [m3/h] | 1000 | ||
| Nominal power consumption without electric heater [W] | 250 | ||
| Nominal current without electric heater [A] | 1.85 | ||
| Sound pressure level at 1 m distance [dBA] | 34 | ||
| Sound pressure level at 3 m distance [dBA] | 24 | ||
| Maximum transported air temperature [°C] | -25…+40 | ||
| Casing material | polymer coated steel | ||
| Insulation | Insulation 45 mm, EPDM (expanded synthetic rubber) | ||
| Extract filter | ISO Coarse >60% (G4) | ||
| Supply filter | ISO ePM1 60% (F7) | ||
| Connected air duct diameter [mm] | 315 | ||
| Weight [kg] | 252 | 258 | 268 |
| Heat recovery efficiency [%] | 83…93 | ||
| Heat exchanger type | counter-flow | ||
| SEC class | A+ | A+ | A+ |
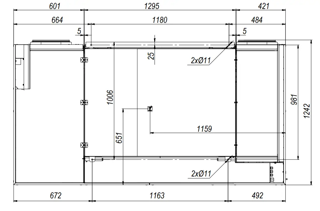
OVERALL AND CONNECTING DIMENSIONS [mm]
![Overall And Connecting Dimensions [mm]](https://static-data1.manualsee.com/2/img/480/7920588/2023/05/VENTS-DVUT-1000-PB-EC-V.2-Single-Room-Air-Handling-Unit-User-Manual-5.png)
![Overall And Connecting Dimensions [mm]](https://static-data1.manualsee.com/2/img/480/7920588/2023/05/VENTS-DVUT-1000-PB-EC-V.2-Single-Room-Air-Handling-Unit-User-Manual-6.png)
![Overall And Connecting Dimensions [mm]](https://static-data1.manualsee.com/2/img/480/7920588/2023/05/VENTS-DVUT-1000-PB-EC-V.2-Single-Room-Air-Handling-Unit-User-Manual-7.png)
DESIGN AND OPERATING PRINCIPLE
Warm stale extract air from the room flows into the unit, where it is filtered by the extract filter, then air flows through the heat exchanger and is exhausted outside by the exhaust fan. Cold fresh air from the outside flows into the unit, where it is cleaned by the supply filter. Then the air flows through the heat exchanger and is directed to the room with the supply fan.
Supply air is heated in the heat exchanger by transferring the heat energy of warm and humid extract air to the cold fresh air. The air flows are fully separated while flowing through the heat exchanger. Heat recovery minimizes heat losses, which reduces the cost of space heating in the cold season.
The unit design consists of four blocks rigidly fastened to each other. For maintenance, the unit is equipped with hinged service doors with locks and service hatches for filter replacement.
Freeze protection is provided in the unit to prevent the heat exchanger from freezing (automatically according to the readings of the temperature sensors):
- By automatically switching off the supply fan.
- By means of a bypass duct with a bypass damper. The damper automatically opens the bypass air duct, directing the supply air flow bypassing the heat exchanger.
- By automatically turning the preheater on.
A freezing danger appears if the exhaust air temperature downstream of the heat exchanger is below +5 °C and the intake air temperature upstream of the heat exchanger is below -3 °C. After increase of the exhaust air temperature the unit reverts to the previous operation mode.
The difference between the supply and extract air flows temperature leads to condensate generation. Condensate is collected in the drain pan and is removed outside through the drain pipe.
The control unit inside of the unit enables power supply and connection of the external devices.
Depending on the model, the unit includes a preheater and a reheater (DVUT 1000 PBE2 EC) or only a preheater (DVUT 1000 PBE EC) for warming up of the intake air flow. The preheater prevents freezing of the heat exchanger and is located in the intake air duct upstream of the heat exchanger. The reheater is located in the supply air duct downstream of the heat exchanger.
The air handling unit has a possibility to connect the following sensors:
- humidity sensor
- CO2 sensor
- VOC sensor
The unit can be used with a vertical duct connection block.
The vertical connection block is not included in the delivery set and must be ordered separately.



| DVUT 1000 PB EC | DVUT 1000 PBE EC | DVUT 1000 PBE2 EC | |
| 1 Extract filter | ¡ | ¡ | ¡ |
| 2 Supply filter | ¡ | ¡ | ¡ |
| 3 Exhaust fan | ¡ | ¡ | ¡ |
| 4 Supply fan | ¡ | ¡ | ¡ |
| 5 Heat exchanger | ¡ | ¡ | ¡ |
| 6 Supply air reheater | ¡ | ||
| 7 Supply air preheater | ¡ | ¡ | |
| 8 Extract filter differential pressure switch | ¡ | ¡ | ¡ |
| 9 Supply filter differential pressure switch | ¡ | ¡ | ¡ |
| 10 Control unit | ¡ | ¡ | ¡ |
| 11 Decorative panels | ¡ | ¡ | ¡ |
| 12 Service door | ¡ | ¡ | ¡ |
| 13 CO2 sensor (not included in the delivery set) | ¡ | ¡ | ¡ |
| 14 Humidity sensor (not included in the delivery set) | ¡ | ¡ | ¡ |
| 15 VOC sensor (not included in the delivery set) | ¡ | ¡ | ¡ |
Air movement inside the unit

MOUNTING AND SET-UP
READ THE USER’S MANUAL BEFORE INSTALLING THE UNIT.
WARNING!
Before installation operations route necessary cables and wires to the unit mounting place.
WARNING!
If the overall dimensions of the assembled unit do not allow moving it to the installation site, it is permissible to temporarily disconnect the unit blocks, and then assemble them in the reverse order.
WARNING!
In the box, the unit is not in the operating position.
Before mounting, the unit must be turned upside down.
For the convenience of transporting the unit to the installation site, it is recommended to separate its blocks.

- On the block 4, unscrew the screws and remove the grille with the louvres.
- In units with a preheater, remove it.
• Unscrew the screws on the heater block cover and remove it.
• Disconnect the connectors near the heater block.
• Remove the screws that secure the heater.
• Remove the heater. - Disconnect cables with connectors XP30, XP31, XP32, XS33, XS34 from the control unit.
- Inside the block, disconnect the cables with connectors marked M1, M2, T1, T2, T3, T4, RH, VOC, CO2 from the board and remove them from the block.
- Remove the mounting screws and detach the block 4.
- The disconnected cables with connectors must be removed from the front section.
- Unscrew the mounting screws. Detach the blocks. 1, 3.
- Install the L-brackets on the central block.


After moving the blocks to the installation site, connect the blocks 1, 2, 3.
Fasteners for unit mounting are not included in the delivery set and must be ordered separately.
While choosing fasteners consider the material of the mounting surface as well as the weigh of the unit, refer to the Technical data section.
The selection of fasteners is carried out by a specialist of the installation organization.
The unit may be suspended on threaded rods or may be rigidly fixed to a horizontal surface by anchor bolts.
The unit is suspended using the supplied mounting bracket 6 and 2 L-brackets 5.
Two more brackets 7 can be mounted behind the unit, depending on the type of mounting.
To get the best performance of the unit and to minimize turbulence-induced air pressure losses, connect the straight air duct section to both unit spigots. Minimum straight air duct length: equal to 1 air duct diameter on intake side, equal to 3 air duct diameters on outlet side.
To protect the internal parts of the unit from ingress of foreign objects, it is necessary to install a grille or other protective device with mesh width not more than 12.5 mm to prevent free access to the fans. The air ducts, protective grilles and devices are not included in the delivery set and are available upon separate order.
UNIT INSTALLATION
Mark the holes using the mounting bracket or template, drill holes for fasteners and through-holes in the wall Ø~350 mm for Ø 315 mm air ducts.
Cut the air ducts to the required length, equal to the wall width, +15 mm to fix the unit to the spigots on the room side. From the outside of the room, the air duct must be cut flush with the wall of the building for the installation of ventilation grilles (purchased separately).
Adjustment of the air duct length is possible before and after its fixation in the wall. In the first case, the required length must be calculated before mounting and in the second case, sufficient access must be provided to cut the air duct length after its installation from outside.
WARNING!
When installing air ducts, a minimum slope of 3 mm downwards must be ensured.
Hang and fasten the unit to the ceiling and wall.
Install three blocks fixed to each other on the mounting bracket and connect the air ducts to the unit spigots.
Fix the unit to the ceiling using L-brackets with anchor bolts.
Mount and connect the front block.
Mount the front block in the reverse order; in units with a heater, install it in its original place.
Connect the connectors of the control devices according to the marking.
Once cables and conductors have been connected, any sagging must be eliminated with cable ties.
Install the decorative panels. Install the panels in the center first, then the top and bottom panels
Install the hinged doors

WARNING!
Before installation, the door and casing of the unit must be grounded using ground wires.
Attach the safety cables to the doors with the safety hooks.
Install the Wi-Fi antenna

The unit is equipped with a drain pump for timely removal of condensate from the unit. Connect the flexible hose going from the pump outlet to the sewage system.
WARNING!
To ensure water drainage, pipes should be mounted with a slope of at least 3°.
Provide free drainage for the condensed water, otherwise it is accumulated inside the unit that may cause the equipment damage and condensate outflow to the room.
The condensate drainage system is designed for normal operation in premises with air temperatures above 0 °C!
If the expected ambient air temperatures are below 0 °C, the condensate drainage system must be heat-insulated and equipped with heating
Sensor mounting (not included in the delivery set)
The CO2 , humidity and VOC sensors are installed in the middle block of the unit. For installation, the heat exchangers must be removed.
The CO2 sensor and VOC sensor are fixed on brackets. The humidity sensor is fastened with a threaded rivet.
1 – terminal block of the CO2 sensor; 2 – bracket of the CO2 sensor; 3 – threaded rivet fixing place of the humidity sensor; 4 – terminal block of the VOC sensor; 5 – mounting bracket for the VOC sensor.
Disassemble the CO2 and VOC sensors according to the manual supplied with them. Connect the sensor to the cable according to the diagram. To do this, the cable must be removed from the terminal block located near the corresponding bracket. Reassemble the sensor in reverse order and fix it to the bracket. Connect the humidity sensor to the connector installed on the cable. Once the sensors are connected, the control configuration in the controller must be changed. For this, contact the Seller.
CONNECTION TO POWER MAINS
POWER OFF THE POWER SUPPLY PRIOR TO ANY OPERATIONS WITH THE UNIT.
THE UNIT MUST BE CONNECTED TO POWER SUPPLY BY A QUALIFIED ELECTRICIAN.
THE RATED ELECTRICAL PARAMETERS OF THE UNIT ARE GIVEN ON THE MANUFACTURER’S LABEL
- The unit is designed for connection to power mains with the parameters specified in the technical data.
- The connection must be made using durable, insulated and heat-resistant conductors (cables, wires). The actual wire cross section selection must be based on the maximum load current, maximum conductor temperature depending on the wire type, insulation, length and installation method.
- The external power input must be equipped with an automatic circuit breaker built into the stationary wiring to open the circuit in the event of overload or short-circuit. The position of the external circuit breaker must ensure free access for quick unit power-off.
The automatic circuit breaker rated current must exceed the ventilator current consumption, refer to the Technical data section. The recommended trip current of the circuit breaker is the next current in the standard trip current row following the maximum current of the connected unit. The automatic circuit breaker is not included in the delivery set and must be ordered separately.
Access To The Control Unit

EXTERNAL WIRING DIAGRAM (DVUT 1000 PB EC)

| Designation | Unit name | Cable type | Contact type | Note |
| РК1* | Fire alarm panel | 2×0.75 mm2 | NC | remove the jumper |
| CCU* | Cooler control | 2×0.75 mm2 | NO | 3 A, ~250 AC |
| Р1* | External control panel | 4×0.5 mm2 | ||
| Boost* | Boost mode contact on/off | 2×0.75 mm2 | NO | |
| F1 | Fuse 5A | 5×20, slow |
– Electric shock hazard!
*The unit is not included in the delivery set.
CONTROL
The unit can be controlled using a wired wall control panel (A22, A25), a wireless wall control panel (A22 Wi-Fi) and a mobile app (A21).
The panels and the app can be used together or separately.
The control panel functions and operation of the mobile application are described in the respective user manuals.
TECHNICAL MAINTENANCE
Maintenance operations of the unit are required 3-4 times per year. Maintenance includes general cleaning of the unit and the following operations:
- Filter maintenance.
Dirty filters increase air resistance in the system and reduce supply air volume. The filters require cleaning not less than 3-4 times per year.
Vacuum cleaning is allowed. After two consecutive cleanings filters must be replaced. For new filters contact the Seller.
Filter removal:- Disconnect the unit from power mains.
- Open the left and right hinged doors with the key, then open the inspection hatches.
- Pull the filters to remove.
- Clean the filters.
- Install cleaned or new filters in their original place.

- Heat exchanger maintenance (once per year).
Some dust may accumulate on the heat exchanger even in case of regular maintenance of the filters. To maintain the high heat recovery efficiency, regular cleaning is required. To clean the heat exchanger, remove it from the unit and clean the heat exchanger by using compressed air or a vacuum cleaner. After cleaning, re-install the heat exchanger into the unit.
Heat exchanger removal:- Disconnect the unit from power mains.
- Open the middle hinged door of the unit with the key.
- Loosen the screws securing the protective plates. Then move the plates so that the screw caps match the holes, and remove the plates.
- Unscrew the screws holding the drain pan and remove it.
- Unscrew the beam screws and remove it.
- Unscrew the screws on the shorter retaining plate, remove it and pull the first heat exchanger to remove it from the unit.
Then unscrew the screws on the second plate and remove the second heat exchanger. - After technical maintenance install the heat exchangers in the reverse order.

- Fan maintenance (once per year).
Even in case of regular maintenance of the filters, some dust may accumulate inside the fans and reduce the fan performance and supply air flow. Clean the fans with a soft cloth, brush, or using compressed air. Do not use water, aggressive solvents, or sharp objects as they may damage the impeller.
Supply air flow control (twice per year). - The supply duct grille may get clogged with leaves and other objects reducing the unit performance and supply air delivery.
Check the supply grille twice per year and clean it as required. - Ductwork system maintenance (once in 5 years).
Even regular fulfilling of all the maintenance operations prescribed above may not completely prevent dirt accumulation in the air ducts, which leads to air pollution and reduces the unit capacity. Duct maintenance means regular cleaning or replacement. - Control unit maintenance (if necessary).
The control unit is positioned inside the unit casing. To access the control unit, remove the fixing screws on the panel and remove the control unit lid.
TROUBLESHOOTING
| PROBLEM | POSSIBLE REASONS | TROUBLESHOOTING |
| The fan(s) does (do) not start when the unit is on. | No power supply. | Make sure the power supply line is connected correctly, otherwise troubleshoot a connection error. |
| The motor is jammed, the impeller blades are soiled. | Turn the unit off. Troubleshoot the motor jam and the impeller clogging. Clean the blades. Restart the unit. | |
| Automatic circuit breaker trips following the unit turning on. | High current consumption due to short circuit in power line. | Turn the unit off. Contact the Seller. |
| Low air flow. | Low set fan speed. | Set higher speed. |
| The filters and the fans are clogged, the heat exchanger is clogged. | Clean or replace the filters, clean the fans and the heat exchanger. | |
| Ventilation system elements (air ducts, diffusers, louver shutters, grilles) are clogged, damaged or closed. | Clean or replace the ventilation system elements, such as air ducts, diffusers, louvre shutters, grilles). | |
| Cold supply air. | The extract filter is clogged. | Clean or replace the extract filter. |
| The heat exchanger is clogged. | Clean the heat exchanger. | |
| Noise, vibration. | The impeller(s) is clogged. | Clean the impeller(s). |
| The fan or casing screw connection is loose. | Tighten the screw connection of the fans or the casing against stop. | |
| No anti-vibration connectors on air duct pipe flanges. | Install anti-vibration connectors. |
STORAGE AND TRANSPORTATION REGULATIONS
- Store the unit in the manufacturer’s original packaging box in a dry closed ventilated premise with temperature range from +5 ˚С to +40 ˚С and relative humidity up to 70 %.
- Storage environment must not contain aggressive vapors and chemical mixtures provoking corrosion, insulation, and sealing deformation.
- Use suitable hoist machinery for handling and storage operations to prevent possible damage to the unit.
- Follow the handling requirements applicable for the particular type of cargo.
- The unit can be carried in the original packaging by any mode of transport provided proper protection against precipitation and mechanical damage. The unit must be transported only in the working position.
- Avoid sharp blows, scratches, or rough handling during loading and unloading.
- Prior to the initial power-up after transportation at low temperatures, allow the unit to warm up at operating temperature for at least 3-4 hours.
MANUFACTURER’S WARRANTY
The product is in compliance with EU norms and standards on low voltage guidelines and electromagnetic compatibility. We hereby declare that the product complies with the provisions of Electromagnetic Compatibility (EMC) Directive 2014/30/EU of the European Parliament and of the Council, Low Voltage Directive (LVD) 2014/35/EU of the European Parliament and of the Council and CE-marking Council Directive 93/68/EEC. This certificate is issued following test carried out on samples of the product referred to above.
The manufacturer hereby warrants normal operation of the unit for 24 months after the retail sale date provided the user’s observance of the transportation, storage, installation, and operation regulations. Should any malfunctions occur in the course of the unit operation through the Manufacturer’s fault during the guaranteed period of operation, the user is entitled to get all the faults eliminated by the manufacturer by means of warranty repair at the factory free of charge. The warranty repair includes work specific to elimination of faults in the unit operation to ensure its intended use by the user within the guaranteed period of operation. The faults are eliminated by means of replacement or repair of the unit components or a specific part of such unit component.
The warranty repair does not include:
- routine technical maintenance
- unit installation/dismantling
- unit setup
To benefit from warranty repair, the user must provide the unit, the user’s manual with the purchase date stamp, and the payment paperwork certifying the purchase. The unit model must comply with the one stated in the user’s manual. Contact the Seller for warranty service.
The manufacturer’s warranty does not apply to the following cases:
- User’s failure to submit the unit with the entire delivery package as stated in the user’s manual including submission with missing component parts previously dismounted by the user.
- Mismatch of the unit model and the brand name with the information stated on the unit packaging and in the user’s manual.
- User’s failure to ensure timely technical maintenance of the unit.
- External damage to the unit casing (excluding external modifications as required for installation) and internal components caused by the user.
- Redesign or engineering changes to the unit.
- Replacement and use of any assemblies, parts and components not approved by the manufacturer.
- Unit misuse.
- Violation of the unit installation regulations by the user.
- Violation of the unit control regulations by the user.
- Unit connection to power mains with a voltage different from the one stated in the user’s manual.
- Unit breakdown due to voltage surges in power mains.
- Discretionary repair of the unit by the user.
- Unit repair by any persons without the manufacturer’s authorization.
- Expiration of the unit warranty period.
- Violation of the unit transportation regulations by the user.
- Violation of the unit storage regulations by the user.
- Wrongful actions against the unit committed by third parties.
- Unit breakdown due to circumstances of insuperable force (fire, flood, earthquake, war, hostilities of any kind, blockades).
- Missing seals if provided by the user’s manual.
- Failure to submit the user’s manual with the unit purchase date stamp.
- Missing payment paperwork certifying the unit purchase.
FOLLOWING THE REGULATIONS STIPULATED HEREIN WILL ENSURE A LONG AND TROUBLE-FREE OPERATION OF THE UNIT.
USER’S WARRANTY CLAIMS SHALL BE SUBJECT TO REVIEW ONLY UPON PRESENTATION OF THE UNIT, THE PAYMENT DOCUMENT AND THE USER’S MANUAL WITH THE PURCHASE DATE STAMP.
CERTIFICATE OF ACCEPTANCE
| Unit Type | Single-room air handling unit |
| Model | |
| Serial Number | |
| Manufacture Date | |
| Quality Inspector’s Stamp |
SELLER INFORMATION
| Seller | ![]() | |
| Address | ||
| Phone Number | ||
| Purchase Date | ||
| This is to certify acceptance of the complete unit delivery with the user’s manual. The warranty terms are acknowledged and accepted. | ||
| Customer’s Signature | ||
INSTALLATION CERTIFICATE
| The unit is installed pursuant to the requirements stated in the present user’s manual. | ![]() | ||
| Company name | |||
| Address | |||
| Phone Number | |||
| Installation Technician’s Full Name | |||
| Installation Date: | Signature: | ||
| The unit has been installed in accordance with the provisions of all the applicable local and national construction, electrical and technical codes and standards. The unit operates normally as intended by the manufacturer. | |||
| Signature: | |||
WARRANTY CARD
| Unit Type | Single-room air handling unit | ![]() |
| Model | ||
| Serial Number | ||
| Manufacture Date | ||
| Purchase Date | ||
| Warranty Period | ||
| Seller |




























