HE SERIES ERV
Installation, Operation and Maintenance Manual
HE4XINH

![]()
HE Series ERV HE4XINH Energy Recovery Ventilator
WARNING
ARC FLASH AND ELECTRIC SHOCK HAZARD
Arc flash and electric shock hazard. Disconnect all electric power supplies, verify with a voltmeter that electric power is off and wear protective equipment per NFPA 70E before working within electric control enclosure. Failure to comply can cause serious injury or death. Customer must provide earth ground to unit, per NEC, CEC and local codes, as applicable. Before proceeding with installation, read all instructions, verifying that all the parts are included and check the nameplate to be sure the voltage matches available utility power. The line side of the disconnect switch contains live high- voltage. The only way to ensure that there is NO voltage inside the unit is to install and open a remote disconnect switch and verify that power is off with a volt meter. Refer to unit electrical schematic. Follow all local codes.
IMPORTANT
This equipment is to be installed by following Industry Best Practices and all applicable codes. Any damage to components, assemblies, sub assemblies or the cabinet which
is caused by improper installation practices will void the warranty.
IMPORTANT
Air ducts connecting this ERV to the Occupied Space must be installed in accordance with the Standards of the National Fire Protection Agency for the installation of Air- Conditioning and Ventilating Systems (Pamphlet No. 90A) and Warm-Air Heating and Air-Conditioning Systems (Pamphlet No. 90B).
CAUTION
RISK OF CONTACT WITH HIGH SPEED MOVING PARTS
Disconnect all local and remote power supplies, verify with a voltmeter that electric power is off and all fa
n blades have stopped rotating before working on the unit. Do not operate this unit with any cabinet panels removed.
CAUTION
RISK OF ELECTRIC SHOCK OR EQUIPMENT DAMAGE
Whenever electrical wiring is connected, disconnected or changed, the power supply to the ERV and its controls must be disconnected. Lock and tag the disconnect switch or circuit breaker to prevent accidental re connection of electric power.
IMPORTANT
This unit is intended for general ventilating and heating only. Do not use to exhaust hazardous or explosive materials and vapors. Do not connect this equipment to range hoods, fume hoods or collection systems for toxic.
IMPORTANT
This unit is for ventilating finished structures only. It is not to be used until after all construction has been completed and construction debris and dust are cleaned from the Occupied Space.
SAVE THIS MANUAL
NOTICE
This manual contains space for maintaining written records of unit maintenance and/ or repairs. See Section 7.7 Maintenance Records. At the time the ERV is commissioned, amaintenance schedule should be developed by the user to incorporate monthly and seasonal maintenance and include start-up maintenance tasks as described in this manual.
UNIT INFORMATION
Record information as shown below.
In the unlikely event that factory assistance is ever required, information located on the unit label will be needed.
Locate the Renew Aire unit label found on the outside of the unit.
NOTE: This information is for purposes of identifying the unit-specific option data from the Option Code.
NOTE: This page is to be completed by the installing contractor. The completed document is to be turned over to the owner after start-up.

INDOOR UNIT

SPECIFICATIONS
Ventilation Type:
Static plate, heat and humidity transfer
Typical Airflow Range: 1,000-4,400 CF
HAIR 1060 Certified Core: Four L125-G5
Standard Features:
TEFL Premium efficiency motors Motor starters
Non-fused disconnect 24 VAC transformer/relay package
Cross-core differential pressure ports
Filters:
Total qty. 8, MERV 8: 20″ x 20″ x 2″
Unit Weight:
723-1,092 lbs., varies by option(s)
Max. Shipping Dimensions & Weight (on pallet): 80″ L x 90″ W x 50″ H 1,228 lbs.
Motor(s):
Qty. 2, Belt drive blower/standard motor packages with adjustable sheaves (see table below)
Options:
Onboard variable frequency drives (Feds) – both air streams
Shaft grounding ring on motors with Feds Fused disconnect
Integrated programmable controls enhanced, premium
Bypass economizer damper (see bypass DIM drawing) dry-bulb temperature controls (standard), enthrall controls (option)
Class 1 low leakage motorized isolation dampers – PA, RA or both air streams Qty.2,
Factory mounted filter alarms both air streams
Double wall construction
Exterior paint – white, custom colors
Accessories:
Filters – MERV 13, 2″ (shipped loose)
Automatic balancing damper – 4″, 5″, 6″
Digital time clock – wall mount (TC7D-W),
in exterior enclosure (TC7D-E)
Carbon dioxide sensor/control –
wall mount (CO2-W), duct mount (CO2-D)
IAQ sensor – wall mount (IAQ-W),
duct mount (IAQ-D)
Motion occupancy sensor/control –
ceiling mount (MC-C), wall mount (MC-W)
Smoke Detector – duct mount (SD-D)
Electric duct heater – EK series (1–175 kW )
Indirect gas-fired duct furnace – GH series
(50-400 MBH), installed downstream of any fans
AIRFLOW PERFORMANCE

Note: Brake Horse Power (BHP) is for one blower motor package only.
Operation in this zone will likely exceed FLA limits.
Operation in this zone outside of core airflow limits.
Note: Airflow performance includes effect of clean, standard filter supplied with unit.
ELECTRICAL DATA
| Standard Electrical Specifications | Optional Factory Installed VFD Electrical Specifications | ||||||||
| HP | Volts | HZ | Phase | FLA per motor | Min. Cir. Amps | Max. Over current Protection Device | FLA per motor | Min. Cir. Amps | Max. Over current Protection Device |
| 2.0 | 120 | 60 | Single | 20.0 | 45.0 | 60 | |||
| 2.0 | 208-230 208-230 460 | 60 60 60 | Single Three Three | 10.8-10.0 6.6-5.8 2.9 | 24.3 14.9 6.5 | 35 20 15 | 6.6-5.8 6.6-5.8 2.9 | 28.3 16.3 7.2 | 30 20 15 |
| 3.0 | 575 208-230 208-230 460 575 | 60 60 60 60 60 | Three Single Three Three Three | 2.4 14.7-14 9.4-8.5 4.2 3.3 | 5.4 33.1 21.1 9.5 7.4 | 15 40 25 15 15 | 2.4 9.4-8.5 9.4-8.5 4.2 3.3 | 5.9 40.2 23.2 10.5 8.2 | 15 45 25 15 15 |
| 5.0 | 208-230 460 575 | 60 60 60 | Three Three Three | 14.5-13.4 6.7 5.3 | 32.6 15.1 11.9 | 45 20 15 | 14.5-13.4 6.7 5.3 | 35.9 16.6 13.1 | 45 20 15 |
ABBREVIATIONS
EA: Exhaust Air to outside
OA: Outside Air intake
RA: Room Air to be exhausted
FA: Fresh Air to inside
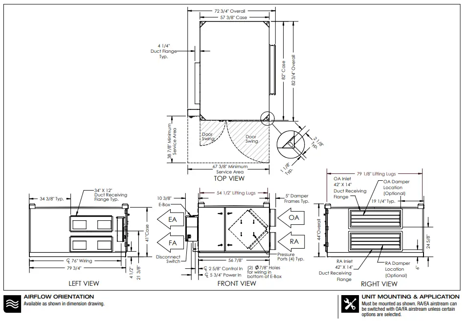
INSTALLATION ORIENTATION
Unit must be installed in orientation
shown.
NOTE
- UNLESS OTHERWISE SPECIFIED, DIMENSIONS ARE ROUNDED TO THE NEAREST EIGHTH OF AN INCH.
- SPECIFICATIONS MAY BE SUBJECT TO CHANGE WITHOUT NOTICE.
- MIN. DUCT CLEARANCE FROM DAMPER BLADES WHEN FULLY OPENED TO BE 2″. SMACNA RULES APPLY.

CONFIGURATION CODE

OVERVIEW
1.1 DESCRIPTION
The HE4XINH Energy Recovery Ventilator is a device for recovering both sensible energy (heat) and latent energy (moisture) from the Exhaust Air from an Occupied Space and injecting those energies into an incoming Outside Air stream. It accomplishes this task by forcing the two air streams through encephalitic cores, where the energy exchange takes place. The two air streams pass through the encephalitic cores at right angles and the air streams never mix together. See Section 2.2 Encephalitic Cores in this manual.
Each ERV has two electric blowers, one for each air stream. Fan speeds can be either single speed, using adjustable sheaves to change fan speed, or they can be variable speed, controlled by Feds, a Renewal Commercial Controller or by a MS. There are a number of different control devices available to control the operation or speed of the unit fans. For further information on available control accessories, see the HE Renewal catalog.
There are two types of HE4X units, one for indoor installations and one for rooftop, or outdoor, installation. This manual is for the HE4XINH, which is the indoor unit with horizontal ducting. For information on the vertically dusted HE4XIN, see the HE4XINV manual. For information on the outdoor version of this product, see the HE4XRT manual.
These Er Vs are commonly installed as part of an air handling system that provides heating and cooling of Supply Air. They can also be installed to operate as stand-alone devices when ducted directly to and from the Occupied Space.
Each unit has an integral 24 VAC power supply that is used internally and can also be used as a power source for other optional control devices.
The HE4XINH units are low-maintenance, requiring periodic replacement of the air filters, lubrication of the motors and annual vacuuming of the encephalitic cores. See Section 7.0 Unit Maintenance in this manual.
NOTE: This unit is an Energy Recovery Ventilator, or ERV. It is commonly referred to throughout this manual as an ERV.
IMPORTANT
It is important to understand and use the equipment air stream terminology as it is used in this manual. The air streams are defined as:
- OUTSIDE AIR (OA): Air taken from the external atmosphere and, therefore, not previously circulated through the system.
- FRESH AIR (FA): Air that is downstream of the encephalitic cores and is ready for conditioning or for return to the Occupied Space.
- RETURN AIR (RA): Air that is returned to the ERV from a conditioned space.
- EXHAUST AIR (EA): Air that is removed from a heating or cooling appliance or from the Occupied Space and discharged.
1.2 AIRFLOW
The airflow configuration is indicated by digit 9 of the Configuration Code.

| MODEL | DESCRIPTION OF DUCT CONNECTION CONFIGURATION |
| HE4XINH | Room Air [RA] and Outside Air [OA] enter on the same side of the unit. |
FIGURE 1.2.0 AIRFLOW ORIENTATION
CAUTION
Low air flow can cause fouling of the encephalitic cores. The ERV must never be operated without clean filters in place and minimum airflow must be greater than 250 CFM per full-sized core.
COMPONENT DESCRIPTIONS
2.1 CABINET
The cabinet for the HE4XINH is made of 20 gauge galvanized steel and has 1″ thick high density, foil-backed insulation on the inside. Units are available in either single-wall or double wall construction. Doors are hinged and are fitted with stainless steel machine screws through the faces to prevent accidental opening of the doors when the unit is in operation. Doors may be completely removed by removing the hinge pins. All units are equipped with adjustable-height leveling legs for purposes of leveling the unit. Duct flanges are provided at all four air stream openings for connection of field-supplied duct work.
2.2 ENCEPHALITIC CORES
All HE4XINH Er Vs use four static-plate encephalitic cores. The encephalitic cores transfer both latent and sensible energies between the air streams. Cores are bi-directional and may be rotated in their mounting hardware, but care must be taken to install the correct side of the core toward the unit door. Gasket is per-installed on the cores and must be positioned to provide a proper air seal. For information on annual maintenance of the cores, see Section 7.0 Maintenance in this manual.
2.3 FAN/MOTOR ASSEMBLIES
There are two fan and motor assemblies in each ERV. The fans are belt-driven. All fans have an adjustable sheave on the electric motor for purposes of adjusting the fan speed. The motors require periodic inspection and lubrication. For information on adjusting sheaves, see Section 7.0 Maintenance.
2.4 E-BOX
Every HE4XINH is equipped with what is known as an “E-Box.” High-voltage supply wiring and low-voltage control wiring is all terminated here. When VFDs are installed in the unit, the VFD keypads are installed here. If optional integrated programmable controls are installed, an additional 24 VAC transformer is installed here to power both the controller and its dedicated sensors.
NOTE: Every ERV has an attached electrical connection box, known as the E-Box. It is attached to the outside of the ERV and all electrical connections are made there. There is a high-voltage side and a low-voltage side. See Figure 2.4.0.

2.5 FILTERS
All HE4XINH units come equipped with eight each MERV 8 20″ X 20″ X 2″ thick pleated paper filters. MERV 13 filters can be ordered as an accessory and are shipped loose.
2.6 FACTORY INSTALLED OPTIONS
All HE4XINH units can be ordered with factory installed options. See Unit Configuration Code on page 8.
Options will have supplemental manuals shipped with the unit.
For Isolation Dampers, see Isolation Dampers Supplemental Manual.
For Commercial Controls, see Commercial Controls Supplemental Manual.
For Filter Alarm, see Filter Alarm Supplemental Manual.
For Economizer/Bypass, see Bypass Economizer Supplemental Manual.
For Isolation Dampers, see Isolation Dampers Supplemental Manual.
For Variable Frequency Drive, see VFD Supplemental Manual.
SHIPPING/RECEIVING/HANDLING
HE4XINH units are palletized at the factory and then shipped by common carrier. Upon receipt by the installer, the shipment should be inspected for shipping damage, prior to unloading. Any discovered shipping damage should be immediately reported to the Renew Aire sales rep and the damage must be recorded on the Bill Of Lading, prior to signing for acceptance of the shipment. The unit can be handled with a fork lift or a crane. Prior to moving the unit, verify that all latches and securing bolts on the cabinet doors are tightly fastened.
If a crane is used for moving the HE4XINH unit, unscrew the sheet metal plates that hold the unit to the pallet. Use two hoisting slings and a spreader bar to hoist the unit. The hoisting slings must be positioned around the ends of the unit so they do not touch the unit doors. Unit hoisting weights and Center of Gravity are detailed in Sections 3.1 and 3.2 in this manual.
Perform a test lift to make sure the unit is being hoisted level and is secure.
Place the HE4XINH unit on a flat surface where it will be protected from the weather and incidental damage. Do not remove protective coverings from any duct openings and keep the doors secured and tightly closed.
3.1 UNIT WEIGHTS AND DIMENSIONS
3.1.1 Unit Dimensions and Weight
72 1/2″ L x 82 3/4″ W x 44″ H
723–1,092 lbs., varies by option(s)
3.1.2 Shipping Dimensions and Weight
80″ L x 90″ W x 50″ H
1,228 lbs.
3.2 RIGGING AND CENTER OF GRAVITY
3.2.1 HE4XINH Hoisting Weights and COG

| BASIC UNIT WEIGHTS (lbs.) | |||||
| Motors | UNIT | LF | LR | RR | RF |
| 2 HP | 809 | 229 | 195 | 176 | 209 |
| 3 HP | 873 | 252 | 208 | 185 | 228 |
| 5 HP | 881 | 253 | 210 | 187 | 231 |
| ADDITIONAL WEIGHTS FOR OPTIONS (lbs.) | |||||
| Options | UNIT | LF | LR | RR | RF |
| Double Wall | 93 | 28 | 23 | 18 | 23 |
| By-Pass | 32 | 8 | 8 | 8 | 8 |
| VFDs | 8 | 4 | 4 | 0 | 0 |
| RA or EA Damper | 39 | 3 | 3 | 16 | 17 |
| OA or FA Damper | 39 | 3 | 3 | 17 | 16 |
| Total Selected Weights | |||||
| Add the additional weights for options to the Basic Module weights determined by motor size to determine Module and Corner weights for a specific unit. | |||||
FIGURE 3.2.0 HE4XINH WEIGHTS AND COG
3.3 RECEIVING
Upon receipt of the HE4XINH, inspect the unit for obvious external damage. If damage is observed, take digital pictures and report the damage to your Renew Aire rep. Note the damage on the carrier’s Bill of Lading. Depending on expected transport and storage conditions, the unit may have only the duct openings covered, it may be stretch-wrapped or it may be crated. Do not unwrap the unit at this time. The unit will normally be moved to its final location while still wrapped and attached to its pallet.
The preferred method of hoisting the HE4XINH from the carrier truck is by using a construction forklift.
Once the unit is unwrapped, prevent dirt and debris from entering the cabinet by covering any duct openings that do not have attached dampers. Keep the duct openings covered until it’s time to connect duct work.
3.4 HANDLING AND STORAGE
Units that must be stored prior to installation should be left on their pallets and protected from weather and physical damage. Units must be placed on a level surface to prevent wracking of the pallet and the HE4XINH. All access doors must be secured with all available hardware (door latches and securing bolts) and all openings into the cabinet must be sealed to prevent entry of dust, dirt and debris.
UNIT PLACEMENT
4.1 BEFORE YOU BEGIN
Units that must be stored prior to installation should be left on their pallets and protected from weather and physical damage. Units must be placed on a level surface to prevent wracking of the pallet and the HE4XINH. All access doors must be secured with all available hardware (door latches and securing bolts) and all openings into the cabinet must be sealed to prevent entry of dust, dirt and debris.
The HE4XINH is designed for installation in a sheltered location, out of the weather. The preferred mounting location is to place the unit on a concrete floor.
For all installations, maintain needed service clearances as shown on the dimension ed drawings located in Section 4.2 of this manual. In addition, if the optional Bypass Economizer is ordered, additional clearance will be required for the extra bypass duct. See the Renew Aire Supplemental Manual for Bypass or further information and clearance details specific to the HE4XINH units.
Select a location that is central to the inside duct runs and close to both the exhaust duct (to the outside) and also to the fresh air duct (from the outside).
The exhaust outlet and the outside air inlet on the outside of the building should be at least ten feet apart to avoid cross-contamination. Comply with all local building codes in the positioning of the duct openings. Do not position the exhaust air outlet in a location where it will dump exhaust air into any enclosed or occupied space. The duct inlets and outlets should be screened against insects and vermin and should be shielded from the weather to prevent entry of rain or snow.
4.2 SERVICE CLEARANCES

4.3 SOUND ATTENUATION
Take these simple steps to attenuate noise from the unit.
4.3.1 Outside the Building
Exhaust velocity noise is the primary cause of unit-related noise outside the building. Size the exhaust duct and grille for less than 1000 FPM air velocity. When practical, orient the exhaust air hood to point away from houses or public areas.
4.3.2 Ducts
Make sure the ductwork at the unit outlets is stiff enough to resist the flexure and resulting booming associated with system start-up and shut-off, as well as the turbulent flow conditions at the blower outlets.
In general, provide smooth transitions from the Erv’s outlets to the duct. The ducts connecting to the outlets should be straight for a sufficient distance, with gradual transitions to the final duct size.
These guidelines are consistent with SMACK recommended duct layout practices for efficient and quiet air movement. Follow SMACK guidelines.
4.3.3 Radiated Noise
The HE4XINH is insulated with high-density fiberglass. This provides significant attenuation of radiated sound.
The outlet ducts can be significant sources of radiated sound as well. The FA and EA ducts (outlet ducts) should be insulated for sound control. This insulation should start at the unit. At a minimum the first ten feet of duct should be insulated. All parts of the FA and EA ducts located in the mechanical space should be insulated for sound control, both to minimize sound radiation out of these ducts and also to control sound radiation into the ducts.
4.3.4 Aerodynamic (Velocity) Noise
When sound attenuation is a design concern, the primary consideration is velocity noise at the unit’s Fresh Air blower outlet. The average velocity at the Fresh Air blower outlet is 2984 FPM when the unit is operating at 3000 CFM.
INSTALLATION
5.1 DUCT WORK
5.1.1 Ducts to the Outside
The exhaust outlet and fresh air inlet on the outside of the building should be at least 10′ apart to avoid cross-contamination. The exhaust outlet should not dump air into an enclosed space or any other structure. The inlets and outlets should be screened against insects and vermin and shielded from the weather to prevent the entry of rain or snow.
Ducts connecting the HE4XINH to the outside must be insulated, with sealed vapor barrier on both inside and outside of the insulation. Insulate both the Outside Air (OA) and Exhaust Air (EA) ducts.
NOTE: Ducts inside a building that are connected to the outside must be insulated with a sealed vapor barrier on both the inside and the outside of the insulation.
5.1.2 Inside Duct work System
Ensure Good Duct work Design
Duct work should be designed to allow the unit to provide the required airflow and reduce pressure drop for efficient, quiet operation. If the inside ducts run through unconditioned spaces they must be insulated with a sealed vapor barrier on both inside and outside of insulation.
NOTE: It is the installer’s responsibility to select appropriate materials capable of safely supporting the weight of the ERV and all attached hardware, such as duct work. It is the installer’s responsibility to determine the location of the ERV and the needed supporting threaded rods. All such installations must be reviewed and approved by an engineer.
5.2 FLOOR INSTALLATION
Most units are installed in a location specified by others. In general, it’s preferable to install the unit on a flat, reasonably level surface, such as a concrete floor.
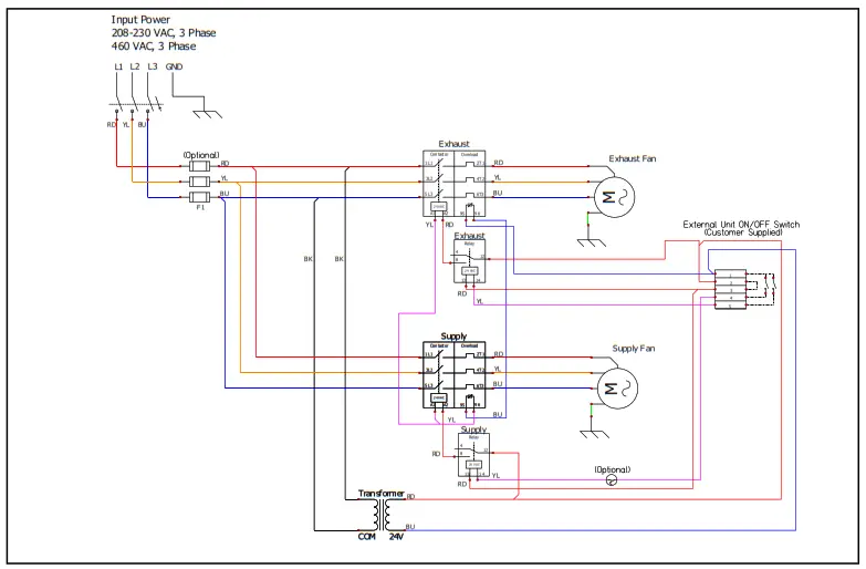
5.3 ELECTRICAL REQUIREMENTS
WARNING
ARC FLASH AND ELECTRIC SHOCK HAZARD
Arc flash and electric shock hazard. Disconnect all electric power supplies, verify with a voltmeter that electric power is off and wear protective equipment per NFPA 70E before working within electric control enclosure. Failure to comply can cause serious injury or death.
Customer must provide earth ground to unit, per NEC, CEC and local codes, as applicable.
Before proceeding with installation, read all instructions, verifying that all the parts are included and check the nameplate to be sure the voltage matches available utility power.
The line side of the disconnect switch contains live high-voltage.
The only way to ensure that there is NO voltage inside the unit is to install and open a remote disconnect switch and verify that power is off with a volt meter. Refer to unit electrical schematic.
Follow all local codes.
5.3.1 Factory-Recommended Electric Service Entry
Knockouts are provided in the bottom of the E-box for entry of high-voltage power supply wiring. Install the wiring in accordance with local codes and provide strain relief at the E-box opening. Wiring is then terminated on the top of the disconnect switch.
Low-voltage control wiring is to enter the E-box through the knockout in the bottom of the E-box. Provide strain relief as needed.
High-voltage supply wiring is to be connected on the top side of the disconnect switch. See Figure 5.3.0 below.
5.3.2 Low Voltage Control System
This ERV is provided with a Class II 24 VAC power supply system that operates the unit’s contractor(s) for HE4XINH. The Erv’s 24 VAC Power Supply can also be used to power the externally-installed controls system: up to 8VA of power is available.
The unit’s power supply system includes isolation relay(s) so you can use external controls whose contact ratings are as low as 50 mA (1.2 VA). Also, it is possible to operate the isolation relays with 24 VAC power from an external source (with proper wiring connections).
A built-in circuit-breaker prevents damage to the transformer and other low-voltage components in the event of a short-circuit or overload. In extreme cases, the transformer itself is designed to fail safely.
Specifications:
- Nominal Output Voltage under load: 24 VAC
- Typical Output Voltage at no load: 29–31 V
- Minimum contact rating for connected control device: 50 mA (1.2 VA)
- Circuit Breaker Trip Point: 3 A
NOTICE If primary-side voltage is 230 VAC, move black primary-side lead from transformer’s “208 V” terminal to the transformer’s terminal marked “240 V” (“230 V” in some units). Do not move the black primary-side lead that is connected to the transformer’s “COM” terminal.
5.3.3 How to Reset the 24 VAC Circuit Breaker
If the transformer is subjected to an excessive load or a short circuit, the circuit breaker will trip to prevent the failure of the transformer. When it trips the circuit breaker’s button pops up. Shut off the primary-side power to the unit, and remove the excessive load or the short. The circuit breaker can be reset about fifteen seconds after it trips by pressing in the button.
CAUTION
- Connect only to components intended for use with 24 VAC power.
- Do not undersized the low-voltage wires connected to this device. Observe the wire length and gauge limits indicated in this manual.
- Do not overload this unit’s 24 VAC power supply system. Confirm that the power requirements of devices you connect to this power supply system do not exceed 8 VA in total.
- If an external source of 24 VAC power is used to control the unit, consult the wiring schematics and connect the external power only to the specified terminals in order to avoid damaging the unit or external controls. Connect only CLASS II power to the control terminals of this unit.
- Unit is not equipped to receive analog signals (such as 1–10 vdc or 4–20 mA).
CAUTION
Be careful if the external control system provides 24 VAC power at its control output: make sure blue and red leads are separately capped and not connected to any other wires.
5.3.4 Limits of Power Output
If limits on wire gauge and length are observed, you may connect control devices that draw up to 8 VA to the blue and red wires. More than one device can be connected as long as total steady-state load does not exceed 8 VA.
| Wire Gauge | #22 | #20 | #18 | #16 | #14 | #12 |
| Circuit Length | 100′ | 150′ | 250′ | 400′ | 700′ | 1000′ |
| “Circuit Length” is distance from ERV to Control Device. Observe these limits to wire length and gauge in order to ensure reliable operation of the control system. | ||||||
5.4 WIRING SCHEMATICS


NOTE: The simplified schematics below show only the relevant portions of the low-voltage control circuit in the ERV unit and representational external control approaches. See the complete unit schematics above.
CAUTION
Make sure the control provides no voltage or current at its output terminals.
5.5 EXTERNAL CONTROL CONNECTIONS
5.5.1 Single 2-Wire Control, Powered
See Figure 5.6.0 if the control requires no power from the ERV and acts as a simple ON/OFF switch. The control must not supply any power to the ERV.
- Install jumper (provided) between terminals 2 and 3.
- Connect the control’s contacts to terminals 1 and 4 to operate the isolation relays for OA/FA blower.
- Install jumper between terminals 4 and 5 to operate the ERV’s isolation relays for the RA/EA blower.

5.5.2 Single 2-Wire Control, Separate Power
Use the schematic shown in Section 5.5 if the control is on a separate power supply with no power present at control output.
5.5.3 Control Sending 24 VAC “ON” Signal
See Figure 5.6.1 if a 24 VAC “ON” signal is to be sent from an external power source to the ERV.
- Verify that a jumper is NOT installed between terminals 2 and 3.
- 24 VAC can be safely applied to terminals 3 and 4 to operate the Erv’s isolation relay for the OA/FA blower.
- Install a jumper (provided) between terminals 4 and 5 to operate the Erv’s isolation relay for the RA/EA blower.
- Supply only 24 VAC (not DC) from a Class II power source.

5.5.4 External Control Using ERV Power Supply
See Figure 5.6.2 if external control is to be applied using 24 VAC from the ERV power supply.
- External control system must not draw more than 8 VA.
- Install jumper (provided) between terminals 2 and 3.
- Connect the switched output of the control to terminal 4 to operate the ERV’s isolation relay for the OA/FA blower.
- Install jumper between terminals 4 and 5 to operate the ERV’s isolation relay for the RA/EA blower.

5.5.5 Control with 2 Non-Powered Relay Contacts
See Figure 5.6.3 if the external control system provides no voltage or current at its output contacts.
- Install jumper between terminals 2 and 3.
- Connect one side of each of the output contacts to terminal 1.
- Connect the other side of the output contact to terminal 4 in order to control the FA blower.
- Connect the other side of the output contact to terminal 5 in order to control the EA blower.

CAUTION
External control system should not draw more than 8 VA.
5.5.6 Control with 2 “ON” Signals, External Power
See Figure 5.6.4 if the controller is sending two 24 VAC “ON” signals from an external power source.
- Verify there is NO jumper between terminals 2 and 3.
- Apply one 24 VAC signal to terminals 3 and 4 to operate the isolation relay for the FA blower.
- Apply the second 24 VAC signal to terminals 3 and 5 to operate the isolation relay for the EA blower.
- Verify that the polarity of each wire connected to terminal 3 is the same.

CAUTION
Supply only 24 VAC (not VDC) from a Class II Power Source.
5.6 QUICK-START FOR TESTING CORRECT 3PH WIRING
All units that run on 3 phase power should be test-run immediately after high voltage wiring connections are made. This will verify that the three phases are properly connected, that the dampers will open and close properly and the fans are working properly.
For purposes of testing correct phase connections, the internal 24 VAC power supply will be used to power-up the fans and all external control devices will be disabled, when applicable.
UNIT OPERATION
NOTE: Any changes to unit low-voltage wiring should be made with the disconnect switch in the OFF position.
NOTE: When installing temporary jumpers on the low-voltage termi- nal strip, use 18 gauge or larger wire.
6.1 PRINCIPLE OF OPERATION
The HE4XINH has one basic purpose: to exhaust air from a structure and bring in fresh air from outside, while transferring heating or cooling energy from the exhaust air to the fresh air.
The HE4XINH is a very simple device, and will accomplish this purpose as long as the blower is able to move air through the enthalpic core.
6.2 PRE-STARTUP
6.2.1 Verify Voltages
Using a voltmeter, test the input voltages as supplied to the disconnect switch. Refer to Digit 13 of the unit Configuration Code to find the rated voltage. The supplied voltage must be within +/- 10% of the rated voltage.
6.2.2 Verify Transformer Wiring
Units with 230 VAC power source are shipped with the transformer wired for 208 VAC. If the unit is receiving 230 VAC, make sure the black primary-side wire on the transformer’s 208 V terminal has been moved to the 230 V terminal.
6.2.3 Inspect Filters
Filters must be installed prior to fan start-up. Filters must be clean and butted tightly against each other, allowing no air circulation around them.
6.2.4 Inspect Foam Gasketing
Inspect the gasketing to make sure there are no gaps allowing air movement around the cores or filters.
6.2.5 Inspect Belts and Verify Sheave Alignment
Prior to shipment from the factory, sheaves are carefully aligned and belts are tensioned.
Inspect the motor mount to verify that it did not shift during shipment of the unit. Verify that belts are still properly tensioned and that they track correctly in the sheaves.
6.2.6 Inspect Fans
Prior to start-up, the fans should be rotated by hand to make sure that the impeller is not rubbing anywhere and that they turn freely.
6.2.7 Inspect and Clean the Cabinet Interior
During the construction and installation phases of a project, dust, dirt and debris will often accumulate inside a unit. Thoroughly clean the inside of the unit by vacuuming and/or wiping metal surfaces with a damp rag.
6.2.8 Inspect Ductwork Connections
Ducts attached to the ERV must be firmly attached, sealed and supported in accordance with installation instructions and SMACNA guidelines.
6.3 UNIT STARTUP
6.3.1 Fixed-Speed Units
Most fixed-speed units do not have any external controlling signals and only require turning on the disconnect switch, located on the E-Box. When the disconnect switch is turned ON, any dampers will first move into their correct operating positions and then power is suppled to the motor contactors, causing the fans to run.
Some fixed-speed units are wired to receive an actuating signal from an external source.
If there is an external actuating signal source, verify the type of signal and that it is wired according to the low-voltage wiring diagrams found in Section 5.6 of this manual. Turn on the disconnect switch and then turn ON the actuating device. After any dampers have moved into their correct positions, power is then applied to the motor contactors and the fans will begin running.
IMPORTANT
It is important to balance the airflows after the unit is operational and all ductwork has been installed. Balancing the airflows is typically required by state and/or local codes, and is often specified by the HVAC design engineer.
Optimum efficiency of the enthalpic cores is achieved when the airstreams are properly balanced.
6.4 BALANCING AIRFLOWS
During the construction and installation phases of a project, dust, dirt and debris will often accumulate inside a unit. Thoroughly clean the inside of the unit by vacuuming and/or wiping metal surfaces with a damp rag.
All HVAC installations are governed by local and state building codes, some of which include specific requirements for balancing of airflows. In addition, the HVAC design engineer typically includes a specification for balancing of airflows. If there is a conflict between the specification sources, consult the HVAC design engineer.
A frequent requirement is for the airstreams to be perfectly balanced between Fresh Air supply and Exhaust Air discharge. In practice, it is generally preferable to leave a slight imbalance in the airflows, with the Exhaust Air set for slightly less than Fresh Air intake, producing a slight positive pressure within the Occupied Space. The reason for doing this is to reduce air infiltration, which is untempered air. Having an imbalance in the airstreams results in slightly lower efficiency in the energy transfer in the enthalpic cores, but it is made up for by the reduction in air infiltration. Whenever airstreams are adjusted for an imbalance, the imbalance should be no more than 5%. Each job site is different and equipment requirements will vary. Example: there may be a water heater that is not ducted to the outside and therefore consumes and discharges large amounts of building air.
The process of balancing airflows is accomplished after all ductwork has been installed and examined for compliance to SMACNA guidelines. Improperly designed and installed ductwork will cause turbulence in the airstreams and restrictions in airflow, all of which will lower the operating efficiency of the HVAC system.
All airflow adjustments are dependent on taking accurate measurements of actual airflow by means of a manometer in the test ports on the unit. For some units, digital controls may have been installed that incorporate airflow sensors and it will not be necessary to take manometer readings. For further information on using the information from an integrated commercial controller, see the manual provided with the controller.
NOTE: ERV airflows are to be balanced after all ductwork is installed. Balanc- ing of airflows is typically required by local or state building codes or by the HVAC design engineer.
NOTE: The tubing should extend in the pressure port approx. 1″.
NOTE: These ports are carefully located on the unit to give the most accurate airflow measurement. Do not relocate pressure ports.
NOTE: Make sure clean filters are installed before balancing airflow. Dirty or clogged filters reduce airflow through the unit.
6.4.1 All Fixed-Speed Units
For all fixed-speed units, manometer readings are taken and then the adjustable sheaves on the motors are adjusted to re-set fan speeds.
Equipment Required
- A magnehelic gauge or other device capable of measuring 0–1.0 in. water of differential pressure.
- 2 pieces of natural rubber latex tubing, 1/8″ ID, 1/16″ Wall works the best.
The individual differential static pressures (DP) are measured using the installed pressure ports located in the front of the units core access doors.
Do not relocate pressure ports. Procedure:
- To read SCFM of Fresh Air (FA) install the “high” pressure side (+) of your measuring device to the Outside Air (OA) port and the “low” pressure side (-) to the Fresh Air (FA) port.
- To read SCFM of Room Air (RA) install the “high” pressure side (+) of your measuring device to the Room Air (RA) port and the “low” pressure side (-) to the Exhaust Air (EA) port.
- Use the reading displayed on your measurement device to cross reference the CFM output using the conversion chart.

| DIFFERENTIAL STATIC ACROSS CORE DSP VS. CFM | |||||||||
| HE4XINH | DP (H2O) | DSP | 0.20 | 0.30 | 0.40 | 0.50 | 0.60 | 0.70 | 0.80 |
| Fresh Air (FA) | CFM | 1070 | 1600 | 2130 | 2670 | 3200 | 3740 | 4270 | |
| Room Air (RA) | CFM | 1140 | 1710 | 2280 | 2850 | 3420 | 3990 | 4560 | |
6.4.2 Filter Pressure Drop


b CAUTION
The proper operating airflow range for this model is 1000–4400 CFM.
NOTE: Clean filter pressure drop is included in unit airflow performance tables.
6.4.3 Sheave Adjustment
All fan motors that are not controlled by a VFD are equipped with an adjustable sheave. These adjustable sheaves must be re-set in the field to attain optimum performance of the ERV. This adjustment is to be done after all ductwork is connected.
Adjustable sheaves are held in position on the drive motor shaft by a set screw that is normally hidden until the belt(s) is removed. One flange is fixed-position, the others are adjustableposition. The adjustable flanges of the sheave have a set screw located in an exposed position on the collar of the flange.
To adjust the flanges:
- Remove the drive belt(s)
- Loosen the set screws on both adjustable flanges
- IN HALF-TURN INCREMENTS, turn the adjustable flanges in or out the same number of turns
- Tighten the set screws on the adjustable flanges, making certain that the set screws are landing on the machined “flat” on the sheave.
6.4.4 Variable-Speed Units
The motors on variable-speed units also have adjustable sheaves, but they are not to be adjusted. Speed control of variable-speed units is accomplished by adjusting either the VFDs (if present) or the Integrated Commercial Controls (if present). For more information on adjusting VFDs, see the manual that was shipped with the unit. For more information on adjusting speeds via commercial controls, see the Integrated Commercial Controller manual that was shipped with the unit.
6.5 NORMAL OPERATION
Normal operation of the HE4XINH units involves continuous running of the fans, shutting down only for periodic maintenance. Various optional control devices may modulate the speed of the fans or may shut down one or more fans, but the fans always have power and are ready to run continuously.
Continuous operation is acceptable in virtually all conditions and the unit will not be damaged as long as air flow occurs. If filters become completely blocked due to lack of maintenance, airflow will be blocked and the blower motors may overheat. Continuous operation during extreme cold weather may lead to frost.
6.6 EXTREME COLD OPERATION
HE4XINH units are capable of operating without internal frosting at temperatures down to -10° F, with indoor humidity below 40%. The units can operate under more severe conditions occasionally with little or no impact on their performance. At lower humidities, they can operate at still lower outside temperatures without freezing the enthalpic cores.
Some condensation or even frost may form on the outside of the unit or drip off the cabinet during very cold conditions, especially if the unit runs continuously. Exterior condensation during extreme cold conditions can be reduced or prevented by periodically cycling the unit OFF for several minutes to allow the cabinet to warm up.
UNIT MAINTENANCE
RenewAire ERVs are built to operate with minimal maintenance. After unit commissioning, the primary areas of attention are the air filters, periodic lubrication of the fan motors and annual vacuuming of the enthalpic cores.
7.1 MAINTENANCE 24 HRS. AFTER START-UP
24 hours after unit start-up:
- Readjust the tension on the motor drive belts.
- In new installations, check the air filters since they will often collect dust, dirt and debris at the time of start-up.
7.2 MAINTENANCE 30 DAYS AFTER START-UP
After 30 days of operation:
- Tighten all electrical connections, paying special attention to VFD wiring (if present).
- Readjust the tension on motor drive belts.
- Check the air filters as part of the normal monthly maintenance.
7.3 MAINTENANCE SCHEDULE
Experience on the part of the service person is the most important issue in establishing a maintenance schedule. There will be times of the year when frequent inspection of the filters will be required, such as spring and summer when there may be pollen, dust, dirt or debris from budding trees and bushes that can clog the filters. Also see Section 7.7 Maintenance Records in this manual.
7.4 FILTERS
Inspection and replacement of air filters is the most frequent maintenance issue. For units that do not have filter air pressure differential sensors, filters must be visually inspected monthly, as a minimum. If a filter looks discolored or dirty, REPLACE IT! When installing new filters, DO NOT USE filter sprays. Residue from the filter spray could migrate to the enthalpic core media and damage the cores.
For units that have filter air pressure differential sensors, a dirty filter alarm will occur on the connected alarm or control device.
Filter cleanliness and replacement is the most important and frequent maintenance issue. Dirty filters will cause an immediate reduction in operating efficiency of the ERV. Normally, filters should be inspected and changed when they are dirty. Paper filters are not to be cleaned, they are to be replaced. In general, if a filter looks dirty, replace it. The best indication of dirty filters is to check the pressure drop across the filter banks with an optional filter monitor. If it is not possible to check the pressure drop, the rule of thumb would be to change the filters every two months.
7.5 FAN MOTORS
The most important issues in motor maintenance are:
- Belt condition and belt tension
- Sheave condition
- Motor cleanliness
- Motor lubrication
7.5.1 Belt Tension
Premature or frequent belt failures can be caused by improper belt tension (either too loose or too tight) or misaligned sheaves. Abnormally high belt tension or drive misalignment will cause excessive bearing loads and may result in failure of the fan and/or motor bearings. Conversely, loose belts will cause squealing on start-up, excessive belt flutter, slippage and overheated sheaves. Both loose and tight belts can cause fan vibration.
WARNING
Danger of injury if unit starts unexpectedly. Switch power off at service disconnect. Lock-out/tagout the disconnect.
WARNING
Danger of Electrical Shock when servicing an installed unit.
ALWAYS DISCONNECT POWER SOURCE BEFORE SERVICING! More than one disconnect switch may be required.
Proper Wiring Size Selection and Wiring Installation are the Responsibility of the Electrical Contractor.
Do not pry belts on or off the sheave. Loosen belt tension until the belts can be removed by simply lifting the belts off the sheaves. After replacing belts, ensure that slack in each belt is on the same side of the drive. Belt dressing should never be used.
The proper belt setting is the lowest tension at which the belts will not slip under peak load operation. For initial tensioning, set the belt deflection at 1/64″ for each inch of belt span (measured half-way between sheave centers). Example: If the belt span is 16″, the belt deflection should be 1/64″, or 1/4″ (using moderate thumb pressure at mid-point of the drive). Check belt tension two times during the first 24 hours of operation and periodically thereafter.

NOTE: Each motor manufacturer specifies the frequency of maintenance and the amount and type of grease to use on the bearings. Do not mix different types of grease. Check the manufacturer’s web site for each specific motor.
CAUTION
DO NOT WASH THE ENTHALPIC CORE. Keep it away from water or fire to avoid damaging it. Always handle the core carefully.
7.5.2 Sheave Condition
Do not install new belts on worn sheaves. If the sheaves have grooves worn in them, they must be replaced before new belts are installed.
7.5.3 Motor Cleanliness
Removing dust and grease buildup on the motor housing assists proper cooling. Never washdown the motor with high pressure spray.
7.5.4 Motor Lubrication
High efficiency motors have unique maintenance requirements that vary from motor to motor. Many smaller horsepower motors have sealed bearings that do not require periodic greasing. Larger horsepower motors come equipped with grease fittings. Before greasing any motor, consult the motor manufacturer’s web site to determine the correct maintenance and greasing schedule.
7.6 ENTHALPIC CORES
Risk of DAMAGE TO ENTHALPIC CORES
CAUTION
7.6.1 Enthalpic Core Maintenance
The enthalpic core media is a fibrous material that must be kept clean at all times. As a minimum, cores should be cleaned once per year.
- DO NOT WASH OR ALLOW THE ENTHALPIC CORES TO GET WET.
- DO NOT EXPOSE THE ENTHALPIC CORES TO HIGH HEAT OR FLAMES.
- DO NOT DIRECT COMPRESSED AIR AT THE CORE MEDIA.
- DO NOT REMOVE THE ENTHALPIC CORES FROM THE ERV UNLESS NECESSARY.
- USE CAUTION WHEN WORKING AROUND THE ENTHALPIC CORES. DO NOT DROP TOOLS OR OTHER OBJECTS ON THE CORES, DO NOT BUMP OR TWIST THE CORES.
Whenever working within the ERV cabinet, protect the enthalpic cores from accidental damage. The core media is subject to damage from dropped tools or other foreign objects.
7.6.2 Enthalpic Core Removal
Before removing enthalpic cores, switch the main disconnect to OFF. Open the door to the Energy Recovery Module and simply pull each core straight out of its guides.
7.6.3 Enthalpic Core Replacement
Cores have foam gasketing on one end of each core. The core should be reinstalled so that the foam gasketing is toward the back of the ERV and the core label is facing toward the front.
To access enthalpic cores for cleaning, remove the air filters.
To clean enthalpic cores, all exposed surfaces must be vacuumed with an attachment having long, soft bristles. The greatest buildup of dirt and dust will normally be on the leading 1–2 inches of the inlet side (closest to the air filters).
When cores are removed from the ERV, they should be immediately protected from accidental damage, water, high heat or flames.
7.7 MAINTENANCE RECORDS
| MAINTENANCE LOG | |||||
| ENTER DATES OF SERVICE | |||||
| OA FILTER CHANGE | RA FILTER CHANGE | INSPECTION/ CLEANING | CLEAN CORE | CLEAN BLOWERS | INITIALS |
7.8 HE4XINH SERVICE PARTS

TROUBLESHOOTING
If problems occur with a RenewAire ERV, the primary resources for trouble-shooting are the unit as-built wiring schematics and the Sequence Of Operation (SOO) for each control scheme.
FACTORY ASSISTANCE
In the unlikely event that you need assistance from the factory for a specific issue, make sure that you have the information called for in the Unit Records page in the Owner Information section of this manual. The person you speak with at the factory will need that information to properly identify the unit and the installed options.
To contact RenewAire Customer Service:
Call 800-627-4499
Email: [email protected]
Remember that RenewAire Customer Service can only assist with the products sold by RenewAire, it cannot resolve engineering issues that result from air handling system design by others.

About RenewAire
For over 35 years, RenewAire has been a pioneer in enhancing indoor air quality (IAQ) in commercial and residential buildings of every size. This is achieved while maximizing sustainability through our fifth-generation, static-plate, enthalpic-core Energy Recovery Ventilators (ERVs) that optimize energy efficiency, lower capital costs via load reduction and decrease operational expenses by minimizing equipment needs, resulting in significant energy savings. Our ERVs are competitively priced, simple to install, easy to use and maintain and have a quick payback. They also enjoy the industry’s best warranty with the lowest claims due to long-term reliability derived from innovative design practices, expert workmanship and Quick Response Manufacturing (QRM).
As the pioneer of static-plate core technology in North America, RenewAire is the largest ERV producer in the USA. We’re committed to sustainable manufacturing and lessening our environmental footprint, and to that end our Waunakee, WI plant is 100% powered by wind turbines. The facility is also one of the few buildings worldwide to
be LEED® Gold and Green Globes certified, as well as having achieved ENERGY STAR Building status. In 2010, RenewAire joined the Soler & Palau (S&P) Ventilation Group in order to provide direct access to the latest in energy-efficient air-moving technologies.
For more information, visit: renewaire.com

Member of the SandP Group
Family of Brands
2023 © RenewAire LLC
134739_008_FEB23![]()


















