
ELECTRIC SAF500E7 Energy Recovery Ventilator
User Manual 

ORIGINAL INSTRUCTIONS
USER’S MANUAL
Model SAF150E7
This air-conditioner complies with the following directive.
Machinery 2006/42/EC
Low Voltage 2014/35/EU
EMC 2014/30/EU
RoHS 2011/65/EU
Ecodesign 2009/125/EC
Energy labeling 2010/30/EU
CE marking is applicable to the area of a 50 Hz power supply.
Thank you very much for having purchased our “Energy Recovery Ventilator. We hope you read through this owner’s manual with care so that you can use the unit correctly. After reading it, please keep it so you can read it whenever necessary.
Cautions on Safety
Never Fail to observe
- If the supply cord is damaged, it must be replaced by the manufacturer, its service agent or similarly qualified persons in order to avoid a hazard.
- This appliance can be used by children aged 8 years and above and persons with reduced physical, sensory or mental capabilities or lack of experience and knowledge if they have been given supervision or instruction concerning the use of the appliance in a safe way and understand the hazards involves.
- Children shall not play with the appliance. Cleaning and user maintenance shall not be made by children without supervision.
- Make sure to disconnect the power plug before cleaning the product.
- Described below are the way we are gaining your attention to what you are supposed to observe to prevent dangers to the users or other people as well as loss to the property.
- The degrees of danger or damage that is likely to occur due to the wrong use and ignoring the indications are categorized for an explanation as marked below.
DANGEROUS
The column with this mark shows ‘Impending Danger of Death or Serious Injury’.
WARNING
The column with this mark shows ‘Conceivable Threat of Death or Serious Injury.
CAUTION
The column with this mark shows the likelihood of Damage or Loss to Materials only”.
Kinds of the items to be observed are categorized for clarification with the following pictorial symbols. (The marks described below are samples.)
This pictorial indication shows ‘Prohibited”.
This pictorial indication shows ‘Forced Execution”.
Cautions for Operation
DANGEROUS
■ Do not use as an air circulator for open-type burners (heaters).
When gas or oil stoves are used in the home. separate equipment for circulating the air should be used.
WARNING
- When any abnormal condition (scorching smell or others) is found. stop the operation immediately and switch the exclusive circuit breaker “OFF”.
If you continue the operation without removing the cause, it could cause an electric shock or a fire. - When the system needs a repair, consult your dealer.
- Don’t push a finger or a stick into the air inlet or the outlet.
A fan with a high rpm will injure you. If the operation were to be attempted in such a situation, sparking at electrical contact points could cause an explosion. - Modification of the system is strictly prohibited.
Improper practice of repair could cause water leakage, an electric shock or fire. - When the system needs a repair. consult your dealer.
If there is combustible gas leakage from other appliances, ventilate the room by opening windows. - Netting or something similar should be provided at the external air intake opening to prevent birds etc. interfering with the unit.
Nests or other foreign objects should be removed. That could lead to a lack of oxygen in the room.
If the supply cord is damaged, it must be replaced by the manufacturer or its service agent or a similarly qualified person in order to avoid a hazard.
CAUTION
- It is strictly prohibited to place a container of combustible gas or liquid near Energy Recovery Ventilators or to spray it directly with the gas or liquid.
It could cause a fire. - Do not use outside the rated voltage.
It could cause a fire or an electric shock. - This appliance can be used by children aged 8 years and above and persons with reduced physical, sensory or mental capabilities or lack of experience and knowledge
If they have been given supervision or instruction concerning the use of the appliance in a safe way and understand the hazards involved - Children shall not play with the appliance.
Cleaning and user maintenance shall not be made by children without supervision. - Combustion apparatus should not be placed allowing a direct exposure to the wind of Energy Recovery Ventilators
Incomplete combustion could occur on the apparatus. - Don’t blow directly towards animals or plants.
Likely to cause bad effects on animals and plants. - Don’t put a container of water on Energy Recovery Ventilators.
When water spills, it is likely to enter inside the unit and degrade electric insulation, possibly resulting in an electric shock. - Do not wash Energy Recovery Ventilators with water.
It could cause an electric shock. - Do not handle switches with a wet hand.
It could cause an electric shock. - If Energy Recovery Ventilators are not used for a long period of time, switch the exclusive circuit breaker “OFF” for safety reasons.
If the power is left on. any build-up of dust could cause a heat generation or a fire.
Cautions for Installation
CAUTION
- The system should never be used for any other purposes than intended such as for the preservation of foods. flora and fauna. precision devices or works of art.

- It could cause deterioration of foods or other problems.
- Don’t incline Energy Recovery Ventilators when removing the unit. 0 Prohibited
Otherwise. the water remaining inside is likely to drop and wet the furniture or other property. - Ask the sales office or the engineering shop to perform the work.
Features
Main Features
- Energy-saving ventilation Thanks to efficient recovery of thermal energy lost during Ventilation (load incurred by outside air), you can save an air-conditioning fee.
- Facility saving Thanks to a drastic reduction of load incurred by outside air, you can make air-conditioners more compact in parallel with the recovery of thermal energy.
- Humidity adjusting effect In a cooling mode, a highly humid openair is brought near to a dehumidified room atmosphere and then supplied. In a heating mode, room humidity is transferred to the dry outside air and then supplied.
- Comfortable and consistent ventilation Ventilation is available with the least possible fluctuation of room temperature. Since exhaust and air intake are performed simultaneously, stable ventilation is possible even in a highly airtight room.
- Sound shield effect The ducts of the unit and the heat exchange element are characteristic of the sound shield effect. Thus, it prevents outside noise from coming into the unit and also sound inside the unit from going out, so that the office and store environment can be preserved.
Name of Each Part
Specific Caution Items
Checking Location of Installation
These Energy Recovery Ventilators have been designed especially for use In offices, and conference rooms. etc. Please check to ensure that neither the main unit nor the inlet-outlet grill is installed in any of the following locations.
Locations exposed to high temperatures or direct flame. Avoid installing the Energy Recovery Ventilators or the inlet-outlet grill in locations that reach temperatures of 40°C or above. Usage under high-temperature conditions may cause distortion of the filter or Heat Exchange Element or motor burn-out.
Locations with high humidity. Do not install in high humidity locations such as bathrooms. Doing so may cause a breakdown of the unit or an electric shock.
Locations with large amounts of oily smoke, such as food preparation areas. The unit will become inoperable if the fitter or Heat Exchange Element becomes clogged with oil.
Make sure that Inspection Opening Is provided so that filter and Heat Exchange Element maintenance and periodic spot checks of the unit can be easily carried out. (Refer to the Model Installation for its space)
Do not install the unit in locations such as machinery or chemical plants where it will be exposed to noxious gases containing acids, alkali, organic solvents, and paint fumes. etc., to gases containing corrosive ingredients, or where dust or oil mist will be produced.
If there are any problems concerning the location or installation of the unit, please consult either store from which it was purchased or the agent who installed it.
When Using
Always be sure to use a filter. Failure to do so may cause dust and dirt to build up on the heat exchange element. lowering its efficiency and rendering it inoperable.
Operate the Energy Recovery Ventilator Remocon with certainty.ln particular. suddenly turning the switch on and off will not only cause improper operation of the unit.but will also affect the relay inside the switch. and may damage it.
Never operate the “Normal ventilation” during the winter when the room Is being heated, as this will cause condensation to form inside the unit and in the inlet-outlet vent. 
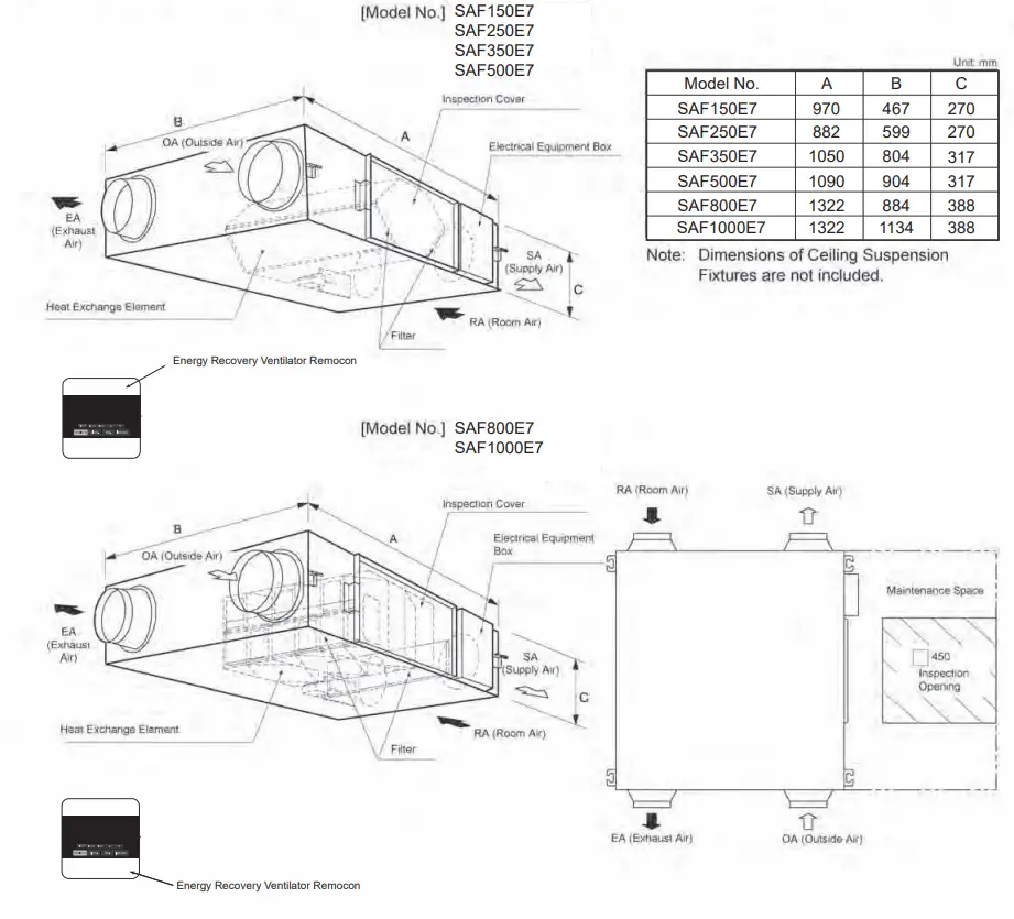
Model Installation

Note that when installing a unit body upside down, its printed indication is in a reversed position.
Method of Use
For detail, please refer to the”Energy Recovery Ventilator Remocon” manual.
After-sales Service
- Request for Spot Checks To ensure safe, correct usage, we suggest that you consider a maintenance contract. For details, inquire at the store where you bought your unit, or at the agent which installed il.
- If You Think It Broken
Examine the unit as shown in the table below, and if you find any irregularities, shut It off immediately and contact the store where you bought your unit or the agent who installed it to request servicing (or consultation).
| Symptom | Where to look |
| No activity, even when the switch is on. No air comes out | Is the fuse blown or the breaker tripped? Is the power out? Check whether or not there is dust on the filters and the Heat Exchange Element. (Clean it according to the Maintenance Manual.) |
SPECIFICATIONS
| Item…………Model No. | SAF150E7 | |||||
| Power Source | 220-240V~ 50Hz | |||||
| Ventilation Mode | Heat Exchange Ventilation | Normal Ventilation | ||||
| Notch | (Extra high) | High | Low | (Extra high) | High | Low |
| Input (W) | 97-114 | 92-107 | 69-77 | 97-114 | 92-107 | 69-77 |
| Air Volume (m3/h) | 150 | 150 | 120 | 150 | 150 | 120 |
| External Static Pressure (Pa) | 80 | 70 | 25 | 80 | 70 | 25 |
| Noise (dB) | 28.5-29.0 | 28.0-29.0 | 19.5-21.5 | 28.5-29.0 | 28.0-29.0 | 19.5-21.5 |
| Temperature Exchange Efficiency(%) | 75 | 75 | 77 | — | — | — |
| Dimensions(mm) | Width 970 × Depth 467 × Height 270 | |||||
| Weight (kg) | 25 | |||||
| Item………………..Model No. | SAF250E7 | |||||
| Power Source | 220-240V~ 50Hz | |||||
| Ventilation Mode | Heat Exchange Ventilation | Normal Ventilation | ||||
| Notch | (Extra high) | High | Low | (Extra high) | High | Low |
| Input (W) | 112-128 | 108-123 | 87-96 | 112-128 | 108-123 | 87-96 |
| Air Volume (m3/h) | 250 | 250 | 190 | 250 | 250 | 190 |
| External Static Pressure (Pa) | 105 | 95 | 45 | 105 | 95 | 45 |
| Noise (dB) | 30.0-31.5 | 29.5-30.5 | 23.5-26.5 | 30.0-31.5 | 29.5-30.5 | 23.5-26.5 |
| Temperature Exchange Efficiency(%) | 75 | 75 | 77 | — | — | — |
| Dimensions(mm) | Width 882 × Depth 599 × Height 270 | |||||
| Weight (kg) | 29 | |||||
| Item…………………Model No. | SAF350E7 | |||||
| Power Source | 220-240V~ 50Hz | |||||
| Ventilation Mode | Heat Exchange Ventilation | Normal Ventilation | ||||
| Notch | (Extra high) | High | Low | (Extra high) | High | Low |
| Input (W) | 182-190 | 178-185 | 175-168 | 182-190 | 178-185 | 175-168 |
| Air Volume (m3/h) | 350 | 350 | 240 | 350 | 350 | 240 |
| External Static Pressure (Pa) | 140 | 60 | 45 | 140 | 60 | 45 |
| Noise (dB) | 32.5-33.0 | 30.5-31.0 | 22.5-25.5 | 32.5-33.0 | 30.5-31.0 | 22.5-25.5 |
| Temperature Exchange Efficiency(%) | 75 | 75 | 78 | — | — | — |
| Dimensions(mm) | Width 1050 × Depth 804 × Height 317 | |||||
| Weight (kg) | 49 | |||||
| Item………………..Model No. | SAF500E7 | |||||
| Power Source | 220-240V~ 50Hz | |||||
| Ventilation Mode | Heat Exchange Ventilation | Normal Ventilation | ||||
| Notch | (Extra high) | High | Low | (Extra high) | High | Low |
| Input (W) | 263-289 | 204-225 | 165-185 | 263-289 | 204-225 | 165-185 |
| Air Volume (m3/h) | 500 | 500 | 440 | 500 | 500 | 440 |
| External Static Pressure (Pa) | 120 | 60 | 35 | 120 | 60 | 35 |
| Noise (dB) | 36.5-37.5 | 34.5-35.5 | 31.0-32.5 | 37.5-38.5 | 37.0-38.0 | 31.0-32.5 |
| Temperature Exchange Efficiency(%) | 75 | 75 | 76 | — | — | — |
| Dimensions(mm) | Width 1090 × Depth 904 × Height 317 | |||||
| Weight (kg) | 57 | |||||
| Item…………………..Model No. | SAF800E7 | |||||
| Power Source | 220-240V~ 50Hz | |||||
| Ventilation Mode | Heat Exchange Ventilation | Normal Ventilation | ||||
| Notch | (Extra high) | High | Low | (Extra high) | High | Low |
| Input (W) | 387-418 | 360-378 | 293-295 | 387-418 | 360-378 | 293-295 |
| Air Volume (m3/h) | 800 | 800 | 630 | 800 | 800 | 630 |
| External Static Pressure (Pa) | 140 | 110 | 55 | 140 | 110 | 55 |
| Noise (dB) | 37.0-37.5 | 36.5-37.0 | 33.5-34.5 | 37.0-37.5 | 36.5-37.0 | 33.5-34.5 |
| Temperature Exchange Efficiency(%) | 75 | 75 | 76 | — | — | — |
| Dimensions(mm) | Width 1322 × Depth 884 × Height 388 | |||||
| Weight (kg) | 71 | |||||
| Item…………………….Model No. | SAF1000E7 | |||||
| Power Source | 220-240V~ 50Hz | |||||
| Ventilation Mode | Heat Exchange Ventilation | Normal Ventilation | ||||
| Notch | (Extra high) | High | Low | (Extra high) | High | Low |
| Input (W) | 437-464 | 416-432 | 301-311 | 437-464 | 416-432 | 301-311 |
| Air Volume (m3/h) | 1000 | 1000 | 700 | 1000 | 1000 | 700 |
| External Static Pressure (Pa) | 105 | 80 | 75 | 105 | 80 | 75 |
| Noise (dB) | 37.5-38.5 | 37.0-37.5 | 33.5-34.5 | 39.5-40.5 | 39.0-39.5 | 35.5-36.5 |
| Temperature Exchange Efficiency(%) | 75 | 75 | 79 | — | — | — |
| Dimensions(mm) | Width 1322 × Depth 1134 × Height 388 | |||||
| Weight (kg) | 83 | |||||
(Note) The ratings mentioned above show the values under the external static pressure. (Only the noise level shows the value under the external static pressure: 0Pa)
The noise level shall be measured at 1.5 m below the center of the unit. (It shall be measured in the acoustic room.)
16-5 Konan 2-Chome, Minato-ku, Tokyo, 108-8215, Japan
declare under our sole responsibility that the apparatus referred to in this declaration conforms with the following directives.
Description of apparatus: Heat Exchanger Unit
Model name: SAF Series
Relevant EU Directives :
Machinery Directive 2006/42/EC
Applied Standards :
EN 60335-1
Authorized representative in EU :
7 Roundwood Avenue, Stockley Park, Uxbridge, Middlesex, UB11 1AX, United Kingdom
Note : About the detail of the Conformity model, see EC DECLARATION OF CONFORMITY sheet included in a package
If you continue the operation without removing the cause, it could cause an electric shock or a fire.
A fan with a high rpm will injure you. If the operation were to be attempted in such a situation, sparking at electrical contact points could cause an explosion.
Improper practice of repair could cause water leakage, an electric shock or fire.
Likely to cause bad effects on animals and plants.
It could cause an electric shock.
It could cause an electric shock.
If the power is left on. any build-up of dust could cause a heat generation or a fire.


















