VENTS ICF Impulse Centrifugal Fan 
This user’s manual is a main operating document intended for technical, maintenance, and operating staff.
The manual contains information about purpose, technical details, operating principle, design, and installation of the ICF unit and all its modifications.
Technical and maintenance staff must have theoretical and practical training in the field of ventilation systems and should be able to work in accordance with workplace safety rules as well as construction norms and standards applicable in the territory of the country.
SAFETY REQUIREMENTS
- All user’s manual requirements as well as the provisions of all the applicable local and national construction, electrical, and technical norms and standards must be observed when installing and operating the unit.
- Disconnect the unit from the power supply prior to any connection, servicing, maintenance, and repair operations.
- Only qualified electricians with a work permit for electrical units up to 1000 V are allowed for installation and maintenance. The present user’s manual should be carefully read before beginning works.
- Check the unit for any visible damage of the impeller, the casing, and the grille before starting installation. The casing internals must be free of any foreign objects that can damage the impeller blades.
- While mounting the unit, avoid compression of the casing! Deformation of the casing may result in motor jam and excessive noise.
- Misuse of the unit and any unauthorised modifications are not allowed.
- Do not expose the device to adverse atmospheric agents (rain, sun, etc.).
- Transported air must not contain any dust or other solid impurities, sticky substances, or fibrous materials.
- Do not use the unit in a hazardous or explosive environment containing spirits, gasoline, insecticides, etc.
- Do not close or block the intake or extract vents in order to ensure the efficient air flow.
- Do not sit on the unit and do not put objects on it.
- The information in this user’s manual was correct at the time of the document’s preparation. The Company reserves the right to modify the technical characteristics, design, or configuration of its products at any time in order to incorporate the latest technological developments. Never touch the unit with wet or damp hands.
- Never touch the unit when barefoot.
- This appliance is not intended for use by persons (including children) with reduced physical, sensory or mental capabilities, or lack of experience and knowledge, unless they have been given supervision or instruction concerning use of the appliance by a person responsible for their safety.
- Children should be supervised to ensure that they do not play with the appliance.
- The connection to the supply mains must be made through a means of disconnection, which is incorporated in the fixed wiring in accordance with the wiring rules, and has a contact separation in all poles that allows for full disconnection under overvoltage category III conditions.
- If the supply cord is damaged, it must be replaced by the manufacturer, its service agent, or similarly qualified persons in order to avoid a safety hazard.
- Ensure that the appliance is switched off from the supply mains before removing the guard.
- Precautions must be taken to avoid the back-flow of gases into the room from the open flue of gas or other fuel-burning appliances.
PURPOSE
The ICF series impulse centrifugal fan is applied in ventilation and smoke extraction systems of underground parkings and garages. The fans with fire resistance ratings of +200 °C, +300 °C and +400 °C are designed for 2 hours of non-stop operation for smoke extraction. The fan generates a pressurized air jet and it shifts the polluted air or smoke from the premise to exhaust air shafts.
Transported air must not contain any flammable or explosive mixtures, evaporation of chemicals, sticky substances, fibrous materials, coarse dust, soot and oil particles or environments favourable for the formation of hazardous substances (toxic substances, dust, pathogenic germs).
DELIVERY SET
| Name | Number |
| Fan | 1 pc. |
| User’s manual | 1 pc. |
| Packing | 1 pc. |
DESIGNATION KEY
*The fans with a fire resistance class of 200 °C/2 hours can be produced on request.
The specifications of 200 °C/2 hours fans fully correspond to models designed for 300 °C/2 hours.
TECHNICAL DATA
The unit is rated as a class I electric appliance.
Hazardous parts access and water ingress protection rating is IP55.
The unit design is regularly improved, so some models may slightly differ from those ones described in this manual.
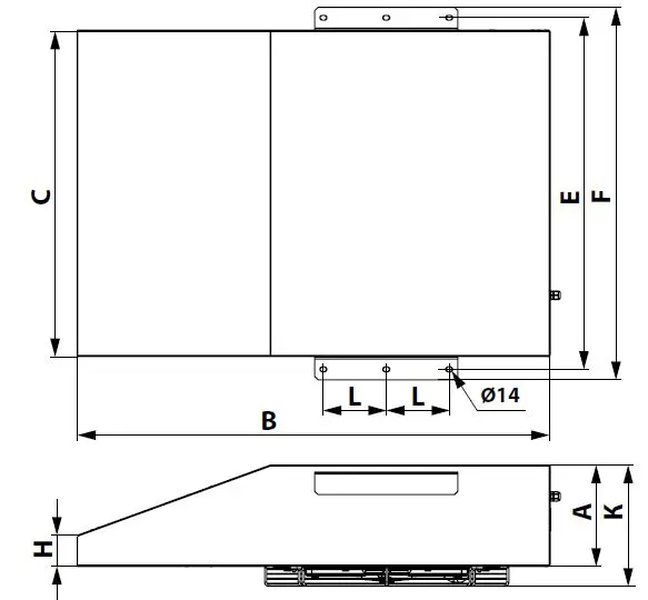
| Model | Dimensions [mm] | Weight [kg] | |||||||
| A | B | C | E | F | H | L | K | ||
| ICF-50N… | 290 | 1355 | 935 | 1005 | 1065 | 90 | 180 | 350 | 96 |
| ICF-50N-…-60Hz | 265 | 1353 | 935 | 1006 | 1066 | 90 | 180 | 322 | 92 |
| ICF-85N… | 330 | 1605 | 1105 | 1175 | 1235 | 110 | 230 | 390 | 136 |
| ICF-100N… | 330 | 1605 | 1105 | 1175 | 1235 | 110 | 230 | 390 | 138 |

| Model | Power supply voltage [V] | Frequency [Hz] | Air capacity [m3/h] | Input power [kW] | Thrust (impulse) [N] | Air velocity [m/s] | RPM [min-1] | Max. operating temperature [°C]* | Fire resistance | Sound pressure Lp(A) at a distance of 3 m [dB] |
| 50N, single-speed | ||||||||||
| ICF-50N-4 | 3~ 400 | 50 | 6200 | 1.5 | 50 | 20.5 | 1500 | –25 – +55 °C | 55 °C | 72 |
| ICF-50N-4-300/2 | 300 °C/2 hours | F300 | ||||||||
| ICF-50N-4-400/2 | 400 °C/2 hours | F400 | ||||||||
| ICF-50N-4-60Hz | 3~ 400 | 60 | 6400 | 1.5 | 50 | 22.3 | 1800 | –25 – +55 °C | 55 °C | 72 |
| ICF-50N-4-300/2-60Hz | 300 °C/2 hours | F300 | ||||||||
| ICF-50N-4-400/2-60Hz | 400 °C/2 hours | F400 | ||||||||
| 50N, double-speed | ||||||||||
| ICF-50N-4/6 | 3~ 400 | 50 | 6200 / 4100 | 1.5 / 0.37 | 50 / 20 | 20.5 / 13.5 | 1500 / 1000 | –25 – +55 °C | 55 °C | 72 / 59 |
| ICF-50N-4/6-300/2 | 300 °C/2 hours | F300 | ||||||||
| ICF-50N-4/6-400/2 | 400 °C/2 hours | F400 | ||||||||
| ICF-50N-4/8 | 3~ 400 | 50 | 6200 / 3100 | 1.6 / 0.4 | 50 / 13 | 20.5 / 10.2 | 1500 / 750 | –25 – +55 °C | 55 °C | 72 / 57 |
| ICF-50N-4/8-300/2 | 300 °C/2 hours | F300 | ||||||||
| ICF-50N-4/8-400/2 | 400 °C/2 hours | F400 | ||||||||
| ICF-50N-4/6-60Hz | 3~ 400 | 60 | 6400 / 4250 | 1.5 / 0.37 | 50 / 20 | 22.3 / 14.2 | 1800 / 1200 | –25 – +55 °C | 55 °C | 72 / 59 |
| ICF-50N-4/6-300/2-60Hz | 300 °C/2 hours | F300 | ||||||||
| ICF-50N-4/6-400/2-60Hz | 400 °C/2 hours | F400 | ||||||||
| ICF-50N-4/8-60Hz | 3~ 400 | 60 | 6400 / 3200 | 1.6 / 0.4 | 50 / 13 | 22.3 / 11.1 | 1800 / 900 | –25 – +55 °C | 55 °C | 72 / 57 |
| ICF-50N-4/8-300/2-60Hz | 300 °C/2 hours | F300 | ||||||||
| ICF-50N-4/8-400/2-60Hz | 400 °C/2 hours | F400 | ||||||||
| 85N, single-speed | ||||||||||
| ICF-85N-4 | 3~ 400 | 50 | 9750 | 2.2 | 85 | 22.3 | 1500 | –25 – +55 °C | 55 °C | 76 |
| ICF-85N-4-300/2 | 300 °C/2 hours | F300 | ||||||||
| ICF-85N-4-400/2 | 400 °C/2 hours | F400 | ||||||||
| 85N, double-speed | ||||||||||
| ICF-85N-4/6 | 3~ 400 | 50 | 9750 / 5950 | 2.2 / 0.7 | 85 / 28 | 22.3 / 13.6 | 1500 / 1000 | –25 – +55 °C | 55 °C | 76 / 63 |
| ICF-85N-4/6-300/2 | 300 °C/2 hours | F300 | ||||||||
| ICF-85N-4/6-400/2 | 400 °C/2 hours | F400 | ||||||||
| ICF-85N-4/8 | 3~ 400 | 50 | 9750 / 4150 | 2.2 / 0.55 | 85 / 20 | 22.3 / 9.5 | 1500 / 750 | –25 – +55 °C | 55 °C | 76 / 60 |
| ICF-85N-4/8-300/2 | 300 °C/2 hours | F300 | ||||||||
| ICF-85N-4/8-400/2 | 400 °C/2 hours | F400 | ||||||||
| 100N, single-speed | ||||||||||
| ICF-100N-4 | 3~ 400 | 50 | 10200 | 3.0 | 100 | 23.3 | 1500 | –25 – +55 °C | 55 °C | 78 |
| ICF-100N-4-300/2 | 300 °C/2 hours | F300 | ||||||||
| ICF-100N-4-400/2 | 400 °C/2 hours | F400 | ||||||||
| 100N, double-speed | ||||||||||
| ICF-100N-4/8 | 3~ 400 | 50 | 10200 / 5150 | 2.8 / 0.7 | 100 / 26 | 23.3 / 11.8 | 1500 / 750 | –25 – +55 °C | 55 °C | 78 / 63 |
| ICF-100N-4/8-300/2 | 300 °C/2 hours | F300 | ||||||||
| ICF-100N-4/8-400/2 | 400 °C/2 hours | F400 | ||||||||
DESIGN AND OPERATING PRINCIPLE
The fan casing is made of polymer coated steel. The protection grille on the air inlet side prevents ingress of foreign objects. The deflecting plates on the pressure side ensure equal air distribution and boost air draft.
Depending on the fan modification it is equipped with a single-speed 4-pole motor or a double-speed 4/6- or 4/8-pole asynchronous motor. Steel impeller with backward curved blades.
MOUNTING AND SET-UP
- ALL OPERATIONS DESCRIBED IN THIS USER’S MANUAL MUST BE PERFORMED BY QUALIFIED PERSONNEL ONLY, PROPERLY TRAINED AND QUALIFIED TO INSTALL AND MAINTAIN VENTILATION EQUIPMENT.
- DO NOT ATTEMPT TO INSTALL THE PRODUCT YOURSELF.
- IT IS UNSAFE AND IMPOSSIBLE WITHOUT SPECIAL KNOWLEDGE.
- WHILE INSTALLING THE UNIT ENSURE CONVENIENT ACCESS FOR SUBSEQUENT MAINTENANCE AND REPAIR.
Before installing the unit, carry out the following checks:
- Make sure that the fan impeller rotates freely.
- Make sure there is no condensate on the motor.
- Check the electrical resistance of insulation between the motor windings and between each winding and the motor casing.
The unit is attached to the ceiling by means of specially designed mounting brackets. The fan is fixed to the ceiling in 6 points with expansion anchors or mounting studs.
The fasteners for mounting of the fan are not included in the delivery set and must be purchased separately. For selection of the fastener type consider the mounting surface material and fan weight. For details, please refer to the fan technical data. Selection of fasteners must be performed by a qualified service technician.
After installing the unit, you need to make sure that the fan impeller rotates freely.
CONNECTION TO POWER MAINS
- DISCONNECT THE POWER SUPPLY PRIOR TO ANY OPERATIONS WITH THE UNIT.
- CONNECTION OF THE UNIT TO POWER MAINS IS ALLOWED BY A QUALIFIED ELECTRICIAN WITH A WORK PERMIT FOR THE ELECTRIC UNITS UP TO 1000 V AFTER CAREFUL READING OF THE PRESENT USER’S MANUAL.
- THE RATED ELECTRICAL PARAMETERS OF THE UNIT ARE GIVEN ON THE MANUFACTURER’S LABEL.
- ANY TAMPERING WITH THE INTERNAL CONNECTIONS IS PROHIBITED AND WILL VOID THE WARRANTY.
The impulse centrifugal fan is a component part of the ventilation system and is not designed for standalone operation. The fan must be integrated in the ventilation or smoke extraction system and equipped with automatic control.
The fan is rated for connection to three-phase AC power mains in accordance with the parameters specified in the table in the Technical data section.
The cable selection must be based on the maximum permissible wire heating depending on the wire type, its insulation, length and installation method (i.e. overhead, in pipes or inside the walls).
Connection of the fan for smoke extraction must be performed via a cable with a respective fire-resistance class. Quality and mounting of the fire-resistant power cable must provide trouble-free durable operation of the fan in case of fire. The fan motor has no integrated thermal protection. Consider this fact during selection of the motor starter and the contactor.
The fan motor must be connected to power supply in compliance with wiring diagram and terminal designations and wired through the terminal block X1. The terminal block is located in the terminal box and the terminal marking is shown on the label attached to the terminal box. The terminal box is located inside of the fan casing.
Wiring steps:
- Unscrew the terminal box from the casing wall and remove it.
- Unscrew the terminal box lid and remove it.
- Route the power cable through the sealed cable gland on the terminal box lid and wire the unit in compliance with the wiring diagram.
- Re-install and re-attach the terminal box.

Wiring diagrams

MAKE SURE THAT THE FAN IMPELLER ROTATES IN THE DIRECTION MARKED BY THE ARROW ON THE FAN CASING.
IF NECESSARY, CHANGE THE IMPELLER ROTATION DIRECTION BY ALTERING THE PHASE SEQUENCE ON THE ELECTRIC MOTOR TERMINALS.
ASYNCHRONOUS ELECTRIC MOTOR STARTING METHODS
There are several methods for starting asynchronous squirrel-cage electric motors.
The most common methods are: direct-on-line (DOL), with a soft starter (SS) or with a frequency converter (FC).
Direct-on-line starting
- In case of direct-on-line starting (i.e. by connecting the motor to the electric mains with a simple line contactor), the motor starting time significantly increases due to high inertia of the impeller, which, in turn, results in high in-rush starting currents in the circuit. These currents of long duration may cause voltage slumps (especially if the feed line section falls short of the requirements), which may affect load operation.
- The in-rush current consumed by an electric motor in case of DOL starting is 5-8 times larger than the rated value (or even 10-14 times larger in some rare instances). It should be noted that the torque developed by the motor also significantly exceeds the rated value. Upon energisation the motor operates as a transformer with a squirrel-cage secondary winding formed by the rotor cage with a very low resistance.
- The rotor develops high induced current causing a rush of current in the feed line.
- The startup torque during starting averages 0.5-1.5 of the rated torque value.
- Despite such advantages as simple construction, high startup current, quick start and low cost, direct-on-line systems are suitable only in the following cases:
- the motor power is low compared to the mains power which limits the adverse effect of the rush of current
- the driven mechanism does not require gradual speed build-up or is equipped with a damping device to smooth out the inrush
- the high startup torque has no adverse effects on the operation of the driven mechanism
Soft start. SS starting.
A soft starter gradually increases the voltage supplied to the motor – from the initial to the rated value. This starting system can be used to meet the following goals:
- limit the motor current
- regulate the torque
Regulation by limiting the current sets the maximum in-rush current equal to 300-400 % (or 250 % in some rare instances) of the rated current and reduces torque characteristics. This type of regulation is especially suited for turbomachinery such as centrifugal pumps and fans.
Regulation by variation of torque optimizes the torque during startup and reduces in-rush current in the circuit. These conditions are suitable for mechanisms with constant load resistance. This type of soft starting may differ in the implementation pattern:
- motor start
- motor start and stop
- device bridging at the end of start sequence
- start and stop of several motors in stage circuits
Soft start. FC starting.
During the starting the FC raises the frequency from 0 Hz to the electrical mains frequency (50 or 60 Hz). As the frequency is increased gradually, the motor can be assumed to operate at its rated speed for a given frequency value. Furthermore, on the assumption that the motor runs at its rated speed the nominal torque should be immediately available whereas the current will be approximately equal to the rated value.
This starting system is used for speed control and regulation and can be used in the following cases:
- start with high-inertia load
- start with high load and limited-capacity power supply source
- optimization of electric power consumption depending on turbomachinery speed The aforementioned starting system can be used for all types of mechanisms.
Problems associated with DOL starting
The problems caused by DOL starting may be divided into two groups:
- An abrupt start causes mechanical shock, jolts in the mechanism, shock removal of free play etc.
- A heavy start cannot be completed.
Let us review three variations of a heavy start:
- The feed line performance is barely sufficient or insufficient to maintain the induced current.
Typical symptoms: Upon starting the circuit breakers at the system input are tripped; the lights, certain relays and contactors go off, and the supply generator shuts down.
Solution: In the best-case scenario an SS device may help reduce the in-rush current to 250 % of the motor rated current. If this is insufficient, an FC is necessary. - The motor cannot start the mechanism with DOL starting.
Typical symptoms: The motor fails to turn or “freezes” at certain speed which is maintained until actuation of the protection suite. Solution: This problem may not be solved with an SS device. The motor develops insufficient shaft torque. However, this problem can be addressed by using an FC, but each case may be different. - The motor spins up the mechanism with authority, but fails to reach the rated rotation speed.
Typical symptoms: The input automatic circuit breaker is tripped during spin-up. This often happens with heavy-weight fans with a considerable rotation speed.
Solution: Such problems may be addressed with an SS device, but not with 100 % certainty. The closer the motor speed to the rated value during the actuation of the protective equipment, the higher the chances of success. The use of an FC in this case helps solve the problem fundamentally.
Standard switching equipment (automatic circuit breakers, contactors and motor starters) is not designed to withstand prolonged overloads normally causing the fan to shut down automatically DOL starting that continues for a long period of time.
Using switching equipment with a higher maximum current rating renders the electric motor protection system less sensitive. As a result the switching equipment will not be able to detect motor overload in time due to a high current sensing threshold. Such problems as mentioned above can only be addressed by utilizing a soft starter or a frequency converter to start the fan.
COMMISSIONING
THE ORGANISATION RESPONSIBLE FOR THE COMMISSIONING SHALL BE RESPONSIBLE FOR PROPER MOTOR PHASING AND STARTING PATTERN SELECTION.
DURING STARTING THE IN-RUSH CURRENTS OF THE FAN MAY SEVERAL TIMES EXCEED THE RATED VALUES.
SEE “ASYNCHRONOUS ELECTRIC MOTOR STARTING METHODS” IN THE “CONNECTION TO POWER MAINS” SECTION
- After fan starting make sure that the electric motor rotates properly without undue vibration and abnormal noise.
- Make sure that the fan impeller rotates in the direction marked by the arrow on the fan casing. If necessary, change the rotation direction of the impeller by reversing the phase sequence (for a three-phase motor) or by rewiring according to the wiring diagram located inside the terminal box (for a single-phase motor).
- Make sure that the fan energy consumption complies with the value given on the equipment nameplate and check the motor for overheating.
- The phase current should be checked once the fan reaches the rated operating conditions.
- Do not switch the fan on and off several times without pauses as this may result in damage to the winding or insulation due to overheating.
TECHNICAL MAINTENANCE
- DISCONNECT THE UNIT FROM POWER SUPPLY BEFORE ANY MAINTENANCE OPERATIONS!
- PRIOR TO COMMENCING ANY TECHNICAL MAINTENANCE PUT UP A PROHIBITORY SIGN ON THE FAN STARTING PANEL:
“DO NOT SWITCH ON! MEN AT WORK!” - AVOID LIQUID SPILLS ON THE MOTOR! DO NOT USE AGGRESSIVE SOLVENTS AND SHARP OBJECTS FOR CLEANING!
Disconnect the unit from power mains and wait for all rotating parts to be at a complete standstill before carrying out any technical maintenance and repair operations.
While performing technical maintenance:
- Check the grounding screw terminals and electric connectors for proper tightness and tighten them up if necessary.
- Check the casing fastening screws for tightness and tighten them up if necessary.
- Check the bolt connecting the motor shaft to the hub for proper tightness and tighten it up if necessary.
- Check the bolt connecting the motor shaft to the hub for proper tightness and tighten it up if necessary.
Technical maintenance must be carried out at least once a year.
Dismantling the motor and impeller for technical maintenance
POSSIBLE REASONS AND TROUBLESHOOTING
| Problem | Possible reasons | Troubleshooting |
| The fan does not get started. | No power supply. | Check the automatic circuit breaker. Check the electric connections. |
| Jammed motor. | Carefully check the fan impeller for possible seizure and eliminate it, if necessary. If the impeller is in order, replace the electric motor. | |
| The automatic breaker activates upon fan start-up. | Short circuit in the fan or the electric circuit between the fan and the automatic circuit breaker. | Eliminate the cause of a short circuit. |
| Excessive current consumption due to an overload in the electric mains. | Eliminate the cause of excessive current consumption. | |
| Improper fan starting method. | Use a soft starter or frequency converter to start the motor (see “Asynchronous electric motor starting methods” in the “Connection to power mains” section). | |
| Improper automatic circuit breaker. | Re-select the automatic circuit breaker in accordance with the current regulations and equipment specifications. | |
| The installed automatic circuit breaker is of poor quality or its actual performance falls short of the rated values stated by the manufacturer. | Re-select the automatic circuit breaker by choosing a unit which successfully passed commutation and load tests and has a technical compliance certificate. The selection should be limited to the top five foreign switching equipment manufacturers. | |
| The fan fails to reach the required rotation speed due to serious overheating of the fan motor. | Fan motor overloaded. | Eliminate the overload. |
| Improper fan starting method. | Use a soft starter or frequency converter to start the motor (see “Asynchronous electric motor starting methods” in the “Connection to power mains” section). | |
| The fan motor runs at overload capacity with current consumption in excess of the rated value. | Wrong motor phasing. The impeller rotates in the opposite direction of the arrow on the fan casing. | If necessary, change the impeller rotation direction by changing the phase sequence on the electric motor terminals. |
| The fan supplies more air than expected. | Wrong choice of the fan. | Replace the fan with a unit of proper standard size. |
| The fan supplies less air than expected. | Wrong choice of the fan. | Re-calculate the parameters and select the right fan. |
| Wrong direction of the impeller rotation direction. | If necessary, change the impeller rotation direction by changing the phase sequence on the electric motor terminals. (see the “Commissioning” section). | |
| Impeller contamination with foreign objects or debris. | Clean the impeller from foreign objects or debris. | |
| Increased noise, vibration in the fan. | Loose screw connections. | Check the screw connections for proper tightness. |
| No vibration mounts on the fan. | Install the anti-vibration mounts. | |
| Impeller contamination with foreign objects or debris. | Clean the impeller from foreign objects or debris. | |
| Worn bearings. | Replace the bearings. | |
| Unstable power supply, unstable motor operation. | Check the stability of power supply parameters and electric motor operation. |
STORAGE AND TRANSPORTATION REGULATIONS
- Store the unit in the manufacturer’s original packaging box in a dry closed ventilated premise with temperature range
from +5 °C to + 40 °C and relative humidity up to 70 %. - Storage environment must not contain aggressive vapors and chemical mixtures provoking corrosion, insulation, and sealing deformation.
- Use suitable hoist machinery for handling and storage operations to prevent possible damage to the unit.
- Follow the handling requirements applicable for the particular type of cargo.
- The unit can be carried in the original packaging by any mode of transport provided proper protection against precipitation and mechanical damage. The unit must be transported only in the working position.
- Avoid sharp blows, scratches, or rough handling during loading and unloading.
- Prior to the initial power-up after transportation at low temperatures, allow the unit to warm up at operating temperature for at least 3-4 hours.
MANUFACTURER’S WARRANTY
The product is in compliance with EU norms and standards on low voltage guidelines and electromagnetic compatibility. We hereby declare that the product complies with the provisions of Electromagnetic Compatibility (EMC) Directive 2014/30/EU of the European Parliament and of the Council, Low Voltage Directive (LVD) 2014/35/EU of the European Parliament and of the Council and CE-marking Council Directive 93/68/EEC. This certificate is issued following test carried out on samples of the product referred to above.
The manufacturer hereby warrants normal operation of the unit for 24 months after the retail sale date provided the user’s observance of the transportation, storage, installation, and operation regulations. Should any malfunctions occur in the course of the unit operation through the Manufacturer’s fault during the guaranteed period of operation, the user is entitled to get all the faults eliminated by the manufacturer by means of warranty repair at the factory free of charge. The warranty repair includes work specific to elimination of faults in the unit operation to ensure its intended use by the user within the guaranteed period of operation. The faults are eliminated by means of replacement or repair of the unit components or a specific part of such unit component.
The warranty repair does not include:
- routine technical maintenance
- unit installation/dismantling
- unit setup
To benefit from warranty repair, the user must provide the unit, the user’s manual with the purchase date stamp, and the payment paperwork certifying the purchase. The unit model must comply with the one stated in the user’s manual. Contact the Seller for warranty service.
The manufacturer’s warranty does not apply to the following cases:
- User’s failure to submit the unit with the entire delivery package as stated in the user’s manual including submission with missing component parts previously dismounted by the user.
- Mismatch of the unit model and the brand name with the information stated on the unit packaging and in the user’s manual.
- User’s failure to ensure timely technical maintenance of the unit.
- External damage to the unit casing (excluding external modifications as required for installation) and internal components caused by the user.
- Redesign or engineering changes to the unit.
- Replacement and use of any assemblies, parts and components not approved by the manufacturer.
- Unit misuse.
- Violation of the unit installation regulations by the user.
- Violation of the unit control regulations by the user.
- Unit connection to power mains with a voltage different from the one stated in the user’s manual.
- Unit breakdown due to voltage surges in power mains.
- Discretionary repair of the unit by the user.
- Unit repair by any persons without the manufacturer’s authorization.
- Expiration of the unit warranty period.
- Violation of the unit transportation regulations by the user.
- Violation of the unit storage regulations by the user.
- Wrongful actions against the unit committed by third parties.
- Unit breakdown due to circumstances of insuperable force (flood, earthquake, war, hostilities of any kind, blockades).
- Missing seals if provided by the user’s manual.
- Failure to submit the user’s manual with the unit purchase date stamp.
- Missing payment paperwork certifying the unit purchase.
The manufacturer shall not accept any claims with regards to the condition of the paint-and-lacquer coating (hereinafter PLC) in the following cases:
- Dents, cracks, scratches and abrasions of the PLC sustained during handling, mounting and assembly operations.
- Progress of corrosion on areas damaged with stones, sand, and roof coat tar during the performance of roofing work.
- Signs of direct exposure of the PLC to excessive temperatures, which occurred during the performance of roofing work.
- Violation of regulations on transportation, storage, installation, and operation of the unit.
- Presence of damage caused by exposure to industrial and chemical emissions, acidic or alkaline pollution, sap or other factors not related to normal operating conditions.
FOLLOWING THE REGULATIONS STIPULATED HEREIN WILL ENSURE A LONG AND TROUBLE-FREE OPERATION OF THE UNIT.
USER’S WARRANTY CLAIMS SHALL BE SUBJECT TO REVIEW ONLY UPON PRESENTATION OF THE UNIT, THE PAYMENT DOCUMENT AND THE USER’S MANUAL WITH THE PURCHASE DATE STAMP.

























