TW Wire Mesh Belt Conveyor
Instruction Manual
TW Wire Mesh Belt Conveyor
IMPORTANT!
DO NOT DESTROY
RECOMMENDED SPARE PARTS HIGHLIGHTED IN GRAY
Use code HYPMANUAL for free shipping on your first order at HytrolParts.com
Warning Signs
In an effort to reduce the possibility of injury to personnel working around HYTROL conveying equipment, warning signs are placed at various points on the equipment to alert them of potential dangers. Please check equipment and note all warning signs. Make certain your personnel are alerted to and obey these warnings. Shown below are typical signs that are attached to this equipment.
WARNING!
DO NOT START CONVEYOR UNTIL PERSONNEL ARE CLEAR
PLACED ON ALL POWERED CONVEYORS NEAR DRIVE AND/OR CONTROLS.
WARNING
Servicing moving or energized equipment can cause severe injury
LOCK OUT POWER before removing guard
PLACED NEXT TO DRIVE, BOTH SIDES.
![]()
DANGER
Climbing, sitting. walking or riding on conveyor at any time will cause severe injury or death
KEEP OFF
PLACED ON 20 FT.
INTERVALS,BOTH SIDES.
![]()
WARNING
Exposed moving parts can cause severe injury LOCK OUT POWER before removing guard
PLACED ON ALL CHAIN GUARDS.
![]()
WARNING
Moving equipment can cause severe Injury
KEEP AWAY
PLACED ON TERMINATING ENDS.
![]()
WARNING
NEVER… START CONVEYOR UNTIL PERSONNEL ARE CLEAR
NEVER… LUBRICATE OR REPAIR WHILE CONVEYOR IS RUNNING
NEVER… RUN THE CONVEYOR WITH GUARDS REMOVED
NEVER… PUT YOUR HANDS ON THE CONVEYOR OR IN THE CONVEYOR WHEN IT IS RUNNING.
NEVER… ALLOW ANY PART OF YOUR BODY TO COME IN CONTACT WITH THE CONVEYOR PULLEYS WHILE IT IS RUNNING.
IT IS THE EMPLOYERS RESPONSIBILITY TO IMPLEMENT THE ABOVE AND ALSO TO PROVIDE ADEQUATE PROTECTION FOR ANY PARTICULAR USE.
OPERATION OR SERVICE.
DO NOT REMOVE THIS SIGN FROM THIS MACHINE
PLACED AT DRIVE OF ALL POWERED CONVEYORS.
WARNING!
KEEP POP-OUT ROLLER IN PLACE
PLACED WHERE POP-OUT ROLLERS ARE USED
INTRODUCTION
This manual provides guidelines and procedures for installing, operating, and maintaining your conveyor. A complete parts list is provided with recommended spare parts highlighted in gray. Important safety information is also provided throughout the manual. For safety to personnel and for proper operation of your conveyor, it is recommended that you read and follow the instructions provided in this manual.
Receiving and Uncrating
- Check the number of items received against the bill of lading.
- Examine condition of equipment to determine if any damage occurred during shipment.
- Move all crates to area of installation.
- Remove crating and check for optional equipment that may be fastened to the conveyor. Make sure these parts (or any foreign pieces) are removed.
NOTE: If damage has occurred or freight is missing, see the “Important Notice” attached to the crate.
INSTALLATION
Installation Safety Precautions for Conveyors and Related Equipment
GUARDS AND GUARDING
Interfacing of Equipment.
When two or more pieces of equipment are interfaced, special attention shall be given to the interfaced area to insure the presence of adequate guarding and safety devices.
Guarding Exceptions.
Wherever conditions prevail that would require guarding under these standards, but such guarding would render the conveyor unusable, prominent warning means shall be provided in the area or on the equipment in lieu of guarding.
Guarded by Location or Position.
Where necessary for the protection of employees from hazards, all exposed moving machinery parts that present a hazard to employees at their work station shall be mechanically or electrically guarded, or guarded by location or position.
When a conveyor passes over a walkway, roadway, or work station, it is considered guarded solely by location or position if all moving parts are at least 8 ft. (2.44 m) above the floor or walking surface or are otherwise located so that the employee cannot inadvertently come in contact with hazardous moving parts.
Although overhead conveyors may be guarded by location, spill guard, pan guards, or equivalent shall be provided if the product may fall off the conveyor for any reason and if personnel would be endangered.
HEADROOM
When conveyors are installed above exit passageways, aisles, or corridors, there shall be provided a minimum clearance of 6 ft. 8 in. (2.032 m) measured vertically from the floor or walking surface to the lowest part of the conveyor or guards.
Where system function will be impaired by providing the minimum clearance of 6 ft. 8 in. (2.032 m) through an emergency exit, alternate passageways shall be provided.
It is permissible to allow passage under conveyors with less than 6 ft. 8 in. (2.032 m) clearance from the floor for other than emergency exits if a suitable warning indicates low headroom.
Support Installation (TW)
- Determine direction of product flow. Figure 6A indicates the preferred flow as related to the drive.
- Refer to “Match-Mark” numbers on ends of conveyor sections. (Figure 6A.) Turn sections upside down and position them in this sequence.
- Attach supports to both ends of drive section and to one end of intermediate or tail sections (Figure 6A). Hand tighten bolts only at this time.
- Adjust elevation to required height.

Support Installation (WC)
- Attach supports to pivot plates that are welded to conveyor frame (Figure 6B).
- Adjust elevation to required height.

Ceiling Hanger Installation
If conveyors are to be used in an overhead application, ceiling hangers may have been supplied in place of floor supports.
“Figure 7A shows how a ceiling hanger mounts to a conveyor section. Ceiling hangers should be mounted at section joints. For safety information concerning conveyors mounted overhead, refer to “Installation Safety Precautions” on Page 5.
NOTE: When installing ceiling hanger rods in an existing building, all methods of attachment must comply with local building codes.

- Mark a chalk line on floor to locate center of the conveyor (Floor Mounted Conveyors).
- Place the drive section in upright position.
- Turn remaining sections upright, placing end without support on extended pivot plate of previous section (Figure 8A). Check “Match-Mark” numbers to see that adjoining sections are in proper sequence.
- Fasten sections together with butt couplings and pivot plates (Figure 8B). Hand tighten bolts only.
- Insure that all bed sections are square. Refer to Page 9 for instructions on “How to Square The Beds”.
- Install electrical controls and wire motor. See Page 10.
- Install and track belt per instructions on Pages 14, 15,16.

Conveyor Set-Up (WC)
- Turn conveyor upright and position at desired location
- Insure that conveyor is level. Adjust supports as necessary and lag tofloor
- Install electrical controls and wire motor. See Page 10.

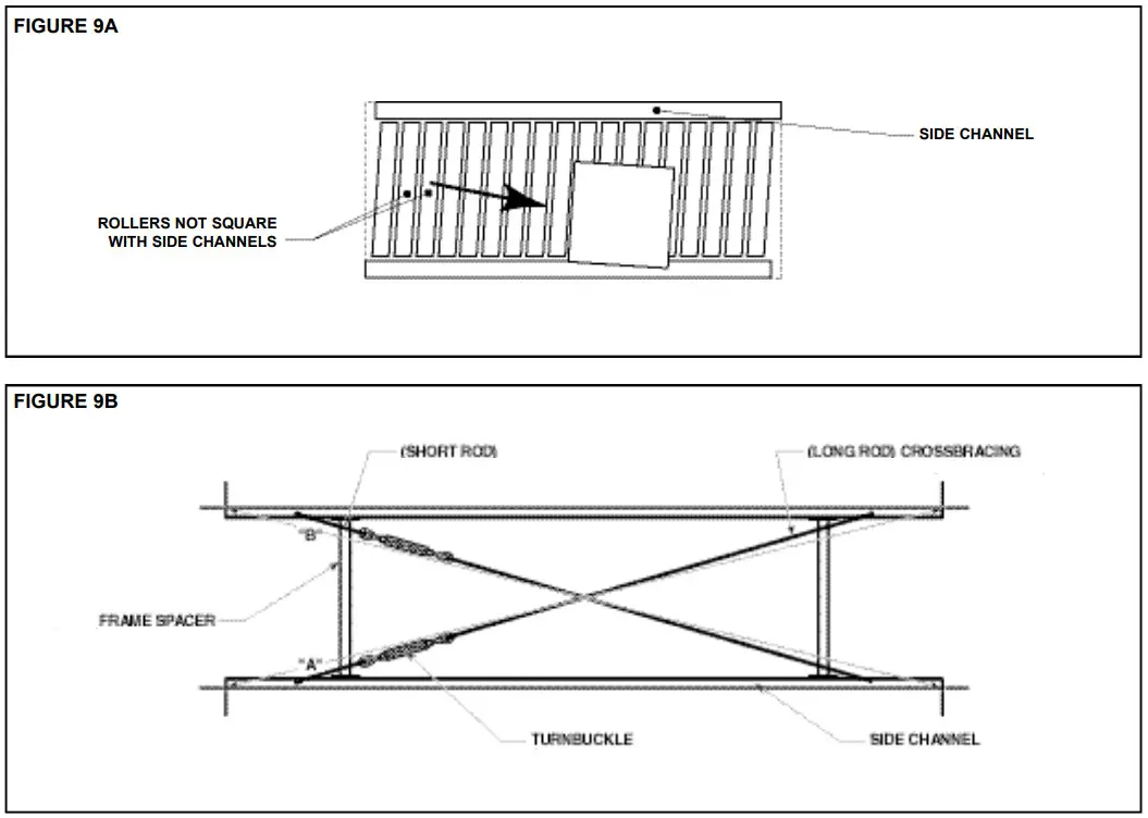
Racked Sections (TW)
It is important that each bed section be checked for a “racked” or out-of-square condition. If conveyor is not square, tracking problems will result. Figure 9A indicates a racked section.
TO CORRECT AN OUT-OF-SQUARE SECTION
- Locate points on corners of section and measure distance “A” & “B”. If the dimensions are not equal, the section will need to be squared. (Figure 9B).
- Use cross bracing supplied on underside of conveyor to square each section. Adjust turn-buckle until dimensions “A” & “B” are equal.
- After all bed sections have been checked and corrected for “racked condition”, tighten all butt couplings and pivot plate bolts.
- Make final check to see that all conveyor sections are level across width and length. If entire conveyor is level, supports can be lagged to floor.
IMPORTANT!
Being out of level across width of conveyor can cause package drift on long conveyor lines.

Electrical Equipment
WARNING!
Electrical controls shall be installed and wired by a qualified electrician. Wiring information for the motor and controls are furnished by the equipment manufacturer.
CONTROLS
Electrical Code: All motor controls and wiring shall conform to the National Electrical Code (Article 670 or other applicable articles) as published by the National Fire Protection Association and as approved by the American Standards Institute, Inc.
CONTROL STATIONS
A) Control stations should be so arranged and located that the operation of the equipment is visible from them, and shall be clearly marked or labeled to indicate the function controlled.
B) A conveyor which would cause injury when started shall not be started until employees in the area are alerted by a signal or by a designated person that the conveyor is about to start.
When a conveyor would cause injury when started and is automatically controlled or must be controlled from a remote location, an audible device shall be provided which can be clearly heard at all points along the conveyor where personnel may be present. The warning device shall be actuated by the controller device starting the conveyor and shall continue for a required period of time before the conveyor starts. A flashing light or similar visual warning may be used in conjunction with or in place of the audible device if more effective in particular circumstances.
Where system function would be seriously hindered or adversely affected by the required time delay or where the intent of the warning may be misinterpreted (i.e., a work area with many different conveyors and allied devices), clear, concise, and legible warning shall be provided. The warning shall indicate that conveyors and allied equipment may be started at any time, that danger exists, and that personnel must keep clear. The warnings shall be provided along the conveyor at areas not guarded by position or location.
C) Remotely and automatically controlled conveyors, and conveyors where operator stations are not manned or are beyond voice and visual contact from drive areas, loading areas, transfer points, and other potentially hazardous locations on the conveyor path not guarded by location, position, or guards, shall be furnished with emergency stop buttons, pull cords, limit switches, or similar emergency stop devices.
All such emergency stop devices shall be easily identifiable in the immediate vicinity of such locations unless guarded by location, position, or guards. Where the design, function, and operation of such conveyor clearly is not hazardous to personnel, an emergency stop device is not required.
The emergency stop device shall act directly on the control of the conveyor concerned and shall not depend on the stopping of any other equipment. The emergency stop devices shall be installed so that they cannot be overridden from other locations.
D) Inactive and unused actuators, controllers, and wiring should be removed from control stations and panel boards, together with obsolete diagrams, indicators, control labels, and other material which serve to confuse the operator.
SAFETY DEVICES
A) All safety devices, including wiring of electrical safety devices, shall be arranged to operate in a “Fail-Safe” manner, that is, if power failure or failure of the device itself would occur, a hazardous condition must not result.
B) Emergency Stops and Restarts. Conveyor controls shall be so arranged that, in case of emergency stop, manual reset or start at the location where the emergency stop was initiated, shall be required of the conveyor(s) and associated equipment to resume operation.
C) Before restarting a conveyor which has been stopped because of an emergency, an inspection of the conveyor shall be made and the cause of the stoppage determined. The starting device shall be locked out before any attempt is made to remove the cause of stoppage, unless operation is necessary to determine the cause or to safely remove the stoppage.
Refer to ANSI Z244.1-1982, American National Standard for Personnel Protection – Lockout/Tagout of Energy Sources – Minimum Safety Requirements and OSHA Standard Number 29 CFR 1910.147 “The Control of Hazardous Energy (Lockout/Tagout).”
Refer a ANSI Z244.1-1982, “American National Standard for Personnel Protection” – Lockout/Tagout of Energy Sources – Minimum Safety Requirements and OSHA Standard Number 29 CFR 1910.147 “The Control of Hazardous Energy (Lockout/Ta g o u t ) . ”
OPERATION
Operation Safety Precautions
A ) Only trained employees shall be permitted to operate conveyors. Training shall include instruction in operation under normal conditions and emergency situations.
B ) Where employee safety is dependent upon stopping and/or starting devices, they shall be kept free of obstructions to permit ready access.
C ) The area around loading and unloading points shall be kept clear of obstructions which could endanger personnel.
D ) No person shall ride the load-carrying element of a conveyor under any circumstances unless that person is specifically authorized by the owner or employer to do so. Under those circumstances, such employee shall only ride a conveyor which incorporates within its supporting structure, platforms or control stations specifically designed for carrying personnel. Under no circumstances shall any person ride on any element of a vertical conveyor. Owners of conveyors should affix warning devices to the conveyor reading Do Not Ride Conveyor.
E) Personnel working on or near a conveyor shall be instructed as to the location and operation of pertinent stopping devices.
F ) A conveyor shall be used to transport only material it is capable of handling safely.
G ) Under no circumstances shall the safety characteristics of the conveyor be altered if such alterations would endanger personnel.
H ) Routine inspections and preventive and corrective maintenance programs shall be conducted to insure that all safety features and devices are retained and function properly.
I ) Personnel should be alerted to the potential hazard of entanglement in conveyors caused by items such as long hair, loose clothing, and jewelry.
J ) As a general rule, conveyors should not be cleaned while in operation. Where proper cleaning requires the conveyor to be in motion and a hazard exists, personnel should be made aware of the associated hazard.
CAUTION!
Because of the many moving parts on the conveyor, all personnel in the area of the conveyor need to be warned that the conveyor is about to be started.
MAINTENANCE
Maintenance Safety Precautions
A ) Maintenance, such as lubrication and adjustments, shall be performed only by qualified and trained personnel.
B ) It is Important that a maintenance program be established to insure that all conveyor components are maintained in a condition which does not constitute a hazard to personnel.
C ) When a conveyor is stopped for maintenance purposes, starting devices or powered accessories shall be locked or tagged out in accordance with a formalized procedure designed to protect all person or groups involved with the conveyor against an unexpected start.
D ) Replace all safety devices and guards before starting equipment for normal operation.
E ) Whenever practical, DO NOT lubricate conveyors while they are in motion. Only trained personnel who are aware of the hazard of the conveyor in motion shall be allowed to lubricate.
SAFETY GUARDS
Maintain all guards and safety devices IN POSITION and IN SAFE R E PA I R .
WARNING SIGNS
Maintain all warning signs in a legible condition and obey all warnings.
See Page 3 of this manual for examples of warning signs.
Lubrication
The drive chain is pre-lubricated from the manufacturer by a hot dipping process that ensures total lubrication of all components. However, continued proper lubrication will greatly extend the useful life of every drive chain.
Drive Chain lubrication serves several purposes including:
- Protecting against wear of the pin-bushing joint
- Lubricating chain-sprocket contact surfaces
- Preventing rust or corrosion
For normal operating environments, lubricate every 2080 hours of operation or every 6 months, whichever comes first. Lubricate with a good grade of non-detergent petroleum or synthetic lubricant (i.e., Mobile 1 Synthetic). For best results, always use a brush to generously lubricate the chain. The proper viscosity of lubricant greatly affects its ability to flow into the internal areas of the chain. Refer to the table below for the proper viscosity of lubricant for your application.
| Ambient Temperature Degrees F | SAE | ISO |
| 20-40 40-100 100-120 | 20 30 40 | 46 or 68 100 150 |
The drive chain’s lubrication requirement is greatly affected by the operating conditions. For harsh conditions such as damp environments, dusty environments, excessive speeds, or elevated temperatures, it is best to lubricate more frequently. It may be best, under these conditions, to develop a custom lubrication schedule for your specific application. A custom lubrication schedule may be developed by inspecting the drive chain on regular time intervals for sufficient lubrication. Once the time interval is determined at which the chain is not sufficiently lubricated, lubricate it and schedule the future lubrication intervals accordingly.
Belt Installation
To insure correct fit on the conveyor, the belt has been cut to the proper length and installed at the factory. On conveyors up to 11 ft. in length, they are shipped with the belt installed. However, on longer conveyors, the belt is removed and shipped in one or more sections. To re-install the belt, follow these steps:
- Refer to Figure 15A, and determine the proper direction of belt travel. Notice how the connector rods are positioned in relation to the belt travel.
- Thread the belt through conveyor as shown in Figure 14A. Make sure the teeth of the drive sprockets will drive against the connector rods and the tail sprockets are in the right mesh openings. (See instructions on Page 15.)
- Pull ends together and insert splice wire. With a pair of pliers, bend the hook and insert it into the hole in the belt as shown in Figure 14B. (Loosen take-ups at tail pulley, if necessary, so splice wire can be inserted.) NOTE: When the belt is installed properly, the bend in the splice wire and connector rods will be opposite the direction of travel.
- Re-adjust belt tension with take-up screws. Be sure to move both sides an equal amount so tail pulley will be square with bed and belt. DO NOT over-tighten belt.

Sprocket Drive
Sprockets provide a positive drive for the Flat Wire Belt. Sprockets will, to some extent, tend to keep the belt properly aligned. However, the sprocket drive should not be deemed a “cure-all” for belt control problems.
The sprockets should be located on the drive shaft so that the teeth of the sprocket engage or drive against the connector rods (as shown in Figure 15A).
Spacing of the sprockets should be as close as is practical, but in no case should exceed a spacing of 6 inches. Spacing greater than this may cause “crankshafting” or bending of the connector rods, thus causing premature belt failure.
LOCATION OF DRIVE AND TAIL SPROCKETS
Proper positioning of the belt sprockets is important. Posi- tioning as shown in Figure 15A will result in smoother belt operation, reduced wear on the sprockets and better distribution of belt wear. Teeth of the sprockets should always drive against the connector rods. This is accomplished by placing the drive sprockets so the sprocket teeth are in the odd numbered mesh openings and the tail sprockets so the teeth are in the even numbered openings.

Belt Tracking
HOW IS THE CONVEYOR BELT TRACKED
The belt is tracking by adjusting: Drive Pulley, Tail Pulley, Return Idlers, and Snub Idlers. The same tracking principles apply to conveyors supplied with end drives, center drives, or underside take-ups.
PRE-TRACKING INSPECTION
- Before attempting to physically track the belt: Make sure conveyor is level across the width and length of unit. Adjust supports as necessary.
- Check to make sure: Drive Pulley, Tail Pulley, Snub Idlers, and all Return Idlers are square with conveyor bed (Figures 16A thru 17B). Dimension “A” should be equal on both sides of unit.
- Make sure belt has been properly threaded through conveyor. See “Belt Installation”, Page 14.
- Check for improper loading. Feed should be in direction of belt travel, centered on belt.
- Make sure belt splice wire has been installed correctly and is square with the belt.


CAUTION!
Only trained personnel should track conveyor belt which must be done while conveyor is in operation.
IMPORTANT: When belt tracking adjustments are made, they should be minor (1/16 in. at a time on idlers, etc., should be sufficient.). Give the belt adequate time to react to the adjustments. It may take several complete revolutions around the conveyor for the belt to begin tracking properly on long, slow conveyor lines.
A) Stand at tail pulley looking toward drive and note what direction belt is traveling.
B) Having observed belt and determined tracking problem, follow procedures in “How to Steer The Belt”, See Figure 16A.
HOW TO STEER THE BELT
Condition 1. . .When the belt is running in the direction (FLOW) with the arrow, but tracking (drifting) towards Side “X”, move the Snub Idler nearest the INFEED end of Side “Y” towards the DISCHARGE end of the conveyor.
Condition 2. . . When the belt is running in the direction (FLOW) with the arrow, but tracking (drifting) towards Side “Y”, move the Snub Idler nearest the INFEED end of Side “X” towards the DISCHARGE end of the conveyor. If Belt Direction (FLOW) is reversed, all the above conditions will remain the same as in Figure 16A, except you are now viewing the conveyor from the opposite end.
If belt continues to track improperly, re-check all items covered in “Pre-Tracking Inspection” and make corrections as necessary.

NOTE: In all conditions, you are viewing the Conveyor Belt from the INFEED end. All corrections will be made from the INFEED end of conveyor.
Drive Chain Alignment and Tension
The drive chain and sprockets should be checked periodically for proper tension and alignment. Improper adjustment will cause extensive wear to the drive components.
TO MAKE ADJUSTMENTS
- Remove chain guard.
- Check sprocket alignment by placing a straightedge across the face of both sprockets (Figure 19A). Loosen set screws and adjust as needed. Re-tighten set screws.
- To adjust chain tension, loosen bolts that fasten motor base to mounting angles, both sides of the conveyor. Tighten take-up bolts until desired chain tension is reached. (Figures 19B & 19C). Re-tighten mounting bolts.
- Lubricate chain per lubrication instructions.
- Replace chain guard so that it does not interfere with drive.
CAUTION!
Never remove chain guards while the conveyor is running. Always replace guards after adjustments are made.

Trouble Shooting
The following charts list possible problems that may occur in the operation of the conveyor.
TROUBLE SHOOTING DRIVES
| TROUBLE | CAUSE | SOLUTION |
| Conveyor will not start or motor quits fre- quently. | 1) Motor is overloaded. 2) Motor is drawing too much current. | 1) Check for overloading of conveyor. 2) Check heater or circuit breaker and change if necessary. |
| Drive chain and sprockets wear excessively. | 1) Lack of lubrication on chain causing chain stretch which creates improper chain to sprocket mesh. 2) Sprockets are out of alignment. 3) Loose chain. 4) Wire mesh belt tension too tight. | 1) Replace chain and sprockets. Provide adequate lubrication. NOTE: If problem reoccurs a chain take-up may be required. 2) Align sprockets. See “Drive Chain Alignment and Tension”. 3) Tighten chain. 4) Loosen tail take-up. |
| Loud popping or grinding noise. | 1) Defective bearing. 2) Loose set screws. 3) Loose drive chain. | 1) Replace bearing. 2) lighten set screw. 3) Tighten chain. |
| Motor or reducer overheating. | 1) Conveyor is overloaded. 2) Low voltage to motor. 3) Low lubricant level in reducer. | 1) Check capacity of conveyor and reduce load to recommended level. 2) Have electrician check and correct as necessary. 3) Relubricate per manufacturer’s recommendations. For HYTROL reducer, refer to separate manual. |
| Belt does not move, but drive runs. | 1) Conveyor is overloaded. 2) Belt is too loose. | 1) Reduce load. 2) Use belt take-up to tighten belt. |
TROUBLE SHOOTING DRIVE BELT TRACKING
| TROUBLE | CAUSE | SOLUTION |
| Entire length of belt creeps off at one spot only. | 1) One or more idlers (usually near trouble spot) are out of line. 2) One conveyor section not level or square. 3) Material build-up on pulleys or idlers. | 1) Adjust idlers as necessary. See “Tracking the belt” in this manual for details. 2) Make necessary adjustments to supports. 3) Remove residue from pulleys or idlers. install belt, cleaners, or scrappers if possible. |
| Belt creeps to one side at tail pulley. | 1) Tail pulley, return idler, or snub idler near tail pulley not properly aligned or square with bed. | 1) Adjust as necessary. See “Belt Tracking Pre-Tracking Inspection” in this manual for details. |
| Entire belt creeps to one side. | 1) Conveyor not straight. 2) Conveyor not level. 3) Material build-up on rollers, pulleys, or idlers. | 1) Re-align bed sections as necessary. 2) Correct as necessary. 3) Remove residue and install belt cleaners or scrapers if possible. |
| Belt runs with “jerky” motions or loud pops, etc. | 1) Wearstrip* broken or worn. 2) Wearsfrip* loose. ONLY WC HAS WEARSTRIP | 1) Replace wearstrip |
Preventive Maintenance Checklist
The following is a general maintenance checklist which covers the major components of your conveyor. This will be helpful in establishing a standard maintenance schedule.

How to Order Replacement Parts
Included in this manual are parts drawings with complete replacement parts lists. Minor fasteners, such as nuts and bolts, are not included.
When ordering replacement parts:
- Contact Dealer from whom conveyor was purchased or nearest HYTROL Distributor.
- Give Conveyor Model Number and Serial Number or HYTROL Factory Order Number.
- Give Part Number and complete description from Parts List.
- Give type of drive. Example—8” End Drive, 8” Center Drive, etc.
- If you are in a breakdown situation, tell us.

Model TW Parts Drawing

Model TW Parts List
See Page 22 for Information on How To Order Replacement Parts
Recommended Spare Parts Highlighted in Gray
| Ref. No. | Part No. | Description |
| 1 — — — 2 | — 030.7134 030.7324 030.7534 — | Motor—C-Face 1/2 HP–230/460VAC–3 Ph.–60 Hz.–TEFC 1 HP–230/460VAC–3 Ph.–60 Hz.–TEFC 2 HP–230/460VAC–3 Ph.–60 Hz.–TEFC Speed Reducer |
| — — 3 — — | R-00153-30R R-00164-30R — 052.145 052.146 | 4AC–RH–30:1 Ratio 5AC–RH–30:1 Ratio Coupling Kit–Motor to Reduc 1/3–1 HP 1-1/2–2 HP |
| 4 — — 5 6 7 | — 028.119 028.1071 028.125 029.101 | Sprocket–Reducer 50B13 x 1 in. Bore (4AC) 50B13 x 1-1/4 in. Bore (5 AC) Sprocket–Drive Shaft, 50B20 x 1-3/16 in. Bore #50 Riveted Roller Chain |
| 7 8 9 10 11 | 029.201 B-06629 B-05540 B-05545 040.307 | Connector Link–#50 Roller Chain Motor Base Plate (Specify OAW) Motor Base Support Angle–LH Motor Base Support Angle–RH Take-Up Bolt–3/8-16 x 2-1/4 in. Long |
| 12 13 14 15 16 | 041.300 B-02157 010.103 B-01873 029.3021 | Hex Jam Nut–Heavy–3/8-16 Drive Plate 3-Bolt Flange Bearing–1-3/16 in. Bore Drive Shaft (Specify OAW) #6 Standard Wire Belt Sprocket–1-3/16 in. Bore |
| 17 18 19 20 21 | 090.203 098.150 B-05721 B-08928 041.919 | Shaft Key–1/4 in. Sq. x 1 in. Long Spacer–13/32 in. I.D. x 3/4 in. O.D. x 3/8 in. Long Chain Guard Back Plate Chain Guard Front Plate Acorn Nut–3/8-16 |
| 22 — — — — | — B-02396 B-02397 B-02398 B-02399 | Inter/Drive Bed Channel 5 ft. Long 6 ft. Long 8 ft. Long 10 ft. Long |
| 23 24 | B-02394 B-02395 | Tail Bed Channel–RH (Specify Length) Tail Bed Channel–LH (Specify Length) |
| 25 26 27 28 29 | B-00163 B-01884 B-05477 B-09812-L B-09812-R | Splice Plate Bed Spacer Assembly (Specify OA Threaded Section Spacer (Specify BR) Take-Up Plate Assembly–LH Take-Up Plate Assembly–RH |
| 30 31 32 33 34 | 040.409 041.201 010.102 B-02272 029.3001 | Take-Up Bolt–1/2-13 x 6 in. Long Hex Jam Nut–1/2-13 3-Bolt Flange Bearing–1 in. Bore 4 in. Dia. Tail Pulley (Specify OAW) #4 Standard Wire Belt Sprocket–1-3/16 in. Bore |
| 35 36 37 38 39 | 093.215 B-01982 B-06742 B-09508 — | Return Roller Bracket 1.9 in. Dia. Galvanized Roller (Specify BR) 2-1/8 in. Dia. Snub Roller (Specify OAW) 1.9 in. Dia. Snub Roller (Specify OAW) Flat Wire Mesh Belt (1/2 x 1) |
| — — — 40 — | 069.304 069.306 069.307 — B-00913 | 12 in. Wide for 16 in. Bed Width 18 in. Wide for 22 in. Bed Width 24 in. Wide for 28 in. Bed Width MS Type Pivot Plate–1-1/2 in. Flang 3-11/16 in. High |
| — 41 — — — | B-02112 — B-00914 B-12777 B-12778 | 1-9/16 in. High Floor Support Frame 6 in. High (Specify OAW) 7 in. High (Specify OAW) 8 in. High (Specify OAW) |
| — — — — — | B-00915 B-00916 B-00917 B-02098 B-00919 | 9 in. High (Specify OAW) 11-1/2 in. High (Specify OAW) 14-1/2 in. High (Specify OAW) 18-1/2 in. High (Specify OAW) 22-1/2 in. High (Specify OAW) |
| — — — — — | B-00921 B-00923 B-00925 B-02107 B-02109 | 32-1/2 in. High (Specify OAW) 44-1/2 in. High (Specify OAW) 56-1/2 in. High (Specify OAW) 68-1/2 in. High (Specify OAW) 78-1/2 in. High (Specify OAW) |
| — 42 | B-02111 B-00911 | 90-1/2 in. High (Specify OAW) Adjustable Foot Assembly (Specify Length |
Model WC Parts Drawing
Model WC Parts List

See Page 22 for Information on How To Order Replacement Parts
Recommended Spare Parts Highlighted in Gray
| Ref. No. | Ref. No. | Description |
| 1 — 2 — | — 030.7134 030.7324 — R-00153-30R | Motor–C-Face/Foot Mounted 1/2 HP–230/460VAC–3 Ph.–60 Hz.–TEF 1 HP–230/460VAC–3 Ph.–60 Hz.–TEFC Speed Reducer 4AC–RH–30:1 Ratio |
| — 3 4 — — | R-00164-30R 052.145 — 028.119 028.1071 | 5AC–RH–30:1 Ratio Coupling Kit–Motor to Reducer Sprocket–Reducer 50B13 x 1 in. Bore (4AC) 50B13 x 1-1/4 in. Bore (5AC) |
| 5 6 7 8 — | 028.125 029.101 029.201 — B-06626-16 | Sprocket–Drive Shaft, 50B20 x 1-3/16 in. Bore #50 Riveted Roller Chain Connector Link–#50 Roller Chain Motor Base Plate 13-1/4 in. Bed Width |
| — — 9 10 11 | B-06629-22 B-06629-28 B-05540 B-05545 040.307 | 19-1/4 in. Bed Width 25-1/4 in. Bed Width Motor Base Support Angle–LH Motor Base Support Angle–RH Take-Up Bolt–3/8-16 x 2-1/4 in. Long |
| 12 13 14 15 16 | 041.300 B-07387 B-07386 010.103 — | Hex Jam Nut–Heavy–3/8-16 Drive Plate Assembly–LH Drive Plate Assembly–RH 3-Bolt Flange Bearing–1-3/16 in. Bore Drive Shaft 1-3/16 in Bore |
| — — — 17 18 | B-07944-12 B-07944-18 B-07944-28 029.303 090.203 | 13-1/4 in. Bed Width 19-1/4 in. Bed Width 25-1/4 in. Bed Width #6 Standard Wire Belt Sprocket–1-3/16 in. Bore Shaft Key–1/4 in. Sq. x 1 in. Long |
| 19 20 21 22 23 | 090.2033 B-07381 B-07379 041.919 B-07327 | Shaft Key–1/4 in. Sq. x 1-3/4 in. Long Chain Guard Back Plate Chain Guard Front Plate Acorn Nut–3/8-16 Welded Frame Assembly–12 in. Belt Width |
| 24 25 — — | B-07328 — B-07329 B-07359 | Welded Frame Assembly–18 in. Belt Width Welded Frame Assembly–24 in. Belt Width Tail Section Drive Section |
| 26 27 28 29 30 | B-07364 B-07365 B-02037 B-02038 040.409 | Splice Plate–Inside Channel Splice Plate–Outside Channel Take-Up Plate Assembly–LH Take-Up Plate Assembly–RH Take-Up Bolt–1/2-13 x 6 in. Long |
| 31 32 — — — | 041.201 — B-07369-16 B-07369-22 B-07369-28 | Hex Jam Nut–1/2-13 Tail Shaft–1-3/16 in. Dia. 13-1/4 in. Bed Width 19-1/4 in. Bed Width 25-1/4 in. Bed Width |
| 33 — — — 34 | — B-01982-88 B-01982-136 B-01982-184 — | 1.9 in. Dia. Galvanized Transfer Roller 13-1/4 in. Bed Width 19-1/4 in. Bed Width 25-1/4 in. Bed Width 1.9 in. Dia. Galvanized Tread Roller |
| — — — 35 — | B-01982-104 B-01982-152 B-01982-200 — 069.400 | 13-1/4 in. Bed Width 19-1/4 in. Bed Width 25-1/4 in. Bed Width Flat Wire Mesh Belt (1 x 1 Omniflex) 12 in. Belt Width (Specify Length) |
| — — 36 37 — | 069.401 069.402 099.4511 — B-00916 | 18 in. Belt Width (Specify Length) 22 in. Belt Width (Specify Length) Wearstrip–3/4 in. Wide x 1/4 in. Thick Floor Support Frame 11-1/2 in. High (Specify OAW) |
| — — — — — | B-00917 B-02098 B-00919 B-00921 B-00923 | 14-1/2 in. High (Specify OAW) 18-1/2 in. High (Specify OAW) 22-1/2 in. High (Specify OAW) 32-1/2 in. High (Specify OAW) 44-1/2 in. High (Specify OAW) |
| — — — — 38 | B-00925 B-02107 B-02109 B-02111 B-00911 | 56-1/2 in. High (Specify OAW) 68-1/2 in. High (Specify OAW) 78-1/2 in. High (Specify OAW) 90-1/2 in. High (Specify OAW) Adjustable Foot Assembly (Specify Length) |
Use code HYPMANUAL for free shipping on your first order at HytrolParts.com
POWERED BY CONVEYOR SOLUTIONS
“Building Relationships One Conveyor Part at a Time”
[email protected] | www.HytrolParts.com

















