HYTROL DC83 Drag Chain Conveyor

Product Information
The manual provides guidelines and procedures for installing, wwwoperating, and maintaining your conveyor. It includes a complete parts list with recommended spare parts highlighted in gray. The manual also includes important safety information throughout.
Product Usage Instructions
- Check the number of items received against the bill of lading.
- Examine the condition of the equipment to determine if any damage occurred during shipment.
- Move all crates to the area of installation.
- Remove crating and check for optional equipment that may be fastened to the conveyor. Make sure these parts (or any foreign pieces) are removed.
- If damage has occurred or freight is missing, contact your Hytrol Integration Partner.
- If ordering replacement parts, contact the dealer from whom the conveyor was purchased or the nearest HYTROL Integration Partner.
- Give Conveyor Model Number and Serial Number or HYTROL Factory Order Number.
- Give Part Number and complete description from Parts List.
- Give type of drive. Example–8 End Drive, 8 Center Drive, etc.
- If you are in a breakdown situation, inform the dealer.
INTRODUCTION
This manual provides guidelines and procedures for installing, operating, and maintaining your conveyor. A complete parts list is provided with recommended spare parts highlighted in gray. Important safety information is also provided throughout the manual. For safety to personnel and for proper operation of your conveyor, it is recommended that you read and follow the instructions provided in this manual.
Receiving and Uncrating
- Check the number of items received against the bill of lading.
- Examine condition of equipment to determine if any damage occurred during shipment.
- Move all crates to area of installation.
- Remove crating and check for optional equipment that may be fastened to the conveyor. Make sure these parts (or any foreign pieces) are removed.
NOTE: If damage has occurred or freight is missing, Contact your Hytrol Integration Partner.
How to Order Replacement Parts
Included in this manual are parts drawings with complete replacement parts lists. Minor fasteners, such as nuts and bolts, are not included.
When ordering replacement parts:
- Contact Dealer from whom conveyor was purchased or nearest HYTROL Integration Partner.
- Give Conveyor Model Number and Serial Number or HYTROL Factory Order Number.
- Give Part Number and complete description from Parts List.
- Give type of drive. Example—8” End Drive, 8” Center Drive, etc.
- If you are in a breakdown situation, tell us.
HYTROL Serial Number
(Located near Drive on Powered Models).
SAFETY INFORMATION
Installation
GUARDS AND GUARDING
Interfacing of Equipment. When two or more pieces of equipment are interfaced, special attention shall be given to the interfaced area to insure the presence of adequate guarding and safety devices. Guarding Exceptions. Whenever conditions prevail that would require guarding under these standards, but such guarding would render the conveyor unusable, prominent warning means shall be provided in the area or on the equipment in lieu of guarding. Guarded by Location or Position. Where necessary for the protection of employees from hazards, all exposed moving machinery parts that present a hazard to employees at their work station shall be mechanically or electrically guarded, or guarded by location or position.
- Remoteness from frequent presence of public or employed personnel shall constitute guarding by location.
- When a conveyor passes over a walkway, roadway, or work station, it is considered guarded solely by location or position if all moving parts are at least 8 ft. (2.44 m) above the floor or walking surface or are otherwise located so that the employee cannot inadvertently come in contact with hazardous moving parts.
- Although overhead conveyors may be guarded by location, spill guards, pan guards, or equivalent shall be provided if the product may fall off the conveyor for any reason and if personnel would be endangered.
HEADROOM
- When conveyors are installed above exit passageways, aisles, or corridors, there shall be provided a minimum clearance of 6 ft. 8 in. (2.032 m) measured vertically from the floor or walking surface to the lowest part of the conveyor or guards.
- Where system function will be impaired by providing the minimum clearance of 6 ft. 8 in. (2.032 m) through an emergency clearance, alternate passageways shall be provided.
It is permissible to allow passage under conveyors with less than 6 ft. 8 in. (2.032 m) clearance from the floor for other than emergency exits if a suitable warning indicates low headroom.
Operation
- Only trained employees shall be permitted to operate conveyors. Training shall include instruction in operation under normal conditions and emergency situations.
- Where employee safety is dependent upon stopping and/or starting devices, they shall be kept free of obstructions to permit ready access.
- The area around loading and unloading points shall be kept clear of obstructions which could endanger personnel.
- No person shall ride the load-carrying element of a conveyor under any circumstances unless that person is specifically authorized by the owner or employer to do so. Under those circumstances, such employee shall only ride a conveyor which incorporates within its supporting structure platforms or control stations specifically designed for carrying personnel. Under no circumstances shall any person ride on any element of a vertical conveyor.
- Personnel working on or near a conveyor shall be instructed as to the location and operation of pertinent stopping devices.
- A conveyor shall be used to transport only material it is capable of handling safely.
- Under no circumstances shall the safety characteristics of the conveyor be altered if such alterations would endanger personnel.
- Routine inspections and preventive and corrective maintenance programs shall be conducted to insure that all safety features and devices are retained and function properly.
- Personnel should be alerted to the potential hazard of entanglement in conveyors caused by items such as long hair, loose clothing, and jewelry.
- Conveyors shall not be maintained or serviced while in operation unless proper maintenance or service requires the conveyor to be in motion. In this case, personnel shall be made aware of the hazards and how the task may be safely accomplished.
- Owners of conveyor should insure proper safety labels are affixed to the conveyor warning of particular hazards involved in operation of their conveyors.
CAUTION! Because of the many moving parts on the conveyor, all personnel in the area of the conveyor need to be warned that the conveyor is about to be started.
Maintenance
- All maintenance, including lubrication and adjustments, shall be performed only by qualified and trained personnel.
- It is important that a maintenance program be established to insure that all conveyor components are maintained in a condition which does not constitute a hazard to personnel.
- When a conveyor is stopped for maintenance purposes, starting devices or powered accessories shall be locked or tagged out in accordance with a formalized procedure designed to protect all persons or groups involved with the conveyor against an unexpected start.
- Replace all safety devices and guards before starting equipment for normal operation.
- Whenever practical, DO NOT lubricate conveyors while they are in motion. Only trained personnel who are aware of the hazard of the conveyor in motion shall be allowed to lubricate.
REMEMBER Do not remove, reuse or modify material handling equipment for any purpose other than it’s original intended use.
INSTALLATION
Location
- Refer to building layout for obstructions such as machines, columns, walls, openings, etc. Check to see that conveyor layout drawings correspond with building layout.
- Determine direction of product flow. Figure 4A indicates the flow as related to the drive.
- Refer to “Match-Mark” numbers on ends of conveyor sections (Figure 4A). Position them in this sequence near area of installation.

Conveyor Set- Up
- Mark a chalk line on floor to locate centerline of the conveyor.
- Attach open tail to infeed and discharge sections, if not already attached, and place in position.
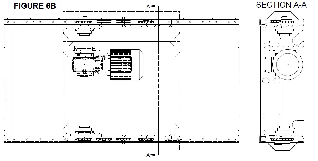
- Place remaining sections on extended support of previous section. (see Fig. 4B for Intermediate supports and Fig. 4C for drive support.)
- Fasten sections together at coupling channels and support frames (Fig. 4B). Hand tighten bolts at this time.
- Check to see that conveyor is level across width and length of unit. Adjust foot pads as necessary.
- Tighten all coupling channels and support frame bolts as necessary.
- Check for proper alignment of chain guide wears trips. Install drag chains using connector links provided.
NOTE: Drag chain tension has been pre-determined at the factory. Refer to “Maintenance” section for periodic chain tension adjustment procedures.


Racked Sections
It is important that each bed section be checked for an out-of-square condition. If conveyor is not square, tracking problems will result. Figure 4D indicates a racked section.
TO CORRECT AN OUT-OF-SQUARE SECTION
- Locate points on corners of section and measure distance “A” & “B”. If the dimensions are not equal, the section will need to be squared. (Figure 4D).
- after all bed sections have been checked and corrected for “racked condition”, tighten all coupling channels and support frame bolts.
- Make final check to see that all conveyor sections are level across width and length. If entire conveyor is level, supports can be lagged to floor.
“Racked” conveyor sections will cause product to travel toward side of conveyor. conveyor can cause product drift on long conveyor lines.

IMPORTANT! Being out of level across this width of “Racked” conveyor sections will cause product to travel toward side of conveyor. conveyor can cause product drift on long conveyor lines.
Electrical Equipment
WARNING! Electrical controls shall be installed and wired by a qualified electrician. Wiring information for the motor and controls are furnished by the equipment manufacturer.
CONTROLS
Electrical Code: All motor controls and wiring shall conform to the National Electrical Code (Article 670 or other applicable articles) as published by the National Fire Protection Association and as approved by the American Standards Institute, Inc.
CONTROL STATIONS
- Control stations should be so arranged and located that the operation of the equipment is visible from them, and shall be clearly marked or labeled to indicate the function controlled.
- A conveyor which would cause injury when started shall not be started until employees in the area are alerted by a signal or by a designated person that the conveyor is about to start.
When a conveyor would cause injury when started and is automatically controlled or must be controlled from a remote location, an audible device shall be provided which can be clearly heard at all points along the conveyor where personnel may be present. The warning device shall be actuated by the controller device starting the conveyor and shall continue for a required period of time before the conveyor starts. A flashing light or similar visual warning may be used in conjunction with or in place of the audible device if more effective in particular circumstances.
Where system function would be seriously hindered or adversely affected by the required time delay or where the intent of the warning may be misinterpreted (i.e., a work area with many different conveyors and allied devices), clear, concise, and legible warning shall be provided. The warning shall indicate that conveyors and allied equipment may be started at any time, that danger exists, and that personnel must keep clear. The warnings shall be provided along the conveyor at areas not guarded by position or location. - Remotely and automatically controlled conveyors, and conveyors where operator stations are not manned or are beyond voice and visual contact from drive areas, loading areas, transfer points, and other potentially hazardous locations on the conveyor path not guarded by location, position, or guards, shall be furnished with emergency stop buttons, pull cords, limit switches, or similar emergency stop devices.
All such emergency stop devices shall be easily identifiable in the immediate vicinity of such locations unless guarded by location, position, or guards. Where the design, function, and operation of such conveyor clearly is not hazardous to personnel, an emergency stop device is not required.
The emergency stop device shall act directly on the control of the conveyor concerned and shall not depend on the stopping of any other equipment. The emergency stop devices shall be installed so that they cannot be overridden from other locations. - Inactive and unused actuators, controllers, and wiring should be removed from control stations and panel boards, together with obsolete diagrams, indicators, control labels, and other material which serve to confuse the operator.
SAFETY DEVICES
- All safety devices, including wiring of electrical safety devices, shall be arranged to operate in a “Fail-Safe” manner, that is, if power failure or failure of the device itself would occur, a hazardous condition must not result.
- Emergency Stops and Restarts. Conveyor controls shall be so arranged that, in case of emergency stop, manual reset or start at the location where the emergency stop was initiated, shall be required of the conveyor(s) and associated equipment to resume operation.
- Before restarting a conveyor which has been stopped because of an emergency, an inspection of the conveyor shall be made and the cause of the stoppage determined. The starting device shall be locked out before any attempt is made to remove the cause of stoppage, unless operation is necessary to determine the cause or to safely remove the stoppage.
Refer to ANSI Z244.1-1982, American National Standard for Personnel Protection – Lockout/Tagout of Energy Sources – Minimum Safety Requirements and OSHA Standard Number 29 CFR 1910.147 “The Control of Hazardous Energy (Lockout/Tagout).”
OPERATION
Conveyor Start-Up
Before conveyor is turned on, check for foreign objects that may have been left inside the conveyor during installation. These objects could cause serious damage during start-up.
After conveyor has been turned on and is operating, check motors, reducers, and moving parts to make sure they are working freely.
CAUTION! Because of the many moving parts on the conveyor, all personnel in the area of the conveyor need to be warned that the conveyor is about to be started.
MAINTENANCE
Lubrication
The drive chain is pre-lubricated from the manufacturer by a hot dipping process that ensures total lubrication of all components. However, continued proper lubrication will greatly extend the useful life of every drive chain.
Drive Chain lubrication serves several purposes including:
- Protecting against wear of the pin-bushing joint
- Lubricating chain-sprocket contact surfaces
- Preventing rust or corrosion
| Ambient Temperature Degrees F | SAE | ISO |
| 20-40 | 20 | 46 or 68 |
| 40-100 | 30 | 100 |
| 100-120 | 40 | 150 |
For normal operating environments, lubricate every 2080 hours of operation or every 6 months, whichever comes first. Lubricate with a good grade of non-detergent petroleum or synthetic lubricant (i.e., Mobile 1 Synthetic). For best results, always use a brush to generously lubricate the chain. The proper viscosity of lubricant greatly affects its ability to flow into the internal areas of the chain. Refer to the table above for the proper viscosity of lubricant for your application. The drive chain’s lubrication requirement is greatly affected by the operating conditions. For harsh conditions such as damp environments, dusty environments, excessive speeds, or elevated temperatures, it is best to lubricate more frequently. It
may be best, under these conditions, to develop a custom lubrication schedule for your specific application. A custom lubrication schedule may be developed by inspecting the drive chain on regular time intervals for sufficient lubrication. Once the time interval is determined at which the chain is not sufficiently lubricated, lubricate it and schedule the future lubrication intervals accordingly.
Trouble Shooting
The following chart list possible problems that may occur in the operation of a powered conveyor.
TROUBLE SHOOTING DRIVES
| TROUBLE | CAUSE | SOLUTION |
| Conveyor will not start or motor quits frequently. |
|
|
| Drag chain and sprockets wear excessively. |
|
|
| Loud popping or grinding noise. |
|
|
| Motor or reducer overheating. |
|
|
Drag Chain Tension Adjustment
NOTE: Chain tension should be pre-set at factory. However, during normal operation, chain may stretch enough to require adjustment.
- Remove chain guard.
- To adjust chain tension, loosen four (4) bolts that fasten take-up plate to drive frame. Tighten take-up bolts until desired tension is reached. (Fig. 6A.) Lift the chain half way between tail sprockets and measure the gap. It should be 2% of the distance between tail sprockets. (Figure 6B). Make sure both sides are adjusted the same amount. Re-tighten mounting bolts.
- Lubricate chain per lubrication instructions.
- Replace chain guard.
CAUTION! NEVER remove chain guards while the conveyor is running. Always replace guards after adjustments are made.




DC-62 Parts Drawing 
DC-62 Parts List
| REF NO. | PART NO. | DESCRIPTION |
| 1 | 055.09745 | Eurodrive Gearmotor – 1-1/2 HP, 230/460/3/60 |
| 2 | 028.6385 | Idler Sprocket – 60B15H x .515″ Bore |
| 3 | 028.2003 | Sprocket – 60B15 x 1-3/8″ Bore |
| 4 | 029.1025 | #60 Roller Chain with Straight Sidebars |
| 5 | 029.213 | Connector Link #60 Chain |
| 6 | 090.2037 | Shaft Key – 5/16″ SQ. x 1″ LG. |
| 7 | 010.2028 | Bearing – Cast Iron, 4-Bolt, 1-3/8″ Bore |
| 8 | B-23697 | Bearing Plate |
| 9 | B-22817 | Drive/Tail Module Tread Plate (Specify Strand Centers and Section Length) |
| 10 | B-22516 | Spacer Plate for Gearbox |
| 11 | 099.456 | Wearstrip – #60 Chain Guide |
| 12 | B-22513 | Strand Guard Weld – Outboard |
| 13 | B-22512 | Sprocket Tension Plate Weld |
| 14 | B-22511 | Take-Up Bracket Weld |
| 15 | B-22510 | Drive Shaft (Specify Strand Centers) |
| 16 | B-22509 | Drive Frame Weld (Specify Strand Centers) |
| 17 | B-22818 | Intermediate Treadplate (Specify Strand Centers and Section Length) |
| 18 | B-22562 | Intermediate Frame Weldment (Specify Strand Centers and Section Length) |
| 19 | B-12672 | Foot Pad Assembly |
| 20 | B-19000 | Drive Support Weldment 15″ – 17″ Elevation |
| 21 | B-22819 | Drive Support Weldment 17″ – 31″ Elevation (Specify Elevation and Outside Strand Centers) |
| 22 | B-22820 | Intermediate Support Weldment (Specify Top of Chain and Strand Centers) |
| 23 | B-22522 | 12″ Open Tail Module Weld (Specify Strand Centers) |
| 24 | B-22532-R | Open Tail Stiffener Weld – RH |
| 25 | B-22532-L | Open Tail Stiffener Weld – LH |
DC-63 Parts Drawing


DC-63 Parts List
| REF NO. | PART NO. | DESCRIPTION |
| 1 | 055.09745 | Eurodrive Gearmotor – 1-1/2 HP, 230/460/3/60 |
| 2 | 028.6385 | Idler Sprocket – 60B15H x .515″ Bore |
| 3 | 028.2003 | Sprocket – 60B15 x 1-3/8″ Bore |
| 4 | 029.1025 | #60 Roller Chain with Straight Sidebars |
| 5 | 029.213 | Connector Link #60 Chain |
| 6 | 090.2037 | Shaft Key – 5/16″ SQ. x 1″ LG. |
| 7 | 010.2028 | Bearing – Cast Iron, 4-Bolt, 1-3/8″ Bore |
| 8 | B-23697 | Bearing Plate |
| 9 | B-22817 | Drive/Tail Module Tread Plate (Specify Strand Centers and Section Length) |
| 10 | B-22516 | Spacer Plate for Gearbox |
| 11 | 099.456 | Wearstrip – #60 Chain Guide |
| 12 | B-22513 | Strand Guard Weld – Outboard |
| 13 | B-22512 | Sprocket Tension Plate Weld |
| 14 | B-22511 | Take-Up Bracket Weld |
| 15 | PT-014051 | Drive Shaft (Specify Strand Centers) |
| 16 | WA-006255 | Drive Frame Weld (Specify Strand Centers) |
| 17 | B-22818 | Intermediate Treadplate (Specify Strand Centers and Section Length) |
| 18 | B-25644 | Intermediate Frame Weldment (Specify Strand Centers and Section Length) |
| 19 | B-12672 | Foot Pad Assembly |
| 20 | B-19000 | Drive Support Weldment 15″ – 17″ Elevation |
| 21 | B-22819 | Drive Support Weldment 17″ – 31″ Elevation (Specify Elevation and Outside Strand Centers) |
| 22 | W-02028 | Intermediate Support Weldment (Specify Top of Chain and Strand Centers) |
| 23 | WA-008500-L | 12″ Open Tail Module Weld – LH (Specify Strand Ctrs) |
| 24 | WA-008500-R | 12″ Open Tail Module Weld – RH (Specify Strand Ctrs) |
| 25 | B-22532-R | Open Tail Stiffener Weld – RH |
| 26 | B-22532-L | Open Tail Stiffener Weld – LH |
DC-82 Parts Drawing
DC-82 Parts List
| REF NO. | PART NO. | DESCRIPTION |
| 1 | 911.0205 | Eurodrive Gearmotor – 2 HP, 230/460/3/60 |
| 2 | 028.6365 | Idler Sprocket – 80B15H x .750″ Bore |
| 3 | 028.3043 | Sprocket – 80B15 x 1-1/2″ Bore |
| 4 | 029.1035 | #80 Roller Chain with Straight Sidebars |
| 5 | 029.214 | Connector Link #80 Chain |
| 6 | 090.204 | Shaft Key – 3/8″ SQ. x 1″ LG. |
| 7 | 010.2041 | Bearing – Cast Iron, 4-Bolt, 1-1/2″ Bore |
| 8 | PT-031822 | Bearing Plate |
| 9 | B-25631 | Drive/Tail Module Tread Plate (Specify Strand Centers and Section Length) |
| 10 | PT-043649 | Spacer Plate for Gearbox |
| 11 | 099.457 | Wearstrip – #80 Chain Guide |
| 12 | WA-011860 | Strand Guard Weld – Outboard |
| 13 | WA-011833 | Sprocket Tension Plate Weld |
| 14 | WA-000478 | Take-Up Bracket Weld |
| 15 | PT-063273 | Drive Shaft (Specify Strand Centers) |
| 16 | WA-011816 | Drive Frame Weld (Specify Strand Centers) |
| 17 | PT-110884 | Intermediate Treadplate (Specify Strand Centers and Section Length) |
| 18 | B-22562 | Intermediate Frame Weldment (Specify Strand Centers and Section Length) |
| 19 | B-12672 | Foot Pad Assembly |
| 20 | B-19000 | Drive Support Weldment 15″ – 17″ Elevation |
| 21 | B-22819 | Drive Support Weldment 17″ – 31″ Elevation (Specify Elevation and Outside Strand Centers) |
| 22 | W-02821 | Intermediate Support Weldment (Specify Top of Chain and Strand Centers) |
| 23 | WA-032892 | 12″ Open Tail Module Weld (Specify Strand Centers) |
| 24 | WA-011366-R | Open Tail Stiffener Weld – RH |
| 25 | WA-011366-L | Open Tail Stiffener Weld – LH |
DC-83 Parts Drawing


DC-83 Parts List
| REF NO. | PART NO. | DESCRIPTION |
| 1 | 911.0205 | Euro drive Gearmotor – 2 HP, 230/460/3/60 |
| 2 | 028.6365 | Idler Sprocket – 80B15H x .750″ Bore |
| 3 | 028.3043 | Sprocket – 80B15 x 1-1/2″ Bore |
| 4 | 029.1035 | #80 Roller Chain with Straight Sidebars |
| 5 | 029.214 | Connector Link #80 Chain |
| 6 | 090.204 | Shaft Key – 3/8″ SQ. x 1″ LG. |
| 7 | 010.2041 | Bearing – Cast Iron, 4-Bolt, 1-1/2″ Bore |
| 8 | B-031822 | Bearing Plate |
| 9 | B-25631 | Drive/Tail Module Tread Plate (Specify Strand Centers and Section Length) |
| 10 | PT-043649 | Spacer Plate for Gearbox |
| 11 | 099.457 | Wear strip – #80 Chain Guide |
| 12 | B-011860 | Strand Guard Weld – Outboard |
| 13 | WA-011833 | Sprocket Tension Plate Weld |
| 14 | WA-000478 | Take-Up Bracket Weld |
| 15 | PT-101876 | Drive Shaft (Specify Strand Centers) |
| 16 | WA-032889 | Drive Frame Weld (Specify Strand Centers) |
| 17 | PT-110884 | Intermediate Treadplate (Specify Strand Centers and Section Length) |
| 18 | W-02818 | Intermediate Frame Weldment (Specify Strand Centers and Section Length) |
| 19 | B-12672 | Foot Pad Assembly |
| 20 | B-19000 | Drive Support Weldment 15″ – 17″ Elevation |
| 21 | B-22819 | Drive Support Weldment 17″ – 31″ Elevation (Specify Elevation and Outside Strand Centers) |
| 22 | W-02824 | Intermediate Support Weldment (Specify Top of Chain and Strand Centers) |
| 23 | WA-032894-L | 12″ Open Tail Module Weld – LH (Specify Strand Ctrs) |
| 24 | WA-032894-R | 12″ Open Tail Module Weld – RH (Specify Strand Ctrs) |
| 25 | WA-011366-R | Open Tail Stiffener Weld – RH |
| 26 | WA-011366-L | Open Tail Stiffener Weld – LH |
“Building Relationships One Conveyor Part at a Time” [email protected] | www.HytrolParts.com
Use code HYPMANUAL for free shipping on your first order at HytrolParts.com
Preventive Maintenance Checklist
Note: Check Set Screw for proper torque value after the first 24 hours of operation.
The following is a general maintenance checklist which covers the major components of your conveyor. maintenance schedule.
| COMPONENT | SUGGESTED ACTION | SCHEDULE | ||
| W | M | Q | ||
| Motor | Check Noise | |||
| Check Temperature | ||||
| Check Mounting Bolts | ||||
| Reducer | Check Noise | |||
| Check Temperature | ||||
| Check Oil Level | ||||
| Bearings | Check Noise | |||
| Check Mounting Bolts | ||||
| Drive Chain | Check Tension | |||
| Check Lubrication | ||||
| Check for Wear | ||||
| Sprockets | Check for Wear | |||
| Check Set Screws | ||||
| Structural | General Check: Check All Loose Bolts, etc. tightened | |||
- W = WEEKLY
- M = MONTHLY
- Q = QUARTERLY
“Building Relationships One Conveyor Part at a Time”
[email protected] | www.HytroParts.com

















