ProSort 100 Elite High Speed Sortation Conveyor
Instruction Manual
RECOMMENDED SPARE PARTS HIGHLIGHTED IN GRAY
HYTROPARTS.COM
ProSort 100 Elite High Speed Sortation Conveyor
Use code HYPMANUAL for free shipping on your first order at HytrolParts.com
INTRODUCTION
This manual provides guidelines and procedures for installing, operating, and maintaining your conveyor. A complete parts list is provided with recommended spare parts highlighted in gray. Important safety information is also provided throughout the manual. For safety to personnel and for proper operation of your conveyor, it is recommended that you read and follow the instructions provided in this manual.
• Receiving and Uncrating
- Check the number of items received against the bill of lading.
- Examine condition of equipment to determine if any damage occurred during shipment.
- Move all crates to area of installation.
- Remove crating and check for optional equipment that may be fastened to the conveyor. Make sure these parts (or any foreign pieces) are removed.
NOTE: If damage has occurred or freight is missing, Contact your Hytrol Integration Partner.
• How to Order Replacement Parts
Included in this manual are parts drawings with complete replacement parts lists. Minor fasteners, such as nuts and bolts, are not included.
When ordering replacement parts:
- Contact Dealer from whom conveyor was purchased or nearest HYTROL Integration Partner.
- Give Conveyor Model Number and Serial Number or HYTROL Factory Order Number.
- Give Part Number and complete description from Parts List.
- If you are in a breakdown situation, tell us.
HYTROL Serial Number
(Located near Drive on Powered Models).
SAFETY INFORMATION
• Installation
GUARDS AND GUARDING
Interfacing of Equipment. When two or more pieces of equipment are interfaced, special attention shall be given to the interfaced area to insure the presence of adequate guarding and safety devices.
Guarding Exceptions. Whenever conditions prevail that would require guarding under these standards, but such guarding would render the conveyor unusable, prominent warning means shall be provided in the area or on the equipment in lieu of guarding.
Guarded by Location or Position. Where necessary for the protection of employees from hazards, all exposed moving machinery parts that present a hazard to employees at their work station shall be mechanically or electrically guarded, or guarded by location or position.
- Remoteness from frequent presence of public or employed personnel shall constitute guarding by location.
- When a conveyor passes over a walkway, roadway, or work station, it is considered guarded solely by location or position if all moving parts are at least 8 ft. (2.44 m) above the floor or walking surface or are otherwise located so that the employee cannot inadvertently come in contact with hazardous moving parts.
- Although overhead conveyors may be guarded by location, spill guards, pan guards, or equivalent shall be provided if the product may fall off the conveyor for any reason and if personnel would be endangered.
HEADROOM
- When conveyors are installed above exit passageways, aisles, or corridors, there shall be provided a minimum clearance of 6 ft. 8 in. (2.032 m) measured vertically from the floor or walking surface to the lowest part of the conveyor or guards.
- Where system function will be impaired by providing the minimum clearance of 6 ft. 8 in. (2.032 m) through an emergency clearance, alternate passageways shall be provided.
- It is permissible to allow passage under conveyors with less than 6 ft. 8 in. (2.032 m) clearance from the floor for other than emergency exits if a suitable warning indicates low headroom.
Operation
A) Only trained employees shall be permitted to operate conveyors. Training shall include instruction in operation under normal conditions and emergency situations.
B) Where employee safety is dependent upon stopping and/or starting devices, they shall be kept free of obstructions to permit ready access.
C) The area around loading and unloading points shall be kept clear of obstructions which could endanger personnel.
D) No person shall ride the load-carrying element of a conveyor under any circumstances unless that person is specifically authorized by the owner or employer to do so. Under those circumstances, such employee shall only ride a conveyor which incorporates within its supporting structure platforms or control stations specifically designed for carrying personnel. Under no circumstances shall any person ride on any element of a vertical conveyor.
E) Personnel working on or near a conveyor shall be instructed as to the location and operation of pertinent stopping devices.
F) A conveyor shall be used to transport only material it is capable of handling safely.
G) Under no circumstances shall the safety characteristics of the conveyor be altered if such alterations would endanger personnel.
H) Routine inspections and preventive and corrective maintenance programs shall be conducted to insure that all safety features and devices are retained and function properly.
I) Personnel should be alerted to the potential hazard of entanglement in conveyors caused by items such as long hair, loose clothing, and jewelry.
J) Conveyors shall not be maintained or serviced while in operation unless proper maintenance or service requires the conveyor to be in motion. In this case, personnel shall be made aware of the hazards and how the task may be safely accomplished.
K) Owners of conveyor should insure proper safety labels are affixed to the conveyor warning of particular hazards involved in operation of their conveyors.
CAUTION! Because of the many moving parts on the conveyor, all personnel in the area of the conveyor need to be warned that the conveyor is about to be started.
Maintenance
- All maintenance, including lubrication and adjustments, shall be performed only by qualified and trained personnel.
- It is important that a maintenance program be established to insure that all conveyor components are maintained in a condition which does not constitute a hazard to personnel.
- When a conveyor is stopped for maintenance purposes, starting devices or powered accessories shall be locked or tagged out in accordance with a formalized procedure designed to protect all persons or groups involved with the conveyor against an unexpected start.
- Replace all safety devices and guards before starting equipment for normal operation.
- Whenever practical, DO NOT lubricate conveyors while they are in motion. Only trained personnel who are aware of the hazard of the conveyor in motion shall be allowed to lubricate.
Safety Guards
Maintain all guards and safety devices IN POSITION and IN SAFE REPAIR.
Safety Labels
In an effort to reduce the possibility of injury to personnel working around HYTROL conveying equipment, safety labels are placed at various points on the equipment to alert them of potential hazards. Please check equipment and note all safety labels. Make certain your personnel are alerted to and obey these warnings. See Safety Manual for examples of warning labels.
REMEMBER Do not remove, reuse or modify material handling equipment for any purpose other than it’s original intended use.
INSTALLATION
Location
- Determine direction of product flow. Figure 4A indicates the flow as related to the drive.
- Refer to “Match-Mark” numbers on ends of conveyor sections. (Figure 4A). Position them in this sequence near area of installation.
Conveyor Set-Up
- Mark a chalk line on floor to locate center of the conveyor.
- Attach supports and vibration pads to all conveyor sections shown in Figures 4A and 4B. Adjust elevation to required height. Hand tighten bolts only at this time.
- During installation, check to make sure each bed section is square. Measure the diagonals from corner to corner of the frame. If they are not equal the frame must be squared. Attach a come-along or some other suitable pulling device across longest corners and pull until the section is square.
- Place the infeed (tail) section in position.
- Install remaining sections, placing end without support on extended pivot plate of previous section (Figure 4A).

- Fasten sections together with splice plates and pivot plates. (Figure 4B).

- Check to see that conveyor is level across the width and length of unit. Adjust supports as necessary.
- After all sections have been squared and levelled, tighten all splice channels and support mounting bolts and lag support to the floor.
- Check alignment of wearstrip at all section joints. Sand wearstrip as necessary to provide a smooth wear surface (Figure 4C).

- Starting on the infeed end, fasten bearing profile to wearstrip guide using rubber mallet to force the profile edge under the wearstrip (Figure 4C & 4F). Glue infeed end of profile to the support angle with loctite # 401 or 454 adhesive.
- Run 1/2” main air line the full length of the sorter, either on the outside attaching it to the bottom of conveyor channel with cable ties, or through the bed spacer holes where rubber grommets are provided on the inside of the channel. (Figure 4A). Connect 3/8”air lines at divert switches as shown in Figures 4D & 4E.

- Connect main air line to the Filter/Regulator, (Figure 5A) Set regulator to working pressure of 60 P.S.I.
Install low pressure switch, at farthest point from regulator (Figure 4E).
- Install electrical controls and wire motor. Verify correct motor rotation at this time. See Page 5 & 6 for electrical control information.
- Check each divert switch to see that it is operating properly. This must be done before carrying chains are installed. See instructions on Page 8 & 9.
- Check proximity switch clearance at each internal safety switch (Figure 5C). Adjust if necessary.
- Install carrying chains per instructions on Page 8 & 9.

- Install chain oiler at infeed and connect to oil lines as shown in Figure 5B. Refer to the Lubrication section, page 6, for type of oil required. After mounting, the oiler will need to be adjusted for proper oiling of mounting chains. Adjustment may be made using a combination of solenoid activation time and flow adjustment screws. (A good rule of thumb for solenoid adjustment is to turn the oiler on for one complete chain revolution for every 40 hours of sorter operation.) Typically, the chain on the divert side will need slightly more oil; the flow adjustment screws can be altered to achieve volume.
CAUTION: Do not allow oil to drip on floor. - Locate spurs per instructions on Page 9.
• Electrical Equipment
WARNING! Electrical controls shall be installed and wired by a qualified electrician. Wiring information for the motor and controls are furnished by the equipment manufacturer.
CONTROLS
Electrical Code: All motor controls and wiring shall conform to the National Electrical Code (Article 670 or other applicable articles) as published by the National Fire Protection Association and as approved by the American National Standards Institute.
CONTROL STATIONS
A) Control stations should be so arranged and located that the operation of the equipment is visible from them, and shall be clearly marked or labeled to indicate the function controlled.
B) A conveyor which would cause injury when started shall not be started until employees in the area are alerted by a signal or by a designated person that the conveyor is about to start.
When a conveyor would cause injury when started and is automatically controlled or must be controlled from a remote location, an audible device shall be provided which can be clearly heard at all points along the conveyor where personnel may be present. The warning device shall be actuated by the controller device starting the conveyor and shall continue for a required period of time before the conveyor starts. A flashing light or similar visual warning may be used in conjunction with or in place of the audible device if more effective in particular circumstances.
Where system function would be seriously hindered or adversely affected by the required time delay or where the intent of the warning may be misinterpreted (i.e., a work area with many different conveyors and allied devices), clear, concise, and legible warning shall be provided. The warning shall indicate that conveyors and allied equipment may be started at any time, that danger exists, and that personnel must keep clear. The warnings shall be provided along the conveyor at areas not guarded by position or location.
C) Remotely and automatically controlled conveyors, and conveyors where operator stations are not manned or are beyond voice and visual contact from drive areas, loading areas, transfer points, and other potentially hazardous locations on the conveyor path not guarded by location, position,
or guards, shall be furnished with emergency stop buttons, pull cords, limit switches, or similar emergency stop devices.
All such emergency stop devices shall be easily identifiable in the immediate vicinity of such locations unless guarded by location, position, or guards. Where the design, function, and operation of such conveyor clearly is not hazardous to personnel, an emergency stop device is not required.
The emergency stop device shall act directly on the control of the conveyor concerned and shall not depend on the stopping of any other equipment. The emergency stop devices shall be installed so that they cannot be overridden from other locations.
D) Inactive and unused actuators, controllers, and wiring should be removed from control stations and panel boards, together with obsolete diagrams, indicators, control labels, and other material which serve to confuse the operator.
SAFETY DEVICES
A) All safety devices, including wiring of electrical safety devices, shall be arranged to operate in a “Fail-Safe” manner, that is, if power failure or failure of the device itself would occur, a hazardous condition must not result.
B) Emergency Stops and Restarts. Conveyor controls shall be so arranged that, in case of emergency stop, manual reset or start at the location where the emergency stop was initiated, shall be required of the conveyor(s) and associated equipment to resume operation.
C) Before restarting a conveyor which has been stopped because of an emergency, an inspection of the conveyor shall be made and the cause of the stoppage determined. The starting device shall be locked out before any attempt is made to remove the cause of stoppage, unless operation is necessary to determine the cause or to safely remove the stoppage.
Refer to ANSI Z244.1, American National Standard for Personnel Protection – Lockout/Tagout of Energy Sources – Minimum Safety Requirements and OSHA Standard Number 29 CFR 1910.147 “The Control of Hazardous Energy (Lockout/ Tagout).”
![]() | ![]() |
![]() | ![]() |
OPERATION
Conveyor Start-Up
Before conveyor is turned on, check for foreign objects that may have been left inside conveyor during installation. These objects could cause serious damage during startup.
After conveyor has been turned on and is operating, check all moving parts to make sure they are working freely.
CAUTION! Because of the many moving parts on the conveyor, all personnel in the area of the conveyor need to be warned that the conveyor is about to be started.
MAINTENANCE
Lubrication
BEARINGS
A) NO GREASE FITTING – Prelubricated – No lubrication required.
B) WITH GREASE FITTING – Relubricate approximately every 10 to 12 weeks with lithium base grease suitable for ball bearing service.
RECOMMENDED CHAIN LUBRICANT
A good grade of clean non-detergent petroleum or synthetic oil is recommended.
See chart for proper viscosity.
| Ambient Temperature Degrees F | SAE | ISO |
| 20-40 40-100 | 20 30 | 46 or 68 100 |
REDUCERS
See recommendations by manufacturer.

OILER BRUSH ADJUSTMENT
It is very important that the oiler brush comes in contact with the chain for proper lubrication and increased chain life. This can be done by using the adjusting nuts and support brackets.
Controlling the ProSort
A good software package is essential for the proper operation of the ProSort sorter. With proper controls, the sorter will provide accurate, efficient, reliable sorting for many years. Inadequate controls, however, may result in poor sorter performance and other mechanical failures of the sorter itself, including “crashes”. Hytrol recommends using the Hytrol ProLogix software package.
Every sortation system is different, which means that the controls for the system are custom and unique to that system. These custom controls are provided either by Hytrol, the Hytrol Integration Partner or a third party.
Hytrol has built into the sorter some of the controls necessary to operate the divert switches, eliminating the need to control this function externally. Other electrical control components are provided with the sorter to allow the external controls to monitor critical items and to provide an interface between the electrical controls and the mechanical sorter. Still other control components must be provided by the supplier of the custom controls package to insure proper sorter operation.
This section of the manual includes the following information for the custom controls provider:
- A description of the divert switch control components supplied, their function, and how to interface with them.
- A description of the other control components provided with the sorter and their intended function.
- A description of control components that are not included with the sorter that must be provided by the controls supplier.
- Some control do’s and dont’s to assist in the design and installation of the controls package.
Please read this section thoroughly and share this information with the controls provider.
DIVERT SWITCH CONTROL
Proper control of the divert switch is critical to the safe and reliable operation of the sorter. Failure to properly control the divert switch is one of the most common causes of switch damage and can cause “crashes.”
The divert switch functions similar to a switch on a train track to cause the divert shoes to travel either in a straight-through, “non-divert” track or diagonally across the sorter along a “divert track” to push product off of the sorter. When the switch is “Building Relationships One Conveyor Part at a Time” in the “home” position, the divert shoes travel through the switch along the straight through track. When the switch is in the “divert” position, the shoes are caused to move along the divert track.
The transition of the switch between the “home” and “divert” positions must be accurately timed to prevent sorter crashes. Just as a train track switch cannot be safely operated while a train is passing through the switch, the divert switch cannot be safely operated while a divert shoe is passing through the switch. If the movement of the switch mechanism is not timed to occur only when no shoe is present in the switch, the guide pin of the shoe may collide with the point of the divert block, resulting in damage to the switch and potentially costly downtime. The ProSort has two control components at each divert switch that work together to accurately time the divert switch movement or operation, eliminating the need for the controls provider to do so. These components are the smart prox and the high-speed solenoid air valve.
SMART PROX
The “smart prox” is a special inductive proximity sensor developed exclusively for Hytrol that has the “intelligence” needed to control the switch timing built-in. The prox plugs to the y-cable. See Figure 6A.
Brown—+24VDC power input to the prox.
Blue—Ground (-) lead for the prox.
Gray—Divert enable input lead for the prox. When a 24VDC (high) signal is given to this lead by the system controls, the prox waits for the next time it detects a divert shoe, at which time it provides a 24VDC output through the y-cable to the high speed solenoid air valve. The solenoid air valve then causes the switch to move to “divert” position. All shoes traveling through the switch will then follow the divert track as long as the enable signal is active (held high). When the divert signal is removed (taken low) the prox waits for the next time it detects a divert shoe, at which time it will turn off the output to the solenoid air valve. The switch then returns to the “home” position, and subsequent shoes will follow the “non-divert” track. The enable signal to this lead is the only signal that the system controls must provide to control divert switching.
Y Cable
The y-cable is used to connect the smart prox, solenoid air valve and the system controls. The male micro cord set from the smart prox connects to the terminal #1 of the y-cable. The pico pigtail, of the y-cable, connects to the male plug on the solenoid air valve at divert switch. The micro cord set with female end, plugs to terminal #2 of the y-cable. The leads from the terminal #2 cord set have the following functions (Fig. 6A). NOTE: Y-cable not used on dual divert sections.
Black—Standard prox output lead. This lead provides a 24VDC (high) signal each time the prox detects a divert shoe. This is an optional output and is to be used at the discretion of the controls provider.

ELECTRICAL REQUIREMENTS
- Customer supplied DC Power: 300mA at 24VDC
- All inputs to Smart Prox are sinking.
- All outputs from Smart Prox are sourcing.
HIGH-SPEED SOLENOID AIR VALVE
The solenoid air valve is used to receive the smart prox output signal and provide air to the proper end of the divert switch cylinder to move and hold the switch in either the “home” or “divert” positions. The valve used is specially designed for the high speed operation necessary for proper divert switch timing.
The two inputs of the solenoid are non-polarized, allowing either lead to be used as input or ground for the valve. The solenoid requires 24VDC, 6W to operate.
The solenoid air valve is controlled directly by the smart prox. Direct control of this valve by the controls package is not required or advised.
Other Control Components Supplied with the Conveyor
VARIABLE FREQUENCY DRIVE CONTROLLER
The variable frequency drive (VFD) is a motor controller that has three functions:
- It provides a smooth acceleration of the drive motor, allowing the sorter to slowly “ramp up” to full speed. This protects the sorter components from the stress of a full-speed start up.
- It allows the speed of the sorter to be adjusted to match speed requirements of the system. Also, it allows the sorter to be operated at a very slow speed during installation “Debugging” and when certain mechanical components are checked after servicing.
- It allows the sorter to be operated at a slower speed during “off-peak” seasons, reducing energy consumption, noise, and wear.
Refer to the VFD manufacturer’s installation manual, provided with the sorter, for wiring and adjustment instructions.
AIR PRESSURE SWITCH
The air pressure switch (Fig. 4E) is used to detect low operating air pressure. Operation of the sorter at air pressures under 50 PSI can cause erratic switching and potential switch damage. If air pressure falls below this level, the sorter must be shut down until the cause of the pressure drop has been found and remedied. The pressure switch provides a contact-type output which closes at pressures at or above about 48 PSI and opens below that air pressure. The system controls provider should use this switch to monitor air pressure at the sorter and should shut down the sorter if an open (low) output is detected from the pressure switch. Refer to the pressure switch manufacturer’s installation manual, provided with the sorter, for wiring instructions.
SAFETY PROXIMITY SWITCHES
There are safety switch devices located at various locations in the sorter to indicate when a divert shoe is out of place, an obstruction has entered the sorter, or when some other event has occurred that could cause damage to the sorter or danger to personnel. These safety switches use normal inductive proximity switches as the electrical interface to the system controls.
There are two types of safety switches in the sorter:
- Shoe position safety switches are switch mechanisms inside the sorter that trip if a divert shoe passes them that is not in its proper track. They are also used to detect foreign objects that might fall between the slats and enter the interior of the sorter. They are made to detect problems on both the upper and return portions of the sorter.
There is one shoe position safety switch located at the infeed end and one at the discharge end of the sorter. There are additional switches included for every 30 feet of sorter length after the first 30 feet. For example, a sorter 50 feet long will have a total of 3 switches, a sorter 80 feet long will have a total of 4 switches and so on. These additional switches are spaced evenly along the sorter’s length. - The transition safety switch is used to detect when the transition assembly on the discharge end of the sorter is pushed out of position if a stray divert shoe or a foreign object makes contact with them.
The normal state of the output of the safety proximity switch is”on” (high). If a switch detects a problem the signal is changed to “off” (low). The system controls must be configured to go to an “emergency stop” condition and shut down the sorter and related equipment when a problem is detected. Restart must not be possible until the problem is corrected and the safety switch that detected the problem is again “on” (high). Refer to the proximity switch manufacturer’s installation manual, provided with the sorter, for wiring instructions.
CATENARY TAKE-UP PHOTO EYE
The catenary take-up photo-eye monitors the amount of chain sag occurring in the drive’s catenary area. The photo-eye is a retro-reflective, light-operated type, positioned in the catenary so that if the carrying chains allow the slats to sag below a certain level, the beam of the eye is blocked.
The system controls must be configured to stop the sorter when the photo-eye beam is continuously blocked (photo-eye output is “off” or “low”) and provide an indication to the sorter operator that the chains must be taken up or shortened before operating the sorter further.
Refer to the photo-eye manufacturer’s installation manual, provided with the sorter, for wiring instructions.
ENCODER
An encoder is included with the sorter to provide a pulse signal to be used for product tracking. The encoder provides a square-wave pulse signal of 30 pulses per revolution of the sorter infeed shaft. This equates to one pulse for every 1.301 inches of sorter travel.
The encoder requires 24VDC power, and provides a 24VDC pulse output.
Refer to the encoder manufacturer’s installation manual provided with the sorter, for wiring instructions.
CHAIN OILER SOLENOID
The chain oiler is used to provide automatic lubrication of the carrying chains during sorter operation. When the oiler solenoid valve is energized, oil is allowed to gravity feed from the oiler reservoir, through metering valves, to brushes located above the return chains in the sorter.
The system controls should be configured to activate the chain oiler solenoid for a duration equal to one complete revolution of the carrying chains about every forty hours of operation. The actual amount of oil applied to the chains is controlled by the metering screws (see “Conveyor Set-up” section of this manual). The chain oiler solenoid requires 24VDC power to operate.
LOST BEARING DETECTION
The missing bearing block is used to detect a bearing missing from a divert shoe.
A divert shoe that does not have a bearing on the bottom can cause damage to the sorter. The missing bearing block uses two proximity switches located in the return section of the sorter to detect the presence of a bearing on the shoe. If one prox detects a bearing being present but the other does not, the block removes its output to indicate a missing bearing was detected. Missing bearing prox is located in the bottom of the discharge divert section. The missing bearing detector has a normally high signal that will output 24 Volts DC as long as no missing bearings/ pins are detected. If a missing bearing/pin is detected then the signal will go low and the PLC should stop the sorter. Prior to restarting the sorter, the PLC should pulse 24VDC to the RESET ERROR input on the missing bearing detector. Doing this will reset the detector so that the output turns back to on. The missing bearing detector also has the optional feature of testing for the proper function of the prox sensors used by the detector. The detector has a second output (BROKEN PROX ERROR) that is normally high (24 VDC) while the sensors are functioning normally. This output is activated by a SORTER RUNNING INPUT to the detector. If a signal (24 VDC) is supplied to that input while the sorter VFD is enabled it will activate the test to detect a malfunctioning prox sensor. The SORTER RUNNING INPUT must remain energized for the BROKEN PROX ERROR OUTPUT to be energized as well as to continue testing the prox sensors. If a malfunctioning prox sensor is detected then the prox sensors and all connections to the sensors should be inspected and repaired or replaced. The BROKEN PROX ERROR should be reset in the same manor to that of the missing bearing error.
The power to operate the missing bearing detector, the prox sensors, and the signals going back to the PLC are all from a customer supplied 24 VDC source. The 24VDC, 200 mA power required is to be provided through the M12 connector labeled ‘INPUT’.
Control Components Not Supplied with the Conveyor
In addition to the control components supplied with the ProSort sorter, there are several components that must be supplied by the system control provider. Hytrol recommends the following control components be used to protect the sorter from damage due to product jams or other problems.
ADJUSTABLE INSTANTANEOUS MOTOR OVERLOADS
Instantaneous overloads provide protection against sorter “hang-ups” by turning off the drive if a sudden increase in motor current is detected. By adjusting the overload limit to slightly above the power required to operate the sorter, any extra load on the motor, such as would be caused by a product jam or switch malfunction, would cause the sorter to stop, possibly before significant damage is done to the equipment.
The instantaneous overloads should be installed in the control panel for the sorter and sized for the proper power requirements.
PHOTO-EYES
Photo-eyes are common components in systems controls. Hytrol recommends that photo-eyes be installed at the following locations to perform listed functions. These are, of course, in addition to other photo-eyes needed in the system.
Induction Photo-eye—A photo-eye mounted at the infeed point of the sorter. This eye is used to perform the following functions:
- Signal the system controls that a particular package has entered the sorter.
From this point forward, the package must be tracked using the encoder pulses to determine when it reaches the proper divert location. - Measure the length of the package so that the system controls may assign the proper number of divert shoes to the package for diverting.
Note: Shoes are to be assigned for the entire length of the package plus one extra shoe is to be assigned to the trailing end of the package. - Check for the proper gap between packages for safe sorting. It is important to check for the proper gap here, even if it has been set prior to this point, to insure that the packages are truly spaced properly. Attempting to sort packages with too little gap between them can cause jams.
Note: The minimum gap necessary for sorting a package is a function of the width of the package. The charts below should be used in checking for proper gap.
| ProSort 121 (22° Diverts) | |
| 0” < W ² 6” | Minimum gap = 6” |
| 6” < W ² 18” | Minimum gap = 9” |
| 18” < W ² 30” | Minimum gap = 12” |
* W = Maximum Package Width Note: When sorting to both sides, the minimum gap from the above charts must be increased by 3 in.
| ProSort 131 (30° Diverts) | |
| 0” < W ² 6” | Minimum gap = 6” |
| 6” < W ² 12” | Minimum gap = 9” |
| 12” < W ² 18” | Minimum gap = 12” |
| 18” < W ² 24” | Minimum gap = 15” |
Jam/Confirmation Photo-eye—Photo-eyes mounted on each take-away spur of the sorter, as close to the sorter as possible. These eyes perform two functions:
- Detect a product jam at the sorter “exit point.” If a package blocks this photo-eye for a longer time than it would take for the package to travel past the photo-eye normally, this indicated that the package is jammed. The sorter should be stopped and the jam cleared before restarting the sorter.
- Divert confirmation. If a divert signal is given to a particular divert point, and no package is detected by the associated jam/confirmation photo-eye, an error has occurred. The sorter should be stopped and the error found and corrected before restarting the sorter.
Full Line Photo-eye—Photo-eyes mounted on each divert lane from the sorter, near the infeed end of that lane. These eyes are used to signal the system controls that a particular divert lane is full. The controls should then send any further packages assigned to that lane to the recirculation line until the full line photo-eye on that lane no longer indicates the full condition.
Recommended Controls Procedures
The following are recommendations to assist in the design and installation of system controls that are interfacing with ProSort sorters.
- Do not place 24VDC control wires in the same wireway with AC power wires, especially if the AC power exceeds 240 volts. “Noise” produced in the control wires by the power wires may produce undesirable effects.
- Do not use optional “standard prox output” of the smart prox as a substitute for an encoder. The five inch spacing between divert shoes does not provide enough tracking resolution to accurately sort packages.
- Do not use manual override operator of the solenoid air valve to operate a divert switch while the sorter is running. Doing so bypasses the switch timing controls and may cause switch damage or a sorter crash.
- Do treat the tripping of any safety switch, motor overload, or low air pressure signal as an emergency stop. Inspect the safety switch and other parts of the sorter to be sure everything is in good working order before starting or restarting the sorter.

Pneumatic Divert
Switch Checklist
After all ProSort sections are installed and aligned, each divert switch should be checked for proper operations as follows:
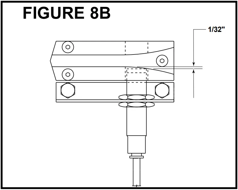
- Before air pressure is supplied to the divert switch solenoid air valve, manually pivot the switch back and forth between the non-divert and divert position checking for a free and smooth pivoting movement. Determine and remedy the cause of any switch binding. For proper switch alignment see figures 8C & 8D. If switch adjustment is necessary, loosen the jam nut on the cylinder rod. Screw cylinder rod into or out of rod end to adjust the switch and retighten jam nut.

- Turn air pressure on and verify that each divert switch is in, or moves to, the home (non-divert) position (Figure 8C).
- Check to insure that the smart prox is set properly. The face of the prox should be set just out of the shoe pin guide path in the switch guide (Figure 8B)

Electric Divert Switch Checklist
NOTE: All electric divert servo motors are paired with the associated drives at the factory. Connecting motors to the wrong drive may have an adverse effect on the divert operation and could result in physical damage to the sorter. Always connect the drives to the factory paired motors to prevent damage.
- Before running the sorter, apply power to the electric switch system and verify that the diverts are fully in either the home or diverted position. Divert function was tested at the factory to ensure proper operation. If the diverts are in the diverted position, they can be returned to the home position, Figure 8E by removing the enable signal to the Smart Prox and then flagging the Smart Prox to trigger a move operation.
- Each time diverts are powered on, the diverter will move slowly until it finds the home position.
- Ensure that the “All Systems Go” signal is on before running the sorter.
- Check to ensure that the Smart Prox is set properly. The face of the prox should be set just out of the shoe pin guide path in the switch guide (Figure 8F).

Carrying Chain Installation
The carrying chains are shipped on marked spools, cut to proper length for each ProSort conveyor. Steps for installing are as follows:
- Disconnect electrical power to drive motor to prevent accidental start up.
- Check alignment of chain guides by using two short pieces of chain with slat/ shoe assemblies and bearings assembled to pins. This chain/slat/shoe assembly should slide freely through chain guides in direction of travel for entire length of conveyor.
- Install carrying chains to both sides of conveyor with pins pointed inward (Figure 9C). Make sure the pins of each chain are directly opposite each other. Bearings with bushings are installed on each pin. It will be helpful while installing chains to install one slat/shoe assembly every 4 feet to hold chain in guides.
- Fasten ends of both chains with connector links as shown in Figure 9B. Follow manufacturer’s instruction on proper lubrication when installing connector links.
- Install slat/shoe assemblies onto the extended chain pins on one side of conveyor – being careful to keep the beveled face of the shoe toward the discharge end and the side with the rubber insert toward the spur side of conveyor (See Figure 9B). Lift opposite chain out of chain guide (so chains may be spread apart) and insert extended chain pins into opposite end of slat/shoe assemblies.
- After all slat/shoe assemblies are installed, tighten carrying chains with take-up bolts at drive shaft. Be sure drive and tail shafts are square. Retighten all drive take-up plate mounting bolts. See Figure 9A for proper slack in chains.
- Manually crank entire carrying chain assembly through the conveyor to see that it operates freely and nothing has been dropped into the conveyor during installation. Also inspect divert shoes to make sure all of them have been installed on the correct centers. If chains are ever shortened it must be in increments of three inches.
- Reconnect electrical power to drive motor.
Install Guard Rails at Divert Locations
If guard rails are to be installed on the spurs and/or the spur side of the sorter, care should be taken to insure that the guard rails do not interfere in any way with he boxes being diverted. Particularly, guards should not be installed in a way that produces a sharp edge or point in the divert area.

Locating the Spurs
The take-away spurs must be mounted properly on the divert sections of the ProSort to insure proper diverting of product. The following installation guidelines apply to both powered and gravity spurs.
- Attach spurs to the sorter by bolting the spur attachment bracket to the spur mounting nuts in the Unistrut channel on the sorter side channel (Figure 9D). Support the spurs as required. Hand-tighten bolts only at this time.
- Manually place 3 or more shoes along the divert angle as shown. Place a straight-edge against the shoes to determine the location of the “divert line”. Verify that the distance between the “divert line” and the “BR” of the spur is at least 1-1/4” as shown (Figure 9E).
- Position spur vertically so that the spur rollers/skate wheels are level with the slats on the sorter. Tighten mounting bolts.
- Jackbolt Assembly supplied with spur.

Pneumatic Divert Switch Removal
Procedure
The ProSort is designed for easy removal of the divert switch assembly for maintenance or replacement. In order to remove the pneumatic switch assembly follow the following steps.
- Unplug the elbow from the fitting on the solenoid air valve by pushing in the red flange of the fitting and then pulling on the elbow.
- Disconnect prox switch cord set from y-cable connector (Figure 6A).
- Remove the cover located on the side of the sorter under the divert switch assembly by lifting and rotating down and out of the way (Figure 10B).
- By reaching through the uncovered hole in the side channel remove the two nuts at the back side of the switch assembly channel. Then remove the two bolts on the outside of the sorter channel which hold up the front side of the switch assembly channel (Figure 10B).
- The front side of the switch assembly channel may then be lowered and the entire assembly may be removed through the opening in the sorter channel.
- Check the new switch assembly according to the “Divert Switch Checklist” on page 8.
- Install the new divert switch assembly by reversing the procedure by which the old assembly was removed.
Electric Divert Switch Removal Procedure
The ProSort is designed for easy removal of the divert switch assembly for maintenance or replacement. In order to remove the electric switch assembly follow the following steps.
- Turn off all power going into the panel connected to the divert that is needing to be removed. This includes turning the disconnect on the front of the panel to the OFF position and disconnecting the 3-Phase supply power and control power.
- Wait at least 90 seconds after removing all power to allow the power to fully dissipate to a safe level.
- After waiting 90 seconds, remove the cover located on the side of the sorter under the divert switch assembly by lifting and rotating down and out of the way. Remove the 5-wire M12 cable and black power cable from the splitter cable.
- By reaching through the uncovered hole in the side channel, remove the two nuts at the back side of the switch assembly channel. Then remove the two bolts on the outside of the sorter channel which hold up the front side of the switch assembly channel (Figure 10D).
- The front side of the switch assembly channel may then be lowered and the entire assembly may be removed through the opening in the sorter channel.
Electric Switch Homing Procedure
- Before starting the sorter, supply 24VDC power to homing prox and Smart prox.
- Supply 48VDC to the servo motor (Figure 10E).
- The servo motor goes through a homing procedure where the switch block rotates to find the home location. This process takes approximately 10 seconds to complete.
- Wait for the enable signal from the switch.
- Sorter is now ready to run.
WARNING! Keep fingers clear of switch blcok during the homing procedure.


Trouble Shooting
The following charts list possible problems that may occur in the operation of the ProSort.
TROUBLE SHOOTING DRIVES
| TROUBLE | CAUSE | SOLUTION |
| Conveyor will not start or shuts off automatically during operation. | 1) Jam eye blocked 2) Tripped internal safety switch. 3) Transition rollers out of position. 4) Proximity switch for internal safety switch or transition rollers mis-adjusted or defective. 5) Low air pressure. a) Regular set low. b) Air line restricted or broken. c) Air filter clogged. d) Compressor problem. e) Lockout closed. 6) Electrical circuits. 7) Variable speed drive mis-adjusted or defective. 8) Drive motor defective. | 1) Unblock jam eye. 2) Determine cause of tripping: foreign debris, mislocated divert shoes, etc., and correct problem. 3) Determine reason for transition rollers being out of position and correct problem. 4) Adjust or replace proximity switch. 5) Determine reason for low air pressure and correct problem. 6) Check power and wiring. 7) Refer to variable speed drive manufacturer’s manual for trouble shooting. 8) Replace motor. |
| Conveyor takes long time to reach speed or conveyor jerks when starting. | 1) Variable speed drive mis-adjusted or defective. | 1) Refer to variable speed drive manufacturer’s manual for trouble shooting. |
| Divert shoes “jump” during diverting. | 1) Divert shoe tight on slats. 2) Slats d. 3) Slats banditry. 4) Switch mis-adjusted. | 1) Replace slat/shoe assembly. 2) Clean surface. (Refer to Preventive Maintenance Details) 3) Replace slat/shoe assembly. 4) Refer to Divert Switch Checklist, Page 8 & 9. |
| Inoperative divert switch. | 1) No air pressure to cylinder. 2) Lockout closed. 3) Air solenoid valve defective. 4) Proximity switch mis-adjusted or defective. | 1) Check air line and filter regulator. Replace if necessary. 2) Open lockout. 3) Replace. 4) See page 8 & 9 for proper adjust or replace. |
| All divert switches inoperative. | 1) Loss of power to air solenoid valves. 2) Controls failure. | 1) Correct problem. 2) Trouble shoot control system. |
| Inoperative electric divert switch | 1) No power to electric switch. | 1) Check 3-Phase power to the servo drive enclosure. |
REPLACEMENT PARTS
Lost Pin Prox Assembly
| Ref. No. | Part No. | Description |
| 1 2 3 4 – | 941.650185 923.0227 092.1793 | Y-Block Support Plate – Return (22° or 30°) Prox Switch – 18MM Fixing Clamp Y-Block – LH, 22° Return |
| 5 6 | 092.1783 092.17955 092.17855 EB-000068 041.800 | Y-Block – RH, 22° Return Y-Block – LH, 30° Return Y-Block – RH, 30° Return Missing Bearing Detection Controller 1/4-20 Hex Locknut – Nylon Insert |
| 7 8 9 10 | 041.801 042.10234 042.654 042.6545 | #8-32 Hex Locknut – Nylon Insert #8-32 x 1-3/4 in. lg Round Head Machine Screw 1/4-20 x 2 in. lg Hex Socket Flat Head Cap Screw 1/4-20 x 2-1/2 in. lg Hex Socket Flat Head Cap Screw |
Pneumatic Divert Switch Assembly Parts Drawing

| Ref. No. | Part No. | Description |
| 1 2 3 4 5 | 019.222 032.21124 032.2113 040.100 040.20255 | Female Rod End – 5/16-24 RH Threads Y-Plug Cable Connector Smart Proximity Switch-24VDC, Customized 1/4-20 X 3/4 in. LG Hex Head Cap Screw, ZP 5/16-24 X 1-1/4 in. LG Hex Bolt, Full TH, GR 8 |
| 6 7 8 9 10 | 041.1012 041.596 041.798 041.799 041.800 | 5/16-24 Hex Nut – Grade 8, Yellow Zinc 5/16-24 NC2B Hex 2-WAY Jam Locknut- REG, 3/8-16 NC2B Hex Locknut- Nylon Insert, ZP 5/16-18 NC2B Hex Locknut-Nylon Insert, ZP 1/4-20 NC2B Hex Locknut-Nylon Insert, ZP |
| 11 12 13 14 15 | 041.8005 041.802 042.59025 042.651 042.6515 | #6-32 Hex Locknut – Nylon Insert, ZP #10-24 NC2B Hex Locknut- Nylon Insert, ZP #6-32 X 1-1/4 in. LG Socket Head Mach Screw #10-24 X 1 in. LG Hex Skt Flat HD Cap Screw #10-24 X 1-3/4 in. LG Hex Skt Flt HD Cap Screw |
| 16 17 18 19 20 | 042.6535 042.654 042.6545 043.300 092.163 | 1/4-20 X 1-3/4 in. LG Hex Skt Flt HD Cap Screw 1/4-20 X 2 in. LG Hex Skt Flt HD Cap Screw 1/4-20 X 2-1/2 in. LG Hex Skt Flt HD Cap Screw 5/16 in. ID External Lock washer, ZP Rubber Vibration Mount – 1-1/2 in. DIA |
| 21 22 23 – 24 | 092.1825 MP-002574 092.184905 092.184906 094.107955 | Switch Guide – ProSort 100 Switch Block – PS100E Divert Block – LH, 30 DEG, PS100E Divert Block – RH, 30 DEG, PS100E 4-Way Single Solair Valve – 24VDC |
| 25 26 27 28 29 | 094.10816 094.1149 094.11496 094.12021 094.140 | 1/8 in. Porous Bronze Muffler 3/8 in. OD Polyurethane Tubing – Black 1/2 in. OD Polyurethan Tubing – Black Air Cylinder – 9/16 in. Stroke, 20MM Bore Brass Conn-Straight Male,1/4 in. PLST-1/8 in. NP |
| 30 31 32 33 34 | 094.14015 094.1406 094.14089 094.1465 911.0264 | Brass Conn-Straight Male, 1/8 in. NPT-3/8 in. PLS Plastic Elbow – Male, 360D Swivel W/RET Plastic Tee-1/2 in. PLST-1/2 in. PLST-1/2 in. PLST Plug-In Reducer – 3/8 in. PLST-1/2 in. Push-In M18 Internal Tooth Lock washer, ZP |
| 35 36 37 38 39 | 923.0172 923.0173 043.101 MP-002541 – | Positioning Stud – 5/16 in. -18 X 2-1/2 in. LG Urethane Bushing 5/16 in. ID Flat Steel Washer Switch Bearing Block – Nylon, ProSort 100 Switch CHNL – PS100E (LH or RH) |
| 40 41 42 43 44 | – – – – – | PROX SWITCH MOUNTING ANGLE – PS100E SWITCH MOUNTING ANGLE – PS100E VALVE MOUNTING ANGLE – INSIDE AIRLINE CYLINDER MTG ANGLE – BUSHING SWITCH PLATE WELD -(LH or RH) |

| Ref. No. | Part No. | Description |
| 1 2 3 4 5 | 019.222 032.21124 032.2113 040.100 040.20255 | FEMALE ROD END – 5/16-24 RH THREADS Y-PLUG CABLE CONNECTOR SMART PROXIMITY SWITCH-24VDC, CUSTOMIZED 1/4-20 X 3/4″LG HEX HEAD CAP SCREW, ZP 5/16-24 X 1-1/4″LG HEX BOLT,FULL TH,GR 8 |
| 6 7 8 9 10 | 041.1012 041.596 041.798 041.799 041.800 | 5/16-24 HEX NUT – GRADE 8, YELLOW ZINC 5/16-24 NC2B HEX 2-WAY JAM LOCKNUT- REG, 3/8-16 NC2B HEX LOCKNUT- NYLON INSERT,ZP 5/16-18 NC2B HEX LOCKNUT-NYLON INSERT,ZP 1/4-20 NC2B HEX LOCKNUT -NYLON INSERT,ZP |
| 11 12 13 14 15 | 041.8005 041.802 042.59025 042.651 042.6515 | #6-32 HEX LOCKNUT – NYLON INSERT, ZP #10-24 NC2B HEX LOCKNUT- NYLON INSERT,ZP #6-32 X 1-1/4″LG SOCKET HEAD MACH SCREW #10-24 X 1″LG HEX SKT FLAT HD CAP SCR #10-24 X 1-3/4″LG HEX SKT FLT HD CAP SCR |
| 16 17 18 19 20 | 042.6535 042.654 042.6545 043.300 092.163 | 1/4-20 X 1-3/4″LG HEX SKT FLT HD CAP SCR 1/4-20 X 2″LG HEX SKT FLT HD CAP SCR 1/4-20 X 2-1/2″LG HEX SKT FLT HD CAP SCR 5/16″ID EXTERNAL LOCKWASHER, ZP RUBBER VIBRATION MOUNT – 1-1/2″DIA |
| 21 22 23 – 24 | 092.1825 MP-002574 092.184903 092.184904 094.107955 | SWITCH GUIDE – PROSORT 100 SWITCH BLOCK – PS100E DIVERT BLOCK – LH, 20 DEG, PS100E DIVERT BLOCK – RH, 20 DEG, PS100E 4-WAY SINGLE SOL AIR VALVE – 24VDC |
| 25 26 27 28 29 | 094.10816 094.1149 094.11496 094.12021 094.140 | 1/8” POROUS BRONZE MUFFLER 3/8”OD Polyurethane Tubing – Black 1/2” OD Polyurethan Tubing – Black AIR CYLINDER – 9/16”STROKE, 20MM BORE BRASS CONN-STRAIGHT MALE,1/4”PLST-1/8”NP |
| 30 31 32 33 34 | 094.14015 094.1406 094.14089 094.1465 911.0264 | BRASS CONN-STRAIGHT MALE,1/8”NPT-3/8”PLS PLASTIC ELBOW – MALE, 360D SWIVEL W/RET PLASTIC TEE-1/2”PLST-1/2”PLST-1/2”PLST PLUG-IN REDUCER – 3/8”PLST-1/2”PUSH-IN M18 INTERNAL TOOTH LOCKWASHER, ZP |
| 35 36 37 38 39 | 923.0172 923.0173 043.101 MP-002541 – | POSITIONING STUD – 5/16”-18 X 2-1/2”LG URETHANE BUSHING 5/16”ID FLAT STEEL WASHER SWITCH BEARING BLOCK – NYLON,PROSORT 100 SWITCH CHNL – PS100E (LH or RH) |
| 40 41 42 43 44 | – – – – – | PROX SWITCH MOUNTING ANGLE – PS100E SWITCH MOUNTING ANGLE – PS100E VALVE MOUNTING ANGLE – INSIDE AIRLINE CYLINDER MTG ANGLE SWITCH PLATE WELD -(LH or RH) |
Electric Divert Switch Assembly Parts Drawing

| Ref. No. | Part No. | Description |
| 1 2 3 4 5 | 032.2113 040.100 040.2031 041.796 041.798 | Smart Proximity Switch-24VDC, Customized 1/4-20 X 3/4 in. LG Hex Head Cap Screw, ZP 5/16-18 X 2 in. LG Hex Head Cap Screw, ZP 1/2-13 NC2B Hex Locknut- Nylon Insert,ZP 3/8-16 NC2B Hex Locknut- Nylon Insert,ZP |
| 6 7 8 9 10 | 041.799 041.800 041.8005 041.801 041.802 | 5/16-18 NC2B Hex Locknut -Nylon Insert,ZP 1/4-20 NC2B Hex Locknut -Nylon Insert,ZP #6-32 Hex Locknut – Nylon Insert, ZP #8-32 Hex Locknut – Nylon Insert, ZP #10-24 NC2B Hex Locknut – Nylon Insert,ZP |
| 11 12 13 14 15 | 042.10338 042.59025 042.59505 042.6515 042.6535 | #8-32 X 3/4 in. LG Round Head Machine Screw,ZP #6-32 X 1-1/4 in. LG Socket Head Mach Screw 1/4-20 X 2-1/4 in. LG Skt HD Cap Screw,STD THD #10-24 X 1-3/4 in. LG Hex Skt Flt HD Cap Screw 1/4-20 X 1-3/4 in. LG Hex Skt Flt HD Cap Screw |
| 16 17 18 19 20 | 042.6545 042.6642 046.061 092.163 092.1825 | 1/4-20 X 2-1/2 in. LG Hex Skt Flt HD Cap Screw 3/8-16 X 3-1/4 in. LG Hex Skt Flt HD Cap Screw M5-8MM Hex Locknut – Nylon Insert Rubber Vibration Mount – 1-1/2 in. DIA Switch Guide – ProSort 100 |
| 21 22 23 24 25 | MP-002616 092.18466 092.184907 098.150 923.0220 | Switch Bearing -Teknic, Nylon 6/6,PRO 400 Switch Block – Nylatron, ProSort 100E Divert Block – RH, 30 DEG, PS100E Spacer – .406 in. ID X .75 in. OD X .375 in. LG Low Socket Cap Screw – M5-0.8 X 25MM |
| 26 27 28 29 30 | 941.650184 941.721130 941.721132 941.72133 – | Inductive Prox – 12MM Servo – Teknic 3421P, ProSort ELEC Switch Power Cable – ProSort ELEC Switch Servo Servo I/O Splitter Cable Spacer Plate – Teknic Servo, 4GA |
| 31 32 33 34 35 | – – – – – | CAM – Teknic Servo, 1-5/8 in. DIA Switch CHNL ELECT- PS100E (LH) Switch Mounting Angle – PS100E Prox Switch Mounting Angle – PS100E Prox Plate |
| 36 37 | – – | Switch Pivot Weld (LH) M18 Internal Tooth Lockwasher |
Safety Switch Assembly

| Ref. No. | Part No. | Description |
| 1 2 3 4 5 | 032.2116 040.101 040.1035 041.100 041.800 | Prox Switch – DC, Normally Open 1/4-20 x 1″ lg. Hex head cap screw 1/4-20 x 1-3/4″ lg. Hex head cap screw 1/4-20 Hex Nut 1/4-20 Hex Locknut w/nylon insert |
| 6 7 – – – | 043.100 – 069.715827 069.715833 069.715839 | 1/4″ I.D. Flat steel washer Sensor Belt For 27″OAW For 33″OAW For 39″OAW |
| – 8 9 10 | 069.715845 090.220 – – | For 45”OAW Red Vinyl Plastisol Cap Safety Switch Plate (specify OAW) Mounting Bracket (LH or RH) |
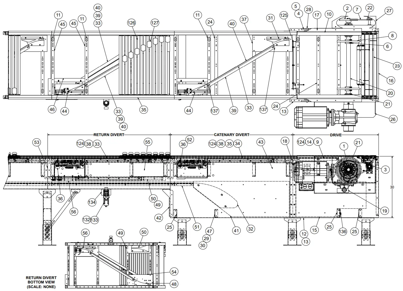
Model ProSort 131 Elite Parts Drawing
Catenary Divert, Return Divert, and Drive Section

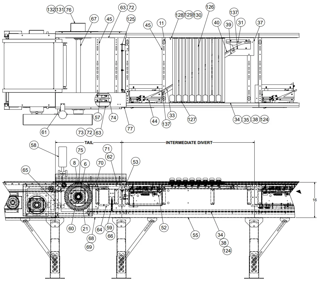
Model ProSort 131 Elite Parts Drawing
Intermediate Divert and Tail Section
NOTE:
Place chain covers so that no seams are located within the spur/ diverting area.
Model ProSort 131 Elite Parts Drawing
Induction Unit

Model ProSort 131 Elite Parts Drawing
Intermediate Section Assembly

| Ref. No. | Part No. | Description |
| 1 2 3 4 5 | P-01898 P-01899 P-01940 PT-141785 PT-141807 | Chain Guide Wearstrip – Top (specify length) Chain Guide Wearstrip – Bottom (specify length) Chain Cover (specify length) Chain Guide Mounting Angle (specify length) Splice Plate – PS100E |
| 6 7 8 9 | PT-142073 P-02389 PT-145205 WA-040365 | Pin Guide Spacer Side Angle (specify length & LH or RH) Joint Pin Guide Plate Bed Spacer Weldment (specify OAW) |
Alignment Offset

| Ref. No. | Part No. | Description |
| 1 | PT-174779 | DIVERT ANGLE ALIGNMENT BLOCK |
NOTE:
Use the alignment offset tool to make sure that the divert rail is properly aligned with the divert block.
WARNING! If divert rail and divert block are not properly aligned this can create unwanted noise and potentially cause damage.
30° Divert Section

| Ref. No. | Part No. | Description |
| 1 2 3 4 5 | 092.1785 092.1795 MP-002356 P-01898 P-01899 | Y-BLOCK – LH, 30 DEG, PROSORT 100E Y-BLOCK – RH, 30 DEG, PROSORT 100E UHMW WEARSTRIP – J-LEG (specify length) CHAIN GUIDE WEARSTRIP – TOP (specify length) CHAIN GUIDE WEARSTRIP – BOTTOM (specify length) |
| 6 7 8 9 10 | P-01940 PT-141782 PT-141783 PT-141807 | CHAIN COVER (specify length) COVER PLATE SWITCH SIDE COVER PLATE CHAIN GUIDE MOUNTING ANGLE SPLICE PLATE – PS100E |
| 11 12 – – – | PT-142073 – – – – | PIN GUIDE SPACER SIDE ANGLE – DIVERT (specify length & LH or RH) 51” long for 27” OAW 60” long for 33” OAW 72” long for 39” OAW |
| – 13 14 15 16 | – – PT-141784 – SA-061764 | 81″ long for 45″ OAW DIVERT ANGLE – PS100E Y-BLOCK SUPPORT PLATE, 30D WEARSTRIP TIE STRAP SWITCH ASSY – LH, 30 DEG |
| 17 18 19 20 | SA-066648 WA-040365 WA-040366 PT-174779 | SWITCH ASSY – RH, 30 DEG BED SPACER WELD (specify OAW) SWITCH SUPT CHNL WELD DIVERT ANGLE ALIGNMENT BLOCK |
Model ProSort 131 Elite Parts List
| Ref. No. | Part No. | Description |
| 1 2 3 4 5 | 010.2052 020.150 032.2116 040.409 041.201 | Bearing – Cast Iron, 4-bolt, 1-15/16” bore Sheave – 1A, 8.95”OD X 1-1/2” bore Proximity Switch 1/2-13 x 6”lg. Hex Bolt, full thread 1/2-13 Hex Jam Nut |
| 6 7 8 9 10 | SA-077155 375.03625 932.0187 MP-002368 PT-098832 | Cushion Disk Assembly PS100E O-ring – Orange, 3/8” diameter Cushion Disk – 3/4” wide X 11-1/8”OD X 1.945” Bore Chain Guide Wearstrip – Bottom Belt Brush (specify OAW) |
| 11 12 13 14 15 | PT-142073 PT-144001 PT-144126 PT-145273 PT-145274 | Pin Guide Spacer Side Angle- Drive, Inside (LH or RH) Side Angle- Drive, Outside (LH or RH) Chain Wearstrip Angle – Drive Drive Catenary Wearstrip |
| 16 17 18 19 20 | PT-145302 PT-145575 PT-145702 – PT-152157 | End Cover – Drive Brush Holder – 31-1/2”lg. (LH or RH) Joint Splice Plate – Drive Torque Arm Bracket Drive Shaft (specify OAW) |
| 21 22 23 24 25 | SA-063930 SA-066115 SA-068320 WA-040985 WA-040986 | Sprocket Assembly Transition Drive Assembly (specify OAW) Transition Roller Assembly (specify OAW) Bed Spacer Weldment (specify OAW) Bed Spacer Weldment – Catenary, Lower (specify OAW) |
| 26 27 28 29 30 | WA-041274 WA-041284 WA-041286 033.2130 033.2131 | Drive Bearing Mounting Channel Weldment (LH or RH) Guard Weldment Take-up Weldment Photoeye – Retro-Reflective, 10-40VDC Photoeye Mounting Bracket – Ball Swivel |
| 31 – – 32 33 | – 092.1785 092.1795 MP-002572 MP-002356 | Y-Block Y-Block – LH, 30° Y-Block – RH, 30° Catenary Block UHMW Wearstrip – J-leg (specify length) |
| 34 35 36 37 38 | – – – – – | Chain Guide Wearstrip – Top (specify length) Chain Cover (specify length x 8) Cover Plate Switch Side Y-Block Support Plate Chain Guide Mounting Angle |
| 39 40 41 42 43 | – – – – – | Divert Angle (specify length) Wearstrip Tie Strap (specify length) Catenary Wearstrip End Plate for Catenary (specify length) Side Angle – Catenary |
| – – – – 44 | – – – – – | 51 inch long, for 27”OAW 30° (LH or RH) 60 inch long, for 33”OAW 30° (LH or RH) 72 inch long, for 39”OAW 30° (LH or RH) 81 inch long, for 45”OAW 30° (LH or RH) Pneumatic Switch Assembly |
| – – 45 46 47 | SA-061764 SA-066648 – – – | 30 ° Pneumatic Switch Assembly – LH 30° Pneumatic Switch Assembly – RH Bed Spacer Weldment (specify OAW) Switch Support Channel Weldment Photo-eye Channel Weld – Catenary, Lower (specify OAW) |
| 48 49 50 51 52 | 092.18051 B-23847 MP-002544 – – | Sweep Block – 30° Pin Guide Block Plate Pin Guide Chain Guide Wearstrip – Bottom Cover Plate |
| 53 54 55 – – | – – – – – | Splice Plate Y-Block Support Plate, Return Side Angle – Return Divert 51 inch long, for 27”OAW 30° (LH or RH) 60 inch long, for 33”OAW 30° (LH or RH) |
| – – 56 57 58 | – – SA-073869 MP-002583 095.150 | 72 inch long, for 39”OAW 30° (LH or RH) 81 inch long, for 45”OAW 30° (LH or RH) Lost Pin Prox Assembly (22° or 30° & LH or RH) Infeed Guide Chain Lubricator w/2 feeds |
| 59 60 61 62 63 | 095.155 927.0360 B-18450 MP-002345 PT-098832-256 | Shank Brush for Chain Lubricator Bearing – 4-Bolt, 1-15/16” bore Oiler Mount Bracket Chain Guide Wearstrip – Tail Belt Brush – 32”lg. |
| 64 65 66 67 68 | PT-126624 PT-141806 PT-141808 PT-141809 PT-141810 | Cover Plate (specify OAW) End Channel – Tail (LH or RH) Oiler Support Bracket Tail Shaft (specify OAW) Tail Channel – LH, 30”lg. |
| 69 70 71 72 73 | PT-141811 PT-141994 PT-141996 PT-145267 PT-145270 | Tail Channel – RH, 30”lg. Bearing Spacer Plate Chain Wearstrip Angle – Tail Brush Holder – 32”lg. Brush Holder – Right Angle |
| 74 75 76 77 78 | PT-145325 PT-167701 SA-073294 WA-040390 010.203 | Infeed Guide Plate Drive Shaft Slot Cover Bearing Cover Kit End Cover Weldment (LH or RH) Bearing – Cast Iron, 4-bolt, 1-7/16” bore |
| 79 80 81 82 83 | 010.2045 049.310 – – – | Bearing – Cast Iron, 4-bolt, 1-11/16” bore 1/4-20 U-type Speed Nut Timing Belt Sprocket – 1-11/16”Bore Timing Belt Sprocket – 1-1/2”Bore Timing Belt |
| 84 85 86 87 88 | B-04655 B-04842 B-15299 B-23116 B-23159 | Bearing Guide Spacer – Take-up pulley 11/16” Hex Idler Mounting Bracket 25 Heavy Duty Snub Idler Top Drive Cover Cover Weldment |
| 89 90 91 92 93 | B-23162 B-23294 B-23296 B-23297 B-23299 | Pulley Plate Weldment Slider Pan (specify OAW) 6”Dia. Take-up Pulley Weldment (specify OAW) Take-up Plate Weldment – 6” Take-up Pulley Butt Coupling Angle (LH or RH) |
| 94 95 96 97 98 | B-23302 B-23575 PT-054185 PT-145144 PT-145145 | Take-up Bolt Weldment 2-1/4” Dia. Pulley Assembly (specify induction OAW) Induction Drive Channel Drive Side Plate (LH or RH) Drive End Channel (specify OAW) |
| 99 100 101 102 103 | PT-145147 PT-145156 PT-145175 PT-145227 PT-167436 | Top Drive Cover – Slave Side Bottom Drive Guard (specify OAW) Pulley Mounting Bracket Nip Point Guard (specify induction OAW) Slave Guard Mounting Bracket |
| 104 105 106 107 108 | PT-167440 PT-167463 PT-167464 PT-167697 PT-167711 | Slave Guard (LH or RH) Bearing Extend Channel – Induction Drive Bearing Flange Cover – Induction Drive Take-up Bearing Cover Bearing Guide – Take-up Pulley |
| 109 110 111 112 113 | PT-168478 SA-072835 SA-072884 B-23585 | Slave Cut-out Cover – Induction Drive Chain Guard Assembly Bearing Cover Kit 8”Dia. Center Drive Pulley (specify OAW) Belt Kit (specify BR & section length) |
| 114 115 – – – | B-23578 – B-22241 B-22242 B-22243 | Pulley Mount Bolt-in Pan (specify BR) 16-1/2” long 19-1/2” long 22-1/2” long |
| – – – 116 117 | B-22244 B-22224 B-22245 B-23579 B-03191 | 25-1/2” long 28-1/2” long 31-1/2” long Nip Point Guard (specify BR) Butt Coupling Angle |
| 118 119 120 121 122 | B-03894 B-00944 B-01982 B-03916 – | 2-1/8”OD Roller Assembly (specify BR) 7/16” Hex Idler Bracket 1.9”OD Galvanized Roller Assembly (specify BR) Bed Spacer (specify BR) Side Channel |
| – – – – – | B-21500 B-21501 B-21502 B-21170 B-21503 | 2 ft. Long 2 ft. 3 in. Long 2 ft. 6 in. Long 2 ft. 9 in. Long 3 ft. Long |
| – – – – – | B-21504 B-21505 B-21506 B-04923 B-21507 | 3 ft. 3 in. Long 3 ft. 6 in. Long 3 ft. 9 in. Long 4 ft. Long 4 ft. 3 in. Long |
| – – – – – | B-21508 B-21509 B-02636 B-23308 B-23309 | 4 ft. 6 in. Long 4 ft. 9 in. Long 5 ft. Long 5 ft. 3 in. Long 5 ft. 6 in. Long |
| – – – – – | B-23310 B-05494 B-23311 B-23312 B-23313 | 5 ft. 9 in. Long 6 ft. Long 6 ft. 3 in. Long 6 ft. 6 in. Long 6 ft. 9 in. Long |
| – – – – – | B-21606 B-23314 B-12082 B-23315 B-09908 | 7 ft. Long 7 ft. 3 in. Long 7 ft. 6 in. Long 7 ft. 9 in. Long 8 ft. Long |
| – – – – – | B-23568 B-23569 B-23570 B-21607 B-23571 | 8 ft. 3 in. Long 8 ft. 6 in. Long 8 ft. 9 in. Long 9 ft. Long 9 ft. 3 in. Long |
| – – – 123 124 | B-23572 B-23573 B-02633 B-23581 069.7501 | 9 ft. 6 in. Long 9 ft. 9 in. Long 10 ft. Long Gussett Angle (LH or RH) Bearing Profile |
| 125 126 127 128 129 | SA-063997 SA-061763 092.1857 029.2658 029.2666 | Saftey Switch Assembly (specify OAW) Slat Assembly (specify OAW) Divert Shoe #60XLO Riveted O-ring Chain Connector Link – #60XLO Chain |
| 130 131 132 133 134 | 011.1004 PT-089907 094.1912 094.190 B-11302 | Bearing – Single row radial Encoder Cover Pressure Switch Filter Regulator Mounting Angle – Filter/Reg. Kit |
| 135 136 137 | 032.293 032.2185 PT-174779 | Encoder Kit – 30PPR Reflector – 3.30” dia. Divert Angle Alignment Block |
Model ProSort 121 Elite Parts Drawing
Catenary Divert, Return Divert, and Drive Section

Model ProSort 121 Elite Parts Drawing
Intermediate Divert and Tail Section

NOTE:
Place chain covers so that no seams are located within the spur diverting area.
Model ProSort 121 Elite Parts Drawing
Induction Unit

Model ProSort 121 Elite Parts Drawing
Intermediate Section Assembly

| Ref. No. | Part No. | Description |
| 1 2 3 4 5 | P-01898 P-01899 P-01940 PT-141785 PT-141807 | Chain Guide Wearstrip – Top Chain Guide Wearstrip – Bottom Chain Cover Chain Guide Mounting Angle Splice Plate – PS100E |
| 6 7 8 9 | PT-142073 P-02389 PT-145205 WA-040365 | Pin Guide Spacer Side Angle (Specify length & LH or RH) Joint Pin Guide Plate Bed Spacer Weldment |
22° Divert Section

| Ref. No. | Part No. | Description |
| 1 2 3 4 5 | 092.1782 092.1792 MP-002356 P-01898 P-01899 | Y-BLOCK – LH, 22 DEG, PROSORT 100E Y-BLOCK – RH, 22 DEG, PROSORT 100E UHMW WEARSTRIP – J-LEG (specify length) CHAIN GUIDE WEARSTRIP – TOP (specify length) CHAIN GUIDE WEARSTRIP – BOTTOM (specify length) |
| 6 7 8 9 10 | P-01940 PT-141782 PT-141783 – PT-141807 | CHAIN COVER (specify length) COVER PLATE SWITCH SIDE COVER PLATE CHAIN GUIDE MOUNTING ANGLE SPLICE PLATE – PS100E |
| 11 12 – – – | PT-142073 – – – – | PIN GUIDE SPACER SIDE ANGLE – DIVERT (specify length & LH or RH) 69” long for 27” OAW 84” long for 33” OAW 99” long for 39” OAW |
| – 13 14 15 16 | – – PT-171015 – SA-067120 | 114″ long for 45″ OAW DIVERT ANGLE – PS100E Y-BLOCK SUPPORT PLATE, 22D WEARSTRIP TIE STRAP SWITCH ASSY – LH, 22 DEG |
| 17 18 19 20 | SA-067121 WA-040365 WA-040366 PT-174779 | SWITCH ASSY – RH, 22 DEG BED SPACER WELD (specify OAW) SWITCH SUPT CHNL WELD DIVERT ANGLE ALIGNMENT BLOCK |
Model ProSort 121 Elite Parts List
| Ref. No. | Part No. | Description |
| 1 2 3 4 5 | 010.2052 020.150 032.2116 040.409 041.201 | Bearing – Cast Iron, 4-bolt, 1-15/16” bore Sheave – 1A, 8.95”OD X 1-1/2” bore Proximity Switch 1/2-13 x 6”lg. Hex Bolt, full thread 1/2-13 Hex Jam Nut |
| 6 7 8 9 10 | SA-077155 375.03625 932.0187 MP-002368 PT-098832 | Cushion Disk Assembly PS100E O-ring – Orange, 3/8” diameter Cushion Disk – 3/4” wide X 11-1/8”OD X 1.945” Bore Chain Guide Wearstrip – Bottom Belt Brush (specify OAW) |
| 11 12 13 14 15 | PT-142073 PT-144001 PT-144126 PT-145273 PT-145274 | Pin Guide Spacer Side Angle- Drive, Inside (LH or RH) Side Angle- Drive, Outside (LH or RH) Chain Wearstrip Angle – Drive Drive Catenary Wearstrip |
| 16 17 18 19 20 | PT-145302 PT-145575 PT-145702 – PT-152157 | End Cover – Drive Brush Holder – 31-1/2”lg. (LH or RH) Joint Splice Plate – Drive Torque Arm Bracket Drive Shaft (specify OAW) |
| 21 22 23 24 25 | SA-063930 SA-066115 SA-068320 WA-040985 WA-040986 | Sprocket Assembly Transition Drive Assembly (specify OAW) Transition Roller Assembly (specify OAW) Bed Spacer Weldment (specify OAW) Bed Spacer Weldment – Catenary, Lower (specify OAW) |
| 26 27 28 29 30 | WA-041274 WA-041284 WA-041286 033.2130 033.2131 | Drive Bearing Mounting Channel Weldment (LH or RH) Guard Weldment Take-up Weldment Photoeye – Retro-Reflective, 10-40VDC Photoeye Mounting Bracket – Ball Swivel |
| 31 – – 32 33 | – 092.1782 092.1792 MP-002572 MP-002356 | Y-Block Y-Block – LH, 22° Y-Block – RH, 22° Catenary Block UHMW Wearstrip – J-leg (specify length) |
| 34 35 36 37 38 | – – – – – | Chain Guide Wearstrip – Top (specify length) Chain Cover (specify length x 8) Cover Plate Switch Side Y-Block Support Plate Chain Guide Mounting Angle |
| 39 40 41 42 43 | – – – – – | Divert Angle Wearstrip Tie Strap Catenary Wearstrip End Plate for Catenary (specify OAW) Side Angle – Catenary |
| – – – – 44 | – – – – – | 69 inch long, for 27”OAW 22° (LH or RH) 84 inch long, for 33”OAW 22° (LH or RH) 99 inch long, for 39”OAW 22° (LH or RH) 114 inch long, for 45”OAW 22° (LH or RH) Pneumatic Switch Assembly |
| – – 45 46 47 | SA-067120 SA-067121 – – – | 22 ° Pneumatic Switch Assembly – LH 22° Pneumatic Switch Assembly – RH Bed Spacer Weldment Switch Support Channel Weldment Photo-eye Channel Weldment – Catenary, Lower |
| 48 49 50 51 52 | MP-002593 B-23847 MP-002544 – – | Sweep Block – 22° Pin Guide Block Plate Pin Guide Chain Guide Wearstrip – Bottom Cover Plate |
| 53 54 55 – – | – – – – – | Splice Plate Y-Block Support Plate, Return Side Angle – Return Divert 69 inch long, for 27”OAW 22° (LH or RH) 84 inch long, for 33”OAW 22° (LH or RH) |
| – – 56 57 58 | – – SA-073869 MP-002583 095.150 | 99 inch long, for 39”OAW 22° (LH or RH) 114 inch long, for 45”OAW 22° (LH or RH) Lost Pin Prox Assembly (22° or 30° & LH or RH) Infeed Guide Chain Lubricator w/2 feeds |
| 59 60 61 62 63 | 095.155 927.0360 B-18450 MP-002345 PT-098832-256 | Shank Brush for Chain Lubricator Bearing – 4-Bolt, 1-15/16” bore Oiler Mount Bracket Chain Guide Wearstrip – Tail Belt Brush – 32”lg. |
| 64 65 66 67 68 | PT-126624 PT-141806 PT-141808 PT-141809 PT-141810 | Cover Plate (specify OAW) End Channel – Tail (LH or RH & specify OAW) Oiler Support Bracket Tail Shaft (specify OAW) Tail Channel – LH, 30”lg. |
| 69 70 71 72 73 | PT-141811 PT-141994 PT-141996 PT-145267 PT-145270 | Tail Channel – RH, 30”lg. Bearing Spacer Plate Chain Wearstrip Angle – Tail Brush Holder – 32”lg. Brush Holder – Right Angle |
| 74 75 76 77 78 | PT-145325 PT-167701 SA-073294 WA-040390 010.203 | Infeed Guide Plate Drive Shaft Slot Cover Bearing Cover Kit End Cover Weldment (LH or RH) Bearing – Cast Iron, 4-bolt, 1-7/16” bore |
| 79 80 81 82 83 | 010.2045 049.310 – – – | Bearing – Cast Iron, 4-bolt, 1-11/16” bore 1/4-20 U-type Speed Nut Timing Belt Sprocket – 1-11/16”Bore Timing Belt Sprocket – 1-1/2”Bore Timing Belt |
| 84 85 86 87 88 | B-04655 B-04842 B-15299 B-23116 B-23159 | Bearing Guide Spacer – Take-up pulley 11/16” Hex Idler Mounting Bracket 25 Heavy Duty Snub Idler Top Drive Cover Cover Weldment |
| 89 90 91 92 93 | B-23162 B-23294 B-23296 B-23297 B-23299 | Pulley Plate Weldment Slider Pan – 22-1/2”lg (specify OAW) 6”Dia. Take-up Pulley Weldment (specify OAW) Take-up Plate Weldment – 6” Take-up Pulley Butt Coupling Angle (LH or RH) |
| 94 95 96 97 98 | B-23302 B-23575 PT-054185 PT-145144 PT-145145 | Take-up Bolt Weldment 2-1/4” Dia. Pulley Assembly (specify induction OAW) Induction Drive Channel Drive Side Plate (LH or RH) Drive End Channel (specify OAW) |
| 99 100 101 102 103 | PT-145147 PT-145156 PT-145175 PT-145227 PT-167436 | Top Drive Cover – Slave Side Bottom Drive Guard (specify OAW) Pulley Mounting Bracket Nip Point Guard (specify induction OAW) Slave Guard Mounting Bracket |
| 104 105 106 107 108 | PT-167440 PT-167463 PT-167464 PT-167697 PT-167711 | Slave Guard (LH or RH) Bearing Extend Channel – Induction Drive Bearing Flange Cover – Induction Drive Take-up Bearing Cover Bearing Guide – Take-up Pulley |
| 109 110 111 112 113 | PT-168478 SA-072835 SA-072884 B-23585 | Slave Cut-out Cover – Induction Drive Chain Guard Assembly Bearing Cover Kit 8”Dia. Center Drive Pulley (specify OAW) Belt Kit (specify BR & section length) |
| 114 115 – – – | B-23578 – B-22241 B-22242 B-22243 | Pulley Mount Bolt-in Pan 16-1/2” long 19-1/2” long 22-1/2” long |
| – – – 116 117 | B-22244 B-22224 B-22245 B-23579 B-03191 | 25-1/2” long 28-1/2” long 31-1/2” long Nip Point Guard (specify BR) Butt Coupling Angle |
| 118 119 120 121 122 | B-03894 B-00944 B-01982 B-03916 – | 2-1/8”OD Roller Assembly (specify BR) 7/16” Hex Idler Bracket 1.9”OD Galvanized Roller Assembly (specify BR) Bed Spacer (specify BR) Side Channel |
| – – – – – | B-21500 B-21501 B-21502 B-21170 B-21503 | 2 ft. Long 2 ft. 3 in. Long 2 ft. 6 in. Long 2 ft. 9 in. Long 3 ft. Long |
| – – – – – | B-21504 B-21505 B-21506 B-04923 B-21507 | 3 ft. 3 in. Long 3 ft. 6 in. Long 3 ft. 9 in. Long 4 ft. Long 4 ft. 3 in. Long |
| – – – – – | B-21508 B-21509 B-02636 B-23308 B-23309 | 4 ft. 6 in. Long 4 ft. 9 in. Long 5 ft. Long 5 ft. 3 in. Long 5 ft. 6 in. Long |
| – – – – – | B-23310 B-05494 B-23311 B-23312 B-23313 | 5 ft. 9 in. Long 6 ft. Long 6 ft. 3 in. Long 6 ft. 6 in. Long 6 ft. 9 in. Long |
| – – – – – | B-21606 B-23314 B-12082 B-23315 B-09908 | 7 ft. Long 7 ft. 3 in. Long 7 ft. 6 in. Long 7 ft. 9 in. Long 8 ft. Long |
| – – – – – | B-23568 B-23569 B-23570 B-21607 B-23571 | 8 ft. 3 in. Long 8 ft. 6 in. Long 8 ft. 9 in. Long 9 ft. Long 9 ft. 3 in. Long |
| – – – 123 124 | B-23572 B-23573 B-02633 B-23581 069.7501 | 9 ft. 6 in. Long 9 ft. 9 in. Long 10 ft. Long Gussett Angle (LH or RH) Bearing Profile |
| 125 126 127 128 129 | SA-063997 SA-061763 092.1857 029.2658 029.2666 | Saftey Switch Assembly (specify OAW) Slat Assembly (specify OAW) Divert Shoe #60XLO Riveted O-ring Chain Connector Link – #60XLO Chain |
| 130 131 132 133 134 | 011.1004 PT-089907 094.1912 094.190 B-11302 | Bearing – Single row radial Encoder Cover Pressure Switch Filter Regulator Mounting Angle – Filter/Reg. Kit |
| 135 136 137 | 032.293 032.2185 PT-174779 | Encoder Kit – 30PPR Reflector – 3.30” dia. Divert Angle Alignment Block |
Model ProSort 132 Elite Parts Drawing
Catenary Divert and Drive Section

Model ProSort 132 Elite Parts Drawing
Dual Divert and Divert Return

NOTE:
Place chain covers so that no seams are located within the spur/ diverting area.
Model ProSort 132 Elite Parts Drawing
Dual Divert Return Switch & Tail

Model ProSort 132 Elite Parts Drawing
Induction Unit

Model ProSort 132 Elite Parts List
| Ref. No. | Part No. | Description |
| 1 2 3 4 5 | 927.0360 020.150 032.2116 040.409 041.201 | Bearing – Cast Iron, 4-bolt, 1-15/16″ bore Sheave – 1A, 8.95″OD X 1-1/2″ bore Proximity Switch 1/2-13 x 6″lg. Hex Bolt, full thread 1/2-13 Hex Jam Nut |
| 6 7 8 9 10 | SA-077155 375.03625 932.0187 MP-002368 PT-098832-252 | Cushion Disk Assembly PS100E O-ring – Orange, 3/8″ diameter Cushion Disk – 3/4″ wide X 11-1/8″OD X 1.945″ Bore Chain Guide Wearstrip – Bottom Belt Brush – 31-1/2″lg. |
| 11 12 13 14 15 | PT-142073 PT-144001 PT-144126 PT-145273 PT-145274 | Pin Guide Spacer Side Angle- Drive, Inside (LH or RH) Side Angle- Drive, Outside (LH or RH) Chain Wearstrip Angle – Drive Drive Catenary Wearstrip |
| 16 17 18 19 20 | PT-145302 PT-145575 PT-145702 – – | End Cover – Drive Brush Holder – 31-1/2″lg. (LH or RH) Joint Splice Plate – Drive Torque Arm Bracket Drive Shaft (specify OAW) |
| 21 22 23 24 25 | SA-063930 SA-066115 SA-068320 WA-040985 WA-040986 | Sprocket Assembly Transition Drive Assembly (LH or RH) Transition Roller Assembly (specify OAW) Bed Spacer Weldment (specify OAW) Bed Spacer Weldment – Catenary, Lower (specify OAW) |
| 26 27 28 29 30 | WA-041274 WA-041284 WA-041286 WA-041373 033.2130 | Drive Bearing Mounting Channel Weldment (LH or RH) Guard Weldment Take-up Weldment Drive Bearing Mounting Channel Weldment (LH or RH) Photoeye – Retro-Reflective, 10-40VDC |
| 31 32 – – 33 | 033.2131 – 092.1785 092.1795 923.0207 | Photoeye Mounting Bracket – Ball Swivel Y-Block Y-Block – LH, 30° Y-Block – RH, 30° Manual Center Switch Assembly – 30° |
| 34 35 36 37 38 | MP-002572 MP-002356 – – – | Catenary Block UHMW Wearstrip – J-leg (specify length) Chain Guide Wearstrip – Top (specify length) Chain Guide Wearstrip – Bottom (specify length) Chain Cover (specify length x 8) |
| 39 40 41 42 43 | – – – – – | Cover Plate Switch Side Y-Block Support Plate Chain Guide Mounting Angle Divert Angle – Short (specify length) Divert Angle – Long (specify length) |
| 44 45 46 47 48 | – – – – – | Wearstrip Tie Strap – Short Wearstrip Tie Strap – Long Catenary Wearstrip (Side) End Plate for Catenary (specify OAW) Side Angle – Catenary |
| – – – – 49 | – – – – – | 60 inch long, for 31″OAW 30° (LH or RH) 69 inch long, for 37″OAW 30° (LH or RH) 81 inch long, for 43″OAW 30° (LH or RH) 90 inch long, for 49″OAW 30° (LH or RH) Center Divert Switch Mounting Channel |
| 50 51 52 53 54 | – SA-061764 SA-066648 – – | Chain Wearstrip Angle 30 ° Pneumatic Switch Assembly – LH 30° Pneumatic Switch Assembly – RH Bed Spacer Weldment Switch Support Channel Weldment |
| 55 56 57 – – | – – – – – | Photo-eye Channel Weldment – Catenary, Lower Splice Plate Side Angle – Dual Divert Section 60 inch long, for 31″OAW 30° (LH or RH) 69 inch long, for 37″OAW 30° (LH or RH) |
| – – 58 59 60 | – – 092.18051 B-23847 MP-002544 | 81 inch long, for 43″OAW 30° (LH or RH) 90 inch long, for 49″OAW 30° (LH or RH) Sweep Block – 30° Pin Guide Block Plate Pin Guide |
| 61 62 63 64 65 | 092.17855 092.17955 – – – | Y-Block RH, 30° Return Y-Block LH, 30° Return Chain Guide Wearstrip – Bottom Y-Block Support Plate, Return Divert Angle |
| 66 67 – – – | – – – – – | Wearstrip Tie Strap Side Angle – Dual Divert Section 60 inch long, for 31″OAW 30° (LH or RH) 69 inch long, for 37”OAW 30° (LH or RH) 81 inch long, for 43”OAW 30° (LH or RH) |
| – 68 69 70 71 | – SA-073869 MP-002583 095.150 095.155 | 90 inch long, for 49″OAW 30° (LH or RH) Lost Pin Prox Assembly (22° or 30° & LH or RH) Infeed Guide Chain Lubricator w/2 feeds Shank Brush for Chain Lubricator |
| 72 73 74 75 76 | B-18450 MP-002345 PT-098832-256 PT-126624 PT-157654 | Oiler Mount Bracket Chain Guide Wearstrip – Tail Belt Brush – 32”lg. Cover Plate End Channel – Dual Tail (specify OAW) |
| 77 78 79 80 81 | PT-141808 PT-141809 PT-141810 PT-141811 PT-141994 | Oiler Support Bracket Tail Shaft (specify OAW) Tail Channel – LH, 30”lg. Tail Channel – RH, 30”lg. Bearing Spacer Plate |
| 82 83 84 85 86 | PT-141996 PT-145267 PT-145270 PT-145325 PT-167701 | Chain Wearstrip Angle – Tail Brush Holder – 32″lg. Brush Holder – Right Angle Infeed Guide Plate Drive Shaft Slot Cover |
| 87 88 89 90 91 | SA-073294 WA-040390 010.203 010.2045 049.310 | Bearing Cover Kit End Cover Weldment (specify LH or RH) Bearing – Cast Iron, 4-bolt, 1-7/16” bore Bearing – Cast Iron, 4-bolt, 1-11/16” bore 1/4-20 U-type Speed Nut |
| 92 93 94 95 96 | 108.038327 108.056324 108.813603 B-04655 PT-167770 | Timing Belt Sprocket – 38PTH8-35SH X 1-11/16″Bore Timing Belt Sprocket – 56PTH8-35SK X 1-1/2″Bore Timing Belt – 1360PTH8M-35 Bearing Guide Spacer – Take-up pulley 11/16” Hex Idler Mounting Bracket |
| 97 98 99 100 101 | B-15299 B-23159 B-23162 B-23294 B-23296 | 25 Heavy Duty Snub Idler (specify OAW) Cover Weldment Pulley Plate Weldment Slider Pan – 22-1/2”lg (specify OAW) 6”Dia. Take-up Pulley Weldment (specify OAW) |
| 102 103 104 105 106 | B-23297 B-23299 B-23302 B-23575 PT-167742 | Take-up Plate Weldment – 6″ Take-up Pulley Butt Coupling Angle (specify LH or RH) Take-up Bolt Weldment 2-1/4” Dia. Pulley Assembly (specify OAW) Induction Drive Channel (Specify LH or RH) |
| 107 108 109 110 111 | PT-145144 PT-157665 PT-145147 PT-145156 PT-145175 | Drive Side Plate (specify LH or RH) Drive End Channel – Dual (specify OAW) Top Drive Cover – Slave Side Bottom Drive Guard (specify OAW) Pulley Mounting Bracket |
| 112 113 114 115 116 | PT-145227 PT-167436 PT-167440 PT-167463 PT-167464 | Nip Point Guard Slave Guard Mounting Bracket Slave Guard (specify LH or RH) Bearing Extend Channel – Induction Drive Bearing Flange Cover – Induction Drive |
| 117 118 119 120 121 | PT-167697 PT-167711 PT-167786 SA-072835 SA-072717 | Take-up Bearing Cover Bearing Guide – Take-up Pulley Slave Guard Cover Bearing Cover Kit 8”Dia. Center Drive Pulley (specify OAW) |
| 122 123 124 – – | B-23585 B-23578 – B-22241 B-22242 | Belt Kit (specify BR and section length) Pulley Mount Bolt-in Pan (specify BR) 16-1/2” long 19-1/2” long |
| – – – – 125 | B-22243 B-22244 B-22224 B-22245 B-23579 | 22-1/2″ long 25-1/2″ long 28-1/2” long 31-1/2” long Nip Point Guard (specify BR) |
| 126 127 128 129 130 | B-03191 B-03894 B-00944 B-01982 B-03916 | Butt Coupling Angle 2-1/8″OD Roller Assembly (specify BR) 7/16” Hex Idler Bracket 1.9”OD Galvanized Roller Assembly (specify BR) Bed Spacer (specify BR) |
| 131 – – – – | – B-21500 B-21501 B-21502 B-21170 | Side Channel 2 ft. Long 2 ft. 3 in. Long 2 ft. 6 in. Long 2 ft. 9 in. Long |
| – – – – – | B-21503 B-21504 B-21505 B-21506 B-04923 | 3 ft. Long 3 ft. 3 in. Long 3 ft. 6 in. Long 3 ft. 9 in. Long 4 ft. Long |
| – – – – – | B-21507 B-21508 B-21509 B-02636 B-23308 | 4 ft. 3 in. Long 4 ft. 6 in. Long 4 ft. 9 in. Long 5 ft. Long 5 ft. 3 in. Long |
| – – – – – | B-23309 B-23310 B-05494 B-23311 B-23312 | 5 ft. 6 in. Long 5 ft. 9 in. Long 6 ft. Long 6 ft. 3 in. Long 6 ft. 6 in. Long |
| – – – – – | B-23313 B-21606 B-23314 B-12082 B-23315 | 6 ft. 9 in. Long 7 ft. Long 7 ft. 3 in. Long 7 ft. 6 in. Long 7 ft. 9 in. Long |
| – – – – 132 | B-09908 B-23568 B-23569 B-23570 B-21607 | 8 ft. Long 8 ft. 3 in. Long 8 ft. 6 in. Long 8 ft. 9 in. Long 9 ft. Long |
| 133 134 135 136 137 | B-23571 B-23572 B-23573 B-02633 B-23581 | 9 ft. 3 in. Long 9 ft. 6 in. Long 9 ft. 9 in. Long 10 ft. Long Gussett Angle (specify LH or RH) |
| 133 134 135 136 137 | 069.7501 SA-063997 SA-061763 092.1857 029.2658 | Bearing Profile Saftey Switch Assembly (specify OAW) Slat Assembly (specify OAW) Divert Shoe #60XLO Riveted O-ring Chain |
| 138 139 140 141 142 | 029.2666 011.1004 PT-089907 094.1912 094.190 | Connector Link – #60XLO Chain Bearing – Single row radial Encoder Cover Pressure Switch Filter Regulator |
| 143 144 145 146 | B-11302 032.293 032.2185 PT-174779 | Mounting Angle – Filter/Reg. Kit Encoder Kit – 30PPR Reflector – 3.30” dia. Divert Angle Alignment Block |
Model ProSort 122 Elite Parts Drawing
Catenary Divert and Drive Section

Model ProSort 122 Elite Parts Drawing
Dual Divert and Divert Return

NOTE:
Place chain covers so that no seams are located within the spur/ diverting area.
Model ProSort 122 Elite Parts Drawing
Dual Divert Return Switch & Tail

Model ProSort 122 Elite Parts Drawing
Induction Unit

Model ProSort 122 Elite Parts List
| Ref. No. | Part No. | Description |
| 1 2 3 4 5 | 927.0360 020.150 032.2116 040.409 041.201 | Bearing – Cast Iron, 4-bolt, 1-15/16″ bore Sheave – 1A, 8.95″OD X 1-1/2″ bore Proximity Switch 1/2-13 x 6″lg. Hex Bolt, full thread 1/2-13 Hex Jam Nut |
| 6 7 8 9 10 | SA-077155 375.03625 932.0187 MP-002368 PT-098832-252 | Cushion Disk Assembly PS100E O-ring – Orange, 3/8″ diameter Cushion Disk – 3/4″ wide X 11-1/8″OD X 1.945″ Bore Chain Guide Wearstrip – Bottom Belt Brush – 31-1/2″lg. |
| 11 12 13 14 15 | PT-142073 PT-144001 PT-144126 PT-145273 PT-145274 | Pin Guide Spacer Side Angle- Drive, Inside (LH or RH) Side Angle- Drive, Outside (LH or RH) Chain Wearstrip Angle – Drive Drive Catenary Wearstrip |
| 16 17 18 19 20 | PT-145302 PT-145575 PT-145702 – – | End Cover – Drive Brush Holder – 31-1/2″lg. (LH or RH) Joint Splice Plate – Drive Torque Arm Bracket Drive Shaft (specify OAW) |
| 21 22 23 24 25 | SA-063930 SA-066115 SA-068320 WA-040985 WA-040986 | Sprocket Assembly Transition Drive Assembly (LH or RH) Transition Roller Assembly (specify OAW) Bed Spacer Weldment (specify OAW) Bed Spacer Weldment – Catenary, Lower (specify OAW) |
| 26 27 28 29 30 | WA-041274 WA-041284 WA-041286 WA-041373 033.2130 | Drive Bearing Mounting Channel Weldment (LH or RH) Guard Weldment Take-up Weldment Drive Bearing Mounting Channel Weldment (LH or RH) Photoeye – Retro-Reflective, 10-40VDC |
| 31 32 – – 33 | 033.2131 – 092.1782 092.1792 923.0208 | Photoeye Mounting Bracket – Ball Swivel Y-Block Y-Block – LH, 22° Y-Block – RH, 22° Manual Center Switch Assembly – 22° |
| 34 35 36 37 38 | MP-002572 MP-002356 – – – | Catenary Block UHMW Wearstrip – J-leg (specify length) Chain Guide Wearstrip – Top (specify length) Chain Guide Wearstrip – Bottom (specify length) Chain Cover (specify length x 8) |
| 39 40 41 42 43 | – – – – – | Cover Plate Switch Side Y-Block Support Plate Chain Guide Mounting Angle Divert Angle – Short (specify length) Divert Angle – Long (specify length) |
| 44 45 46 47 48 | – – – – – | Wearstrip Tie Strap – Short Wearstrip Tie Strap – Long Catenary Wearstrip (Side) End Plate for Catenary (specify OAW) Side Angle – Catenary |
| – – – – 49 | – – – – – | 81 inch long, for 31″OAW 22° (LH or RH) 96 inch long, for 37″OAW 22° (LH or RH) 111 inch long, for 43″OAW 22° (LH or RH) 126 inch long, for 49″OAW 22° (LH or RH) Center Divert Switch Mounting Channel |
| 50 51 52 53 54 | – SA-067120 SA-067121 – – | Chain Wearstrip Angle 22 ° Pneumatic Switch Assembly – LH 22° Pneumatic Switch Assembly – RH Bed Spacer Weldment Switch Support Channel Weldment |
| 55 56 57 – – | – – – – – | Photo-eye Channel Weldment – Catenary, Lower Splice Plate Side Angle – Dual Divert Section 81 inch long, for 31″OAW 22° (LH or RH) 96 inch long, for 37″OAW 22° (LH or RH) |
| – – 58 59 60 | – – MP-002593 B-23847 MP-002544 | 111 inch long, for 43″OAW 22° (LH or RH) 126 inch long, for 49″OAW 22° (LH or RH) Sweep Block – 22° Pin Guide Block Plate Pin Guide |
| 61 62 63 64 65 | 092.1783 092.1793 – – – | Y-Block RH, 22° Return Y-Block LH, 22° Return Chain Guide Wearstrip – Bottom Y-Block Support Plate, Return Divert Angle |
| 66 67 – – – | – – – – – | Wearstrip Tie Strap Side Angle – Dual Divert Section 81 inch long, for 31″OAW 22° (LH or RH) 96 inch long, for 37”OAW 22° (LH or RH) 111 inch long, for 43”OAW 22° (LH or RH) |
| – 68 69 70 71 | – SA-073869 MP-002583 095.150 095.155 | 126 inch long, for 49″OAW 22° (LH or RH) Lost Pin Prox Assembly (Specify 22° or 30° & LH or RH) Infeed Guide Chain Lubricator w/2 feeds Shank Brush for Chain Lubricator |
| 72 73 74 75 76 | B-18450 MP-002345 PT-098832-256 PT-126624 PT-157654 | Oiler Mount Bracket Chain Guide Wearstrip – Tail Belt Brush – 32”lg. Cover Plate End Channel – Dual Tail (specify OAW) |
| 77 78 79 80 81 | PT-141808 PT-141809 PT-141810 PT-141811 PT-141994 | Oiler Support Bracket Tail Shaft (specify OAW) Tail Channel – LH, 30”lg. Tail Channel – RH, 30”lg. Bearing Spacer Plate |
| 82 83 84 85 86 | PT-141996 PT-145267 PT-145270 PT-145325 PT-167701 | Chain Wearstrip Angle – Tail Brush Holder – 32″lg. Brush Holder – Right Angle Infeed Guide Plate Drive Shaft Slot Cover |
| 87 88 89 90 91 | SA-073294 WA-040390 010.203 010.2045 049.310 | Bearing Cover Kit End Cover Weldment (LH or RH) Bearing – Cast Iron, 4-bolt, 1-7/16” bore Bearing – Cast Iron, 4-bolt, 1-11/16” bore 1/4-20 U-type Speed Nut |
| 92 93 94 95 96 | 108.038327 108.056324 108.813603 B-04655 PT-167770 | Timing Belt Sprocket – 38PTH8-35SH X 1-11/16″Bore Timing Belt Sprocket – 56PTH8-35SK X 1-1/2″Bore Timing Belt – 1360PTH8M-35 Bearing Guide Spacer – Take-up pulley 11/16” Hex Idler Mounting Bracket |
| 97 98 99 100 101 | B-15299 B-23159 B-23162 B-23294 B-23296 | 25 Heavy Duty Snub Idler (specify OAW) Cover Weldment Pulley Plate Weldment Slider Pan – 22-1/2”lg (specify OAW) 6”Dia. Take-up Pulley Weldment (specify OAW) |
| 102 103 104 105 106 | B-23297 B-23299 B-23302 B-23575 PT-167742 | Take-up Plate Weldment – 6″ Take-up Pulley Butt Coupling Angle (LH or RH) Take-up Bolt Weldment 2-1/4” Dia. Pulley Assembly (specify OAW) Induction Drive Channel (LH or RH) |
| 107 108 109 110 111 | PT-145144 PT-157665 PT-145147 PT-145156 PT-145175 | Drive Side Plate (LH or RH) Drive End Channel – Dual (specify OAW) Top Drive Cover – Slave Side Bottom Drive Guard (specify OAW) Pulley Mounting Bracket |
| 112 113 114 115 116 | PT-145227 PT-167436 PT-167440 PT-167463 PT-167464 | Nip Point Guard (specify OAW) Slave Guard Mounting Bracket Slave Guard (LH or RH) Bearing Extend Channel – Induction Drive Bearing Flange Cover – Induction Drive |
| 117 118 119 120 121 | PT-167697 PT-167711 PT-167786 SA-072835 SA-072717 | Take-up Bearing Cover Bearing Guide – Take-up Pulley Slave Guard Cover Bearing Cover Kit 8”Dia. Center Drive Pulley (specify OAW) |
| 122 123 124 – – | B-23585 B-23578 – B-22241 B-22242 | Belt Kit (specify BR & section length) Pulley Mount Bolt-in Pan (specify BR) 16-1/2” long 19-1/2” long |
| – – – – 125 | B-22243 B-22244 B-22224 B-22245 B-23579 | 22-1/2″ long 25-1/2″ long 28-1/2” long 31-1/2” long Nip Point Guard |
| 126 127 128 129 130 | B-03191 B-03894 B-00944 B-01982 B-03916 | Butt Coupling Angle 2-1/8”OD Roller Assembly (specify BR) 7/16” Hex Idler Bracket 1.9”OD Galvanized Roller Assembly (specify BR) Bed Spacer (specify BR) |
| 131 – – – – | – B-21500 B-21501 B-21502 B-21170 | Side Channel 2 ft. Long 2 ft. 3 in. Long 2 ft. 6 in. Long 2 ft. 9 in. Long |
| – – – – – | B-21503 B-21504 B-21505 B-21506 B-04923 | 3 ft. Long 3 ft. 3 in. Long 3 ft. 6 in. Long 3 ft. 9 in. Long 4 ft. Long |
| – – – – – | B-21507 B-21508 B-21509 B-02636 B-23308 | 4 ft. 3 in. Long 4 ft. 6 in. Long 4 ft. 9 in. Long 5 ft. Long 5 ft. 3 in. Long |
| – – – – – | B-23309 B-23310 B-05494 B-23311 B-23312 | 5 ft. 6 in. Long 5 ft. 9 in. Long 6 ft. Long 6 ft. 3 in. Long 6 ft. 6 in. Long |
| – – – – – | B-23313 B-21606 B-23314 B-12082 B-23315 | 6 ft. 9 in. Long 7 ft. Long 7 ft. 3 in. Long 7 ft. 6 in. Long 7 ft. 9 in. Long |
| – – – – – | B-09908 B-23568 B-23569 B-23570 B-21607 | 8 ft. Long 8 ft. 3 in. Long 8 ft. 6 in. Long 8 ft. 9 in. Long 9 ft. Long |
| – – – – 132 | B-23571 B-23572 B-23573 B-02633 B-23581 | 9 ft. 3 in. Long 9 ft. 6 in. Long 9 ft. 9 in. Long 10 ft. Long Gussett Angle (LH or RH) |
| 133 134 135 136 137 | 069.7501 SA-063997 SA-061763 092.1857 029.2658 | Bearing Profile Saftey Switch Assembly (specify OAW) Slat Assembly (specify OAW) Divert Shoe #60XLO Riveted O-ring Chain |
| 138 139 140 141 142 | 029.2666 011.1004 PT-089907 094.1912 094.190 | Connector Link – #60XLO Chain Bearing – Single row radial Encoder Cover Pressure Switch Filter Regulator |
| 143 144 145 | B-11302 032.293 032.2185 | Mounting Angle – Filter/Reg. Kit Encoder Kit – 30PPR Reflector – 3.30” dia. |
| 146 | PT-174779 | Divert Angle Alignment Block |
WWW.HYTROLPARTS.COM
“Building Relationships One Conveyor Part at a
Time” [email protected]
www.HytrolParts.com
Use code HYPMANUAL for free shipping
on your first order at HytrolParts.com





























