
CAST
USER MANUAL
Installation Instructions
- Specifications
- Chassis Parts
- Control Panel Functions
- Removing Panels
- Separate the Bareness Chassis
- Hard Drives Installation
- Cooling System Installation
- AZZA Hurricane III Digital RGB Fan Installation For Motherboard
Specifications
| Model | |
| Model Name: | Cast |
| Model Number: | CSAZ-808 W/CSAZ-808 B |
| Specifications | |
| ype: | ATX Mid Tower |
| Color: | White, Black |
| Side Panel Window: | Top panel: Aluminum wing Bottom panel: Aluminum wing Rear panel: Steel plate Front panel: Aluminum plates |
| Max CPU Cooler Height: | UP to 165 mm |
| Max GPU Length: | Up to 360 mm long video card (Horizontal/ Vertical) |
| Motherboard Compatibility: | ATX |
| Power Supply: | ATX |
| Cable Routing Space: | 35mm |
| Radiator Mounting: | 360mm radiator in the front |
| Available Fan Ports: | 3x120mm or 2x140mm Fan ports in the front 1x120mm fan ports in the rear (1xHurricane Ill Digital RGB Fan included) |
| Expansion | |
| External 5.25″ Drive Bays: | 0 |
| Internal 2.5″ Drive Bays: | Up to 3 (Convertible with 3.5″HDDx1 ) |
| Internal 3.5″ Drive Bays: | Up to 1 |
| Expansion Slots: | 6 ( 6 slots horizontal or 3 slots vertical ) |
| Front I/O Ports: | The power button, HD Audio, USB 3.0 x 2, Type C |
| Physical Specifications | |
| Metal Chassis Dimensions (HxWxD) | 470x220x460mm /18.5×8.6×18.1 inches |
| Weight: | 10.9 kg /24.03 Lbs |
| Features | |
| Outer Appearance: | All external panels are made of aluminum, the open chassis makes assembly and cleaning easier, and the gull-wing left side panel design makes it easy to adjust and clean on usually. |
| Digital RGB Light Effects: | Addressable RGB fan on the rear. All addressable RGB light devices are controlled by the motherboard. |
| Water Cooling: | Supports radiators up 360mm in the Front |
| Power Supply Support: | Bottom mounted ATX Power Supply |
Chassis Parts

| 1 | Aluminum right panel |
| 2 | Aluminum top wing panel |
| 3 | Aluminum front panel |
| 4 | Aluminum bottom wing panel |
| 5 | Bareness Chassis |
| 6 | 3.5″ HDD/ 2.5″ SSD tray |
| 7 | Cable management cover for power supply |
Control Panel Functions



Removing Panels

Removing Panels

Place it horizontally and open the top and bottom panels
Separate the Bareness Chassis
bareness chassis can be separated.
Loosen the five screws, pull the bareness chassis to the front panel direction and take off.
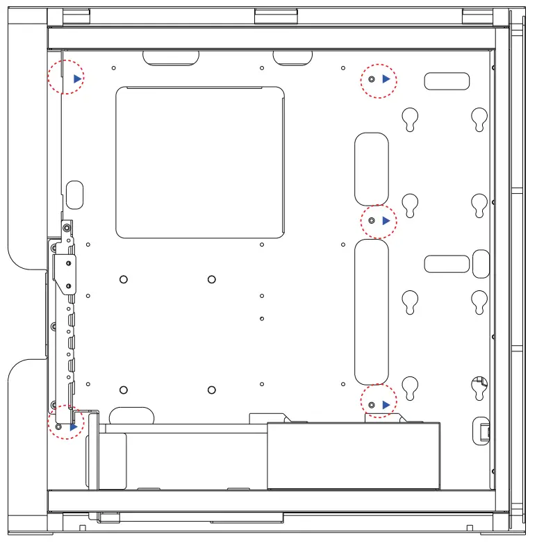
Separate the Bareness Chassis

Loosen five screws at the arrow
Hard Drives Installation

Cooling System Installation

Cooling System Installation
GPU Installation

| With the fan on the front | Without a fan on the front | |
| Max GPU Length | 360mm | 380mm |
Install Instruction

Install Instruction

AZZA Hurricane III Digital RGB Fan Installation For Motherboard
WARNING! The addressable RGB fans can connect directly to the 5V addressable headers of compatible motherboards, such as those from MSI™, ASUS™ Gigabyte™, and ASROCK™.
Please note: Only 5V addressable headers from compatible motherboards are supported; please do Not connect the fan to a 12V non-addressable header.
Please check your motherboard’s specifications before use. Do not go past the motherboard’s allowed limits on power ratings and LED count when connecting multiple fans / LED strips.

GPU Installation


















