systemair RS 100-50 L3 SILEO Rectangular Duct Fans

Description
- • Speed-controllable
- • Integral thermal contacts
- • Can be installed in any position
- • Maintenance-free and reliable
The RS models have impellers with backward-curved blades and external rotor motors. The motor and impeller are mounted on the access cover to facilitate easy maintenance. To protect the motor from overheating the RS has integral thermal contacts with external leads for connection to a motor protection device. The fan can be installed in any position and is easy to connect using the DS flexible connections. The casing is manufactured from galvanised sheet steel.
Technical parameters


Diagrams

Max efficiency

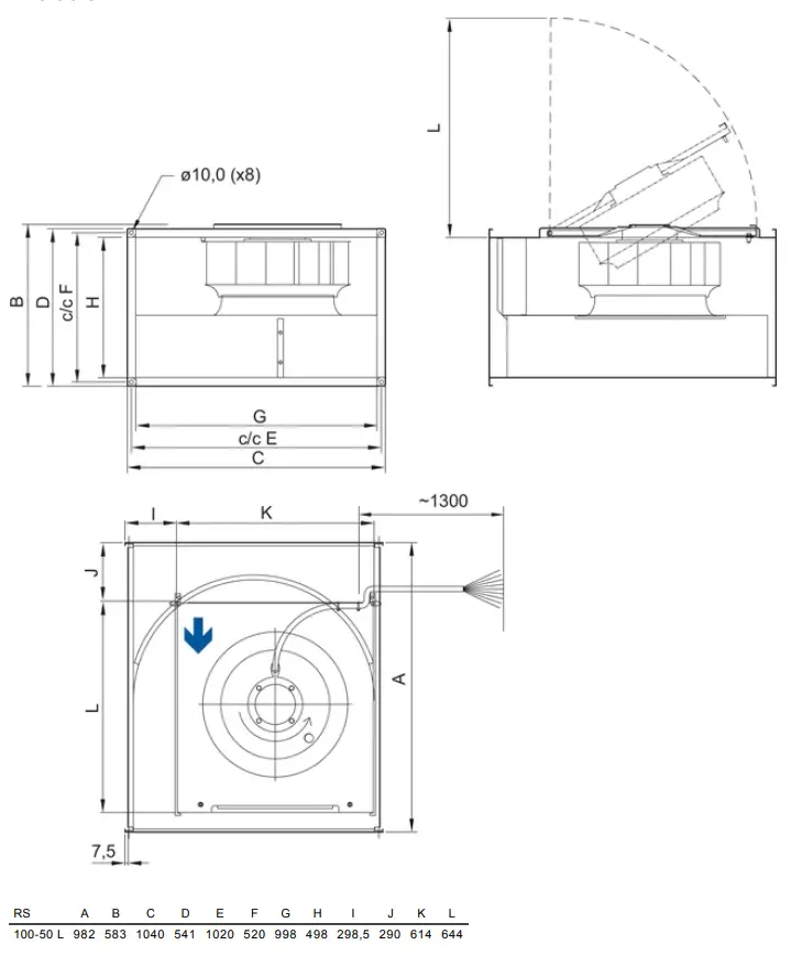
Dimensions

Wiring

Accessories
Electric accessories
RTRD 7 speed control Systemair (5943)
RTRDU 7 Speed contr. Systemair (5947)
RT 0-30 Room Thermostat (5151)
STDT 16 Motor Protection (5152)
STDT 16E Motor Protection (5153)
CO2RT-R-D Transmitter (6993)
Presence detector/IR24-P (6995)
DTV200 (6261)
REV-5POL/07 ON/OFF (33980)
DTV500A (96807)
Accessories
PGK 100-50-3-2,0 Duct cooler (6601)
VBR 100-50-2 Water heating bat (5470)
VBR 100-50-3 Water heating bat (5478)
LDR 100-50 Silencer (5067)
FFK 100-50 filter cassette (30237)
DS 100-50 Flexible connection (1555)
DXRE 100-50-3-2,5 Duct cooler (7959)
RB 100-50/45-3 400V/3 Duct hea (9649)
RB 100-50/68-4 400V/3 Duct hea (9650)
RB 100-50/80-5 400V/3 Duct hea (9661)
RKT-SYS-1000×500-S (43641)
RK-SYS-1000×500-R (43650)
RK-SYS-1000×500-S (43659)
Documentation
202341_Fans_Instructions_CE_A010.pdf (1,83MB)
Specification text
The box consists of electroplated steel plate. The fans have a radial impeller with backwards- curved impeller vanes witch are pivoting. For making cleaning and attendance easier the fan device is assembled at the folding closure head. The fans can be installed in each fitting position and with the help of the flexible DS connection they are very easy to built in. The actuation is carried out by a foolproofed, maintenance- free and speedcontrolled external rotor motor. For protecting the motor, the production run has built in thermal contacts with manually reset device with completed lines to a motor protection device according to EN 60335-2-80. For annealing the engine is designed inside the air flow. Impeller according to VDI 2060, quality category Q6,3 and dynamically weigh heavy in two levels.
Get In Touch
Call: 0845 6880112
Email: [email protected]
Our Address
Puravent, Adremit Limited, Unit 5a, Commercial Yard, Settle, North Yorkshire, BD24 9RH




















