aV160 ALD Ventilation Device without Heat Recovery
Installation Guide
![]()
aV160 ALD Ventilation Device without Heat Recovery
aV160 ALD
Installation instructions
a device without heat recovery www.inventer.eu
Trademarks, copyrights and industrial property rights inventor ® is a protected trademark of inventor GmbH.
The copyright to this document remains with the manufacturer.
Rights to all content and images: © inventor GmbH 2022.
All trademarks used in this document are the property of their respective manufacturers and are hereby acknowledged.
Disclaimer
This documentation represents a translation of the original German installation instructions. It must be passed on to the user (tenant, owner, property management, etc.) after completion of the installation.
The contents of this documentation have been checked for conformity with the hardware and software described. Nevertheless, deviations cannot be excluded, so no guarantee can be given for complete conformity.
This documentation describes the functionality of the standard range.
For reasons of clarity, the documentation does not contain all detailed information on all types of products and cannot take into account every conceivable case of operation, installation, and assembly.
The illustrations in this documentation may differ slightly from the design of the product you have purchased. The function remains the same despite the difference in detail.
This documentation is updated regularly. Necessary corrections and appropriate supplements are always included in subsequent editions. You can also find the latest version at
www.inventer.eu/downloads.
Company Information
Publisher:
inventor GmbH
Ortsstraße 4a
D-07751 Löberschütz Germany
Telefon: +49 (0) 36427 211-0
Fax: +49 (0) 36427 211-113
E-Mail: [email protected]
Web: www.inventer.eu
CEO: Annett Wettig
VAT ID number: DE 815494982
Jena District Court HRB 510380
User and Safety instructions
Thank you for purchasing this high-quality product from inVENTer!
This section provides an overview of the basic safety precautions for safe and proper operation of your ventilation system.
1.1 User instructions
Safety and warning instructions
The safety and warning instructions in these installation instructions have a uniform structure and are marked with a symbol on the left side of the instruction.
A signal word in front of the text also indicates the hazard level. If several hazard levels occur, the safety note for the highest level is always used.
The safety instructions and warnings contain the following information:
SIGNAL WORD: Type and origin of the hazard. Possible consequences of the danger!
• Measures to avoid hazards.
The signal word indicates the severity of the potential hazard unless preventive measures are taken:
DANGER means Imminent danger of serious injury or death.
WARNING means Possible danger of serious injury or death.
CAUTION means Direct danger or minor/significant injury.
NOTICE Means: Direct or possible risk of property damage due to an adverse event/state.
If you see these signs, follow the measures described to avoid possible danger and damage.
Other symbols used in this documentation
In addition to the safety and warning instructions, the following symbols are used:
TIPsymbol indicates practical and useful tips for handling your ventilation device.
Additional tools and aids are required.
Red bar over a graphic: Illustration shows the outer wall.
Blue bar over a graphic: Illustration shows the outer wall.
Action required: This prompts the user to perform a specific action.
Action results: Requires the user to check the results of the action performed.
Actions focus: To be taken into account in the corresponding assembly step.
1.2 Safety instructions
The operating instructions are part of your ventilation device and must be available at all times (see www.inventer.eu/downloads). When handing over the device/system to third parties, the information on access to the installation instructions must also be handed over.
Be sure to read through the installation instructions carefully before carrying out any work on the unit/system and observe all the instructions for installation given in this chapter. In addition, observe the safety instructions that precede the instructions described. Failure to observe the safety instructions may result in personal injury and/or damage to property.
Intended use
The external wall air diffuser aV160 ALD is used for the supply of fresh air according to DIN 18017-3 or DIN 1946-6 in residential spaces and supplements the extract air device.
Use contrary to the intended purpose leads to the exclusion of any liability claims.
General information
- Observe the applicable standards, regulations and directives when carrying out work. In particular, also applicable building regulations, the fire protection ordinance, and accident prevention regulations of the employers’ liability insurance association.
- Only use the components in accordance with the applications described in this documentation.
Changes or conversions to the components are not permitted. - Your ventilation device/system is exclusively designed for use in ambient temperatures between -20 and 50°C.
- Faultless and safe operation of the unit/system requires proper transport, storage and assembly as well as careful maintenance.
Installation and assembly
CAUTION: The system may only be installed by qualified personnel.
Before starting work, you should have a project plan showing the number of ventilation devices, the location of the ventilation devices, and the ventilation principle (cross-ventilation, individual room ventilation, exhaust ventilation). The exact positioning of the individual units and control units must be checked on site and, if necessary, adapted to the conditions on-site with the involvement of the responsible planner or the user. For optimal functioning, it is recommended that the unit be installed at an appropriate location in the upper wall area.
WARNING: For the joint operation of a ventilation unit with fireplaces, securing measures must be taken to prevent the occurrence of negative pressure in the building.
The decision as to which measures should be carried out is made by the responsible chimney sweep and/or building planner.
NOTICE: The ventilation unit is not suitable for drying out buildings. Do not operate the device until all construction work has been completed.
NOTICE: Contamination of components by e.g. plaster residues will damage the components!
Seal the ventilation unit/air outlets of the ventilation unit dust-tight during the entire construction work. Do not remove any thread locks until final assembly.- NOTICE: Do not install the unit near room air thermostats or in the immediate vicinity/above sensitive pictures or furniture.
- NOTICE: Observe the specified minimum distances on both sides of the wall and frontally to avoid unintentional mixing of different air volume flows and to ensure access to the device and its components. A minimum distance of 1.2 m must be maintained between adjacent air openings. (
, page 11). - NOTICE: The wall sleeve must be integrated into the building envelope (airtightness level) in accordance with the current state of the art, taking into account constructional and physical specifications (“RAL installation”). The material for this is to be provided by the customer.
- NOTICE: Install the wall sleeve with a slope of 1 – 2° to the outer wall to ensure that any condensation that may occur is drained off.
- NOTICE: Store components upright outside the wall sleeve and do not throw them to avoid damage and breakage of the components.
- NOTICE: To prevent algae from settling around the outer closures, the installation instructions must be followed exactly (apply all sealing tapes!). We recommend a biocide pre-setting/ water-repellent pre-treatment of the façade surface around the exterior finishes. Ask your planner about this!
- NOTICE: When mounting components in (exterior) walls with insulation, use insulation anchors to ensure secure fastening of the components. Insulation anchors are not included in the scope of delivery, they are optionally available!
- NOTICE: Use only permanently elastic sealing compound suitable for outdoor use to seal the joints at all outdoor terminations!
- NOTICE: The device has plastic surfaces that are sensitive to scratches. Do not touch components with oily and/or dirty hands. Avoid contact with sharp or pointed objects e.I Rings. If your device has a defect, contact the factory representative responsible for you or our technical service.
Improper use
Any use that is not mentioned in the chapter Intended use is considered improper use. Do not install/operate the equipment in areas where the following may enter or occur:
- An environment with high oil or grease content.
- Flammable gases, liquids, or vapors.
- Extreme dust exposure.
- Environment temperatures outside -20 – 50 °C
- Obstacles preventing access to or removal of components of the ventilation device.
The ventilation device is not to be used as an opening to the outside and/or for the purpose of smoke discharge/smoke extraction in basements without windows.
Qualified personnel
Qualified personnel in the sense of the safety instructions in this documentation are persons who are authorized to install, commission, and label devices, systems, and circuits in accordance with safety engineering standards.
System overview Ventilation device aV160 ALD
The external wall air diffuser aV160 ALD is used for the supply of fresh air according to DIN 18017-3 or DIN 1946-6 in residential spaces. They are installed in the supply air room. It consists of a slide-in unit with adjustable inner screen, integrated wind protection, and filter, as well as a wall sleeve, a sound-absorbing liner, and a freely selectable outer closure. The installation is generally carried out in the outer wall.
The ALD insert, including all filters and wind protection, is easily accessible on the inside. The air volume is regulated on the inner panel, where there is a mechanism for changing the opening angle. The integrated filter cartridge with a dust filter ensures that pollen and dust from outside do not penetrate the interior.
The filter cartridge with dust filter ensures that pollen and dust from outside do not penetrate the interior.
The sound insulation lining must be installed along the entire length of the wall sleeve.
If required, the aV160 ALDs can be retrofitted as ventilation devices with heat recovery (diameter of wall installation sleeves 160 mm, observe wall thicknesses).
The standard length of the wall sleeve is 495 mm. For larger wall thicknesses, a wall sleeve with a length of 745 mm can be ordered. Both versions can be shortened on-site.
Components
- Inner panel Light
- Filter cartridge incl. filter ISO Coarse (G1)
- Wall sleeve
- Sound insulation lining
- External termination 1)
- Pollen filter (optional)
Models
The ventilation devices of the aV160 ALD product series differ in their external terminations. This documentation only contains information on the Light and Plus variant of the ventilation device. Information on the variants can be found in the separate installation instructions for the respective components.
- Light variant: Ventilation device aV160 ALD with round weather protection grille Light (hereinafter referred to as the “Light”).
- Plus variant: Ventilation device aV160 ALD Plus (hereinafter referred to as the “Plus”) with driving rain-proof weather protection hood Flex (white/grey/anthracite/ special color/north).
- Corner variant: Ventilation device aV160 ALD Corner (hereinafter referred to as the “Corner variant”) for integration of the external closure in the window reveal (white/grey/anthracite/special color/ Nord)
- Nordic variant: Ventilation devices aV160 ALD Nordic (in the further text “Variant Nordic”) for integration of the external closure in clinker brick walls white/grey/ anthracite/special color/Nord).
2.1 Construction
Figure 1: Ventilation device aV160 ALD Plus
Components
- External closure1) 1a) Base plate WPH 2) Flex
1b) Drip edge top
1c) Cover WPH2)Flex
1d) Weather protection grille Light - Wall sleeve
- Sound insulation lining
- Filter cartridge with wind protection
- Filter cartridge incl. filter ISO Coarse (G1)[pre-assembled]
- Inner panel Light
2.2 Functions
Exhaust devise and air vents
The aV160 ALDs are installed in the supply air room, which forms a room compound with the extract air unit.
Due to the negative pressure generated by the extract air unit, the outside air flows in automatically.
They are installed in the supply air room.
The fresh air outlets have a filter system to ensure minimum hygienic requirements and are equipped with wind protection as standard.
The air volume is regulated in the lower area of the inner panel. There is a mechanism for changing the opening angle. 
Figure 2: Installation example: Aventus extract air system in conjunction with aV160 ALD as fresh air supply
Preparing for installation
3.1 Installation Position
• The installation location can be derived from the positioning proposal of the ventilation planning.
The exact positioning of the individual units and control units must be checked by the customer and adjusted on-site if necessary. Consult the responsible planner about this!
For optimum function, it is recommended that the ventilation device is installed at an appropriate point in the upper wall area (e.g. 1.80 m UEFF [upper edge of finished floor]).
- Do not place the ventilation unit above radiators, room thermostats, sensitive furniture, and/or pictures.
Minimum distances of the wall opening for the ventilation device:
NOTICE: Malfunction due to incorrect positioning of the ventilation device. - Note insulation thickness and possible shutters!
- Do not install near radiators!
- Observe a minimum distance of 1.2 m to adjacent air openings!
- The aV160 ALD must not be covered by cabinets or porches
- The outside air must be able to flow freely.
- Keep a minimum distance of 250 mm all around.
- Installation should be close to the ceiling (better air distribution).

- Fit the wall opening above the radiators. This means that the incoming air is already preheated when it enters the interior.
- Position the ventilation unit so that there is no direct airflow into the occupied zone of the users. Keep a distance of 1 – 1.2 m from the user area.
- To ensure that the unit does not interfere with other ventilation and that its function is not disturbed by other ventilation operations, it must always be installed in its own wall sleeve.
- The flow velocity should be low in order to avoid draughts.
Minimum distances to components/building elements on the internal and external walls:
- on the interior and exterior walls:
Component termination Distance from the center of the hole at the Outer wall [mm] Inner wall [mm] frontal [mm] Weather protection grille Light 250 — — Weather protection hood Flex 250 — — External termination Corner 250 385 to Soffit
250 (above, below, sideways)— — External termination Nordic 250 circumferential Inner panel Light — 250 300 - in between two neighboring ventilation devices in one room.

3.2 Position of the wall opening
For the positioning of the wall sleeve of other variants of your ventilation unit see the installation instructions for your special external closure.
Ventilation device Light variant [Weather protection grille Light]
Ventilation devise Plus variant [Weather protection hood Flex]
Figure 4: Dimensional drawing wall opening aV160 ALD (interior view) with weather protection grille Light [top] and weather protection hood Flex [bottom].
- Wall opening (Fig. 4, left, above, and below)
Wall installation system Simplex (Fig. 4, right, above, and below) - External termination3)
- Soffit
- Door-/Window frame
- The bottom edge of lintel4)
| ¹) Min. distance to adjacent building components on the inner wall ²) Min. distance to adjacent building components on the outer wall | ³) Recommendation: Attach the outer finish at the height of the lintel 4) Consider insulation thickness and possibly roller shutters |
3.3 Sectional drawings ventilation device
For sectional drawings of other variants of your ventilation unit, see the installation instructions for your specific external closure.
Sectional drawings ventilation device aV160 ALD

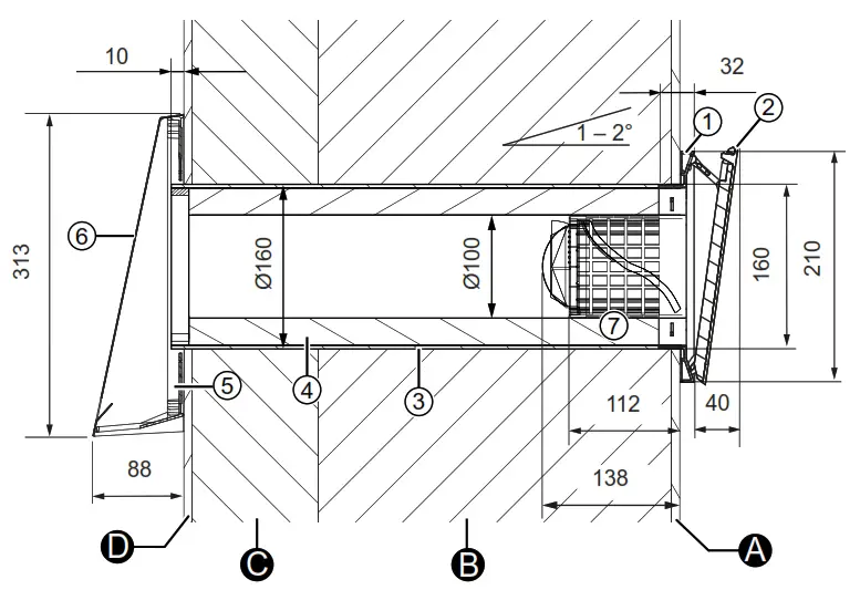
Figure 5: Sectional drawings ventilation device aV160 ALD with weather protection grille Light
A. Interior plaster/ interior structure
B. Masonry
C. Insulation
D. Exterior plaster
- Inner panel base plate
- Inner panel cover
- Wall sleeve R-D160
- Sound insulation lining
- Weather protection grille Light
- Filter cartridge with dust filter
ISO Coarse (G1) and wind protection (pre-assembled)
Sectional drawings ventilation device aV160 ALD, Plus variant

Figure 6: Sectional drawings ventilation device aV160 ALD with weather protection hood Flex
A. Interior plaster/ interior structure
B. Masonry
C. Insulation
D. Exterior plaster
- Inner panel base plate
- Inner panel cover
- Wall sleeve R-D160
- Sound insulation lining
- Baseplate WSP¹) Flex
- Cover WSP¹) Flex
- Filter cartridge with dust filter
ISO Coarse (G1) and wind protection (pre-assembled)
3.4 Dimensional drawings of the components
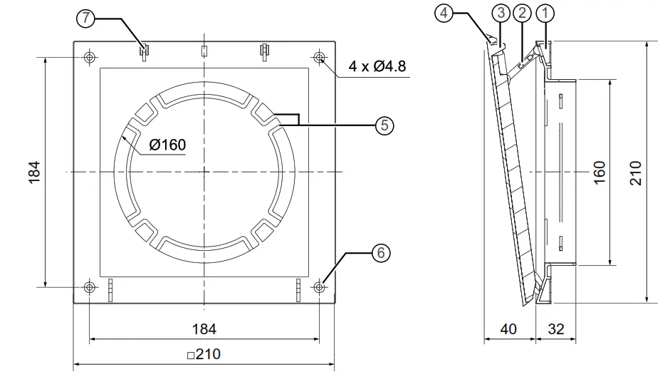
Weather protection grille Light
Figure 7: Dimensional drawing of weather protection grille Light
- Frame
- Slats
- Condensate discharge
- Mounting screws (2 x)
Weather protection hood Flex
Figure 8: Dimensional drawing of weather protection hood Flex
- Weather protection hood base plate
- Fixing hole outer wall (4x)
- Simplex mounting hole (4x)
- Sealing strip guide
- Weather protection hood cover
- Protective grid
- Drip edge top
Inner panel

- Inner panel base plate
- Connecting element
- Snap-in hook
- Inner panel cover
- Filter holder
- The mounting hole inside the wall (optional)
- Fastening connecting element
3.5 Dimensions
| Designation | Depth/Lenght [mm] | Wide [mm] | High [mm] |
| Wall opening for wall sleeve | Wall thickness¹) | Ø180 | |
| Wall sleeve R-D160x495 (745) | 495 – 745 | Ø160 | |
| Weather protection grille Light | 43 | Ø200 | |
| Weather protection hood Flex | 23 – 88 | 279 | 313 |
| Inner panel Light V-220×220 | 72²) | 220 | 220 |
¹) with external rendering, insulation, brickwork, and internal rendering ²) open, incl. a spigot
Installation and assembly
Read this chapter carefully before installation to avoid installation errors. The installation and connection of the ventilation device must be carried out by qualified personnel.
4.1 Check the scope of supply
Check the delivery for completeness and transport damage on the receipt, using the delivery note. Report missing items immediately.
These assembly instructions describe the standard version of the product.
For the scope of delivery of the external closure variants, please refer to the separately available installation instructions of the respective system component.
- External termination
1a: WSP ¹) Flex
1b: WPG ²) Light
1c: Sealing strip guide
1d: Fixing elements outer wall
1e: Stop tape 1
The weather protection hood Flex is available in different colors and materials (stainless steel/aluminum [with increased salt resistance]) and must be ordered according to the desired color and texture. - Wall sleeve R-D160
2a: Sound insulation lining
2b: Styrofoam discs
2c: Mounting wedges set
- Inner panel Light
3a: Inner panel base plate with connecting elements
3b: Inner panel cover
3c: Filter cartridge
3d: Filter ISO Coarse (G1)
¹)WPH: Weather protection hood ²) WPG = Weather protection grille
4.2 Create wall opening
CAUTION:
Falling masonry when creating the wall opening can lead to physical injuries and /or damage to property!
- Install protection against falling masonry on the building exterior.
- Remove objects from the immediate vicinity of the building´s exterior.
In new buildings/constructions, we recommend the use of the optional Simplex D160 wall mounting system, D180 wall block, or Woodplex for timber post and beam construction.
Observe the minimum distances and the installation position of the ventilation device. If uncertain, consult your planner before installation!
Create the wall opening through core drilling
Drill with core drill attachment or milling drill Ø 180 mm,
Requirements:

- The masonry must be dry and in a load-bearing condition.
- No load-bearing elements in the position of the drill hole.
► Create a wall opening, Ø 180 mm, at the installation location of the ventilation unit.
The wall sleeve must have a slope of 1 – 2° to the exterior wall side. Alternatively, the drilling can be carried through with a slope.
⇒ The wall opening for the ventilation device has been created.
4.3 Installing the wall sleeve
Measuring tape, angle grinder, spirit level, non-pressing 2K polyurethane foam, cutter, mounting wedge set, and styrofoam discs.
Requirements:
• The wall opening Ø 180 mm is finished.
► Determine the exact thickness X:
D = Exterior rendering, incl. other superstructures if applicable.
C = Insulation, if necessary in. air gap (optional)
B = Masonry, incl. relining if necessary.
A = Interior plaster.
Y = Protrusion of the wall sleeve in the outer area (depending on the installation situation exterior rendering or masonry)
¹) ETICS = External thermal insulation composite system
► Cut the wall sleeve to the determined dimension X + a protrusion of Y on the exterior wall.
► File the edges.
► Remove the styrofoam discs from the wall sleeve.
► Insert the wall sleeve into the wall opening so it is flush with the interior wall.
Note the thickness of the plaster.
NOTICE: An accumulation of condensation water in the wall sleeve.
Damage to the exterior wall and masonry and the building structure!
• Insert wall sleeve with a slope of
1 – 2° to the outer wall.
► Attach the wall sleeve inside and outside with the mounting wedges so that there is a slope of 1 – 2° to the exterior wall.
► Check the angle of the wall sleeve using a spirit level.
NOTICE: Contamination of components by e.g. plaster residues will damage the components of the wall sleeve!
• Before foaming the free space between the wall sleeve and the masonry, insert Styrofoam discs.
► Insert the styrofoam discs into the wall sleeve from the inside and outside.
NOTICE: INTerruption of the thermal insulation composite system. Damage to the building structure!
- During installation, replace the wall structure as far as the wall sleeve and if necessary guide the housing (flush-mounted inner covers) towards it.
- Observe the necessary barrier levels.

► Foam-seal the gap between the wall sleeve and masonry all the way around with non-pressing 2Kpolyurethane foam.
► Cut off the excess, hardened assembly foam and protruding assembly wedges as follows:
- Flush with the inner wall
- Flush with the outer wall
⇒ The wall sleeve set is installed.
4.4 Installing the external closure ventilation device Light and Plus variant
The assembly of any interior termination variants is not part of this documentation! It can be found in the installation instructions of the respective external closure.
NOTICE
Installing an unfinished exterior wall leads to damage to the exterior wall!
- Only install the external closure once the exterior wall is finished and fully dried.
NOTICE
Penetration of condensation water and/or algae accumulation around the weather protection hood leads to damage to the masonry/exterior wall and/or discoloration of the façade!
- Secure all sealing tapes on the weather protection hood circumferentially before installing the external closure.
- Attach the stop tape on the outside wall in the upper area of the wall sleeve.
- Before installation, carry out a biocidal pre-treatment/ water-repellent pre-treatment of the surface around the external terminations (consult your planner regarding this!)
Weather protection grille Light
Spirit level, cordless screwdriver, permanently elastic exterior sealing compound, sealing tape, screws, scissors
Requirements:

- The exterior wall is completed and even.
- The wall sleeve set is installed.
► Remove the styrofoam disc on the outside wall side from the wall sleeve.
► Fix the shortened stop tape, 210 x 15 mm, on the outside wall side exclusively in the upper area of the wall sleeve.
Both ends of the stop band are above the horizontal center line so that the fixing claws of the weather protection grille can hook into the wall sleeve on the left and right.
TIP: B do not apply the sealing tape until immediately before mounting the weather protection grille. This prevents the sealing tape from swelling too much and makes installation easier.
► Attach the sealing tape, 9 mm, above and below the fixing claws to the inner ring on the back of the weather protection grille.
Do not apply sealing tape to the fixing claws.
NOTICE: Damage to masonry/external wall due to misaligned condensate drain!
• The condensate drain must be directed towards the floor.
► Slide the weather protection grille onto the protruding wall sleeve.
The slope of the condensate drain is directed towards the floor and positioned away from the façade.
► Align the fixing screws with a spirit level.
► Screw the weather protection grille with the pre-mounted fastening screws. (1)
⇒ The fixing claws hook into the wall sleeve.
► Seal the joint between the cover and the exterior wall all around with permanently elastic exterior sealant. (2)
⇒ The protective grille is mounted.
Mounting the weather protection hood Flex
NOTICE
• The projection of the wall sleeve on the outer wall is 10 mm!
Spirit level, pencil, power drill with Ø 8mm drill bit, cordless screwdriver, wall anchors (wallplugs for insulation for insulated exterior walls), permanently elastic external sealant, sealing tape, screws
Requirements:
- The exterior wall is completed and even.
- The wall sleeve set is installed.

► Remove the styrofoam disc on the outside wall side from the wall sleeve.
► Fix the shortened stop tape, 380 x 15 mm, on the outside wall side exclusively in the upper area of the wall sleeve.
The recess in the circumferential stop band is placed in the lower area of the wall sleeve.
► Slide the base plate onto the projecting wall sleeve.
The protective grille is directed towards the floor.
► Level the base plate inner panel with a spirit level.
► Mark the four drill holes:
Outer holes (blue arrow) Masonry.
Inner holes (green arrow) Simplex
► Drill the four holes Ø 8 mm, min 50 mm deep
TIP: Do not apply the sealing tape until immediately before installing the base plate.
This prevents the sealing tape from swelling too much and makes installation easier.
► Attach the sealing tape, 9 mm, outside wall side and circumferentially along the guide on the base plate:
- flush with the opening for the wall sleeve
- along the guide on the outer edge.

Do not seal the fixing holes!
The sealing tape must not protrude at the inner edge of the opening wall sleeve.
► Insert the wall anchors into the boreholes.
► Screw the base plate weather protection hood into the wall anchors with 4 screws.
TIP: When attaching the base plate of the Flex weather protection bonnet to external walls with insulation or when using the Simplex wall installation block/wall installation system, use insulation dowels for fastening. These are not included in the scope of supply, they are available as an option.
NOTICE: Wrong sealing of the joint between the base plate and the outer wall prevents installation of the cover.
• Seal only the upper joint between the base plate and the outer wall.
► Seal the joint between the base plate and the exterior wall with permanently elastic exterior sealant.
► Place the cover on the base plate from above.
► Pull the cover down as far as it will go.
The guides are on the cover hook behind the base plate.
⇒ The weather protection hood Flex is installed.
Inserting the sound insulation lining
NOTICE: The sound insulation lining absorbs sound waves from the outside and from the unit itself (sound transmission and inherent sound).
• To ensure the sound-insulating function, handle the lining with care.
Blade knife
Requirements:
- The external closure is mounted.
- The wall sleeve set is installed.
► Remove the styrofoam discs from the wall sleeve.
► Place the end faces of the sound insulation lining against each other
► Push the sound insulation lining under slight tension into the wall sleeve as far as it will go (the ring insert, if present, is facing the outer wall).
► Cut the sound insulation lining to the length of the wall sleeve minus 20 mm.
⇒ The sound insulation lining is mounted.
4.5 Installing inner panel Light
Requirements:

- The exterior wall is completed and even.
- The wall sleeve set is installed.
- The sound insulation lining is mounted.
► Slide the pre-assembled inner panel into the wall sleeve.
The inventor logo is located at the bottom right.
► Align the base plate inner panel with a spirit level.
If the inner panel does not fit tightly enough in the wall sleeve, it can optionally be screwed to the inner wall. To do this, use the 4 corner holes in the base plate inner panel.
► Pull the top edge of the cover forwards until you feel the latch hook unhook.
⇒ The inner panel is fitted.
Technical Data
5.1 General specifications
| Feature | Value |
| Operating range FOC] | -20 — 50 |
| Minimum wall thickness | 150 mm |
| Extract air/outdoor air | Without aggressive gases, dust, and oils |
| Reference air flow [m3/h] | 12 — 18 [Light variant] 13 — 17 [Plus variant] |
| Reference air flow [m3/h] | 18 — 24 [Light variant] 19 — 23 [Plus variant] |
| The standard sound level difference [dB] | 51 — 52 [Light variant] 54 — 55 [Plus variant] |
| Standard filter class ISO 16890 EN 779: 2012 | ISO Coarse G1 |
| Conformity |
Scope of supply
Standard components
All standard components are also available as spare parts. Further accessories and spare parts can be found in the separate accessories overview. Contact your local distributor to order components for your ventilation system.
| Component | Product Number |
| aV160 ALD | 1001-0204 |
| aV160 ALD Plus | 1001-0205 |
| aV160 ALD Corner | 1001-0215 |
| aV160 ALD Nordic | 1001-0236 |
| External termination Light / Plus¹) variants: Weather protection hood incl. sealing tapes | |
| Weather protection grille Light, white ‒ RAL 9010 | 1508-0110 |
| Weather protection hood Flex, white ‒ RAL 9016 | 1508-0157 | 1508-0171²) |
| Weather protection hood Flex, grey ‒ RAL 9006 | 1508-0158 | 1508-0172²) |
| Weather protection hood Flex, Nord ‒ RAL 7011 | 1508-0159 |
| Weather protection hood Flex, anthracite ‒ RAL 7016 | 1508-0160 | 1508-0173²) |
| Weather protection hood Flex, special color | 1508-0161 | 1508-0174²) |
| Wall sleeve with Styrofoam discs and mounting wedges | |
| Wall sleeve R-D160x495 | 1506-0068 |
| Wall sleeve R-D160x745 | 1506-0069 |
| Inner panel | |
| Inner panel Light V-220×220, white | 1505-0039 |
Accessories
| Component | Product Number |
| Flicker filter aV100 ALD | 1004-0165 |
| Pollen filter aV100 ALD | 1004-0163 |
| Dust filter aV100 ALD | 1004-0164 |
| Simplex incl. WE R-D160 | 1506-0106 |
| Wall mounting block WEB D180 V-210x249x120 | 3008-0078 |
¹) Article numbers of the external closure variants in the separate installation instructions of the respective external closure
²) Variant special: consisting of aluminium, with increased salt resistance
Troubleshooting
| Fault | Possible cause | Remedy |
| Air volume flow control | Air volume flow is too low | Move the cover to a larger opening. |
| Air volume flow is too strong | Move the cover to a smaller opening for a short time. | |
| Noises | Foreign body in the fan | Remove the foreign body from the ventilation device. |
| Supply air is cold | No heat recovery is possible | Upgrade to a device/system with heat recovery |
Warranty and guarantee
Warranty
The warranty covers all defects that were present at the time of purchase. Observe the intended use in order to maintain the warranty claim.
Outside Germany, the national warranty regulations of the country in which the system is sold apply. Contact the dealer in your home country.
Guarantee:
inventor GmbH gives a 5-year guarantee on the wall sleeve. This covers premature product wear.
Warranty and guarantee claim
For information on the guarantee provisions, see www.inventer.eu/garantie/guarantee.
In the event of a warranty or guarantee claim, contact the dealer or factory representative responsible for you.
In any case, send the complete unit back to the manufacturer.
The warranty claim is an additional offer by the manufacturer and does not affect applicable law in any way.
Service
Complaints
Check the delivery for completeness and transport damage on the receipt, using the delivery note.
Complain about missing items immediately, at the latest within 14 days, to your supplier, dealer, or factory representative.
Accessories and spare parts
To order components for your ventilation unit, contact your dealer or factory representative.
Technical customer service:
For technical advice, please contact our technical service staff:
+49 (0) 36427 211-333
[email protected]
Inventor GmbH
Ortsstraße 4a
D-07751 Löberschütz
www.inventer.eu
Subject to modifications No liability for printing errors
Product Number 5012-0016
Version: 1.0 – 09/2022![]()

The weather protection hood Flex is available in different colors and materials (stainless steel/aluminum [with increased salt resistance]) and must be ordered according to the desired color and texture.
¹)WPH: Weather protection hood ²) WPG = Weather protection grille




















